Размещено на портале Архи.ру (www.archi.ru)

30.10.2014

Золотой занавес

Нина Фролова
Объект:
Большой театр в Альби
Адрес:
Франция, None, Альби.

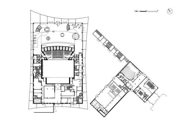
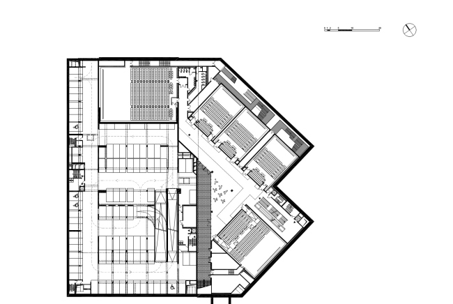
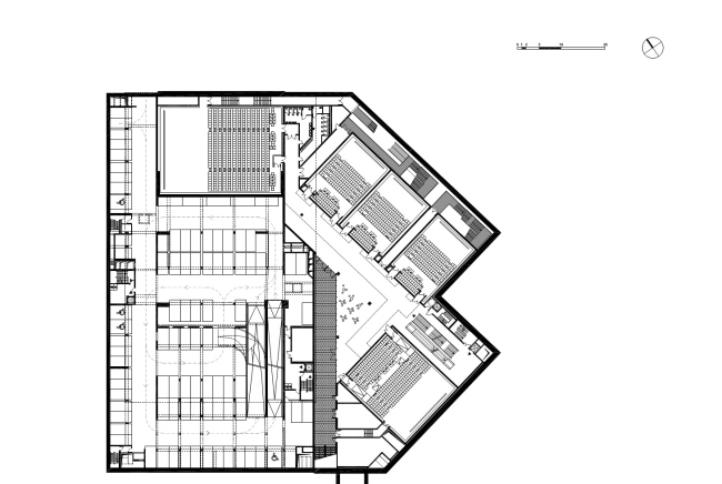
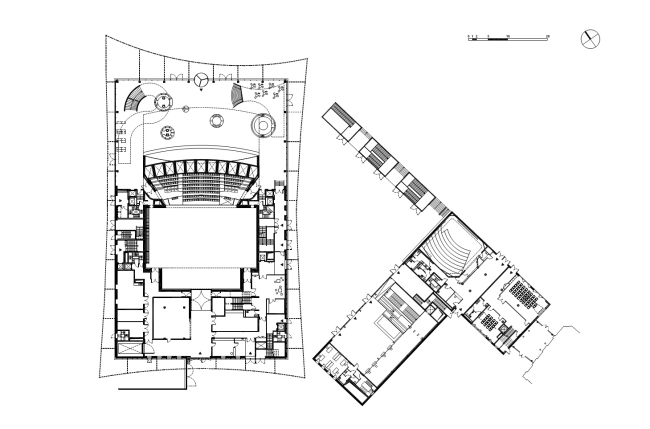
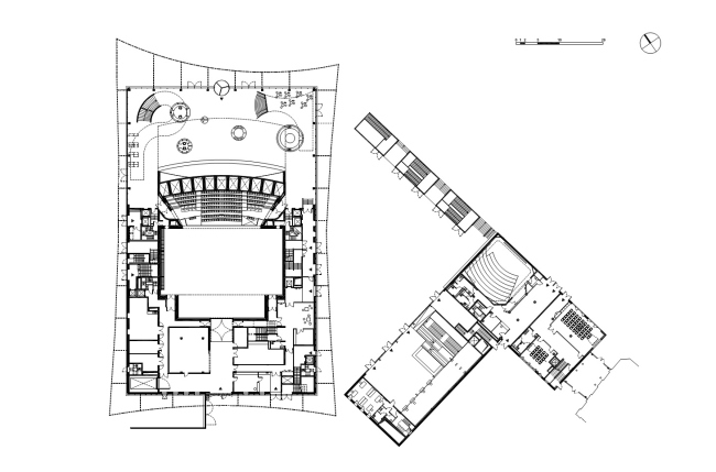
В Альби на юге Франции открылся Большой театр, спроектированный Домиником Перро.

Большой театр в Альби © Georges Fessy / DPA / Adagp
Большой театр в Альби © Georges Fessy / DPA / Adagp

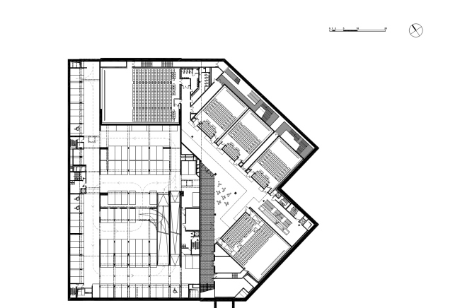
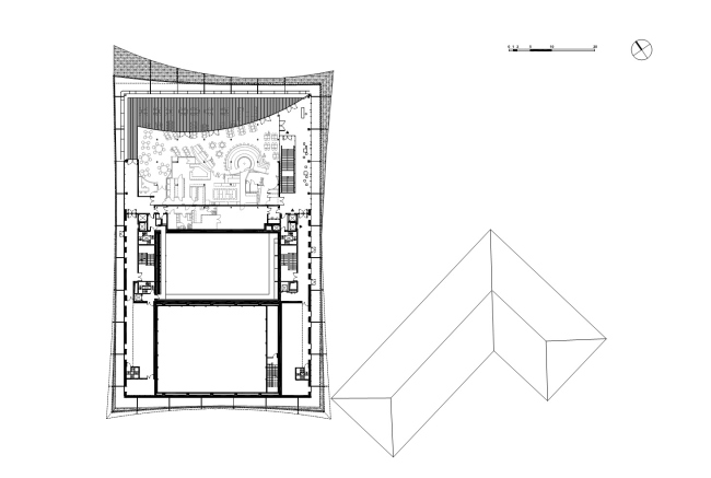
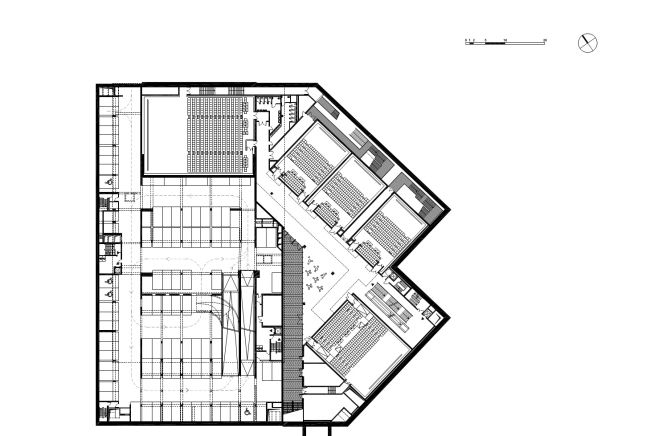
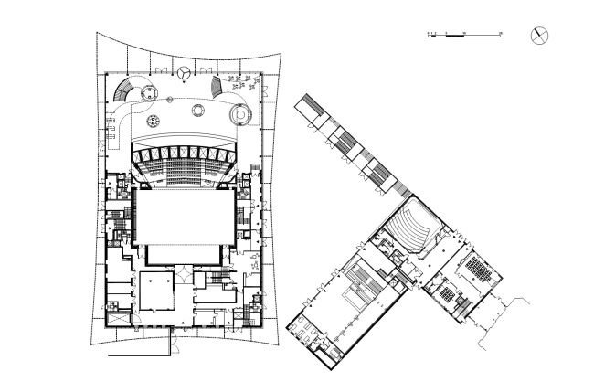
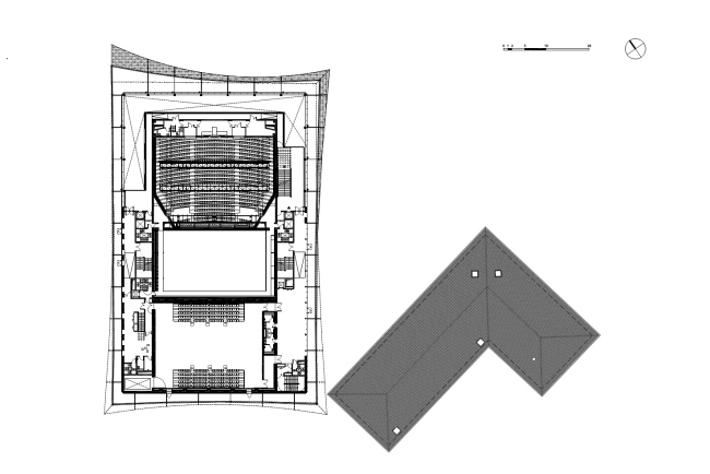
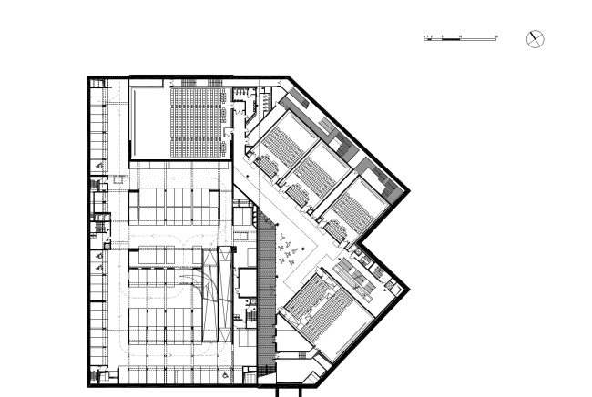
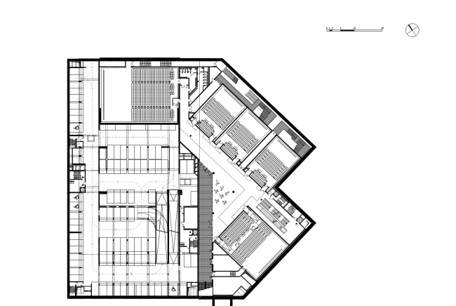
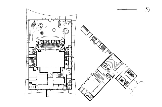
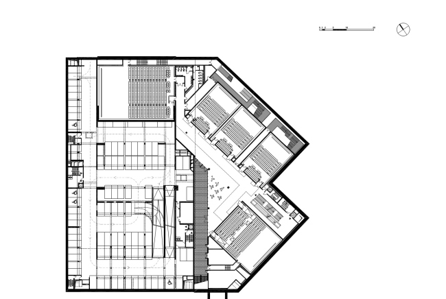
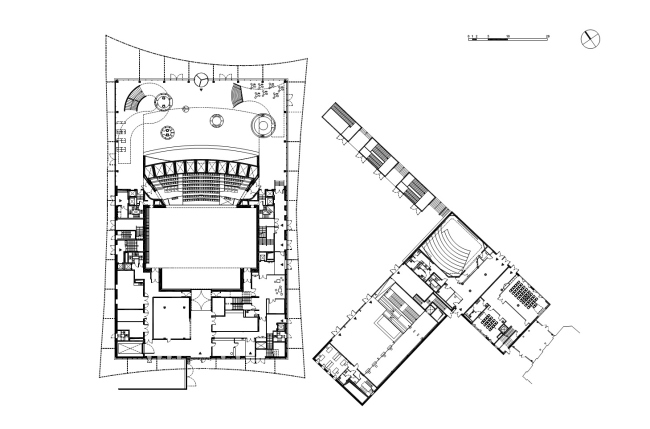
Он расположен на границе исторического центра города. Перро организовал рядом с новой постройкой две треугольные площади: одна, у главного фасада театра, обращена в сторону знаменитого собора, а другая отмечает вход в киноплекс на 8 залов, который частью расположен под театром, частью – в соседнем, перестроенном под эту цель здании.
Большой театр в Альби © Georges Fessy / DPA / Adagp
Большой театр в Альби © Georges Fessy / DPA / Adagp

Компактный блок театра обтянут металлической сеткой золотистого цвета: как и общий терракотовый тон здания, она помогает ему вписаться в кирпично-черепичный ландшафт Альби, при этом защищая интерьеры от южного солнца. Входы в здание отмечены «арками»: в этих местах сетка, которую архитектор сравнивает с театральным занавесом, чуть приподнимается, впуская посетителей внутрь.
Большой театр в Альби © Georges Fessy / DPA / Adagp
Большой театр в Альби © Georges Fessy / DPA / Adagp

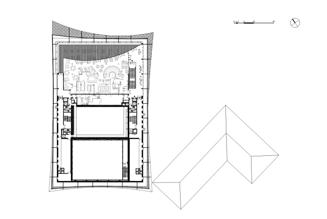
Со стороны «театральной» площади фасад закрыт цветным стеклом, окрашивающим просторное фойе в теплые тона.
Большой театр в Альби © Georges Fessy / DPA / Adagp
Большой театр в Альби © Georges Fessy / DPA / Adagp

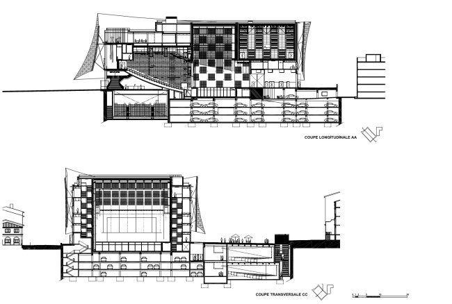
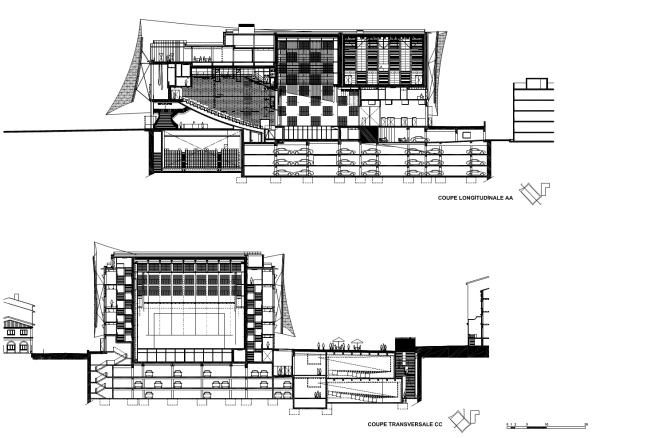
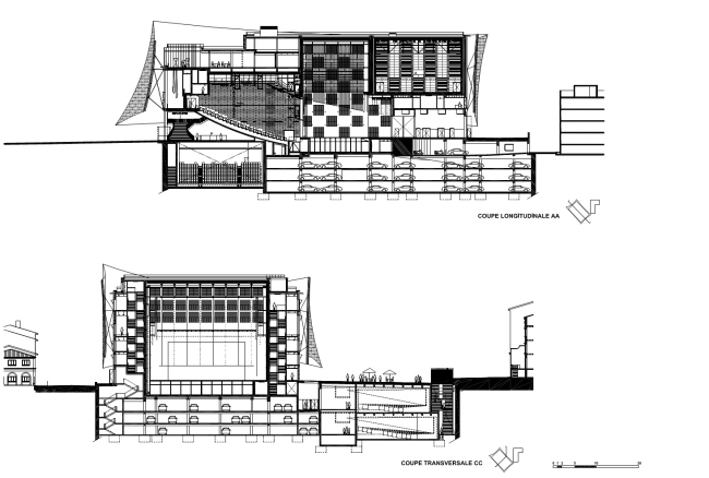
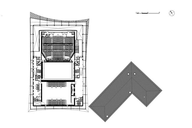
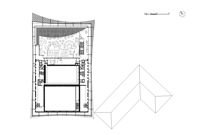
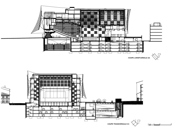
В театре имеются два зала – основной на 900 мест и экспериментальный на 250 зрителей. На террасе на крыше устроен ресторан, откуда открывается панорама Альби.
Большой театр в Альби © Vincent Boutin / DPA / Adagp
Большой театр в Альби © Vincent Boutin / DPA / Adagp

Среди инфраструктурного обременения проекта – муниципальная подземная парковка на 380 машиномест.
Большой театр в Альби © Vincent Boutin / DPA / Adagp
Большой театр в Альби © Vincent Boutin / DPA / Adagp
Большой театр в Альби © Vincent Boutin / DPA / Adagp
Большой театр в Альби © Vincent Boutin / DPA / Adagp
Большой театр в Альби © Vincent Boutin / DPA / Adagp
Большой театр в Альби © Vincent Boutin / DPA / Adagp
Большой театр в Альби © Vincent Boutin / DPA / Adagp
Большой театр в Альби © Vincent Boutin / DPA / Adagp
Большой театр в Альби © Vincent Boutin / DPA / Adagp
Большой театр в Альби © Vincent Boutin / DPA / Adagp
Большой театр в Альби © Vincent Boutin / DPA / Adagp
Большой театр в Альби © Vincent Boutin / DPA / Adagp
Большой театр в Альби © Georges Fessy / DPA / Adagp
Большой театр в Альби © Georges Fessy / DPA / Adagp
Большой театр в Альби © Georges Fessy / DPA / Adagp
Большой театр в Альби © Georges Fessy / DPA / Adagp
Большой театр в Альби © Georges Fessy / DPA / Adagp
Большой театр в Альби © Georges Fessy / DPA / Adagp
Большой театр в Альби © Georges Fessy / DPA / Adagp
Большой театр в Альби © Georges Fessy / DPA / Adagp
Большой театр в Альби © Georges Fessy / DPA / Adagp
Большой театр в Альби © Georges Fessy / DPA / Adagp
Большой театр в Альби © Vincent Boutin / DPA / Adagp
Большой театр в Альби © Vincent Boutin / DPA / Adagp
Большой театр в Альби © Georges Fessy / DPA / Adagp
Большой театр в Альби © Georges Fessy / DPA / Adagp
Большой театр в Альби © Georges Fessy / DPA / Adagp
Большой театр в Альби © Georges Fessy / DPA / Adagp
Большой театр в Альби © Georges Fessy / DPA / Adagp
Большой театр в Альби © Georges Fessy / DPA / Adagp
Большой театр в Альби © Georges Fessy / DPA / Adagp
Большой театр в Альби © Georges Fessy / DPA / Adagp
Большой театр в Альби © Georges Fessy / DPA / Adagp
Большой театр в Альби © Georges Fessy / DPA / Adagp
Большой театр в Альби © Georges Fessy / DPA / Adagp
Большой театр в Альби © Georges Fessy / DPA / Adagp
Большой театр в Альби © Georges Fessy / DPA / Adagp
Большой театр в Альби © Georges Fessy / DPA / Adagp
Большой театр в Альби © Vincent Boutin / DPA / Adagp
Большой театр в Альби © Vincent Boutin / DPA / Adagp
Большой театр в Альби © Vincent Boutin / DPA / Adagp
Большой театр в Альби © Vincent Boutin / DPA / Adagp
Большой театр в Альби © Vincent Boutin / DPA / Adagp
Большой театр в Альби © Vincent Boutin / DPA / Adagp
Большой театр в Альби © Georges Fessy / DPA / Adagp
Большой театр в Альби © Georges Fessy / DPA / Adagp
Большой театр в Альби © Vincent Boutin / DPA / Adagp
Большой театр в Альби © Vincent Boutin / DPA / Adagp
Большой театр в Альби © DPA / Adagp
Большой театр в Альби © DPA / Adagp
Большой театр в Альби © DPA / Adagp
Большой театр в Альби © DPA / Adagp
Большой театр в Альби © DPA / Adagp
Большой театр в Альби © DPA / Adagp
Большой театр в Альби © DPA / Adagp
Большой театр в Альби © DPA / Adagp
Большой театр в Альби © DPA / Adagp
Большой театр в Альби © DPA / Adagp
Большой театр в Альби © DPA / Adagp
Большой театр в Альби © DPA / Adagp
Большой театр в Альби © DPA / Adagp
Большой театр в Альби © DPA / Adagp
Большой театр в Альби © DPA / Adagp
Большой театр в Альби © DPA / Adagp
Большой театр в Альби © DPA / Adagp
Большой театр в Альби © DPA / Adagp
Большой театр в Альби © DPA / Adagp
Большой театр в Альби © DPA / Adagp
Большой театр в Альби © DPA / Adagp
Большой театр в Альби © DPA / Adagp
Большой театр в Альби © DPA / Adagp
Большой театр в Альби © DPA / Adagp
Большой театр в Альби © Dominique Perrault / Adagp
Большой театр в Альби © Dominique Perrault / Adagp