Размещено на портале Архи.ру (www.archi.ru)

21.10.2014

В духе Бажова

Анна Городинская
Объект:
Реновация приборостроительного завода в Екатеринбурге. Первый проект
Адрес:
Россия, Екатеринбург. ул. Горького, д. 17; ул. Пушкина, д. 25
Архитектор:
Александр Бровкин
Полина Воеводина
Сергей Труханов
Мастерская:
Т+Т Architects
Авторский коллектив:
Руководитель мастерской: С. Труханов
Руководитель отдела концепции: П. Воеводина
Главный архитектор проекта: А. Бровкин
Ведущий архитектор проекта: Д. Репина
Архитекторы проекта: В. Купрянов, Н. Федорова, Д. Баренбойм
Ландшафтный архитектор: Е. Орехова
Визуализация экстерьеров: О. Трусова

Пояс-оберег по внешней линии квартала, потайной сад и гостиница, спрятанная в зазеркалье внутреннего двора: проект Т+Т Architects выиграл конкурс на реновацию комплекса зданий Уральского приборостроительного завода в Екатеринбурге.

Результаты конкурса на концепцию застройки промплощадки уральского приборостроительного завода, были объявлены в конце сентября. Победил проект Т+Т Architects, обойдя девять других участников, в числе которых были, в частности, Valode and Pistre, Twelve architects и бюро Алексея Воронцова. Девелоперская компания «Пред-Групп», проводившая конкурс совместно с администрацией города, обещает заключить с победителем контракт на дальнейшую проработку проекта, выбранного за деликатность предложенной реконструкции: девелоперов, а глава компании возглавлял жюри, победивший проект Т+Т Architects привлек именно тем, что он «минимально вмешивается в сложившуюся городскую застройку», бережно сохраняет ее преимущества; среди проектов других участников конкурса были значительно более радикальные варианты реконструкции. Архитекторы сохранили традиционный облик фасадов, дополнив их «настоящими уральскими» орнаментами, и тщательно развели потоки – с одной стороны, сделали район более открытым для горожан и проницаемым, с другой – устроили в рамке жилого дома приватный внутренний двор, и вот его – решили по контрасту современно.

Реновация приборостроительного завода в Екатеринбурге. Первый проект. Перспективный вид со стороны ул. Максима Горького. Проект, 2014 © Т+Т Architects
Реновация приборостроительного завода в Екатеринбурге. Первый проект. Перспективный вид со стороны ул. Максима Горького. Проект, 2014 © Т+Т Architects
Реновация приборостроительного завода в Екатеринбурге. Первый проект. Перспективный вид со стороны внутреннего двора. Проект, 2014 © Т+Т Architects
Реновация приборостроительного завода в Екатеринбурге. Первый проект. Перспективный вид со стороны внутреннего двора. Проект, 2014 © Т+Т Architects

«Мы отталкивались в своей работе от трех важных для нас понятий: сомасштабности, открытости, актуальности, – рассказывает руководитель бюро Сергей Труханов, – учитывая, что весь комплекс находится в центре города, в окружении уже сложившегося квартала, то все здания должны были максимально сохранить свои пропорции и объем, пускай даже в ущерб коммерческим площадям.

Здание на набережной продолжает существующую линию фасадов; мы обновили фасады, добавили аккуратной пластики, традиционных уральских орнаментов, но ритмику окон и структуру фасадов не трогали – здание по-прежнему будет «сомасштабным» человеку, останется ощущение, что здесь все можно пощупать, потрогать. Еще одна отправная точка нашего проекта – то, что мы открыли квартал городу. Между зданиями был сделан разрыв – очень деликатный, очень аккуратный, который связал набережную и параллельную пешеходную улицу».
***
 
Сейчас уже невозможно сказать, кто и зачем решил когда-то поставить в самом центре города, на берегу пруда закрытый для всех и вся, обращенный внутрь себя комплекс полупромышленных-полунаучных зданий, с трудом идентифицируемых как ансамбль: ну разве что по степени абсолютной немасштабности екатерининской парцелляции старой части Екатеринбурга, да по полной отрешенности от окружающей застройки. «Мы наш, мы новый мир построим...». Построили. И гигантский тяжеловесный сундук на непременном красном двухэтажном цоколе десятилетиями не столько доминировал, сколько просто давил окружающую россыпь деревянных домиков второй половины века, времени Бажова и Мамина-Сибиряка – смешение наивного провинциального классицизма с декоративным убранством в стиле «а ля рюс».
Реновация приборостроительного завода в Екатеринбурге. Первый проект. Вид с высоты птичьего полета. Проект, 2014 © Т+Т Architects
Реновация приборостроительного завода в Екатеринбурге. Первый проект. Вид с высоты птичьего полета. Проект, 2014 © Т+Т Architects
Реновация приборостроительного завода в Екатеринбурге. Первый проект. Генеральный план. Проект, 2014 © Т+Т Architects
Реновация приборостроительного завода в Екатеринбурге. Первый проект. Генеральный план. Проект, 2014 © Т+Т Architects
Реновация приборостроительного завода в Екатеринбурге. Первый проект. Расположение в городе и окружение. Проект, 2014 © Т+Т Architects
Реновация приборостроительного завода в Екатеринбурге. Первый проект. Расположение в городе и окружение. Проект, 2014 © Т+Т Architects

Но авторы победившего проекта придумали несколько остроумных ходов, и монстр, разрушавший и целостность набережной, и единство городской ткани, вздохнул, ожил, приобрел человеческий масштаб, открылся городу и стал неотъемлемой его частью.

Главный вопрос проекта, ответ на который необходимо было дать сразу – не подо что реконструировать: в тройственном союзе банк – апарт-отель – гостиница нет ничего нового, это джентльменский набор реконструкции практически любого промышленного объекта. А – как именно это сделать? Нужно было постараться не только найти применение тому, что уже было построено, нужно было еще и не нарушить ритм жизни этой части города: не перегрузить ее днем и не вынудить умирать ночью. И стандартную связку гостиница-банк – фасадом на улицу, апарт-отель – в тихом дворе, вывернули наизнанку. На набережную перелицованными фасадами позднего сталинского ампира смотрят банк и апарт-отель, а за ними, в тишине внутреннего двора с потайным садом, открытого, тем не менее всему городу, спрятана гостиница.
Реновация приборостроительного завода в Екатеринбурге. Первый проект. Перспективный вид со стороны ул. Максима Горького. Проект, 2014 © Т+Т Architects
Реновация приборостроительного завода в Екатеринбурге. Первый проект. Перспективный вид со стороны ул. Максима Горького. Проект, 2014 © Т+Т Architects
Реновация приборостроительного завода в Екатеринбурге. Первый проект. Перспективный вид со стороны ул. Максима Горького. Проект, 2014 © Т+Т Architects
Реновация приборостроительного завода в Екатеринбурге. Первый проект. Перспективный вид со стороны ул. Максима Горького. Проект, 2014 © Т+Т Architects
Реновация приборостроительного завода в Екатеринбурге. Первый проект. Перспективный вид с набережной и Почтового переулка. Проект, 2014 © Т+Т Architects
Реновация приборостроительного завода в Екатеринбурге. Первый проект. Перспективный вид с набережной и Почтового переулка. Проект, 2014 © Т+Т Architects
Реновация приборостроительного завода в Екатеринбурге. Первый проект. Перспективный вид со стороны ул. Максима Горького. Проект, 2014 © Т+Т Architects
Реновация приборостроительного завода в Екатеринбурге. Первый проект. Перспективный вид со стороны ул. Максима Горького. Проект, 2014 © Т+Т Architects
Реновация приборостроительного завода в Екатеринбурге. Первый проект. Перспективный вид со стороны ул. Максима Горького. Проект, 2014 © Т+Т Architects
Реновация приборостроительного завода в Екатеринбурге. Первый проект. Перспективный вид со стороны ул. Максима Горького. Проект, 2014 © Т+Т Architects
Реновация приборостроительного завода в Екатеринбурге. Первый проект. Перспективный вид со стороны ул. Максима Горького. Проект, 2014 © Т+Т Architects
Реновация приборостроительного завода в Екатеринбурге. Первый проект. Перспективный вид со стороны ул. Максима Горького. Проект, 2014 © Т+Т Architects

Что-то ненужное смело сломали, что-то деликатно надстроили, что-то открыли, что-то закрыли и получили ансамбль, втянутый в пешеходную систему центра с его литературным кварталом, обязательными магазинами в первых этажах и тягой к прогулкам вдоль городского пруда. Демонтировав, например, часть здания со стороны улицы Горького, открыли проход с набережной. Появившийся разрыв, раскрывая закулисье внутренней части квартала, стал магнитом, воронкой – неминуемой точкой притяжения публики.

А оказавшись во дворе можно поближе рассмотреть театральные эффекты современной̆ архитектуры: тот самый тайный сад – своеобразный окололитературный сюрреалистический аттракцион. Все образы гармонично уживаются в замкнутом пространстве и находят материальное воплощение в композиции фасадов. Доминантой этой обращенной, по традиции места, внутрь себя композиции стала гостиница, многократно отражающаяся во внутридворовых стеклянных фасадах апарт-отеля и банка. Прекрасный кристалл, спрятанный в потаенном резном сундучке – Бажов, «Уральские сказки» от Т+Т Architects. Но это – внутри. Снаружи же, точно по бажовскому сценарию, все очень традиционно: горизонтальное членение фасадов карнизами, поддерживающими линию сложившейся застройки, и вертикальное деление на три части. Две нижние – существующие и верхняя – надстраиваемая. Первые четыре этажа – реминисценция на тему классики: с фальшколоннами, декоративными резными вставками из камня и облицовкой третьего и четвертого этажей терракотовой плиткой. Графика резьбы – традиционные уральские орнаменты для защиты от злых духов – дала необходимую региональную идентичность, и на фасаде появился пояс-оберег внешней линии квартала.
Реновация приборостроительного завода в Екатеринбурге. Первый проект. Перспективный вид со стороны внутреннего двора. Проект, 2014 © Т+Т Architects
Реновация приборостроительного завода в Екатеринбурге. Первый проект. Перспективный вид со стороны внутреннего двора. Проект, 2014 © Т+Т Architects
Реновация приборостроительного завода в Екатеринбурге. Первый проект. Перспективный вид со стороны внутреннего двора. Проект, 2014 © T+Т Architects
Реновация приборостроительного завода в Екатеринбурге. Первый проект. Перспективный вид со стороны внутреннего двора. Проект, 2014 © T+Т Architects
Реновация приборостроительного завода в Екатеринбурге. Первый проект. Перспективный вид со стороны ул. Пушкина. Проект, 2014 © Т+Т Architects
Реновация приборостроительного завода в Екатеринбурге. Первый проект. Перспективный вид со стороны ул. Пушкина. Проект, 2014 © Т+Т Architects
Реновация приборостроительного завода в Екатеринбурге. Первый проект. Перспективный вид со стороны внутреннего двора. Проект, 2014 © Т+Т Architects
Реновация приборостроительного завода в Екатеринбурге. Первый проект. Перспективный вид со стороны внутреннего двора. Проект, 2014 © Т+Т Architects
Реновация приборостроительного завода в Екатеринбурге. Первый проект. Перспективный вид со стороны внутреннего двора. Проект, 2014 © T+Т Architects
Реновация приборостроительного завода в Екатеринбурге. Первый проект. Перспективный вид со стороны внутреннего двора. Проект, 2014 © T+Т Architects

Выше – надстройка – стекло и металл. Все вместе – хорошо продуманная растяжка-градиент: от классики к хай-теку.

Но когда внутренний двор, став элементом пешеходной системы, открылся для публики, возник вопрос зонирования. И если концепция выделения отдельных зон жилой среды основана просто на выборе разных типов мощения из природных материалов, то для разделения на публичную и внутреннюю зоны использовали приемы геопластики, обогатив еще и рельеф территории. Но самое интересное во все том же пространстве внутридворового зазеркалья – это неожиданное решение части апарт-отеля в жанре городских таунхаусов с отдельными входами и обязательными палисадниками в английском духе. И это – еще один тайник из все той же бажовской сказки: сундучок в сундучке, ларец в ларце, а там – волшебное зеркало со всеми его отражениями.
Реновация приборостроительного завода в Екатеринбурге. Первый проект. Идеология: Double-face. Идеология: уральская орнаментика в деталях отделки фасадов. Проект, 2014 © Т+Т Architects
Реновация приборостроительного завода в Екатеринбурге. Первый проект. Идеология: Double-face. Идеология: уральская орнаментика в деталях отделки фасадов. Проект, 2014 © Т+Т Architects
Реновация приборостроительного завода в Екатеринбурге. Первый проект. Концепция благоустройства и развития прилегающих территорий. Проект, 2014 © Т+Т Architects
Реновация приборостроительного завода в Екатеринбурге. Первый проект. Концепция благоустройства и развития прилегающих территорий. Проект, 2014 © Т+Т Architects
Реновация приборостроительного завода в Екатеринбурге. Первый проект. Существующее состояние. Проект, 2014 © Т+Т Architects
Реновация приборостроительного завода в Екатеринбурге. Первый проект. Существующее состояние. Проект, 2014 © Т+Т Architects
Реновация приборостроительного завода в Екатеринбурге. Первый проект. Фасады. Материалы и детали отделки. Проект, 2014 © Т+Т Architects
Реновация приборостроительного завода в Екатеринбурге. Первый проект. Фасады. Материалы и детали отделки. Проект, 2014 © Т+Т Architects
Реновация приборостроительного завода в Екатеринбурге. Первый проект. Схема функционального зонирования блока гостиницы. Схема разреза. Фасады. Проект, 2014 © Т+Т Architects
Реновация приборостроительного завода в Екатеринбурге. Первый проект. Схема функционального зонирования блока гостиницы. Схема разреза. Фасады. Проект, 2014 © Т+Т Architects
Реновация приборостроительного завода в Екатеринбурге. Первый проект. Блок апартаментов. Дворовый фасад. Проект, 2014 © Т+Т Architects
Реновация приборостроительного завода в Екатеринбурге. Первый проект. Блок апартаментов. Дворовый фасад. Проект, 2014 © Т+Т Architects
Реновация приборостроительного завода в Екатеринбурге. Первый проект. Схема функционального зонирования блока апартаментов. Проект, 2014 © Т+Т Architects
Реновация приборостроительного завода в Екатеринбурге. Первый проект. Схема функционального зонирования блока апартаментов. Проект, 2014 © Т+Т Architects
Реновация приборостроительного завода в Екатеринбурге. Первый проект. Схема организации нового маршрута через внутренний двор комплекса. Проект, 2014 © Т+Т Architects
Реновация приборостроительного завода в Екатеринбурге. Первый проект. Схема организации нового маршрута через внутренний двор комплекса. Проект, 2014 © Т+Т Architects
Реновация приборостроительного завода в Екатеринбурге. Первый проект. Схема зонирования, монтажа и демонтажа. Проект, 2014 © Т+Т Architects
Реновация приборостроительного завода в Екатеринбурге. Первый проект. Схема зонирования, монтажа и демонтажа. Проект, 2014 © Т+Т Architects
Реновация приборостроительного завода в Екатеринбурге. Первый проект. Схема компоновки номеров гостиницы. Вертикальные связи. Проект, 2014 © Т+Т Architects
Реновация приборостроительного завода в Екатеринбурге. Первый проект. Схема компоновки номеров гостиницы. Вертикальные связи. Проект, 2014 © Т+Т Architects
Реновация приборостроительного завода в Екатеринбурге. Первый проект. План 1 этажа. Проект, 2014 © Т+Т Architects
Реновация приборостроительного завода в Екатеринбурге. Первый проект. План 1 этажа. Проект, 2014 © Т+Т Architects
Реновация приборостроительного завода в Екатеринбурге. Первый проект. План 2 этажа. Проект, 2014 © Т+Т Architects
Реновация приборостроительного завода в Екатеринбурге. Первый проект. План 2 этажа. Проект, 2014 © Т+Т Architects
Реновация приборостроительного завода в Екатеринбурге. Первый проект. План 3 этажа. Проект, 2014 © Т+Т Architects
Реновация приборостроительного завода в Екатеринбурге. Первый проект. План 3 этажа. Проект, 2014 © Т+Т Architects
Реновация приборостроительного завода в Екатеринбурге. Первый проект. План 4 этажа. Проект, 2014 © Т+Т Architects
Реновация приборостроительного завода в Екатеринбурге. Первый проект. План 4 этажа. Проект, 2014 © Т+Т Architects
Реновация приборостроительного завода в Екатеринбурге. Первый проект. План 5 этажа. Проект, 2014 © Т+Т Architects
Реновация приборостроительного завода в Екатеринбурге. Первый проект. План 5 этажа. Проект, 2014 © Т+Т Architects
Реновация приборостроительного завода в Екатеринбурге. Первый проект. План 6 этажа. Проект, 2014 © Т+Т Architects
Реновация приборостроительного завода в Екатеринбурге. Первый проект. План 6 этажа. Проект, 2014 © Т+Т Architects
Реновация приборостроительного завода в Екатеринбурге. Первый проект. Схемы типологии жилого фонда гостиницы. Проект, 2014 © Т+Т Architects
Реновация приборостроительного завода в Екатеринбурге. Первый проект. Схемы типологии жилого фонда гостиницы. Проект, 2014 © Т+Т Architects
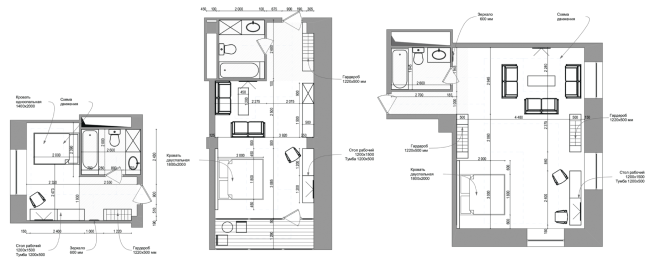
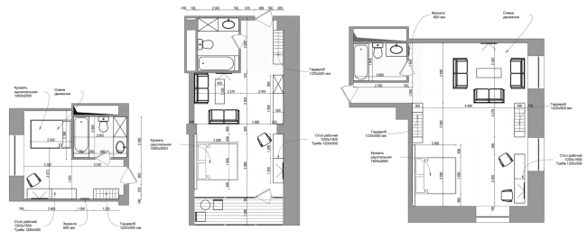
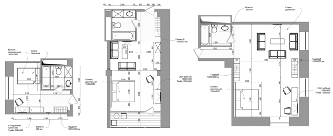
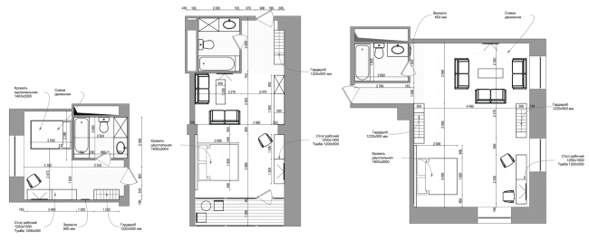
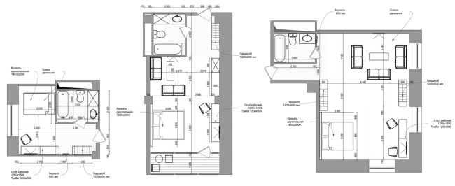
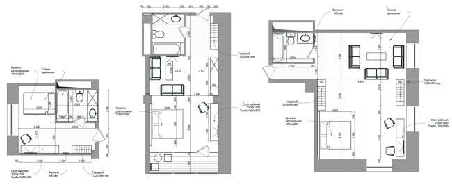
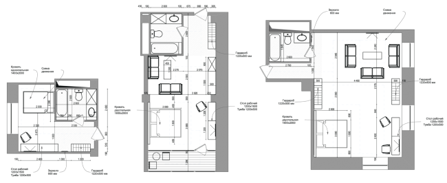
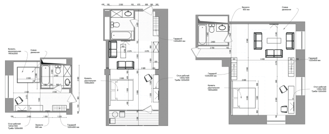
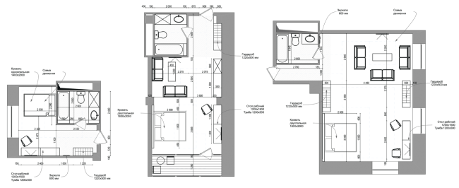
Реновация приборостроительного завода в Екатеринбурге. Первый проект. Планировочные решения номеров гостиницы. Проект, 2014 © Т+Т Architects
Реновация приборостроительного завода в Екатеринбурге. Первый проект. Планировочные решения номеров гостиницы. Проект, 2014 © Т+Т Architects
Реновация приборостроительного завода в Екатеринбурге. Первый проект. Схема движения пешеходов, благоустройство территории. Проект, 2014 © Т+Т Architects
Реновация приборостроительного завода в Екатеринбурге. Первый проект. Схема движения пешеходов, благоустройство территории. Проект, 2014 © Т+Т Architects
Реновация приборостроительного завода в Екатеринбурге. Первый проект. Схема расположения входных групп. Проект, 2014 © Т+Т Architects
Реновация приборостроительного завода в Екатеринбурге. Первый проект. Схема расположения входных групп. Проект, 2014 © Т+Т Architects
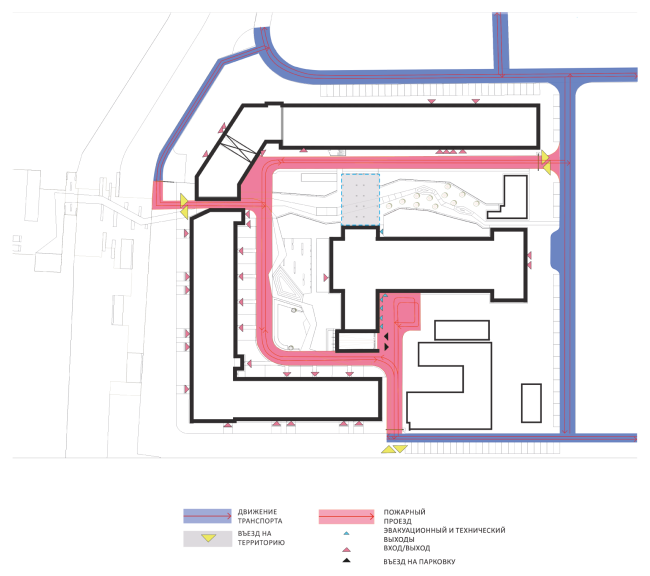
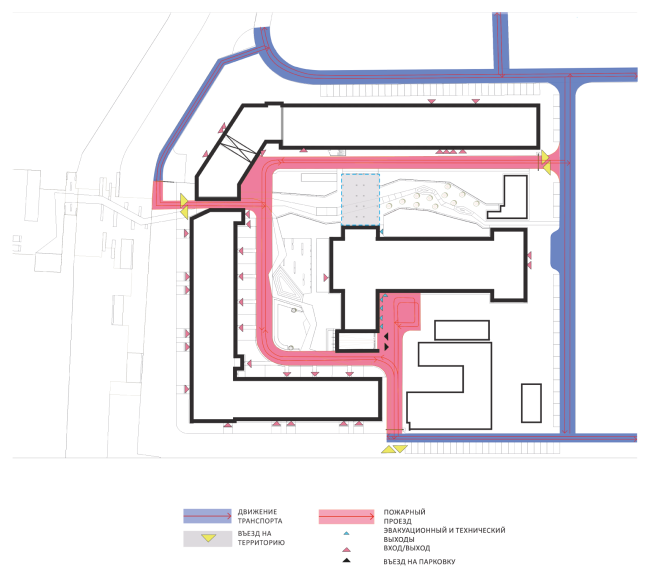
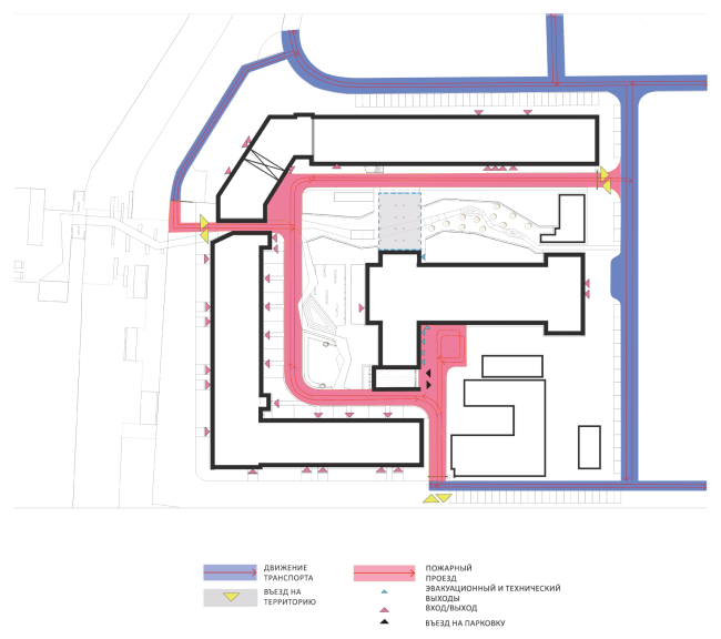
Реновация приборостроительного завода в Екатеринбурге. Первый проект. Схема движения пожарного транспорта. Проект, 2014 © Т+Т Architects
Реновация приборостроительного завода в Екатеринбурге. Первый проект. Схема движения пожарного транспорта. Проект, 2014 © Т+Т Architects
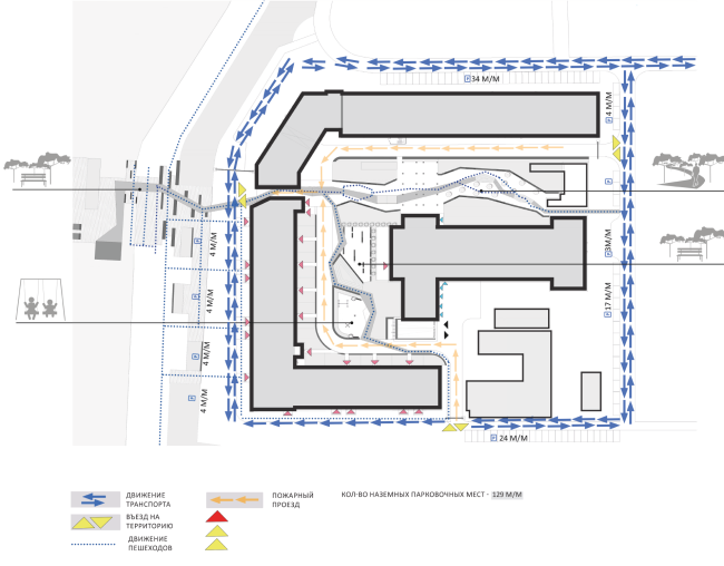
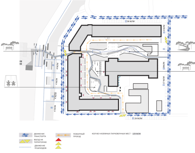
Реновация приборостроительного завода в Екатеринбурге. Первый проект. Схема размещения парковочных мест и движения транспорта. Проект, 2014 © Т+Т Architects
Реновация приборостроительного завода в Екатеринбурге. Первый проект. Схема размещения парковочных мест и движения транспорта. Проект, 2014 © Т+Т Architects