Размещено на портале Архи.ру (www.archi.ru)

10.10.2014

Переосмысляя будущее

Полина Киреева
Объект:
Кампус компании Amorepacific
Адрес:
Южная Корея, None, Йонъин.

Алваро Сиза и Карлос Каштанейра реализовали проект кампуса для ведущей косметической компании Южной Кореи.

Кампус компании Amore Pacific © Fernando Guerra / FG+SG
Кампус компании Amore Pacific © Fernando Guerra / FG+SG

Amore Pacific – крупнейшая южнокорейская косметическая компания, причем в данном случае это значит больше, чем обычное господство на национальном рынке: Южная Корея лидирует в мире по расходу косметических средств на душу населения. В своей продукции Amore Pacific сочетает новейшие исследования с традицией, в том числе – вниманием к белизне кожи, для корейцев – знаке аристократичности. Такой подход подкрепляется существованием огромной коллекции исторических предметов, связанных с «женской темой» – одежды, косметики, украшений, «реквизита» чайной церемонии, причем в этом собрании немало произведений национального значения.
 
Кампус компании Amore Pacific © Fernando Guerra / FG+SG
Кампус компании Amore Pacific © Fernando Guerra / FG+SG

Чтобы посмотреть на постройки Альваро Сизы и поручить ему проект музея для своей коллекции владелец Amore Pacific специально приезжал в Португалию. После его визита началась активная работа над проектом, а воодушевленный заказчик скупал все больше земель в центре Сеула. Однако тот, первый проект так и остался на бумаге.
 
Кампус компании Amore Pacific © Fernando Guerra / FG+SG
Кампус компании Amore Pacific © Fernando Guerra / FG+SG

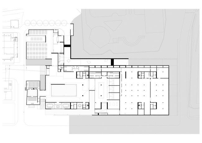
В 40 минутах езды от Сеула, в городе Йонъин, у Amore Pacific есть огромные владения – целый кампус, территория которого в итоге и стала местом строительства.
 
Кампус компании Amore Pacific © Fernando Guerra / FG+SG
Кампус компании Amore Pacific © Fernando Guerra / FG+SG

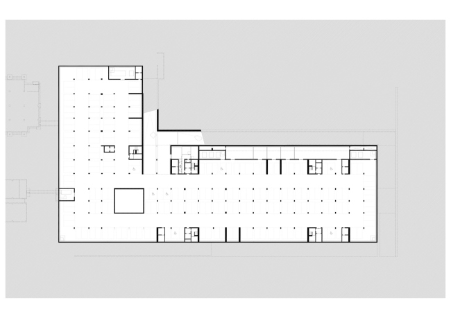
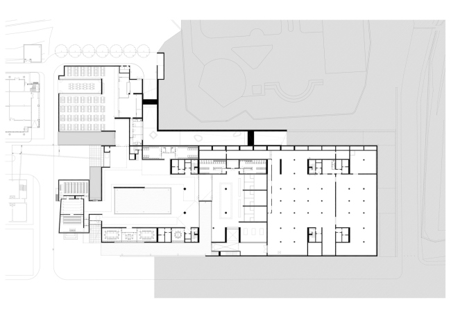
Там появились здание лабораторий из серого гранита, кирпичный корпус образовательного центра для сотрудников, где также есть «музей» для экспозиции малой части коллекции (остальные предметы хранятся в подземном ярусе), небольшой жилой корпус для посетивших кампус исследователей и сотрудников из других частей страны и отель для гостей более выского ранга, а также два многофунциональных павильона.
 
Кампус компании Amore Pacific © Fernando Guerra / FG+SG
Кампус компании Amore Pacific © Fernando Guerra / FG+SG

Как признается сам Сиза, он с детства мечтал стать скульптором, но поступил на архитектурный факультет, чтобы не расстраивать отца. В этом, возможно, и скрывается тайна его метода. Идеально высчитанные пропорции, колоссальное внимание к деталям, игра объемов и масс, света и тени, брутальная, зависшая в нескольких секундах до «приземления» архитектура.
 
Кампус компании Amore Pacific © Álvaro Siza, Carlos Castanheira, Kim Jong Kyu
Кампус компании Amore Pacific © Álvaro Siza, Carlos Castanheira, Kim Jong Kyu

Будущее наступило – оно уже давно наступило, потому и кажется чем-то знакомым и хорошо осмысленным. Можно даже говорить о его языке, понятном каждому, но пока не поддающемся воспроизведению – языке архитектуры Алваро Сизы.
Кампус компании Amore Pacific © Fernando Guerra / FG+SG
Кампус компании Amore Pacific © Fernando Guerra / FG+SG
Кампус компании Amore Pacific © Fernando Guerra / FG+SG
Кампус компании Amore Pacific © Fernando Guerra / FG+SG
Кампус компании Amore Pacific © Fernando Guerra / FG+SG
Кампус компании Amore Pacific © Fernando Guerra / FG+SG
Кампус компании Amore Pacific © Fernando Guerra / FG+SG
Кампус компании Amore Pacific © Fernando Guerra / FG+SG
Кампус компании Amore Pacific © Fernando Guerra / FG+SG
Кампус компании Amore Pacific © Fernando Guerra / FG+SG
Кампус компании Amore Pacific © Fernando Guerra / FG+SG
Кампус компании Amore Pacific © Fernando Guerra / FG+SG
Кампус компании Amore Pacific © Fernando Guerra / FG+SG
Кампус компании Amore Pacific © Fernando Guerra / FG+SG
Кампус компании Amore Pacific © Fernando Guerra / FG+SG
Кампус компании Amore Pacific © Fernando Guerra / FG+SG
Кампус компании Amore Pacific © Fernando Guerra / FG+SG
Кампус компании Amore Pacific © Fernando Guerra / FG+SG
Кампус компании Amore Pacific © Fernando Guerra / FG+SG
Кампус компании Amore Pacific © Fernando Guerra / FG+SG
Кампус компании Amore Pacific © Fernando Guerra / FG+SG
Кампус компании Amore Pacific © Fernando Guerra / FG+SG
Кампус компании Amore Pacific © Álvaro Siza, Carlos Castanheira, Kim Jong Kyu
Кампус компании Amore Pacific © Álvaro Siza, Carlos Castanheira, Kim Jong Kyu
Кампус компании Amore Pacific © Álvaro Siza, Carlos Castanheira, Kim Jong Kyu
Кампус компании Amore Pacific © Álvaro Siza, Carlos Castanheira, Kim Jong Kyu
Кампус компании Amore Pacific © Álvaro Siza, Carlos Castanheira, Kim Jong Kyu
Кампус компании Amore Pacific © Álvaro Siza, Carlos Castanheira, Kim Jong Kyu
Кампус компании Amore Pacific © Álvaro Siza, Carlos Castanheira, Kim Jong Kyu
Кампус компании Amore Pacific © Álvaro Siza, Carlos Castanheira, Kim Jong Kyu
Кампус компании Amore Pacific © Álvaro Siza, Carlos Castanheira, Kim Jong Kyu
Кампус компании Amore Pacific © Álvaro Siza, Carlos Castanheira, Kim Jong Kyu
Кампус компании Amore Pacific © Álvaro Siza, Carlos Castanheira, Kim Jong Kyu
Кампус компании Amore Pacific © Álvaro Siza, Carlos Castanheira, Kim Jong Kyu
Кампус компании Amore Pacific © Álvaro Siza, Carlos Castanheira, Kim Jong Kyu
Кампус компании Amore Pacific © Álvaro Siza, Carlos Castanheira, Kim Jong Kyu
Кампус компании Amore Pacific © Fernando Guerra / FG+SG
Кампус компании Amore Pacific © Fernando Guerra / FG+SG
Кампус компании Amore Pacific © Fernando Guerra / FG+SG
Кампус компании Amore Pacific © Fernando Guerra / FG+SG
Кампус компании Amore Pacific © Fernando Guerra / FG+SG
Кампус компании Amore Pacific © Fernando Guerra / FG+SG
Кампус компании Amore Pacific © Fernando Guerra / FG+SG
Кампус компании Amore Pacific © Fernando Guerra / FG+SG
Кампус компании Amore Pacific © Fernando Guerra / FG+SG
Кампус компании Amore Pacific © Fernando Guerra / FG+SG
Кампус компании Amore Pacific © Fernando Guerra / FG+SG
Кампус компании Amore Pacific © Fernando Guerra / FG+SG
Кампус компании Amore Pacific © Fernando Guerra / FG+SG
Кампус компании Amore Pacific © Fernando Guerra / FG+SG
Кампус компании Amore Pacific © Fernando Guerra / FG+SG
Кампус компании Amore Pacific © Fernando Guerra / FG+SG
Кампус компании Amore Pacific © Fernando Guerra / FG+SG
Кампус компании Amore Pacific © Fernando Guerra / FG+SG
Кампус компании Amore Pacific © Fernando Guerra / FG+SG
Кампус компании Amore Pacific © Fernando Guerra / FG+SG
Кампус компании Amore Pacific © Fernando Guerra / FG+SG
Кампус компании Amore Pacific © Fernando Guerra / FG+SG
Кампус компании Amore Pacific © Fernando Guerra / FG+SG
Кампус компании Amore Pacific © Fernando Guerra / FG+SG
Кампус компании Amore Pacific © Fernando Guerra / FG+SG
Кампус компании Amore Pacific © Fernando Guerra / FG+SG
Кампус компании Amore Pacific © Fernando Guerra / FG+SG
Кампус компании Amore Pacific © Fernando Guerra / FG+SG
Кампус компании Amore Pacific © Fernando Guerra / FG+SG
Кампус компании Amore Pacific © Fernando Guerra / FG+SG
Кампус компании Amore Pacific © Fernando Guerra / FG+SG
Кампус компании Amore Pacific © Fernando Guerra / FG+SG
Кампус компании Amore Pacific © Fernando Guerra / FG+SG
Кампус компании Amore Pacific © Fernando Guerra / FG+SG
Кампус компании Amore Pacific © Fernando Guerra / FG+SG
Кампус компании Amore Pacific © Fernando Guerra / FG+SG
Кампус компании Amore Pacific © Fernando Guerra / FG+SG
Кампус компании Amore Pacific © Fernando Guerra / FG+SG
Кампус компании Amore Pacific © Fernando Guerra / FG+SG
Кампус компании Amore Pacific © Fernando Guerra / FG+SG
Кампус компании Amore Pacific © Fernando Guerra / FG+SG
Кампус компании Amore Pacific © Fernando Guerra / FG+SG
Кампус компании Amore Pacific © Fernando Guerra / FG+SG
Кампус компании Amore Pacific © Fernando Guerra / FG+SG