Размещено на портале Архи.ру (www.archi.ru)

03.10.2014

Рыночная арка

Нина Фролова
Объект:
Комплекс Markthal
Адрес:
Нидерланды, None, Роттердам.
Мастерская:
MVRDV

MVRDV построили в Роттердаме первый в мире крытый рынок, совмещенный с жилым комплексом.

Комплекс Markthal. Фото: Ossip van Duivenbode © Provast / MVRDV
Комплекс Markthal. Фото: Ossip van Duivenbode © Provast / MVRDV

Markthal появился в центре города, рядом с готической церковью Синт-Лауренскерк и «кубическими домами» Пита Блома. В 1990-е годы здесь была демонтирована железнодорожная эстакада, и на освободившемся пространстве два раза в неделю развертывался продовольственный рынок. Но позже по соображениям санитарии открытые рынки мяса и рыбы были в Голландии запрещены, и потому для продажи продуктов было решено возвести капитальную постройку. В проведенном в 2004 конкурсе архитекторы MVRDV выиграли благодаря своему новаторскому подходу: их рынок был задуман как оживленный центр потребления, совмещенный с квартирами и большим паркингом.
 
Комплекс Markthal. Фото: Ossip van Duivenbode © Provast / MVRDV
Комплекс Markthal. Фото: Ossip van Duivenbode © Provast / MVRDV

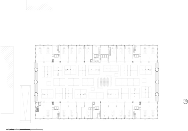
По сути, Markthal (что и означает «крытый рынок») – это огромная «арка» высотой 40 м, длиной 120 м и шириной 70 м. В ней расположено 228 квартир (из них 102 – сдаются в аренду, 126 – выставлены на продажу; площадь варьируется от 80 до 300 м2, то есть от 2 до 5 спален, в том числе имеются 24 пентхауса). Все жилые комнаты выходят окнами наружу, а кухни, столовые и кладовые – внутрь, в пространство рынка, однако от шума и запахов интерьеры защищены тройным остеклением окон или проемов в полу.
 
Комплекс Markthal. Фото: Ossip van Duivenbode © Provast / MVRDV
Комплекс Markthal. Фото: Ossip van Duivenbode © Provast / MVRDV

Торцевые фасады сооружения полностью прозрачны, в качестве каркаса для остекления использованы сети из стальных тросов. Это позволило как максимально использовать естественное освещение, так и визуально связать интерьер рынка с окружением.
 
Комплекс Markthal. Фото: Ossip van Duivenbode © Provast / MVRDV
Комплекс Markthal. Фото: Ossip van Duivenbode © Provast / MVRDV

Здание снаружи, как и площадь вокруг него, облицованы серым камнем: он служит нейтральным фоном для буйства цвета внутри. На внутреннюю поверхность арки, обшитую перфорированными алюминиевыми панелями, нанесена картина художников Арно Кунена (Arno Coenen) и Ирис Роскам (Iris Roskam) «Рог изобилия» с изображением рыночной снеди, цветов и насекомых, что связывает это монументальное произведение (его площадь – 11 000 м2) с работами голландских мастеров натюрморта XVII века. Качество печати при этом сравнимо с глянцевым журналом.
 
Комплекс Markthal. Фото: Daria Scagliola + Stijn Brakkee © Provast / MVRDV
Комплекс Markthal. Фото: Daria Scagliola + Stijn Brakkee © Provast / MVRDV

На уровне земли под сводом рынка расположено около 100 киосков, где продаются разнообразные продукты питания и напитки – от сыра до капучино, от доступных товаров до редких деликатесов. Также в Markthal имеются 20 магазинов (все они связаны с темой еды – включая посудную и винную лавки), кафе и ресторанов. На первом подземном уровне расположены супермаркет Albert Heijn, магазин бытовой химии, косметики и т. д. Etos и магазин алкогольной продукции Gall & Gall. Ниже расположен муниципальный гараж на 1200 машин, а в 2015 городские власти планируют открыть рядом парковку для 800 велосипедов. Также в 2015 в комплексе появится образовательный центр здорового питания «Мир вкуса».
 
Комплекс Markthal. Фото: Ossip van Duivenbode © Provast / MVRDV
Комплекс Markthal. Фото: Ossip van Duivenbode © Provast / MVRDV

Так как именно в районе нынешнего Markthal тысячу лет назад был основан Роттердам, посетители, перемещаясь по центральному эскалатору, могут ознакомиться с устроенной вдоль него «вертикальной выставкой» об истории города «Лестница времени».
 
Комплекс Markthal. Фото: Ossip van Duivenbode © Provast / MVRDV
Комплекс Markthal. Фото: Ossip van Duivenbode © Provast / MVRDV

Бюджет проекта составил 175 млн евро. Здание получило рейтинг энергоэффективности BREEAM Very Good.
Комплекс Markthal. Фото: Ossip van Duivenbode © Provast / MVRDV
Комплекс Markthal. Фото: Ossip van Duivenbode © Provast / MVRDV
Комплекс Markthal. Фото: Ossip van Duivenbode © Provast / MVRDV
Комплекс Markthal. Фото: Ossip van Duivenbode © Provast / MVRDV
Комплекс Markthal. Фото: Daria Scagliola + Stijn Brakkee © Provast / MVRDV
Комплекс Markthal. Фото: Daria Scagliola + Stijn Brakkee © Provast / MVRDV
Комплекс Markthal. Фото: Ossip van Duivenbode © Provast / MVRDV
Комплекс Markthal. Фото: Ossip van Duivenbode © Provast / MVRDV
Комплекс Markthal. Фото: Ossip van Duivenbode © Provast / MVRDV
Комплекс Markthal. Фото: Ossip van Duivenbode © Provast / MVRDV
Комплекс Markthal. Фото: Ossip van Duivenbode © Provast / MVRDV
Комплекс Markthal. Фото: Ossip van Duivenbode © Provast / MVRDV
Комплекс Markthal. Фото: Ossip van Duivenbode © Provast / MVRDV
Комплекс Markthal. Фото: Ossip van Duivenbode © Provast / MVRDV
Комплекс Markthal. Фото: Ossip van Duivenbode © Provast / MVRDV
Комплекс Markthal. Фото: Ossip van Duivenbode © Provast / MVRDV
Комплекс Markthal. Фото: Ossip van Duivenbode © Provast / MVRDV
Комплекс Markthal. Фото: Ossip van Duivenbode © Provast / MVRDV
Комплекс Markthal. Фото: Ossip van Duivenbode © Provast / MVRDV
Комплекс Markthal. Фото: Ossip van Duivenbode © Provast / MVRDV
Комплекс Markthal. Фото: Ossip van Duivenbode © Provast / MVRDV
Комплекс Markthal. Фото: Ossip van Duivenbode © Provast / MVRDV
Комплекс Markthal. Фото: Ossip van Duivenbode © Provast / MVRDV
Комплекс Markthal. Фото: Ossip van Duivenbode © Provast / MVRDV
Комплекс Markthal. Фото: Daria Scagliola + Stijn Brakkee © Provast / MVRDV
Комплекс Markthal. Фото: Daria Scagliola + Stijn Brakkee © Provast / MVRDV
Комплекс Markthal. Фото: Daria Scagliola + Stijn Brakkee © Provast / MVRDV
Комплекс Markthal. Фото: Daria Scagliola + Stijn Brakkee © Provast / MVRDV
Комплекс Markthal. Фото: Ossip van Duivenbode © Provast / MVRDV
Комплекс Markthal. Фото: Ossip van Duivenbode © Provast / MVRDV
Комплекс Markthal. Фото: Ossip van Duivenbode © Provast / MVRDV
Комплекс Markthal. Фото: Ossip van Duivenbode © Provast / MVRDV
Комплекс Markthal. Фото: Ossip van Duivenbode © Provast / MVRDV
Комплекс Markthal. Фото: Ossip van Duivenbode © Provast / MVRDV
Комплекс Markthal. Фото: Ossip van Duivenbode © Provast / MVRDV
Комплекс Markthal. Фото: Ossip van Duivenbode © Provast / MVRDV
Комплекс Markthal. Фото: Ossip van Duivenbode © Provast / MVRDV
Комплекс Markthal. Фото: Ossip van Duivenbode © Provast / MVRDV
Комплекс Markthal. Фото: Daria Scagliola + Stijn Brakkee © Provast / MVRDV
Комплекс Markthal. Фото: Daria Scagliola + Stijn Brakkee © Provast / MVRDV
Комплекс Markthal. Фото: Daria Scagliola + Stijn Brakkee © Provast / MVRDV
Комплекс Markthal. Фото: Daria Scagliola + Stijn Brakkee © Provast / MVRDV
Комплекс Markthal. Фото: Daria Scagliola + Stijn Brakkee © Provast / MVRDV
Комплекс Markthal. Фото: Daria Scagliola + Stijn Brakkee © Provast / MVRDV
Комплекс Markthal. Фото: Daria Scagliola + Stijn Brakkee © Provast / MVRDV
Комплекс Markthal. Фото: Daria Scagliola + Stijn Brakkee © Provast / MVRDV
Комплекс Markthal. Фото: Daria Scagliola + Stijn Brakkee © Provast / MVRDV
Комплекс Markthal. Фото: Daria Scagliola + Stijn Brakkee © Provast / MVRDV
Комплекс Markthal. Фото: Daria Scagliola + Stijn Brakkee © Provast / MVRDV
Комплекс Markthal. Фото: Daria Scagliola + Stijn Brakkee © Provast / MVRDV
Комплекс Markthal. Фото: Daria Scagliola + Stijn Brakkee © Provast / MVRDV
Комплекс Markthal. Фото: Daria Scagliola + Stijn Brakkee © Provast / MVRDV
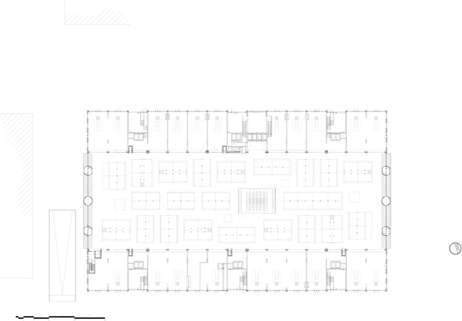
Комплекс Markthal © MVRDV
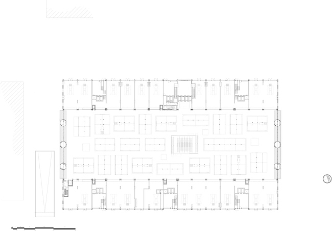
Комплекс Markthal © MVRDV
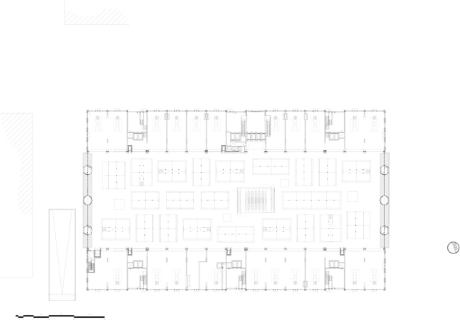
Комплекс Markthal © MVRDV
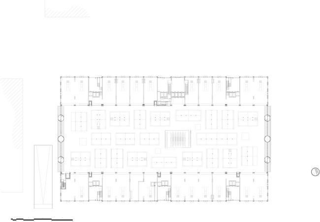
Комплекс Markthal © MVRDV
Комплекс Markthal © MVRDV
Комплекс Markthal © MVRDV
Комплекс Markthal © MVRDV
Комплекс Markthal © MVRDV
Комплекс Markthal © MVRDV
Комплекс Markthal © MVRDV
Комплекс Markthal © MVRDV
Комплекс Markthal © MVRDV
Комплекс Markthal © MVRDV
Комплекс Markthal © MVRDV
Комплекс Markthal © MVRDV
Комплекс Markthal © MVRDV
Комплекс Markthal © MVRDV
Комплекс Markthal © MVRDV
Комплекс Markthal © MVRDV
Комплекс Markthal © MVRDV
Комплекс Markthal © MVRDV
Комплекс Markthal © MVRDV