Размещено на портале Архи.ру (www.archi.ru)

30.09.2014

Музей для древнего Ани

Публикуем дипломную работу на звание магистра архитектуры выпускницы Дюссельдорфского университета прикладных наук Заруи Мартиросян.

Предоставлено Заруи Мартиросян
Предоставлено Заруи Мартиросян

Заруи Мартиросян окончила курс на звание магистра Школу архитектуры Петера Беренса (Peter Behrens School of Architecture) Дюссельдорфского университета прикладных наук (Fachhochschule Düsseldorf).
 
На выполнение дипломной работы в школе имени Беренса дается три месяца; тему и ведущего преподавателя может выбрать студент, или же их может назначить школа. Выбранную тему студент должен защитить, доказав комиссии, что он способен справиться с заданием (достать нужные чертежи, наладить контакты с людьми, которые могут его проконсультировать, предоставить необходимые материалы и т. д.).
 
От выбора профессора зависит, на чем будет сделан упор в проекте: для одних преподавателей самой важной является художественная сторона, для других –конструкции, для третьих – экологический аспект.
 
Ценными всегда бывают промежуточные просмотры дипломной работы (midterm review), где студент должен за короткое время презентовать свой проект профессорам архитектурного факультета и своим сокурсникам и получить в ответ полезную критику.
 
Главную роль при выполнении диплома играет самостоятельная работа студента. Профессор в этом случае является лишь наблюдателем и советчиком, а решение –слушать профессора или нет – каждый студент принимает сам. Считается, что к моменту сдачи работы выпускник имеет достаточный опыт, чтобы работать самостоятельно.
Предоставлено Заруи Мартиросян
Предоставлено Заруи Мартиросян



 
Центр для посетителей и проектирование пути движения человека в городе Ани на территории Турции
 
Ани – один из впечатляющих городов средних веков, политический, культурный и экономический центр, бывшая столица Армении. Сегодня, опустошенная и заброшенная, она находится на территории Турции.
 
Задание для дипломного проекта состоит из двух частей: проектирование центра для посетителей и исследователей из нескольких зданий и организация маршрута для туристов в городе.
 
Предоставлено Заруи Мартиросян
Предоставлено Заруи Мартиросян

Ежегодно Ани посещает множество людей из разных стран мира, поэтому там необходим центр для посетителей. В Ани постоянно существует риск разрушения зданий и утраты одного из величайших творений армянской и мировой архитектуры. Ани внесено ЮНЕСКО в список памятников, находящихся под угрозой исчезновения. Новый исследовательский центр может дать новые возможности для исследования памятников архитектуры в городе, обнаружения новых ценностей и методов сохранения руин.
 
Предоставлено Заруи Мартиросян
Предоставлено Заруи Мартиросян

История города можно разделить на 6 этапов («Основание», «Время расцвета», «Упадок», «Забвение», «Открытие», «Современность»). «Основание» начинается с V в н.э., когда город был основан династией Камаскаран. С X по XIII вв. было «Время расцвета»: Ани был провозглашен столицей Армении. В конце XIII в. Ани перешел под власть турок. В 1319 произошло сильное землетрясение, от которого город очень пострадал. После начался новый период, «Упадок», который продолжался до конца XV в. «Забвение» длилось больше, чем 400 лет – с XV до конца XIX в. Город был заново открыт Николаем Марром в конце XIX в., когда эта территория перешла к России. Тогда же и были проведены первые, обширные археологические раскопки. После Первой мировой войны Ани был вновь передан Турции. До недавнего времени Ани находился в милитаризованной зоне и его посещение было запрещено, но сейчас город открыт для туристов и исследователей.
 
Предоставлено Заруи Мартиросян
Предоставлено Заруи Мартиросян

В настоящее время к Ани подъезжают по дороге, проходящей через бедную, захудалую деревню Осакли. Проектом предлагается осуществление подъезда по альтернативному пути, который пролегает по открытой местности. Таким образом, посетитель воспринимает город среди свободного пространства, без какого-либо влияния обветшавших построек Осакли. Первое, что видит путешественник – это смотровая башня, часть комплекса зданий, который также включает в себя исследовательский корпус, центр для посетителей и навес для машин. Под навесом, на парковке, которая располагается на уровне 2 м ниже поверхности земли, человек может оставить свой автомобиль и сразу пойти в центр для посетителей или же подняться на башню. С башни открывается уникальный вид на город и ландшафт. Окна башни сделаны таким образом, что наблюдатель сможет увидеть различные панорамы: ландшафт, горы и сам город Ани.
 
Предоставлено Заруи Мартиросян
Предоставлено Заруи Мартиросян

После этого путешественник может посетить сам город, который должен восприниматься свободно, без каких-либо ограничений. В его инфраструктуру внедрены новые элементы из одного и того же материала – стали кортен. Среди них есть смотровая платформа, городской квартал, мост, плиты с информацией, система хранения, элемент солнцезащиты.
 
Предоставлено Заруи Мартиросян
Предоставлено Заруи Мартиросян



Новый мост находится на месте старого, единственного моста через реку Ахурян. Здесь в руину моста интегрирована платформа, которая частично висит в воздухе над рекой Ахурян и границей между двумя странами. Над городским кварталом спроектирован мост, проходящий над ним. С моста посетителю открывается вид на квартал, и он может осматривать исторические постройки, не причиняя им вреда.
 
Смотровая платформа, частично висящая в воздухе – последняя остановка на пути посетителя. Внутри находятся туалет и кафе, а снаружи открывается прекрасный вид на Армению.
 
Информационные плиты расположены горизонтально, чтобы не портить вид на исторические памятники города.
 
Следующий элемент – система хранения, которая находится недалеко от важных построек города. Она создана по принципу шкафов, в которые помещаются фрагменты памятника, рядом с которым эта система располагается. Это сделано для того, чтобы было невозможно украсть камни из Ани.
 
Элемент солнцезащиты представляет из себя простейшую форму стоечно-балочной системы.
 
Предоставлено Заруи Мартиросян
Предоставлено Заруи Мартиросян



Спроектированные объекты и элементы не кажутся чужеродными включениями, а гармонично вписаны в городскую среду.
 
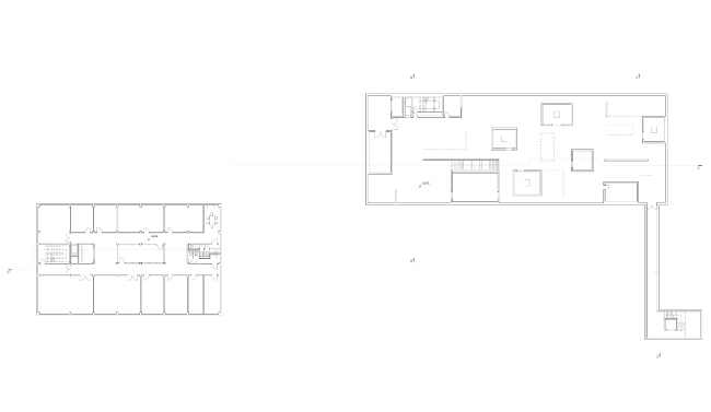
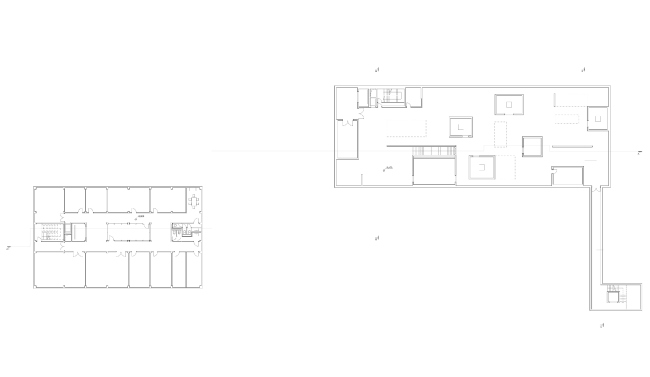
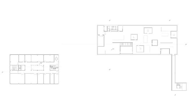
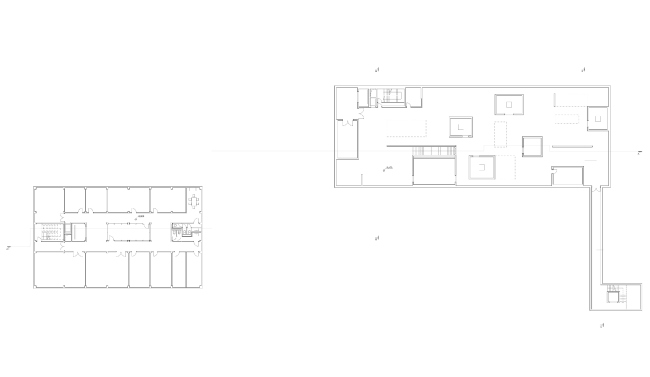
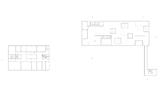
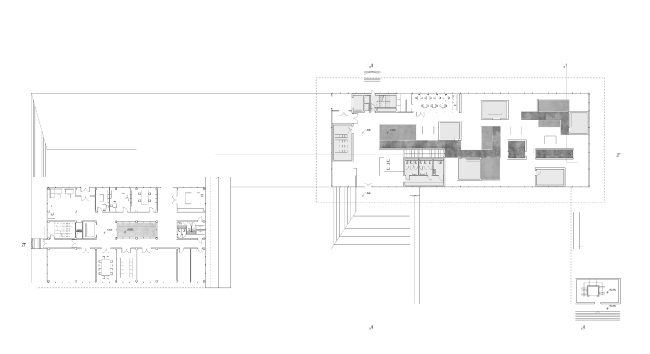
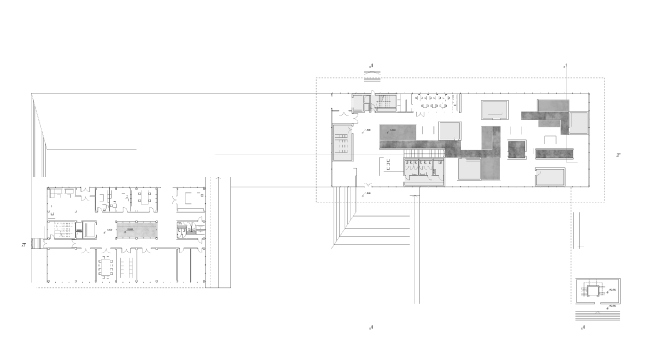
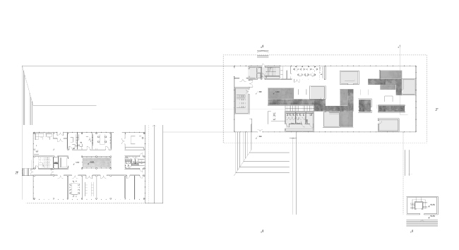
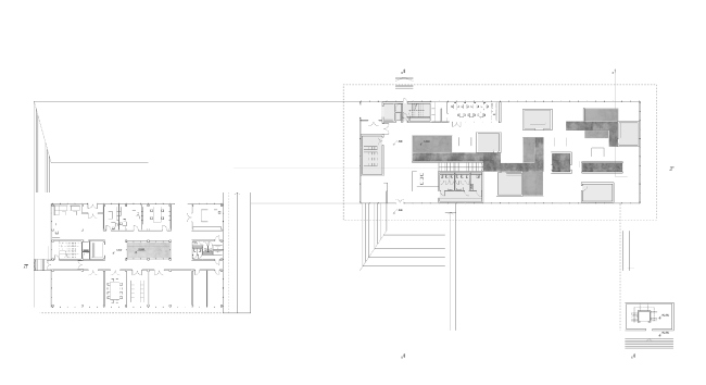
Центр для посетителей и исследователей находится за городскими стенами, в низине. Тем не менее, некоторые постройки этого комплекса – небольшой высоты, чтобы они оставались незаметными даже при взгляде с самой высокой точки города. Так в проекте достигается ощущение слияния архитектуры и ландшафта. Верхняя точка крыши исследовательского центра находится на высоте 2 м, а кровли центра для посетителей – музея – на отметке 3 м. Оба здания имеют одинаковый уровень первого этажа (–1,5 м от уровня земли) и соединены внутренним двором. У двора есть только техническая функция – разгрузка и выгрузка вещей или продуктов, замена экспонатов и т. д.
 
Предоставлено Заруи Мартиросян
Предоставлено Заруи Мартиросян



В 2-этажном исследовательском центре есть внутренний двор, с помощью которого солнечный свет попадает в нижний, подземный ярус здания.
 
Когда посетитель оставляет свою машину в гараже, оттуда он может подняться по пандусу, ведущему наверх – прямо напротив него расположен Центр для посетителей – музей.
 
На первом этаже музея находятся кафе, магазин, вестибюль с информационным пунктом, туалеты и медиа-выставка. На подземном ярусе находятся экспонаты в витринах.
 
Предоставлено Заруи Мартиросян
Предоставлено Заруи Мартиросян



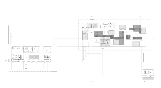
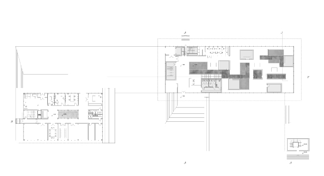
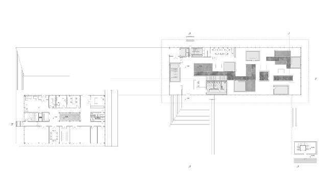
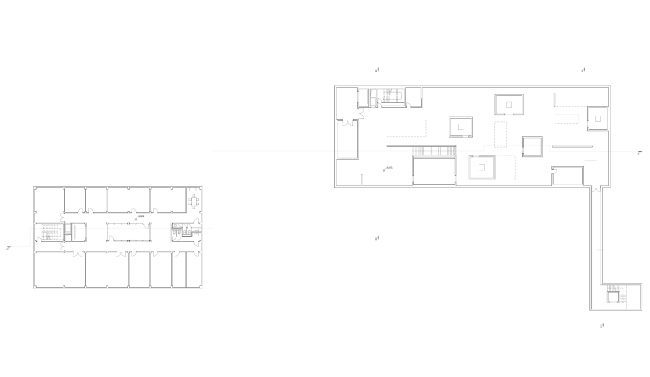
Способ расположения помещений в музее отражает историю города Ани. Маршрут осмотра на первом этаже – Путь, рассказывающий историю города Ани, своего рода «путешествие во времени». Этот Путь выполнен из стали кортен, на которой выгравированы важнейшие события и даты из истории. Вдоль Пути расположены различные помещения, где показывается фильм. Каждый зал символизирует определенный этап истории. Таким образом, человек движется от «Основания» к «Современности».
 
Предоставлено Заруи Мартиросян
Предоставлено Заруи Мартиросян

В залах, посвященных периодам «Упадок» и «Забвение», нет экспонатов, т.к. от этого времени практически ничего не сохранилось, поэтому экспонатом служит здесь само пространство.
 
Предоставлено Заруи Мартиросян
Предоставлено Заруи Мартиросян

В перекрытиях первого этажа устроены проемы, через которые солнечный свет попадает внутрь музея. В полу первого этажа тоже сделаны отверстия, через которые посетитель может видеть экспонаты, расположенные внизу: там выставлены археологические находки, сделанные в различное время в Ани. Подземный этаж соединен с башней с помощью перехода.
 
Предоставлено Заруи Мартиросян
Предоставлено Заруи Мартиросян

Центр для посетителей доступен и людям с ограниченными возможностями: с помощью пандуса, находящегося перед главным входом, передвигающийся на коляске посетитель может попасть в центр. В самом музее есть лифт, который позволит ему перемещаться по этажам здания.
 
Предоставлено Заруи Мартиросян
Предоставлено Заруи Мартиросян

Конструкция музея хорошо продемонстрирована с помощью макета. Крыша здания опирается на объемы выставочных залов. Конструкция крыши состоит из сборного железобетона и сети из стальных балок. Перекрытие между первым и подземным этажом сделано из монолитного железобетона.
 
Предоставлено Заруи Мартиросян
Предоставлено Заруи Мартиросян

Подводя итог, можно сказать, что в этом проекте для меня важным было как можно сильнее интегрировать здание комплекса в окружающий ландшафт, и я попыталась сделать здание практически «невидимым», чтобы не испортить вид на городские стены Ани. Также невозможно было оставить незамеченной богатую историю Ани, и поэтому я включила ее в концепт медиа-выставки.