Размещено на портале Архи.ру (www.archi.ru)

26.09.2014

Обновление комбината

Настасья Щербина
Объект:
Конкурсный проект реконструкции комбината «Простор» в Черемушках
Адрес:
Россия, Москва.
Конкурсный проект реконструкции комбината «Простор» в Черемушках
Адрес:
Россия, Москва.
Конкурсный проект реконструкции комбината «Простор» в Черемушках
Адрес:
Россия, Москва.
Конкурсный проект реконструкции комбината «Простор» в Черемушках
Адрес:
Россия, Москва.
Конкурсный проект реконструкции комбината «Простор» в Черемушках
Адрес:
Россия, Москва.
Конкурсный проект реконструкции комбината «Простор» в Черемушках
Адрес:
Россия, Москва.
Мастерская:
Arch group
DNK ag
Progress
АБ «Manipulazione Internazionale»
Архстройдизайн АСД
«Моспроект-2» им. М.В. Посохина

Шесть проектов конкурса на проект реконструкции кондитерско-булочного комбината «Простор» в Черемушках.

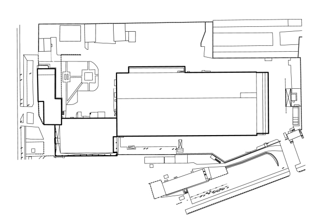
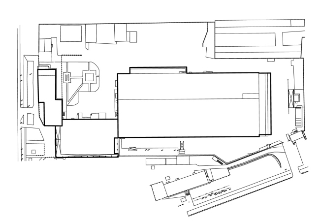
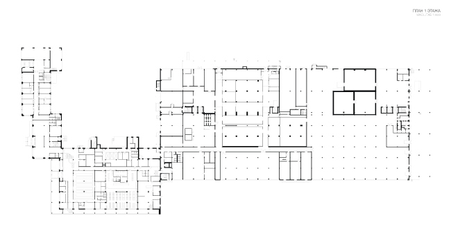
Комбинат расположен на пересечении улиц Академика Скрябина и Ферганской на юго-востоке Москвы. Комбинат был построен в 1987 году и представляет собой комплекс из трех зданий: производственного, бытового и административно-учебного. Сейчас это неприглядного вида постройку в духе восьмидесятых – типичное для производственных зданий горизонтальное членение фасада в сочетании с низким качеством стройматериалов создают привычный для периферийных районов колорит. Реконструкция должна сделать предприятие архитектурной доминантой района; но ее главная, вероятно, особенность, – в том, что предприятие не выводится, чтобы уступить место жилью и офисам, а остается на месте, только модернизируется. Это, надо думать, первая за несколько лет реконструкция без смены функции. 

Вчера, 25 сентября, жюри конкурса определило победителей: первое и второе места разделили между собой консорциумы «Моспроекта-2» и АБ «Прогресс» – и «Мастерская Алексея Иванова «Архстройдизайн АСД», работавшая вместе с MANIPULAZIONE INTERNAZIONALE. Второе место таким образом не назначили, третье заняла команда «Арх Груп», четвертое – Архитектурная группа ДНК, пятое – МАХПИ имени академика Полянского и шестое – дуэт А2ОМ + Спектрум. Проектировщик же определится после переговоров с заказчиком.

***

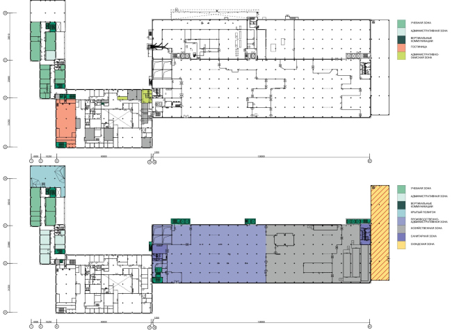
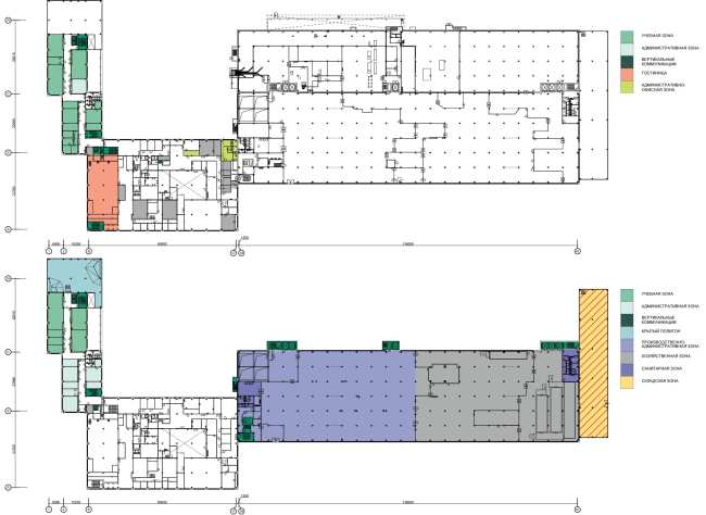
Первое место
«Моспроект-2» и архитектурное бюро «Прогресс»
Петр Анурин, Анна Копеина, Наталья Масталерж, Иван Сакара, Ната Татунашвили, Анастасия Тихомирова, Полина Филиппова
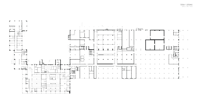
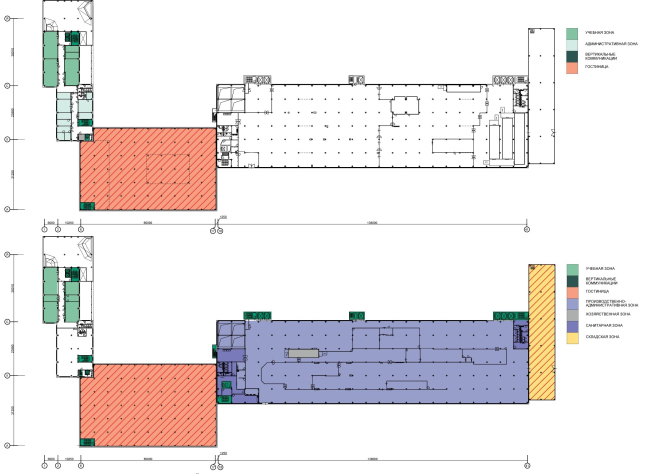
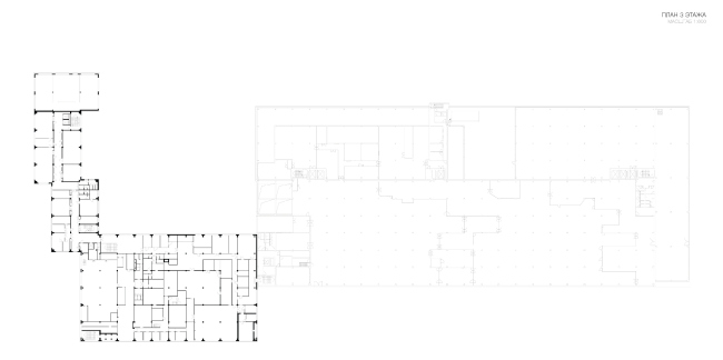
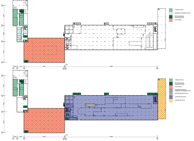
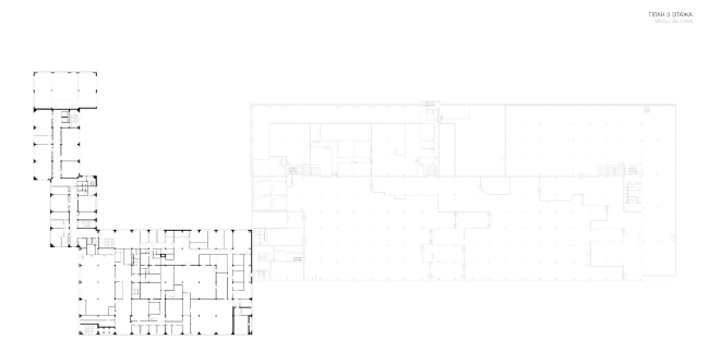
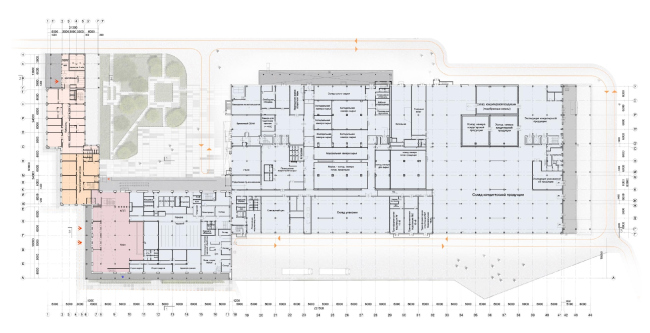
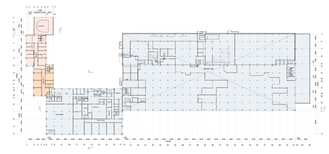
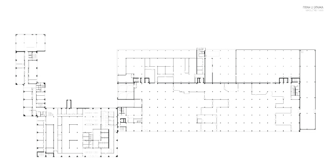
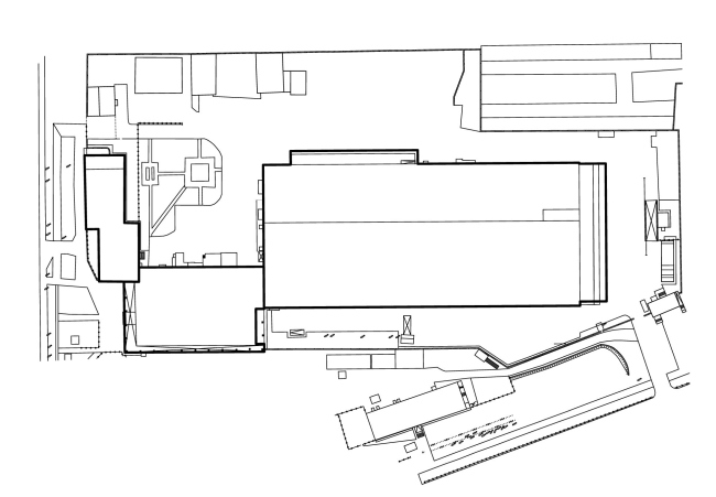
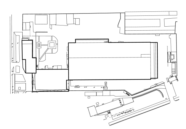
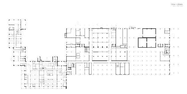
Конкурсный проект реконструкции кондитерско-булочного комбината «Простор». 1-е и 2-е место © «Моспроект-2» + «Прогресс»
Конкурсный проект реконструкции кондитерско-булочного комбината «Простор». 1-е и 2-е место © «Моспроект-2» + «Прогресс»

Авторы считают архитектуру восьмидесятых неплохой, уважительно оценивая сильную объемно-пространственную композицию, выверенные ритмы фасадов и узнаваемый архитектурный язык. Проблема же, по их убеждению, состоит в низком качестве строительных работ, материалов, – и в возникшей из-за этого «усталости» зданий, которые дожили до наших дней с сильно потрепанными, либо наспех отремонтированными фасадами, усеянными кондиционерами, антеннами сотовой связи и хаотичными вывесками.

Так что архитекторы предложили не менять здания или фасады, а с помощью современных материалов и технологий осуществить изначальные замыслы их создателей – проектировщиков ЦНИИЭП имени Б. С. Мезенцева.
Конкурсный проект реконструкции кондитерско-булочного комбината «Простор». 1-е и 2-е место © «Моспроект-2» + «Прогресс»
Конкурсный проект реконструкции кондитерско-булочного комбината «Простор». 1-е и 2-е место © «Моспроект-2» + «Прогресс»
Конкурсный проект реконструкции кондитерско-булочного комбината «Простор». 1-е и 2-е место © «Моспроект-2» + «Прогресс»
Конкурсный проект реконструкции кондитерско-булочного комбината «Простор». 1-е и 2-е место © «Моспроект-2» + «Прогресс»
Конкурсный проект реконструкции кондитерско-булочного комбината «Простор». 1-е и 2-е место © «Моспроект-2» + «Прогресс»
Конкурсный проект реконструкции кондитерско-булочного комбината «Простор». 1-е и 2-е место © «Моспроект-2» + «Прогресс»
Конкурсный проект реконструкции кондитерско-булочного комбината «Простор». 1-е и 2-е место © «Моспроект-2» + «Прогресс»
Конкурсный проект реконструкции кондитерско-булочного комбината «Простор». 1-е и 2-е место © «Моспроект-2» + «Прогресс»
Конкурсный проект реконструкции кондитерско-булочного комбината «Простор». 1-е и 2-е место © «Моспроект-2» + «Прогресс»
Конкурсный проект реконструкции кондитерско-булочного комбината «Простор». 1-е и 2-е место © «Моспроект-2» + «Прогресс»
Конкурсный проект реконструкции кондитерско-булочного комбината «Простор». 1-е и 2-е место © «Моспроект-2» + «Прогресс»
Конкурсный проект реконструкции кондитерско-булочного комбината «Простор». 1-е и 2-е место © «Моспроект-2» + «Прогресс»
Конкурсный проект реконструкции кондитерско-булочного комбината «Простор». 1-е и 2-е место © «Моспроект-2» + «Прогресс»
Конкурсный проект реконструкции кондитерско-булочного комбината «Простор». 1-е и 2-е место © «Моспроект-2» + «Прогресс»

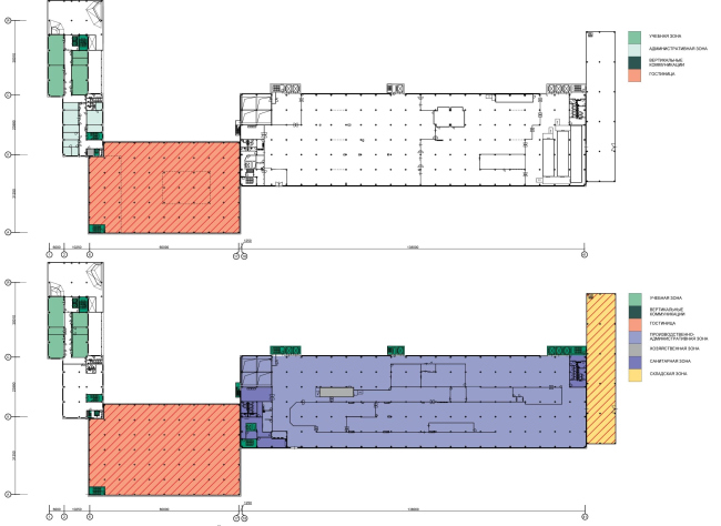
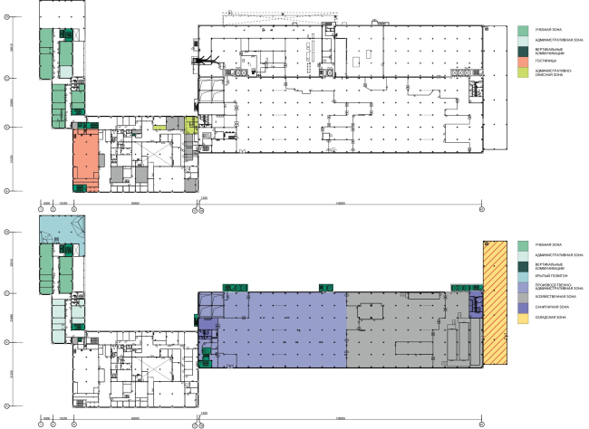
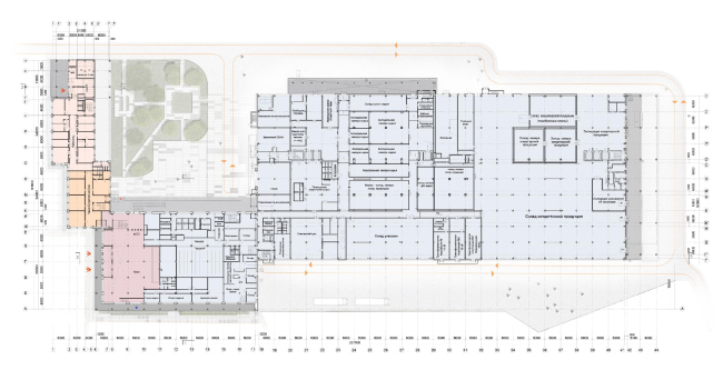
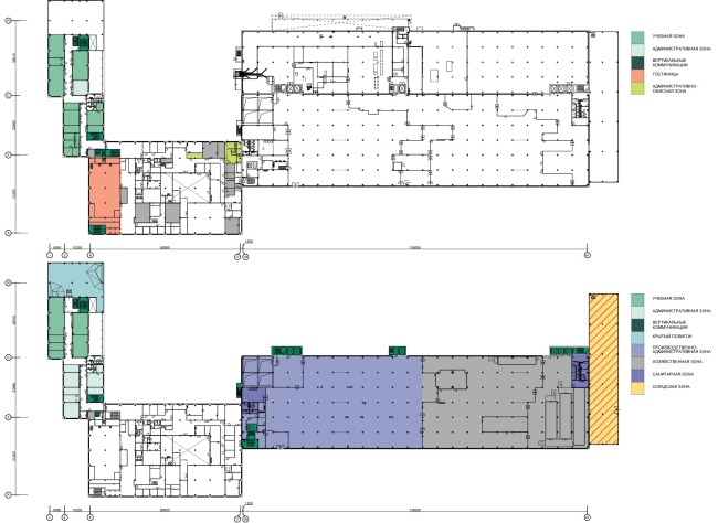
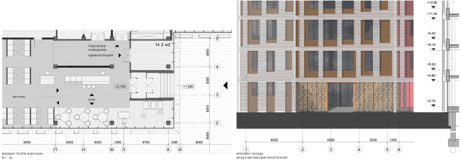
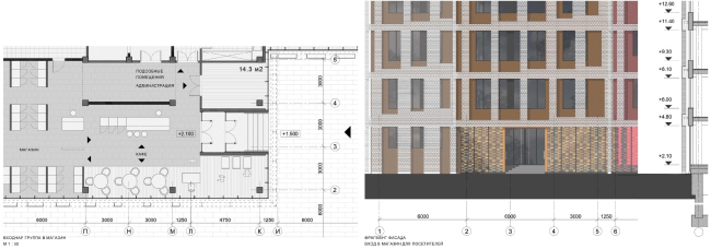
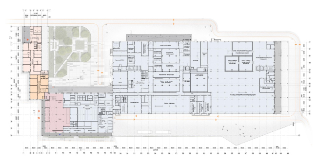
Между тем к старым зданиям пристраивают новые объемы, облицованные стеклом (сплошное структурное остекление, разделенное вертикальными алюминиевыми стойками с шагом полтора метра) и алюминием, аккуратно встраивая их в существующую модернистскую композицию, прежде всего за счет восьмидесятнических пропорций. Над бытовым корпусом надстраивают один этаж. Существующие фасады, состоящие из покрытых мелкой мозаикой позднесоветских панелей, заменяют новыми, похожими, но без видимых швов. 

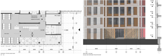
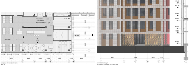
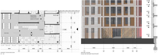
Особое внимание уделено благоустройству и реорганизации территории – приоритет, как сейчас принято, отдан общественным зонам. Акцентированный навесом вход с Ферганской улицы ведет в магазин и кафе на первом этаже бытового корпуса и к главным заводских проходным. Технология и логистика работы комбината не меняется, въезды-выезды сохраняются не прежних местах, существующие парковки тоже сохраняют и озеленяют. Продумана подсветка, намеренно равномерная и лишенная акцентов. 
Конкурсный проект реконструкции кондитерско-булочного комбината «Простор». 1-е и 2-е место © «Моспроект-2» + «Прогресс»
Конкурсный проект реконструкции кондитерско-булочного комбината «Простор». 1-е и 2-е место © «Моспроект-2» + «Прогресс»
Конкурсный проект реконструкции кондитерско-булочного комбината «Простор». 1-е и 2-е место © «Моспроект-2» + «Прогресс»
Конкурсный проект реконструкции кондитерско-булочного комбината «Простор». 1-е и 2-е место © «Моспроект-2» + «Прогресс»
Конкурсный проект реконструкции кондитерско-булочного комбината «Простор». 1-е и 2-е место © «Моспроект-2» + «Прогресс»
Конкурсный проект реконструкции кондитерско-булочного комбината «Простор». 1-е и 2-е место © «Моспроект-2» + «Прогресс»
Конкурсный проект реконструкции кондитерско-булочного комбината «Простор». 1-е и 2-е место © «Моспроект-2» + «Прогресс»
Конкурсный проект реконструкции кондитерско-булочного комбината «Простор». 1-е и 2-е место © «Моспроект-2» + «Прогресс»
Конкурсный проект реконструкции кондитерско-булочного комбината «Простор». 1-е и 2-е место © «Моспроект-2» + «Прогресс»
Конкурсный проект реконструкции кондитерско-булочного комбината «Простор». 1-е и 2-е место © «Моспроект-2» + «Прогресс»
Конкурсный проект реконструкции кондитерско-булочного комбината «Простор». 1-е и 2-е место © «Моспроект-2» + «Прогресс»
Конкурсный проект реконструкции кондитерско-булочного комбината «Простор». 1-е и 2-е место © «Моспроект-2» + «Прогресс»
Конкурсный проект реконструкции кондитерско-булочного комбината «Простор». 1-е и 2-е место © «Моспроект-2» + «Прогресс»
Конкурсный проект реконструкции кондитерско-булочного комбината «Простор». 1-е и 2-е место © «Моспроект-2» + «Прогресс»
Конкурсный проект реконструкции кондитерско-булочного комбината «Простор». 1-е и 2-е место © «Моспроект-2» + «Прогресс»
Конкурсный проект реконструкции кондитерско-булочного комбината «Простор». 1-е и 2-е место © «Моспроект-2» + «Прогресс»
Конкурсный проект реконструкции кондитерско-булочного комбината «Простор». 1-е и 2-е место © «Моспроект-2» + «Прогресс»
Конкурсный проект реконструкции кондитерско-булочного комбината «Простор». 1-е и 2-е место © «Моспроект-2» + «Прогресс»
Конкурсный проект реконструкции кондитерско-булочного комбината «Простор». 1-е и 2-е место © «Моспроект-2» + «Прогресс»
Конкурсный проект реконструкции кондитерско-булочного комбината «Простор». 1-е и 2-е место © «Моспроект-2» + «Прогресс»
Конкурсный проект реконструкции кондитерско-булочного комбината «Простор». 1-е и 2-е место © «Моспроект-2» + «Прогресс»
Конкурсный проект реконструкции кондитерско-булочного комбината «Простор». 1-е и 2-е место © «Моспроект-2» + «Прогресс»
Конкурсный проект реконструкции кондитерско-булочного комбината «Простор». 1-е и 2-е место © «Моспроект-2» + «Прогресс»
Конкурсный проект реконструкции кондитерско-булочного комбината «Простор». 1-е и 2-е место © «Моспроект-2» + «Прогресс»
Конкурсный проект реконструкции кондитерско-булочного комбината «Простор». 1-е и 2-е место © «Моспроект-2» + «Прогресс»
Конкурсный проект реконструкции кондитерско-булочного комбината «Простор». 1-е и 2-е место © «Моспроект-2» + «Прогресс»
Конкурсный проект реконструкции кондитерско-булочного комбината «Простор». 1-е и 2-е место © «Моспроект-2» + «Прогресс»
Конкурсный проект реконструкции кондитерско-булочного комбината «Простор». 1-е и 2-е место © «Моспроект-2» + «Прогресс»
Конкурсный проект реконструкции кондитерско-булочного комбината «Простор». 1-е и 2-е место © «Моспроект-2» + «Прогресс»
Конкурсный проект реконструкции кондитерско-булочного комбината «Простор». 1-е и 2-е место © «Моспроект-2» + «Прогресс»
Конкурсный проект реконструкции кондитерско-булочного комбината «Простор». 1-е и 2-е место © «Моспроект-2» + «Прогресс»
Конкурсный проект реконструкции кондитерско-булочного комбината «Простор». 1-е и 2-е место © «Моспроект-2» + «Прогресс»
Конкурсный проект реконструкции кондитерско-булочного комбината «Простор». 1-е и 2-е место © «Моспроект-2» + «Прогресс»
Конкурсный проект реконструкции кондитерско-булочного комбината «Простор». 1-е и 2-е место © «Моспроект-2» + «Прогресс»
Конкурсный проект реконструкции кондитерско-булочного комбината «Простор». 1-е и 2-е место © «Моспроект-2» + «Прогресс»
Конкурсный проект реконструкции кондитерско-булочного комбината «Простор». 1-е и 2-е место © «Моспроект-2» + «Прогресс»
Конкурсный проект реконструкции кондитерско-булочного комбината «Простор». 1-е и 2-е место © «Моспроект-2» + «Прогресс»
Конкурсный проект реконструкции кондитерско-булочного комбината «Простор». 1-е и 2-е место © «Моспроект-2» + «Прогресс»
***
 
Тоже первое место
Мастерская Алексея Иванова «Архстройдизайн АСД» + MANIPULAZIONE INTERNAZIONALE
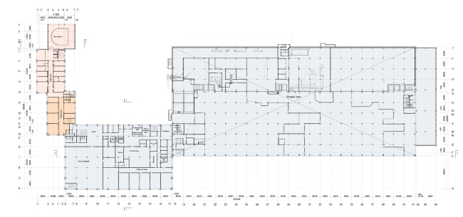
Конкурсный проект реконструкции кондитерско-булочного комбината «Простор». 1-е и 2-е место © «Архстройдизайн АСД» + MANIPULAZIONE INTERNAZIONALE
Конкурсный проект реконструкции кондитерско-булочного комбината «Простор». 1-е и 2-е место © «Архстройдизайн АСД» + MANIPULAZIONE INTERNAZIONALE

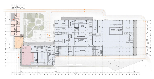
В отличие от предыдущего проекта, здесь авторы рассматривают здания комбината как не несущие «никакого осмысленного образа», кроме памяти о культуре и типологии строительства того времени, так что они предлагают значительно изменить внешний облик, и в частности, фасады построек. Основной элемент новых фасадов – фиброцементная панель (1,2 м х 1,2 м х 8 мм) с вырезанными на ней знаками, символизирующими рабочие процессы в разных корпусах комбината. Каждый корпус получает «свой» цвет, там, нет панелей, стены красят

Основной идеей благоустройства стало сближение территории комбината с окружающей застройкой, снятие лишних барьеров. Благоустраивается как внутренняя, так и прилегающая к заводу городская территория. 
Конкурсный проект реконструкции кондитерско-булочного комбината «Простор». 1-е и 2-е место © «Архстройдизайн АСД» + MANIPULAZIONE INTERNAZIONALE
Конкурсный проект реконструкции кондитерско-булочного комбината «Простор». 1-е и 2-е место © «Архстройдизайн АСД» + MANIPULAZIONE INTERNAZIONALE
Конкурсный проект реконструкции кондитерско-булочного комбината «Простор». 1-е и 2-е место © «Архстройдизайн АСД» + MANIPULAZIONE INTERNAZIONALE
Конкурсный проект реконструкции кондитерско-булочного комбината «Простор». 1-е и 2-е место © «Архстройдизайн АСД» + MANIPULAZIONE INTERNAZIONALE
Конкурсный проект реконструкции кондитерско-булочного комбината «Простор». 1-е и 2-е место © «Архстройдизайн АСД» + MANIPULAZIONE INTERNAZIONALE
Конкурсный проект реконструкции кондитерско-булочного комбината «Простор». 1-е и 2-е место © «Архстройдизайн АСД» + MANIPULAZIONE INTERNAZIONALE
Конкурсный проект реконструкции кондитерско-булочного комбината «Простор». 1-е и 2-е место © «Архстройдизайн АСД» + MANIPULAZIONE INTERNAZIONALE
Конкурсный проект реконструкции кондитерско-булочного комбината «Простор». 1-е и 2-е место © «Архстройдизайн АСД» + MANIPULAZIONE INTERNAZIONALE
Конкурсный проект реконструкции кондитерско-булочного комбината «Простор». 1-е и 2-е место © «Архстройдизайн АСД» + MANIPULAZIONE INTERNAZIONALE
Конкурсный проект реконструкции кондитерско-булочного комбината «Простор». 1-е и 2-е место © «Архстройдизайн АСД» + MANIPULAZIONE INTERNAZIONALE
Конкурсный проект реконструкции кондитерско-булочного комбината «Простор». 1-е и 2-е место © «Архстройдизайн АСД» + MANIPULAZIONE INTERNAZIONALE
Конкурсный проект реконструкции кондитерско-булочного комбината «Простор». 1-е и 2-е место © «Архстройдизайн АСД» + MANIPULAZIONE INTERNAZIONALE
Конкурсный проект реконструкции кондитерско-булочного комбината «Простор». 1-е и 2-е место © «Архстройдизайн АСД» + MANIPULAZIONE INTERNAZIONALE
Конкурсный проект реконструкции кондитерско-булочного комбината «Простор». 1-е и 2-е место © «Архстройдизайн АСД» + MANIPULAZIONE INTERNAZIONALE
Конкурсный проект реконструкции кондитерско-булочного комбината «Простор». 1-е и 2-е место © «Архстройдизайн АСД» + MANIPULAZIONE INTERNAZIONALE
Конкурсный проект реконструкции кондитерско-булочного комбината «Простор». 1-е и 2-е место © «Архстройдизайн АСД» + MANIPULAZIONE INTERNAZIONALE
Конкурсный проект реконструкции кондитерско-булочного комбината «Простор». 1-е и 2-е место © «Архстройдизайн АСД» + MANIPULAZIONE INTERNAZIONALE
Конкурсный проект реконструкции кондитерско-булочного комбината «Простор». 1-е и 2-е место © «Архстройдизайн АСД» + MANIPULAZIONE INTERNAZIONALE
Конкурсный проект реконструкции кондитерско-булочного комбината «Простор». 1-е и 2-е место © «Архстройдизайн АСД» + MANIPULAZIONE INTERNAZIONALE
Конкурсный проект реконструкции кондитерско-булочного комбината «Простор». 1-е и 2-е место © «Архстройдизайн АСД» + MANIPULAZIONE INTERNAZIONALE
Конкурсный проект реконструкции кондитерско-булочного комбината «Простор». 1-е и 2-е место © «Архстройдизайн АСД» + MANIPULAZIONE INTERNAZIONALE
Конкурсный проект реконструкции кондитерско-булочного комбината «Простор». 1-е и 2-е место © «Архстройдизайн АСД» + MANIPULAZIONE INTERNAZIONALE
Конкурсный проект реконструкции кондитерско-булочного комбината «Простор». 1-е и 2-е место © «Архстройдизайн АСД» + MANIPULAZIONE INTERNAZIONALE
Конкурсный проект реконструкции кондитерско-булочного комбината «Простор». 1-е и 2-е место © «Архстройдизайн АСД» + MANIPULAZIONE INTERNAZIONALE
Конкурсный проект реконструкции кондитерско-булочного комбината «Простор». 1-е и 2-е место © «Архстройдизайн АСД» + MANIPULAZIONE INTERNAZIONALE
Конкурсный проект реконструкции кондитерско-булочного комбината «Простор». 1-е и 2-е место © «Архстройдизайн АСД» + MANIPULAZIONE INTERNAZIONALE
Конкурсный проект реконструкции кондитерско-булочного комбината «Простор». 1-е и 2-е место © «Архстройдизайн АСД» + MANIPULAZIONE INTERNAZIONALE
Конкурсный проект реконструкции кондитерско-булочного комбината «Простор». 1-е и 2-е место © «Архстройдизайн АСД» + MANIPULAZIONE INTERNAZIONALE
Конкурсный проект реконструкции кондитерско-булочного комбината «Простор». 1-е и 2-е место © «Архстройдизайн АСД» + MANIPULAZIONE INTERNAZIONALE
Конкурсный проект реконструкции кондитерско-булочного комбината «Простор». 1-е и 2-е место © «Архстройдизайн АСД» + MANIPULAZIONE INTERNAZIONALE
Конкурсный проект реконструкции кондитерско-булочного комбината «Простор». 1-е и 2-е место © «Архстройдизайн АСД» + MANIPULAZIONE INTERNAZIONALE
Конкурсный проект реконструкции кондитерско-булочного комбината «Простор». 1-е и 2-е место © «Архстройдизайн АСД» + MANIPULAZIONE INTERNAZIONALE
Конкурсный проект реконструкции кондитерско-булочного комбината «Простор». 1-е и 2-е место © «Архстройдизайн АСД» + MANIPULAZIONE INTERNAZIONALE
Конкурсный проект реконструкции кондитерско-булочного комбината «Простор». 1-е и 2-е место © «Архстройдизайн АСД» + MANIPULAZIONE INTERNAZIONALE
Конкурсный проект реконструкции кондитерско-булочного комбината «Простор». 1-е и 2-е место © «Архстройдизайн АСД» + MANIPULAZIONE INTERNAZIONALE
Конкурсный проект реконструкции кондитерско-булочного комбината «Простор». 1-е и 2-е место © «Архстройдизайн АСД» + MANIPULAZIONE INTERNAZIONALE
***
 
Третье место
Арх Груп
Конкурсный проект реконструкции кондитерско-булочного комбината «Простор». 3-е место © Арх Груп
Конкурсный проект реконструкции кондитерско-булочного комбината «Простор». 3-е место © Арх Груп

Учебный корпус превращен в стеклянную башню. Остальные корпуса скрыты за новыми фасадами, фактура которых так или иначе указывает на кондитерско-булочную специализацию. Самый большой по площади – фасад из специальной ткани, на которую нанесена фактура теста с отпечатками пальцев и
ладоней, напоминающих о ручном труде пекарей. Через полупрозрачную фасадную ткань легко проходит дневной свет, при этом снаружи она совершенно не кажется прозрачной, создавая иллюзию сплошной поверхности. Другой тип фасада выполнен из двух слоев перфорированного материала, напоминающих структуру разрезанного хлеба.
Конкурсный проект реконструкции кондитерско-булочного комбината «Простор». 3-е место © Арх Груп
Конкурсный проект реконструкции кондитерско-булочного комбината «Простор». 3-е место © Арх Груп
Конкурсный проект реконструкции кондитерско-булочного комбината «Простор». 3-е место © Арх Груп
Конкурсный проект реконструкции кондитерско-булочного комбината «Простор». 3-е место © Арх Груп
Конкурсный проект реконструкции кондитерско-булочного комбината «Простор». 3-е место © Арх Груп
Конкурсный проект реконструкции кондитерско-булочного комбината «Простор». 3-е место © Арх Груп
Конкурсный проект реконструкции кондитерско-булочного комбината «Простор». 3-е место © Арх Груп
Конкурсный проект реконструкции кондитерско-булочного комбината «Простор». 3-е место © Арх Груп
Конкурсный проект реконструкции кондитерско-булочного комбината «Простор». 3-е место © Арх Груп
Конкурсный проект реконструкции кондитерско-булочного комбината «Простор». 3-е место © Арх Груп
Конкурсный проект реконструкции кондитерско-булочного комбината «Простор». 3-е место © Арх Груп
Конкурсный проект реконструкции кондитерско-булочного комбината «Простор». 3-е место © Арх Груп
Фасад 5-5, 6-6. Конкурсный проект реконструкции кондитерско-булочного комбината «Простор». 3-е место © Арх Груп
Фасад 5-5, 6-6. Конкурсный проект реконструкции кондитерско-булочного комбината «Простор». 3-е место © Арх Груп
Разрез 1-1, 2-2, 3-3, 4-4. Конкурсный проект реконструкции кондитерско-булочного комбината «Простор». 3-е место © Арх Груп
Разрез 1-1, 2-2, 3-3, 4-4. Конкурсный проект реконструкции кондитерско-булочного комбината «Простор». 3-е место © Арх Груп
Фасад 1-1, 2-2, 3-3, 4-4. Конкурсный проект реконструкции кондитерско-булочного комбината «Простор». 3-е место © Арх Груп
Фасад 1-1, 2-2, 3-3, 4-4. Конкурсный проект реконструкции кондитерско-булочного комбината «Простор». 3-е место © Арх Груп
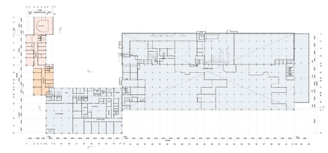
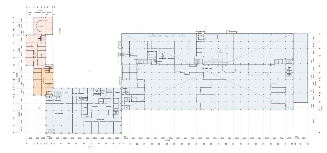
Мастер-план. Конкурсный проект реконструкции кондитерско-булочного комбината «Простор». 3-е место © Арх Груп
Мастер-план. Конкурсный проект реконструкции кондитерско-булочного комбината «Простор». 3-е место © Арх Груп
Бытовой и производственный корпус. Конкурсный проект реконструкции кондитерско-булочного комбината «Простор». 3-е место © Арх Груп
Бытовой и производственный корпус. Конкурсный проект реконструкции кондитерско-булочного комбината «Простор». 3-е место © Арх Груп
Бытовой и производственный корпус. Конкурсный проект реконструкции кондитерско-булочного комбината «Простор». 3-е место © Арх Груп
Бытовой и производственный корпус. Конкурсный проект реконструкции кондитерско-булочного комбината «Простор». 3-е место © Арх Груп
Бытовой и производственный корпус. Конкурсный проект реконструкции кондитерско-булочного комбината «Простор». 3-е место © Арх Груп
Бытовой и производственный корпус. Конкурсный проект реконструкции кондитерско-булочного комбината «Простор». 3-е место © Арх Груп
Бытовой и производственный корпус. Конкурсный проект реконструкции кондитерско-булочного комбината «Простор». 3-е место © Арх Груп
Бытовой и производственный корпус. Конкурсный проект реконструкции кондитерско-булочного комбината «Простор». 3-е место © Арх Груп
Бытовой и производственный корпус. Конкурсный проект реконструкции кондитерско-булочного комбината «Простор». 3-е место © Арх Груп
Бытовой и производственный корпус. Конкурсный проект реконструкции кондитерско-булочного комбината «Простор». 3-е место © Арх Груп
Бытовой и производственный корпус. Конкурсный проект реконструкции кондитерско-булочного комбината «Простор». 3-е место © Арх Груп
Бытовой и производственный корпус. Конкурсный проект реконструкции кондитерско-булочного комбината «Простор». 3-е место © Арх Груп
***
 
Четвертое место
Архитектурная группа ДНК
Конкурсный проект реконструкции кондитерско-булочного комбината «Простор». 4-е место © Архитектурная группа ДНК
Конкурсный проект реконструкции кондитерско-булочного комбината «Простор». 4-е место © Архитектурная группа ДНК

К бытовому корпусу добавлены два этажа, слегка вытянутый, подобно «горному пику» угол становится пространственным ориентиром, его хорошо видно со стороны перекрестка. Чтобы еще лучше связать комплекс комбината с городом авторы предлагают расширить внешний благоустроенный сквер до перекрестка, раскрывая фасады административного и бытового корпуса и обеспечивая прямой доступ к комплексу со стороны улицы Академика Скрябина. Первые этажи этих корпусов остеклены. Главный вход в бытовом корпусе смещается к центру внутреннего двухсветного вестибюля. Вход в магазин предлагается сделать в торце административного здания, чтобы выходил на ту же свободную от парковки площадку, с которой организован и главный вход.

На территории между улицей и производственным корпусом разбивается парк с дорожками и площадками. Территорию предприятия отделяет от парка прозрачный забор из вертикальных стальных профилей, чтобы открыть фасад производственного корпуса парку.
Конкурсный проект реконструкции кондитерско-булочного комбината «Простор». 4-е место © Архитектурная группа ДНК
Конкурсный проект реконструкции кондитерско-булочного комбината «Простор». 4-е место © Архитектурная группа ДНК
Конкурсный проект реконструкции кондитерско-булочного комбината «Простор». 4-е место © Архитектурная группа ДНК
Конкурсный проект реконструкции кондитерско-булочного комбината «Простор». 4-е место © Архитектурная группа ДНК
Конкурсный проект реконструкции кондитерско-булочного комбината «Простор». 4-е место © Архитектурная группа ДНК
Конкурсный проект реконструкции кондитерско-булочного комбината «Простор». 4-е место © Архитектурная группа ДНК
Конкурсный проект реконструкции кондитерско-булочного комбината «Простор». 4-е место © Архитектурная группа ДНК
Конкурсный проект реконструкции кондитерско-булочного комбината «Простор». 4-е место © Архитектурная группа ДНК
Конкурсный проект реконструкции кондитерско-булочного комбината «Простор». 4-е место © Архитектурная группа ДНК
Конкурсный проект реконструкции кондитерско-булочного комбината «Простор». 4-е место © Архитектурная группа ДНК
Конкурсный проект реконструкции кондитерско-булочного комбината «Простор». 4-е место © Архитектурная группа ДНК
Конкурсный проект реконструкции кондитерско-булочного комбината «Простор». 4-е место © Архитектурная группа ДНК
Конкурсный проект реконструкции кондитерско-булочного комбината «Простор». 4-е место © Архитектурная группа ДНК
Конкурсный проект реконструкции кондитерско-булочного комбината «Простор». 4-е место © Архитектурная группа ДНК
Конкурсный проект реконструкции кондитерско-булочного комбината «Простор». 4-е место © Архитектурная группа ДНК
Конкурсный проект реконструкции кондитерско-булочного комбината «Простор». 4-е место © Архитектурная группа ДНК
Конкурсный проект реконструкции кондитерско-булочного комбината «Простор». 4-е место © Архитектурная группа ДНК
Конкурсный проект реконструкции кондитерско-булочного комбината «Простор». 4-е место © Архитектурная группа ДНК
Конкурсный проект реконструкции кондитерско-булочного комбината «Простор». 4-е место © Архитектурная группа ДНК
Конкурсный проект реконструкции кондитерско-булочного комбината «Простор». 4-е место © Архитектурная группа ДНК
Конкурсный проект реконструкции кондитерско-булочного комбината «Простор». 4-е место © Архитектурная группа ДНК
Конкурсный проект реконструкции кондитерско-булочного комбината «Простор». 4-е место © Архитектурная группа ДНК
Конкурсный проект реконструкции кондитерско-булочного комбината «Простор». 4-е место © Архитектурная группа ДНК
Конкурсный проект реконструкции кондитерско-булочного комбината «Простор». 4-е место © Архитектурная группа ДНК
Конкурсный проект реконструкции кондитерско-булочного комбината «Простор». 4-е место © Архитектурная группа ДНК
Конкурсный проект реконструкции кондитерско-булочного комбината «Простор». 4-е место © Архитектурная группа ДНК
Конкурсный проект реконструкции кондитерско-булочного комбината «Простор». 4-е место © Архитектурная группа ДНК
Конкурсный проект реконструкции кондитерско-булочного комбината «Простор». 4-е место © Архитектурная группа ДНК
Конкурсный проект реконструкции кондитерско-булочного комбината «Простор». 4-е место © Архитектурная группа ДНК
Конкурсный проект реконструкции кондитерско-булочного комбината «Простор». 4-е место © Архитектурная группа ДНК
Конкурсный проект реконструкции кондитерско-булочного комбината «Простор». 4-е место © Архитектурная группа ДНК
Конкурсный проект реконструкции кондитерско-булочного комбината «Простор». 4-е место © Архитектурная группа ДНК
Конкурсный проект реконструкции кондитерско-булочного комбината «Простор». 4-е место © Архитектурная группа ДНК
Конкурсный проект реконструкции кондитерско-булочного комбината «Простор». 4-е место © Архитектурная группа ДНК
Конкурсный проект реконструкции кондитерско-булочного комбината «Простор». 4-е место © Архитектурная группа ДНК
Конкурсный проект реконструкции кондитерско-булочного комбината «Простор». 4-е место © Архитектурная группа ДНК
Конкурсный проект реконструкции кондитерско-булочного комбината «Простор». 4-е место © Архитектурная группа ДНК
Конкурсный проект реконструкции кондитерско-булочного комбината «Простор». 4-е место © Архитектурная группа ДНК
Конкурсный проект реконструкции кондитерско-булочного комбината «Простор». 4-е место © Архитектурная группа ДНК
Конкурсный проект реконструкции кондитерско-булочного комбината «Простор». 4-е место © Архитектурная группа ДНК
Конкурсный проект реконструкции кондитерско-булочного комбината «Простор». 4-е место © Архитектурная группа ДНК
Конкурсный проект реконструкции кондитерско-булочного комбината «Простор». 4-е место © Архитектурная группа ДНК
Конкурсный проект реконструкции кондитерско-булочного комбината «Простор». 4-е место © Архитектурная группа ДНК
Конкурсный проект реконструкции кондитерско-булочного комбината «Простор». 4-е место © Архитектурная группа ДНК
***
 
Пятое место
МАХПИ имени академика Полянского
Конкурсный проект реконструкции кондитерско-булочного комбината «Простор». 5-е место © МАХПИ
Конкурсный проект реконструкции кондитерско-булочного комбината «Простор». 5-е место © МАХПИ

Здесь площадь комбината значительно увеличивают за счет пристроек и надстроек. В структуру входной группы встраивается магазин с хлебо-булочной продукцией. Создаются новые входы и парковки для сотрудников и посетителей магазина, существующая парковка озеленяется, благоустройство включает вымостку, малые архитектурные формы и подсветку. Авторы также создают новую транзитную пешеходную тропу с улицы Академика Скрябина на Ферганскую. 

Для фасадов предложено два основных материала – перфорированные металлические листы и стеклопрофилит; фасады утепляют. 
Конкурсный проект реконструкции кондитерско-булочного комбината «Простор». 5-е место © МАХПИ
Конкурсный проект реконструкции кондитерско-булочного комбината «Простор». 5-е место © МАХПИ
Конкурсный проект реконструкции кондитерско-булочного комбината «Простор». 5-е место © МАХПИ
Конкурсный проект реконструкции кондитерско-булочного комбината «Простор». 5-е место © МАХПИ
Конкурсный проект реконструкции кондитерско-булочного комбината «Простор». 5-е место © МАХПИ
Конкурсный проект реконструкции кондитерско-булочного комбината «Простор». 5-е место © МАХПИ
Конкурсный проект реконструкции кондитерско-булочного комбината «Простор». 5-е место © МАХПИ
Конкурсный проект реконструкции кондитерско-булочного комбината «Простор». 5-е место © МАХПИ
Конкурсный проект реконструкции кондитерско-булочного комбината «Простор». 5-е место © МАХПИ
Конкурсный проект реконструкции кондитерско-булочного комбината «Простор». 5-е место © МАХПИ
Конкурсный проект реконструкции кондитерско-булочного комбината «Простор». 5-е место © МАХПИ
Конкурсный проект реконструкции кондитерско-булочного комбината «Простор». 5-е место © МАХПИ
Конкурсный проект реконструкции кондитерско-булочного комбината «Простор». 5-е место © МАХПИ
Конкурсный проект реконструкции кондитерско-булочного комбината «Простор». 5-е место © МАХПИ
Конкурсный проект реконструкции кондитерско-булочного комбината «Простор». 5-е место © МАХПИ
Конкурсный проект реконструкции кондитерско-булочного комбината «Простор». 5-е место © МАХПИ
Конкурсный проект реконструкции кондитерско-булочного комбината «Простор». 5-е место © МАХПИ
Конкурсный проект реконструкции кондитерско-булочного комбината «Простор». 5-е место © МАХПИ
Конкурсный проект реконструкции кондитерско-булочного комбината «Простор». 5-е место © МАХПИ
Конкурсный проект реконструкции кондитерско-булочного комбината «Простор». 5-е место © МАХПИ
Конкурсный проект реконструкции кондитерско-булочного комбината «Простор». 5-е место © МАХПИ
Конкурсный проект реконструкции кондитерско-булочного комбината «Простор». 5-е место © МАХПИ
Конкурсный проект реконструкции кондитерско-булочного комбината «Простор». 5-е место © МАХПИ
Конкурсный проект реконструкции кондитерско-булочного комбината «Простор». 5-е место © МАХПИ
Конкурсный проект реконструкции кондитерско-булочного комбината «Простор». 5-е место © МАХПИ
Конкурсный проект реконструкции кондитерско-булочного комбината «Простор». 5-е место © МАХПИ
Конкурсный проект реконструкции кондитерско-булочного комбината «Простор». 5-е место © МАХПИ
Конкурсный проект реконструкции кондитерско-булочного комбината «Простор». 5-е место © МАХПИ
Конкурсный проект реконструкции кондитерско-булочного комбината «Простор». 5-е место © МАХПИ
Конкурсный проект реконструкции кондитерско-булочного комбината «Простор». 5-е место © МАХПИ
Конкурсный проект реконструкции кондитерско-булочного комбината «Простор». 5-е место © МАХПИ
Конкурсный проект реконструкции кондитерско-булочного комбината «Простор». 5-е место © МАХПИ
Конкурсный проект реконструкции кондитерско-булочного комбината «Простор». 5-е место © МАХПИ
Конкурсный проект реконструкции кондитерско-булочного комбината «Простор». 5-е место © МАХПИ
Конкурсный проект реконструкции кондитерско-булочного комбината «Простор». 5-е место © МАХПИ
Конкурсный проект реконструкции кондитерско-булочного комбината «Простор». 5-е место © МАХПИ
Конкурсный проект реконструкции кондитерско-булочного комбината «Простор». 5-е место © МАХПИ
Конкурсный проект реконструкции кондитерско-булочного комбината «Простор». 5-е место © МАХПИ
Конкурсный проект реконструкции кондитерско-булочного комбината «Простор». 5-е место © МАХПИ
Конкурсный проект реконструкции кондитерско-булочного комбината «Простор». 5-е место © МАХПИ
Конкурсный проект реконструкции кондитерско-булочного комбината «Простор». 5-е место © МАХПИ
Конкурсный проект реконструкции кондитерско-булочного комбината «Простор». 5-е место © МАХПИ
Конкурсный проект реконструкции кондитерско-булочного комбината «Простор». 5-е место © МАХПИ
Конкурсный проект реконструкции кондитерско-булочного комбината «Простор». 5-е место © МАХПИ
Конкурсный проект реконструкции кондитерско-булочного комбината «Простор». 5-е место © МАХПИ
Конкурсный проект реконструкции кондитерско-булочного комбината «Простор». 5-е место © МАХПИ
Конкурсный проект реконструкции кондитерско-булочного комбината «Простор». 5-е место © МАХПИ
Конкурсный проект реконструкции кондитерско-булочного комбината «Простор». 5-е место © МАХПИ
Конкурсный проект реконструкции кондитерско-булочного комбината «Простор». 5-е место © МАХПИ
Конкурсный проект реконструкции кондитерско-булочного комбината «Простор». 5-е место © МАХПИ
Конкурсный проект реконструкции кондитерско-булочного комбината «Простор». 5-е место © МАХПИ
Конкурсный проект реконструкции кондитерско-булочного комбината «Простор». 5-е место © МАХПИ
***
 
6-е место
А2ОМ + Спектрум
Конкурсный проект реконструкции кондитерско-булочного комбината «Простор». 6-е место © А2ОМ + Спектрум
Конкурсный проект реконструкции кондитерско-булочного комбината «Простор». 6-е место © А2ОМ + Спектрум

Свой принцип реновации комбината авторы этого проекта называют «вторая кожа»: все фасады облицованы системой алюминиевых, светопрозрачных жалюзийных, полукруглых и прочих реек, которые, сгущая или разрежая свой ритм, подчеркивают те или иные свойства здания, образуют выступы и козырьки над входами, – словом, становятся осмысленной декоративной оболочкой корпусов, скрывая к тому же внешние инженерные системы. Материал везде одинаковый, алюминий, но по цвету корпуса отличаются. 

На месте парковки создается прогулочная зона с летней сценой и новым кафе в первом этаже бытового корпуса; зимой каток. Сквер вдоль Ферганской улицы также благоустраивается: скамейки, детская площадка, навес. Благоустройство территории завода авторы подчиняют говорящему образу пшеничного поля.
Конкурсный проект реконструкции кондитерско-булочного комбината «Простор». 6-е место © А2ОМ + Спектрум
Конкурсный проект реконструкции кондитерско-булочного комбината «Простор». 6-е место © А2ОМ + Спектрум
Конкурсный проект реконструкции кондитерско-булочного комбината «Простор». 6-е место © А2ОМ + Спектрум
Конкурсный проект реконструкции кондитерско-булочного комбината «Простор». 6-е место © А2ОМ + Спектрум
Конкурсный проект реконструкции кондитерско-булочного комбината «Простор». 6-е место © А2ОМ + Спектрум
Конкурсный проект реконструкции кондитерско-булочного комбината «Простор». 6-е место © А2ОМ + Спектрум
Конкурсный проект реконструкции кондитерско-булочного комбината «Простор». 6-е место © А2ОМ + Спектрум
Конкурсный проект реконструкции кондитерско-булочного комбината «Простор». 6-е место © А2ОМ + Спектрум
Конкурсный проект реконструкции кондитерско-булочного комбината «Простор». 6-е место © А2ОМ + Спектрум
Конкурсный проект реконструкции кондитерско-булочного комбината «Простор». 6-е место © А2ОМ + Спектрум
Конкурсный проект реконструкции кондитерско-булочного комбината «Простор». 6-е место © А2ОМ + Спектрум
Конкурсный проект реконструкции кондитерско-булочного комбината «Простор». 6-е место © А2ОМ + Спектрум
Конкурсный проект реконструкции кондитерско-булочного комбината «Простор». 6-е место © А2ОМ + Спектрум
Конкурсный проект реконструкции кондитерско-булочного комбината «Простор». 6-е место © А2ОМ + Спектрум
Конкурсный проект реконструкции кондитерско-булочного комбината «Простор». 6-е место © А2ОМ + Спектрум
Конкурсный проект реконструкции кондитерско-булочного комбината «Простор». 6-е место © А2ОМ + Спектрум
Конкурсный проект реконструкции кондитерско-булочного комбината «Простор». 6-е место © А2ОМ + Спектрум
Конкурсный проект реконструкции кондитерско-булочного комбината «Простор». 6-е место © А2ОМ + Спектрум
Конкурсный проект реконструкции кондитерско-булочного комбината «Простор». 6-е место © А2ОМ + Спектрум
Конкурсный проект реконструкции кондитерско-булочного комбината «Простор». 6-е место © А2ОМ + Спектрум
Конкурсный проект реконструкции кондитерско-булочного комбината «Простор». 6-е место © А2ОМ + Спектрум
Конкурсный проект реконструкции кондитерско-булочного комбината «Простор». 6-е место © А2ОМ + Спектрум
Конкурсный проект реконструкции кондитерско-булочного комбината «Простор». 6-е место © А2ОМ + Спектрум
Конкурсный проект реконструкции кондитерско-булочного комбината «Простор». 6-е место © А2ОМ + Спектрум
Конкурсный проект реконструкции кондитерско-булочного комбината «Простор». 6-е место © А2ОМ + Спектрум
Конкурсный проект реконструкции кондитерско-булочного комбината «Простор». 6-е место © А2ОМ + Спектрум
Конкурсный проект реконструкции кондитерско-булочного комбината «Простор». 6-е место © А2ОМ + Спектрум
Конкурсный проект реконструкции кондитерско-булочного комбината «Простор». 6-е место © А2ОМ + Спектрум
Конкурсный проект реконструкции кондитерско-булочного комбината «Простор». 6-е место © А2ОМ + Спектрум
Конкурсный проект реконструкции кондитерско-булочного комбината «Простор». 6-е место © А2ОМ + Спектрум
Конкурсный проект реконструкции кондитерско-булочного комбината «Простор». 6-е место © А2ОМ + Спектрум
Конкурсный проект реконструкции кондитерско-булочного комбината «Простор». 6-е место © А2ОМ + Спектрум
Конкурсный проект реконструкции кондитерско-булочного комбината «Простор». 6-е место © А2ОМ + Спектрум
Конкурсный проект реконструкции кондитерско-булочного комбината «Простор». 6-е место © А2ОМ + Спектрум
Конкурсный проект реконструкции кондитерско-булочного комбината «Простор». 6-е место © А2ОМ + Спектрум
Конкурсный проект реконструкции кондитерско-булочного комбината «Простор». 6-е место © А2ОМ + Спектрум
Конкурсный проект реконструкции кондитерско-булочного комбината «Простор». 6-е место © А2ОМ + Спектрум
Конкурсный проект реконструкции кондитерско-булочного комбината «Простор». 6-е место © А2ОМ + Спектрум
Конкурсный проект реконструкции кондитерско-булочного комбината «Простор». 6-е место © А2ОМ + Спектрум
Конкурсный проект реконструкции кондитерско-булочного комбината «Простор». 6-е место © А2ОМ + Спектрум
***

Жюри конкурса:
  • Сергей Кузнецов, главный архитектор города Москвы, первый заместитель председателя комитета по архитектуре и градостроительству города Москвы, куратор конкурса
  • Владимир Плоткин, партнер-основатель ТПО «РЕЗЕРВ», главный архитектор компании
  • Антон Наточий, главный архитектор бюро «Атриум»
  • Юлий Борисов, соучредитель и главный архитектор бюро UNKproject
  • Эркен Кагоров, арт-директор «Студия Артемия Лебедева»
  • Алексей Гинзбург, руководитель архитектурного бюро «Гинзбург Архитектс»
  • Станислав Кулиш, профессор кафедры «Архитектура Промышленных зданий» МАРХИ, руководитель архитектурной мастерской «Лаборатория виртуальной архитектуры»
  • Сергей Щедрин, председатель совета директоров ОАО «КБК «Черёмушки»
  • Левон Айрапетов, руководитель архитектурного бюро TOTEMENT / PAPER