Размещено на портале Архи.ру (www.archi.ru)

19.09.2014

Сестры-кармелитки выбирают неомодернизм

Ольга Назарова
Объект:
Монастырь кармелиток Мэритон-Грейндж
Адрес:
Великобритания, None, Ливерпуль.
Мастерская:
Austin-Smith:Lord

Монастырь Мэритон-Грейндж в Ливерпуле по проекту бюро Austin–Smith:Lord.

Монастырь Мэритон-Грейндж © SG Photography Ltd – Andrew Smith
Монастырь Мэритон-Грейндж © SG Photography Ltd – Andrew Smith

Монахини кармелитского ордена были вынуждены покинуть свою старую обитель в Западном Дерби из-за стремительной урбанизации этого пригорода Ливерпуля. Теперь они переселились в специально построенный для них монастырский комплекс Мэритон-Грейндж в Алертоне – другом ливерпульском пригороде. По заказу сестер его возвело бюро Austin–Smith:Lord, для которого это уже далеко не первый религиозный заказ: архитекторы имеют солидный опыт консервации, реставрации и приспособления под изменившиеся нужды церковных зданий.
 
Монастырь Мэритон-Грейндж
Монастырь Мэритон-Грейндж
© Nobles Construction Ltd

Уникальность Мэритон-Грейндж заключается в том, что это крупнейший в Европе новый монастырский комплекс. Однако он включает в себя все те помещения, которые можно найти в любом древнем монастыре: монашеский образ жизни остается неизменными уже много столетий. Для кармелитов первостепенное значение имеют уединение, молитва, созерцательность и ручной труд. Поэтому лишь два помещения открыты внешнему миру – церковь и гостевой дом, а все остальные – клуатр, трапезная, библиотека, мастерские, кельи, скиты и лазарет – предназначены исключительно для внутреннего использования. Поддерживать соответствующий образ жизни помогают изысканные клумбы, фруктовый сад, огород и озеро.
 
Монастырь Мэритон-Грейндж © SG Photography Ltd – Andrew Smith
Монастырь Мэритон-Грейндж © SG Photography Ltd – Andrew Smith

Неомодернистская архитектура также стремится точно соответствовать традиционным монашеским ценностям – выразить новым языком дух покоя и аскезы, использовать ясные геометрические объемы и простые пространственные ячейки. Кирпичные стены сохраняют свою фактуру обнаженной как на фасадах, так и в интерьерах. Четкий ритм кладки (усложняющийся только в верхней зоне церкви), которому вторят членения металлических решеток, подчеркивает аккуратную упорядоченность монастырской жизни. Кирпичные поверхности прорезаны прямоугольными оконными проемами и дополнены светлым деревом дверей, лестниц и предметов интерьера. В просторных помещениях, заполненных ровным рассеянным светом, царят чистота и умиротворение. Чрезвычайно сдержанную цветовую гамму в интерьере нарушают лишь цветные абстрактно-геометрические витражи, а снаружи – цветущие растения.
 
Монастырь Мэритон-Грейндж © SG Photography Ltd – Andrew Smith
Монастырь Мэритон-Грейндж © SG Photography Ltd – Andrew Smith

Стилистический выбор монахинь не будет казаться таким уж неожиданным, если вспомнить, что кармелиты издавна были в числе наиболее прогрессивных патронов и заказчиков. Весьма заметным оказался их вклад в становление искусства итальянского Возрождения: кармелиты в числе первых отказались от произведений в духе интернациональной готики, решительно предпочтя им экспериментальные работы Мазаччо и фра Филиппо Липпи. Последний принадлежал к их ордену и вынужден был покинуть его, похитив монахиню и женившись на ней. Однако кармелиты не только не обрушили на голову художника заслуженные кары, но с гордостью заявляли после его смерти, что он прославил орден вечной славой своего искусства.
Монастырь Мэритон-Грейндж © SG Photography Ltd – Andrew Smith
Монастырь Мэритон-Грейндж © SG Photography Ltd – Andrew Smith
Монастырь Мэритон-Грейндж © SG Photography Ltd – Andrew Smith
Монастырь Мэритон-Грейндж © SG Photography Ltd – Andrew Smith
Монастырь Мэритон-Грейндж © SG Photography Ltd – Andrew Smith
Монастырь Мэритон-Грейндж © SG Photography Ltd – Andrew Smith
Монастырь Мэритон-Грейндж © SG Photography Ltd – Andrew Smith
Монастырь Мэритон-Грейндж © SG Photography Ltd – Andrew Smith
Монастырь Мэритон-Грейндж © SG Photography Ltd – Andrew Smith
Монастырь Мэритон-Грейндж © SG Photography Ltd – Andrew Smith
Монастырь Мэритон-Грейндж © Nobles Construction Ltd
Монастырь Мэритон-Грейндж © Nobles Construction Ltd
Монастырь Мэритон-Грейндж © Nobles Construction Ltd
Монастырь Мэритон-Грейндж © Nobles Construction Ltd
Монастырь Мэритон-Грейндж © SG Photography Ltd – Andrew Smith
Монастырь Мэритон-Грейндж © SG Photography Ltd – Andrew Smith
Монастырь Мэритон-Грейндж © SG Photography Ltd – Andrew Smith
Монастырь Мэритон-Грейндж © SG Photography Ltd – Andrew Smith
Монастырь Мэритон-Грейндж © SG Photography Ltd – Andrew Smith
Монастырь Мэритон-Грейндж © SG Photography Ltd – Andrew Smith
Монастырь Мэритон-Грейндж © SG Photography Ltd – Andrew Smith
Монастырь Мэритон-Грейндж © SG Photography Ltd – Andrew Smith
Монастырь Мэритон-Грейндж © Nobles Construction Ltd
Монастырь Мэритон-Грейндж © Nobles Construction Ltd
Монастырь Мэритон-Грейндж © Nobles Construction Ltd
Монастырь Мэритон-Грейндж © Nobles Construction Ltd
Монастырь Мэритон-Грейндж © SG Photography Ltd – Andrew Smith
Монастырь Мэритон-Грейндж © SG Photography Ltd – Andrew Smith
Монастырь Мэритон-Грейндж © SG Photography Ltd – Andrew Smith
Монастырь Мэритон-Грейндж © SG Photography Ltd – Andrew Smith
Монастырь Мэритон-Грейндж © SG Photography Ltd – Andrew Smith
Монастырь Мэритон-Грейндж © SG Photography Ltd – Andrew Smith
Монастырь Мэритон-Грейндж © Nobles Construction Ltd
Монастырь Мэритон-Грейндж © Nobles Construction Ltd
Монастырь Мэритон-Грейндж © Nobles Construction Ltd
Монастырь Мэритон-Грейндж © Nobles Construction Ltd
Монастырь Мэритон-Грейндж © SG Photography Ltd – Andrew Smith
Монастырь Мэритон-Грейндж © SG Photography Ltd – Andrew Smith
Монастырь Мэритон-Грейндж © SG Photography Ltd – Andrew Smith
Монастырь Мэритон-Грейндж © SG Photography Ltd – Andrew Smith
Монастырь Мэритон-Грейндж © SG Photography Ltd – Andrew Smith
Монастырь Мэритон-Грейндж © SG Photography Ltd – Andrew Smith
Монастырь Мэритон-Грейндж © Nobles Construction Ltd
Монастырь Мэритон-Грейндж © Nobles Construction Ltd
Монастырь Мэритон-Грейндж © Nobles Construction Ltd
Монастырь Мэритон-Грейндж © Nobles Construction Ltd
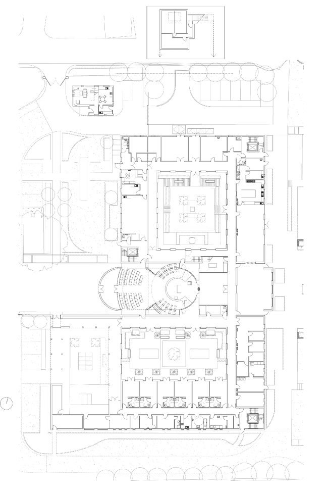
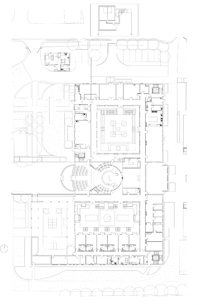
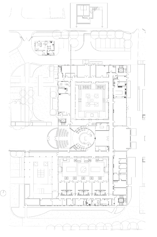
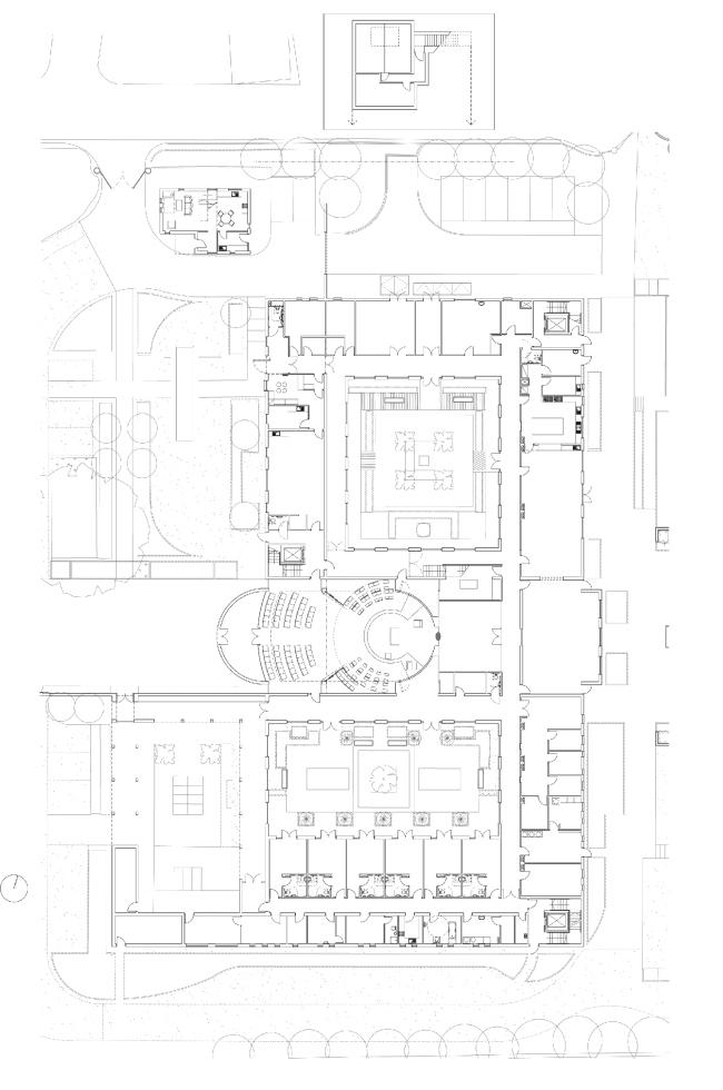
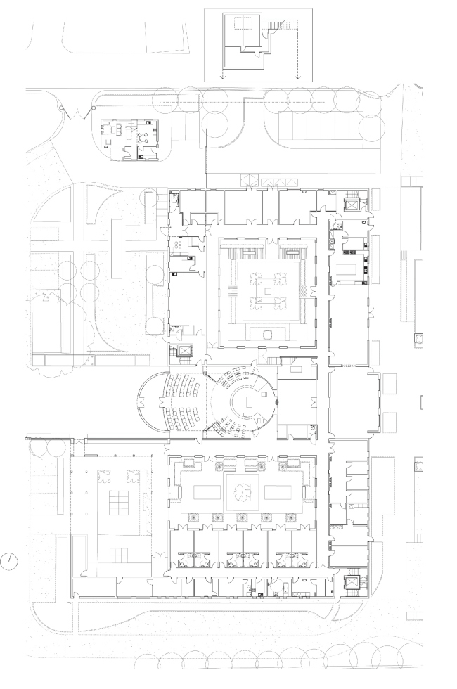
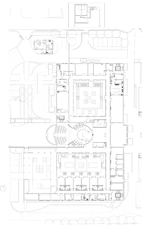
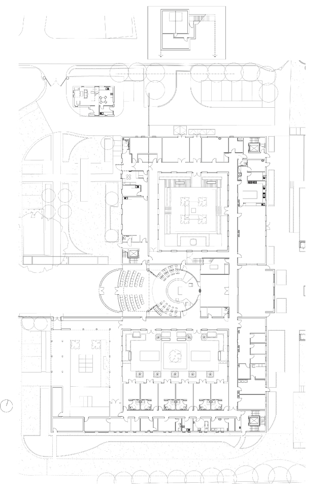
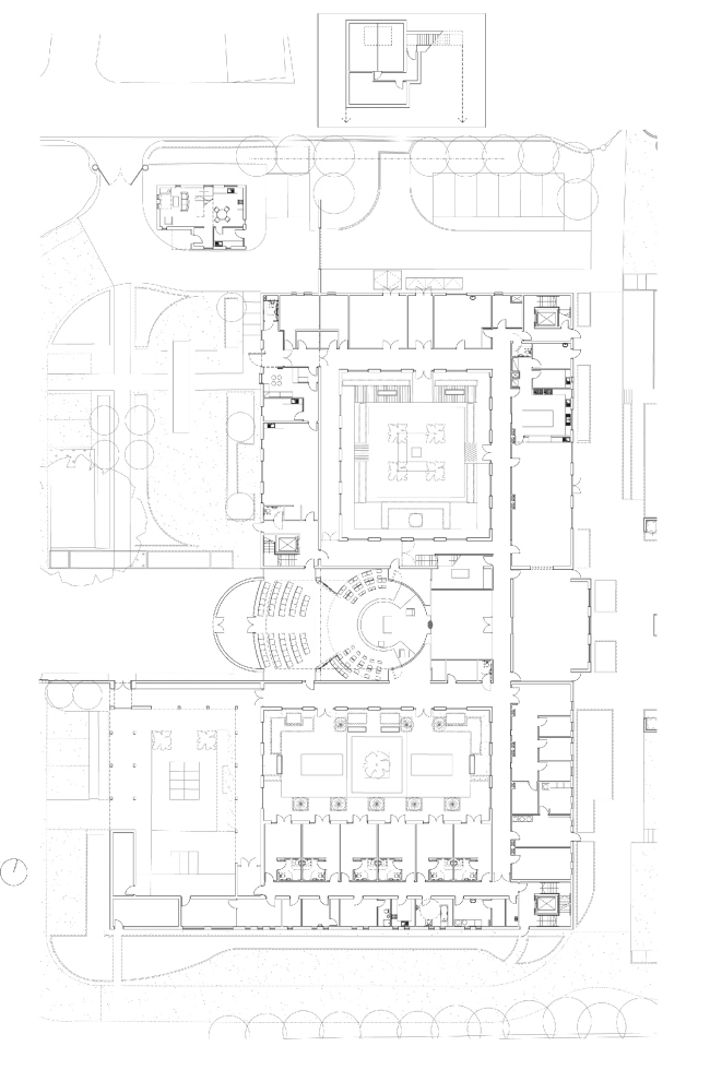
Монастырь Мэритон-Грейндж © Austin-Smith:Lord
Монастырь Мэритон-Грейндж © Austin-Smith:Lord
Монастырь Мэритон-Грейндж © Austin-Smith:Lord
Монастырь Мэритон-Грейндж © Austin-Smith:Lord