Размещено на портале Архи.ру (www.archi.ru)

16.09.2014

Вилла на склоне

Нина Фролова
Объект:
Дом в Люксембурге
Адрес:
Люксембург, None,

Бюро Ричарда Майера возвело частный дом в Люксембурге.

Дом в Люксембурге © Roland Halbe
Дом в Люксембурге © Roland Halbe

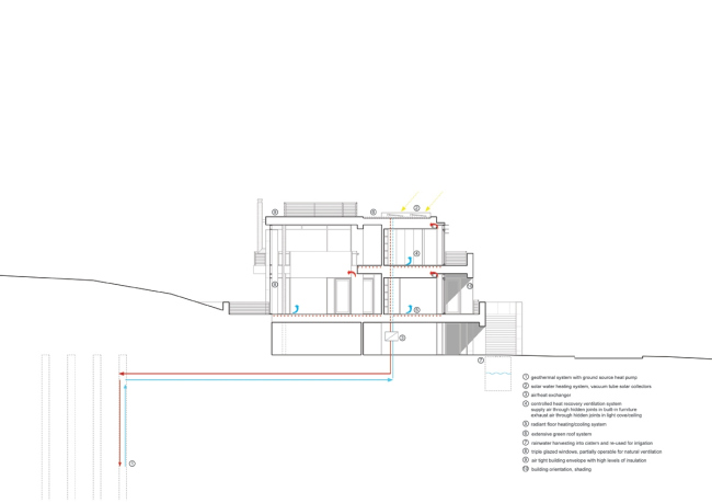
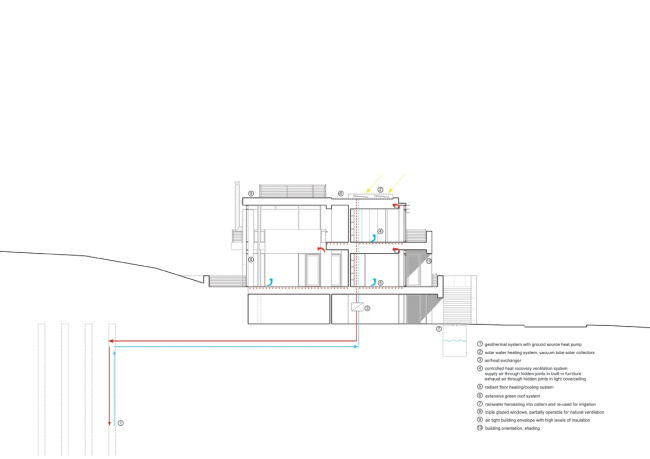
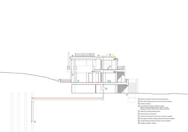
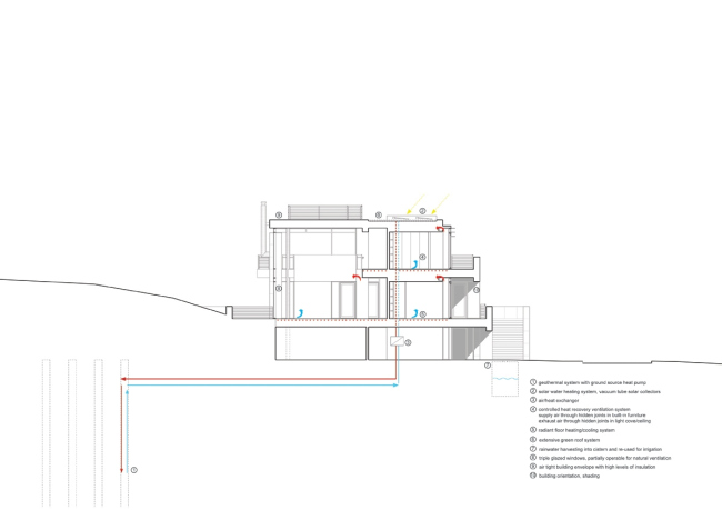
Постройка расположена почти в сельской местности, на зеленом склоне. Но все же рядом проходит улица и стоят другие дома, поэтому южный и восточный фасады виллы сделаны почти монолитными. В остальном здание остеклено, а его интерьер защищает от излишних солнечных лучей система стеклянных жалюзи.
 
Дом в Люксембурге © Roland Halbe
Дом в Люксембурге © Roland Halbe

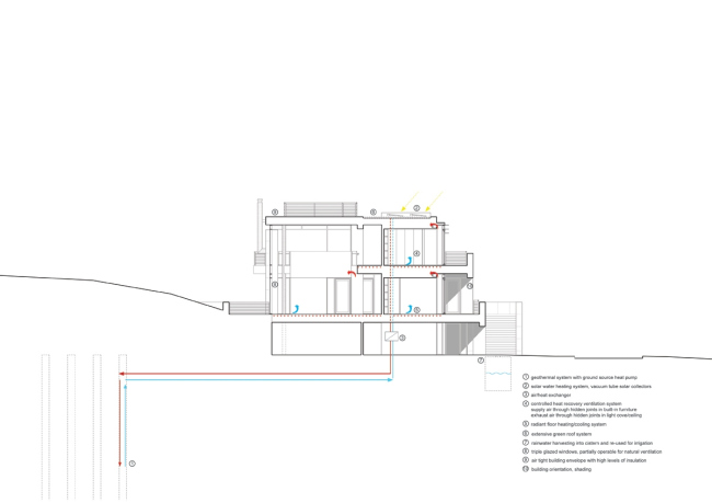
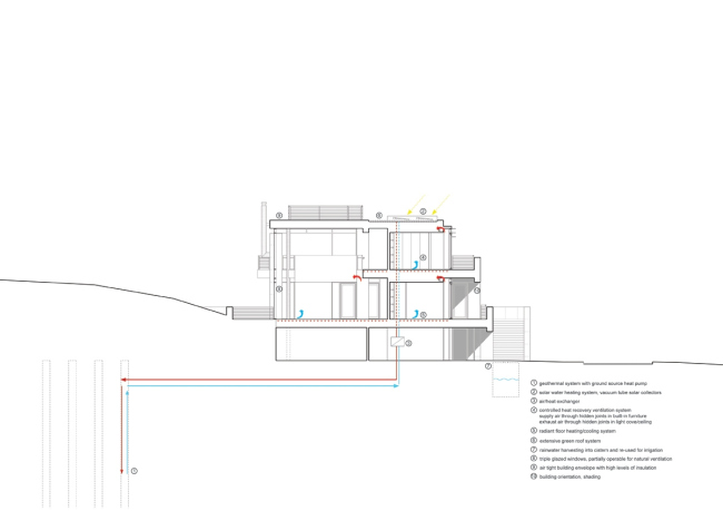
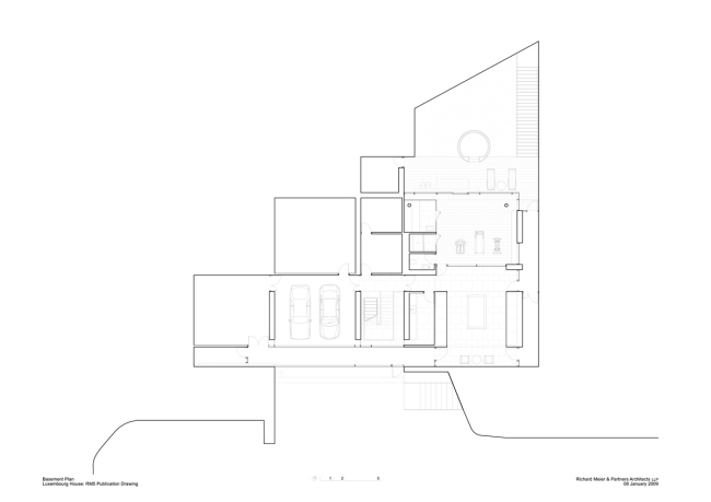
Благодаря перепаду уровней в доме, кроме двух основных ярусов, есть еще третий, нижний, с гаражом и подсобными помещениями: он выходит в специальный двор с сауной, зоной для фитнеса и ходом в расположенный выше сад.
 
Дом в Люксембурге © Roland Halbe
Дом в Люксембурге © Roland Halbe

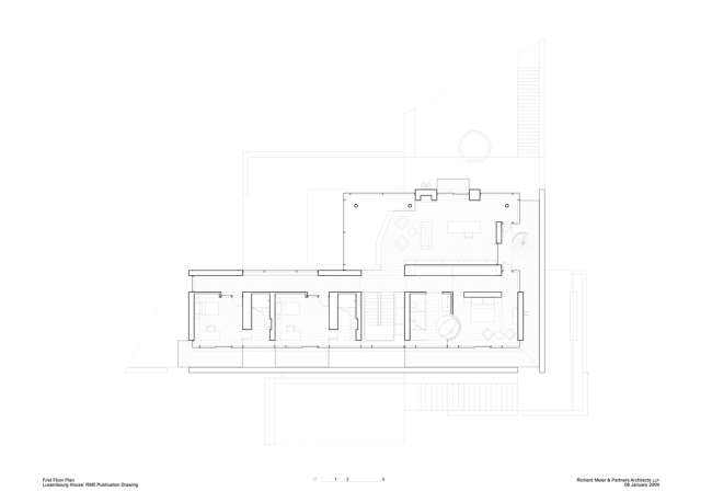
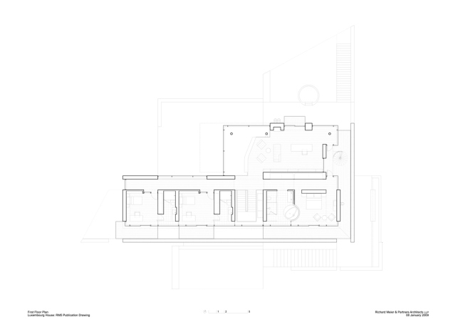
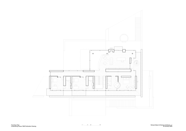
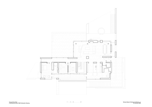
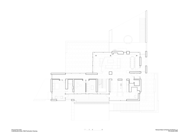
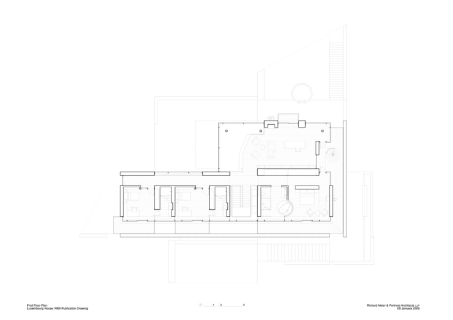
На первом этаже устроены гостиная и столовая, открытая кухня, гостевые апартаменты и игровые комнаты для детей. На втором – спальни, включая комнату хозяев, кабинет, библиотека, а также салон, обращенный к двухсветной гостиной внизу.
 
Дом в Люксембурге © Roland Halbe
Дом в Люксембурге © Roland Halbe
Дом в Люксембурге © Roland Halbe
Дом в Люксембурге © Roland Halbe
Дом в Люксембурге © Richard Meier & Partners
Дом в Люксембурге © Richard Meier & Partners
Дом в Люксембурге © Richard Meier & Partners
Дом в Люксембурге © Richard Meier & Partners
Дом в Люксембурге © Richard Meier & Partners
Дом в Люксембурге © Richard Meier & Partners
Дом в Люксембурге © Richard Meier & Partners
Дом в Люксембурге © Richard Meier & Partners
Дом в Люксембурге © Richard Meier & Partners
Дом в Люксембурге © Richard Meier & Partners
Дом в Люксембурге © Richard Meier & Partners
Дом в Люксембурге © Richard Meier & Partners
Дом в Люксембурге © Richard Meier & Partners
Дом в Люксембурге © Richard Meier & Partners
Дом в Люксембурге © Richard Meier & Partners
Дом в Люксембурге © Richard Meier & Partners
Дом в Люксембурге © Richard Meier & Partners
Дом в Люксембурге © Richard Meier & Partners
Дом в Люксембурге © Richard Meier & Partners
Дом в Люксембурге © Richard Meier & Partners
Дом в Люксембурге © Richard Meier & Partners
Дом в Люксембурге © Richard Meier & Partners