Размещено на портале Архи.ру (www.archi.ru)

29.08.2014

Алюминиевое оригами

Нина Фролова
Объект:
Консерватория им. Дариюса Мийо
Адрес:
Франция, None, Экс-ан-Прованс.

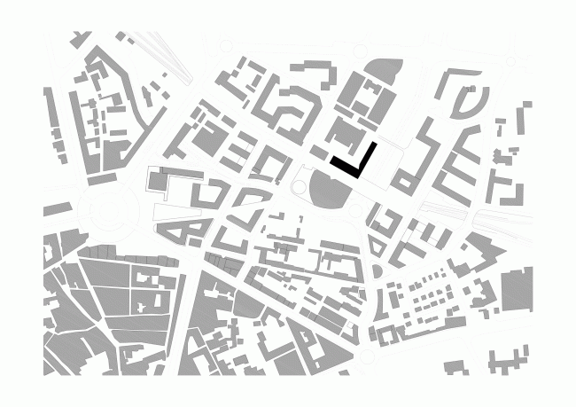
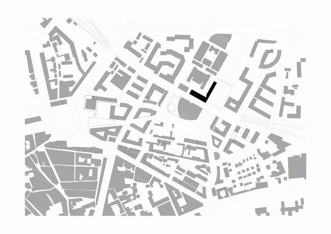
В Экс-ан-Провансе на юге Франции Кенго Кума построил новое здание консерватории.

Консерватория им. Дариюса Мийо © Roland Halbe
Консерватория им. Дариюса Мийо © Roland Halbe

Фасады консерватории имени родившегося в Экс-ан-Провансе композитора Дариюса Мийо закрыты алюминиевыми панелями: использование одного материала – ответ архитекторов на разнообразие окружающей застройки и значительный перепад рельефа. Но монотонность все же не была целью авторов, поэтому фасады покрыты складками, одновременно затеняющими оконные проемы и напоминающими о работах еще одного уроженца здешних мест – Поля Сезанна. Другим, более очевидным источником вдохновения послужило искусство оригами.
 
Консерватория им. Дариюса Мийо © Roland Halbe
Консерватория им. Дариюса Мийо © Roland Halbe

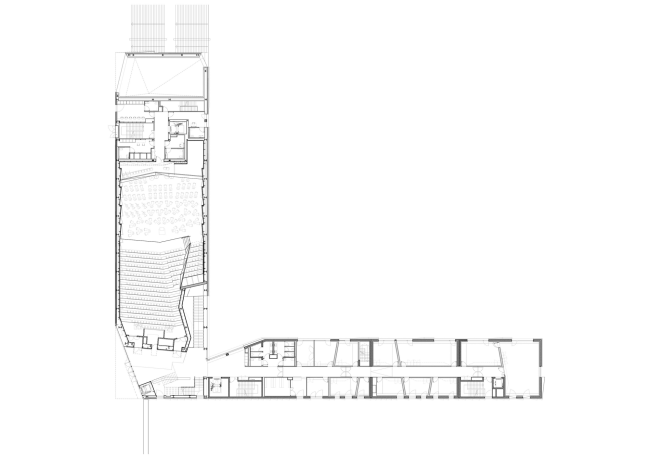
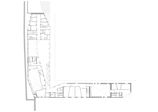
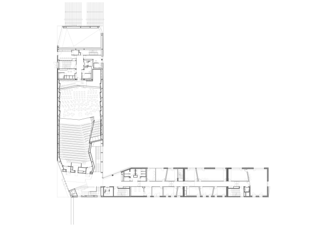
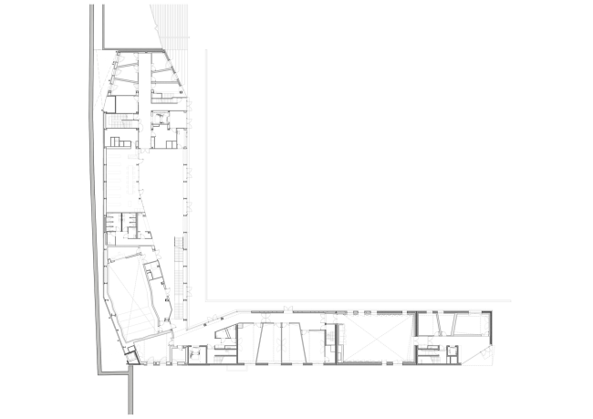
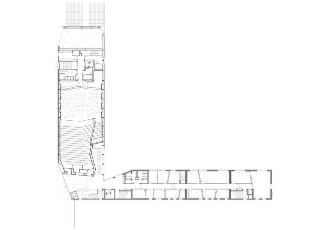
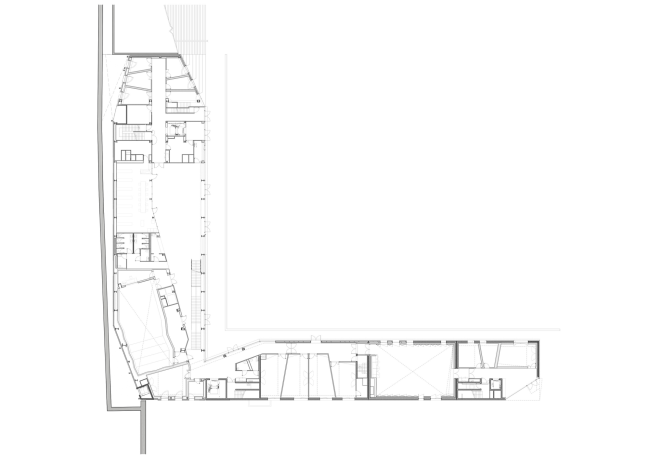
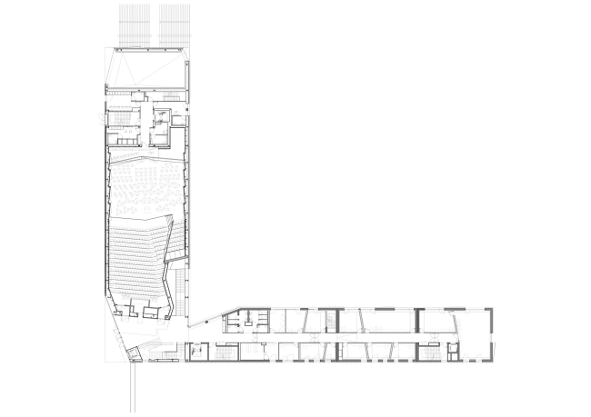
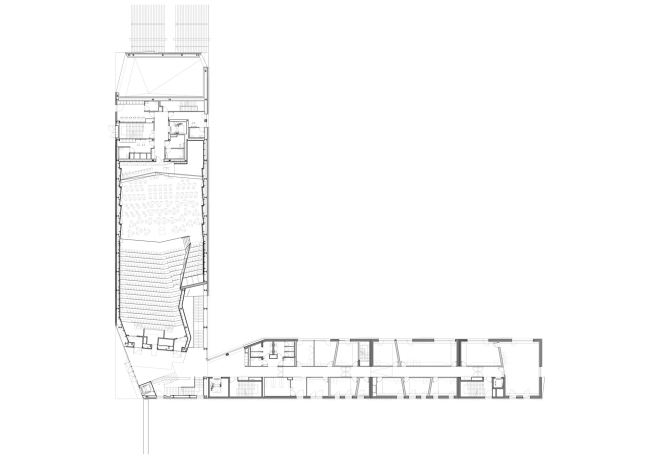
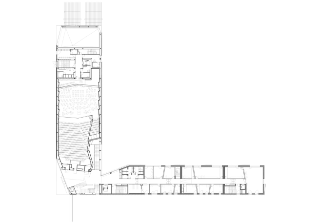
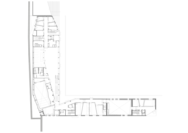
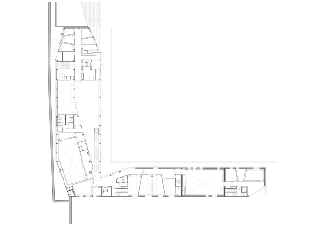
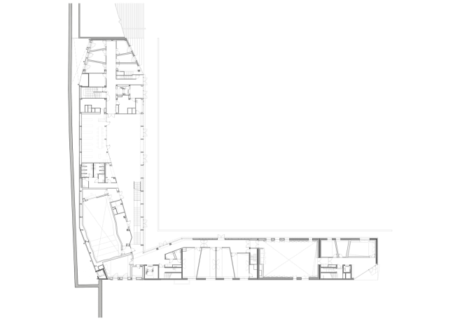
Углы Г-образного в плане здания срезаны, а срезы – остеклены; самый крупный из них, в центре постройки, использован для устройства главного входа.
 
Консерватория им. Дариюса Мийо © Roland Halbe
Консерватория им. Дариюса Мийо © Roland Halbe

В консерватории обучают не только традиционным «музыкальным» специальностям, но также и балету и драматическому искусству. В распоряжении учащихся и профессоров – 62 класса, 15 индивидуальных и 5 групповых репетиционных студий, 2 драматические и 4 балетные студии, а также зал на 500 мест. Во многих интерьерах использовано дерево, причем оно также образует складки, хотя и более тонкие, чем на фасаде: они улучшают акустические качества помещений.
 
Консерватория им. Дариюса Мийо © Roland Halbe
Консерватория им. Дариюса Мийо © Roland Halbe

Асимметричный интерьер концертного зала, где дерево применено наиболее активно, должен «вступать в резонанс» с яркой, свободной музыкой Мийо.
Консерватория им. Дариюса Мийо © Roland Halbe
Консерватория им. Дариюса Мийо © Roland Halbe
Консерватория им. Дариюса Мийо © Roland Halbe
Консерватория им. Дариюса Мийо © Roland Halbe
Консерватория им. Дариюса Мийо © Roland Halbe
Консерватория им. Дариюса Мийо © Roland Halbe
Консерватория им. Дариюса Мийо © Roland Halbe
Консерватория им. Дариюса Мийо © Roland Halbe
Консерватория им. Дариюса Мийо © Roland Halbe
Консерватория им. Дариюса Мийо © Roland Halbe
Консерватория им. Дариюса Мийо © Roland Halbe
Консерватория им. Дариюса Мийо © Roland Halbe
Консерватория им. Дариюса Мийо © Roland Halbe
Консерватория им. Дариюса Мийо © Roland Halbe
Консерватория им. Дариюса Мийо © Roland Halbe
Консерватория им. Дариюса Мийо © Roland Halbe
Консерватория им. Дариюса Мийо © Roland Halbe
Консерватория им. Дариюса Мийо © Roland Halbe
Консерватория им. Дариюса Мийо © Roland Halbe
Консерватория им. Дариюса Мийо © Roland Halbe
Консерватория им. Дариюса Мийо © Roland Halbe
Консерватория им. Дариюса Мийо © Roland Halbe
Консерватория им. Дариюса Мийо © Roland Halbe
Консерватория им. Дариюса Мийо © Roland Halbe
Консерватория им. Дариюса Мийо © Roland Halbe
Консерватория им. Дариюса Мийо © Roland Halbe
Консерватория им. Дариюса Мийо © Roland Halbe
Консерватория им. Дариюса Мийо © Roland Halbe
Консерватория им. Дариюса Мийо © Roland Halbe
Консерватория им. Дариюса Мийо © Roland Halbe
Консерватория им. Дариюса Мийо © Roland Halbe
Консерватория им. Дариюса Мийо © Roland Halbe
Консерватория им. Дариюса Мийо © Roland Halbe
Консерватория им. Дариюса Мийо © Roland Halbe
Консерватория им. Дариюса Мийо © Roland Halbe
Консерватория им. Дариюса Мийо © Roland Halbe
Консерватория им. Дариюса Мийо © Roland Halbe
Консерватория им. Дариюса Мийо © Roland Halbe
Консерватория им. Дариюса Мийо © Kengo Kuma & Associates
Консерватория им. Дариюса Мийо © Kengo Kuma & Associates
Консерватория им. Дариюса Мийо © Kengo Kuma & Associates
Консерватория им. Дариюса Мийо © Kengo Kuma & Associates
Консерватория им. Дариюса Мийо © Kengo Kuma & Associates
Консерватория им. Дариюса Мийо © Kengo Kuma & Associates
Консерватория им. Дариюса Мийо © Kengo Kuma & Associates
Консерватория им. Дариюса Мийо © Kengo Kuma & Associates
Консерватория им. Дариюса Мийо © Kengo Kuma & Associates
Консерватория им. Дариюса Мийо © Kengo Kuma & Associates
Консерватория им. Дариюса Мийо © Kengo Kuma & Associates
Консерватория им. Дариюса Мийо © Kengo Kuma & Associates
Консерватория им. Дариюса Мийо © Kengo Kuma & Associates
Консерватория им. Дариюса Мийо © Kengo Kuma & Associates
Консерватория им. Дариюса Мийо © Kengo Kuma & Associates
Консерватория им. Дариюса Мийо © Kengo Kuma & Associates