Размещено на портале Архи.ру (www.archi.ru)

28.08.2014

В финальной редакции

Анна Мартовицкая
Объект:
Бизнес-центр «Wall street» на Валовой улице
Адрес:
Россия, Москва. Валовая ул., 35
Архитектор:
Владимир Плоткин
Мастерская:
ТПО «Резерв»
Авторский коллектив:
Архитекторы: В. Плоткин, И. Деева, А. Романова, А. Логвинова, Д. Хомякова, М. Шершова, И. Анохин

Многофункциональный комплекс на Валовой улице, достроенный ТПО «Резерв» в конце прошлого года – это редкий для Москвы пример проекта-долгожителя, который все-таки счастливо дождался своей реализации.

Бизнес-центр «Wall street» на Валовой улице. Постройка, 2013. Фотография © Алексей Народицкий
Бизнес-центр «Wall street» на Валовой улице. Постройка, 2013. Фотография © Алексей Народицкий

Этот комплекс построен на пересечении улиц Валовая и Большая Серпуховская, на месте хлебозавода №1. Решение о сносе последнего было принято городом еще в 1998 году, причем с самого начала предполагалось, что хлебопекарня на этом месте останется, просто, оснащенная более современным и компактным оборудованием, она займет куда меньшую площадь, уступив часть очень выгодно расположенного участка бизнес-центру. Это должно было стать примером принципиально нового для Москвы сценария перебазирования производства, когда оно не выводится за пределы центра, а переформатируется. Однако поиски оптимального архитектурного решения затянулись так надолго, что говорить о каком-либо ноухау уже не приходится. Заказчик обратился к ТПО «Резерв» в 2008 году с просьбой подкорректировать фасады концепции, разработанной другим бюро, но команда Владимира Плоткина предложила собственный вариант размещения бизнес-центра.
Бизнес-центр «Wall street» на Валовой улице. Ситуационный план © ТПО «Резерв»
Бизнес-центр «Wall street» на Валовой улице. Ситуационный план © ТПО «Резерв»
Бизнес-центр «Wall street» на Валовой улице. Вариант 2008 года © ТПО «Резерв»
Бизнес-центр «Wall street» на Валовой улице. Вариант 2008 года © ТПО «Резерв»

С учетом ключевого расположения участка (прямо на Садовом кольце, причем именно в этом месте оно делает характерный плавный изгиб) архитекторы переосмыслили форму и пластику самого объекта, уподобив здание, стоящее на повороте, шарниру. Тогда, в 2008-м, цилиндр главного корпуса, собранный из треугольных эркеров и словно «обвязанный» широкими поясами из натурального камня и стекла, выглядел более чем инновационно (похожий мотив мы находим в проекте жилого комплекса «Заречье», над которым Владимир Плоткин работал в те же годы). Без сомнения, ребристый «шарнир» внес бы в облик Садового нетривиальную свежесть и знаковость, которых как раз в этой части кольца остро не хватает, но архитектурное сообщество в столь смелую форму не поверило, а его авторы получили рекомендации сделать что-то более традиционное. Как признается Владимир Плоткин, на этом этапе он был готов отказаться от Валовой вовсе – но грянул кризис, объемы работы резко сократились, и, что называется, любой заказ был кстати. 
Бизнес-центр «Wall street» на Валовой улице. Вариант 2009 года © ТПО «Резерв»
Бизнес-центр «Wall street» на Валовой улице. Вариант 2009 года © ТПО «Резерв»

Летом 2009-го «Резерв» вновь представил переработанный проект на архитектурном совете. На этот раз комплекс в плане уже имел трапециевидную форму, фактически повторявшую форму участка и позволявшую максимально обозначить свое присутствие на перекрестке.  Но тема «шарнирности» еще угадывалась в проекте: здание словно обнимало участок. Правда, и от этого прямого намека на пластичность авторам было рекомендовано отказаться, равно как и от темы ломаных граней-ламелей, украшавших фасады. Что касается последних, то члены совета очень настаивали на соблюдении «традиций архитектуры Садового кольца», однако именно в районе Валовой царит такое многоголосие стилей, что возможный ориентир было выбрать весьма затруднительно. «Одно время нам советовали ориентироваться на соседний дом, построенный в позднесталинское время, однако это ничем не выдающийся проект, клонировать который нам казалось, по меньшей мере, странным», – поясняет Владимир Плоткин.  
Бизнес-центр «Wall street» на Валовой улице. Постройка, 2013. Фотография © Алексей Народицкий
Бизнес-центр «Wall street» на Валовой улице. Постройка, 2013. Фотография © Алексей Народицкий

И все же некоторая общемосковская тематика в архитектуре комплекса появилась: авторы ввели четкие вертикальные и горизонтальные членения, отдали предпочтение бежево-охристой палитре, предложили использовать панели натурального камня с резным орнаментом. Характерным для Москвы образом визуально были отделены два верхних этажа здания: площадь остекления там существенно больше, а орнамент уступает место лаконичному русту. Впрочем, даже этот вариант архитекторам пришлось дорабатывать: постепенно из проекта исчезли и орнаментированные вставки, и визуальное различие между этажами. Вариант, который в итоге пошел в работу, сам Владимир Плоткин называет «наиболее спокойным». 
Бизнес-центр «Wall street» на Валовой улице. Вариант 2009 года © ТПО «Резерв»
Бизнес-центр «Wall street» на Валовой улице. Вариант 2009 года © ТПО «Резерв»
Бизнес-центр «Wall street» на Валовой улице. Постройка, 2013. Фотография © Алексей Народицкий
Бизнес-центр «Wall street» на Валовой улице. Постройка, 2013. Фотография © Алексей Народицкий

В соответствии с первоначальным ТЗ, комплекс состоит из двух объемов – основного здания бизнес-центра, обращенного к Садовому кольцу, и производственного корпуса, выстроенного по задней границе участка параллельно Валовой улице. Решены они совершенно по-разному, как по своей форме, так и по оформлению фасадов. Основное здание сохранило трапециевидную форму плана, причем в обоих основаниях этой трапеции сделаны довольно глубокие выемки – своего рода световые колодцы, позволившие отступить на нормативное расстояние от расположенных на участке вентиляционных шахт метро. 
Бизнес-центр «Wall street» на Валовой улице. Постройка, 2013. Фотография © Алексей Народицкий
Бизнес-центр «Wall street» на Валовой улице. Постройка, 2013. Фотография © Алексей Народицкий

Угол, которым объем обращен к перекрестку, минимально, но все-таки сглажен, что элегантно и ненавязчиво подчеркивают использованные здесь изогнутые стекла. Расходящиеся от этой оси две плоскости главного фасада образуют широкий угол, в точности вторя красным линиям пересекающихся улиц, а динамика этого разлета подчеркнута с помощью доминирующих в оформлении здания горизонталей. Светло-бежевые пояса межэтажных перекрытий прорезаны более темными декоративными ламелями, скрадывающими ширину и монотонность этих элементов. Такой же более темный оттенок архитекторы придали вертикальным межоконным вставкам.

Облицовка выполнена не из камня, а из панелей стеклофибробетона, интегрированных в модульную систему, – этот сравнительно новый материал позволяет сделать пластику фасада достаточно насыщенной и сложной, не утяжеляя его: средняя толщина панели полтора-два сантиметра. Кроме того, в проекте сразу была учтена декоративная подсветка фасадов здания: специальные ниши для светильников полностью интегрированы в облицовку фасадов.
Бизнес-центр «Wall street» на Валовой улице. Постройка, 2013. Фотография © Алексей Народицкий
Бизнес-центр «Wall street» на Валовой улице. Постройка, 2013. Фотография © Алексей Народицкий

И если все пояса решены одинаково, то вставки от окна к окну меняются: на более темную фактурную плашку архитекторы накладывают тонкую прямоугольную сетку, «клетки» которой постоянно варьируются, привнося в этот действительно очень спокойный фасад интересную интригу. Корпус, удаленный от Садового кольца, существенно отличается от рельефно расчерченного главного фасада: та же модульная сетка здесь трактована тоньше и, если можно так сказать, чище. Торец корпуса покрыт легким паттерном гладких, шершавых и «бархатных» плит стеклофибробетона, оживленным несколькими окнами; на тыльном фасаде окна в шахматном порядке чередуются с выступающими стеклянными панелями, покрытыми полосами шелкографии.

При движении мимо здания в автомобиле подобные нюансы рассмотреть, конечно, не успеваешь – глаз замечает лишь шлейф струящихся вдоль перекрестка поясов, – но пешеходам, идущим навстречу комплексу или мимо него, скучно не будет. 
Бизнес-центр «Wall street» на Валовой улице. Постройка, 2013. Фотография © Алексей Народицкий
Бизнес-центр «Wall street» на Валовой улице. Постройка, 2013. Фотография © Алексей Народицкий
Бизнес-центр «Wall street» на Валовой улице. Постройка, 2013. Фотография © Алексей Народицкий
Бизнес-центр «Wall street» на Валовой улице. Постройка, 2013. Фотография © Алексей Народицкий
Бизнес-центр «Wall street» на Валовой улице. Постройка, 2013. Фотография © Алексей Народицкий
Бизнес-центр «Wall street» на Валовой улице. Постройка, 2013. Фотография © Алексей Народицкий

Кстати о пешеходах. По первому этажу главного здания архитекторы делают подсечку и витражное остекление: здание отступает от красных линий, приобретая более дружелюбный и открытый вид. Перед ним разбита небольшая благоустроенная площадь, заставляющая невольно притормозить там, где раньше людской поток шел исключительно транзитом. Немалое эстетическое удовольствие доставляет и прогулка вокруг комплекса. Задний корпус, представляющий собой не в пример более лаконичный параллелепипед, к своему ближайшему соседу обращен полностью остекленным фасадом, а на уровне кровли между ними переброшен узкий мостик, который в ясную погоду почти растворяется в московском небе, но тем не менее служит неоспоримым материальным воплощением кровной связи двух столь разных объемов. 
Бизнес-центр «Wall street» на Валовой улице. Постройка, 2013. Фотография © Алексей Народицкий
Бизнес-центр «Wall street» на Валовой улице. Постройка, 2013. Фотография © Алексей Народицкий
Бизнес-центр «Wall street» на Валовой улице. Постройка, 2013. Фотография © Алексей Народицкий
Бизнес-центр «Wall street» на Валовой улице. Постройка, 2013. Фотография © Алексей Народицкий
Проект благоустройства © ТПО «Резерв»
Проект благоустройства © ТПО «Резерв»
Бизнес-центр «Wall street» на Валовой улице. Постройка, 2013. Фотография © Алексей Народицкий
Бизнес-центр «Wall street» на Валовой улице. Постройка, 2013. Фотография © Алексей Народицкий
Бизнес-центр «Wall street» на Валовой улице. Постройка, 2013. Фотография © Алексей Народицкий
Бизнес-центр «Wall street» на Валовой улице. Постройка, 2013. Фотография © Алексей Народицкий
Многофункциональный комплекс на Валовой улице © Алексей Народицкий
Многофункциональный комплекс на Валовой улице © Алексей Народицкий
Бизнес-центр «Wall street» на Валовой улице. Постройка, 2013. Фотография © Алексей Народицкий
Бизнес-центр «Wall street» на Валовой улице. Постройка, 2013. Фотография © Алексей Народицкий
Бизнес-центр «Wall street» на Валовой улице. Постройка, 2013. Фотография © Алексей Народицкий
Бизнес-центр «Wall street» на Валовой улице. Постройка, 2013. Фотография © Алексей Народицкий
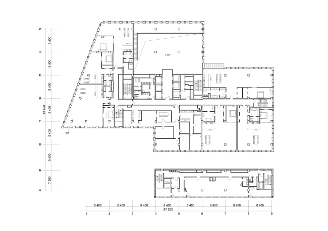
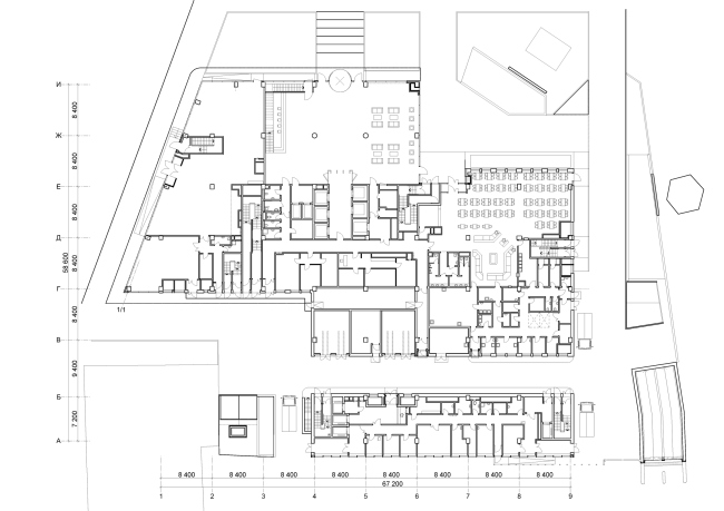
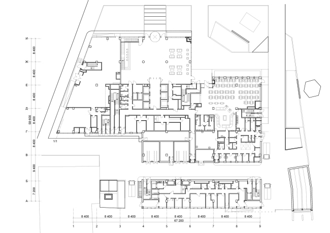
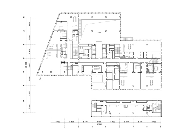
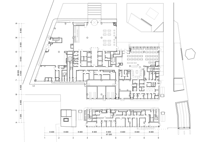
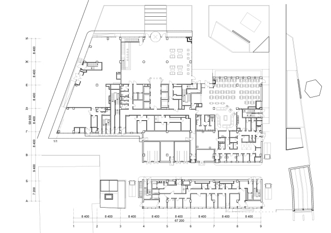
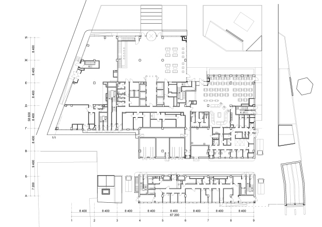
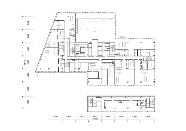
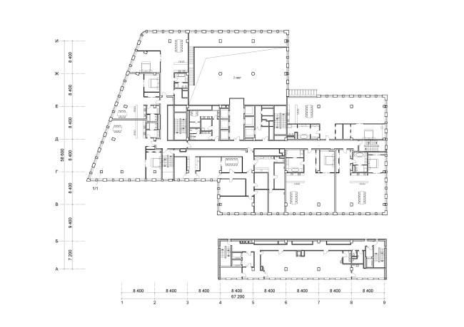
Бизнес-центр «Wall street» на Валовой улице. План © ТПО «Резерв»
Бизнес-центр «Wall street» на Валовой улице. План © ТПО «Резерв»
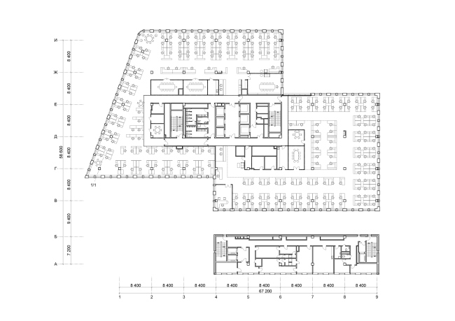
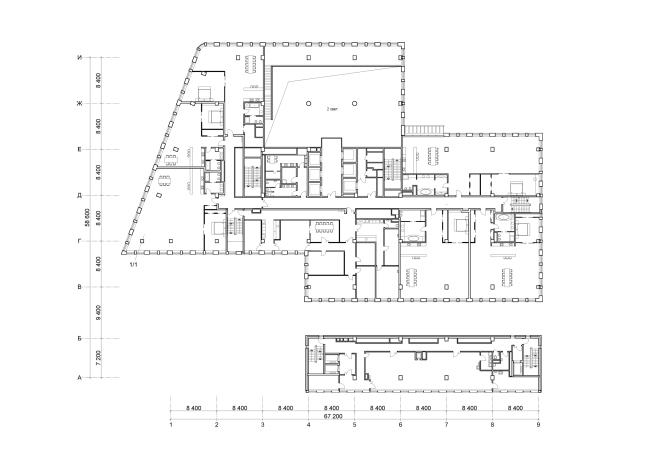
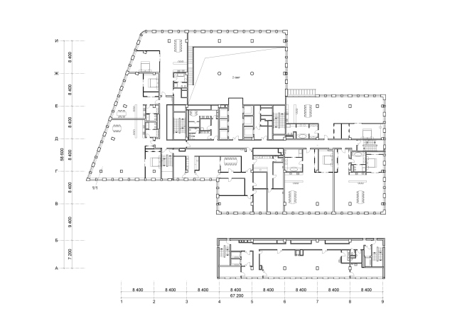
Бизнес-центр «Wall street» на Валовой улице. План © ТПО «Резерв»
Бизнес-центр «Wall street» на Валовой улице. План © ТПО «Резерв»
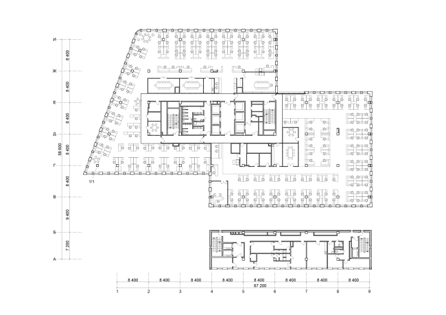
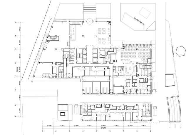
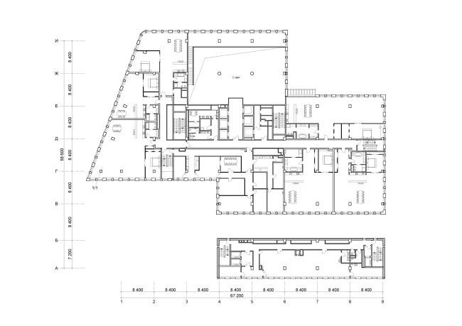
Бизнес-центр «Wall street» на Валовой улице. План © ТПО «Резерв»
Бизнес-центр «Wall street» на Валовой улице. План © ТПО «Резерв»