Размещено на портале Архи.ру (www.archi.ru)

08.04.2008

«Летучий корабль»

Елена Петухова
Объект:
Жилой комплекс «Versis» на Нахимовском проспекте
Адрес:
Россия, Москва. Нахимовский проспект, д. 69 А
Архитектор:
Андрей Асадов
Александр Асадов
Мастерская:
АБ ASADOV
Авторский коллектив:
Архитекторы: А.Р.Асадов, Е.Вдовин, А.Асадов, К.Сапричян, Д.Зражевский, А.Дмитриев, А.Асташов, А.Левашов, А.Зарубина

Мастерская А. Асадова заканчивает работу над проектом нового жилого комплекса на Нахимовском проспекте. Его архитектурное решение самым непосредственным образом связано со спецификой участка. В борьбе с подземными превратностями, архитекторам пришлось поднять два корпуса, объединенных стилобатом, на 8 метров над землей, превратив огромный комплекс в подобие сказочного «летучего корабля» с двумя башнями-мачтами и стеклянными парусами

Жилой дом на Нахимовском проспекте. Вид на комплекс со стороны Нахимовского проспекта © Архитектурное бюро Асадова
Жилой дом на Нахимовском проспекте. Вид на комплекс со стороны Нахимовского проспекта © Архитектурное бюро Асадова

Мы привыкли к тому, что контекст, особенно в Москве, нередко влияет на архитектуру решающим образом. Рецепт «контекстуальной» архитектуры включает сопоставление нового здания с высотами соседних домов, их декоративным убранством, преобладающим в данном квартале архитектурным стилем и многими другими вещами, о которых написано и сказано уже очень многое. Значительно меньше внимания как правило уделяется таким «низменным» и невидимым для стороннего глаза факторам, как подземные городские коммуникации – а ведь они могут повлиять на архитектурный образ будущего здания не менее ощутимо, чем контекстуальные ограничения.

Именно такой случай произошел с домом на Нахимовском проспекте, спроектированном мастерской А. Асадова. Отведенный для него узкий участок (чуть меньше гектара) зажат между 10-этажным зданием бывшего исследовательского института и «полосой отчуждения», занятой гаражными кооперативами. Приблизительно посередине его пересекает трубопровод.

Первые несколько месяцев работы архитекторов ушли на то, чтобы определить – возможно ли перенести трубопровод в обход участка. Трубопровод победил, показав замечательные результаты по всем параметрам, т.е. стоимость изменения его трассировки приближалась к бюджету строительства всего здания. Поэтому вместо единой пластины архитекторы из мастерской А. Асадова разместили на участке две башни, конфигурация и размер основания которых также были заданы исходя из объективных факторов. Зато высоты башен архитекторы смогли выбрать почти самостоятельно, т.е. после того, как их выбрали специалисты ландшафтно-визуального анализа.

В промежутке между зонами влияния подземных коммуникаций и надземных визуальных связей, творческая мысль проектировщиков вырвалась на свободу. В качестве компенсации за утраченную однообъемность башни объединили общим стилобатом, приподняв его над землей на высоту восьми метров. Стилобат стал похож на мост, соединяющий два соседних здания. В дополнение к нему между башнями было переброшено еще два мосты-переходы.

Это проект был создан в 2005 году и тогда предназначался для культурного центра республики Аджария. В конце 2006 отношения между Россией и Грузией испортились – формально, закавказская республика передумала строить в Москве культурно-деловой центр – и участок был передан на аукцион. Победителем аукциона при помощи 20,1 млн. рублей (именно такую сумму пришлось в ходе торгов добавить претенденту к установленной городскими властями базовой стоимости объекта в 679 900 000 рублей) стала компания ЗАО «Пересвет-Инвест». Город передал ей право на возведение здесь уже не культурно-делового, а офисно-жилого комплекса с детским садом и подземной автостоянкой. По сравнению с предыдущим проектом, общая площадь будущего здания была увеличена, а этажность, наоборот, уменьшена. Застройщик не имел право построить здание выше 27 этажей и больше 48,9 тыс. кв.м., из которых около 7,3 тыс. кв.м. (90 одно- и двухкомнатных квартир) оставались за городом для распределения среди очередников.

Новый инвестор не стал менять проектировщика и архитекторы из мастерской А. Асадова продолжили работу над проектом, точнее начали его реконструкцию.
Смена функции и культурологической принадлежности заказчика никак не отразилась на объемно-пространственном и композиционном решениях, продиктованных спецификой участка, зато она оказала существенное влияние на внешний облик комплекса. Футуризма в нем стало меньше, основательности – больше. Стекло и камень на стенах и выступающих блоках поменялись местами. Вместо каменных башен, из которых раньше выступали блестящие кристаллы, появился «стеклянный рыцарь» в «каменных доспехах». Именно такое впечатление создается при взгляде на объемы из дымчато-серого стекла, «обернутые» в перфорированные оболочки.

Легкие мосты-переходы расширились, превратившись в обитаемые «Висячие сады». В них расположены двухэтажные квартиры, наружные стены которых будут выполнены по технологии двойного фасада, а на плоских кровлях, так же как и на крыше стилобата, будет устроен настоящий газон с деревьями.

Пролет между башнями составляет около 35 метров. В качестве основных несущих элементов в нижней части мостов будут уложены железобетонные балки высотой до 3 метров. Для предотвращения деформаций в местах, где балки опираются на продольные несущие стены башен, конструкторы института «Промстройпроект» и архитекторы Мастерской А. Асадова разработали уникальную систему, благодаря которой два здания, связанные между собой в уровнях стилобата и мостов, будут так же устойчивы, как если бы это был один корпус. Таким образом проектировщики взяли реванш за подземный форс-мажор, доказав, что недостатки участка можно преодолеть, даже для этого придется придумать и построить «летучий корабль».

Жилой дом на Нахимовском проспекте. Вид с высоты птичьего полета © Архитектурное бюро Асадова
Жилой дом на Нахимовском проспекте. Вид с высоты птичьего полета © Архитектурное бюро Асадова
Жилой комплекс «Versis» на Нахимовском проспекте. 3-D визуализация. Вид на комплекс со стороны гаражей © Архитектурное бюро Асадова
Жилой комплекс «Versis» на Нахимовском проспекте. 3-D визуализация. Вид на комплекс со стороны гаражей © Архитектурное бюро Асадова
Жилой дом на Нахимовском проспекте. Генеральный план © Архитектурное бюро Асадова
Жилой дом на Нахимовском проспекте. Генеральный план © Архитектурное бюро Асадова
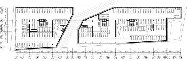
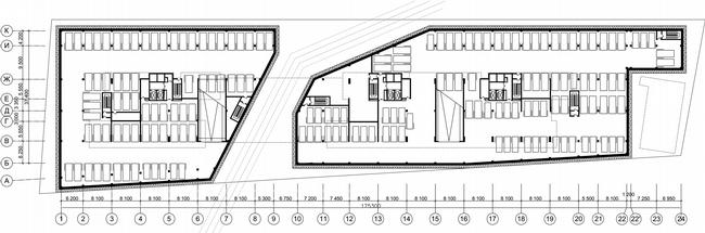
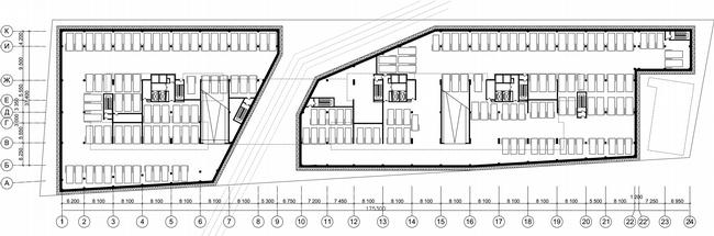
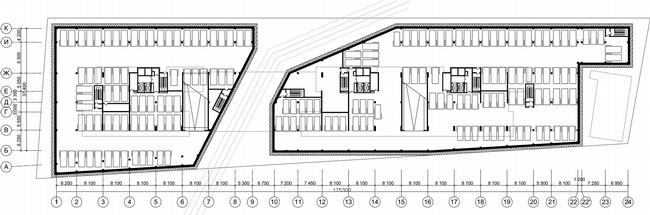
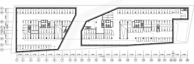
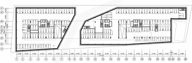
Жилой дом на Нахимовском проспекте. План стилобата © Архитектурное бюро Асадова
Жилой дом на Нахимовском проспекте. План стилобата © Архитектурное бюро Асадова
Жилой дом на Нахимовском проспекте. План типового этажа © Архитектурное бюро Асадова
Жилой дом на Нахимовском проспекте. План типового этажа © Архитектурное бюро Асадова
Жилой дом на Нахимовском проспекте. План пентхауса на 26 этаже © Архитектурное бюро Асадова
Жилой дом на Нахимовском проспекте. План пентхауса на 26 этаже © Архитектурное бюро Асадова
Фасад со стороны гаражей
Фасад со стороны гаражей
Продольный разрез
Продольный разрез
Поперечный разрез
Поперечный разрез