Размещено на портале Архи.ру (www.archi.ru)

12.08.2014

Врата образования

Екатерина Ровнова
Объект:
Бизнес-школа университета Ратгерс на кампусе Ливингстон
Адрес:
США, None, Пискатавэй. 100 Rockafeller Road
Мастерская:
TEN Arquitectos

По проекту бюро Энрике Нортена TEN построено здание бизнес-школы университета Ратгерс в Нью-Джерси.

Бизнес-школа университета Ратгерс на кампусе Ливингстон © Peter Aaron
Бизнес-школа университета Ратгерс на кампусе Ливингстон © Peter Aaron



С начала работы бюро Энрике Нортена над мастер-планом реконструкции кампуса Ливингстон-колледжа университета Ратгерса прошло около десяти лет; в течение этого времени проект постепенно реализуется: новое здание бизнес-школы было открыто в прошлом, 2013 году.

Эта постройка – первое, что видят въезжающие на территорию кампуса: бизнес-школа стала не только символом, но и в буквальном смысле вратами колледжа.  Угол Г-образного здания, поддерживаемый наклоненными колоннами, нависает над основной улицей, ведущей вглубь комплекса. Проходя сквозь эту арку, через остекление фасада можно увидеть, что происходит внутри. Почти азбучный пример единства внешнего и внутреннего имеет практический смысл – здесь, используя одновременно двор и вестибюль, можно проводить концерты, лекции, видеотрансляции и торжественные церемонии.
Транспортная схема. Бизнес-школа Ратгерс © TEN architectos
Транспортная схема. Бизнес-школа Ратгерс © TEN architectos



При входе в здание открывается вид на широкую лестницу. «Мы надеемся, что в этом амфитеатре люди будут отдыхать и пить кофе, работать на ноутбуках и разговаривать друг с другом. Хотелось бы думать, что это место будет похожим на площадь Испании в Риме: там люди сидят – вот просто так – и встречают других людей», – говорит Энрике Нортен.
 
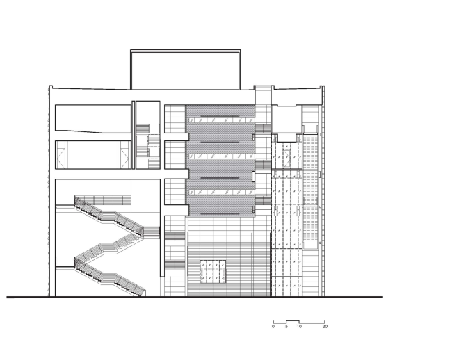
Устройство здания отражает актуальное для современного образования смещение акцентов с обучения в отдельных аудиториях к совместной работе в более свободных, открытых пространствах. Похожая тенденция прослеживается и в предпринимательской среде: возрастающая необходимость кооперации требует места для дискуссий и свободного пересечения мнений, а традиционный «ячеистый» план этому не способствует. Множество учебных классов и аудиторий соединены друг с другом по вертикали атриумом и «прошиты» по горизонтали строчками общественных пространств разных масштабов, от маленьких укромных уголков до больших рекреаций. Преподаватели обитают в самом центре здания, в зоне досягаемости для всех студентов, что делает их не просто источником знаний, но и коллегами по общей работе и развитию идей, разрабатываемых в школе.
Бизнес-школа университета Ратгерс на кампусе Ливингстон © Peter Aaron
Бизнес-школа университета Ратгерс на кампусе Ливингстон © Peter Aaron
Бизнес-школа университета Ратгерс на кампусе Ливингстон © Peter Aaron
Бизнес-школа университета Ратгерс на кампусе Ливингстон © Peter Aaron
Бизнес-школа университета Ратгерс на кампусе Ливингстон © Peter Aaron
Бизнес-школа университета Ратгерс на кампусе Ливингстон © Peter Aaron
Бизнес-школа университета Ратгерс на кампусе Ливингстон © Peter Aaron
Бизнес-школа университета Ратгерс на кампусе Ливингстон © Peter Aaron

У здания два разных фасада: один, обращенный к внешней дороге, облицован рельефными, повернутыми под разными углами алюминиевыми панелями, другой – выходящий на сторону кампуса – полностью остеклен.
Бизнес-школа университета Ратгерс на кампусе Ливингстон © Peter Aaron
Бизнес-школа университета Ратгерс на кампусе Ливингстон © Peter Aaron
Бизнес-школа университета Ратгерс на кампусе Ливингстон © Peter Aaron
Бизнес-школа университета Ратгерс на кампусе Ливингстон © Peter Aaron
Бизнес-школа университета Ратгерс на кампусе Ливингстон © Peter Aaron
Бизнес-школа университета Ратгерс на кампусе Ливингстон © Peter Aaron
Бизнес-школа университета Ратгерс на кампусе Ливингстон © Peter Aaron
Бизнес-школа университета Ратгерс на кампусе Ливингстон © Peter Aaron
Бизнес-школа университета Ратгерс на кампусе Ливингстон © Peter Aaron
Бизнес-школа университета Ратгерс на кампусе Ливингстон © Peter Aaron



Здание бизнес-школы, как и все новые строения кампуса, соответствует «серебряному» (50-59 баллов из 100) сертификату LEED – добровольной системы сертификации для оценки эффективности и экологичности проектов. Круглогодичный обогрев и охлаждение обеспечивают оборудованное под центральной площадью кампуса геотермальное поле, где работает 321 тепловой насос, уходящий на глубину 150 метров. Комплекс солнечных батарей, расположенный в северо-восточной части территории, обеспечивает до 63% всей необходимой кампусу электроэнергии. Ливневые осадки собираются при помощи специальных коллекторов и аккумулируются в искусственных водоемах.
 
Как говорит Мартин Марковиц, декан программы бакалавриата, «сейчас кампус Ливингстон-колледжа – самый «крутой» среди всех кампусов Ратгерского университета».
Бизнес-школа Ратгерс © TEN architectos
Бизнес-школа Ратгерс © TEN architectos
Ситуационный план. Бизнес-школа Ратгерс © TEN architectos
Ситуационный план. Бизнес-школа Ратгерс © TEN architectos
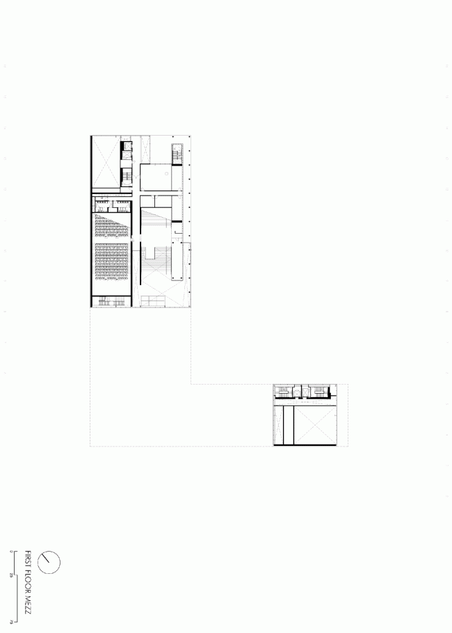
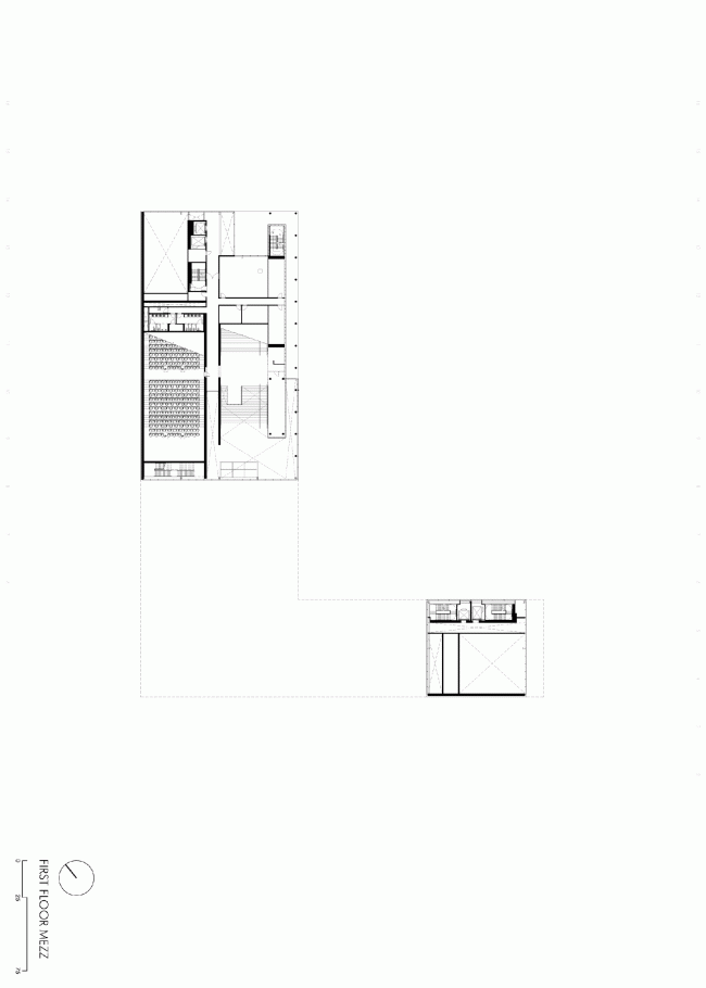
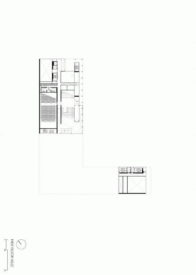
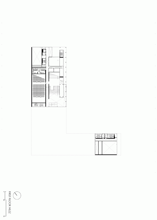
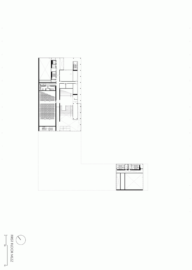
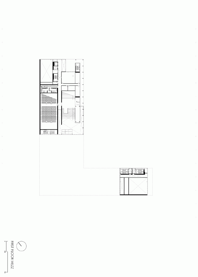
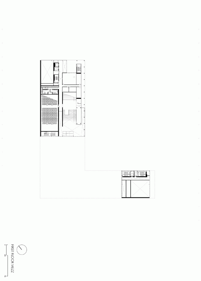
Первый этаж. План. Бизнес-школа Ратгерс © TEN architectos
Первый этаж. План. Бизнес-школа Ратгерс © TEN architectos
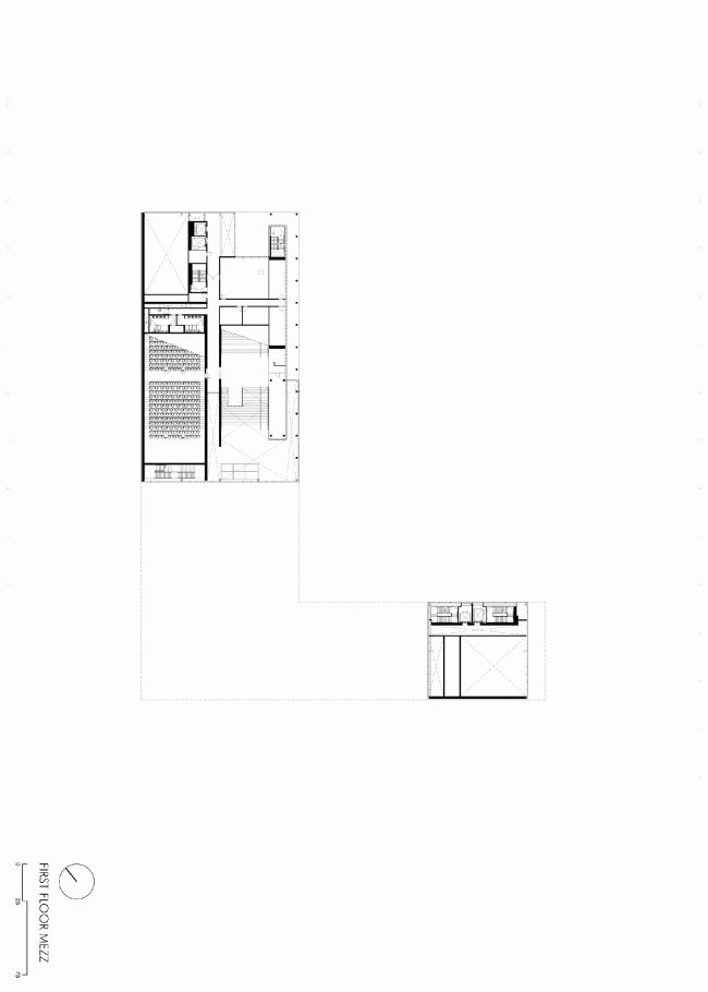
Второй этаж. План. Бизнес-школа Ратгерс © TEN architectos
Второй этаж. План. Бизнес-школа Ратгерс © TEN architectos
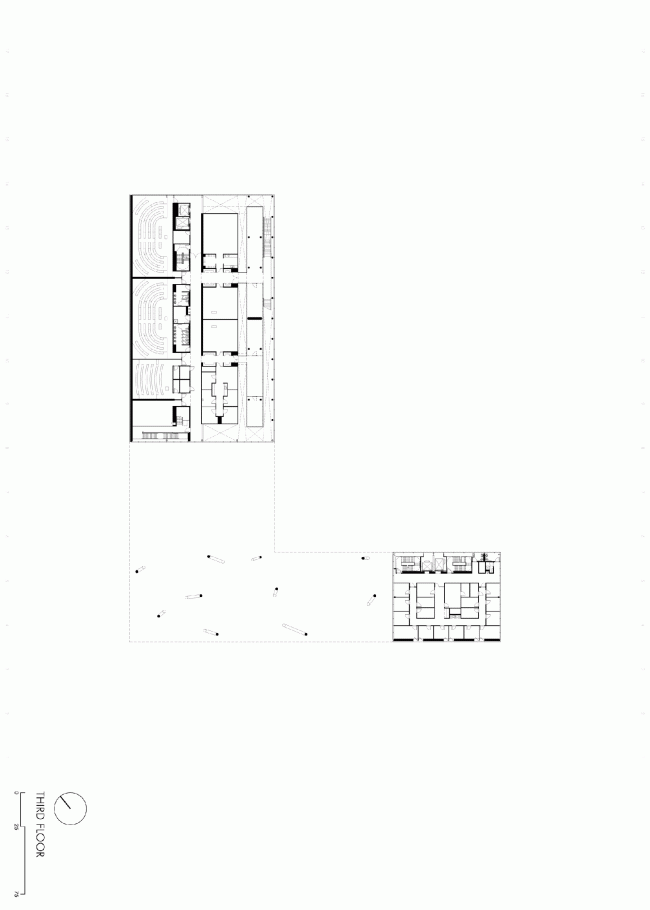
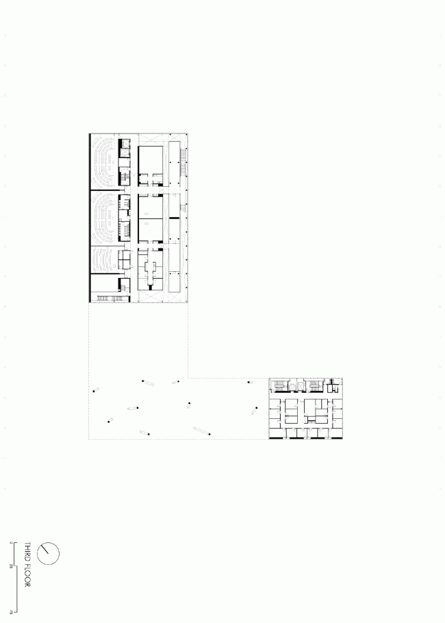
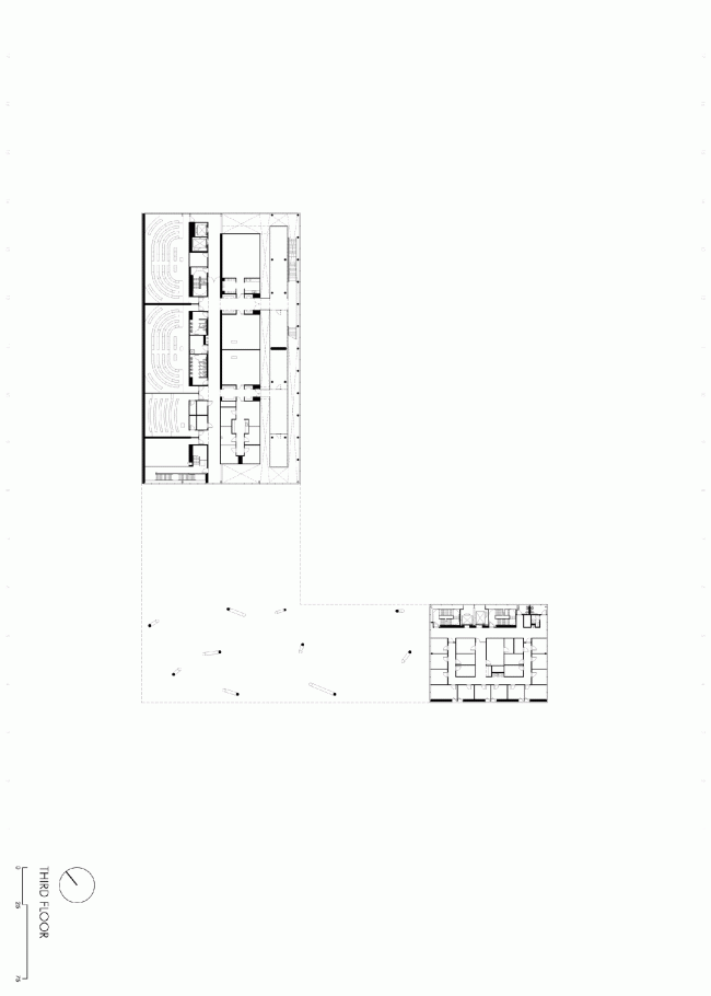
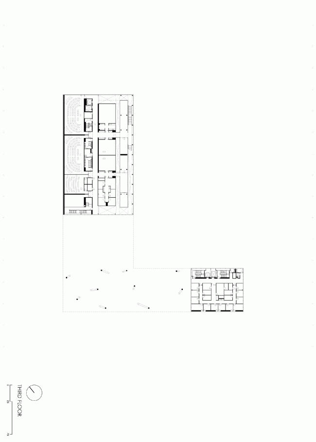
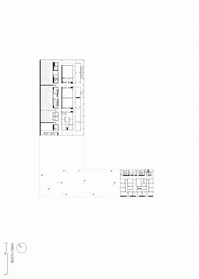
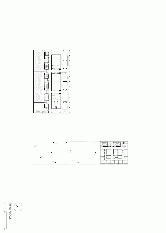
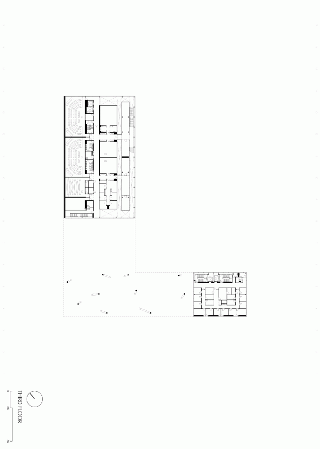
Третий этаж. План. Бизнес-школа Ратгерс © TEN architectos
Третий этаж. План. Бизнес-школа Ратгерс © TEN architectos
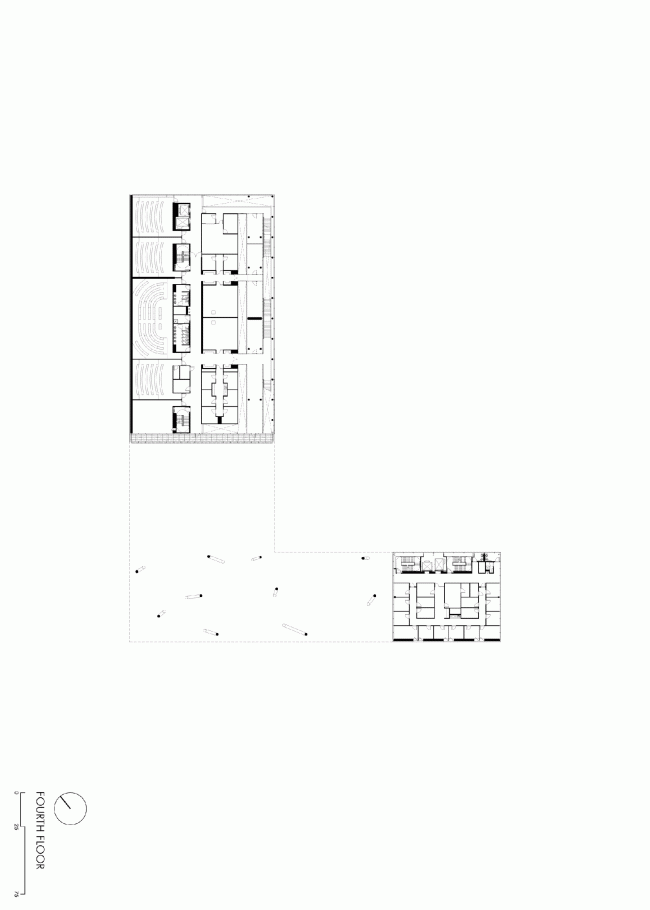
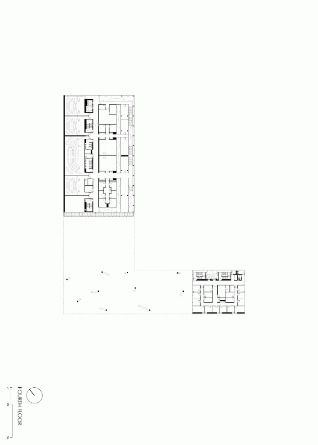
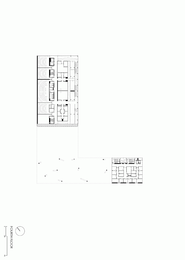
Четвертый этаж. План. Бизнес-школа Ратгерс © TEN architectos
Четвертый этаж. План. Бизнес-школа Ратгерс © TEN architectos
Пятый этаж. План. Бизнес-школа Ратгерс © TEN architectos
Пятый этаж. План. Бизнес-школа Ратгерс © TEN architectos
Шестой этаж. План. Бизнес-школа Ратгерс © TEN architectos
Шестой этаж. План. Бизнес-школа Ратгерс © TEN architectos
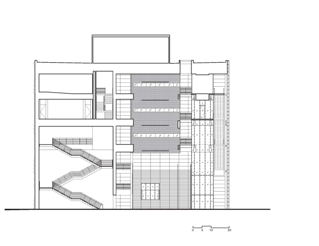
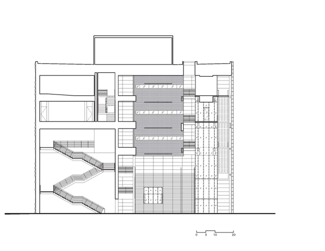
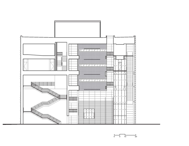
Разрез. Бизнес-школа Ратгерс © TEN architectos
Разрез. Бизнес-школа Ратгерс © TEN architectos
Разрез. Бизнес-школа Ратгерс © TEN architectos
Разрез. Бизнес-школа Ратгерс © TEN architectos