Размещено на портале Архи.ру (www.archi.ru)

07.08.2014

Город внутри

Екатерина Ровнова
Объект:
Культурный центр CaixaForum в Сарагосе
Адрес:
Испания, None, Сарагоса. ул. Хосе Ансельмо Клаве 50004

В Сарагосе построен культурный центр Caixaforum по проекту студии Карме Пинос.

Культурный центр CaixaForum в Сарагосе © Estudio Carme Pinós
Культурный центр CaixaForum в Сарагосе © Estudio Carme Pinós

В разных городах Испании расположена серия культурных (Caixaforum) и научно-просветительских (CosmoCaixa) центров, финансируемых некоммерческим фондом La Caixa. Так, Caixaforum в Мадриде был построен Herzog & de Meuron, а входную зону центра в Барселоне – перестроенной текстильной фабрики – проектировал Арата Исодзаки. Седьмой по счету культурный центр открыл свои двери для посетителей в конце июня: он возведен в Сарагосе по проекту бюро Estudio Carme Pinós.
Культурный центр CaixaForum в Сарагосе © Estudio Carme Pinós
Культурный центр CaixaForum в Сарагосе © Estudio Carme Pinós

Задачей архитекторов было создать здание, которое бы «ощущалось как город», во-первых, за счет создаваемого им множества разнообразных общественных площадок. Во-вторых, оно должно соотноситься с перспективными городскими видами, создавая снаружи такое же рефлексивное пространство, какое ощущает зритель, находясь на выставке внутри. 
Культурный центр CaixaForum в Сарагосе © Estudio Carme Pinós
Культурный центр CaixaForum в Сарагосе © Estudio Carme Pinós

Два основных объема подняты над землей, что позволило освободить первый этаж, наполнив его более прозрачными и открытыми пространствами: там расположена входная зона в музей и сувенирный магазин, а городской парк проходит под зданием, подводя к подземной аудитории на 300 человек. Эта площадь становится связующим звеном между городом и музеем, стирая границы между ними. 
Культурный центр CaixaForum в Сарагосе © Estudio Carme Pinós
Культурный центр CaixaForum в Сарагосе © Estudio Carme Pinós

Консольно нависающие над парком объемы разнесены по вертикали, чтобы не перекрывать друг другу вид на город. Эти две части здания, в которых находятся многофункциональные залы вместимостью 250 человек и выставочные пространства, соединяются между собой эскалаторами. Из ресторана, расположенного на самом верху, открывается панорама городского центра, в то время как внешние террасы обращены на сторону выставочного комплекса ЭКСПО-2008: на мост-павильон Захи Хадид и «Водяную башню» Энрике де Тереса.
Культурный центр CaixaForum в Сарагосе © Ricardo Santonja
Культурный центр CaixaForum в Сарагосе © Ricardo Santonja

Массивные конструкции, поддерживающие консоли, спрятаны за 1600 перфорированными металлическими листами, геометрический рисунок которых подсвечивается в темное время суток светодиодами. 
Культурный центр CaixaForum в Сарагосе © Estudio Carme Pinós
Культурный центр CaixaForum в Сарагосе © Estudio Carme Pinós

Новый культурный центр представляет собой городское пространство, облеченное в архитектурную форму. Снаружи – формируемые им площадь и сад, внутри – места для проведения всех общественных мероприятий, какие только может предложить город: спектаклей, лекций, кинопоказов, конференций, концертов и выставок. И даже эскалаторы, открывая посетителям на каждом этаже новые и неожиданные ракурсы на окружающую застройку, становятся своеобразной проекцией обычной городской улицы на вертикаль.
Культурный центр CaixaForum в Сарагосе © Ricardo Santonja
Культурный центр CaixaForum в Сарагосе © Ricardo Santonja
Культурный центр CaixaForum в Сарагосе © Ricardo Santonja
Культурный центр CaixaForum в Сарагосе © Ricardo Santonja
Культурный центр CaixaForum в Сарагосе © Ricardo Santonja
Культурный центр CaixaForum в Сарагосе © Ricardo Santonja
Культурный центр CaixaForum в Сарагосе © Ricardo Santonja
Культурный центр CaixaForum в Сарагосе © Ricardo Santonja
Культурный центр CaixaForum в Сарагосе © Ricardo Santonja
Культурный центр CaixaForum в Сарагосе © Ricardo Santonja
Культурный центр CaixaForum в Сарагосе © Ricardo Santonja
Культурный центр CaixaForum в Сарагосе © Ricardo Santonja
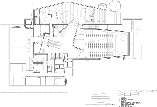
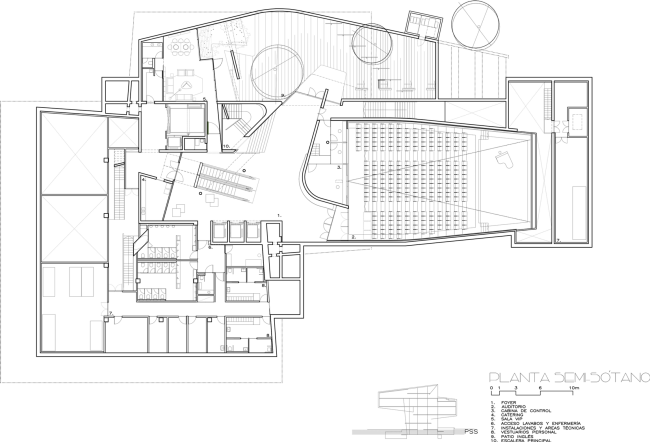
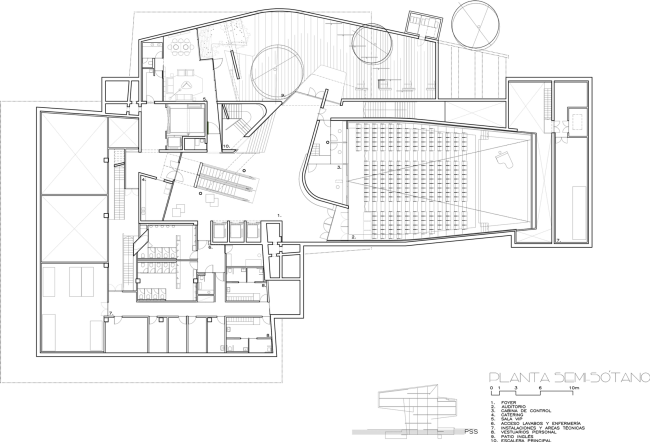
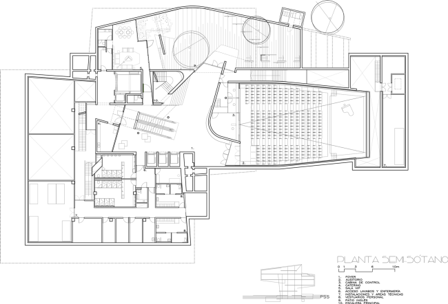
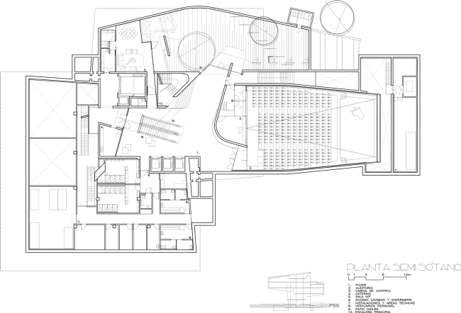
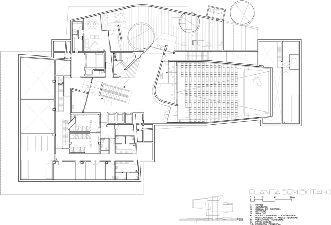
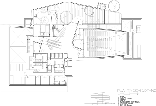
Культурный центр CaixaForum в Сарагосе | План цокольного этажа © Estudio Carme Pinós
Культурный центр CaixaForum в Сарагосе | План цокольного этажа © Estudio Carme Pinós
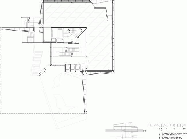
Культурный центр CaixaForum в Сарагосе | План 1-го этажа © Estudio Carme Pinós
Культурный центр CaixaForum в Сарагосе | План 1-го этажа © Estudio Carme Pinós
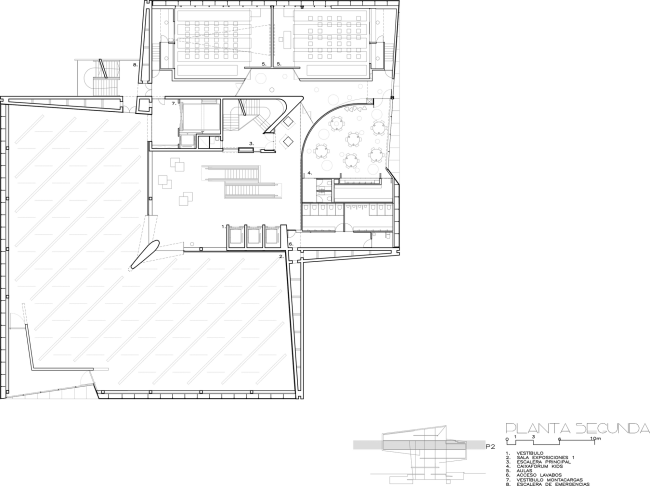
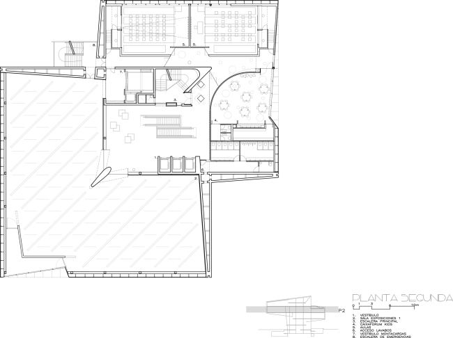
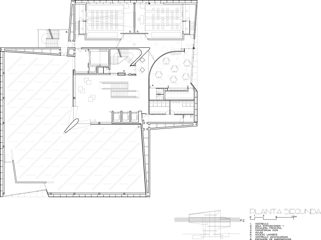
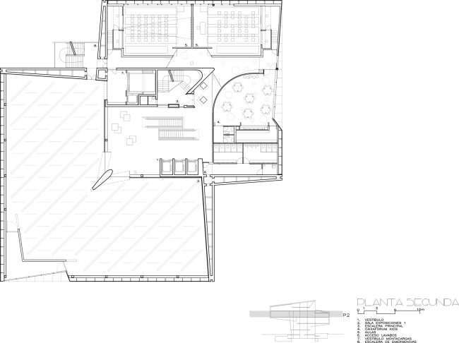
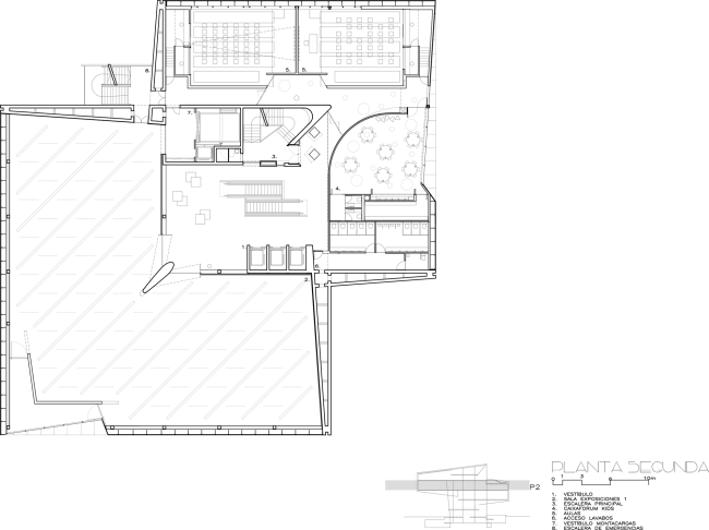
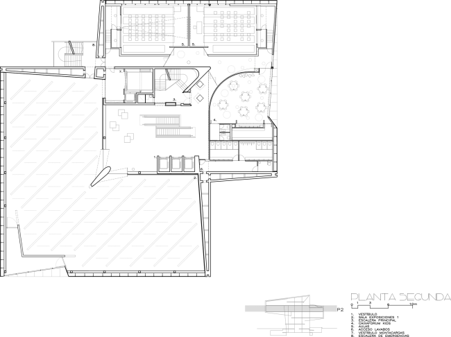
Культурный центр CaixaForum в Сарагосе | План 2-го этажа © Estudio Carme Pinós
Культурный центр CaixaForum в Сарагосе | План 2-го этажа © Estudio Carme Pinós
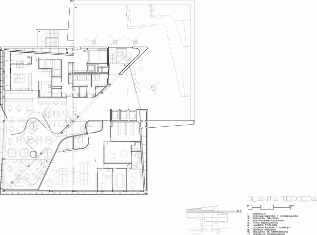
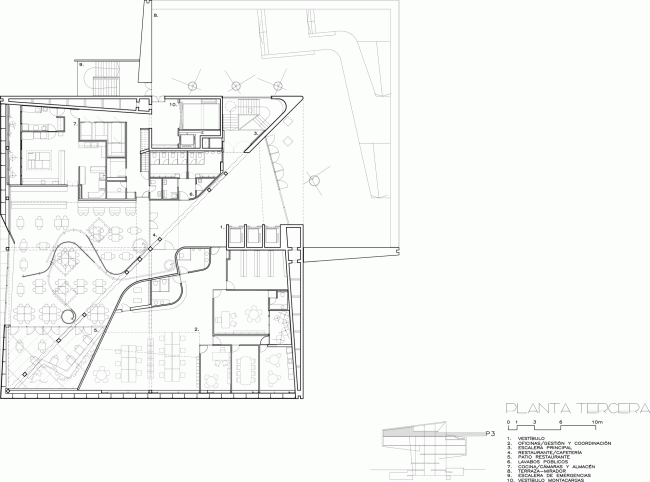
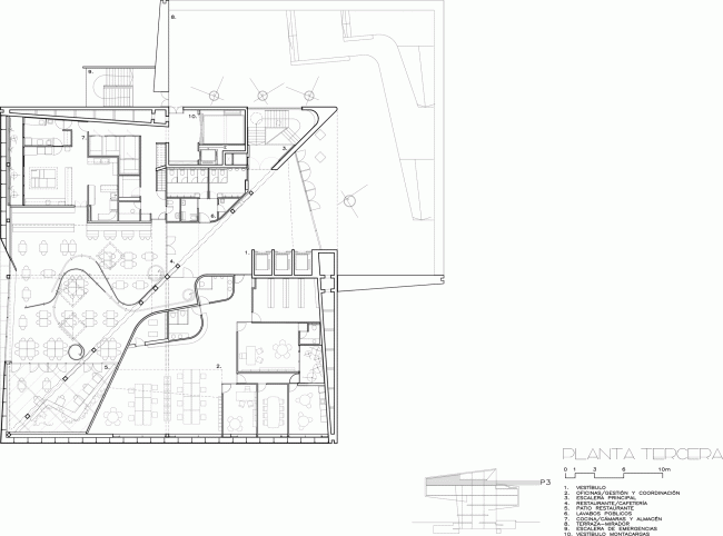
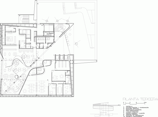
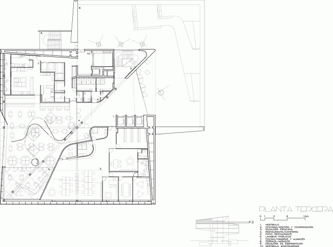
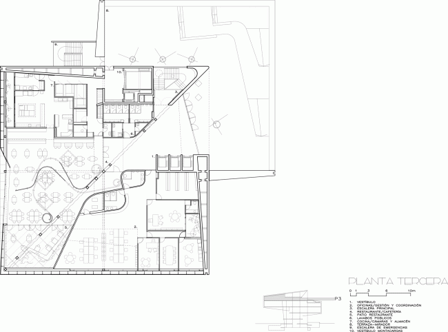
Культурный центр CaixaForum в Сарагосе | План 3-го этажа © Estudio Carme Pinós
Культурный центр CaixaForum в Сарагосе | План 3-го этажа © Estudio Carme Pinós
Культурный центр CaixaForum в Сарагосе | План 4-го этажа © Estudio Carme Pinós
Культурный центр CaixaForum в Сарагосе | План 4-го этажа © Estudio Carme Pinós
Культурный центр CaixaForum в Сарагосе © Estudio Carme Pinós
Культурный центр CaixaForum в Сарагосе © Estudio Carme Pinós
Культурный центр CaixaForum в Сарагосе © Estudio Carme Pinós
Культурный центр CaixaForum в Сарагосе © Estudio Carme Pinós
Культурный центр CaixaForum в Сарагосе © Estudio Carme Pinós
Культурный центр CaixaForum в Сарагосе © Estudio Carme Pinós
Культурный центр CaixaForum в Сарагосе © Estudio Carme Pinós
Культурный центр CaixaForum в Сарагосе © Estudio Carme Pinós
Культурный центр CaixaForum в Сарагосе © Estudio Carme Pinós
Культурный центр CaixaForum в Сарагосе © Estudio Carme Pinós