Размещено на портале Архи.ру (www.archi.ru)

30.07.2014

«Дыхание жизни»

Нина Фролова
Объект:
Онкологический центр Мэгги больницы Сент-Бартоломью
Адрес:
Великобритания, None, Лондон.

Стивен Холл построит онкологический Центр Мэгги в старейшей больнице Англии.

Онкологический центр Мэгги больницы Сент-Бартоломью © Steven Holl Architects
Онкологический центр Мэгги больницы Сент-Бартоломью © Steven Holl Architects

Новое учреждение из серии центров, бесплатно предоставляющих практическую и эмоциональную поддержку больным раком и их близким, откроется в больнице Сент-Бартоломью на северо-востоке Лондона. Окружение, включающее средневековую церковную башню и госпитальные корпуса XVIII столетия, затруднило согласование проекта, против работы Холла даже выступила общественность, но со второй попытки местный совет все же утвердил проект – с перевесом в один голос.
Онкологический центр Мэгги больницы Сент-Бартоломью © Steven Holl Architects
Онкологический центр Мэгги больницы Сент-Бартоломью © Steven Holl Architects

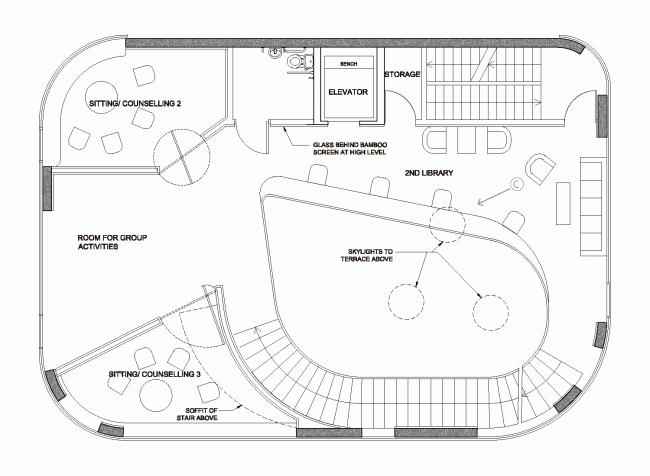
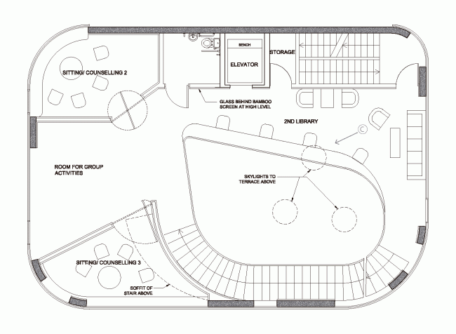
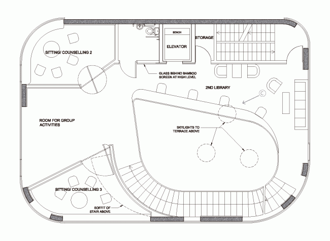
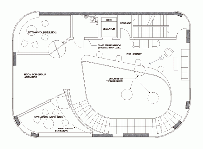
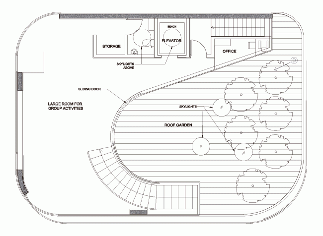
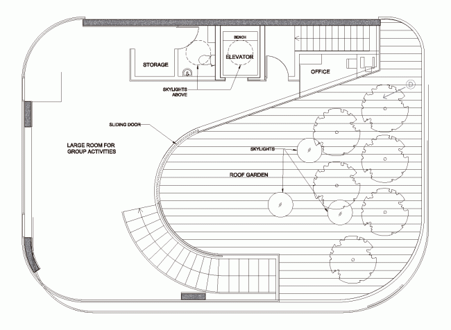
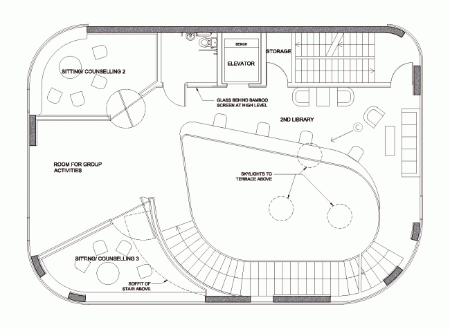
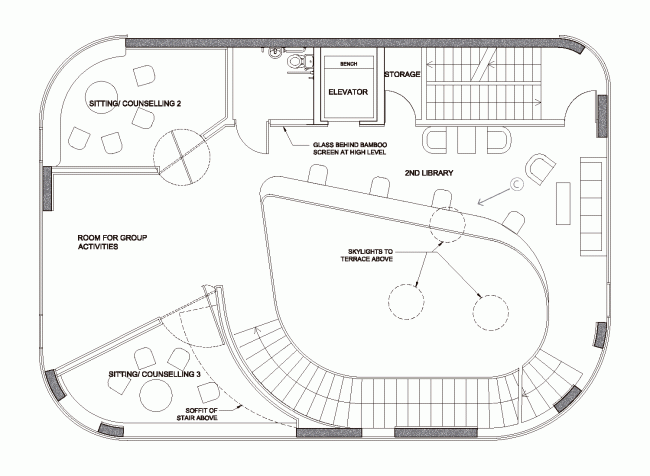
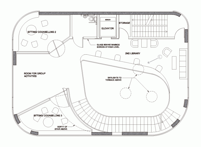
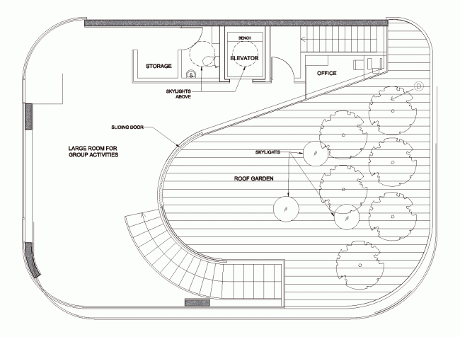
Центр Мэгги расположится на главной площади комплекса, рядом с онкологическим отделением, считающимся одним из самых передовых в Европе. Из-за дефицита площади постройка, в отличие от других, горизонтальных сооружений этой серии – компактный трехэтажный объем. Бетонная несущая конструкция включает в себя центральную спиральную лестницу, интерьер будет отделан бамбуком. На крыше устроят небольшой сад, куда будет выходить просторный зал для занятий йогой и тайцзицюань.
Онкологический центр Мэгги больницы Сент-Бартоломью © Steven Holl Architects
Онкологический центр Мэгги больницы Сент-Бартоломью © Steven Holl Architects

Как и все постройки Холла, проект Центра Мэгги несет в себе разнообразные аллюзии. Цветные вставки на стеклянном фасаде призваны напоминать средневековую систему записи музыки – невменную нотацию, а также то, что слово «невма» происходит от древнегреческого «пневма» – жизненная сила, дыхание жизни. Выведенная на фасад несущая конструкция похожа на кисть руки, а здание в целом – это «сосуд трансцендентности». Такие ассоциации возникли у Стивена Холла, помимо прочего, в связи с историей места: расположенная рядом Большая церковь Сент-Бартоломью, основанная одновременно с больницей – в 1123, тесно связана с историей музыки.
Онкологический центр Мэгги больницы Сент-Бартоломью © Steven Holl Architects
Онкологический центр Мэгги больницы Сент-Бартоломью © Steven Holl Architects

Центры Мэгги открываются при крупнейших больницах Великобритании на средства благотворительного фонда и существуют исключительно на пожертвования. В Сент-Бартоломью каждый год обращаются более 3 000 новых онкологических пациентов в год, поэтому подобное учреждение там более чем необходимо.
Онкологический центр Мэгги больницы Сент-Бартоломью © Elizabeth Hopkirk
Онкологический центр Мэгги больницы Сент-Бартоломью © Elizabeth Hopkirk
Онкологический центр Мэгги больницы Сент-Бартоломью © Elizabeth Hopkirk
Онкологический центр Мэгги больницы Сент-Бартоломью © Elizabeth Hopkirk
Онкологический центр Мэгги больницы Сент-Бартоломью © Elizabeth Hopkirk
Онкологический центр Мэгги больницы Сент-Бартоломью © Elizabeth Hopkirk
Онкологический центр Мэгги больницы Сент-Бартоломью © Steven Holl Architects
Онкологический центр Мэгги больницы Сент-Бартоломью © Steven Holl Architects
Онкологический центр Мэгги больницы Сент-Бартоломью © Steven Holl Architects
Онкологический центр Мэгги больницы Сент-Бартоломью © Steven Holl Architects