Размещено на портале Архи.ру (www.archi.ru)

24.07.2014

Ускользающая монументальность

Екатерина Ровнова
Объект:
Штаб-квартира GL Events
Адрес:
Франция, None, Лион.

В центре Лиона, в районе Лион-Конфлуанс построено здание GL Events, спроектированное Одиль Декк.

Штаб-квартира GL Events © Roland Halbe
Штаб-квартира GL Events © Roland Halbe

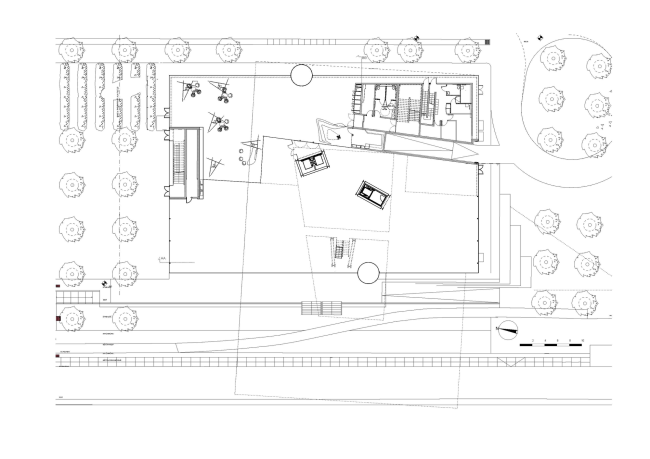
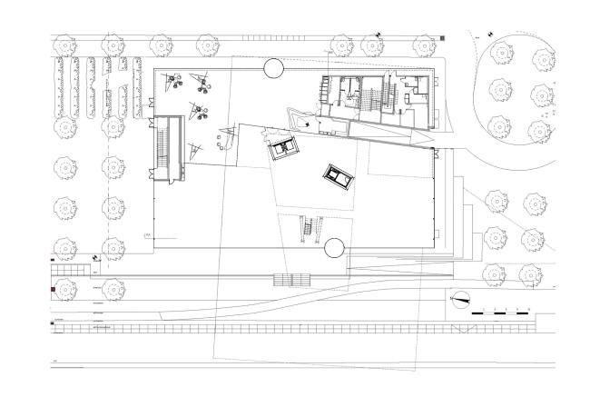
Лион-Конфлуанс, вытянутый полуостров, огибаемый реками Сона и Рона стремительно превращается из промышленного портового района в культурный, жилой и деловой кластер, который в два раза увеличит площадь городского центра, добавив к нему 150 га. Новые и реконструируемые здания возводятся такими авторами, как MVRDV, Массимилиано Фуксас и Coop Himmelb(l)au. Недавно сонм «звездных» зданий пополнился спроектированным студией Одиль Декк зданием штаб-квартиры компании GL Events.
 
Штаб-квартира GL Events © Roland Halbe
Штаб-квартира GL Events © Roland Halbe

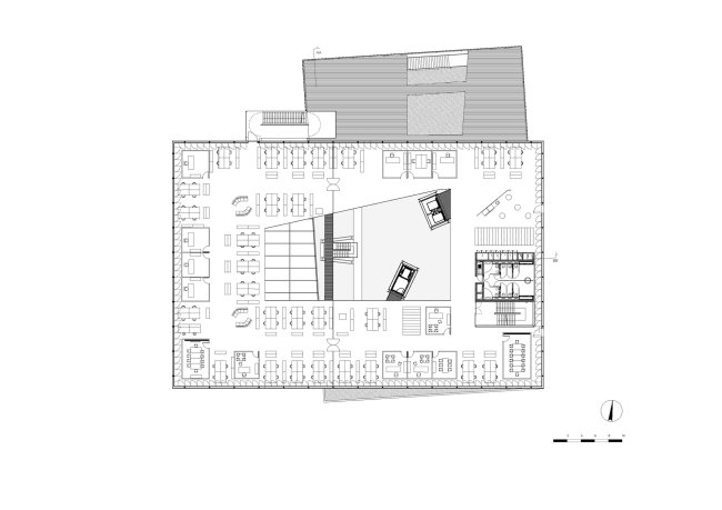
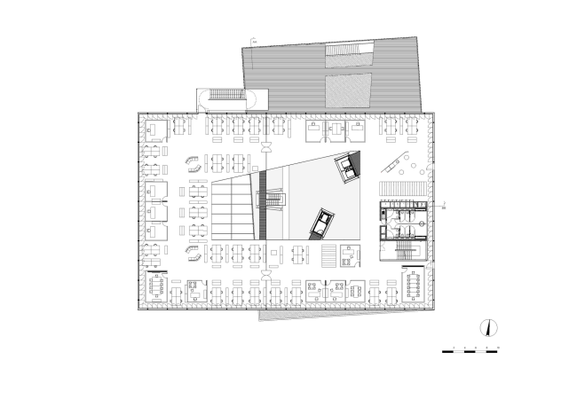
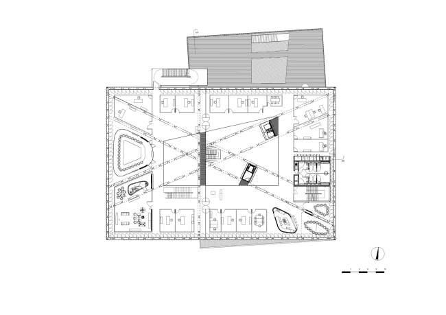
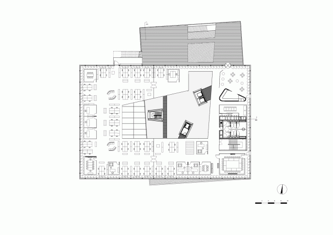
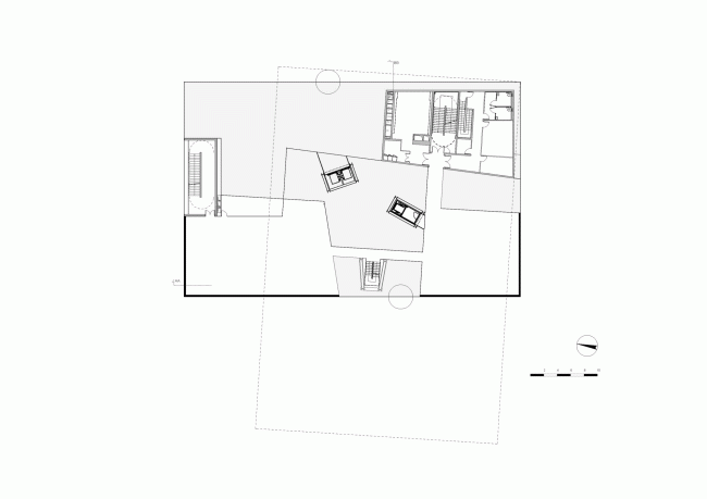
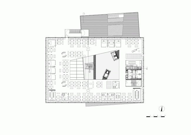
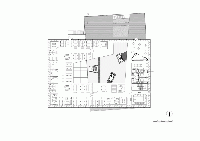
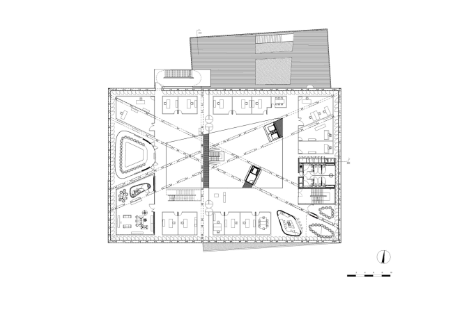
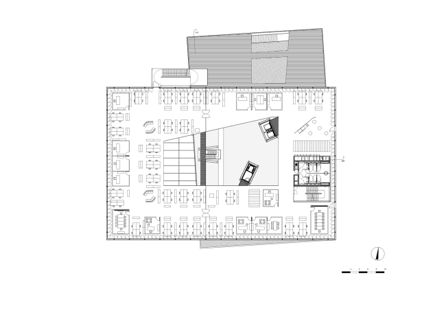
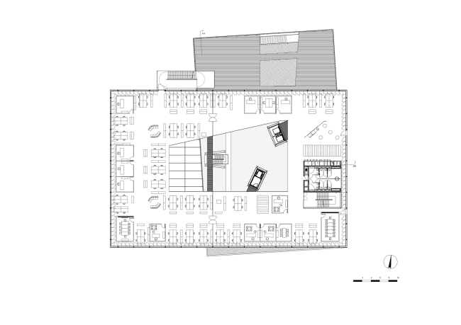
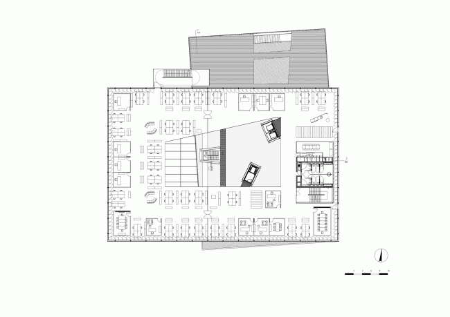
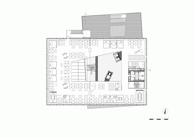
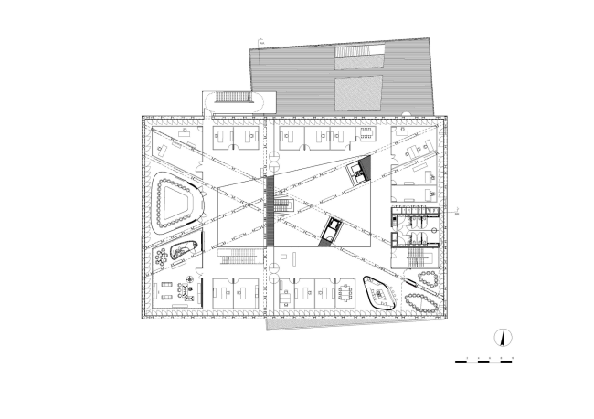
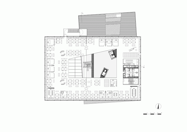
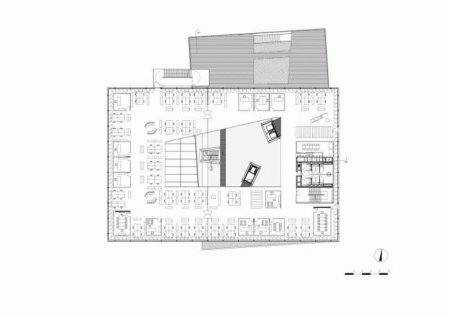
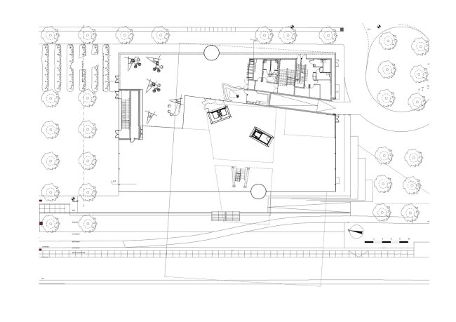
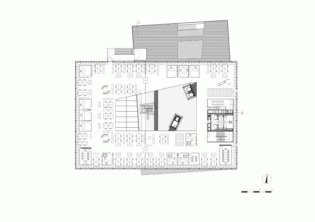
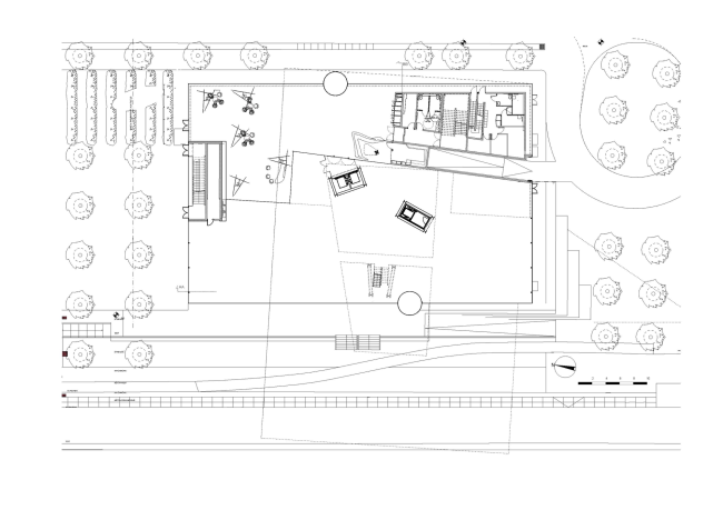
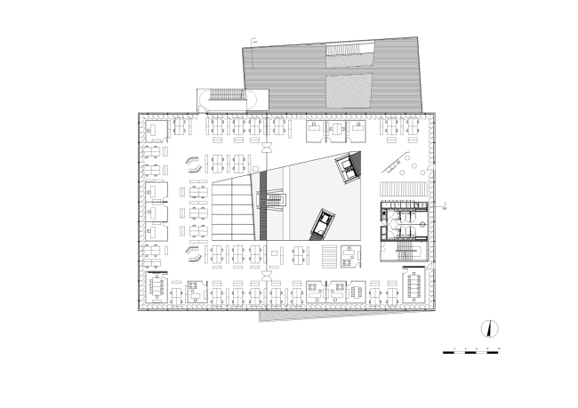
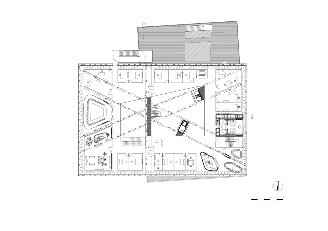
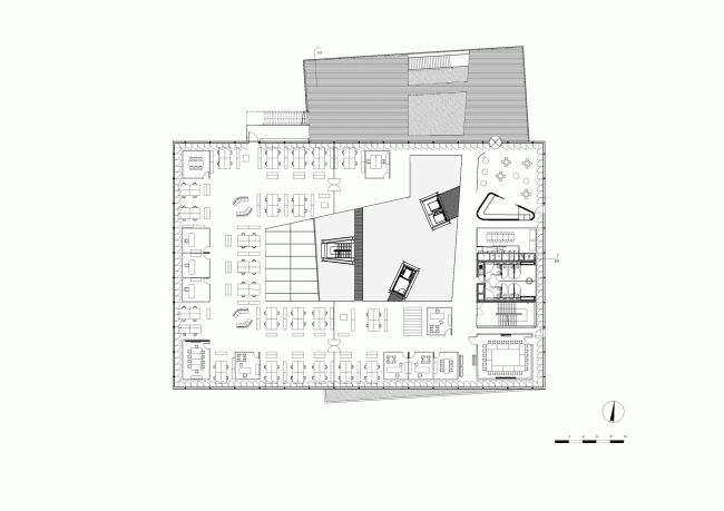
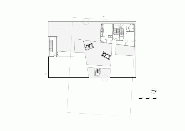
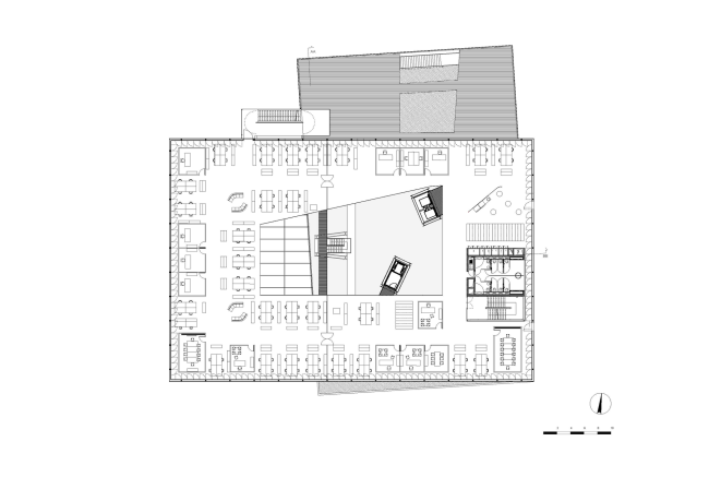
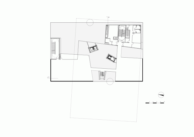
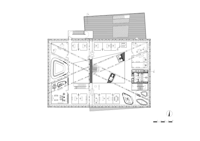
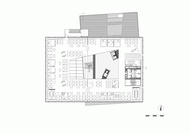
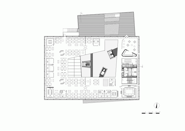
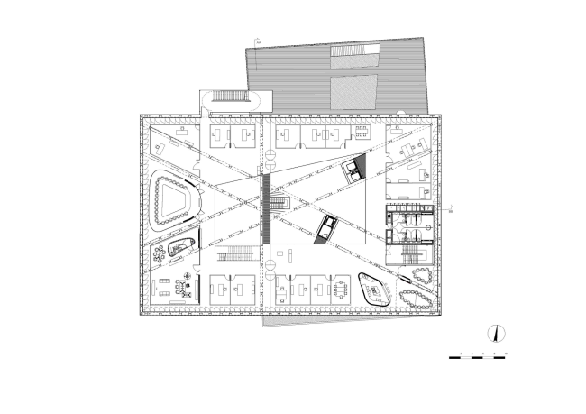
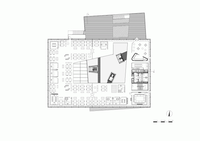
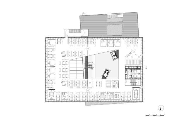
Здание состоит из двух прямоугольных объемов, повернутых друг относительно друга на 86°: верхний блок опирается на две огромные пересекающиеся балки и нависает над нижним объемом, образуя 28-метровую консоль. В верхних, «консольных» четырех этажах расположены офисы, в двух нижних – выставочные пространства, обращенные к воде.
 
Штаб-квартира GL Events © Roland Halbe
Штаб-квартира GL Events © Roland Halbe

На четыре стороны стеклянного фасада нанесены четыре черно-белые фотоработы художника Феличе Варини; на них – та часть пейзажа, которую заслоняет собой новое здание: перспектива реки, уходящая вдаль дорога, мосты, фасады домов, вертикали подъемных кранов. Эти фотографии запечатлели текущий момент, и сейчас сквозь нависающий над землей массивный параллелепипед словно бы виден весь ландшафт. Однако окружающая застройка меняется день ото дня, и фасад, перестав отражать реальность, станет памятью места: прозрачность сменится эхом. Эта же идея подвижности и переменчивости заложена в неортогональном расположении основных объемов. «Мы не хотели, чтобы появилось целиком и полностью статичное здание», – говорит руководитель проекта Петер Баалман (Peter Baalman). – «Когда вы прогуливаетесь по заливу, подъемные краны постоянно движутся – и игра объемов отражает это движение».
 
Штаб-квартира GL Events © Roland Halbe
Штаб-квартира GL Events © Roland Halbe

Высокий стеклянный атриум – композиционный центр здания – поддерживается тремя массивными стальными пилонами, в которых располагаются лестницы и лифты: оттуда расходятся горизонтали «воздушных» этажей-переходов между офисами. Это вертикальное пространство завершается плотной сеткой металлических конструкций огромного масштаба: 5-метровые фермы перекрывают атриум по диагонали и окаймляют периметр, работая в качестве огромной балки прямоугольного сечения, на которую подвешены нижележащие этажи.
 
Штаб-квартира GL Events © Roland Halbe
Штаб-квартира GL Events © Roland Halbe

Реализация проекта была осложнена требованиями пожарной безопасности: согласно регламенту, офисы не должны выходить непосредственно в лестнично-лифтовой узел – в открытое пространство атриума, но архитекторы разработали ряд мер, позволяющих претворить свой замысел в жизнь, в том числе, стеклянные «юбки» на каждом этаже, препятствующие распространению дыма.
 
Штаб-квартира GL Events © Studio Odile Decq
Штаб-квартира GL Events © Studio Odile Decq

За внешней простотой скрывается изощренная начинка: например, в конструкции фасадов воздушный зазор между двойным внутренним остеклением и наружным используется зимой для нагрева поступающего воздуха, а летом огромные черно-белые изображения, нанесенные на внешний слой, помогают избежать ослепляющего эффекта от бликующей поверхности. Этот фотографический слой также играет роль своеобразной вуали: изнутри хорошо видно происходящее снаружи, тогда как взгляд, направленный с улицы, рассеивается.
 
Штаб-квартира GL Events © Roland Halbe
Штаб-квартира GL Events © Roland Halbe

Черный ковер в интерьере оттеняет серебристые стальные конструкции, свет отражается от стеклянных перегородок и прозрачных балюстрад, наполняя собой пространство атриума. И, как водится в работах Одиль Декк, черный цвет дополняется красной мебелью и красным подшивом нависающей над прохожими консоли.
Штаб-квартира GL Events © Studio Odile Decq
Штаб-квартира GL Events © Studio Odile Decq
Штаб-квартира GL Events © Studio Odile Decq
Штаб-квартира GL Events © Studio Odile Decq
Штаб-квартира GL Events © Studio Odile Decq
Штаб-квартира GL Events © Studio Odile Decq
Штаб-квартира GL Events © Roland Halbe
Штаб-квартира GL Events © Roland Halbe
Штаб-квартира GL Events © Studio Odile Decq
Штаб-квартира GL Events © Studio Odile Decq
Штаб-квартира GL Events © Studio Odile Decq
Штаб-квартира GL Events © Studio Odile Decq
Штаб-квартира GL Events © Studio Odile Decq
Штаб-квартира GL Events © Studio Odile Decq
Штаб-квартира GL Events © Studio Odile Decq
Штаб-квартира GL Events © Studio Odile Decq
Штаб-квартира GL Events © Studio Odile Decq
Штаб-квартира GL Events © Studio Odile Decq
Штаб-квартира GL Events © Studio Odile Decq
Штаб-квартира GL Events © Studio Odile Decq
Штаб-квартира GL Events © Studio Odile Decq
Штаб-квартира GL Events © Studio Odile Decq
Штаб-квартира GL Events © Studio Odile Decq
Штаб-квартира GL Events © Studio Odile Decq
Штаб-квартира GL Events © Studio Odile Decq
Штаб-квартира GL Events © Studio Odile Decq
Штаб-квартира GL Events © Studio Odile Decq
Штаб-квартира GL Events © Studio Odile Decq
Штаб-квартира GL Events © Studio Odile Decq
Штаб-квартира GL Events © Studio Odile Decq
Штаб-квартира GL Events © Studio Odile Decq
Штаб-квартира GL Events © Studio Odile Decq
Штаб-квартира GL Events © Studio Odile Decq
Штаб-квартира GL Events © Studio Odile Decq
Штаб-квартира GL Events © Studio Odile Decq
Штаб-квартира GL Events © Studio Odile Decq
Штаб-квартира GL Events © Studio Odile Decq
Штаб-квартира GL Events © Studio Odile Decq
Штаб-квартира GL Events © Studio Odile Decq
Штаб-квартира GL Events © Studio Odile Decq
Штаб-квартира GL Events © Studio Odile Decq
Штаб-квартира GL Events © Studio Odile Decq
Штаб-квартира GL Events © Studio Odile Decq
Штаб-квартира GL Events © Studio Odile Decq