Размещено на портале Архи.ру (www.archi.ru)

03.07.2014

Непростая история

Нина Фролова
Объект:
Бизнес-центр Dominion Tower
Адрес:
Россия, Москва. Шарикоподшипниковская улица, дом 5, строение 1
Архитектор:
Заха Хадид

В Москве завершается строительство бизнес-центра Dominion Tower, спроектированного в бюро Захи Хадид.

Бизнес-центр Dominion Tower. Фото © Наталья Коряковская
Бизнес-центр Dominion Tower. Фото © Наталья Коряковская

Этот проект был одним из нескольких, разработанных Хадид для Москвы в середине 2000-х: в их число также входили жилая башня на Живописной улице и выставочный комплекс рядом с Экспоцентром на Краснопресненской набережной. В итоге, ее первой реализацией в России стала в 2011 вилла Capital Hill в Барвихе, а эти проекты, как казалось, должны были пополнить длинный российский ряд нереализованных замыслов западных «звёзд». В том же 2011 отечественный архитектор Dominion Tower Николай Лютомский (АБ «Элис») пояснял в комментарии «Московским новостям», что этот проект, начатый в 2004, столкнулся с серьезным препятствием: из-за своей сложности он оказался дороже ожидаемого заказчиком. Тогда на участке на Шарикоподшипниковской улице можно было видеть лишь котлован.
Бизнес-центр Dominion Tower. Фото © Наталья Коряковская
Бизнес-центр Dominion Tower. Фото © Наталья Коряковская

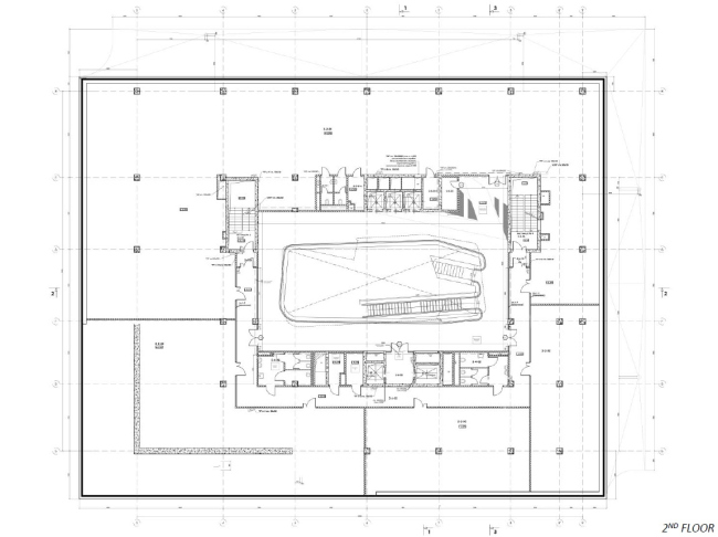
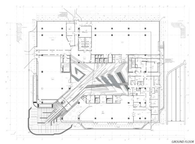
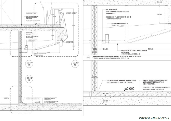
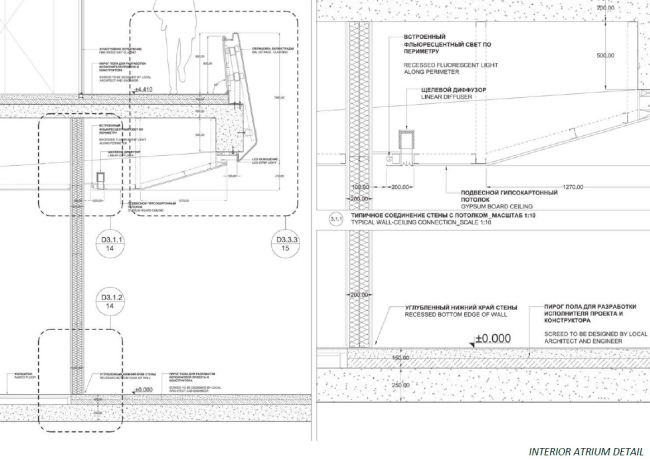
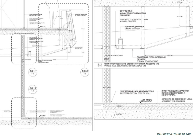
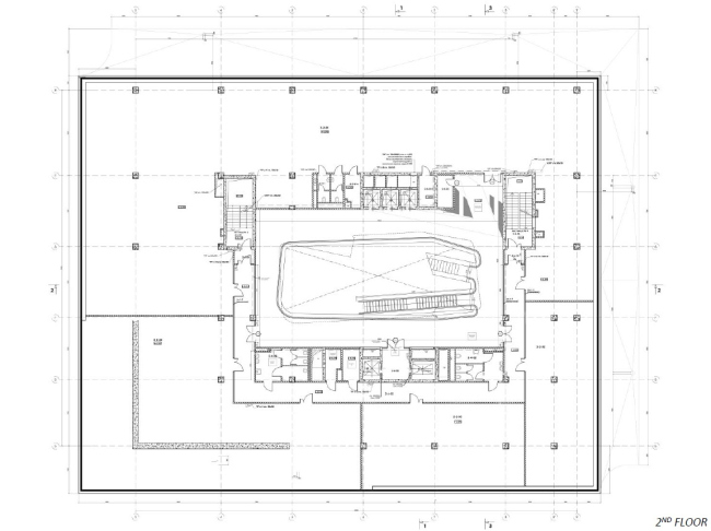
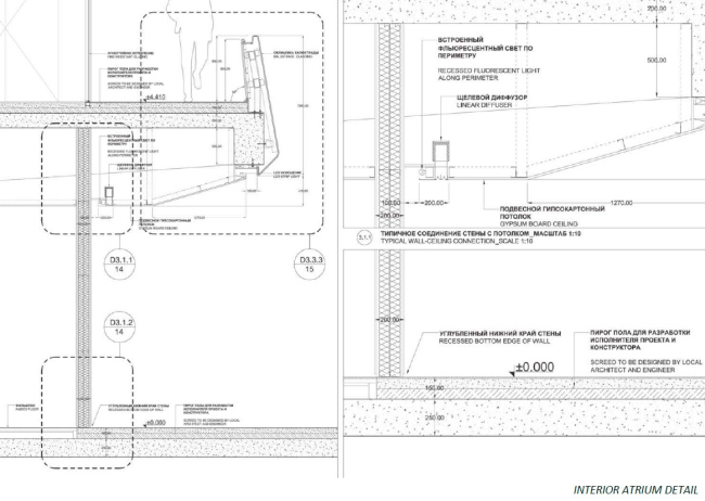
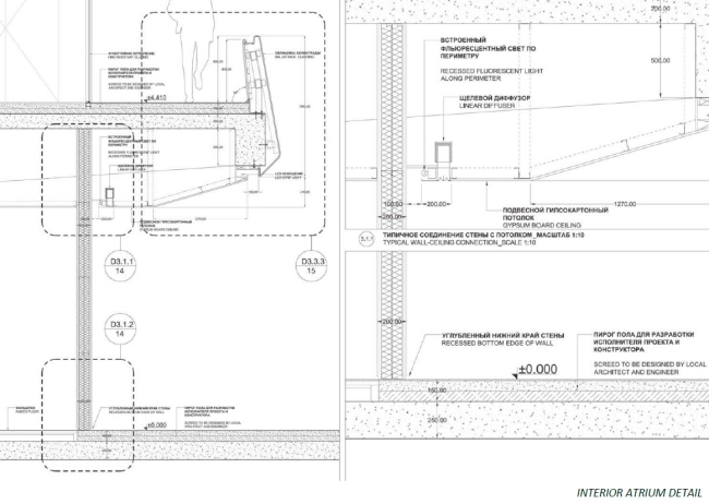
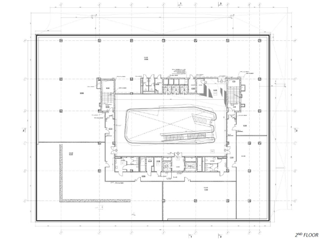
Но затем строительство все же началось, и, согласно новому графику, бизнес-центр будет полностью готов к январю 2015. Как поясняют представители инвестора, компании «Доминион М», здание строилось «под себя»: верхний, 7-й этаж займет их офис. Сторонние арендаторы там тоже будут: для них наценка за бренд «Заха Хадид» составит порядка 20%. При этом стоимость проекта, очевидно, оставалась камнем преткновения во всех аспектах: несмотря на заявленный премиальный класс офисов, там из-за экономии не будет обычного для объекта такого уровня фитнес-центра и подобной инфраструктуры. Эти неудобства для работающих в здании людей, судя по всему, должна компенсировать красота архитектуры: по проекту бюро Zaha Hadid Architects выполнены также и интерьеры – вестибюль и атриум с зигзагом лестниц.
Бизнес-центр Dominion Tower. Фото © Нина Фролова
Бизнес-центр Dominion Tower. Фото © Нина Фролова

По описанию все кажется очень увлекательным: офисное здание по проекту одного из самых знаменитых архитекторов в мире построено пусть не в самом центре Москвы, но во вполне доступном для посещения районе, причем инвесторы планируют превратить прилегающую территорию в городской парк площадью 2 га, то есть будет возможно рассмотреть здание вблизи. Конечно, это не Центр Гейдара Алиева, но тоже вполне неплохо. Но на деле – как нередко бывает с реализуемыми в России зарубежными замыслами – все получилось иначе. Безусловно, с самого начала проект не поражал своей смелостью: он больше напоминал павильон Дэвида Чипперфильда в Валенсии, чем «классическую» Хадид параметрического периода (в 2004 она уже вовсю проектировала текучие формы). Но по мере своего развития он стал совсем скромным: в Москве строятся гораздо более интересные офисные комплексы без всякого участия приглашенных «звезд». Это касается внешнего облика, но и внутри не стоит ждать чудес.  Конечно, пока интерьер готов не до конца, но уже сейчас атриум явно кажется затесенным, и обычного для построек Захи Хадид ощущения перетекающего пространства добиться вряд ли удастся (хотя окончательное суждение оставим до момента сдачи объекта).
Бизнес-центр Dominion Tower
Бизнес-центр Dominion Tower
© Zaha Hadid Architects

Почему так получилось? Прежде всего, не стоило ждать от офисного здания такого же «аттракциона», как от музеев, концертных залов и даже средних школ, которые так удаются Хадид. Ее административное здание завода BMW в Лейпциге нельзя назвать «классическим» офисом, скорее, это имиджевый ход автоконцерна: одна линия конвейера, идущая вдоль столов клерков, чего стоит. А вот башня CMA CGM в Марселе – более реальный пример, она получила лишь вестибюль по проекту Хадид, и то довольно сдержанный: терять площади никто не хочет – ни французы, ни россияне.
Бизнес-центр Dominion Tower
Бизнес-центр Dominion Tower
© Zaha Hadid Architects

Поэтому устройство атриума можно занести московскому заказчику в плюс – хотя бы как попытку создать цельное произведение архитектуры, где внешний облик соответствует интерьеру, и оба были выполнены одной и той же командой проектировщиков. Но повлияла ли высокая по московским меркам стоимость проекта, о которой говорил Николай Лютомский в «Московских новостях» три года назад, на конечный результат – можно лишь предполагать… Конечно, за рубежом тоже прекрасно умеют экономить и бывают неразборчивы в средствах. Там работают специальные фирмы, которые могут подогнать практически любой проект под нужный бюджет: меняются материалы, уменьшаются консольные выносы, оригинальные детали заменяются типовыми, и авторам остается лишь утирать слезы. Другое дело, что с такими проблемами редко сталкиваются крупные архитекторы: ведь их приглашают именно ради оригинальных проектов и ярких решений, и тут срезать углы просто глупо – ведь более скромную (но вполне качественную) постройку может спроектировать и архитектор без «Притцкера», причем за меньший гонорар. А если все же нужно громкое имя, то за него надо платить – и часто очень дорого. Но готов ли заказчик к таким расходам и к такому внимательному отношению к идеям архитектора (пусть и обусловленному прагматическими, «рекламными» мотивами), которые требует работа с мастерами международной «первой десятки» – вопрос иной.
Бизнес-центр Dominion Tower. Ранний вариант проекта
Бизнес-центр Dominion Tower. Ранний вариант проекта
© Zaha Hadid Architects
Бизнес-центр Dominion Tower
Бизнес-центр Dominion Tower
© Zaha Hadid Architects
Бизнес-центр Dominion Tower. Фото предоставлено Archipeople Agency
Бизнес-центр Dominion Tower. Фото предоставлено Archipeople Agency
Бизнес-центр Dominion Tower. Фото предоставлено Archipeople Agency
Бизнес-центр Dominion Tower. Фото предоставлено Archipeople Agency
Бизнес-центр Dominion Tower. Фото © Наталья Коряковская
Бизнес-центр Dominion Tower. Фото © Наталья Коряковская
Бизнес-центр Dominion Tower. Фото © Наталья Коряковская
Бизнес-центр Dominion Tower. Фото © Наталья Коряковская
Бизнес-центр Dominion Tower. Фото предоставлено Archipeople Agency
Бизнес-центр Dominion Tower. Фото предоставлено Archipeople Agency
Бизнес-центр Dominion Tower. Экскурсию по зданию ведет архитектор проекта из бюро Захи Хадид Кристос Пассас (слева). Фото © Наталья Коряковская
Бизнес-центр Dominion Tower. Экскурсию по зданию ведет архитектор проекта из бюро Захи Хадид Кристос Пассас (слева). Фото © Наталья Коряковская
Бизнес-центр Dominion Tower. Экскурсию по зданию ведет архитектор проекта из бюро Захи Хадид Кристос Пассас (в центре). Фото © Наталья Коряковская
Бизнес-центр Dominion Tower. Экскурсию по зданию ведет архитектор проекта из бюро Захи Хадид Кристос Пассас (в центре). Фото © Наталья Коряковская
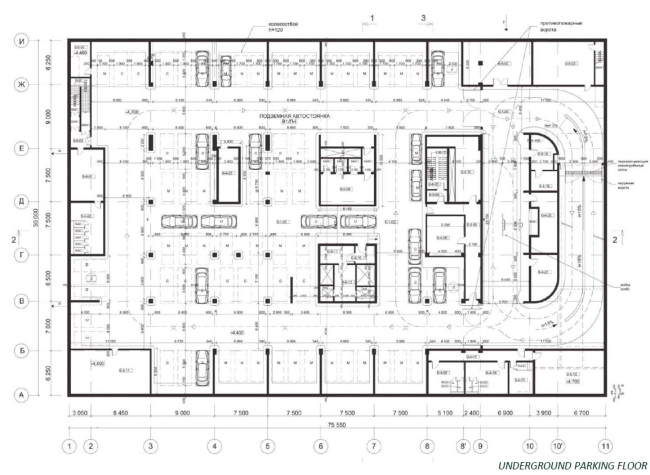
Бизнес-центр Dominion Tower
Бизнес-центр Dominion Tower
© Zaha Hadid Architects
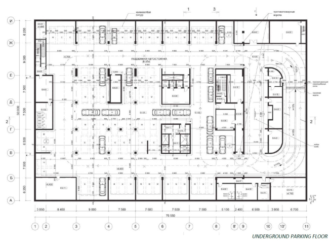
Бизнес-центр Dominion Tower
Бизнес-центр Dominion Tower
© Zaha Hadid Architects
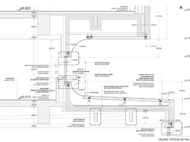
Бизнес-центр Dominion Tower
Бизнес-центр Dominion Tower
© Zaha Hadid Architects
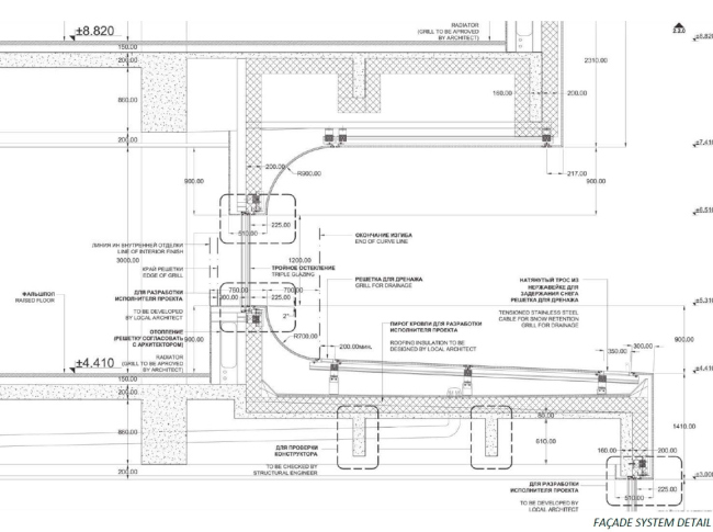
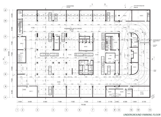
Бизнес-центр Dominion Tower
Бизнес-центр Dominion Tower
© Zaha Hadid Architects
Бизнес-центр Dominion Tower
Бизнес-центр Dominion Tower
© Zaha Hadid Architects
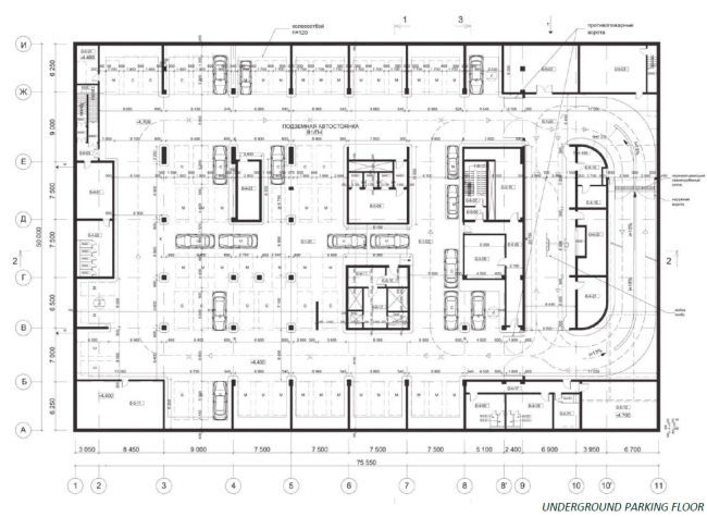
Бизнес-центр Dominion Tower
Бизнес-центр Dominion Tower
© Zaha Hadid Architects
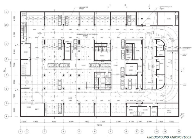
Бизнес-центр Dominion Tower
Бизнес-центр Dominion Tower
© Zaha Hadid Architects
Бизнес-центр Dominion Tower
Бизнес-центр Dominion Tower
© Zaha Hadid Architects
Бизнес-центр Dominion Tower
Бизнес-центр Dominion Tower
© Zaha Hadid Architects
Бизнес-центр Dominion Tower
Бизнес-центр Dominion Tower
© Zaha Hadid Architects
Бизнес-центр Dominion Tower
Бизнес-центр Dominion Tower
© Zaha Hadid Architects
Бизнес-центр Dominion Tower
Бизнес-центр Dominion Tower
© Zaha Hadid Architects
Бизнес-центр Dominion Tower
Бизнес-центр Dominion Tower
© Zaha Hadid Architects
Бизнес-центр Dominion Tower
Бизнес-центр Dominion Tower
© Zaha Hadid Architects
Бизнес-центр Dominion Tower
Бизнес-центр Dominion Tower
© Zaha Hadid Architects
Бизнес-центр Dominion Tower
Бизнес-центр Dominion Tower
© Zaha Hadid Architects
Бизнес-центр Dominion Tower
Бизнес-центр Dominion Tower
© Zaha Hadid Architects
Бизнес-центр Dominion Tower
Бизнес-центр Dominion Tower
© Zaha Hadid Architects
Бизнес-центр Dominion Tower
Бизнес-центр Dominion Tower
© Zaha Hadid Architects
Бизнес-центр Dominion Tower
Бизнес-центр Dominion Tower
© Zaha Hadid Architects
Бизнес-центр Dominion Tower
Бизнес-центр Dominion Tower
© Zaha Hadid Architects
Бизнес-центр Dominion Tower
Бизнес-центр Dominion Tower
© Zaha Hadid Architects
Бизнес-центр Dominion Tower
Бизнес-центр Dominion Tower
© Zaha Hadid Architects
Бизнес-центр Dominion Tower
Бизнес-центр Dominion Tower
© Zaha Hadid Architects
Бизнес-центр Dominion Tower
Бизнес-центр Dominion Tower
© Zaha Hadid Architects
Бизнес-центр Dominion Tower
Бизнес-центр Dominion Tower
© Zaha Hadid Architects
Бизнес-центр Dominion Tower
Бизнес-центр Dominion Tower
© Zaha Hadid Architects
Бизнес-центр Dominion Tower
Бизнес-центр Dominion Tower
© Zaha Hadid Architects