Размещено на портале Архи.ру (www.archi.ru)

30.06.2014

Затерянный мир

Марина Глушатова
Объект:
Концепция реконструкции бассейна «Лужники», архитектурное бюро Асадова
Адрес:
Россия, Москва.
Архитектор:
Андрей Асадов
Александр Асадов
Мастерская:
АБ ASADOV
Авторский коллектив:
Архитекторы: А.Асадов, Н.Асадов, К.Шепета, Т.Лебедева, при участии: А.Р.Асадов, И.Шевченко, А.Гераскина, Ю.Шалетри, П.Белкова
Конструктор: А.Пылев
Инженерия: компания Engex, рук. А.Никифоров, Г.Шевелева

Вариант реконструкции бассейна «Лужники» от бюро Асадова предлагал полностью сохранить старое здание, дополнив его новым объемом с интеллектуальной инженерной начинкой, поддерживающей сложную растительную экосистему – аттракцион «затерянный мир», впрочем, без динозавров.

Концепция реконструкции бассейна «Лужники» © Архитектурное бюро Асадова
Концепция реконструкции бассейна «Лужники» © Архитектурное бюро Асадова

Архитекторы бюро Асадова поместили в контур колоннады 1950-х годов новый объем-параллепипед, расположив его с небольшим сдвигом в сторону Большой спортивной арены: здесь образовался 24-метровый консольный навес с подсветкой, под которым планировалось проводить концерты. «Новый объем мы хотели максимально противопоставить чистоте классического решения, – рассказывают архитекторы. Для его отделки предполагалось использовать стеклофибробетон с фактурой, напоминающей слоистую породу, а также живые мхи. Так что со временем верхний «живой фасад» должен был все больше напоминать замшелую скалистую природную форму». Архитекторы рассматривали разные варианты облицовки верхней части – помимо стеклофибробетона со мхами она могла быть отделана объемными кассетами из стали «кортэн» или стеклопрофилитом (тогда она воспринималась бы как обледенелая  поверхность).
Концепция реконструкции бассейна «Лужники» © Архитектурное бюро Асадова
Концепция реконструкции бассейна «Лужники» © Архитектурное бюро Асадова
Концепция реконструкции бассейна «Лужники» © Архитектурное бюро Асадова
Концепция реконструкции бассейна «Лужники» © Архитектурное бюро Асадова

Тему мха, покрывающего фасады здания, внутри подхватывает влаголюбивая южная растительность, которая присутствует в аква-парке повсюду. Полюбоваться экзотическими пейзажами посетителям был призван помочь главный аттракцион, предложенный архитекторами – гигантская «русская горка», пронизывающая все уровни комплекса от крыши и до нижнего бассейна. 
Концепция реконструкции бассейна «Лужники» © Архитектурное бюро Асадова
Концепция реконструкции бассейна «Лужники» © Архитектурное бюро Асадова

На эксплуатируемой кровле нового объема авторы запланировали полноценный ландшафтный оазис с беговой дорожкой по периметру, кафе, термальными зонами и островками спа (в средней части которого среди живописной растительности разместились ванны с источниками, термальными водами и джакузи). Оформив «оазис» дикими растениями и камнями, авторы назвали его «затерянным миром в центре Москвы». 
Концепция реконструкции бассейна «Лужники» © Архитектурное бюро Асадова
Концепция реконструкции бассейна «Лужники» © Архитектурное бюро Асадова
Концепция реконструкции бассейна «Лужники» © Архитектурное бюро Асадова
Концепция реконструкции бассейна «Лужники» © Архитектурное бюро Асадова
Концепция реконструкции бассейна «Лужники» © Архитектурное бюро Асадова
Концепция реконструкции бассейна «Лужники» © Архитектурное бюро Асадова

Образ «затерянного мира» апеллирует к роману Конан Дойля (обитаемая крыша – рукотворный вариант высокогорного плато), но больше – к одноименному фильму, в котором герои из парка аттракционов попадают в другую вселенную. Любопытно, что сам процесс формирования нового объема напоминает создание приквела: когда «доистория» появляется после свершившейся истории и становится с ней единым целым. Образ органической саморегулирующейся системы подчеркивает энергоэффективная инженерия последнего поколения. В совокупности комплекс устройств, отвечающих за освещенность, влажность и движение воздуха, выступает как высокочувствительная мембрана, способная тонко реагировать на изменения внешней среды и поддерживать  комфортный микроклимат. 
Марина Глушатова 
***
Подробнее о проекте:

Рождение концепции
В отличие от выданного конкурсного задания, предполагавшего частичный снос исторического объема, бюро Асадова предложило максимальное сохранение как внешних, так и внутренних частей здания, включая верхнюю часть трибун. Причем архитекторы утверждают, что даже при таком бескомпромиссном сохранении исторической части весь функционал, прописанный в ТЗ, был бы реализован. 

Однако на втором этапе конкурса, поняв, что сохранить существующий объем все-таки не удастся, авторы предложили вариант со сносом-воссозданием «…по аутентичным технологиям. [Сейчас] колонны наружного периптера сделаны из красивых полукруглых бетонных блоков, в идеале [в случае восстановления] их стоило бы выполнить из тех же материалов по старой  технологии», – комментирует проект Андрей Асадов.
Концепция реконструкции бассейна «Лужники» © Архитектурное бюро Асадова
Концепция реконструкции бассейна «Лужники» © Архитектурное бюро Асадова
Концепция реконструкции бассейна «Лужники» © Архитектурное бюро Асадова
Концепция реконструкции бассейна «Лужники» © Архитектурное бюро Асадова
Концепция реконструкции бассейна «Лужники» © Архитектурное бюро Асадова
Концепция реконструкции бассейна «Лужники» © Архитектурное бюро Асадова
Концепция реконструкции бассейна «Лужники» © Архитектурное бюро Асадова
Концепция реконструкции бассейна «Лужники» © Архитектурное бюро Асадова

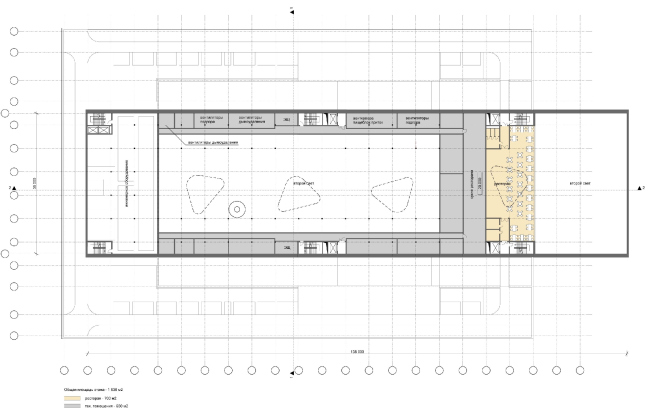
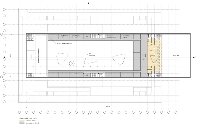
Функциональное зонирование
Многофункциональность, способная привлечь максимум посетителей, должна была стать одной из главных реконструкции. В здании шесть уровней, один ярус подземной парковки. На каждом этаже, предназначенном для  посетителей, расположены кафе и рестораны.

Архитекторы предложили схему разделения потоков посетителей, запланировав для этого два вестибюля на первом этаже. Через южный вход со стороны метро «Воробьевы горы» запланировано движение к помещениям «исторической» части – на второй этаж к двусветному аквапарку (откуда можно попасть и на кровлю), спа-центру и на третий этаж к фитнес-центру. Северный вход со стороны Большой арены направляет посетителей в новую часть комплекса. Четвертый этаж – переходный от исторической части здания к новой, он занят техническими помещениями и офисами администрации. На пятом этаже авторы разместили спортивные бассейны для детей и взрослых и многофункциональные спортзалы; на шестом этаже – ресторан с видом на спортивные залы пятого этажа. 
Концепция реконструкции бассейна «Лужники» © Архитектурное бюро Асадова
Концепция реконструкции бассейна «Лужники» © Архитектурное бюро Асадова
Концепция реконструкции бассейна «Лужники» © Архитектурное бюро Асадова
Концепция реконструкции бассейна «Лужники» © Архитектурное бюро Асадова
Концепция реконструкции бассейна «Лужники» © Архитектурное бюро Асадова
Концепция реконструкции бассейна «Лужники» © Архитектурное бюро Асадова
Концепция реконструкции бассейна «Лужники» © Архитектурное бюро Асадова
Концепция реконструкции бассейна «Лужники» © Архитектурное бюро Асадова
Концепция реконструкции бассейна «Лужники» © Архитектурное бюро Асадова
Концепция реконструкции бассейна «Лужники» © Архитектурное бюро Асадова

Конструктивные и инженерные решения
Как и требовалось, авторы разработали подробные описания конструктивных и инженерных решений, а также материалов для всех основных частей многофункционального комплекса. На стадии проекта планировалось уточнить лишь отдельные моменты (например, определить количество и форму баррет, а также необходимость устройства осадочного деформационного шва между фундаментами блоков и фундаментной плитой).

Главной идеей инженерной концепции, разработанной совместно со специалистами компании Engex, стало создание максимально естественного климата в искусственной среде. Все инженерные системы призваны работать как мембрана, гармонизирующая внешние и внутренние факторы: авторы предложили возвращать в бассейны воду из собранного конденсата; использовать тепло, вырабатывающееся при охлаждении воздуха, для подогрева воды, а также тепло «серой» воды; выполнить световые фонари из пленки ETFE с встроенными фотоэлементами; использовать датчики влажности и освещенности, «вытесняющую вентиляцию» и обдувать стекла витражей теплым сухим воздухом. 
Концепция реконструкции бассейна «Лужники» © Архитектурное бюро Асадова
Концепция реконструкции бассейна «Лужники» © Архитектурное бюро Асадова
Концепция реконструкции бассейна «Лужники» © Архитектурное бюро Асадова
Концепция реконструкции бассейна «Лужники» © Архитектурное бюро Асадова
Концепция реконструкции бассейна «Лужники» © Архитектурное бюро Асадова
Концепция реконструкции бассейна «Лужники» © Архитектурное бюро Асадова
Концепция реконструкции бассейна «Лужники» © Архитектурное бюро Асадова
Концепция реконструкции бассейна «Лужники» © Архитектурное бюро Асадова
Концепция реконструкции бассейна «Лужники» © Архитектурное бюро Асадова
Концепция реконструкции бассейна «Лужники» © Архитектурное бюро Асадова
Концепция реконструкции бассейна «Лужники» © Архитектурное бюро Асадова
Концепция реконструкции бассейна «Лужники» © Архитектурное бюро Асадова
Концепция реконструкции бассейна «Лужники» © Архитектурное бюро Асадова
Концепция реконструкции бассейна «Лужники» © Архитектурное бюро Асадова
Концепция реконструкции бассейна «Лужники» © Архитектурное бюро Асадова
Концепция реконструкции бассейна «Лужники» © Архитектурное бюро Асадова
Концепция реконструкции бассейна «Лужники» © Архитектурное бюро Асадова
Концепция реконструкции бассейна «Лужники» © Архитектурное бюро Асадова
Концепция реконструкции бассейна «Лужники» © Архитектурное бюро Асадова
Концепция реконструкции бассейна «Лужники» © Архитектурное бюро Асадова
Концепция реконструкции бассейна «Лужники» © Архитектурное бюро Асадова
Концепция реконструкции бассейна «Лужники» © Архитектурное бюро Асадова
Концепция реконструкции бассейна «Лужники» © Архитектурное бюро Асадова
Концепция реконструкции бассейна «Лужники» © Архитектурное бюро Асадова
Концепция реконструкции бассейна «Лужники» © Архитектурное бюро Асадова
Концепция реконструкции бассейна «Лужники» © Архитектурное бюро Асадова
Концепция реконструкции бассейна «Лужники» © Архитектурное бюро Асадова
Концепция реконструкции бассейна «Лужники» © Архитектурное бюро Асадова