Размещено на портале Архи.ру (www.archi.ru)

11.06.2014

Текучесть пространства

Нина Фролова
Объект:
Комплекс The Opus
Адрес:
ОАЭ, None, Дубай.

Заха Хадид разработала интерьеры отеля ME Dubai в своем комплексе Opus.

Комплекс Opus. Атриум отеля ME Dubai © Zaha Hadid Architects
Комплекс Opus. Атриум отеля ME Dubai © Zaha Hadid Architects

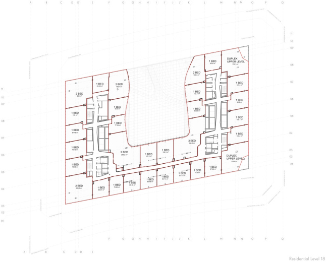
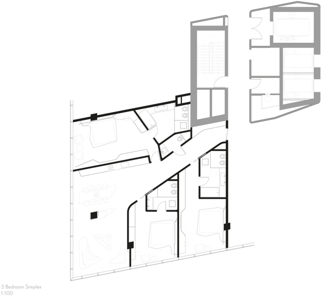
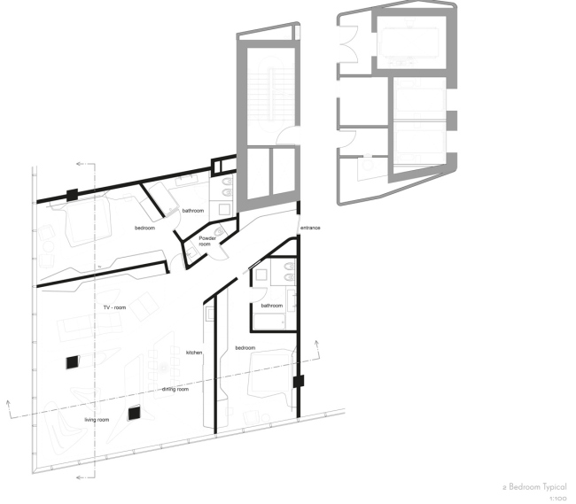
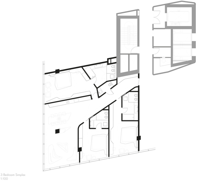
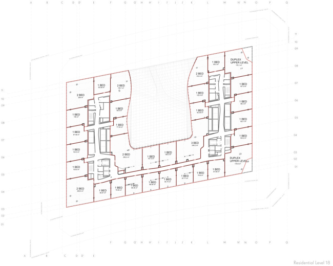
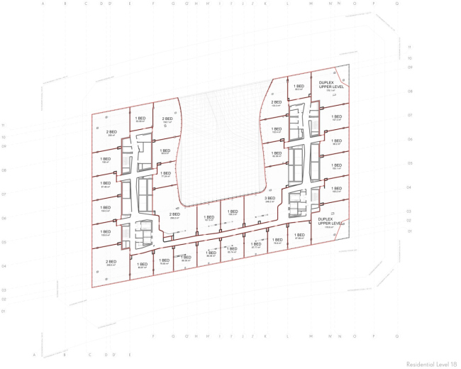
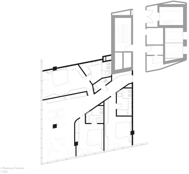
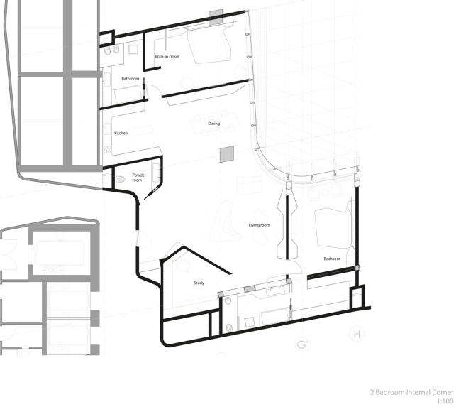
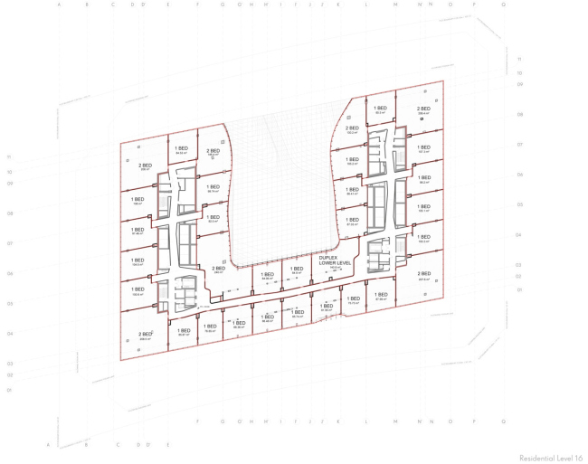
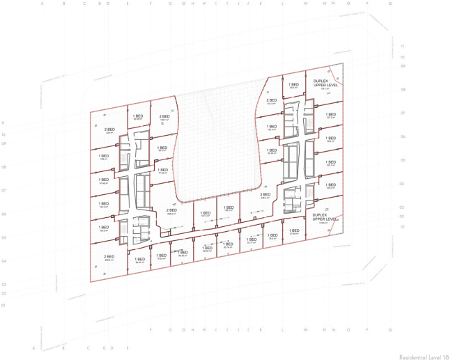
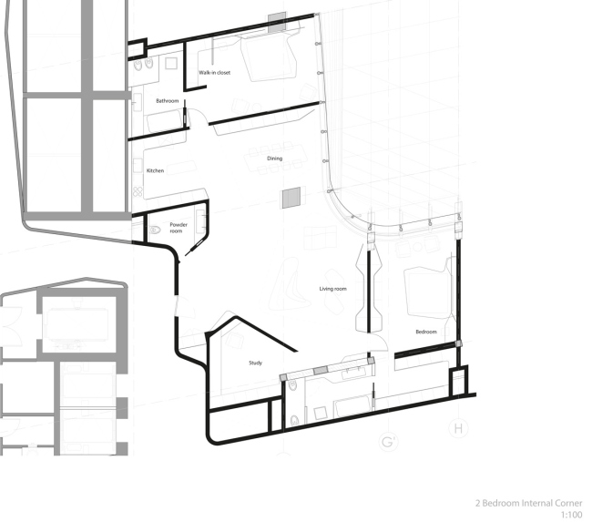
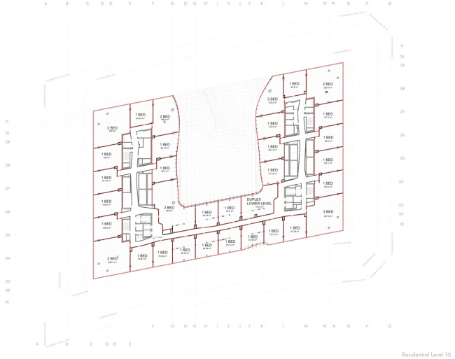
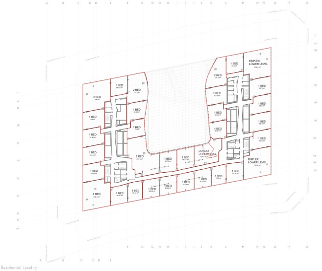
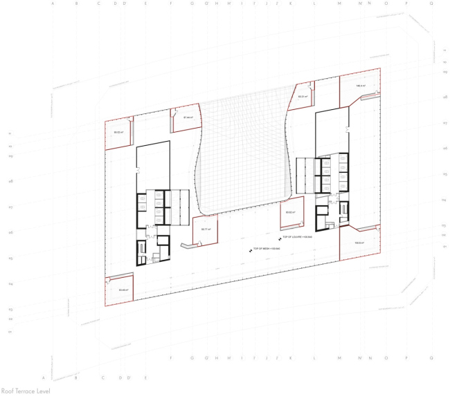
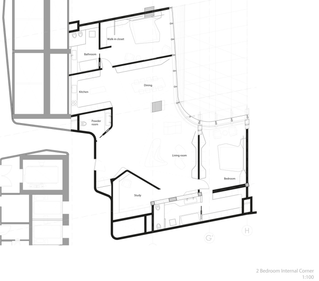
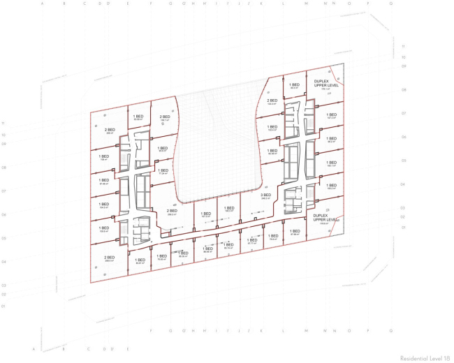
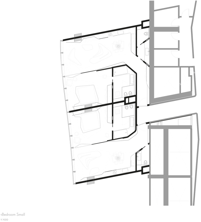
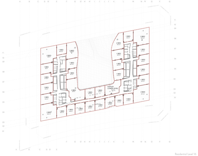
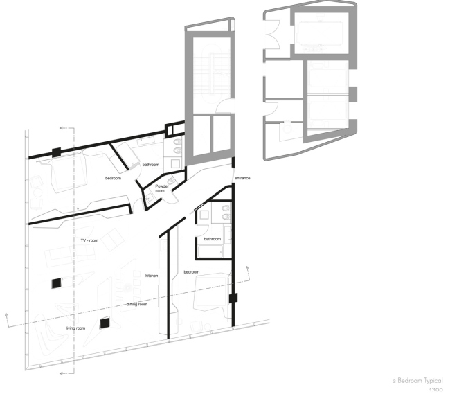
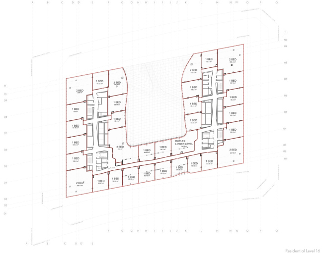
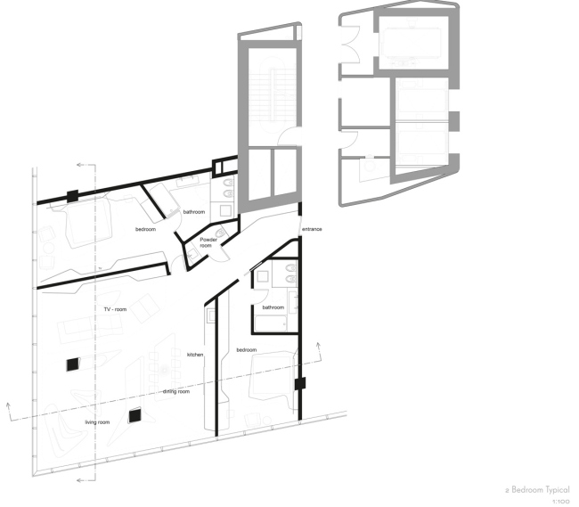
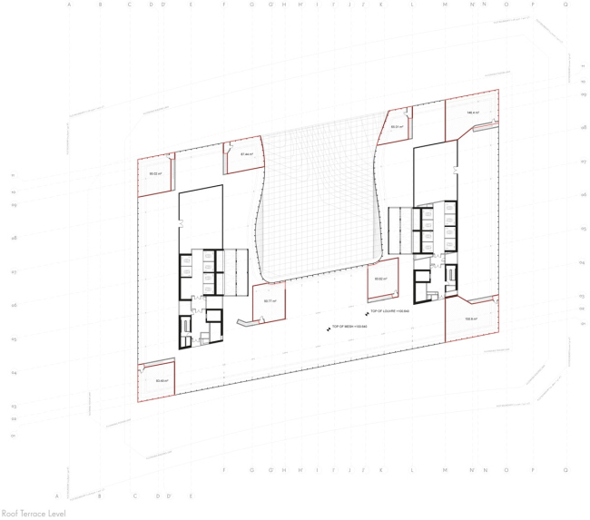
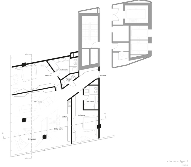
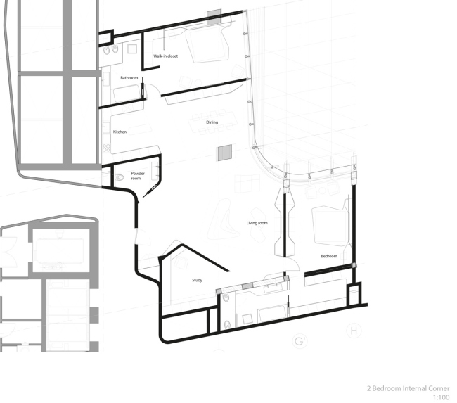
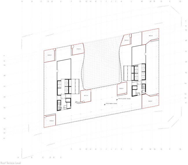
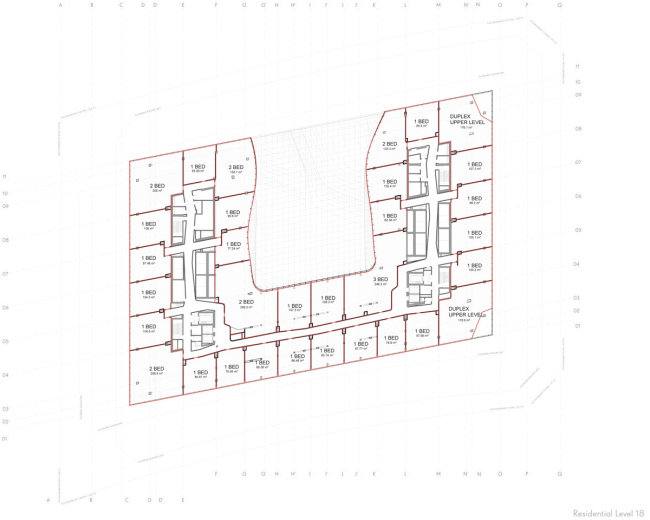
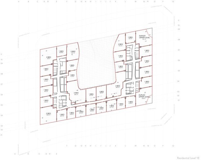
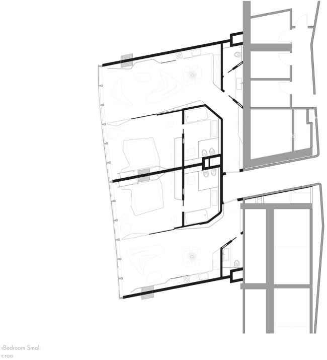
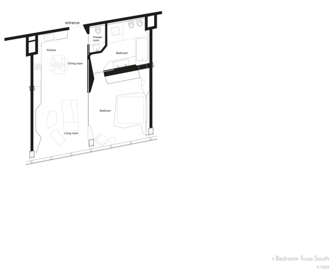
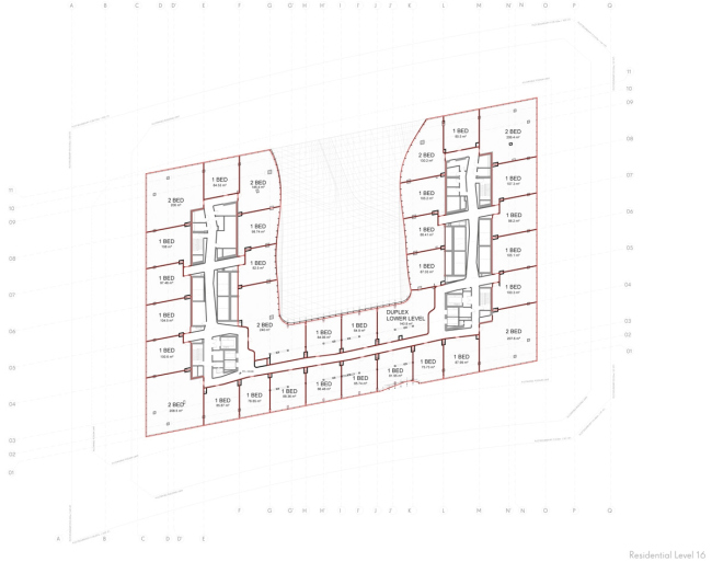
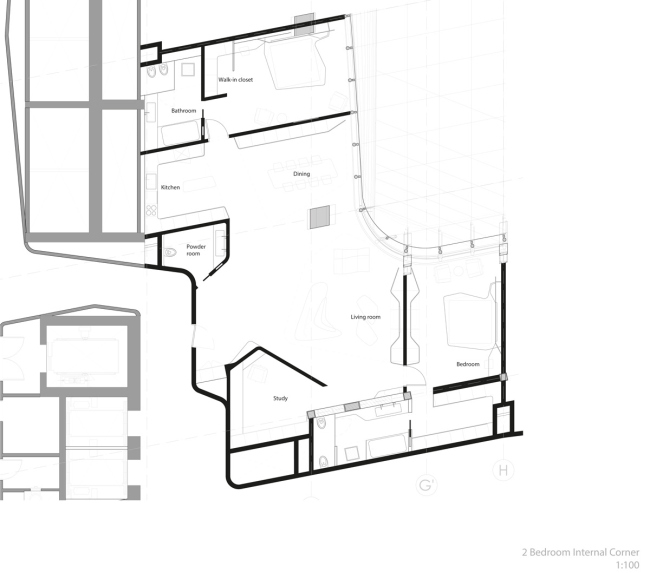
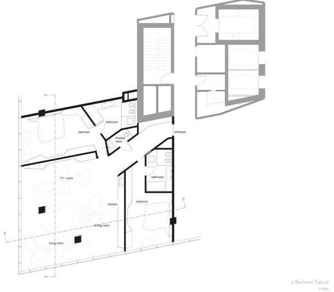
Opus, который планируется подвести под крышу уже этой осенью, изначально планировался как офисное здание, однако с течением времени было решено разместить на его верхних этажах (всего их 23) гостиничные номера ME Dubai и апартаменты. Их интерьеры, а также атриум с вестибюлем, зоной ресепшн, «вертикальным кафе» и салонами разработало бюро Захи Хадид.
 
Комплекс Opus. Атриум отеля ME Dubai © Zaha Hadid Architects
Комплекс Opus. Атриум отеля ME Dubai © Zaha Hadid Architects

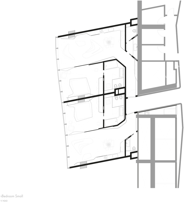
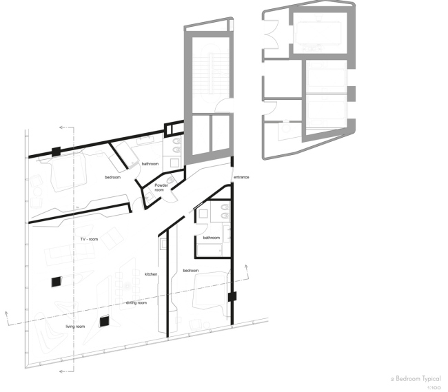
Всего в отеле будет 100 номеров, включая четыре пентхауса, а также фирменный Suite ME. Открыться ME Dubai должен уже в 2016.
 
Комплекс Opus © Zaha Hadid Architects
Комплекс Opus © Zaha Hadid Architects
© Zaha Hadid Architects

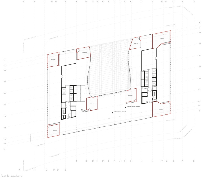
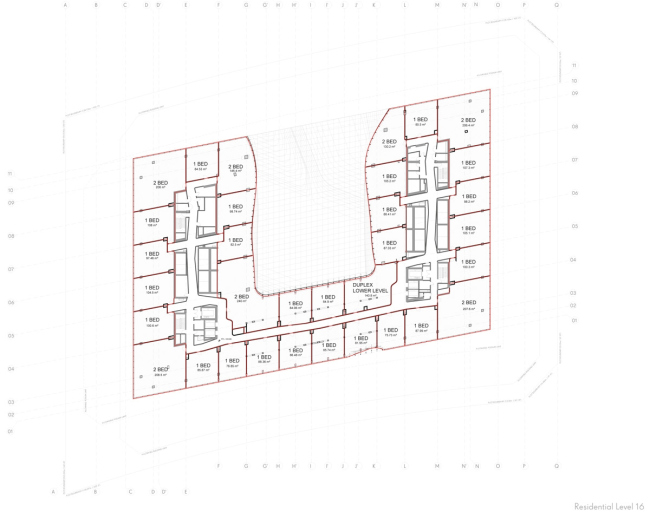
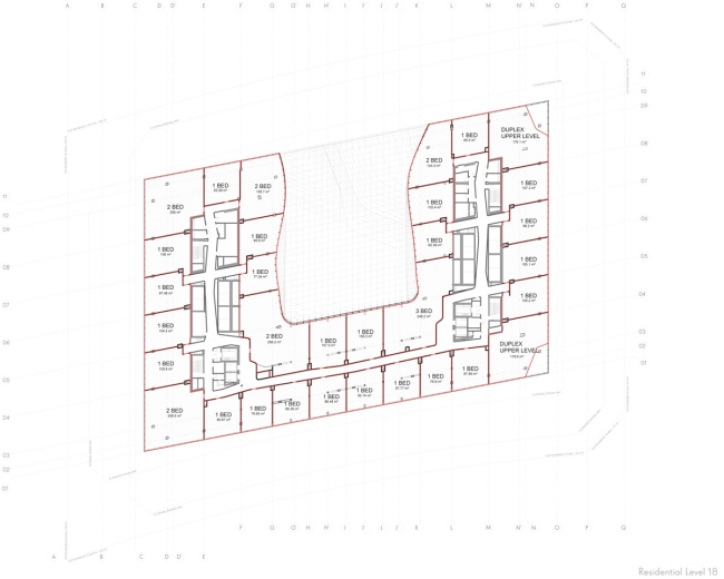
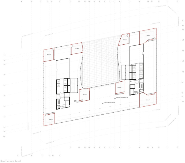
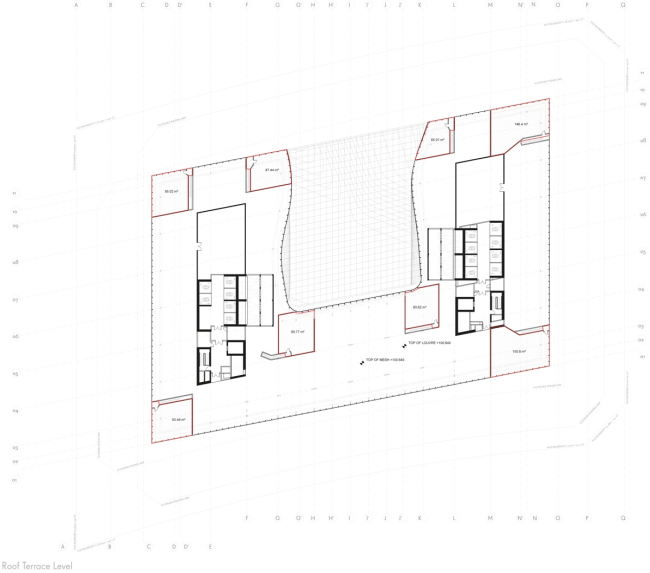
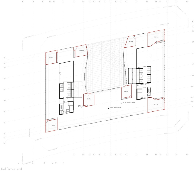
Комплекс Opus Хадид истрактовала как объем с огромной «пустотой» внутри, снабженной медиафасадом. По сути, это соединенные сверху и снизу две башни обтекаемой формы. Наверху, напомним, расположатся отель и апартаменты, а нижние 5 этажей займут магазины и рестораны. Комплекс строится в одном из самых престижных районов Дубая – близ небоскреба-рекордсмена «Бурдж Халифа».
Комплекс Opus © Zaha Hadid Architects
Комплекс Opus © Zaha Hadid Architects
© Zaha Hadid Architects
Комплекс Opus. Атриум отеля ME Dubai © Zaha Hadid Architects
Комплекс Opus. Атриум отеля ME Dubai © Zaha Hadid Architects
Комплекс Opus. Атриум отеля ME Dubai © Zaha Hadid Architects
Комплекс Opus. Атриум отеля ME Dubai © Zaha Hadid Architects
Комплекс Opus. Атриум отеля ME Dubai © Zaha Hadid Architects
Комплекс Opus. Атриум отеля ME Dubai © Zaha Hadid Architects
Комплекс Opus. Атриум отеля ME Dubai © Zaha Hadid Architects
Комплекс Opus. Атриум отеля ME Dubai © Zaha Hadid Architects
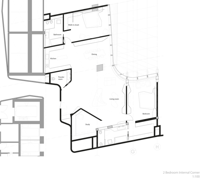
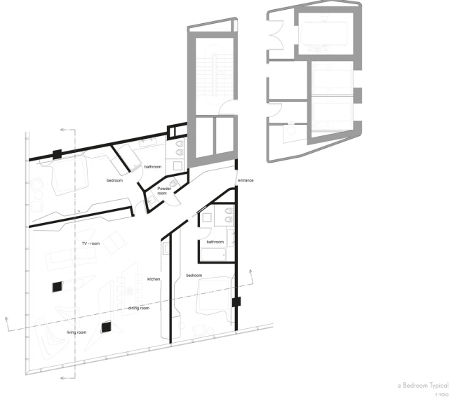
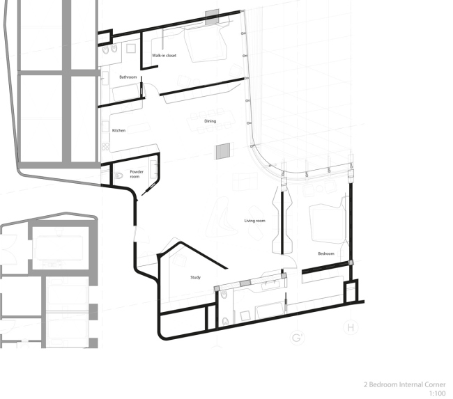
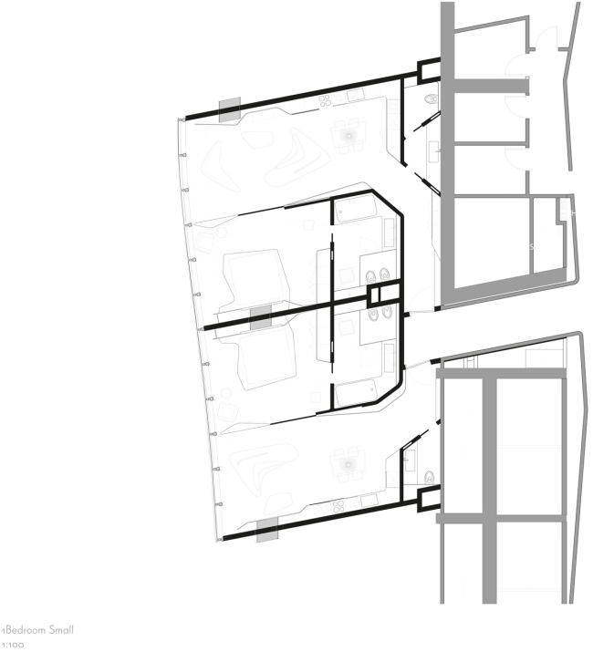
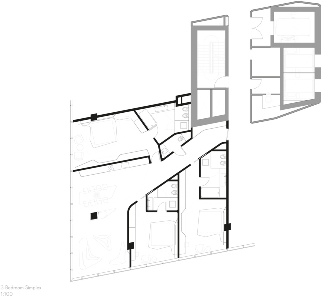
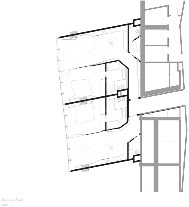
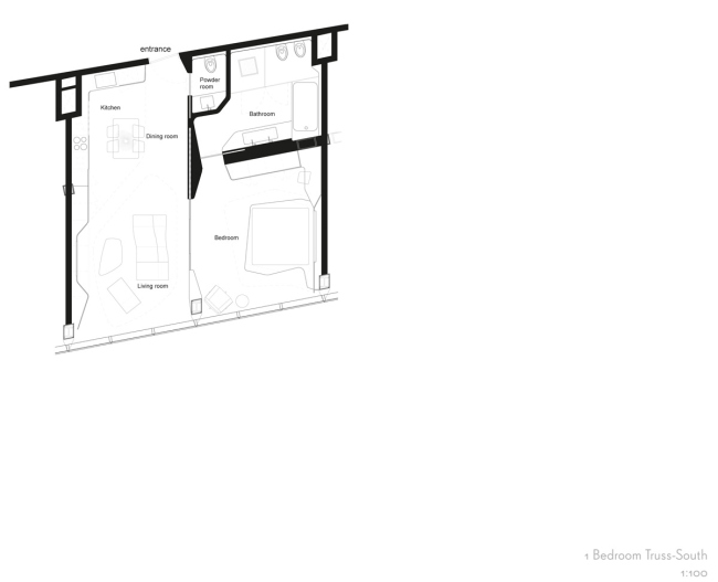
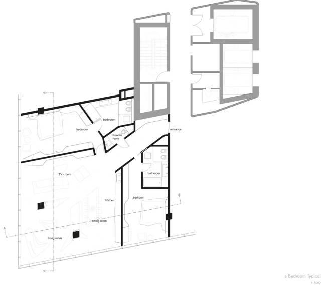
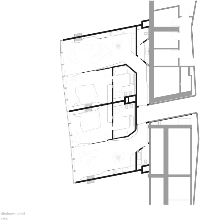
Комплекс Opus. Интерьер отеля ME Dubai © Zaha Hadid Architects
Комплекс Opus. Интерьер отеля ME Dubai © Zaha Hadid Architects
© Zaha Hadid Architects
Комплекс Opus. Интерьер отеля ME Dubai © Zaha Hadid Architects
Комплекс Opus. Интерьер отеля ME Dubai © Zaha Hadid Architects
© Zaha Hadid Architects
Комплекс Opus. Интерьер отеля ME Dubai © Zaha Hadid Architects
Комплекс Opus. Интерьер отеля ME Dubai © Zaha Hadid Architects
© Zaha Hadid Architects
Комплекс Opus. Интерьер отеля ME Dubai © Zaha Hadid Architects
Комплекс Opus. Интерьер отеля ME Dubai © Zaha Hadid Architects
Комплекс Opus. Интерьер отеля ME Dubai © Zaha Hadid Architects
Комплекс Opus. Интерьер отеля ME Dubai © Zaha Hadid Architects
Комплекс Opus. Интерьер отеля ME Dubai © Zaha Hadid Architects
Комплекс Opus. Интерьер отеля ME Dubai © Zaha Hadid Architects
Комплекс Opus. Интерьер отеля ME Dubai © Zaha Hadid Architects
Комплекс Opus. Интерьер отеля ME Dubai © Zaha Hadid Architects
© Zaha Hadid Architects
Комплекс Opus. Интерьер отеля ME Dubai © Zaha Hadid Architects
Комплекс Opus. Интерьер отеля ME Dubai © Zaha Hadid Architects
Комплекс Opus. Интерьер отеля ME Dubai © Zaha Hadid Architects
Комплекс Opus. Интерьер отеля ME Dubai © Zaha Hadid Architects
Комплекс Opus. Интерьер отеля ME Dubai © Zaha Hadid Architects
Комплекс Opus. Интерьер отеля ME Dubai © Zaha Hadid Architects
Комплекс Opus. Интерьер отеля ME Dubai © Zaha Hadid Architects
Комплекс Opus. Интерьер отеля ME Dubai © Zaha Hadid Architects
Комплекс Opus. Интерьер отеля ME Dubai © Zaha Hadid Architects
Комплекс Opus. Интерьер отеля ME Dubai © Zaha Hadid Architects
Комплекс Opus. Интерьер отеля ME Dubai © Zaha Hadid Architects
Комплекс Opus. Интерьер отеля ME Dubai © Zaha Hadid Architects
Комплекс Opus. Интерьер отеля ME Dubai © Zaha Hadid Architects
Комплекс Opus. Интерьер отеля ME Dubai © Zaha Hadid Architects
Комплекс Opus © Zaha Hadid Architects
Комплекс Opus © Zaha Hadid Architects
Комплекс Opus © Zaha Hadid Architects
Комплекс Opus © Zaha Hadid Architects
Комплекс Opus © Zaha Hadid Architects
Комплекс Opus © Zaha Hadid Architects
Комплекс Opus © Zaha Hadid Architects
Комплекс Opus © Zaha Hadid Architects
Комплекс Opus © Zaha Hadid Architects
Комплекс Opus © Zaha Hadid Architects
Комплекс Opus © Zaha Hadid Architects
Комплекс Opus © Zaha Hadid Architects
Комплекс Opus © Zaha Hadid Architects
Комплекс Opus © Zaha Hadid Architects
Комплекс Opus © Zaha Hadid Architects
Комплекс Opus © Zaha Hadid Architects
Комплекс Opus © Zaha Hadid Architects
Комплекс Opus © Zaha Hadid Architects
Комплекс Opus © Zaha Hadid Architects
Комплекс Opus © Zaha Hadid Architects
Комплекс Opus © Zaha Hadid Architects
Комплекс Opus © Zaha Hadid Architects
Комплекс Opus © Zaha Hadid Architects
Комплекс Opus © Zaha Hadid Architects
Комплекс Opus © Zaha Hadid Architects
Комплекс Opus © Zaha Hadid Architects
Комплекс Opus © Zaha Hadid Architects
Комплекс Opus © Zaha Hadid Architects