Размещено на портале Архи.ру (www.archi.ru)

30.05.2014

Русское: дачное и прочее

Настя Маврина
Мастерская:
Enota
Megabudka
MEL
А-Б (Арт-Бля)
АМ "ТАФ"
Архитектурная мастерская Алексея Козыря
Архитектурная мастерская Тотана Кузембаева
Мосин и Партнёры
Проектная группа Поле-Дизайн

Представляем работы победителя и одиннадцати других участников конкурса «Русский характер». Победило бюро Megabudka, среди фаворитов жюри также проекты Тотана Кузембаева и студии MEL.

Победители конкурса «Русский характер», архитекторы бюро Megabudka. Фотография предоставлена организаторами
Победители конкурса «Русский характер», архитекторы бюро Megabudka. Фотография предоставлена организаторами

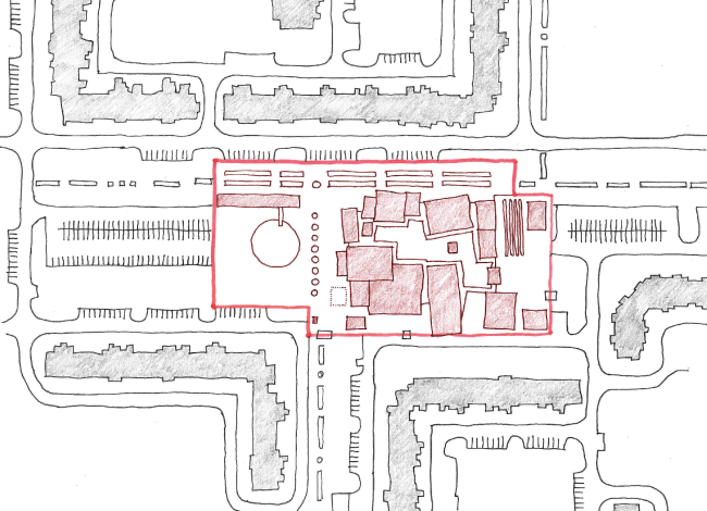
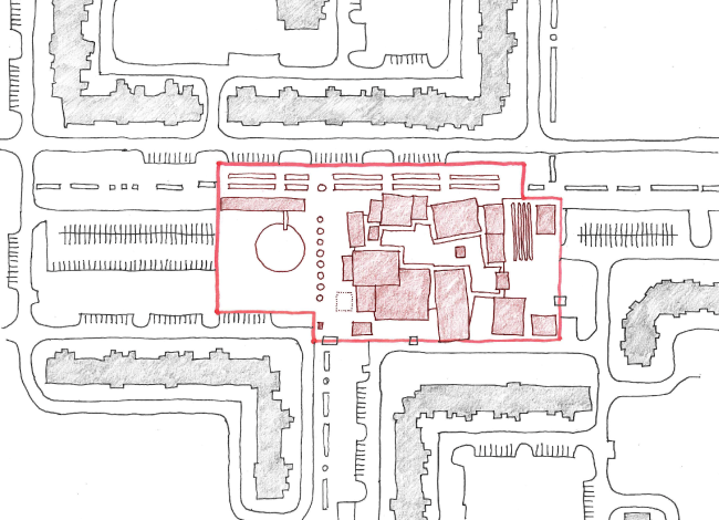
Конкурс на разработку концепции русского культурно-просветительского центра в микрорайоне «Бутово-Парк» стартовал в феврале 2014 года. В конце марта стал известен состав шорт-листа состязания: в него попали 15 бюро из России, Словении, Финляндии, Испании и Швейцарии, но только 12 из них дошли до финиша.
Куратор конкурса «Русский характер» архитектор Илья Мукосей. Фотография предоставлена организаторами
Куратор конкурса «Русский характер» архитектор Илья Мукосей. Фотография предоставлена организаторами

На пресс-конференции 29 мая был объявлен победитель конкурса. Им стало бюро Megabudka, проект которого «Дача во дворе» жюри практически единодушно признало лучшим (шесть из восьми членов жюри отдали ему первое место). Представитель заказчика конкурса, президент ГК «Мортон» Александр Ручьев на пресс-конференции сообщил, что компания планирует реализовать проект-победитель, оценив стоимость его воплощения в 180 млн. рублей. Он также сообщил, что две другие концепции, понравившиеся многим членам жюри, – проект мастерской Тотана Кузембаева и студии MEL, – будут «предложены для реализации в регионах России». Таким образом эти два проекта также вошли в число фаворитов жюри. 

Победителем народного голосования, проведенного в Интернете и на стенде в рамках выставки «АРХ Москва 2014», стал проект тандема-бюро ENOTA+Arhimetrics из Словении. Представляем работы победителя конкурса и других участников шорт-листа архитектурного соревнования. Организатор конкурса – ГК «Мортон», куратор – архитектор Илья Мукосей, координация – агентство «Правила Общения».

Победитель конкурса
Megabudka/ 
Дача во дворе
Бюро Megabudka – победитель конкурса «Русский характер». Дача во дворе. /Заказчик конкурса – ГК Мортон, орагнизатор – агентство «Правила Общения»/. Иллюстрация предоставлена организаторами конкурса.
Бюро Megabudka – победитель конкурса «Русский характер». Дача во дворе. /Заказчик конкурса – ГК Мортон, орагнизатор – агентство «Правила Общения»/. Иллюстрация предоставлена организаторами конкурса.

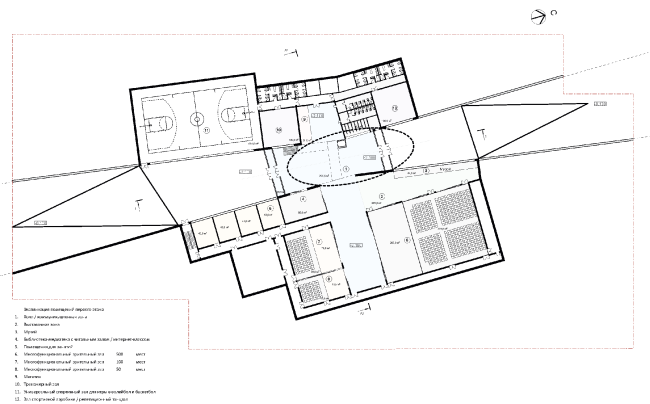
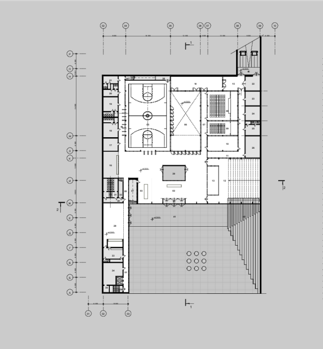
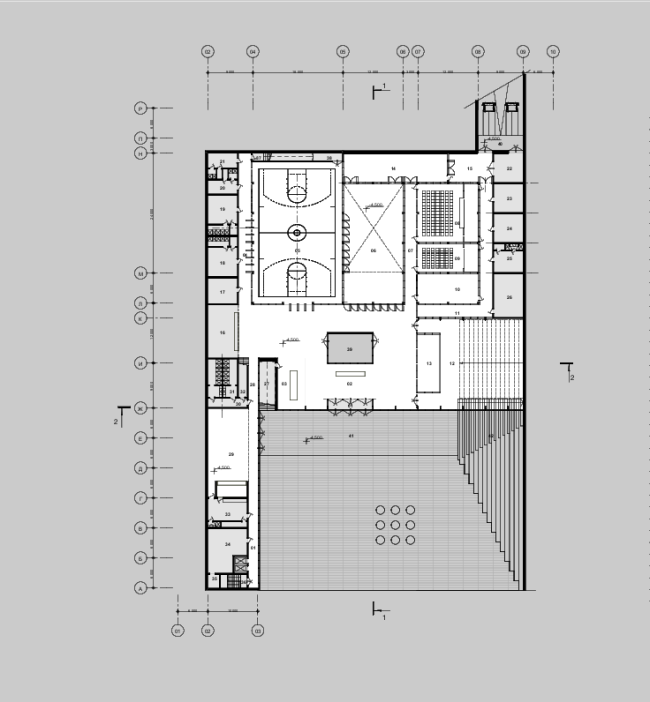
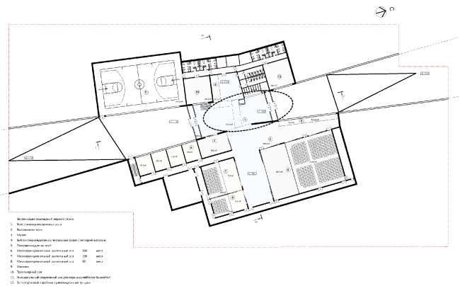
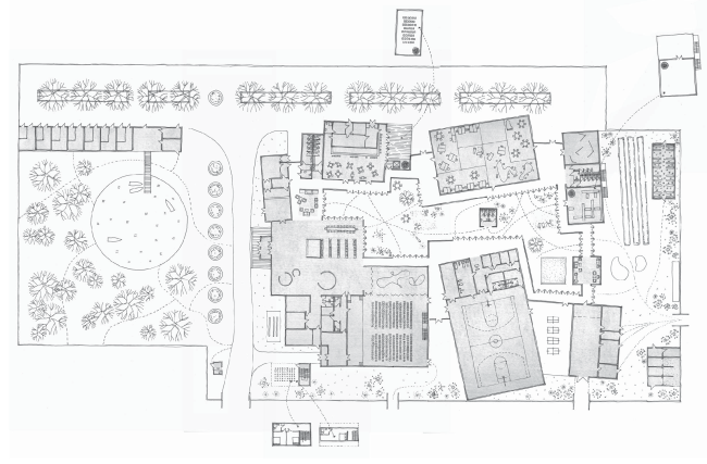
По мнению авторов проекта, русский характер наиболее ярко выражен в таком сугубо национальном понятии, как дача (аналога этого слова нет в других языках, перевести его можно исключительно как «dacha»). При этом, ритм жизни мегаполиса и многочасовые пробки делают заветные поездки на дачу все менее доступными для жителей столицы. Поэтому логичным решением проблемы стало перенесение всех традиционных дачных объектов и функций на территорию культурного центра в один из районов Москвы.

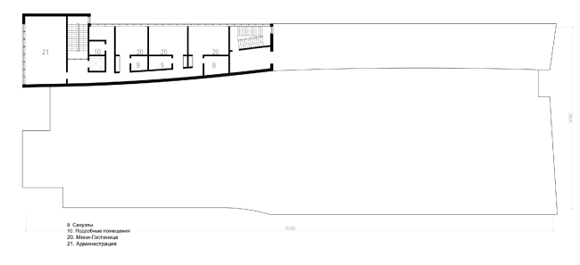
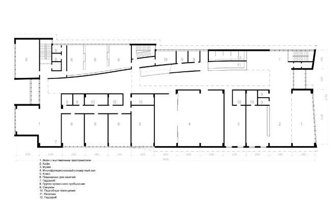
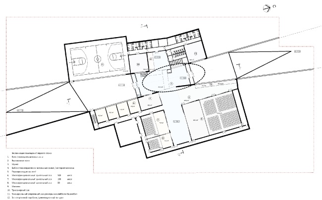
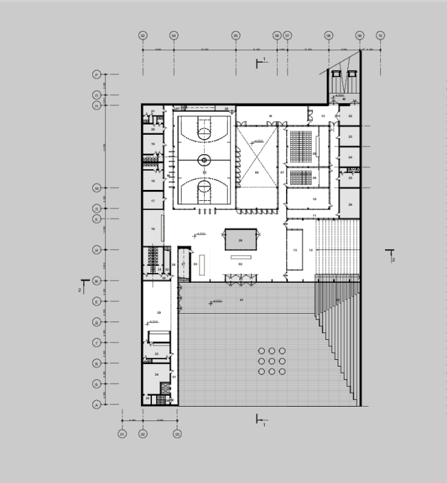
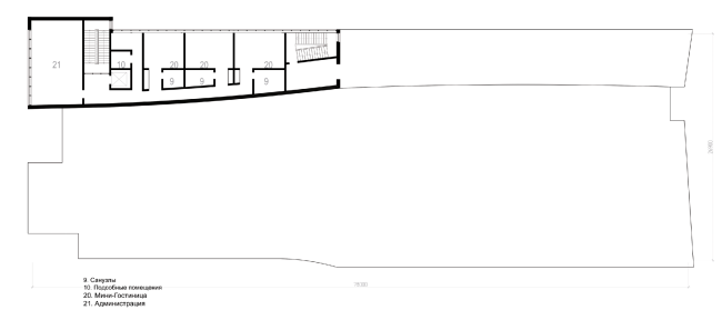
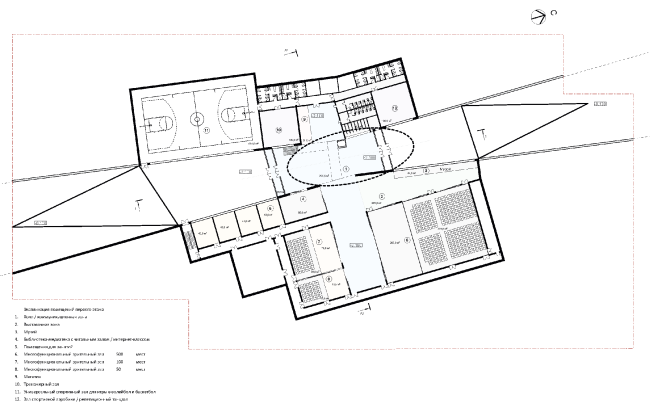
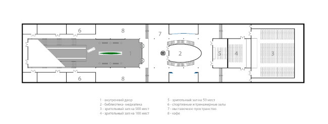
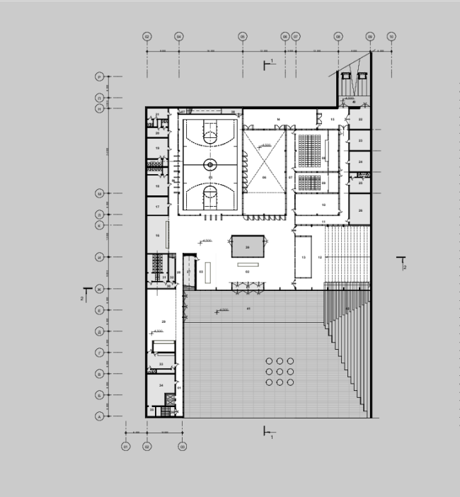
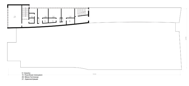
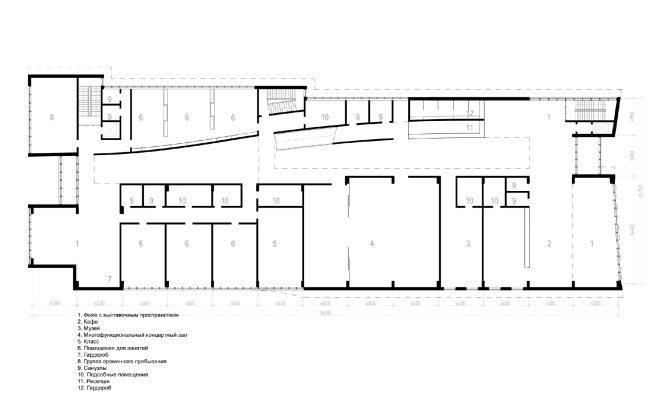
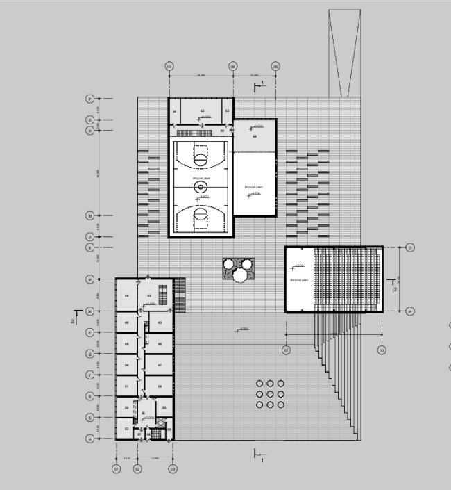
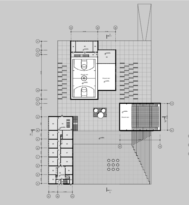
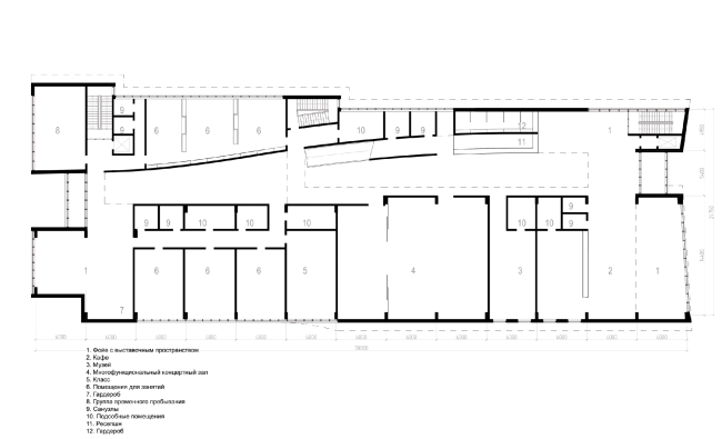
Итак, «дачный участок», то есть, территория комплекса, состоит из нескольких зон и модульных объектов, каждому из которых присуща своя определенная функция. Как и любой другой загородный участок, комплекс окружен забором, на котором можно писать признания в любви или умные мысли. Надписи можно будет регулярно обновлять – раз в месяц забор будут полностью перекрашивать. Пройдя через регулярную аллею, посетитель попадает непосредственно на дачную территорию с яблоневым садом, «палисадником» (зоной с охраной, клумбами и лавочками) и «сараем» – блоком с ячейками для хранения и пунктами аренды велосипедов и роликов.

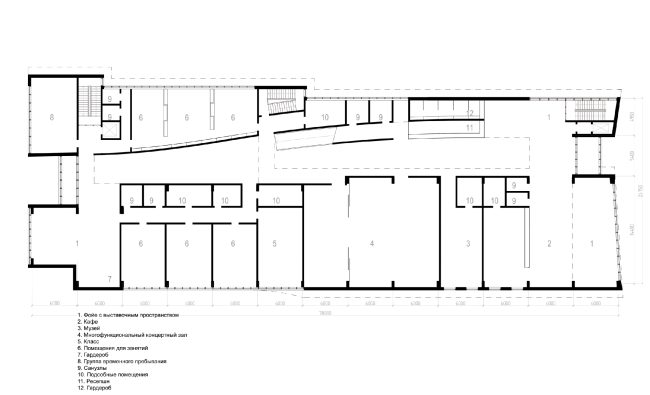
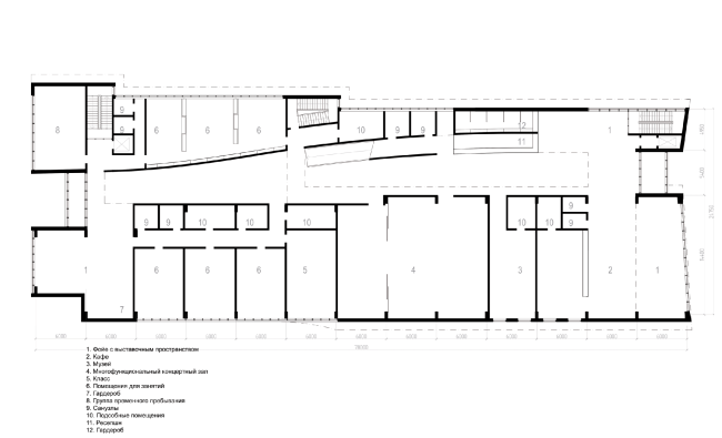
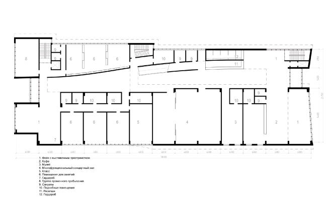
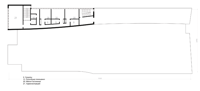
Все остальные дачные объекты, стоят друг к другу очень близко, а то и вовсе соединяются в одну постройку. Таким образом, комплекс представляет собой единое здание с выступающими объемами, в которых расположены различные «дачные» функциональные зоны. Так, в «главном доме» и «веранде» находятся большой и малый зрительные залы соответственно, а на «чердаке» имеется еще и камерный зал на 50 человек. Есть также «погреб» с магазинами и сувенирной лавкой, «летняя кухня» с буфетом и безалкогольным баром, «баня» – небольшой спортивный комплекс и СПА-центр, «пасека» – место для спокойных творческих занятий и «гараж» – зона «громких» мастерских с репетиционными залами и даже эстакадой для любителей повозиться со своим автомобилем.

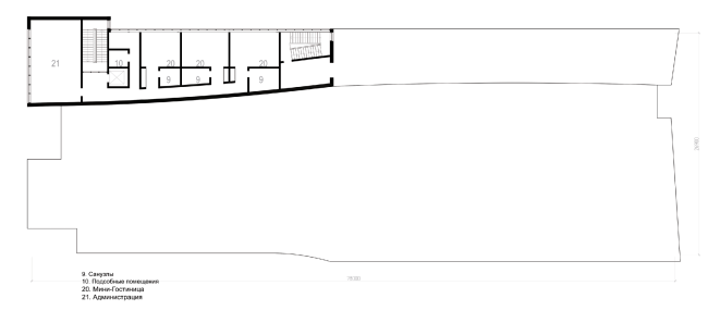
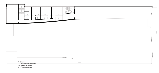
Во дворе расположены «домик на дереве» с мини-гостиницей на 3 номера, парник, беседка, песочница и конечно же уличный туалет как обязательный атрибут любого участка.
Бюро Megabudka – победитель конкурса «Русский характер». Дача во дворе. Иллюстрация предоставлена организаторами конкурса.
Бюро Megabudka – победитель конкурса «Русский характер». Дача во дворе. Иллюстрация предоставлена организаторами конкурса.

Жюри о победившем проекте
Сергей Кузнецов назвал «приятным бонусом» возможность наращивания элементов и способность проекта бюро Megabudka к трансформации. Александр Скокан отметил гибкость структуры проекта. По мнению историка Феликса Разумовского, данное предложение – вообще единственное, отвечающее заявленной в конкурсе цели создать русский образ XXI века. Евгений Асс предложил изменить название «дача» на «русская деревня», также похвалив возможность разнообразных комбинаций и интерпретаций его составных элементов. Александр Асадов охарактеризовал проект как «живучий», «трогательный и человечный», увидев в нем "ощущение исторического слоя данного места, чувство, что на этой земле жило и работало много поколений, чего так не хватает новым микрорайонам". Впрочем Асадов рекомендовал уменьшить число элементов комплекса, одновременно увеличив их габариты. Барт Голдхоорн отнесся к проекту более критично, заметив, что в нем много заборов и обратив внимание заказчика на то, что его будет непросто содержать. 
Работа бюро Megabudka. Дача во дворе. Иллюстрация предоставлена организаторами.
Работа бюро Megabudka. Дача во дворе. Иллюстрация предоставлена организаторами.
Работа бюро Megabudka. Дача во дворе. Иллюстрация предоставлена организаторами.
Работа бюро Megabudka. Дача во дворе. Иллюстрация предоставлена организаторами.
Работа бюро Megabudka. Дача во дворе. Иллюстрация предоставлена организаторами.
Работа бюро Megabudka. Дача во дворе. Иллюстрация предоставлена организаторами.
Работа бюро Megabudka. Дача во дворе. Иллюстрация предоставлена организаторами.
Работа бюро Megabudka. Дача во дворе. Иллюстрация предоставлена организаторами.
Работа бюро Megabudka. Дача во дворе. Иллюстрация предоставлена организаторами.
Работа бюро Megabudka. Дача во дворе. Иллюстрация предоставлена организаторами.
Бюро Megabudka – победитель конкурса «Русский характер». Дача во дворе. Иллюстрация предоставлена организаторами конкурса.
Бюро Megabudka – победитель конкурса «Русский характер». Дача во дворе. Иллюстрация предоставлена организаторами конкурса.
***
 
Фаворит жюри
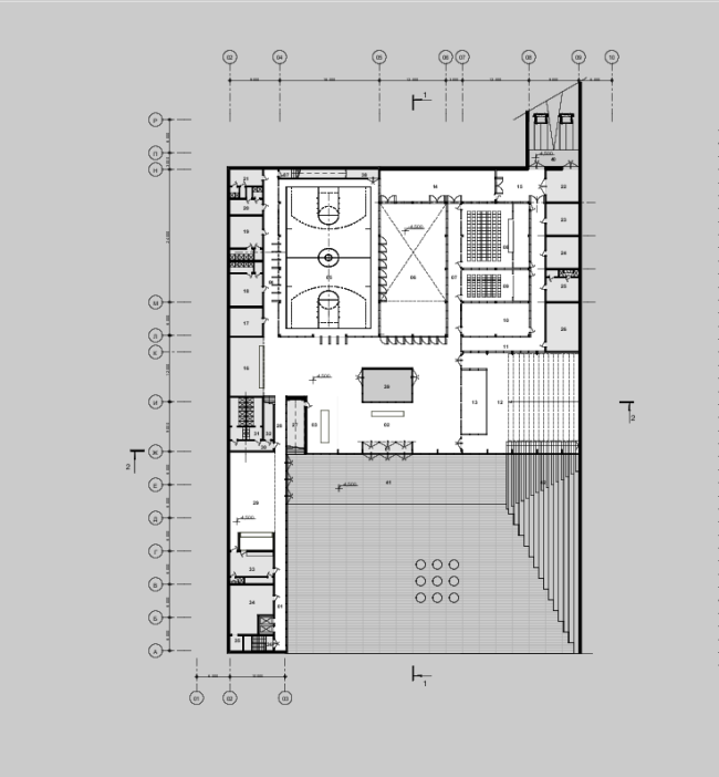
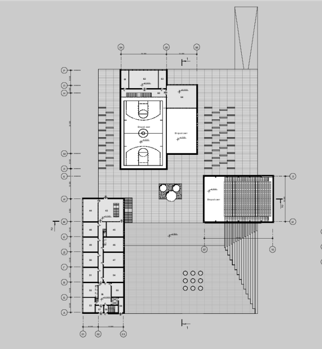
Мастерская Тотана Кузембаева
Работа Мастерской Тотана Кузембаева. Иллюстрация предоставлена организаторами.
Работа Мастерской Тотана Кузембаева. Иллюстрация предоставлена организаторами.

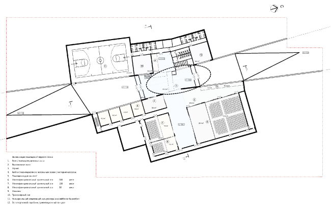
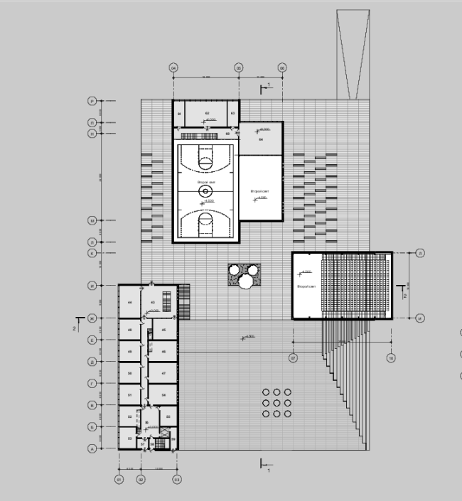
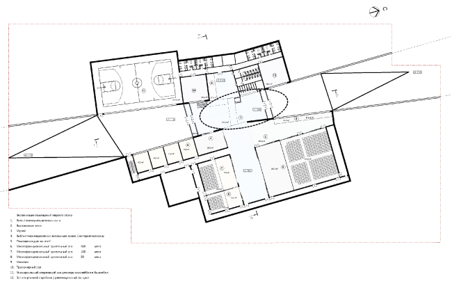
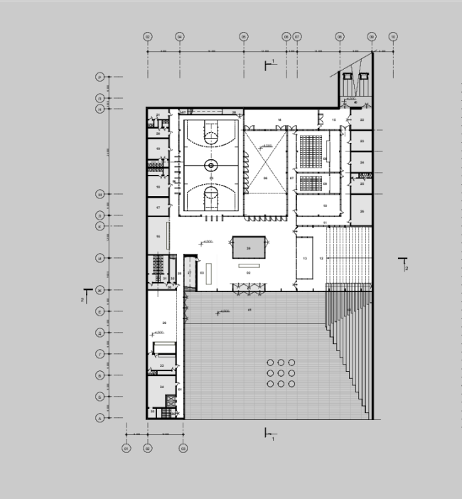
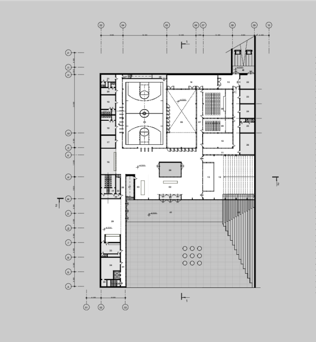
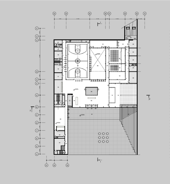
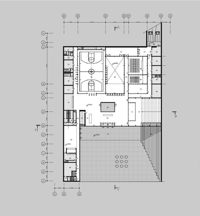
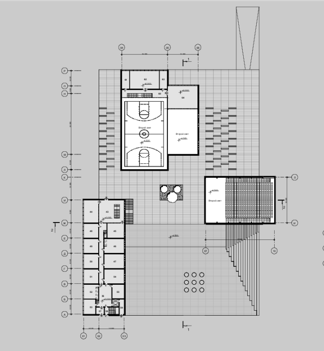
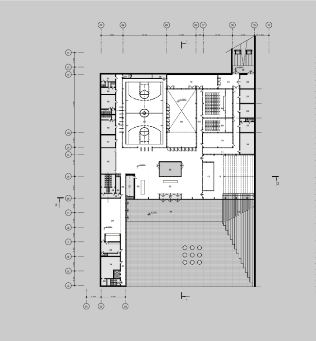
Культурный Центр представляет собой четыре независимых строения: спортивный корпус, корпус с аудиториями для кружков, корпус с различными зрительными залами, и корпус с выставочными залами, медиатекой, буфетом. Все четыре объема объединены на уровне 2-ого этажа стеклянной галереей, образующей круглое пространство в центре. Кроме этого основного и главного общественного пространства, каждый корпус имеет еще отдельные открытые дворы.

В качестве образной составляющей проекта авторы использовали русский авангард 20-х годов, конструктивизм и супрематизм, чего нельзя не заметить глядя на функциональную схему плана комплекса. Другой характерной чертой стало использование идеи «народных промыслов» и «народного творчества», выраженной в проекте следующим образом: каждый житель микрорайона, в котором будет расположен Центр, может принести остатки строительных и отделочных материалов после ремонта своих квартир для отделки фасадов ЦРК и даже принять непосредственно участие в отделке. По словам авторов проекта, должно получиться «пестрое лоскутное одеяло ассоциаций и образов, связанных с русским искусством и архитектурой».
Работа Мастерской Тотана Кузембаева. Иллюстрация предоставлена организаторами.
Работа Мастерской Тотана Кузембаева. Иллюстрация предоставлена организаторами.
Работа Мастерской Тотана Кузембаева. Иллюстрация предоставлена организаторами.
Работа Мастерской Тотана Кузембаева. Иллюстрация предоставлена организаторами.
Работа Мастерской Тотана Кузембаева. Иллюстрация предоставлена организаторами.
Работа Мастерской Тотана Кузембаева. Иллюстрация предоставлена организаторами.
Работа Мастерской Тотана Кузембаева. Иллюстрация предоставлена организаторами.
Работа Мастерской Тотана Кузембаева. Иллюстрация предоставлена организаторами.
Работа Мастерской Тотана Кузембаева. Иллюстрация предоставлена организаторами.
Работа Мастерской Тотана Кузембаева. Иллюстрация предоставлена организаторами.
Работа Мастерской Тотана Кузембаева. Иллюстрация предоставлена организаторами.
Работа Мастерской Тотана Кузембаева. Иллюстрация предоставлена организаторами.
Работа Мастерской Тотана Кузембаева. Иллюстрация предоставлена организаторами.
Работа Мастерской Тотана Кузембаева. Иллюстрация предоставлена организаторами.
Работа Мастерской Тотана Кузембаева. Иллюстрация предоставлена организаторами.
Работа Мастерской Тотана Кузембаева. Иллюстрация предоставлена организаторами.
Работа Мастерской Тотана Кузембаева. Иллюстрация предоставлена организаторами.
Работа Мастерской Тотана Кузембаева. Иллюстрация предоставлена организаторами.
Работа Мастерской Тотана Кузембаева. Иллюстрация предоставлена организаторами.
Работа Мастерской Тотана Кузембаева. Иллюстрация предоставлена организаторами.
Работа Мастерской Тотана Кузембаева.  Иллюстрация предоставлена организаторами.
Работа Мастерской Тотана Кузембаева. Иллюстрация предоставлена организаторами.
***
 
Фаворит жюри
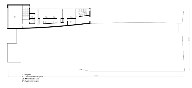
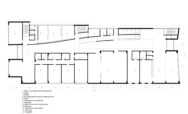
MEL
Работа бюро MEL. Иллюстрация предоставлена организаторами.
Работа бюро MEL. Иллюстрация предоставлена организаторами.

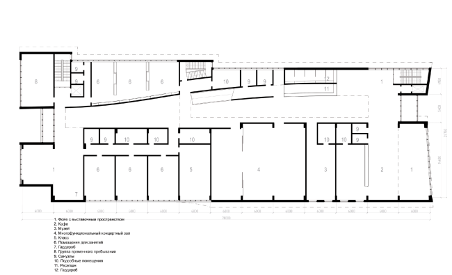
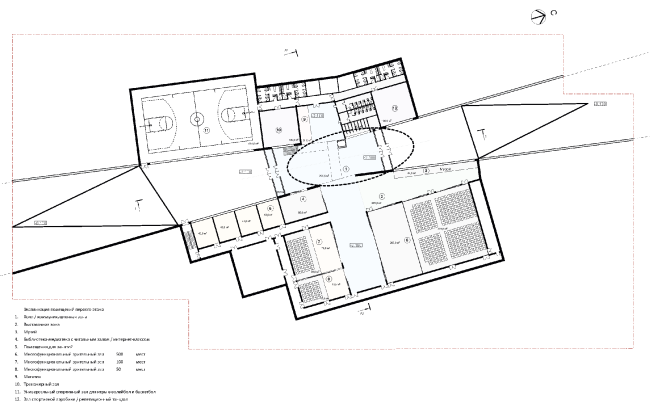
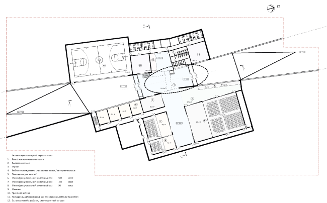
Комплекс Культурного Центра состоит из нескольких объемов, расположенных на ограниченной территории. То есть композиция участка следует принципу, лежащему в основе структуры русский поселений, монастырей и кремлей. Уличное пространство Центра должно стать основным местом притяжения жителей микро-района. Смысловым центром проекта является площадь-«двор», расположенная ниже уровня земли.

По задумке авторов, Культурный Центр должен стать максимально нейтральным по отношению к окружающей среде и служить лишь фоном для расположенных в нем экспонатов и проводимых мероприятий. Поэтому в проекте осознанно не использовались буквальные ссылки на элементы культурного слоя: орнаменты, декор, шрифты. Фасады облицованы панелями из светлого бетона, которые напоминают серые деревянные поверхности русского севера. Форма фасадов и скатных крыш отсылает к архетипам и форме традиционного русского жилища.

Еще одной отличительной особенностью проекта является максимальная гибкость и мобильность функциональных зон и отдельновзятых помещений Центра. Эти помещения могут быть связаны друг с другом, а также объединены в случае необходимости в единое пространство.
Работа бюро MEL. Иллюстрация предоставлена организаторами.
Работа бюро MEL. Иллюстрация предоставлена организаторами.
Работа бюро MEL. Иллюстрация предоставлена организаторами.
Работа бюро MEL. Иллюстрация предоставлена организаторами.
Работа бюро MEL. Иллюстрация предоставлена организаторами.
Работа бюро MEL. Иллюстрация предоставлена организаторами.
Работа бюро MEL. Иллюстрация предоставлена организаторами.
Работа бюро MEL. Иллюстрация предоставлена организаторами.
Работа бюро MEL. Иллюстрация предоставлена организаторами.
Работа бюро MEL. Иллюстрация предоставлена организаторами.
Работа бюро MEL. Иллюстрация предоставлена организаторами.
Работа бюро MEL. Иллюстрация предоставлена организаторами.
Работа бюро MEL. Иллюстрация предоставлена организаторами.
Работа бюро MEL. Иллюстрация предоставлена организаторами.
Работа бюро MEL. Иллюстрация предоставлена организаторами.
Работа бюро MEL. Иллюстрация предоставлена организаторами.
Работа бюро MEL. Иллюстрация предоставлена организаторами.
Работа бюро MEL. Иллюстрация предоставлена организаторами.
Работа бюро MEL. Иллюстрация предоставлена организаторами.
Работа бюро MEL. Иллюстрация предоставлена организаторами.
Работа бюро MEL. Иллюстрация предоставлена организаторами.
Работа бюро MEL. Иллюстрация предоставлена организаторами.
***

Победитель народного голосования
Enota+Archimetrics

Работа бюро Enota+Archimetrics. Иллюстрация предоставлена организаторами.
Работа бюро Enota+Archimetrics. Иллюстрация предоставлена организаторами.

Глобализация делает вопрос идентификации русского характера в архитектуре сегодня очень и очень сложной задачей. Авторы рассмотрели 5 факторов, которые, по их мнению, влияют на современную русскую архитектуру: образ жизни, климат, природный ландшафт, социальное взаимодействие и архитектурная культура.

Более 70% населения страны живет в городах в многоэтажных домах, сохраняя при этом сильную ментальную связь с сельской местностью. Поездки загород в выходные сопряжены с рядом проблем, в том числе и временем, потраченном в пробках, на пути к своему дачному домику. Поэтому было решено разработать общественные пространства внутри центра, которые брали бы лучшее от городского и сельского миров: просторные помещения, залитые солнечным светом в постоянном контакте с природой, позволяющие при этом вести активную социальную и культурную жизнь. Главным общественным пространством стал открытый амфитеатр, который продолжается внутри помещений. Природный ландшафт, характерный для нашей местности, проявляется в тонких нерегулярных столбах вдоль фасада, напоминающий березовых лес, и озелененной крыше здания.

Архитектурная культура выражена в проекте с одной стороны, связью с конструктивистским прошлым (простой прямоугольный объем здания), с другой стороны – параметрическим будущим, главным выражением которого стал опять таки амфитеатр природной формы.
Работа бюро Enota+Archimetrics. Иллюстрация предоставлена организаторами.
Работа бюро Enota+Archimetrics. Иллюстрация предоставлена организаторами.
Работа бюро Enota+Archimetrics. Иллюстрация предоставлена организаторами.
Работа бюро Enota+Archimetrics. Иллюстрация предоставлена организаторами.
Работа бюро Enota+Archimetrics. Иллюстрация предоставлена организаторами.
Работа бюро Enota+Archimetrics. Иллюстрация предоставлена организаторами.
Работа бюро Enota+Archimetrics. Иллюстрация предоставлена организаторами.
Работа бюро Enota+Archimetrics. Иллюстрация предоставлена организаторами.
Работа бюро Enota+Archimetrics. Иллюстрация предоставлена организаторами.
Работа бюро Enota+Archimetrics. Иллюстрация предоставлена организаторами.
Работа бюро Enota+Archimetrics. Иллюстрация предоставлена организаторами.
Работа бюро Enota+Archimetrics. Иллюстрация предоставлена организаторами.
Работа бюро Enota+Archimetrics. Иллюстрация предоставлена организаторами.
Работа бюро Enota+Archimetrics. Иллюстрация предоставлена организаторами.
Работа бюро Enota+Archimetrics. Иллюстрация предоставлена организаторами.
Работа бюро Enota+Archimetrics. Иллюстрация предоставлена организаторами.
Работа бюро Enota+Archimetrics. Иллюстрация предоставлена организаторами.
Работа бюро Enota+Archimetrics. Иллюстрация предоставлена организаторами.
Работа бюро Enota+Archimetrics. Иллюстрация предоставлена организаторами.
Работа бюро Enota+Archimetrics. Иллюстрация предоставлена организаторами.
Работа бюро Enota+Archimetrics. Иллюстрация предоставлена организаторами.
Работа бюро Enota+Archimetrics. Иллюстрация предоставлена организаторами.
***

Другие проекты участников шорт-листа
Поле-дизайн
Работа бюро Поле-дизайн. Иллюстрация предоставлена организаторами.
Работа бюро Поле-дизайн. Иллюстрация предоставлена организаторами.

Культурный центр представляет собой два протяженных (более 70 метров) объема. Главный включает в себя все основные помещения центра: музей, концертный зал, классы для занятий, спортивный и тренажерный залы. Второй объем авторы называют «коммуникационно-технологическим» – здесь расположены лестницы, лифты, антресоли и пандус. Между двух частей здания находится «внутренняя улица» – пространство, перекрытое стеклянной кровлей, которое служит транзитом и соединяет две входные зоны Центра.

За «русское» в образе Культурного центра отвечает луковично-шлемовидный главный фасад основного объема, который с обратной стороны здания вдруг становится геометрично-ступенчатым. Такое «превращение» обеспечивают арки переменной конфигурации, которые затем накрываются металлической оболочкой. Еще один элемент русской культуры, призванный дополнить образ Центра – кириллические буквы, сформированные в орнамент, который покрывает фасад коммуникационного блока и проникает в интерьер здания.
Работа бюро Поле-дизайн. Иллюстрация предоставлена организаторами.
Работа бюро Поле-дизайн. Иллюстрация предоставлена организаторами.
Работа бюро Поле-дизайн. Иллюстрация предоставлена организаторами.
Работа бюро Поле-дизайн. Иллюстрация предоставлена организаторами.
Работа бюро Поле-дизайн. Иллюстрация предоставлена организаторами.
Работа бюро Поле-дизайн. Иллюстрация предоставлена организаторами.
Работа бюро Поле-дизайн. Иллюстрация предоставлена организаторами.
Работа бюро Поле-дизайн. Иллюстрация предоставлена организаторами.
Работа бюро Поле-дизайн. Иллюстрация предоставлена организаторами.
Работа бюро Поле-дизайн. Иллюстрация предоставлена организаторами.
Работа бюро Поле-дизайн. Иллюстрация предоставлена организаторами.
Работа бюро Поле-дизайн. Иллюстрация предоставлена организаторами.
Работа бюро Поле-дизайн. Иллюстрация предоставлена организаторами.
Работа бюро Поле-дизайн. Иллюстрация предоставлена организаторами.
Работа бюро Поле-дизайн. Иллюстрация предоставлена организаторами.
Работа бюро Поле-дизайн. Иллюстрация предоставлена организаторами.
Работа бюро Поле-дизайн. Иллюстрация предоставлена организаторами.
Работа бюро Поле-дизайн. Иллюстрация предоставлена организаторами.
Работа бюро Поле-дизайн. Иллюстрация предоставлена организаторами.
Работа бюро Поле-дизайн. Иллюстрация предоставлена организаторами.
Работа бюро Поле-дизайн. Иллюстрация предоставлена организаторами.
Работа бюро Поле-дизайн. Иллюстрация предоставлена организаторами.
***

Мастерская-ТАФ
Работа бюро Мастерская-ТАФ. Иллюстрация предоставлена организаторами.
Работа бюро Мастерская-ТАФ. Иллюстрация предоставлена организаторами.

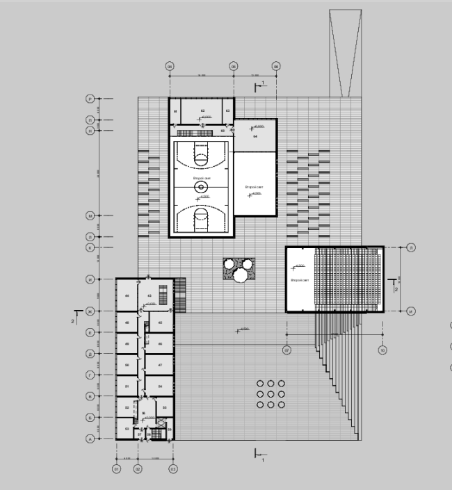
Авторы этого проекта сделали ставку на простоту и ясность, как на характерные черты русской ментальности. Структура сооружения в действительности довольно ясная, хотя, и планировка, и объем здания, на первый взгляд, совсем не выглядят «простыми». Основную часть Центра составляет двускатный ангар, скрывающий большой коммуникационный холл, универсальные и тренажерный зал, выставочные пространства. На этот основной объем насажены цветные пристройки, в которых располагаются три зрительных и спортивный залы. Такой хаотичный характер компоновки, по мнению авторов, придает сооружению «доступно­привлекательный демократичный вид».

В Культурном Центре предлагается использовать разнообразные материалы, максимально при этом подчеркивая их природную фактуру и цвет. Лейтмотив всего проекта – простота – находит свое отражение и в решении благоустройства территории Центра: здесь нет традиционных малых архитектурных форм или чрезмерного озеленения, зато есть деревянное и каменное покрытие для занятий спортом и другими видами активной деятельности.

Получился экономичный и несложный в реализации проект, который не исключает при этом применения самых современных технологий.
Работа бюро Мастерская-ТАФ. Иллюстрация предоставлена организаторами.
Работа бюро Мастерская-ТАФ. Иллюстрация предоставлена организаторами.
Работа бюро Мастерская-ТАФ. Иллюстрация предоставлена организаторами.
Работа бюро Мастерская-ТАФ. Иллюстрация предоставлена организаторами.
Работа бюро Мастерская-ТАФ. Иллюстрация предоставлена организаторами.
Работа бюро Мастерская-ТАФ. Иллюстрация предоставлена организаторами.
Работа бюро Мастерская-ТАФ. Иллюстрация предоставлена организаторами.
Работа бюро Мастерская-ТАФ. Иллюстрация предоставлена организаторами.
Работа бюро Мастерская-ТАФ. Иллюстрация предоставлена организаторами.
Работа бюро Мастерская-ТАФ. Иллюстрация предоставлена организаторами.
Работа бюро Мастерская-ТАФ. Иллюстрация предоставлена организаторами.
Работа бюро Мастерская-ТАФ. Иллюстрация предоставлена организаторами.
Работа бюро Мастерская-ТАФ. Иллюстрация предоставлена организаторами.
Работа бюро Мастерская-ТАФ. Иллюстрация предоставлена организаторами.
Работа бюро Мастерская-ТАФ. Иллюстрация предоставлена организаторами.
Работа бюро Мастерская-ТАФ. Иллюстрация предоставлена организаторами.
Работа бюро Мастерская-ТАФ. Иллюстрация предоставлена организаторами.
Работа бюро Мастерская-ТАФ. Иллюстрация предоставлена организаторами.
Работа бюро Мастерская-ТАФ. Иллюстрация предоставлена организаторами.
Работа бюро Мастерская-ТАФ. Иллюстрация предоставлена организаторами.
Работа бюро Мастерская-ТАФ. Иллюстрация предоставлена организаторами.
Работа бюро Мастерская-ТАФ. Иллюстрация предоставлена организаторами.
***

OFIS
Работа бюро OFIS. Иллюстрация предоставлена организаторами.
Работа бюро OFIS. Иллюстрация предоставлена организаторами.

Авторы проекта вдохновились проектами Константина Мельникова и узорами для текстиля 20-х годов, авторства Поповой и Степановой, и разработали геометрический орнамент, который лег в основу планировочного, объемного и композиционного решения комплекса Культурного Центра.

Основной объем Центра составляют две постройки, соединенные своеобразным перешейком. Структура на основе шестиугольников позволяет создавать внутри как просторные большие по площади пространства, так и маленькие кружковые помещения. Кроме того, такая структура помогает добиться большей функциональной гибкости.
Работа бюро OFIS. Иллюстрация предоставлена организаторами.
Работа бюро OFIS. Иллюстрация предоставлена организаторами.
Работа бюро OFIS. Иллюстрация предоставлена организаторами.
Работа бюро OFIS. Иллюстрация предоставлена организаторами.
Работа бюро OFIS. Иллюстрация предоставлена организаторами.
Работа бюро OFIS. Иллюстрация предоставлена организаторами.
Работа бюро OFIS. Иллюстрация предоставлена организаторами.
Работа бюро OFIS. Иллюстрация предоставлена организаторами.
Работа бюро OFIS. Иллюстрация предоставлена организаторами.
Работа бюро OFIS. Иллюстрация предоставлена организаторами.
Работа бюро OFIS. Иллюстрация предоставлена организаторами.
Работа бюро OFIS. Иллюстрация предоставлена организаторами.
Работа бюро OFIS. Иллюстрация предоставлена организаторами.
Работа бюро OFIS. Иллюстрация предоставлена организаторами.
Работа бюро OFIS. Иллюстрация предоставлена организаторами.
Работа бюро OFIS. Иллюстрация предоставлена организаторами.
Работа бюро OFIS. Иллюстрация предоставлена организаторами.
Работа бюро OFIS. Иллюстрация предоставлена организаторами.
Работа бюро OFIS. Иллюстрация предоставлена организаторами.
Работа бюро OFIS. Иллюстрация предоставлена организаторами.
Работа бюро OFIS. Иллюстрация предоставлена организаторами.
Работа бюро OFIS. Иллюстрация предоставлена организаторами.
Работа бюро OFIS. Иллюстрация предоставлена организаторами.
Работа бюро OFIS. Иллюстрация предоставлена организаторами.
***

АБ-Студия
Работа бюро АБ-Студия. Иллюстрация предоставлена организаторами.
Работа бюро АБ-Студия. Иллюстрация предоставлена организаторами.

Что хотят видеть из своих окон жители домов, расположенных около будущего Культурного Центра? Такой вопрос задали себе авторы проекта перед началом работы и, когда попытались ответить на него, поняли, что…ничего. Но лучше, все же,  – ландшафтную среду: сосновый бор, дубовую рощу или газон с кустарниками, на худой конец. Отсюда и родилась идея заглубить Центр под землю, но не полностью, что повлечет за собой значительное удорожание строительства, а лишь частично.

В итоге, получился Центр, который представляет собой холм, перерезанный лощиной и окруженный со всех сторон сосновым бором. Лощина – основное общественное пространство и своеобразная ось композиции, отсюда же осуществляются и входы в подземную часть здания. Холм венчает золотистый полупрозрачный купол из стеклянного лемеха. Под куполом расположен вестибюль второго этажа, из которого по лестнице или на лифте можно спуститься вниз.

Основной объем здания, расположенный под холмом (заглублен на 2 метра от уровня земли) разделен на три функциональные зоны: северную – спортивную; южную – культурный центр и конференц-холл и центральное подкупольное пространство, открытое круглосуточно.
Работа бюро АБ-Студия. Иллюстрация предоставлена организаторами.
Работа бюро АБ-Студия. Иллюстрация предоставлена организаторами.
Работа бюро АБ-Студия. Иллюстрация предоставлена организаторами.
Работа бюро АБ-Студия. Иллюстрация предоставлена организаторами.
Работа бюро АБ-Студия. Иллюстрация предоставлена организаторами.
Работа бюро АБ-Студия. Иллюстрация предоставлена организаторами.
Работа бюро АБ-Студия. Иллюстрация предоставлена организаторами.
Работа бюро АБ-Студия. Иллюстрация предоставлена организаторами.
Работа бюро АБ-Студия. Иллюстрация предоставлена организаторами.
Работа бюро АБ-Студия. Иллюстрация предоставлена организаторами.
Работа бюро АБ-Студия. Иллюстрация предоставлена организаторами.
Работа бюро АБ-Студия. Иллюстрация предоставлена организаторами.
Работа бюро АБ-Студия. Иллюстрация предоставлена организаторами.
Работа бюро АБ-Студия. Иллюстрация предоставлена организаторами.
Работа бюро АБ-Студия. Иллюстрация предоставлена организаторами.
Работа бюро АБ-Студия. Иллюстрация предоставлена организаторами.
Работа бюро АБ-Студия. Иллюстрация предоставлена организаторами.
Работа бюро АБ-Студия. Иллюстрация предоставлена организаторами.
Работа бюро АБ-Студия. Иллюстрация предоставлена организаторами.
Работа бюро АБ-Студия. Иллюстрация предоставлена организаторами.
Работа бюро АБ-Студия. Иллюстрация предоставлена организаторами.
Работа бюро АБ-Студия. Иллюстрация предоставлена организаторами.
***

Kubota&Bachmann
Работа бюро Kubota&Bachmann. Иллюстрация предоставлена организаторами.
Работа бюро Kubota&Bachmann. Иллюстрация предоставлена организаторами.

По версии Kubota&Bachmann Культурный Центр должен выглядеть как простой прямоугольный объем, который не конкурирует в размерах или сложности композиции с соседней жилой застройкой. Такая форма не только обеспечит высокие экологические характеристики и снизит потребление электроэнергии, но и поможет снизить расходы при строительстве.

Треугольники, образующие фасад здания, – это переработанные на современный лад традиционные элементы русской культуры и архитектуры, «подсмотренные» архитекторами в орнаментах, треугольных фронтонах, килевидных закомарах и даже женских кокошниках. Непрозрачные треугольники – это бетонные панели с треугольным же орнаментальным декором.

Территория вокруг здания представляет собой ортогональную сетку, в каждой ячейке которой будут различные типы растительности: газон, низкие травы, кустарники, сад и огород.
Работа бюро Kubota&Bachmann. Иллюстрация предоставлена организаторами.
Работа бюро Kubota&Bachmann. Иллюстрация предоставлена организаторами.
Работа бюро Kubota&Bachmann. Иллюстрация предоставлена организаторами.
Работа бюро Kubota&Bachmann. Иллюстрация предоставлена организаторами.
Работа бюро Kubota&Bachmann. Иллюстрация предоставлена организаторами.
Работа бюро Kubota&Bachmann. Иллюстрация предоставлена организаторами.
Работа бюро Kubota&Bachmann. Иллюстрация предоставлена организаторами.
Работа бюро Kubota&Bachmann. Иллюстрация предоставлена организаторами.
Работа бюро Kubota&Bachmann. Иллюстрация предоставлена организаторами.
Работа бюро Kubota&Bachmann. Иллюстрация предоставлена организаторами.
Работа бюро Kubota&Bachmann. Иллюстрация предоставлена организаторами.
Работа бюро Kubota&Bachmann. Иллюстрация предоставлена организаторами.
Работа бюро Kubota&Bachmann. Иллюстрация предоставлена организаторами.
Работа бюро Kubota&Bachmann. Иллюстрация предоставлена организаторами.
Работа бюро Kubota&Bachmann. Иллюстрация предоставлена организаторами.
Работа бюро Kubota&Bachmann. Иллюстрация предоставлена организаторами.
Работа бюро Kubota&Bachmann. Иллюстрация предоставлена организаторами.
Работа бюро Kubota&Bachmann. Иллюстрация предоставлена организаторами.
Работа бюро Kubota&Bachmann. Иллюстрация предоставлена организаторами.
Работа бюро Kubota&Bachmann. Иллюстрация предоставлена организаторами.
Работа бюро Kubota&Bachmann. Иллюстрация предоставлена организаторами.
Работа бюро Kubota&Bachmann. Иллюстрация предоставлена организаторами.
***

Мосин и партнеры
Работа бюро Мосин и партнеры. Иллюстрация предоставлена организаторами.
Работа бюро Мосин и партнеры. Иллюстрация предоставлена организаторами.

Проект Культурного Центра сложен из трех основных элементов: оболочки, внутренних функциональных объемов и окружающего здание пака.

Вдохновением для оформления оболочки послужили белые крепостные стены и традиционное русское кружево, рисунок которого прямой цитатой перенесен на фасады Центра.

Внутренняя структура представляет собой четко разграниченные функциональные зоны, объединенные коммуникативной зоной. При этом, за счет компоновки независимых объемов, внутри общей оболочки, и отдельных для каждого функционального блока входов, создается возможность максимально независимой работы различных частей здания. Такая структура отражает и другие принципы архитектуры, отмеченные авторами как традиционно русские: внутренняя сложность при внешней простоте; наличие торговой или соборной площади, как места общения; планировочная структура монастыря или усадьбы – внутри четких границ формируются насыщенные функциями объемы.

В проекте существенную роль в формировании образа Культурного Центра играет и окружающий его парк. По мнению авторов, хорошо благоустроенная зеленая зона будет круглогодично привлекать местных жителей.
Работа бюро Мосин и партнеры. Иллюстрация предоставлена организаторами.
Работа бюро Мосин и партнеры. Иллюстрация предоставлена организаторами.
Работа бюро Мосин и партнеры. Иллюстрация предоставлена организаторами.
Работа бюро Мосин и партнеры. Иллюстрация предоставлена организаторами.
Работа бюро Мосин и партнеры. Иллюстрация предоставлена организаторами.
Работа бюро Мосин и партнеры. Иллюстрация предоставлена организаторами.
Работа бюро Мосин и партнеры. Иллюстрация предоставлена организаторами.
Работа бюро Мосин и партнеры. Иллюстрация предоставлена организаторами.
Работа бюро Мосин и партнеры. Иллюстрация предоставлена организаторами.
Работа бюро Мосин и партнеры. Иллюстрация предоставлена организаторами.
Работа бюро Мосин и партнеры. Иллюстрация предоставлена организаторами.
Работа бюро Мосин и партнеры. Иллюстрация предоставлена организаторами.
Работа бюро Мосин и партнеры. Иллюстрация предоставлена организаторами.
Работа бюро Мосин и партнеры. Иллюстрация предоставлена организаторами.
Работа бюро Мосин и партнеры. Иллюстрация предоставлена организаторами.
Работа бюро Мосин и партнеры. Иллюстрация предоставлена организаторами.
Работа бюро Мосин и партнеры. Иллюстрация предоставлена организаторами.
Работа бюро Мосин и партнеры. Иллюстрация предоставлена организаторами.
Работа бюро Мосин и партнеры. Иллюстрация предоставлена организаторами.
Работа бюро Мосин и партнеры. Иллюстрация предоставлена организаторами.
***

Мастерская Алексея Козыря
Работа Мастерской Алексея Козыря. Иллюстрация предоставлена организаторами.
Работа Мастерской Алексея Козыря. Иллюстрация предоставлена организаторами.

Что действительно отражает русский характер? Авторы проекта отвечают на этот вопрос словами Николая Бердяева: «У русских всегда есть жажда иной жизни, иного мира, всегда есть внутренняя неудовлетворенность тем, что есть». Поэтому композиционным и идеологическим центром Культурного Центра становится кристаллообразный купол, под которым расположился ботанический сад с экзотическими растениями и бабочками. Купол стоит на лаконичном стилобате, который прорезан широким пандусом, ведущем во внутренний двор в цокольном этаже Центра. Стилобат таким образом напоминает в плане букву П.

Вдоль западного и восточного фасада предусмотрены березовые аллеи, в которых размещены скульптуры «Дерево». Перед главным фасадом и во внутреннем дворе авторы предлагают разместить фонтаны. На крыше здания расположатся солнечные батареи, дающие энергию для ботанического сада.
Работа Мастерской Алексея Козыря. Иллюстрация предоставлена организаторами.
Работа Мастерской Алексея Козыря. Иллюстрация предоставлена организаторами.
Работа Мастерской Алексея Козыря. Иллюстрация предоставлена организаторами.
Работа Мастерской Алексея Козыря. Иллюстрация предоставлена организаторами.
Работа Мастерской Алексея Козыря. Иллюстрация предоставлена организаторами.
Работа Мастерской Алексея Козыря. Иллюстрация предоставлена организаторами.
Работа Мастерской Алексея Козыря. Иллюстрация предоставлена организаторами.
Работа Мастерской Алексея Козыря. Иллюстрация предоставлена организаторами.
Работа Мастерской Алексея Козыря. Иллюстрация предоставлена организаторами.
Работа Мастерской Алексея Козыря. Иллюстрация предоставлена организаторами.
Работа Мастерской Алексея Козыря. Иллюстрация предоставлена организаторами.
Работа Мастерской Алексея Козыря. Иллюстрация предоставлена организаторами.
Работа Мастерской Алексея Козыря. Иллюстрация предоставлена организаторами.
Работа Мастерской Алексея Козыря. Иллюстрация предоставлена организаторами.
Работа Мастерской Алексея Козыря. Иллюстрация предоставлена организаторами.
Работа Мастерской Алексея Козыря. Иллюстрация предоставлена организаторами.
Работа Мастерской Алексея Козыря. Иллюстрация предоставлена организаторами.
Работа Мастерской Алексея Козыря. Иллюстрация предоставлена организаторами.
Работа Мастерской Алексея Козыря. Иллюстрация предоставлена организаторами.
Работа Мастерской Алексея Козыря. Иллюстрация предоставлена организаторами.
***


ALA Architects
Работа бюро ALA Architects. Иллюстрация предоставлена организаторами.
Работа бюро ALA Architects. Иллюстрация предоставлена организаторами.

Вдохновением для авторов этой работы послужили, во-первых, фильмы Андрея Тарковского: в проекте словно создаются две реальности: внешняя стороння жизнь и жизнь внутри и около Культурного Центра; а, во-вторых, традиционно сильная (гениальная) шахматная школа в России. Русский характер в понимании авторов – интеллигентный, загадочный, мрачный и меланхоличный.

Территория решена в соответствии с общей стилистикой Культурного центра – чередование на участке темных и светлых прямоугольных пластин, которые переходят в террасы самого здания. В плане Центр представляет из себя квадрат, внутри которого свободно расположены спортивный зал, большой концертный зал и несколько аудиторий поменьше. Все остальное пространство разделено на функциональные зоны весьма условно и может использоваться в соответствии с текущими потребностями.
Работа бюро ALA Architects. Иллюстрация предоставлена организаторами.
Работа бюро ALA Architects. Иллюстрация предоставлена организаторами.
Работа бюро ALA Architects. Иллюстрация предоставлена организаторами.
Работа бюро ALA Architects. Иллюстрация предоставлена организаторами.
Работа бюро ALA Architects. Иллюстрация предоставлена организаторами.
Работа бюро ALA Architects. Иллюстрация предоставлена организаторами.
Работа бюро ALA Architects. Иллюстрация предоставлена организаторами.
Работа бюро ALA Architects. Иллюстрация предоставлена организаторами.
Работа бюро ALA Architects. Иллюстрация предоставлена организаторами.
Работа бюро ALA Architects. Иллюстрация предоставлена организаторами.
Работа бюро ALA Architects. Иллюстрация предоставлена организаторами.
Работа бюро ALA Architects. Иллюстрация предоставлена организаторами.
Работа бюро ALA Architects. Иллюстрация предоставлена организаторами.
Работа бюро ALA Architects. Иллюстрация предоставлена организаторами.
Работа бюро ALA Architects. Иллюстрация предоставлена организаторами.
Работа бюро ALA Architects. Иллюстрация предоставлена организаторами.
Работа бюро ALA Architects. Иллюстрация предоставлена организаторами.
Работа бюро ALA Architects. Иллюстрация предоставлена организаторами.
Работа бюро ALA Architects. Иллюстрация предоставлена организаторами.
Работа бюро ALA Architects. Иллюстрация предоставлена организаторами.
Работа бюро ALA Architects. Иллюстрация предоставлена организаторами.
Работа бюро ALA Architects. Иллюстрация предоставлена организаторами.
***
 
Работы конкурсантов оценивали:
  • Александр Асадов, член-корреспондент Международной академии архитектуры, Российской академии архитектуры и строительных наук, советник Российской академии архитектуры и строительных наук, Архитектурная мастерская А.Асадова;
  • Евгений Асс, архитектор и художник, основатель и ректор архитектурной школы МАРШ;
  • Анна Броновицкая, специалист по архитектуре и градостроительству советского периода, кандидат искусствоведения, доцент МАРХИ;
  • Барт Голдхоорн, куратор Архитектурного биеннале и выставки «АРХ Москва», голландский архитектор, архитектурный критик, основатель и издатель журналов «ПРОЕКТ Россия», «ПРОЕКТ Балтия» и «ПРОЕКТ international»;
  • Сергей Кузнецов, главный архитектор Москвы;
  • Феликс Разумовский, российский историк, писатель, телеведущий, член Международного союза журналистов, автор и ведущий цикла программ «Кто мы?» на телеканале «Культура»;         
  • Александр Ручьев, президент ГК «Мортон»;
  • Александр Скокан, член-корреспондент Российской академии архитектуры и строительных наук, директор архитектурного бюро «Остоженка».