Размещено на портале Архи.ру (www.archi.ru)

15.05.2014

Философское настроение

Елизавета Эбнер

Культурный центр «Малопольский сад искусств» в Кракове бюро Ingarden & Ewý Architekci.

Культурный центр «Малопольский сад искусств» © Krzysztof Ingarden
Культурный центр «Малопольский сад искусств» © Krzysztof Ingarden

Про комплекс «Малопольский сад искусств» на улице с прекрасным названием Райская можно сказать разные вещи. Например, что это здание – всего лишь декорированная «палочками» коробка, и что ничего нового в таком проекте нет, да и вообще – это не здание, а один сплошной коридор. Но попробуем сами разобраться, что к чему.
Культурный центр «Малопольский сад искусств» © Krzysztof Ingarden
Культурный центр «Малопольский сад искусств» © Krzysztof Ingarden

Раньше на этом месте была конно-спортивная арена. Потом – библиотека и Театр Юлиуша Словацкого, которые долгое время использовались не по назначению, а для проведения семинаров. При театре, кстати, несмотря на его полузаброшенное состояние, продолжали жить актеры и преподаватели драматического искусства. Им впоследствии дали новые квартиры, а библиотеку и театр решено было объединить в комплекс со зрительным залом, кинотеатром и мультимедиа-центром. По инициативе директора театра Кшиштофа Ожеховского был объявлен конкурс, который выиграло бюро Ingarden & Ewý Architekci.
Культурный центр «Малопольский сад искусств» © Krzysztof Ingarden
Культурный центр «Малопольский сад искусств» © Krzysztof Ingarden

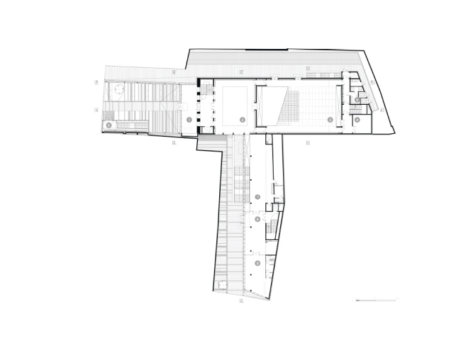
Работать в сложившемся контексте всегда сложно, но интересно. Архитекторы Кшиштоф Ингарден и Яцек Еви объединили имеющиеся здания в Т-образный в плане комплекс, окруженный стеклянной навесной стеной с «глиняными жалюзи». Ингарден описывает концепцию проекта как «игру мимезиса и абстракции». Мимезис – это подражание, как человек подражает в строительстве ласточке или пауку. Абстракция – упрощение несущественных качеств объекта с целью выявления его основных свойств. Так, по замыслу авторов, «полосатая» оболочка специально получила неровный профиль, отражающий формы окружающих зданий.
Культурный центр «Малопольский сад искусств» © Krzysztof Ingarden
Культурный центр «Малопольский сад искусств» © Krzysztof Ingarden

Театр Юлиуша Словацкого тянется с севера на юг, включая в себя большой крытый сад с скамейками, клумбами и прекрасным кленом. Этот сад обращен к улице Райской и, как вы можете догадаться, создать там «райский сад» изначально было для архитекторов заманчивой идеей. Такой ход не только обыграл ономастику места, но и привлекает посетителей в новый комплекс. Защищенный каркасной крышей сад открыт для всех желающих и олицетворяет собой переход от пространства сцены к пространству города. Задником для него служит стена, сложенная из отреставрированных кирпичей старых корпусов комплекса.
Культурный центр «Малопольский сад искусств» © Krzysztof Ingarden
Культурный центр «Малопольский сад искусств» © Krzysztof Ingarden

Библиотека с тремя этажами читальных залов и учебных помещений занимает западное крыло Т-образного в плане комплекса. Она получила отдельный вход, обращенный к пешеходной зоне, протянувшейся вдоль бокового фасада здания.
Культурный центр «Малопольский сад искусств» © Krzysztof Ingarden
Культурный центр «Малопольский сад искусств» © Krzysztof Ingarden

«Малопольский сад искусств» действительно представляет собой очень простую структуру, напоминающую длинный коридор между библиотекой к театром. «Палочки» на фасаде похожи на строительные леса, а «райский сад» – это просто хорошо оформленный вход. Но гораздо важнее то, что комплекс ежедневно посещает много жителей и гостей Кракова, что главные городские международные мероприятия проходят именно тут, что библиотека и театр, долгие годы почти забытые, сейчас работают в полную силу.
Культурный центр «Малопольский сад искусств» © Krzysztof Ingarden
Культурный центр «Малопольский сад искусств» © Krzysztof Ingarden

Архитекторы очень довольны результатом: их подход оценили не только соотечественники, но и зарубежные специалисты. Ингарден и Еви говорят, что вдохновлялись Центром Помпиду в Париже и Центром искусств Реда Стен в Гетеборге. Важным в проекте была философия – места, окружения, взаимосвязи, мимезиса и абстракции, и еще – сам Краков. А получившиеся здание – вовсе не коридор, а, скорее, мост, перекинутый через лакуны в истории города.
Культурный центр «Малопольский сад искусств» © Krzysztof Ingarden
Культурный центр «Малопольский сад искусств» © Krzysztof Ingarden
Культурный центр «Малопольский сад искусств» © Krzysztof Ingarden
Культурный центр «Малопольский сад искусств» © Krzysztof Ingarden
Культурный центр «Малопольский сад искусств» © Krzysztof Ingarden
Культурный центр «Малопольский сад искусств» © Krzysztof Ingarden
Культурный центр «Малопольский сад искусств» © Krzysztof Ingarden
Культурный центр «Малопольский сад искусств» © Krzysztof Ingarden
Культурный центр «Малопольский сад искусств» © Krzysztof Ingarden
Культурный центр «Малопольский сад искусств» © Krzysztof Ingarden
Культурный центр «Малопольский сад искусств» © Krzysztof Ingarden
Культурный центр «Малопольский сад искусств» © Krzysztof Ingarden
Культурный центр «Малопольский сад искусств» © Krzysztof Ingarden
Культурный центр «Малопольский сад искусств» © Krzysztof Ingarden
Культурный центр «Малопольский сад искусств» © Krzysztof Ingarden
Культурный центр «Малопольский сад искусств» © Krzysztof Ingarden
Культурный центр «Малопольский сад искусств» © Krzysztof Ingarden
Культурный центр «Малопольский сад искусств» © Krzysztof Ingarden
Культурный центр «Малопольский сад искусств» © Krzysztof Ingarden
Культурный центр «Малопольский сад искусств» © Krzysztof Ingarden
Культурный центр «Малопольский сад искусств» © Krzysztof Ingarden
Культурный центр «Малопольский сад искусств» © Krzysztof Ingarden
Культурный центр «Малопольский сад искусств» © Krzysztof Ingarden
Культурный центр «Малопольский сад искусств» © Krzysztof Ingarden
Культурный центр «Малопольский сад искусств» © Krzysztof Ingarden
Культурный центр «Малопольский сад искусств» © Krzysztof Ingarden
Культурный центр «Малопольский сад искусств» © Krzysztof Ingarden
Культурный центр «Малопольский сад искусств» © Krzysztof Ingarden
Культурный центр «Малопольский сад искусств» © Krzysztof Ingarden
Культурный центр «Малопольский сад искусств» © Krzysztof Ingarden
Культурный центр «Малопольский сад искусств» © Krzysztof Ingarden
Культурный центр «Малопольский сад искусств» © Krzysztof Ingarden
Культурный центр «Малопольский сад искусств» © Krzysztof Ingarden
Культурный центр «Малопольский сад искусств» © Krzysztof Ingarden
Культурный центр «Малопольский сад искусств» © Krzysztof Ingarden
Культурный центр «Малопольский сад искусств» © Krzysztof Ingarden
Культурный центр «Малопольский сад искусств» © Krzysztof Ingarden
Культурный центр «Малопольский сад искусств» © Krzysztof Ingarden
Культурный центр «Малопольский сад искусств» © Krzysztof Ingarden
Культурный центр «Малопольский сад искусств» © Krzysztof Ingarden
Культурный центр «Малопольский сад искусств» © Krzysztof Ingarden
Культурный центр «Малопольский сад искусств» © Krzysztof Ingarden
Культурный центр «Малопольский сад искусств» © Krzysztof Ingarden
Культурный центр «Малопольский сад искусств» © Krzysztof Ingarden
Культурный центр «Малопольский сад искусств» © Krzysztof Ingarden
Культурный центр «Малопольский сад искусств» © Krzysztof Ingarden
Культурный центр «Малопольский сад искусств» © Krzysztof Ingarden
Культурный центр «Малопольский сад искусств» © Krzysztof Ingarden
Культурный центр «Малопольский сад искусств» © Krzysztof Ingarden
Культурный центр «Малопольский сад искусств» © Krzysztof Ingarden
Культурный центр «Малопольский сад искусств» © Krzysztof Ingarden
Культурный центр «Малопольский сад искусств» © Krzysztof Ingarden
Культурный центр «Малопольский сад искусств» © Krzysztof Ingarden
Культурный центр «Малопольский сад искусств» © Krzysztof Ingarden
Культурный центр «Малопольский сад искусств» © Krzysztof Ingarden
Культурный центр «Малопольский сад искусств» © Krzysztof Ingarden
Культурный центр «Малопольский сад искусств» © Ingarden & Ewý Architekci
Культурный центр «Малопольский сад искусств» © Ingarden & Ewý Architekci
Культурный центр «Малопольский сад искусств» © Ingarden & Ewý Architekci
Культурный центр «Малопольский сад искусств» © Ingarden & Ewý Architekci
Культурный центр «Малопольский сад искусств» © Ingarden & Ewý Architekci
Культурный центр «Малопольский сад искусств» © Ingarden & Ewý Architekci
Культурный центр «Малопольский сад искусств» © Ingarden & Ewý Architekci
Культурный центр «Малопольский сад искусств» © Ingarden & Ewý Architekci
Культурный центр «Малопольский сад искусств» © Ingarden & Ewý Architekci
Культурный центр «Малопольский сад искусств» © Ingarden & Ewý Architekci
Культурный центр «Малопольский сад искусств» © Ingarden & Ewý Architekci
Культурный центр «Малопольский сад искусств» © Ingarden & Ewý Architekci
Культурный центр «Малопольский сад искусств» © Ingarden & Ewý Architekci
Культурный центр «Малопольский сад искусств» © Ingarden & Ewý Architekci
Культурный центр «Малопольский сад искусств» © Ingarden & Ewý Architekci
Культурный центр «Малопольский сад искусств» © Ingarden & Ewý Architekci
Культурный центр «Малопольский сад искусств» © Ingarden & Ewý Architekci
Культурный центр «Малопольский сад искусств» © Ingarden & Ewý Architekci
Культурный центр «Малопольский сад искусств» © Ingarden & Ewý Architekci
Культурный центр «Малопольский сад искусств» © Ingarden & Ewý Architekci
Культурный центр «Малопольский сад искусств» © Ingarden & Ewý Architekci
Культурный центр «Малопольский сад искусств» © Ingarden & Ewý Architekci
Культурный центр «Малопольский сад искусств» © Ingarden & Ewý Architekci
Культурный центр «Малопольский сад искусств» © Ingarden & Ewý Architekci
Культурный центр «Малопольский сад искусств» © Ingarden & Ewý Architekci
Культурный центр «Малопольский сад искусств» © Ingarden & Ewý Architekci
Культурный центр «Малопольский сад искусств» © Ingarden & Ewý Architekci
Культурный центр «Малопольский сад искусств» © Ingarden & Ewý Architekci