Размещено на портале Архи.ру (www.archi.ru)

14.05.2014

«Парящие» небоскребы

Каролина Крутова
Объект:
Комплекс Gurgaon 66
Адрес:
Индия, None,

Комплекс из трех башен архитектора Эдуара Франсуа в индийском городе Гургаон.

Комплекс Gurgaon 66 © Luxigon
Комплекс Gurgaon 66 © Luxigon

В Гургаоне, ведущем промышленном и финансовом центре современной Индии, появится масштабный комплекс из трех небоскребов, спроектированный французским архитектором Эдуаром Франсуа.
Комплекс Gurgaon 66 © Luxigon
Комплекс Gurgaon 66 © Luxigon

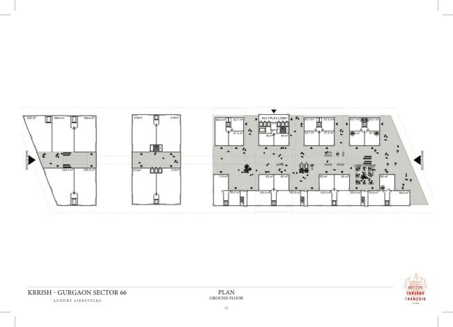
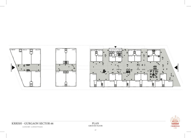
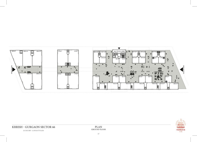
Лейтмотивом проекта станет роскошь. В одной башни разместится отель, в двух других – жилье. Но отличительный элемент комплекса – наполненный светом торговый центр из стекла и мрамора, который займет почти все пространство участка на уровне земли. Известные марки, такие, как Fendi и Chanel, получат там собственные «посольства» – отдельные корпуса из мрамора.
Комплекс Gurgaon 66 © Luxigon
Комплекс Gurgaon 66 © Luxigon

Эти бутики расположатся вдоль центральной оси, по типу традиционной застройки европейского района, а их крыши станут платформами для кинотеатров, над которыми расположатся рестораны. Кровли соединят между собой мостики. Все это будет перекрыто стеклянным навесом с солнцезащитными устройствами, что создаст в  торговом центре атмосферу легкости и простора.
Комплекс Gurgaon 66 © Luxigon
Комплекс Gurgaon 66 © Luxigon

Под отель и жилье будет полностью отдана нижняя часть башен, а в верхней части к этим составляющим добавится озеленение – характерная черта проектов Франсуа, а также бассейны, бары и другие общественные пространства, соединенные погруженными в искусственный туман мостиками. Фасады башен закроют от солнца тонкие стальные решетки.
Комплекс Gurgaon 66 © Luxigon
Комплекс Gurgaon 66 © Luxigon

Проект претендует на то, чтобы первым в Индии получить сертификат LEED Platinum за энергоэффективность.
Комплекс Gurgaon 66 © Luxigon
Комплекс Gurgaon 66 © Luxigon
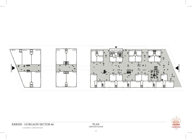
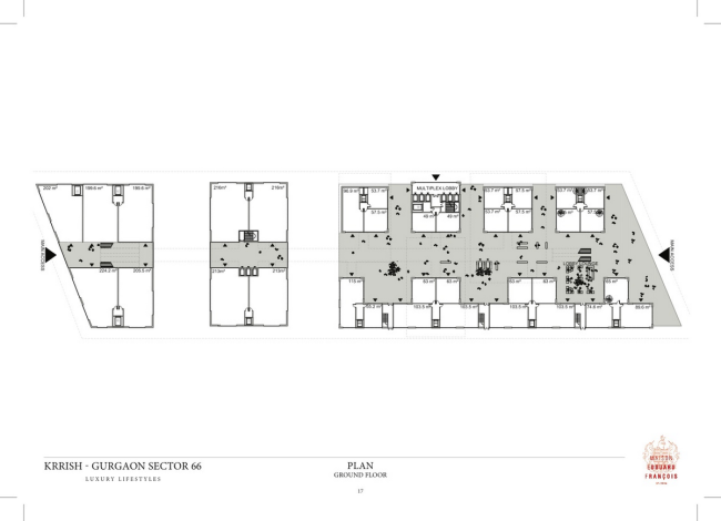
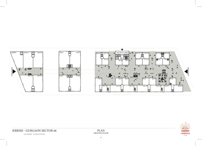
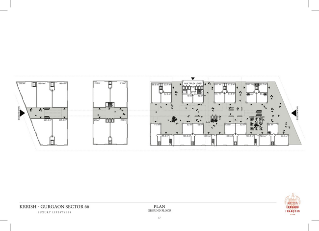
Комплекс Gurgaon 66 © Maison Edouard François
Комплекс Gurgaon 66 © Maison Edouard François
Комплекс Gurgaon 66 © Maison Edouard François
Комплекс Gurgaon 66 © Maison Edouard François
Комплекс Gurgaon 66 © Maison Edouard François
Комплекс Gurgaon 66 © Maison Edouard François
Комплекс Gurgaon 66 © Maison Edouard François
Комплекс Gurgaon 66 © Maison Edouard François