Размещено на портале Архи.ру (www.archi.ru)

14.05.2014

Башня идет на рекорд

Нина Фролова
Мастерская:
schneider+schumacher
Tchoban Voss Architekten

Во Франкфурте-на-Майне завершился конкурс на проект самого высокого жилого здания Германии.

1-е место. Проект Magnus Kaminiarz & Cie. Изображение предоставлено организаторами конкурса
1-е место. Проект Magnus Kaminiarz & Cie. Изображение предоставлено организаторами конкурса

Башня, пока известная лишь как «номер два», появится в комплексе «Европейский квартал», который с 1999 возводят на месте бывшей товарной станции. Расположение это более чем удачно: совсем рядом находятся знаменитый выставочный комплекс Messe Frankfurt, центральный вокзал, банковский центр. В самом квартале объединены жилье, офисы, магазины и кафе, гостиничные номера, конгресс-центр, зеленые общественные зоны.
1-е место. Проект Magnus Kaminiarz & Cie. Изображение предоставлено организаторами конкурса
1-е место. Проект Magnus Kaminiarz & Cie. Изображение предоставлено организаторами конкурса

Участок «башни номер 2» недавно уже был предметом конкурса – на проект отеля Grand Hyatt, который выиграло бюро UNStudio. Однако позже гостиничная сеть отказалась от своих планов, и участок перешел к берлинскому застройщику gsp Gesellschaft für Städtebau und Projektentwicklung.
 
1-е место. Проект Magnus Kaminiarz & Cie. Изображение предоставлено организаторами конкурса
1-е место. Проект Magnus Kaminiarz & Cie. Изображение предоставлено организаторами конкурса

Заданием нового конкурса стал проект самой высокой жилой башни Германии – 160-метрового здания, которое также станет первым полностью жилым небоскребом Франкфурта. Вместе с недавно открывшимся торговым центром Skyline Plaza башня оформит вход в «Европейский квартал».
 
1-е место. Проект Magnus Kaminiarz & Cie. Изображение предоставлено организаторами конкурса
1-е место. Проект Magnus Kaminiarz & Cie. Изображение предоставлено организаторами конкурса

Победителем конкурса стало местное бюро Magnus Kaminiarz & Cie: фасады их здания закрыты «камерами» балконов плавных очертаний, что дало необходимую инвестору «знаковость» наряду со спокойствием и ясностью облика, понравившимися жюри. Немецкие пользователи интернета отреагировали на результат конкурса оптимистично: по их мнению, это крайне смелый для консервативного Франкфурта проект, который может положить начало для дальнейших архитектурных экспериментов.
 
1-е место. Проект Magnus Kaminiarz & Cie. Изображение предоставлено организаторами конкурса
1-е место. Проект Magnus Kaminiarz & Cie. Изображение предоставлено организаторами конкурса


Второе место заняло бюро nps tchoban voss, третье – Astoc совместно с Lorber und Paul Architekten; оба призера представили очень сдержанные и «традиционные» варианты. Также в закрытом конкурсе участовали фирмы Schneider + Schumacher, nkbak и raumwerk Gesellschaft für Architektur und Stadtplanung.
 
В новой башне на площади в 44 000 м2 будет 340 квартир, из них 30% – сравнительно небольших, 55% – 3- и 4-комнатных, а 15% жилья составят просторные жилища на верхних этажах площадью до 280 м2.
 
2-я премия. nps tchoban voss.
 
2-е место. Проект nps tchoban voss. Изображение предоставлено организаторами конкурса
2-е место. Проект nps tchoban voss. Изображение предоставлено организаторами конкурса
2-е место. Проект nps tchoban voss. Изображение предоставлено организаторами конкурса
2-е место. Проект nps tchoban voss. Изображение предоставлено организаторами конкурса
2-е место. Проект nps tchoban voss. Изображение предоставлено организаторами конкурса
2-е место. Проект nps tchoban voss. Изображение предоставлено организаторами конкурса
2-е место. Проект nps tchoban voss. Изображение предоставлено организаторами конкурса
2-е место. Проект nps tchoban voss. Изображение предоставлено организаторами конкурса
2-е место. Проект nps tchoban voss. Изображение предоставлено организаторами конкурса
2-е место. Проект nps tchoban voss. Изображение предоставлено организаторами конкурса
2-е место. Проект nps tchoban voss. Изображение предоставлено организаторами конкурса
2-е место. Проект nps tchoban voss. Изображение предоставлено организаторами конкурса
2-е место. Проект nps tchoban voss. Изображение предоставлено организаторами конкурса
2-е место. Проект nps tchoban voss. Изображение предоставлено организаторами конкурса

3-я премия. Astoc совместно с Lorber und Paul Architekten.
 
3-е место. Проект Astoc и Lorber & Paul Architekten. Изображение предоставлено организаторами конкурса
3-е место. Проект Astoc и Lorber & Paul Architekten. Изображение предоставлено организаторами конкурса
3-е место. Проект Astoc и Lorber & Paul Architekten. Изображение предоставлено организаторами конкурса
3-е место. Проект Astoc и Lorber & Paul Architekten. Изображение предоставлено организаторами конкурса
3-е место. Проект Astoc и Lorber & Paul Architekten. Изображение предоставлено организаторами конкурса
3-е место. Проект Astoc и Lorber & Paul Architekten. Изображение предоставлено организаторами конкурса

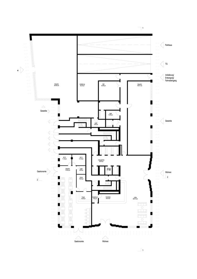
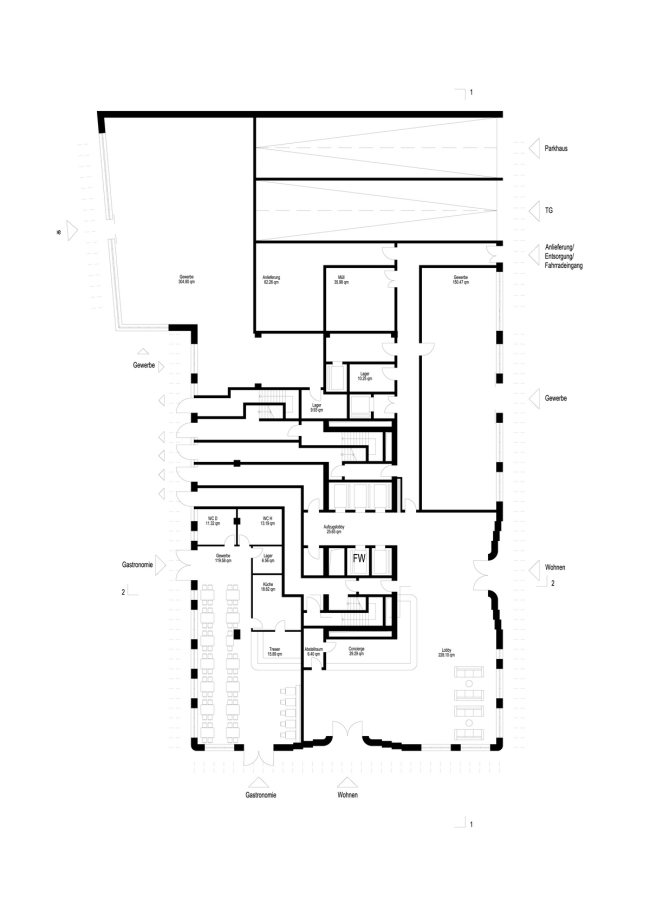
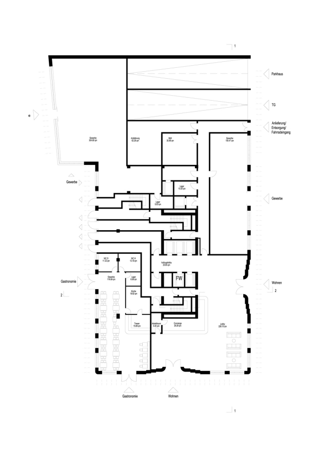
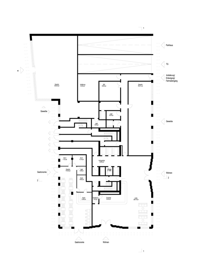
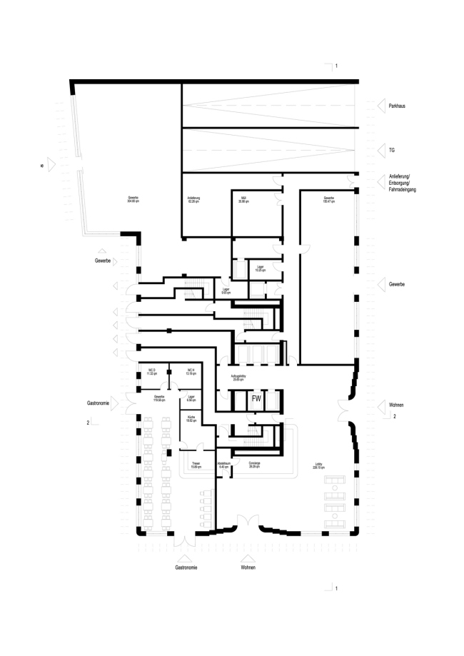
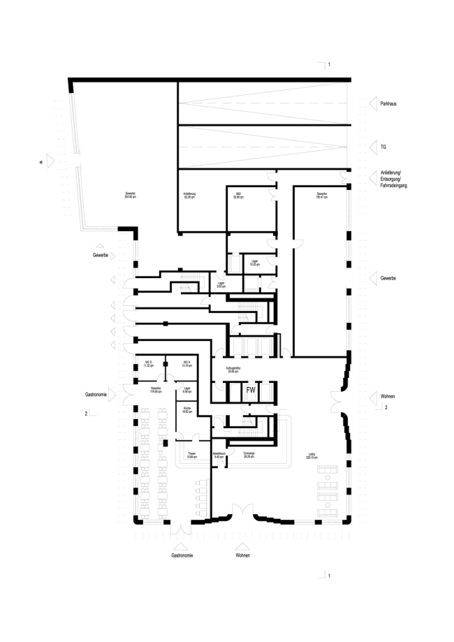
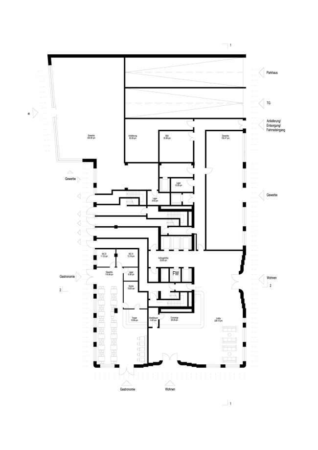
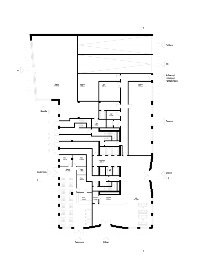
Проект Schneider + Schumacher.
 
Конкурсный проект Schneider + Schumacher. Изображение предоставлено организаторами конкурса
Конкурсный проект Schneider + Schumacher. Изображение предоставлено организаторами конкурса
Конкурсный проект Schneider + Schumacher. Изображение предоставлено организаторами конкурса
Конкурсный проект Schneider + Schumacher. Изображение предоставлено организаторами конкурса
Конкурсный проект Schneider + Schumacher. Изображение предоставлено организаторами конкурса
Конкурсный проект Schneider + Schumacher. Изображение предоставлено организаторами конкурса

Проект nkbak.
 
Конкурсный проект nkbak. Изображение предоставлено организаторами конкурса
Конкурсный проект nkbak. Изображение предоставлено организаторами конкурса
Конкурсный проект nkbak. Изображение предоставлено организаторами конкурса
Конкурсный проект nkbak. Изображение предоставлено организаторами конкурса
Конкурсный проект nkbak. Изображение предоставлено организаторами конкурса
Конкурсный проект nkbak. Изображение предоставлено организаторами конкурса

Проект raumwerk Gesellschaft für Architektur und Stadtplanung.
Конкурсный проект raumwerk. Изображение предоставлено организаторами конкурса
Конкурсный проект raumwerk. Изображение предоставлено организаторами конкурса
Конкурсный проект raumwerk. Изображение предоставлено организаторами конкурса
Конкурсный проект raumwerk. Изображение предоставлено организаторами конкурса
Конкурсный проект raumwerk. Изображение предоставлено организаторами конкурса
Конкурсный проект raumwerk. Изображение предоставлено организаторами конкурса