Размещено на портале Архи.ру (www.archi.ru)

09.05.2014

Роскошь и уединение для семьи из четырех человек

Тарья Нурми

Вилла Asikainen в Хельсинки архитектора Йюрки Таса.

Вилла Asikainen © Jussi Tiainen
Вилла Asikainen © Jussi Tiainen

Йюрки Таса как один из основателей бюро NRT Architects проектирует общественные, жилые и офисные здания. Но также он «по особым заказам» разрабатывает оригинальные проекты частных вилл. Среди них – получившие широкую известность дом его кузена и особняк «Моби Дик» в Эспоо.
Вилла Asikainen © Jussi Tiainen
Вилла Asikainen © Jussi Tiainen

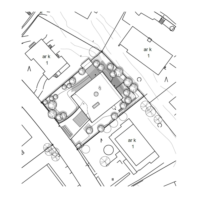
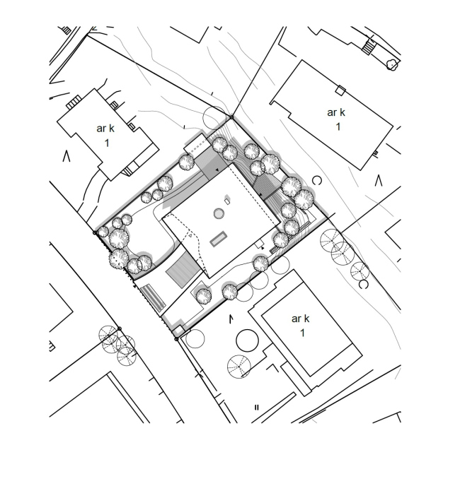
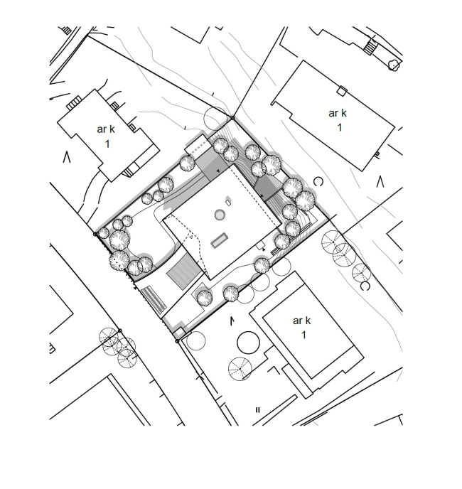
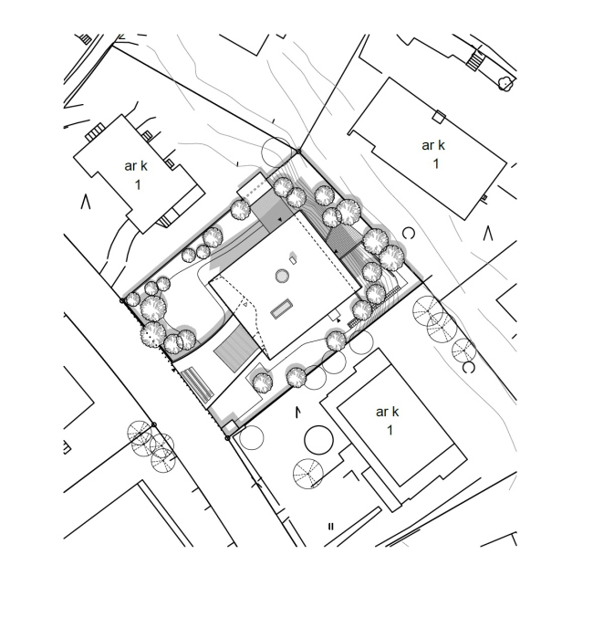
Теперь к этой компании прибавился новичок, в этот раз – дом для столичного заказчика. Вилла Asikainen расположена в хельсинкском районе Мунккиниеми, на улице Тиилимяки, хорошо известной архитекторам: там находится мастерская Алвара Аалто.
Вилла Asikainen © Jussi Tiainen
Вилла Asikainen © Jussi Tiainen

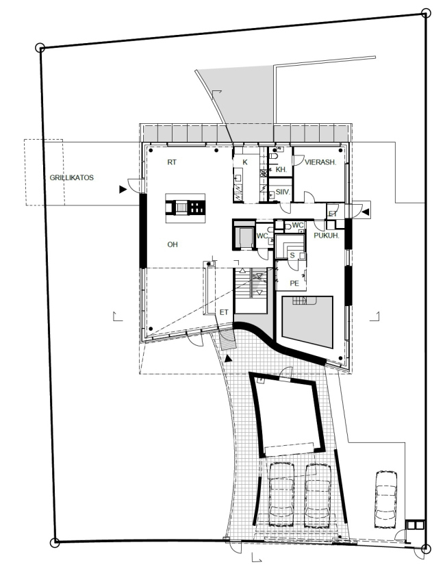
Новая вилла, появившаяся на противоположной стороне улицы – трехъярусное здание кремового цвета. Со стороны проезжей части ее облик определяет энергичный мотив «волны», хотя выступающая стена оберегает частную жизнь хозяев от взглядов посторонних. В семье хозяина несколько машин, и потому для них выделено немало места.
Вилла Asikainen © Jussi Tiainen
Вилла Asikainen © Jussi Tiainen

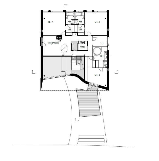
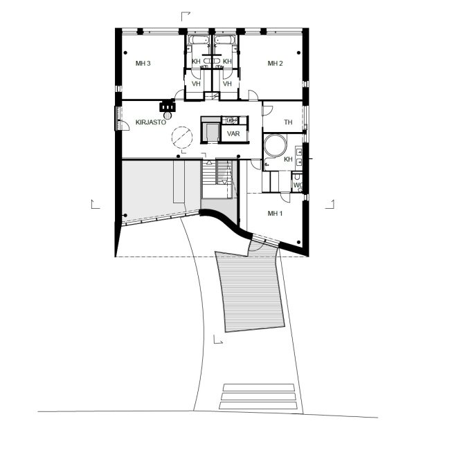
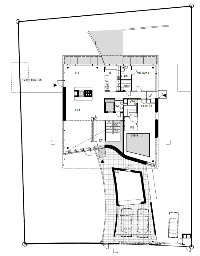
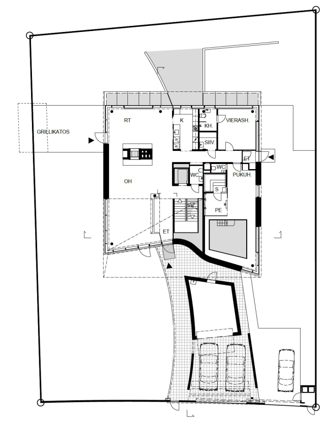
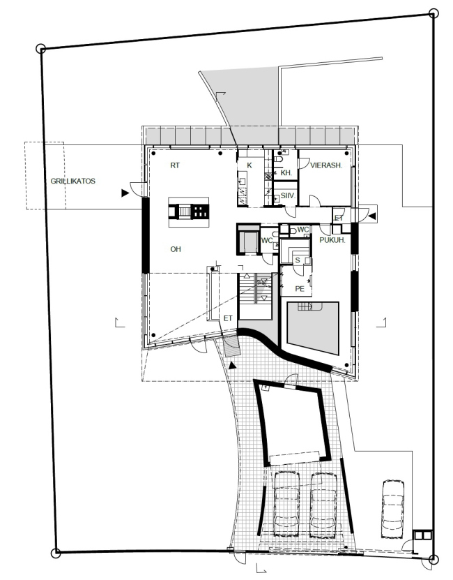
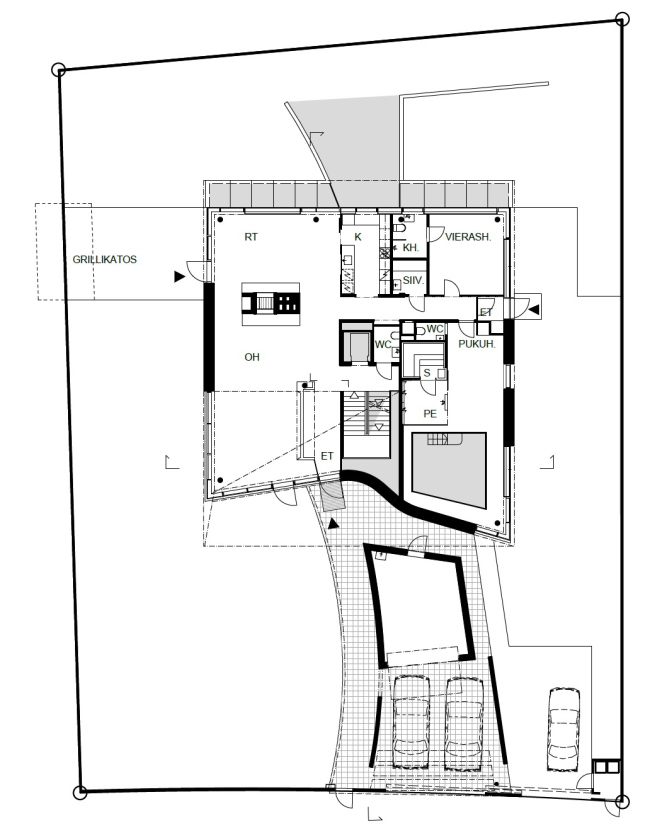
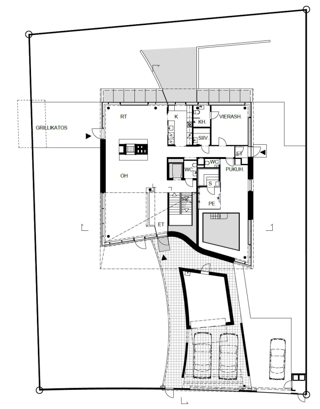
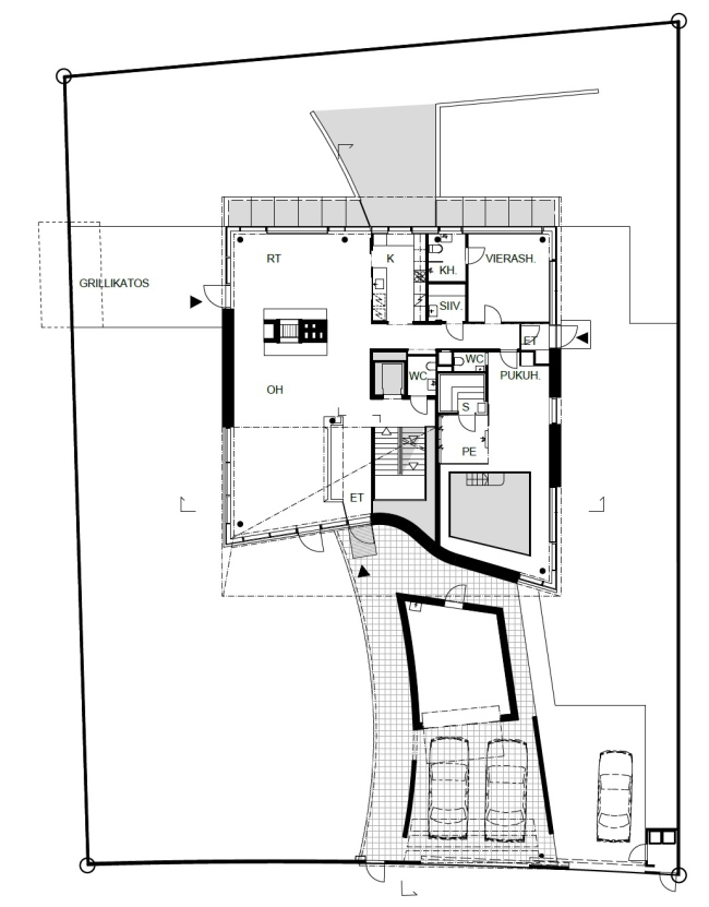
Основные помещения на уровне входа – зона двухсветной гостиной, столовой и кухни, сауна и комната для гостей с собственной ванной. Столовая и кухня, так же как и спальня выходят на задний двор.
Вилла Asikainen © Jussi Tiainen
Вилла Asikainen © Jussi Tiainen

Связь между уровнями обеспечивает открытая в пространство интерьера лестница из стекла и стали с деревянными ступенями. Для удобства гостей в доме устроен и лифт, что в Финляндии считается большой роскошью для частных домов.
Вилла Asikainen © Jussi Tiainen
Вилла Asikainen © Jussi Tiainen

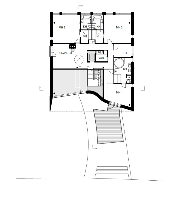
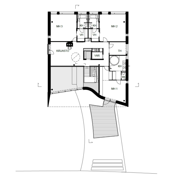
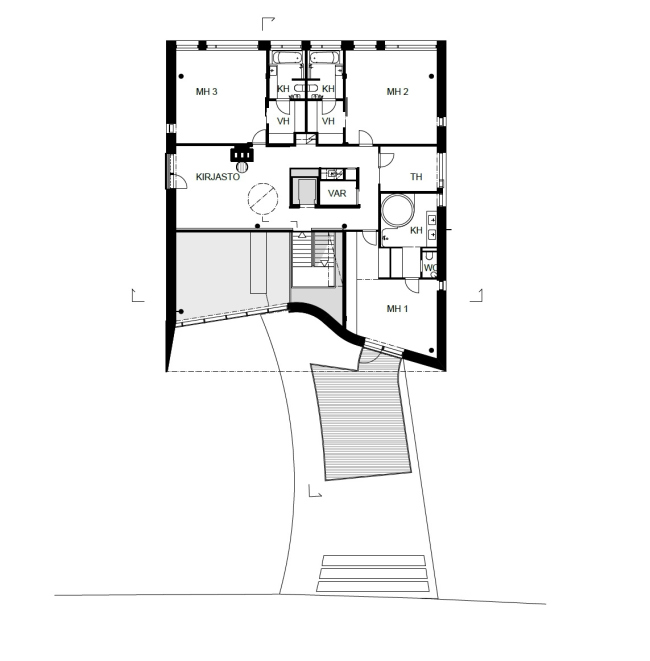
На верхнем этаже находятся спальни двух детей (где есть свои ванные и место для ночевки друзей), комната хозяев с большой террасой и зал с открытым камином. Также имеется кабинет владельца дома – изобретателя и бизнесмена. Кроме этой большой террасы, откуда можно увидеть море, имеется малая, скрытая от посторонних глаз.
Вилла Asikainen © Jussi Tiainen
Вилла Asikainen © Jussi Tiainen

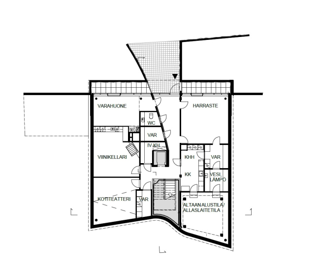
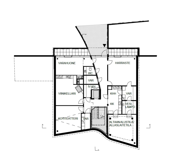
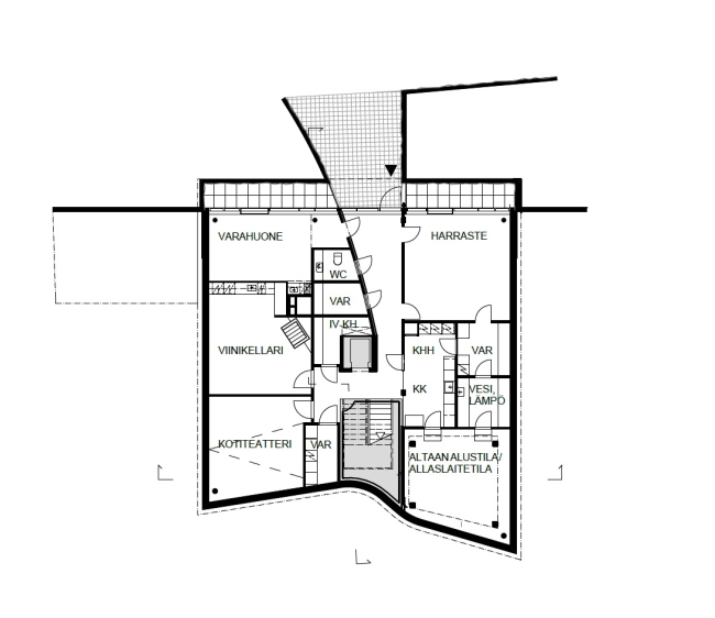
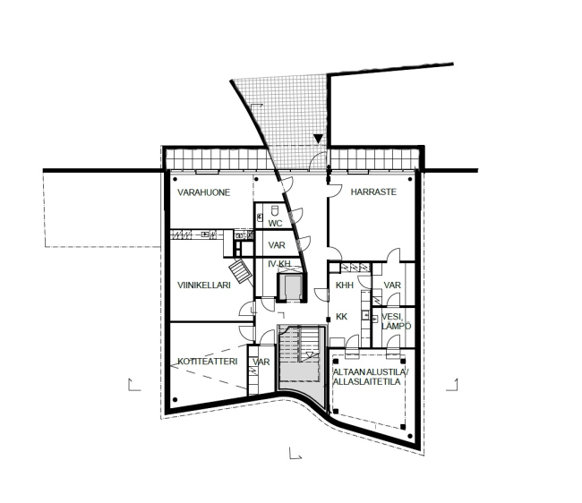
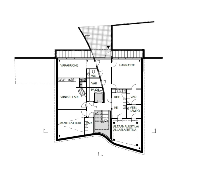
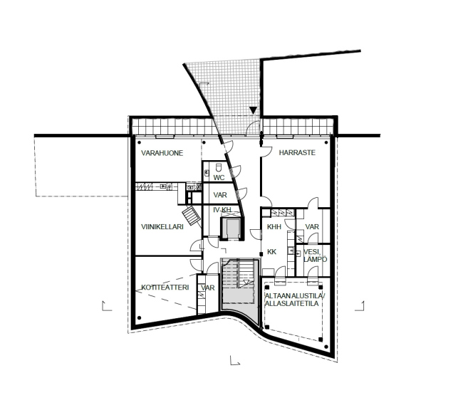
С заднего фасада видно, что в здании – три этажа: на нижнем ярусе устроены спортзал, подсобные помещения, переговорная с собственным входом, винный погреб и небольшой, но роскошный кинозал. В доме есть три камина и очаг на открытом воздухе.
Вилла Asikainen © Jussi Tiainen
Вилла Asikainen © Jussi Tiainen

Йюрки Таса тщательно согласовал постройку с контекстом: кубический объем Asikainen вторит очертаниям других домов на этой улице, и тон фасадов тоже соответствует окружению (обычно архитектор использует для своих жилых зданий гораздо более яркие цвета). Задний, по своему облику функционалистско-модернистский, фасад – также в духе соседних строений. Однако с течением времени его частично скроет разросшийся сад.
Вилла Asikainen © Jussi Tiainen
Вилла Asikainen © Jussi Tiainen

Западная часть участка отдана досугу, а восточная – хозяйственным нуждам, эти зоны разделены гаражом. Большое внимание было уделено практическим деталям, которые делают поддержание порядка максимально простым: в подвальном этаже есть специальная комната для глажки, складирования белья и т.д., в доме имеется много пространства для хранения одежды, чемоданов, спортивного инвентаря.
Вилла Asikainen © Jussi Tiainen
Вилла Asikainen © Jussi Tiainen

Дизайн интерьера выполнила студия Torpedo из Таллина.
Вилла Asikainen © Tarja Nurmi
Вилла Asikainen © Tarja Nurmi

Конечно, дом семьи Асикайнен можно назвать эксклюзивным, но любые частный заказ и сотрудничество клиента с архитектором могут дать прекрасный результат, причем сотни квадратных метров и кинозал в подвале – вовсе не необходимое условие.
Вилла Asikainen © Tarja Nurmi
Вилла Asikainen © Tarja Nurmi
Вилла Asikainen © Jussi Tiainen
Вилла Asikainen © Jussi Tiainen
Вилла Asikainen © Jussi Tiainen
Вилла Asikainen © Jussi Tiainen
Вилла Asikainen © Tarja Nurmi
Вилла Asikainen © Tarja Nurmi
Вилла Asikainen © Jyrki Tasa
Вилла Asikainen © Jyrki Tasa
Вилла Asikainen © Jyrki Tasa
Вилла Asikainen © Jyrki Tasa
Вилла Asikainen © Jyrki Tasa
Вилла Asikainen © Jyrki Tasa
Вилла Asikainen © Jyrki Tasa
Вилла Asikainen © Jyrki Tasa
Вилла Asikainen © Jyrki Tasa
Вилла Asikainen © Jyrki Tasa
Вилла Asikainen © Jyrki Tasa
Вилла Asikainen © Jyrki Tasa