Размещено на портале Архи.ру (www.archi.ru)

15.05.2014

Кирпич в молоке

Анна Мартовицкая
Объект:
Жилой дом (апартаменты) класса de luxe
Адрес:
Россия, Москва. проспект Вернадского, вл. 4
Архитектор:
Сергей Скуратов
Мастерская:
Сергей Скуратов ARCHITECTS
Авторский коллектив:
Руководитель авторского коллектива: Скуратов С.А. Архитекторы: Демидов Н.А., Ильин И.Ю. При участии Панева А.В., Гвоздикова А.С., Голубева И.В.

Конкурсное предложение жилого дома на проспекте Вернадского, выполненное мастерской «Сергей Скуратов Architects».

Жилой дом (апартаменты) класса de luxe © Сергей Скуратов ARCHITECTS
Жилой дом (апартаменты) класса de luxe © Сергей Скуратов ARCHITECTS
Проект, о котором идет речь, был разработан в середине прошлого года в рамках закрытого архитектурного конкурса. Помимо «Сергей Скуратов Architects» в этом состязании участвовали «Проект Меганом» и мастерская «Цимайло, Ляшенко и партнеры», однако победитель так и не был назван. Заказчик попросту передумал подводить итоги, так что все проекты легли на полку. Представляем нашим читателям версию Сергея Скуратова о том, каким мог бы получиться жилой дом, построенный в самом начале проспекта Вернадского.
Жилой дом (апартаменты) класса de luxe © Сергей Скуратов ARCHITECTS
Жилой дом (апартаменты) класса de luxe © Сергей Скуратов ARCHITECTS


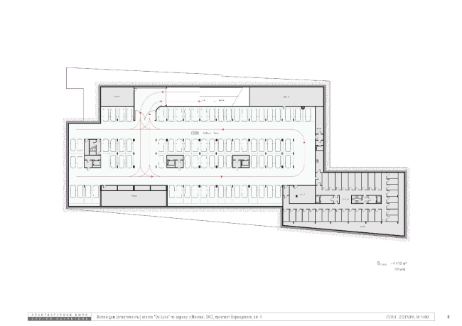
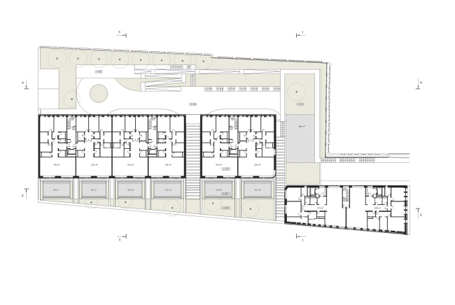
Участок, ставший предметом конкурса, расположен между парковыми зонами смотровой площадки Воробьевых гор, МГУ и бывшего Дворца пионеров. Большая часть его территории граничит с Лениногорским водопроводным узлом, и лишь с севера он соседствует с жилым комплексом «Монолит» (Косыгина,19) и Институтом жилищно-коммунального хозяйства. С точки зрения будущих жильцов, место для строительства камерного клубного дома просто идеальное: практически самый центр, изобилие зелени, завидные виды из окон. Кроме того, заказчик смог согласовать пробивку прямого заезда на территорию будущего комплекса с проспекта Вернадского, а это значит, что в распоряжении жильцов будет одна из самых удобных трасс московского юго-запада. Помимо высочайших требований к классу проектируемого жилья, участники были вполне предсказуемо ограничены по его высоте: дом не должен был нарушать сложившиеся панорамы района, а в идеале – вообще не выглядывать из-за деревьев, растущих вдоль проспекта. Скуратов это пожелание всецело соблюдает.
Жилой дом (апартаменты) класса de luxe © Сергей Скуратов ARCHITECTS
Жилой дом (апартаменты) класса de luxe © Сергей Скуратов ARCHITECTS
Жилой дом (апартаменты) класса de luxe © Сергей Скуратов ARCHITECTS
Жилой дом (апартаменты) класса de luxe © Сергей Скуратов ARCHITECTS

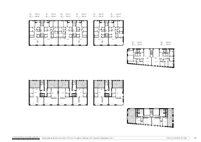
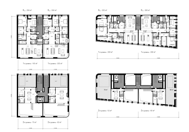
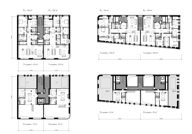
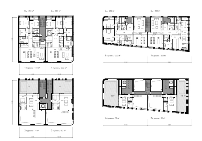
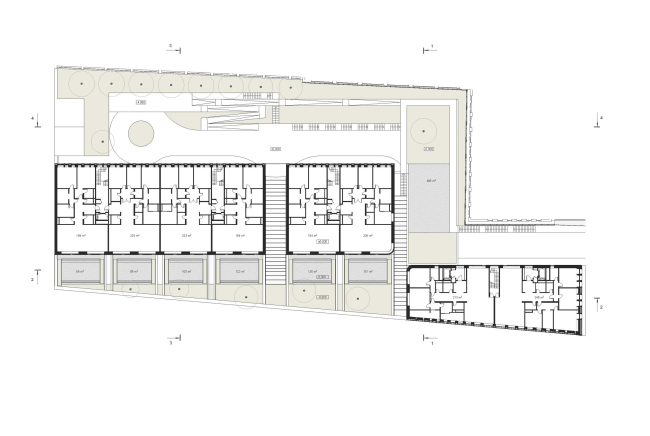
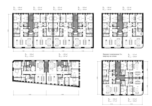
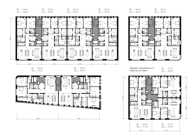
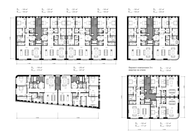
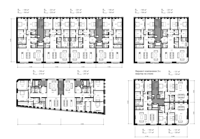
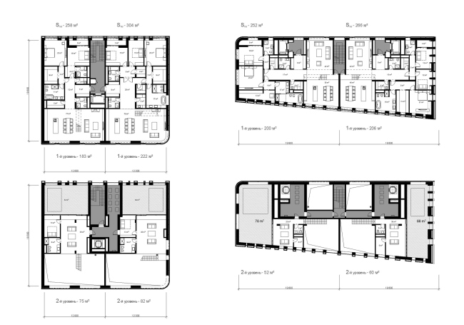
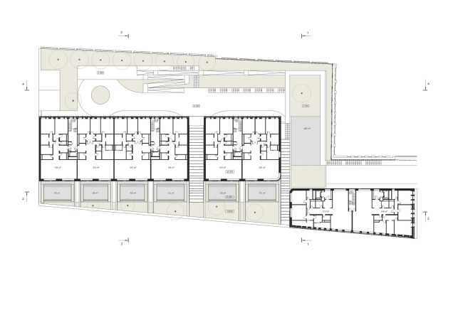
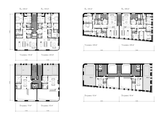
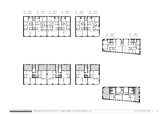
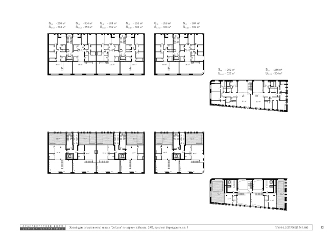
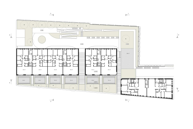
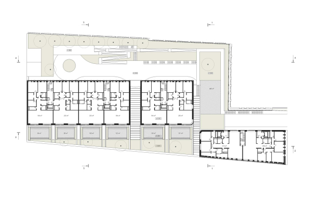
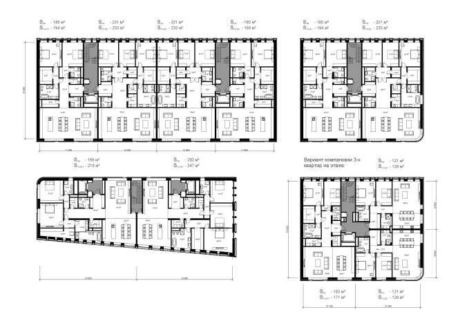
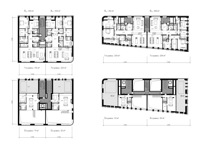
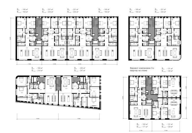
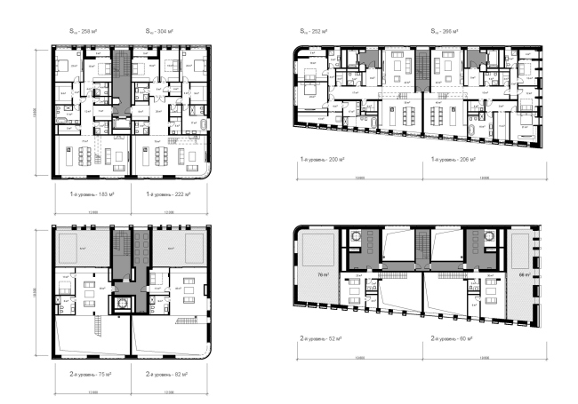
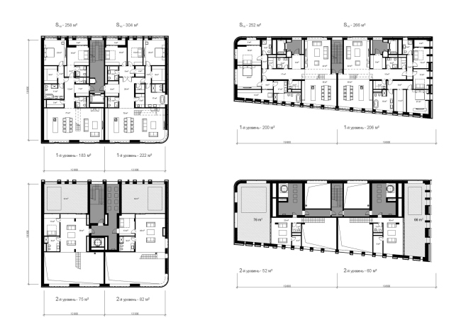
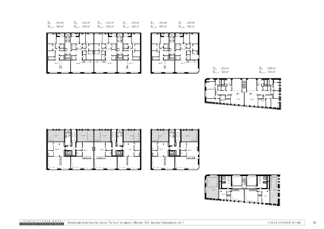
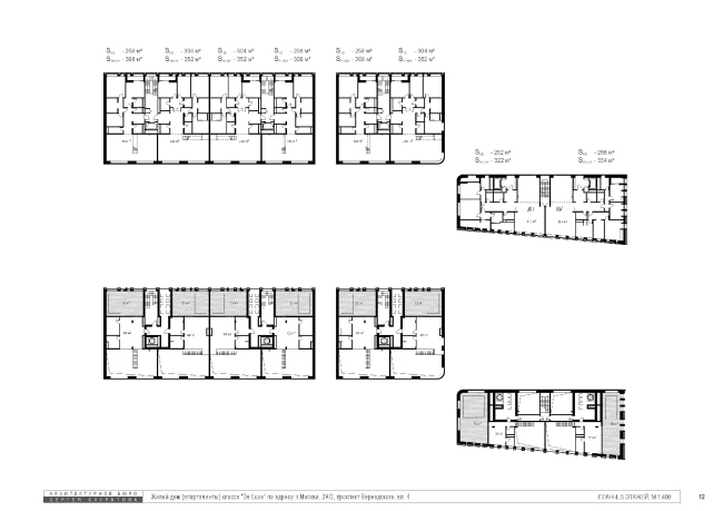
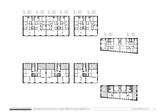
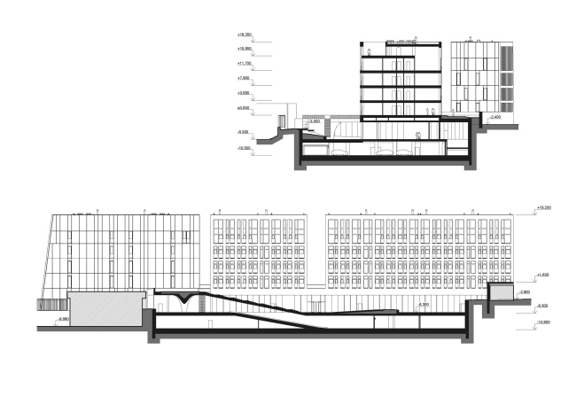
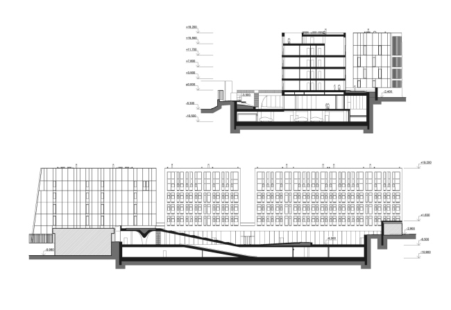
Ориентированный на проспект Вернадского, участок на самом деле расположен перпендикулярно ему, расширяясь по мере удаления от трассы, и такую же логику градостроительного развития жилому комплексу придает Сергей Скуратов. Прежде всего, это трехчастная структура, позволившая избежать создания в условиях ограниченной высотности монотонного приземистого объема. Архитектор проектирует три корпуса – более узкий фактически фиксирует заезд на участок с проспекта, тогда как два других расположены в глубине по его центральной оси.
Жилой дом (апартаменты) класса de luxe © Сергей Скуратов ARCHITECTS
Жилой дом (апартаменты) класса de luxe © Сергей Скуратов ARCHITECTS
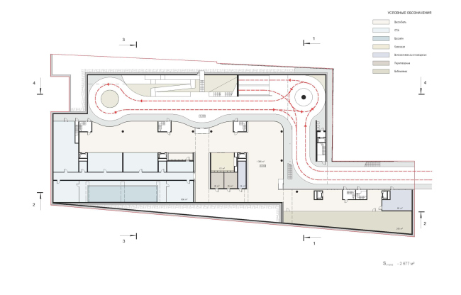
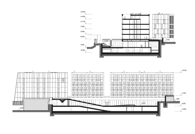
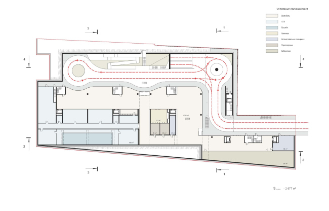
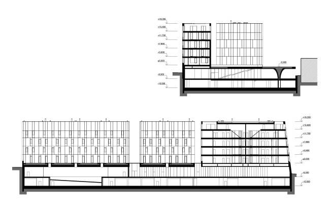
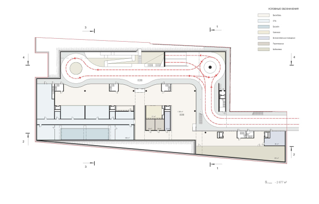
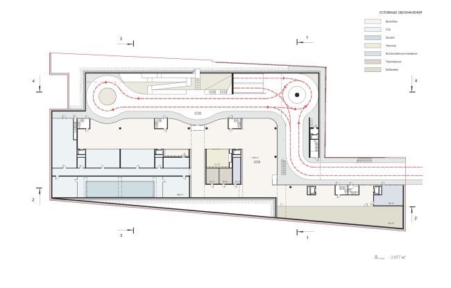
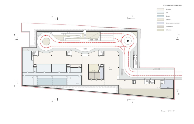
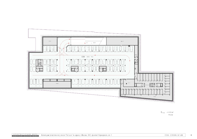
Заданное тем самым смещение объемов относительно друг друга становится важнейшей не только композиционной, но и архитектурной темой проекта: во-первых, у комплекса появляются «внешние» и «внутренние» фасады, которые решены совершенно по-разному, а во-вторых, пространство, обособленное первым корпусом, приобретает более камерный статус, чем основной двор, вытянувшийся вдоль двух других домов. Чрезвычайно на руку в этом смысле оказывается и существующий на участке перепад рельефа: понижение на 5,5 метров в сторону проспекта позволяет создать единый для всех зданий стилобат, только два дальних корпуса, как и положено, растут из него, а с «уличным» он образует единое целое. За счет этого непосредственно со стороны проспекта у комплекса возникает заезд в подземный паркинг, исключающий скопление машин на дворовой территории, а сам двор решен в двух уровнях, образуя сложную систему открытых и закрытых пространств.

Жилой дом (апартаменты) класса de luxe © Сергей Скуратов ARCHITECTS
Жилой дом (апартаменты) класса de luxe © Сергей Скуратов ARCHITECTS
Жилой дом (апартаменты) класса de luxe © Сергей Скуратов ARCHITECTS
Жилой дом (апартаменты) класса de luxe © Сергей Скуратов ARCHITECTS

Тема перепада рельефа нашла свое отражение и в архитектурном решении узкого корпуса. Получив в плане форму трапеции (Скуратов ставит его точно по границам выделенного «аппендикса»), он как раз в сторону проспекта немного расширяется. И этому в прямом смысле представительному фасаду архитектор придает ощутимый уклон: дом словно отводит голову от шумной трассы, не желая иметь с ней ничего общего. А поскольку его первый уровень – это на самом деле стилобат, архитектор решает «низ» максимально массивно, используя сплошную кирпичную кладку. Выше броня прорезана довольно узкими вертикалями окон, которые лишь на боковом фасаде начинают растягиваться и становиться по-настоящему панорамными.
Жилой дом (апартаменты) класса de luxe © Сергей Скуратов ARCHITECTS
Жилой дом (апартаменты) класса de luxe © Сергей Скуратов ARCHITECTS
Жилой дом (апартаменты) класса de luxe © Сергей Скуратов ARCHITECTS
Жилой дом (апартаменты) класса de luxe © Сергей Скуратов ARCHITECTS
Аналогичным образом решены и «внешние» фасады двух других корпусов, которыми они обращены к соседям – жилому дому и институту. Выполнить неприступные стены Скуратов предполагал из клинкерного кирпича Kolumba производства датской компании Petersen Tegl, а в пару ему поставить стекло, местами прозрачное, а местами становящееся все более матовым, до состояния подлинной молочной белизны. Именно такими выполнены внутренние фасады, которыми дома смотрят на самую камерную часть территории – сады квартир первого этажа.
Жилой дом (апартаменты) класса de luxe © Сергей Скуратов ARCHITECTS
Жилой дом (апартаменты) класса de luxe © Сергей Скуратов ARCHITECTS
Жилой дом (апартаменты) класса de luxe © Сергей Скуратов ARCHITECTS
Жилой дом (апартаменты) класса de luxe © Сергей Скуратов ARCHITECTS
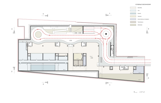
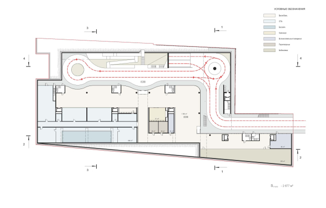
Отдельно стоит сказать и о взаимоотношениях корпусов между собой. Там, где трапеция и квадратный в плане средний дом смотрят друг на друга молочными фасадами, архитектор скругляет острые углы, тем самым делая стеклянную часть оболочки зданий еще более эфемерной. Зато между собой второй и третий корпуса взаимодействуют глухими плоскостями брандмауэров: дело в том, что самый дальний от проспекта дом в два раза длиннее среднего, и соотношение длин позволило именно под этим «ущельем» разместить центральный вход в комплекс. Естественно, кровля над ним делается полностью прозрачной, и получившийся головокружительный световой колодец эффектно дополняет интерьеры общественной зоны. А в них, нужно сказать, архитекторы вложились особо.
Жилой дом (апартаменты) класса de luxe © Сергей Скуратов ARCHITECTS
Жилой дом (апартаменты) класса de luxe © Сергей Скуратов ARCHITECTS
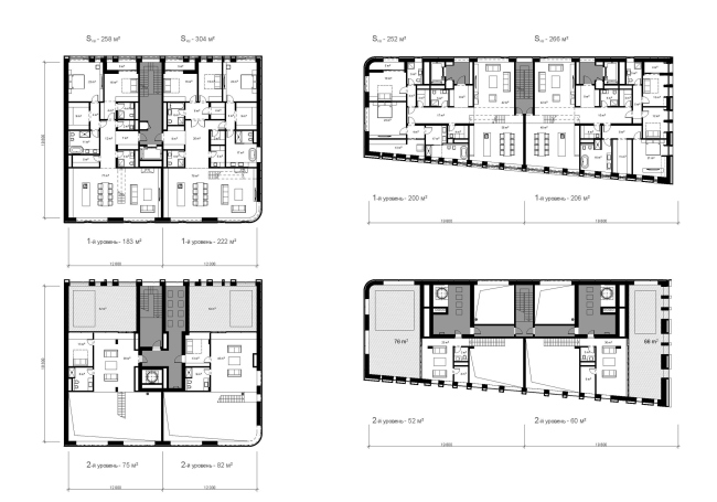
И если в архитектуре комплекса доминирует строгая геометрия (новый дом входит в контекст очень собранно), то в интерьере, наоборот, господствует тема растворения границ. Интерьеры квартир не просто лаконичны, но доводят до абсолюта идею «ничего лишнего», реализовать которую в быту, как известно, могут лишь очень состоятельные люди. Рафинированную белизну частных жилых пространств обрамляют решенные более материально интерьеры общественных зон. Здесь тоже присутствует белый цвет, но уже не доминирует столь однозначно: ослепительно белые полы переходят в стены молочного стекла, а оно, в свою очередь, становится все более прозрачным по мере приближения к потолку. Этой хрупкой, словно истончающейся материи противопоставлен теплый монолит натурального дерева – им отделаны потолки, часть стен и интерьеры библиотеки, включенной в состав помещений первого этажа по инициативе архитектора и ставшей «закономерным интеллектуальным финалом данной типологии». От улицы вестибюль отделен стеклянной стеной, которая изгибается волной, не просто смещая границу между внешним и внутренним, но придавая входной зоне более гостеприимные мягкие очертания, выдающие истинное лицо этого на первый взгляд очень закрытого дома.
Жилой дом (апартаменты) класса de luxe © Сергей Скуратов ARCHITECTS
Жилой дом (апартаменты) класса de luxe © Сергей Скуратов ARCHITECTS
Жилой дом (апартаменты) класса de luxe © Сергей Скуратов ARCHITECTS
Жилой дом (апартаменты) класса de luxe © Сергей Скуратов ARCHITECTS
Жилой дом (апартаменты) класса de luxe © Сергей Скуратов ARCHITECTS
Жилой дом (апартаменты) класса de luxe © Сергей Скуратов ARCHITECTS
Жилой дом (апартаменты) класса de luxe © Сергей Скуратов ARCHITECTS
Жилой дом (апартаменты) класса de luxe © Сергей Скуратов ARCHITECTS
Жилой дом (апартаменты) класса de luxe © Сергей Скуратов ARCHITECTS
Жилой дом (апартаменты) класса de luxe © Сергей Скуратов ARCHITECTS
Жилой дом (апартаменты) класса de luxe © Сергей Скуратов ARCHITECTS
Жилой дом (апартаменты) класса de luxe © Сергей Скуратов ARCHITECTS
Жилой дом (апартаменты) класса de luxe © Сергей Скуратов ARCHITECTS
Жилой дом (апартаменты) класса de luxe © Сергей Скуратов ARCHITECTS
Жилой дом (апартаменты) класса de luxe © Сергей Скуратов ARCHITECTS
Жилой дом (апартаменты) класса de luxe © Сергей Скуратов ARCHITECTS
Жилой дом (апартаменты) класса de luxe © Сергей Скуратов ARCHITECTS
Жилой дом (апартаменты) класса de luxe © Сергей Скуратов ARCHITECTS
Жилой дом (апартаменты) класса de luxe © Сергей Скуратов ARCHITECTS
Жилой дом (апартаменты) класса de luxe © Сергей Скуратов ARCHITECTS
Жилой дом (апартаменты) класса de luxe © Сергей Скуратов ARCHITECTS
Жилой дом (апартаменты) класса de luxe © Сергей Скуратов ARCHITECTS
Жилой дом (апартаменты) класса de luxe © Сергей Скуратов ARCHITECTS
Жилой дом (апартаменты) класса de luxe © Сергей Скуратов ARCHITECTS
Жилой дом (апартаменты) класса de luxe © Сергей Скуратов ARCHITECTS
Жилой дом (апартаменты) класса de luxe © Сергей Скуратов ARCHITECTS
Жилой дом (апартаменты) класса de luxe © Сергей Скуратов ARCHITECTS
Жилой дом (апартаменты) класса de luxe © Сергей Скуратов ARCHITECTS
Жилой дом (апартаменты) класса de luxe © Сергей Скуратов ARCHITECTS
Жилой дом (апартаменты) класса de luxe © Сергей Скуратов ARCHITECTS
Жилой дом (апартаменты) класса de luxe © Сергей Скуратов ARCHITECTS
Жилой дом (апартаменты) класса de luxe © Сергей Скуратов ARCHITECTS
Жилой дом (апартаменты) класса de luxe © Сергей Скуратов ARCHITECTS
Жилой дом (апартаменты) класса de luxe © Сергей Скуратов ARCHITECTS
Жилой дом (апартаменты) класса de luxe © Сергей Скуратов ARCHITECTS
Жилой дом (апартаменты) класса de luxe © Сергей Скуратов ARCHITECTS
Жилой дом (апартаменты) класса de luxe © Сергей Скуратов ARCHITECTS
Жилой дом (апартаменты) класса de luxe © Сергей Скуратов ARCHITECTS
Жилой дом (апартаменты) класса de luxe © Сергей Скуратов ARCHITECTS
Жилой дом (апартаменты) класса de luxe © Сергей Скуратов ARCHITECTS
Жилой дом (апартаменты) класса de luxe © Сергей Скуратов ARCHITECTS
Жилой дом (апартаменты) класса de luxe © Сергей Скуратов ARCHITECTS
Жилой дом (апартаменты) класса de luxe © Сергей Скуратов ARCHITECTS
Жилой дом (апартаменты) класса de luxe © Сергей Скуратов ARCHITECTS
Жилой дом (апартаменты) класса de luxe © Сергей Скуратов ARCHITECTS
Жилой дом (апартаменты) класса de luxe © Сергей Скуратов ARCHITECTS
Жилой дом (апартаменты) класса de luxe © Сергей Скуратов ARCHITECTS
Жилой дом (апартаменты) класса de luxe © Сергей Скуратов ARCHITECTS
Жилой дом (апартаменты) класса de luxe © Сергей Скуратов ARCHITECTS
Жилой дом (апартаменты) класса de luxe © Сергей Скуратов ARCHITECTS
Жилой дом (апартаменты) класса de luxe © Сергей Скуратов ARCHITECTS
Жилой дом (апартаменты) класса de luxe © Сергей Скуратов ARCHITECTS
Жилой дом (апартаменты) класса de luxe © Сергей Скуратов ARCHITECTS
Жилой дом (апартаменты) класса de luxe © Сергей Скуратов ARCHITECTS
Жилой дом (апартаменты) класса de luxe © Сергей Скуратов ARCHITECTS
Жилой дом (апартаменты) класса de luxe © Сергей Скуратов ARCHITECTS
Жилой дом (апартаменты) класса de luxe © Сергей Скуратов ARCHITECTS
Жилой дом (апартаменты) класса de luxe © Сергей Скуратов ARCHITECTS
Жилой дом (апартаменты) класса de luxe © Сергей Скуратов ARCHITECTS
Жилой дом (апартаменты) класса de luxe © Сергей Скуратов ARCHITECTS
Жилой дом (апартаменты) класса de luxe © Сергей Скуратов ARCHITECTS
Жилой дом (апартаменты) класса de luxe © Сергей Скуратов ARCHITECTS
Жилой дом (апартаменты) класса de luxe © Сергей Скуратов ARCHITECTS
Жилой дом (апартаменты) класса de luxe © Сергей Скуратов ARCHITECTS
Жилой дом (апартаменты) класса de luxe © Сергей Скуратов ARCHITECTS
Жилой дом (апартаменты) класса de luxe © Сергей Скуратов ARCHITECTS
Жилой дом (апартаменты) класса de luxe © Сергей Скуратов ARCHITECTS
Жилой дом (апартаменты) класса de luxe © Сергей Скуратов ARCHITECTS
Жилой дом (апартаменты) класса de luxe © Сергей Скуратов ARCHITECTS63
Жилой дом (апартаменты) класса de luxe © Сергей Скуратов ARCHITECTS63
Жилой дом (апартаменты) класса de luxe © Сергей Скуратов ARCHITECTS
Жилой дом (апартаменты) класса de luxe © Сергей Скуратов ARCHITECTS
Жилой дом (апартаменты) класса de luxe © Сергей Скуратов ARCHITECTS
Жилой дом (апартаменты) класса de luxe © Сергей Скуратов ARCHITECTS
Жилой дом (апартаменты) класса de luxe © Сергей Скуратов ARCHITECTS
Жилой дом (апартаменты) класса de luxe © Сергей Скуратов ARCHITECTS
Жилой дом (апартаменты) класса de luxe © Сергей Скуратов ARCHITECTS
Жилой дом (апартаменты) класса de luxe © Сергей Скуратов ARCHITECTS
Жилой дом (апартаменты) класса de luxe © Сергей Скуратов ARCHITECTS
Жилой дом (апартаменты) класса de luxe © Сергей Скуратов ARCHITECTS
Жилой дом (апартаменты) класса de luxe © Сергей Скуратов ARCHITECTS
Жилой дом (апартаменты) класса de luxe © Сергей Скуратов ARCHITECTS