Размещено на портале Архи.ру (www.archi.ru)

24.04.2014

Библиотека начинается с лестницы

Анна Мартовицкая
Объект:
Культурный центр Eemhuis
Адрес:
Нидерланды, None, Амерсфорт.
Мастерская:
Neutelings Riedijk

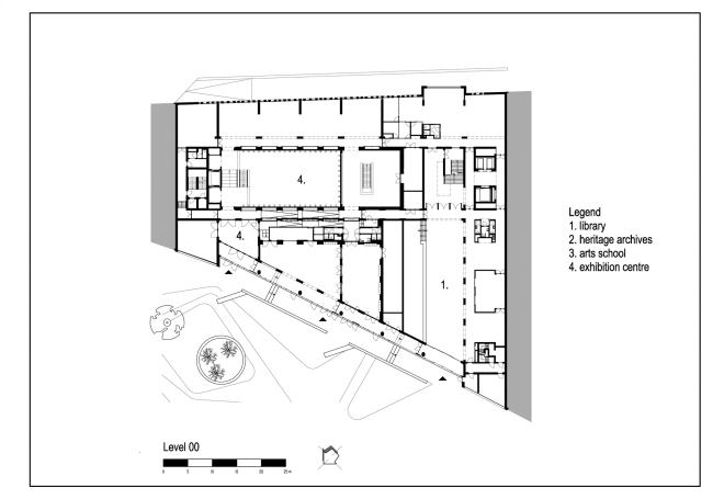
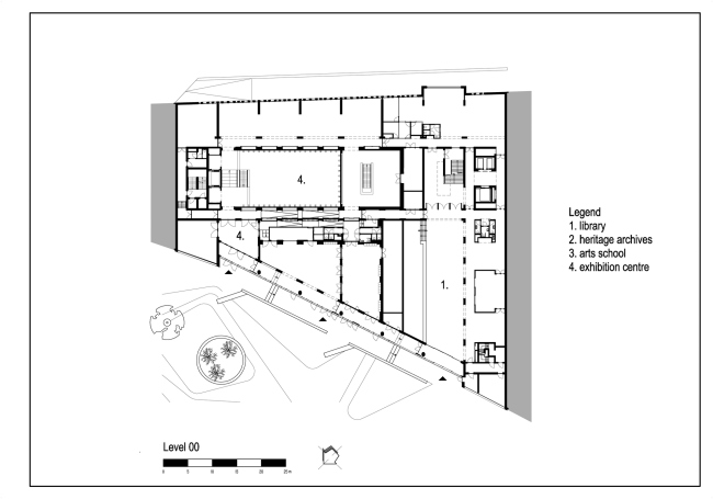
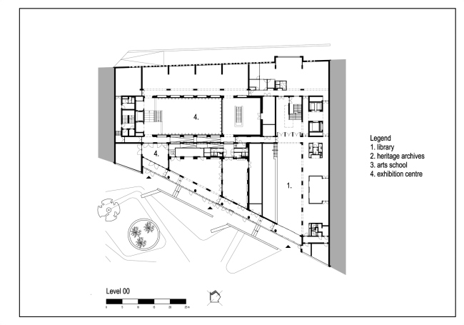
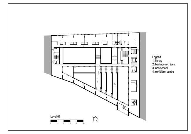
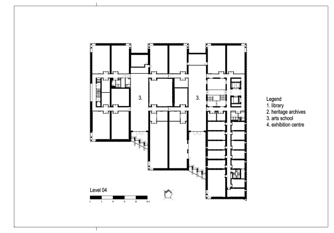
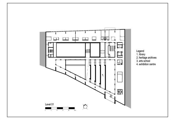
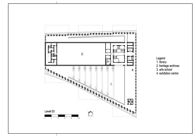
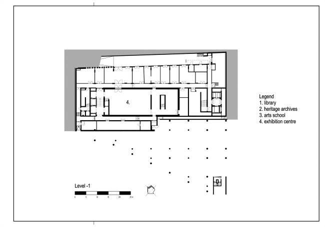
В городе Амерсфорт по проекту Neutelings Riedijk закончено строительство культурного центра Eemhuis, объединившего библиотеку, выставочный зал, архив и школу искусств.

Культурный центр Eemhuis. Фото: scagliolabrakkee © Neutelings Riedijk Architecten
Культурный центр Eemhuis. Фото: scagliolabrakkee © Neutelings Riedijk Architecten
Получив заказ на создание столь насыщенного функциями объема, архитекторы решили отразить подобную многочастность не только в планировке, но и в самой структуре здания. Возведенный неподалеку от центра Амерсфорта, в бывшей промышленной зоне, которая сегодня переживает комплексную реновацию, Eemhuis получил сложную, если не сказать, замысловатую форму. Поперек трапециевидного основания архитекторы кладут три прямоугольных бруска, которые завершают выразительной «гребенкой». Если к этому прибавить, что нижний объем облицован глазурованным темно-коричневым кирпичом и стеклом, а верхние блоки – панелями из полированного металла, украшенными полусферами разного диаметра, станет понятно, что в Амерсфорте построен абсолютно футуристический объект, которому просто суждено стать одним из новых символом этого города.
Культурный центр Eemhuis. Фото: scagliolabrakkee © Neutelings Riedijk Architecten
Культурный центр Eemhuis. Фото: scagliolabrakkee © Neutelings Riedijk Architecten

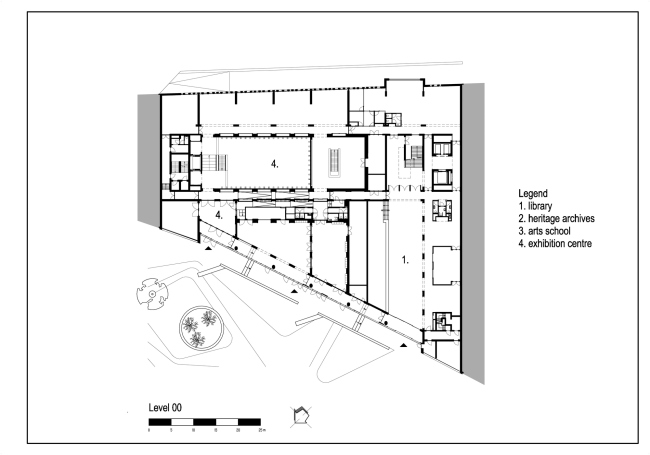
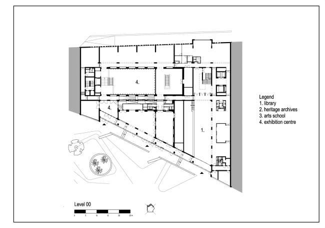
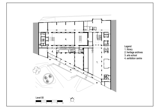
Перед культурным центром архитекторы разбивают пешеходную площадь, и первый этаж здания трактуют как ее крытое продолжение. Именно поэтому нижний уровень комплекса почти полностью остеклен, а со второго этажа он приобретает брутальную кирпичную оболочку, призванную напомнить о промышленном прошлом участка.
Культурный центр Eemhuis © Neutelings Riedijk Architecten
Культурный центр Eemhuis © Neutelings Riedijk Architecten

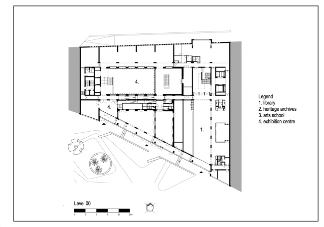
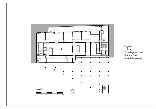
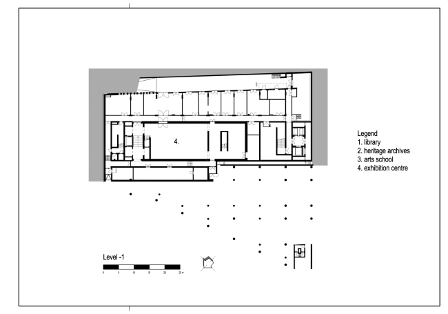
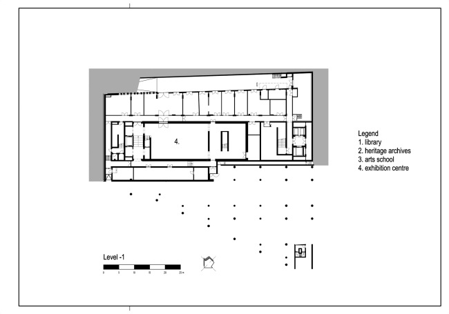
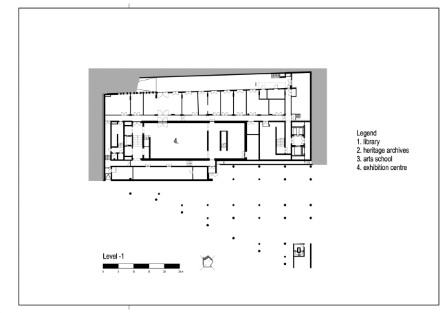
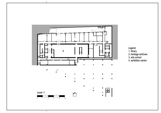
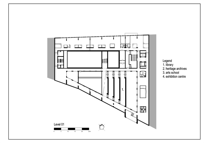
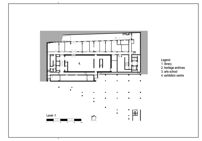
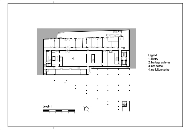
Функции на первом этаже центра подобраны под стать его общественному статусу: помимо входного фойе, откуда можно попасть в каждый из блоков, здесь разместились большое кафе и выставочный зал. Объем последнего архитекторы слегка утапливают в землю и окружают «ожерельем» более камерных выставочных пространств: их можно использовать как для размещения одной экспозиции, так и для организации сразу нескольких независимых проектов.
Культурный центр Eemhuis © Neutelings Riedijk Architecten
Культурный центр Eemhuis © Neutelings Riedijk Architecten

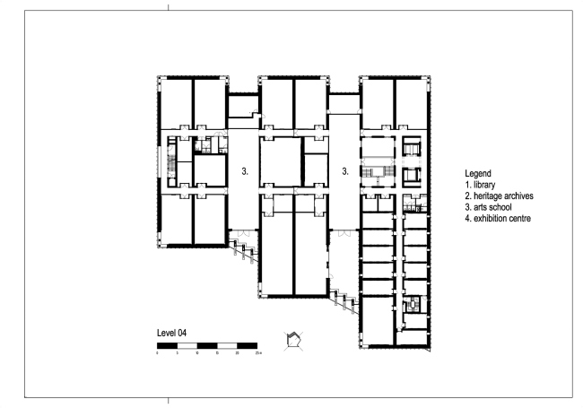
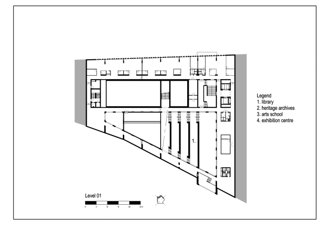
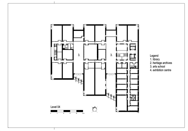
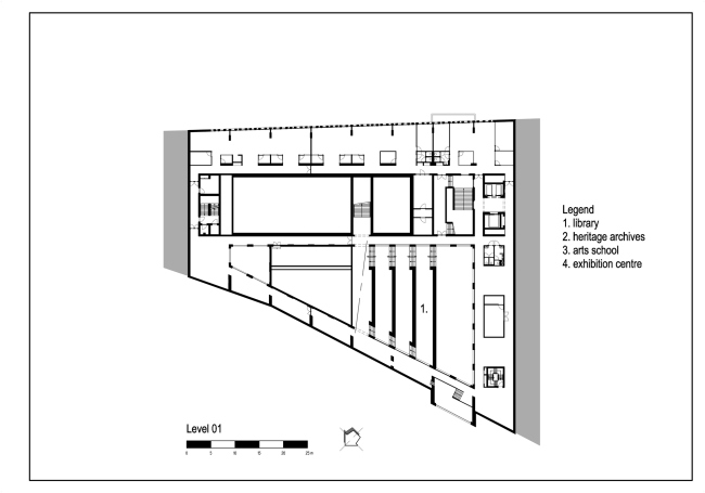
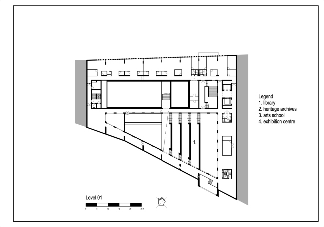
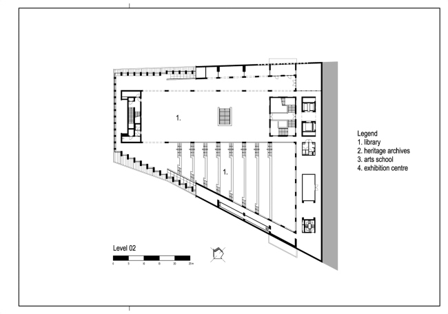
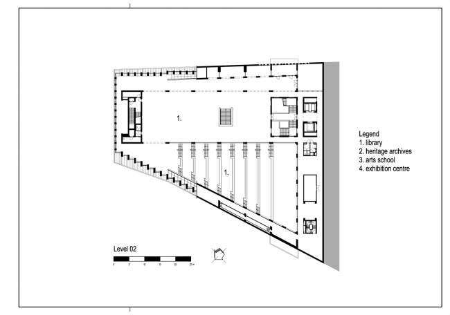
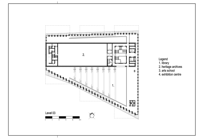
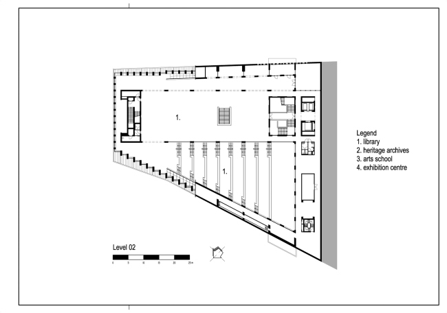
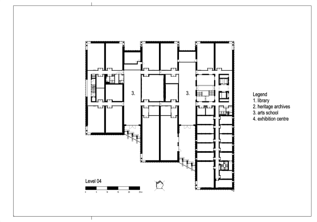
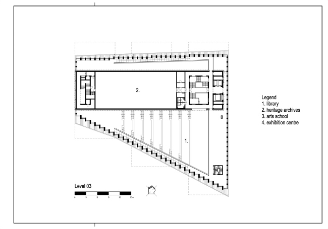
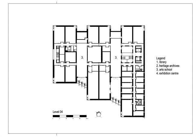
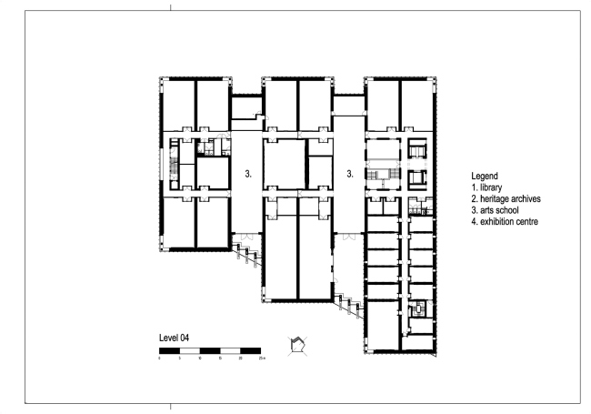
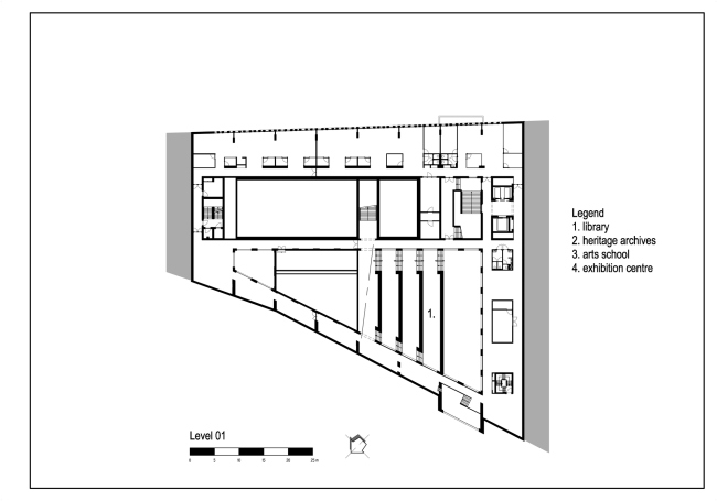
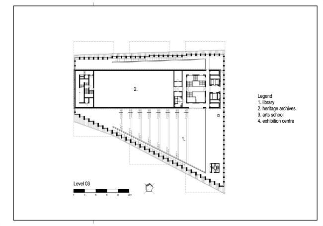
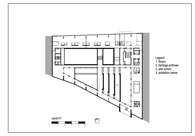
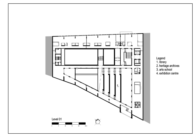
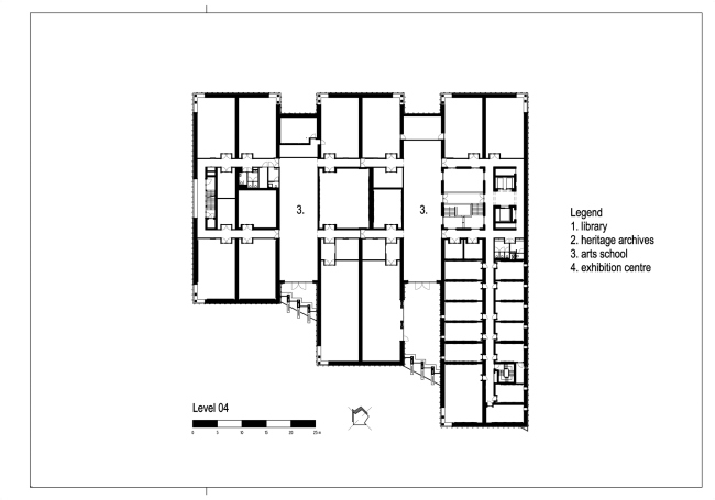
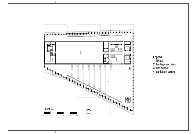
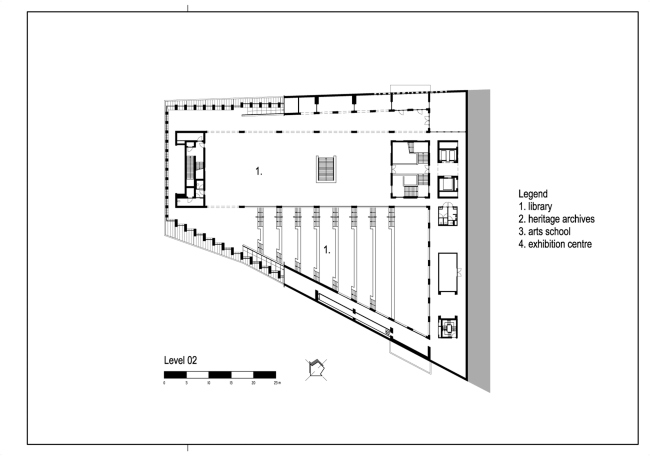
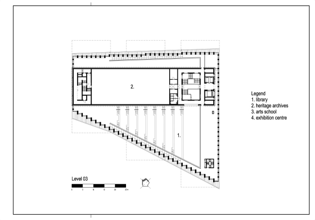
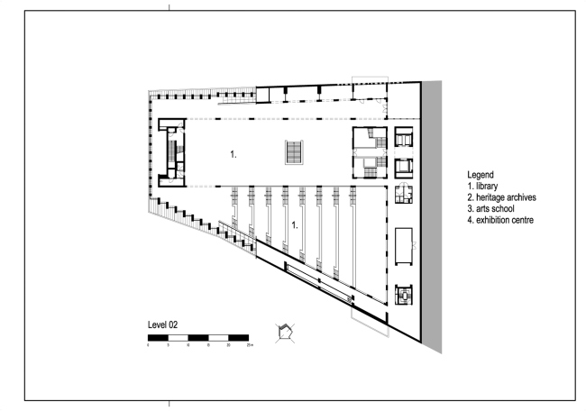
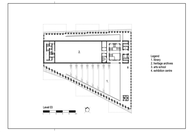
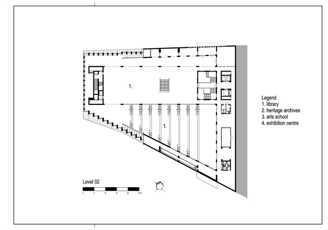
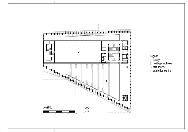
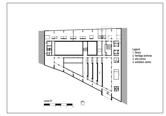
На следующем этаже разместилась библиотека, но начинается она с лестницы, соединяющей первый и второй уровни комплекса. Эту лестницу архитекторы решают в виде нескольких широких террас, на каждой из которой оборудованы места для чтения и работы. Сама библиотека получила свободную планировку: в едином пространстве, обставленном стеллажами с книгами, созданы уютные островки для занятий. Над библиотекой расположился городской архив, а еще выше – Школа искусств. Факультеты последней (театр и танец, музыка, визуальные искусства) разведены по отдельным объемам – тем самым «брускам» – что позволило не только сделать каждое из отделений самостоятельным, но и обеспечить их достаточным количеством классов и репетиционных студий.
Культурный центр Eemhuis © Neutelings Riedijk Architecten
Культурный центр Eemhuis © Neutelings Riedijk Architecten
Культурный центр Eemhuis © Neutelings Riedijk Architecten
Культурный центр Eemhuis © Neutelings Riedijk Architecten
Культурный центр Eemhuis © Neutelings Riedijk Architecten
Культурный центр Eemhuis © Neutelings Riedijk Architecten
Культурный центр Eemhuis © Neutelings Riedijk Architecten
Культурный центр Eemhuis © Neutelings Riedijk Architecten
Культурный центр Eemhuis © Neutelings Riedijk Architecten
Культурный центр Eemhuis © Neutelings Riedijk Architecten
Культурный центр Eemhuis © Neutelings Riedijk Architecten
Культурный центр Eemhuis © Neutelings Riedijk Architecten
Культурный центр Eemhuis © Neutelings Riedijk Architecten
Культурный центр Eemhuis © Neutelings Riedijk Architecten
Культурный центр Eemhuis © Neutelings Riedijk Architecten
Культурный центр Eemhuis © Neutelings Riedijk Architecten