Размещено на портале Архи.ру (www.archi.ru)

16.05.2014

Черно-белый дуэт

Анна Мартовицкая
Объект:
Архитектурно-градостроительное решение корпусов номер 5 и 6 жилого комплекса «Нагорная»
Адрес:
Россия, Москва. Электролитный проезд, вл.16
Архитектор:
Игорь Шварцман
Мастерская:
АМ Сергей Киселев и Партнеры
Авторский коллектив:
Архитекторы: Никифоров А.В., Бреславцев А.О., Бусалов А.Ю., Анисимов Н.В. Инженеры: Шварцман И.З., Спиридонов К.Ю.

Около станции метро «Нагорная» по проекту «Архитектурной мастерской «Сергей Киселев и Партнеры» скоро начнется строительство двух жилых башен, привлекающих внимание своей выразительной шахматной облицовкой.

Архитектурно-градостроительное решение корпусов номер 5 и 6 жилого комплекса «Нагорный» © «Сергей Киселев и Партнеры»
Архитектурно-градостроительное решение корпусов номер 5 и 6 жилого комплекса «Нагорный» © «Сергей Киселев и Партнеры»
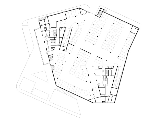
Этим проектом мастерская занимается с января 2013 года, когда компания «Ведис-групп» обратилась в «СКиП» с просьбой разработать архитектурное решение двух «флагманских» башен нового жилого квартала. Строящийся рядом с метро «Нагорная» на месте «Котельского завода», этот квартал состоит из 6 жилых корпусов, детского сада и многоэтажного паркинга. Четыре корпуса, протянувшиеся непосредственно от метро вдоль Электролитного проезда, представляют собой привязки типовых 25-этажных секционных домов, а вот башни, расположенные вдоль южной границы участка на изгибе Криворожской улицы, довольно долго не материализовывались, присутствуя в проекте лишь номинально. Девелоперу было понятно, что здесь типовыми решениями не обойдешься – и по расположению, и по классу жилья башни так и просились в знаковые объекты, способные придать характер не только новому кварталу, но и всему данному району, застроенному довольно хаотично. 
Архитектурно-градостроительное решение корпусов номер 5 и 6 жилого комплекса «Нагорный» © «Сергей Киселев и Партнеры»
Архитектурно-градостроительное решение корпусов номер 5 и 6 жилого комплекса «Нагорный» © «Сергей Киселев и Партнеры»
«Нам задача с самого начала показалась интересной. С одной стороны, возможность создать лицо квартала, с другой – поработать в интересном ландшафте. Существующий район сегодня нельзя назвать привлекательным, но он обладает несомненным потенциалом, который мы своим проектом и хотели выявить», – рассказывает главный архитектор проекта Андрей Никифоров.

В плане обе башни получили форму равнобоких трапеций. Этот вариант был придуман далеко не сразу: архитекторы экспериментировали и с квадратом, и с прямоугольником, но выразительность и самодостаточность форма высоток приобрела лишь после того, как нарисовались трапеции. Довольно долго авторы искали и оптимальный угол поворота трапеций по отношению к близлежащим улицам: они пробовали привязать дома и к изгибающейся Криворожской, и к Электролитному проезду, и к расположенной напротив жилой застройке, но, строго говоря, ни одна из этих сеток не воспринимается в пространстве как однозначно доминирующая. Поэтому в итоге оптимальным было признано решение, при котором западные фасады обеих башен параллельны уже строящимся длинным корпусам квартала.
Архитектурно-градостроительное решение корпусов номер 5 и 6 жилого комплекса «Нагорный» © «Сергей Киселев и Партнеры»
Архитектурно-градостроительное решение корпусов номер 5 и 6 жилого комплекса «Нагорный» © «Сергей Киселев и Партнеры»
Параллельно шел кропотливый поиск фасадных решений. «Мы вообще убеждены, что фасад должен отражать объемное решение, служить его органичным продолжением, подчеркивая форму и структуру здания, а в ситуации столь рыхлой градостроительной среды, как в районе «Нагорной», это просто жизненно необходимо», – уверен ГАП. Авторы проекта пробовали как разнообразные варианты одинакового оформления башен, так и контрастную облицовку, играя на разнице цветов и фактур материалов. В итоге победил математический модульный рисунок в виде черных и белых квадратов. На боковых фасадах они обрамляют каждое из окон, складываясь в выразительные диагонали, укрупняя масштаб, а вот на торцах, следуя логике выбранной авторами формы, «клеточки» растягиваются и слегка теряют в высоте. 
Архитектурно-градостроительное решение корпусов номер 5 и 6 жилого комплекса «Нагорный» © «Сергей Киселев и Партнеры»
Архитектурно-градостроительное решение корпусов номер 5 и 6 жилого комплекса «Нагорный» © «Сергей Киселев и Партнеры»
Цветовые акценты в этом проекте используются лишь в оформлении входных групп общественной зоны. Для облицовки самих объемов архитекторы сознательно выбрали монохромную гамму, стремясь противопоставить высотки пестроте их ближайшего окружения – типовых жилых серий, яркая палитра которых компенсирует известное однообразие планировочных решений. Однако черно-белые фасады на этом фоне совсем не теряются – и за счет самой выразительной формы башен, и за счет микрорельефа: темные элементы заглублены, а светлые, наоборот, немного выдавлены наружу. Такое решение придает шахматным поверхностям объем и, как поясняет Андрей Никифоров, лишает их ощущения «картонности», столь свойственной многим современным фасадам. Однако для того, чтобы претворить его в жизнь, архитекторам пришлось изрядно помучиться: вариант изготовления западающих и выпуклых квадратов из архитектурного бетона не получился, а при использовании традиционной системы вентилируемых фасадов «рамки» приходилось членить на четыре отдельных плашки, что автоматически означало появление между ними заметных швов. Также непросто было найти способ технологичного решения для выполнения рельефа из выступающих и западающих элементов. Наиболее оправданным вариантом решения узла стало то, при котором белые и черные HPL-панели фасадной плоскости обрамляются рамками из металлических профилей соответствующего цвета. 
Архитектурно-градостроительное решение корпусов номер 5 и 6 жилого комплекса «Нагорный» © «Сергей Киселев и Партнеры»
Архитектурно-градостроительное решение корпусов номер 5 и 6 жилого комплекса «Нагорный» © «Сергей Киселев и Партнеры»
На первых этажах обеих башен расположены небольшие лоты, каждый со своим входом с наружного контура здания. Что же касается квартир, то их линейка получилась максимально широкой за счет того, что жилые помещения сосредоточены вдоль боковых сторон трапеции и бьются на модули, соответствующие размерам фасадов. Перегородки можно двигать в любом направлении, меняя площадь не только отдельных комнат, но и квартир в целом. Важно и то, что мокрые зоны собраны в отдельные линии, как бы обнимающие лестнично-лифтовое ядро, что позволит будущим жильцам делать перепланировки и в этой части квартир, не «заезжая» на жилые помещения соседей. 
Архитектурно-градостроительное решение корпусов номер 5 и 6 жилого комплекса «Нагорный» © «Сергей Киселев и Партнеры»
Архитектурно-градостроительное решение корпусов номер 5 и 6 жилого комплекса «Нагорный» © «Сергей Киселев и Партнеры»
На широкий задний фасад выведена техническая лоджия с эвакуационной лестницей. Лоджию отвели под размещение блоков кондиционеров – тем самым защитив фасады от несанкционированных вторжений. Андрей Никифоров сокрушается, что не удалось полностью отказаться от балконов: с точки зрения пожарной безопасности две лестницы делают их наличие необязательным, но маркетологи настояли на нескольких лоджиях, зная, что квартиры с ними продать проще. «Балконный» компромисс достигнут в планировке больших торцевых квартир – лоджии возникают там, где «клеточки» шахматных фасадов растягиваются в прямоугольники. 
Архитектурно-градостроительное решение корпусов номер 5 и 6 жилого комплекса «Нагорный» © «Сергей Киселев и Партнеры»
Архитектурно-градостроительное решение корпусов номер 5 и 6 жилого комплекса «Нагорный» © «Сергей Киселев и Партнеры»
Огромное внимание в этом проекте авторы уделили и благоустройству территории вокруг башен. Поскольку они являются частью большего квартала, огораживать их дворы было бы неправильно, но предложить зонирование пространства архитекторам хотелось, и в этом смысле им чрезвычайно на руку оказался существующий на участке перепад высот: дома строятся на изломе не только Криворожской улицы, но и рельефа, опускающегося от участка в сторону живописного оврага. К улице, таким образом, башни выходят довольно строгим двором, парадное назначение которого подчеркнуто с помощью геометрического рисунка мощения, а вот уже зона въезда на территорию комплекса ощутимо понижена и служит своего рода границей между рациональной урбанизированной тканью и живописной природной: между домами и многоэтажным паркингом архитекторы проектируют что-то вроде живописного садика (на крыше подземного паркинга), который еще дальше от дороги превращается в полноценный парк. Еще один кусочек земли – островок вдоль Криворожской, также принадлежащий девелоперу, архитекторы отделили ширмой из деревьев и использовали для создания спортивной площадки.
Архитектурно-градостроительное решение корпусов номер 5 и 6 жилого комплекса «Нагорный» © «Сергей Киселев и Партнеры»
Архитектурно-градостроительное решение корпусов номер 5 и 6 жилого комплекса «Нагорный» © «Сергей Киселев и Партнеры»
Помимо проекта благоустройства, мастерская «Сергей Киселев и Партнеры» разработала для башен проекты интерьеров входных зон и общественных коридоров. И как фасады являются логичным продолжением объемного решения домов, так и их интерьеры органично развивают заложенные в архитектуру комплекса художественные приемы. В частности, у фасадов авторы заимствуют черно-белую гамму: материалом темного цвета отделаны стены входных вестибюлей и коридоров, белыми выполнены потолки и несущие колонны. Правда, строгая геометрия фасадной сетки здесь уступает место плавным очертаниям потолочных ниш, а монохромность палитры разбавлена полами теплого бежевого оттенка и фитостеной, насыщенный зеленый цвет которой должны будут обеспечить живые растения. 
Архитектурно-градостроительное решение корпусов номер 5 и 6 жилого комплекса «Нагорный» © «Сергей Киселев и Партнеры»
Архитектурно-градостроительное решение корпусов номер 5 и 6 жилого комплекса «Нагорный» © «Сергей Киселев и Партнеры»
Архитектурно-градостроительное решение корпусов номер 5 и 6 жилого комплекса «Нагорный» © «Сергей Киселев и Партнеры»
Архитектурно-градостроительное решение корпусов номер 5 и 6 жилого комплекса «Нагорный» © «Сергей Киселев и Партнеры»
Архитектурно-градостроительное решение корпусов номер 5 и 6 жилого комплекса «Нагорный» © «Сергей Киселев и Партнеры»
Архитектурно-градостроительное решение корпусов номер 5 и 6 жилого комплекса «Нагорный» © «Сергей Киселев и Партнеры»
Архитектурно-градостроительное решение корпусов номер 5 и 6 жилого комплекса «Нагорный» © «Сергей Киселев и Партнеры»
Архитектурно-градостроительное решение корпусов номер 5 и 6 жилого комплекса «Нагорный» © «Сергей Киселев и Партнеры»
Архитектурно-градостроительное решение корпусов номер 5 и 6 жилого комплекса «Нагорный» © «Сергей Киселев и Партнеры»
Архитектурно-градостроительное решение корпусов номер 5 и 6 жилого комплекса «Нагорный» © «Сергей Киселев и Партнеры»
Архитектурно-градостроительное решение корпусов номер 5 и 6 жилого комплекса «Нагорный» © «Сергей Киселев и Партнеры»
Архитектурно-градостроительное решение корпусов номер 5 и 6 жилого комплекса «Нагорный» © «Сергей Киселев и Партнеры»
Архитектурно-градостроительное решение корпусов номер 5 и 6 жилого комплекса «Нагорный» © «Сергей Киселев и Партнеры»
Архитектурно-градостроительное решение корпусов номер 5 и 6 жилого комплекса «Нагорный» © «Сергей Киселев и Партнеры»