Размещено на портале Архи.ру (www.archi.ru)

17.04.2014

Волна из камня

Анна Мартовицкая
Объект:
Офисное здание Tesdorpfstrasse 8
Адрес:
Германия, None, Гамбург.
Мастерская:
gmp

По проекту бюро gmp в Гамбурге построено офисное здание Tesdorpfstrasse 8.

Офисное здание Tesdorpfstrasse 8 © Heiner Leiska
Офисное здание Tesdorpfstrasse 8 © Heiner Leiska
Здание построено в гамбургском районе Ротербаум неподалеку от железнодорожного вокзала Даммтор. Его ближайшими соседями стали 5-звездочный отель Grand Elysée и жилой дом, построенный в начале XX века. Как признаются авторы проекта, именно этот градостроительный контекст, задающий столь высокую планку качества, оказал решающее влияние на архитектурное решение нового офисного центра.
Офисное здание Tesdorpfstrasse 8 © Heiner Leiska
Офисное здание Tesdorpfstrasse 8 © Heiner Leiska

В качестве облицовочного материала gmp без колебаний выбрали натуральный камень, а высоту нового объема полностью подчинили отметкам соседей. Архитекторы имели право сделать комплекс 7-этажным, однако они предпочли разновысотное решение и понижают свое здание на этаж по мере приближения к отелю и жилому дому. А для того, чтобы сгладить этот переход, архитекторы придают фасадам нового объема максимально плавные, волнистые очертания. 
Офисное здание Tesdorpfstrasse 8 © Heiner Leiska
Офисное здание Tesdorpfstrasse 8 © Heiner Leiska

Вьющиеся вдоль фасада ленты межэтажных перекрытий не везде выполнены из камня: отчетливо артикулированные «пояса» время от времени сменяются полностью прозрачными вставками, что еще больше визуально скрадывает истинную высоту комплекса.
Офисное здание Tesdorpfstrasse 8 © Heiner Leiska
Офисное здание Tesdorpfstrasse 8 © Heiner Leiska

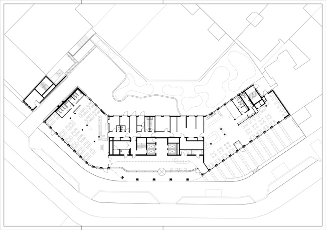
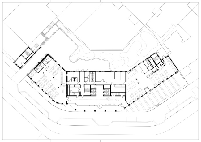
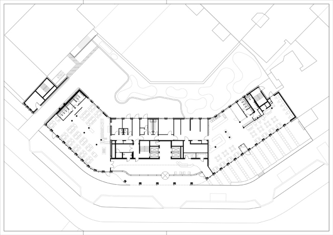
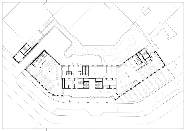
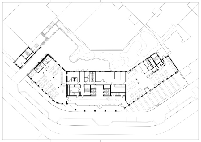
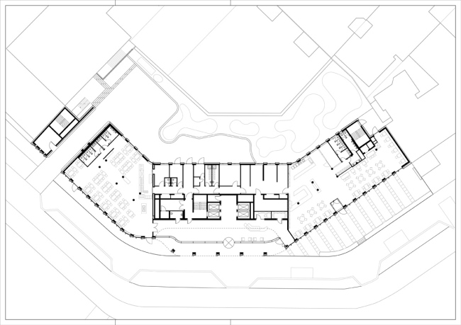
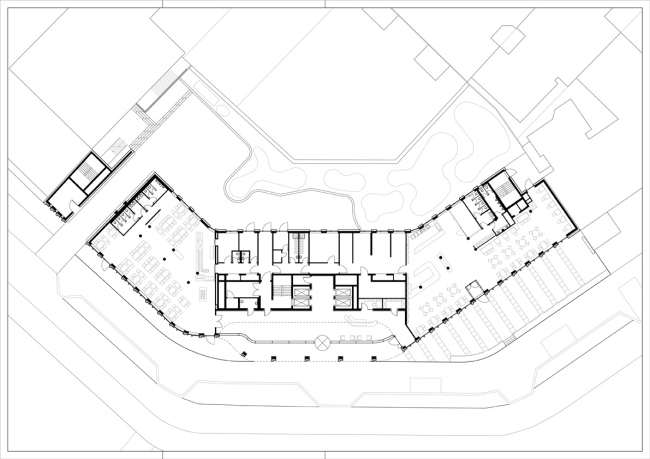
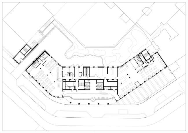
Вход в здание отмечен элегантной аркадой высотой в два этажа, масштабу которой вторят столь же высокие витражи панорамного остекления. Кроме вестибюля, на первом этаже расположены столовая для сотрудников и вместительный ресторан. Верхние этажи заняты офисами, среди которых преобладают помещения с максимально эффективной свободной планировкой, а также имеются небольшие отдельные кабинеты, комнаты отдыха и переговорные.
Офисное здание Tesdorpfstrasse 8 © Heiner Leiska
Офисное здание Tesdorpfstrasse 8 © Heiner Leiska

Спроектированное и построенное с использованием самых современных энергоэффективных технологий, офисное здание Tesdorpfstrasse 8 в ближайшее время может получить Золотой сертификат немецкого стандарта DGNB.
Офисное здание Tesdorpfstrasse 8 © Heiner Leiska
Офисное здание Tesdorpfstrasse 8 © Heiner Leiska
Офисное здание Tesdorpfstrasse 8 © Heiner Leiska
Офисное здание Tesdorpfstrasse 8 © Heiner Leiska
Офисное здание Tesdorpfstrasse 8 © Heiner Leiska
Офисное здание Tesdorpfstrasse 8 © Heiner Leiska
Офисное здание Tesdorpfstrasse 8 © Heiner Leiska
Офисное здание Tesdorpfstrasse 8 © Heiner Leiska
Офисное здание Tesdorpfstrasse 8 © gmp
Офисное здание Tesdorpfstrasse 8 © gmp
Офисное здание Tesdorpfstrasse 8 © gmp
Офисное здание Tesdorpfstrasse 8 © gmp
Офисное здание Tesdorpfstrasse 8 © gmp
Офисное здание Tesdorpfstrasse 8 © gmp
Офисное здание Tesdorpfstrasse 8 © gmp
Офисное здание Tesdorpfstrasse 8 © gmp