Размещено на портале Архи.ру (www.archi.ru)

16.04.2014

История двух возрождений. Восточная Пруссия – Калининградская область. Часть 1 – с 1915

Дмитрий Сухин

Доклад на конференции ДоКоМоМо о восстановлении городов Восточной Пруссии в годы Первой мировой войны силами немецких архитекторов и русских военнопленных.

Доклад Дмитрия Сухина был представлен на научной конференции российского отделения ДоКоМоМо «Реставрация и приспособление: функции-пространство-цвет» (4-5 апреля 2014). Доклады всех участников будут опубликованы как сборник статей. Мы предлагаем вниманию наших читателей текст Дмитрия Сухина в предвкушении будущего сборника, а также потому, что его тема сейчас актуальна, как никогда.
Вторую часть этого доклада читайте здесь.

Ландшафт Восточной Пруссии. Изображение предоставлено Дмитрием Сухиным
Ландшафт Восточной Пруссии. Изображение предоставлено Дмитрием Сухиным
Ландшафт Восточной Пруссии. Изображение предоставлено Дмитрием Сухиным
Ландшафт Восточной Пруссии. Изображение предоставлено Дмитрием Сухиным
Ландшафт Восточной Пруссии. Изображение предоставлено Дмитрием Сухиным
Ландшафт Восточной Пруссии. Изображение предоставлено Дмитрием Сухиным


Отрез земли меж морей и болот, пресный песчаный блин; скудная, растительная жизнь за причудливо взбитым побережьем, высокие кирхи, малые городки: «должно его видеть, чтоб не зияла в душе прореха» – Калининградскую область, Восточную Пруссию. Но что проку в той красоте, в интеллигентской о ней рефлексии – на пожарище мировой войны?

Нас от него отделяет ровно 100 лет: век назад, 1 августа 1914 года, Германией объявлена была война России. Российские войска вошли в Восточную Пруссию 17 августа.
Военные разрушения 1914 года. Изображение предоставлено Дмитрием Сухиным
Военные разрушения 1914 года. Изображение предоставлено Дмитрием Сухиным

Население бежит, Гинденбург спешит на помощь, вал катится назад и вперед: получаем 60 000 руин частичных, исправимых, и 41 400 руин невосстанавливаемых. В иных городках, Ширвиндте или Эйткунене, устояли лишь дом-другой – взывали к национальной гордости и продовольственной безопасности: Восточная Пруссия была и местом прусской коронации, и житницей всей страны!

Война лишь разгоралась, средства были, знания тоже: Германия – родина градостроительной науки и восстановления тоже. Особенно тут: отлистаем 100 лет на календаре – ровно такая же разруха, Наполеон прошел.
Разрушенный город Гердауэн. Изображение предоставлено Дмитрием Сухиным
Разрушенный город Гердауэн. Изображение предоставлено Дмитрием Сухиным
Разрушенный поселок городского типа Железнодорожный. Изображение предоставлено Дмитрием Сухиным
Разрушенный поселок городского типа Железнодорожный. Изображение предоставлено Дмитрием Сухиным

Еще столетие – и вновь, Северная война. Еще, и вновь, и вновь: но раз за разом поднималась земля, лишь сейчас все не удастся никак. Рецепты или руки не те? Так взглянем на предшественников, кому удавалось! И если решения орденских или наполеоновых лет уроки нам уж никак не применить, то обратимся к последнему успешному примеру восстановления провинции – пусть научит нас, как правильно сделать что-либо подобное!

Как строить, чтобы построенное было во всех смыслах «к месту»?
«Рыбная деревня» и проект Эрхарда. Изображение предоставлено Дмитрием Сухиным
«Рыбная деревня» и проект Эрхарда. Изображение предоставлено Дмитрием Сухиным

Знакомый вопрос: кайзеровские псевдо-стили Бодо Эбхарда 1915 года ничуть не лучше (пост)советской «Рыбной деревни» Башина 2005 года. Беда из-за чужаков? – среди уроженцев Восточной Пруссии архитекторы бывали, но на родине они работали редко; среди калининградцев ситуация будет, верно, такой же – но о них еще не написали книг.
Бруно Таут, Макс Таут, Бруно Мёринг, Эрих Мендельсон. Изображение предоставлено Дмитрием Сухиным
Бруно Таут, Макс Таут, Бруно Мёринг, Эрих Мендельсон. Изображение предоставлено Дмитрием Сухиным
Братьев Таутов, из Кенигсберга, мы до войны найдем в Берлине, там же и Меринга, из Тильзита, Мендельсона, из Алленштейна, и там же – Союз восточнопрусских художников. Дома же даже Общество архитекторов и инженеров было передвижным – ни в одном городе в отдельности не нашлось довольно архитекторов или инженеров для местной ячейки.
Карикатура, 1902 год. Изображение предоставлено Дмитрием Сухиным
Карикатура, 1902 год. Изображение предоставлено Дмитрием Сухиным
Зато в изобилии рождались анекдотические юнкера (сегодня – их наследники по духу): им ли, падким на красивости-кручености, штукатурные наметы да кондитерские куполки, доверить восточно-прусские городки?

Вариант недеяния, сохранения руин как некрополей и разбивки по соседству «Ново-Ширвинта» или «Эйдкунена-2» остался французам. Барачные городки – бельгийцам. «Восстанавливать»? – нет, «возрождать»!

Приструнили местные (слабо)силы, декретировав, что проектант не может быть связанным с подрядчиком-исполнителем, и запретив генподряды вообще; притормозили мэтров, пытавшихся выбить себе пару-тройку «ленных» городов – велик и отрицателен был опыт заглазного строительства даже со Шлютером или Штюлером; также и заводчиков, тем более – казенных строителей (за отсутствием «изобретательного мышления, изворотливости, импровизации», а также допущение прежних либерализмов от строительства).
Вместо всего этого посреди войны, в кольце фронтов прошел эксперимент по строительству Родины, «более прусской, чем прежняя была». Типизация и фабричность в нем нашли свое место – но без переноса готовых решений откуда бы то ни было; толевым крышам не покорились крыши черепичные; фахверки работали, а не апплицировались; псевдо-замков не строилось вовсе.
Восстановительные проекты. Изображение предоставлено Дмитрием Сухиным
Восстановительные проекты. Изображение предоставлено Дмитрием Сухиным
Восстановительные проекты. Изображение предоставлено Дмитрием Сухиным
Восстановительные проекты. Изображение предоставлено Дмитрием Сухиным
Распространились основательные формы, сдержанный рисунок и рельеф, окна без ниш; кирпич со штукатуркой, валунные цоколи, высокие скаты («подлинные фасады Восточной Пруссии – крыши»), редкие башенки и слуховые окошки. Местные силы переобучались. Архитектор-художник должен был отказаться от авторской позы.

Он был к тому готов – сказалось многолетнее воспитание Веркбундом. Вспомним: в конце XIX века, после потуг выродить «стиль», из осознания проектно-исполнительского разлада Англия разродилась «Движением искусств и ремесел», а «немецкое качество» прошло путь от запретительного знака, придуманного, чтоб оградить британские прилавки от германской третьесортицы, до произносимого с придыханием предиката – именно под водительством этого самого бунда. Неплохо бы и нам так же суметь! Но нет российского аналога, некому «ценить формы за верность материалу и технологии, откуда бы те ни произошли», или «работать над этим же, изучая обычаи ремесленников на местах», как делали они. Ученые труды тех лет желтеют невостребованными в архивах – но наш читатель не знает языков. Он желает рецептов.

Германн Мутезиус, Рихард Детлеффсен. Изображение предоставлено Дмитрием Сухиным
Германн Мутезиус, Рихард Детлеффсен. Изображение предоставлено Дмитрием Сухиным
«Суть не в повторении неких форм, а в тактичном встраивании в среду», – писал основатель Веркбунда Герман Мутезиус. Выстраивать ее следует через воспоминание о прежней, через сводную идеализацию, а не буквальную детализацию, не пытаясь выдать себя за дитя иного времени и не стирая с лица земли следы своих предшественников. Красоты прошлого следовало «не втискивать в вымученно-стародавнего вида градостроительные планы, но дать им прорасти в них естественным образом, стать неотъемлемой чертой современности», «современность имеет природное право на собственное слово» в городском ансамбле – это уже земельный консерватор профессор Рихард Детлеффсен, Восточной Пруссии главный реставратор.

Уже в январе 1915-го более полутысячи архитекторов направились в прифронтовую Пруссию, genius loci возрождать. Конкурс был 1,6 человек на место. В укладках рейсшины, томики Камилло Зитте и Пауля Шульце-Наумбурга, в подорожных – новый титул: «архзаступники». Защитники духа зодчества.
Строительство в Шталлупенене. Изображение предоставлено Дмитрием Сухиным
Строительство в Шталлупенене. Изображение предоставлено Дмитрием Сухиным
22 августа 1915 года начали первые стройки. Уроженцев всех краев и областей Германии объединял – дух кельнской выставки 1914 года, не нашедший применения в метрополии.
Хуго Хэринг, Йоганнес фон Батоцки, Фридрих Пауль Фишер. Изображение предоставлено Дмитрием Сухиным
Хуго Хэринг, Йоганнес фон Батоцки, Фридрих Пауль Фишер. Изображение предоставлено Дмитрием Сухиным
Восстановленный город Алленштейн. Изображение предоставлено Дмитрием Сухиным
Восстановленный город Алленштейн. Изображение предоставлено Дмитрием Сухиным
Слова Хуго Хэринга, известнейшего функционалиста, о поместье в Гаркау, не отличить от слов президента провинции Адольфа Макса Йоганнеса Тортиловиц фон Батоцки-Фрибе, о принципах восстановления – а ведь и Хэринг начинал тут, отстраивал Алленбург, нынешнюю Дружбу.
Невосстановленный посёлок городского типа Дружба, разбитая кирха Алленштейна. Изображение предоставлено Дмитрием Сухиным
Невосстановленный посёлок городского типа Дружба, разбитая кирха Алленштейна. Изображение предоставлено Дмитрием Сухиным
Мы ее отстроить не смогли.

Архитекторы создавали мир – их трудами открылись «Первая восточнопрусская художественная выставка», отделения Союза немецких архитекторов и Веркбунда (1915, оба под председательством Детлеффсенна) и даже особое «Общество (борьбы) за приличную архитектуру»... Критическая масса, которой до того столь не хватало здешней архитектуре. Критическая буквально, «архитектурными заседателями» в тройках-худсоветах, мировыми судьями перед самими восточнопруссаками. Сколько раз нам – им! – это удалось после?..

Объявление о первых районных архитекторах, карта их районов. Изображение предоставлено Дмитрием Сухиным
Объявление о первых районных архитекторах, карта их районов. Изображение предоставлено Дмитрием Сухиным
Заслуженные и пытливые практики, исследователи и типизаторы, районные архитекторы и их «строительные консультации» (обязательные к применению) обезвреживали ошибки либеральных лет, исправляли конструктив и социум: в прошлое уходили квартиры менее 36 м2, этажи ниже 2,80 м в свету, участки, застроенные сплошь...
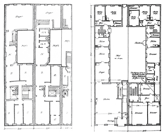
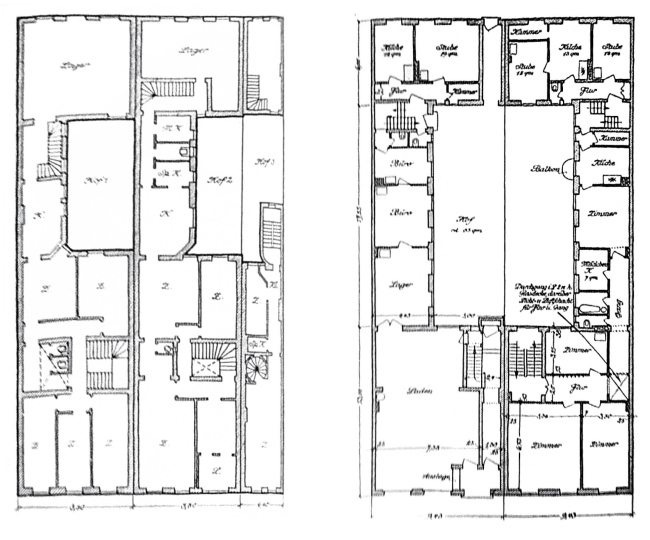
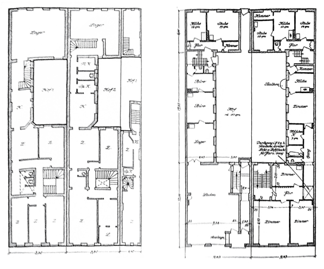
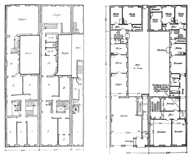
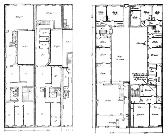
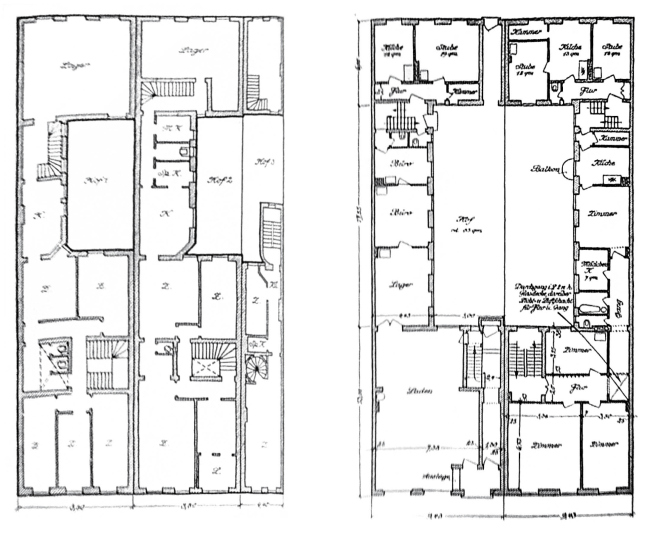
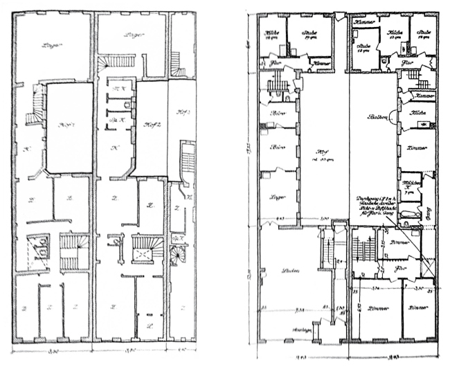
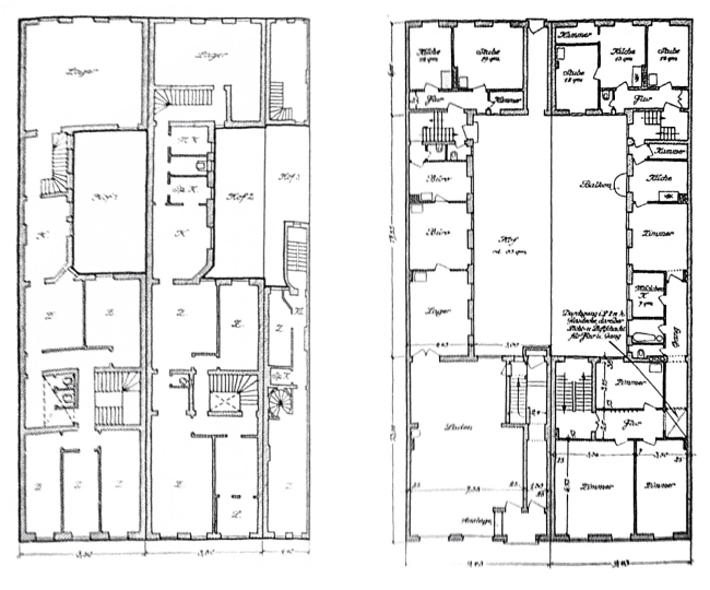
Три участка до восстановления – два после. Изображение предоставлено Дмитрием Сухиным
Три участка до восстановления – два после. Изображение предоставлено Дмитрием Сухиным
Иное владение становилось неудобным – его объединяли с соседним; иной проект оказывался расточительным, с зеркальным или витринным окном, ковровыми или линолеумными дорожками, панелированием или массивными балками – не дать подобному строительного билета законы не позволяли, а пособие на восстановление воспретить – легко!

Военные лишения заставили обратиться к собственным своим потребностям и умениям. К оправданным переменам без навязчивой красивости и вреда сложившемуся целому. К осуществимым конструкциям здесь и сейчас. «Современно» кровлю крыть толем или битумом, но те ломают строй традиционно-островерхих крыш, да и не проложить их без протечек – находим свое в черепице. Нет кирпича – берем фахверк, краску – вялого штукатурья и дешевле, и техничней, гигиеничней и честней. Пассеизм, вожделеющий не только города или стиля, как у Лукомского – таков город-сад в Дрездене-Хеллерау, «Гримнабор» в Берлине-Фалькенберге, аналогию найдем в сельсоветах Никольского – и в «Восточнопрусском восстановлении». Время истинности.

Недвусмысленные правила, приказы властей, при частнособственническо-товарищеской организации строительства и жесточайшей нехватке материалов породили новый стиль и метод работы, «зарю новой Германии» (Мутезиус). Дома отвечали и требованиям современного комфорта, и традициям.
Фасады рыночной площади: начало XIX века, конец XIX века, после восстановления. Изображение предоставлено Дмитрием Сухиным
Фасады рыночной площади: начало XIX века, конец XIX века, после восстановления. Изображение предоставлено Дмитрием Сухиным
Где ратушу прежде обходила ровная линия высоких крыш, а XIX век понастроил дробного, разновысокого, куполков да эркеров – формы вновь выравнивались под единый карниз или ритм фронтонов.
Восстановленный город Гердауэн, детали. Изображение предоставлено Дмитрием Сухиным
Восстановленный город Гердауэн, детали. Изображение предоставлено Дмитрием Сухиным
Углы, сбитые под транзит, из технической необходимости превращались в изящный мотив, витрины встраивались аркадами нового времени.
Восстановленный город Ширвинт, детали. Изображение предоставлено Дмитрием Сухиным
Восстановленный город Ширвинт, детали. Изображение предоставлено Дмитрием Сухиным
Полностью заново построен был сельский город Ширвиндт.
Восстановленный город Шталлупёнен, карта площадей. Изображение предоставлено Дмитрием Сухиным
Восстановленный город Шталлупёнен, карта площадей. Изображение предоставлено Дмитрием Сухиным
Шталлупенен к цепочке трех барочных площадей прибавил пропилеи: аркады при выходе на одну площадь, ступенчатые щипцы на выходе на другую.
Вильгельм II в Шталлупёнене. Изображение предоставлено Дмитрием Сухиным
Вильгельм II в Шталлупёнене. Изображение предоставлено Дмитрием Сухиным
Кайзер, проезжая в 1917 году, пририсовал тут треугольничек фронтона: «согласитесь, так было бы красивей?» – чем не гостиница «Москва»? Архитектор Фрик за словом не полез в карман: «Если бы, Ваше величество!»; кайзеровский росчерк не стер, но от прочих облагораживаний удержался.

Внешне – сдержанный экспрессионизм или модернизированный традиционализм; внутренне – единственная в своем роде школа «нового прусского духа», художественного, гражданского. Немалый труд и позабытые имена.
Курт Фрик, улица в Дрездене-Хеллерау. Изображение предоставлено Дмитрием Сухиным
Курт Фрик, улица в Дрездене-Хеллерау. Изображение предоставлено Дмитрием Сухиным
Пауль Крухен, больница в Берлин-Бухе. Изображение предоставлено Дмитрием Сухиным
Пауль Крухен, больница в Берлин-Бухе. Изображение предоставлено Дмитрием Сухиным
Курт Фрик, строитель города-сада в Хеллерау под Дрезденом, Пауль Крухен, строитель больниц в Берлине и Бухе, им под стать и другие: Вольф-Хайльсберг, Штоффреген-Дельменхорст, Лулей-Бремен, Шополь-Николасзее и другие – но строили-то не они. Кто же возвел к концу 1918 года 42 368 строений, да так, что они доподлинно новой Родиной стали? Такую «точность попадания» у нас принято объяснять некоей кровной близостью, урожденностью – вот только строили после 1914 года никак не «свои»… разве если только они по дороге «своими» стали.
Ганс Шарун, Пауль Крухен, Курт Фрик, Хуго Хэринг, Фридрих Пауль Фишер, Йоганнес фон Батоцки, Генрих Темминг. Изображение предоставлено Дмитрием Сухиным
Ганс Шарун, Пауль Крухен, Курт Фрик, Хуго Хэринг, Фридрих Пауль Фишер, Йоганнес фон Батоцки, Генрих Темминг. Изображение предоставлено Дмитрием Сухиным
Ганс Шарун сотоварищи, Курт Фрик, Пауль Крухен, Хуго Хэринг, Пауль Фишер, Йоганнес Батоцки, Генрих Темминг с одной стороны. 
Военнопленные лагеря в Шталлупёнене. Изображение предоставлено Дмитрием Сухиным
Военнопленные лагеря в Шталлупёнене. Изображение предоставлено Дмитрием Сухиным
Тимофей Амелин, Иван Комаров, Егор Кунцелевич, Дмитрий Олейников, Тит Плиска, Иван Попов, Ридуан Сабирханов, Бадершах Хайритдинов – с другой: «Стройки Восточной Пруссии ... ведутся почти исключительно силами строительных батальонов», свидетельствовала Госканцелярия в августе 1918. Под 150 тысяч, целые армии оставила Россия военнопленными – они и возводили пресловутое «немецкое качество». Возможно, и стали причиной столь редуцированных форм – каменщиками и плотниками не были они.
Проектное бюро в Гумбиннене, стоят: слева Шарун, справа Крухен, сидят в униформе – военнопленные. Изображение предоставлено Дмитрием Сухиным
Проектное бюро в Гумбиннене, стоят: слева Шарун, справа Крухен, сидят в униформе – военнопленные. Изображение предоставлено Дмитрием Сухиным
Мастерские в Инстербурге. Изображение предоставлено Дмитрием Сухиным
Мастерские в Инстербурге. Изображение предоставлено Дмитрием Сухиным
Их научили тут и научились сами, в проектных бюро и ремесленных товариществах. Такая школа недурна была бы и нам сегодня, иначе продолжит у нас проектант рисовать, а строитель возводить – каждый наособицу, каждый в своем мирке.

Вторую часть этого доклада читайте здесь.