Размещено на портале Архи.ру (www.archi.ru)

16.04.2014

Город-остров

Александра Смагина
Объект:
Комплекс IJdock
Адрес:
Нидерланды, None, Амстердам.
Мастерская:
Claus & Kaan
SeARCH

IJDock – новый многофункциональный комплекс на искусственном острове в центре Амстердама с «парковкой» для личного водного транспорта.

Комплекс IJdock. Прокуратура, жилье, офисы (слева направо) © SeARCH
Комплекс IJdock. Прокуратура, жилье, офисы (слева направо) © SeARCH

Выбор площадки для строительства IJDock начался с вопроса: где в центре Амстердама можно поместить объект общей площадью почти 89 тыс. м2, а также большой пристанью для лодок, яхт и иного водного транспорта? При сотрудничестве с местными властями девелоперы, компания ASR, решили создать рукотворный остров на озере Эй (IJ), вблизи исторической части города и в шаговой доступности от Центрального железнодорожного вокзала.
Комплекс IJdock  © Dick van Gameren architecten
Комплекс IJdock © Dick van Gameren architecten

Генеральный план был поручен урбанистам Дику ван Гамерену и Бьярне Мастербруку (SeARCH). Несмотря на большой объем и плотность комплекса, что вызвано дефицитом земли в центре голландской столицы, архитекторы сумели воплотить в нем идею «пустоты»: они посчитали, что максимальный объем здания (основа 60 м х 180 м, высота 44 м) дает в два раза больше площади, чем нужно закачику, поэтому 50% объема ушло на «ущелья» и «прорези» между корпусами.
Комплекс IJdock/ Вид на офисный и жилой корпуса бюро Zeinstra van Gelderen © SeARCH
Комплекс IJdock/ Вид на офисный и жилой корпуса бюро Zeinstra van Gelderen © SeARCH

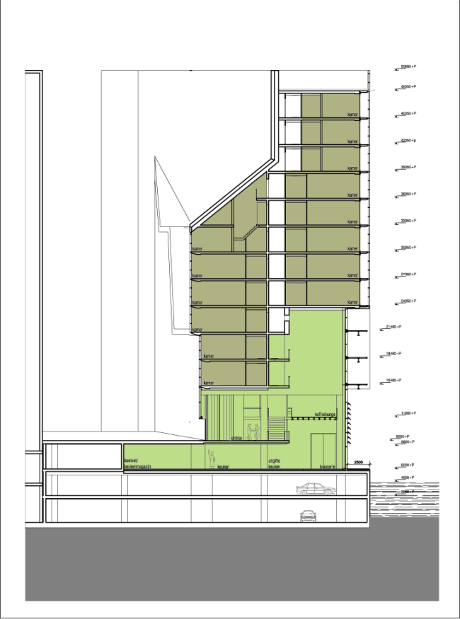
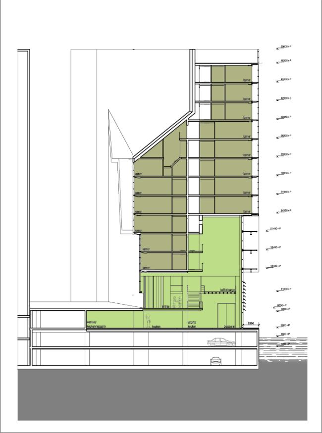
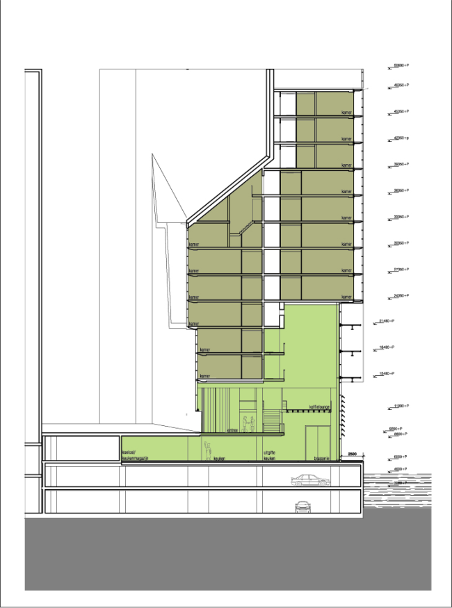
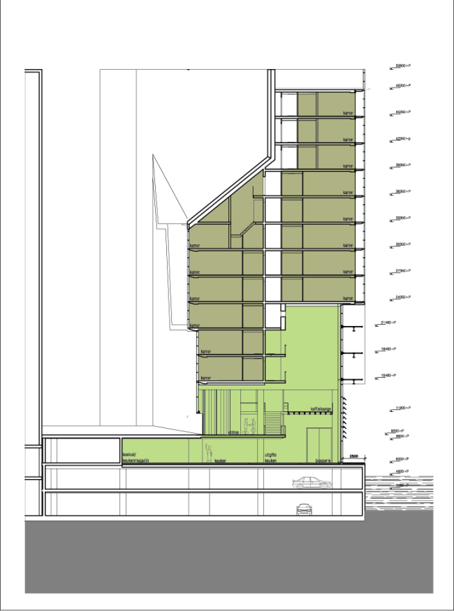
Для IJDock спроектированы пять объектов с разными функциями: парные корпуса бюро Zeinstra van Gelderen – офисный центр, где на 3 нижних этажах расположилось управление водной полиции, и дом на 56 квартир, отель Aitana IJdock (Bakers Architecten и Бен Лураккер, Ben Loerakker), корпус прокуратуры и Дворец правосудия (оба – Claus & Kaan). Также в комплексе имеется подземная (или лучше сказать – подводная?) парковка на 500 машин, из них 150 мест используется жильцами IJDock, а оставшиеся 350 доступны всем горожанам.
Комплекс IJdock. Фото: Aerophoto-Schiphol luchtfotografie
Комплекс IJdock. Фото: Aerophoto-Schiphol luchtfotografie

«Пустота» играет важную роль в архитектурной концепции каждого из пяти зданий, образует рекреации для отдыха и помогает сохранить виды на центр Амстердама с озера Эй. Также конфигурация открытых общественных пространств сродни нерегулярной сетке улиц старой части города, в непосредственной близости от которой находится IJDock.
Комплекс IJdock. Отель и Дворец правосудия. Фото: Aerophoto-Schiphol luchtfotografie
Комплекс IJdock. Отель и Дворец правосудия. Фото: Aerophoto-Schiphol luchtfotografie

В проекте использованы эквивалентные обычным экологически чистые материалы, хотя подобрать их было непросто. Среди самых интересных – покрывающий фасады жилого блока зеленоватого кирпича с блестящей золотистой глазурью.
Комплекс IJdock  © YourCaptain Luchtfotografie
Комплекс IJdock © YourCaptain Luchtfotografie
Комплекс IJdock  © YourCaptain Luchtfotografie
Комплекс IJdock © YourCaptain Luchtfotografie
Комплекс IJdock  © SeARCH
Комплекс IJdock © SeARCH
Комплекс IJdock  © YourCaptain Luchtfotografie
Комплекс IJdock © YourCaptain Luchtfotografie
Комплекс IJdock  © SeARCH
Комплекс IJdock © SeARCH
Комплекс IJdock  © YourCaptain Luchtfotografie
Комплекс IJdock © YourCaptain Luchtfotografie
Комплекс IJdock. Claus & Kaan. Дворец правосудия и корпус прокуратуры. Фото © Rene den Engelsman
Комплекс IJdock. Claus & Kaan. Дворец правосудия и корпус прокуратуры. Фото © Rene den Engelsman
Комплекс IJdock  © SeARCH
Комплекс IJdock © SeARCH
Комплекс IJdock  © SeARCH
Комплекс IJdock © SeARCH
Комплекс IJdock © John Marshall
Комплекс IJdock © John Marshall
Комплекс IJdock  © SeARCH
Комплекс IJdock © SeARCH
Комплекс IJdock  © SeARCH
Комплекс IJdock © SeARCH
Комплекс IJdock © John Marshall
Комплекс IJdock © John Marshall
Комплекс IJdock. Claus & Kaan. Дворец правосудия и корпус прокуратуры. Фото: Sebastian van Damme © Claus en Kaan Architecten
Комплекс IJdock. Claus & Kaan. Дворец правосудия и корпус прокуратуры. Фото: Sebastian van Damme © Claus en Kaan Architecten
Комплекс IJdock. Claus & Kaan. Дворец правосудия и корпус прокуратуры. Фото: Sebastian van Damme © Claus en Kaan Architecten
Комплекс IJdock. Claus & Kaan. Дворец правосудия и корпус прокуратуры. Фото: Sebastian van Damme © Claus en Kaan Architecten
Комплекс IJdock. Claus & Kaan. Дворец правосудия и корпус прокуратуры. Фото © Rene den Engelsman
Комплекс IJdock. Claus & Kaan. Дворец правосудия и корпус прокуратуры. Фото © Rene den Engelsman
Комплекс IJdock. Claus & Kaan. Дворец правосудия и корпус прокуратуры. Фото: Sebastian van Damme © Claus en Kaan Architecten
Комплекс IJdock. Claus & Kaan. Дворец правосудия и корпус прокуратуры. Фото: Sebastian van Damme © Claus en Kaan Architecten
Комплекс IJdock. Claus & Kaan. Дворец правосудия и корпус прокуратуры. Фото: Christian Richters © Claus en Kaan Architecten
Комплекс IJdock. Claus & Kaan. Дворец правосудия и корпус прокуратуры. Фото: Christian Richters © Claus en Kaan Architecten
Комплекс IJdock. Claus & Kaan. Дворец правосудия и корпус прокуратуры. Фото: Sebastian van Damme © Claus en Kaan Architecten
Комплекс IJdock. Claus & Kaan. Дворец правосудия и корпус прокуратуры. Фото: Sebastian van Damme © Claus en Kaan Architecten
Комплекс IJdock. Claus & Kaan. Дворец правосудия и корпус прокуратуры. Фото: Sebastian van Damme © Claus en Kaan Architecten
Комплекс IJdock. Claus & Kaan. Дворец правосудия и корпус прокуратуры. Фото: Sebastian van Damme © Claus en Kaan Architecten
Комплекс IJdock. Claus & Kaan. Дворец правосудия и корпус прокуратуры. Фото: John Lewis Marshall © Claus en Kaan Architecten
Комплекс IJdock. Claus & Kaan. Дворец правосудия и корпус прокуратуры. Фото: John Lewis Marshall © Claus en Kaan Architecten
Комплекс IJdock. Claus & Kaan. Дворец правосудия и корпус прокуратуры © Claus en Kaan Architecten
Комплекс IJdock. Claus & Kaan. Дворец правосудия и корпус прокуратуры © Claus en Kaan Architecten
Комплекс IJdock. Claus & Kaan. Дворец правосудия и корпус прокуратуры © Claus en Kaan Architecten
Комплекс IJdock. Claus & Kaan. Дворец правосудия и корпус прокуратуры © Claus en Kaan Architecten
Комплекс IJdock. Жилой корпус бюро Zeinstra van Gelderen © Jeroen Musch
Комплекс IJdock. Жилой корпус бюро Zeinstra van Gelderen © Jeroen Musch
Комплекс IJdock. Жилой корпус бюро Zeinstra van Gelderen  © SeARCH
Комплекс IJdock. Жилой корпус бюро Zeinstra van Gelderen © SeARCH
Комплекс IJdock. Жилой корпус бюро Zeinstra van Gelderen  © Klaas Vermaas / 
 Klaas5 via flickr.com
Комплекс IJdock. Жилой корпус бюро Zeinstra van Gelderen © Klaas Vermaas / Klaas5 via flickr.com
Комплекс IJdock. Жилой корпус бюро Zeinstra van Gelderen © Jeroen Musch
Комплекс IJdock. Жилой корпус бюро Zeinstra van Gelderen © Jeroen Musch
Комплекс IJdock. Жилой корпус бюро Zeinstra van Gelderen. Справа - офисный корпус тех же авторов  © Wouter Rietberg flickr.com
Комплекс IJdock. Жилой корпус бюро Zeinstra van Gelderen. Справа - офисный корпус тех же авторов © Wouter Rietberg flickr.com
Комплекс IJdock. Жилой корпус бюро Zeinstra van Gelderen  © Klaas Vermaas / 
 Klaas5 via flickr.com
Комплекс IJdock. Жилой корпус бюро Zeinstra van Gelderen © Klaas Vermaas / Klaas5 via flickr.com
Комплекс IJdock. Жилой корпус бюро Zeinstra van Gelderen  © Klaas Vermaas / 
 Klaas5 via flickr.com
Комплекс IJdock. Жилой корпус бюро Zeinstra van Gelderen © Klaas Vermaas / Klaas5 via flickr.com
Комплекс IJdock. Жилой корпус бюро Zeinstra van Gelderen © Jeroen Musch
Комплекс IJdock. Жилой корпус бюро Zeinstra van Gelderen © Jeroen Musch
Комплекс IJdock. Жилой корпус бюро Zeinstra van Gelderen © Jeroen Musch
Комплекс IJdock. Жилой корпус бюро Zeinstra van Gelderen © Jeroen Musch
Комплекс IJdock. Жилой корпус бюро Zeinstra van Gelderen © Jeroen Musch
Комплекс IJdock. Жилой корпус бюро Zeinstra van Gelderen © Jeroen Musch
Комплекс IJdock. Жилой корпус бюро Zeinstra van Gelderen © Zeinstra van Gelderen
Комплекс IJdock. Жилой корпус бюро Zeinstra van Gelderen © Zeinstra van Gelderen
Комплекс IJdock. Жилой корпус бюро Zeinstra van Gelderen © Zeinstra van Gelderen
Комплекс IJdock. Жилой корпус бюро Zeinstra van Gelderen © Zeinstra van Gelderen
Комплекс IJdock. Офисный комплекс Zeinstra van Gelderen © Jeroen Musch
Комплекс IJdock. Офисный комплекс Zeinstra van Gelderen © Jeroen Musch
Комплекс IJdock. Слева - офисный корпус Zeinstra van Gelderen
Комплекс IJdock. Слева - офисный корпус Zeinstra van Gelderen
Комплекс IJdock. Офисный комплекс Zeinstra van Gelderen © Zeinstra van Gelderen
Комплекс IJdock. Офисный комплекс Zeinstra van Gelderen © Zeinstra van Gelderen
Комплекс IJdock. Офисный комплекс Zeinstra van Gelderen © Zeinstra van Gelderen
Комплекс IJdock. Офисный комплекс Zeinstra van Gelderen © Zeinstra van Gelderen
Комплекс IJdock. Bakers Architecten и Бен Лураккер. Отель Aitana IJdock © Bakers Architecten + Ben Loerakker
Комплекс IJdock. Bakers Architecten и Бен Лураккер. Отель Aitana IJdock © Bakers Architecten + Ben Loerakker
Комплекс IJdock. Bakers Architecten и Бен Лураккер. Отель Aitana IJdock © Frank Stahl
Комплекс IJdock. Bakers Architecten и Бен Лураккер. Отель Aitana IJdock © Frank Stahl
Комплекс IJdock. Bakers Architecten и Бен Лураккер. Отель Aitana IJdock © Frank Stahl
Комплекс IJdock. Bakers Architecten и Бен Лураккер. Отель Aitana IJdock © Frank Stahl
Комплекс IJdock. Bakers Architecten и Бен Лураккер. Отель Aitana IJdock © Frank Stahl
Комплекс IJdock. Bakers Architecten и Бен Лураккер. Отель Aitana IJdock © Frank Stahl
Комплекс IJdock. Bakers Architecten и Бен Лураккер. Отель Aitana IJdock © Frank Stahl
Комплекс IJdock. Bakers Architecten и Бен Лураккер. Отель Aitana IJdock © Frank Stahl
Комплекс IJdock. Bakers Architecten и Бен Лураккер. Отель Aitana IJdock © Frank Stahl
Комплекс IJdock. Bakers Architecten и Бен Лураккер. Отель Aitana IJdock © Frank Stahl
Комплекс IJdock. Bakers Architecten и Бен Лураккер. Отель Aitana IJdock © Frank Stahl
Комплекс IJdock. Bakers Architecten и Бен Лураккер. Отель Aitana IJdock © Frank Stahl
Комплекс IJdock. Bakers Architecten и Бен Лураккер. Отель Aitana IJdock © Frank Stahl
Комплекс IJdock. Bakers Architecten и Бен Лураккер. Отель Aitana IJdock © Frank Stahl
Комплекс IJdock. Bakers Architecten и Бен Лураккер. Отель Aitana IJdock © Frank Stahl
Комплекс IJdock. Bakers Architecten и Бен Лураккер. Отель Aitana IJdock © Frank Stahl
Комплекс IJdock. Bakers Architecten и Бен Лураккер. Отель Aitana IJdock © Bakers Architecten + Ben Loerakker
Комплекс IJdock. Bakers Architecten и Бен Лураккер. Отель Aitana IJdock © Bakers Architecten + Ben Loerakker
Комплекс IJdock. Bakers Architecten и Бен Лураккер. Отель Aitana IJdock © Frank Stahl
Комплекс IJdock. Bakers Architecten и Бен Лураккер. Отель Aitana IJdock © Frank Stahl
Комплекс IJdock. Bakers Architecten и Бен Лураккер. Отель Aitana IJdock © Frank Stahl
Комплекс IJdock. Bakers Architecten и Бен Лураккер. Отель Aitana IJdock © Frank Stahl
Комплекс IJdock. Bakers Architecten и Бен Лураккер. Отель Aitana IJdock © Frank Stahl
Комплекс IJdock. Bakers Architecten и Бен Лураккер. Отель Aitana IJdock © Frank Stahl
Комплекс IJdock. Bakers Architecten и Бен Лураккер. Отель Aitana IJdock © Bakers Architecten + Ben Loerakker
Комплекс IJdock. Bakers Architecten и Бен Лураккер. Отель Aitana IJdock © Bakers Architecten + Ben Loerakker
Комплекс IJdock. Bakers Architecten и Бен Лураккер. Отель Aitana IJdock © Bakers Architecten + Ben Loerakker
Комплекс IJdock. Bakers Architecten и Бен Лураккер. Отель Aitana IJdock © Bakers Architecten + Ben Loerakker
Комплекс IJdock. Bakers Architecten и Бен Лураккер. Отель Aitana IJdock © Frank Stahl
Комплекс IJdock. Bakers Architecten и Бен Лураккер. Отель Aitana IJdock © Frank Stahl
Комплекс IJdock. Bakers Architecten и Бен Лураккер. Отель Aitana IJdock © Frank Stahl
Комплекс IJdock. Bakers Architecten и Бен Лураккер. Отель Aitana IJdock © Frank Stahl
Комплекс IJdock. Bakers Architecten и Бен Лураккер. Отель Aitana IJdock © Bakers Architecten + Ben Loerakker
Комплекс IJdock. Bakers Architecten и Бен Лураккер. Отель Aitana IJdock © Bakers Architecten + Ben Loerakker
Комплекс IJdock. Bakers Architecten и Бен Лураккер. Отель Aitana IJdock © Bakers Architecten + Ben Loerakker
Комплекс IJdock. Bakers Architecten и Бен Лураккер. Отель Aitana IJdock © Bakers Architecten + Ben Loerakker
Комплекс IJdock. Bakers Architecten и Бен Лураккер. Отель Aitana IJdock © Bakers Architecten + Ben Loerakker
Комплекс IJdock. Bakers Architecten и Бен Лураккер. Отель Aitana IJdock © Bakers Architecten + Ben Loerakker
Комплекс IJdock. Bakers Architecten и Бен Лураккер. Отель Aitana IJdock © Bakers Architecten + Ben Loerakker
Комплекс IJdock. Bakers Architecten и Бен Лураккер. Отель Aitana IJdock © Bakers Architecten + Ben Loerakker
Комплекс IJdock. Bakers Architecten и Бен Лураккер. Отель Aitana IJdock © Bakers Architecten + Ben Loerakker
Комплекс IJdock. Bakers Architecten и Бен Лураккер. Отель Aitana IJdock © Bakers Architecten + Ben Loerakker