Размещено на портале Архи.ру (www.archi.ru)

15.04.2014

Крепкие объятия

Нина Фролова
Объект:
Дом музыки в Ольборге
Адрес:
Дания, None, Ольборг.
Мастерская:
Coop Himmelb(l)au

В датском Ольборге открылся Дом музыки, спроектированный бюро Coop Himmelb(l)au.

Дом музыки в Ольборге © Rene Jeppesen
Дом музыки в Ольборге © Rene Jeppesen

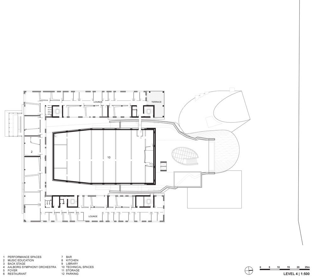
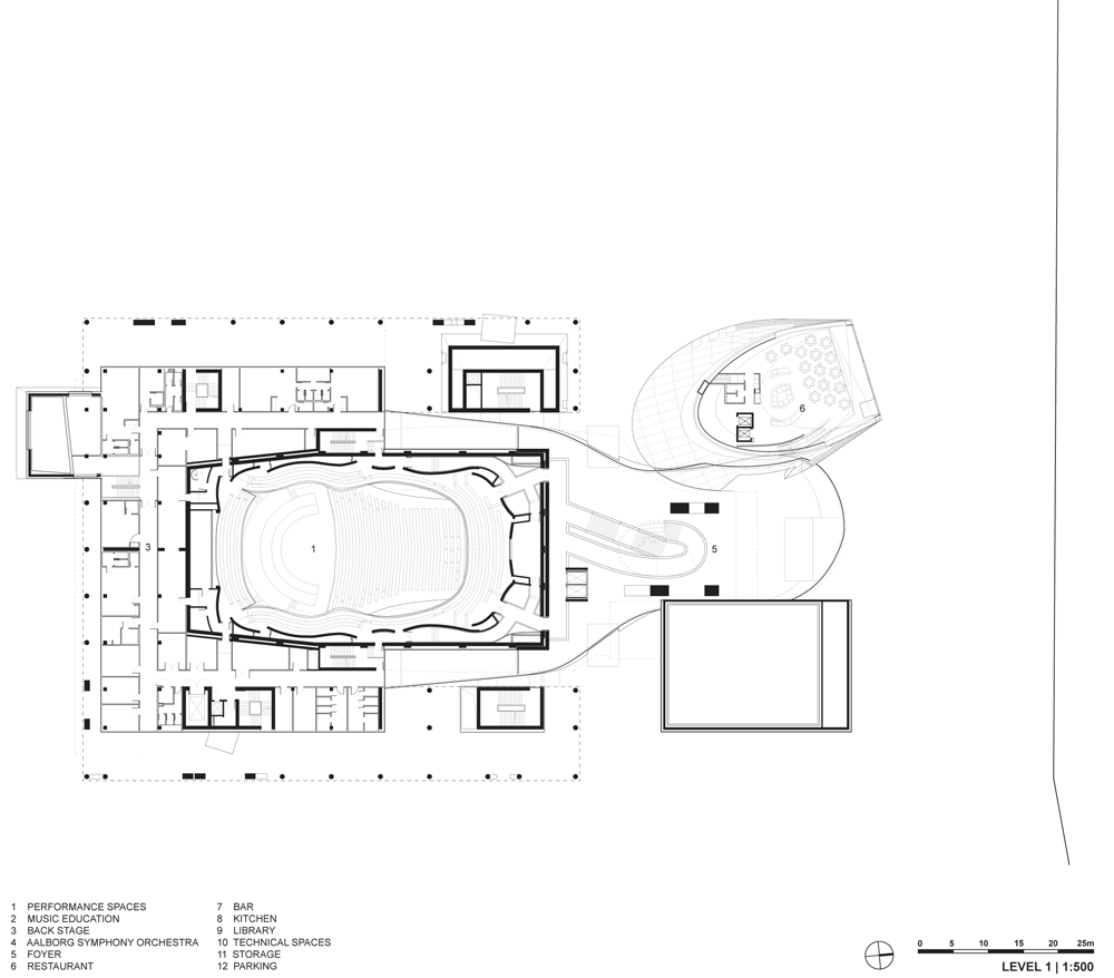
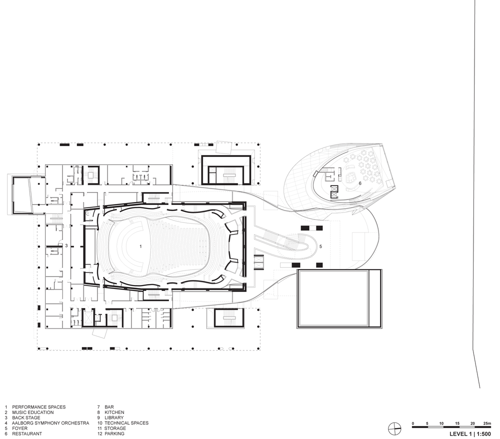
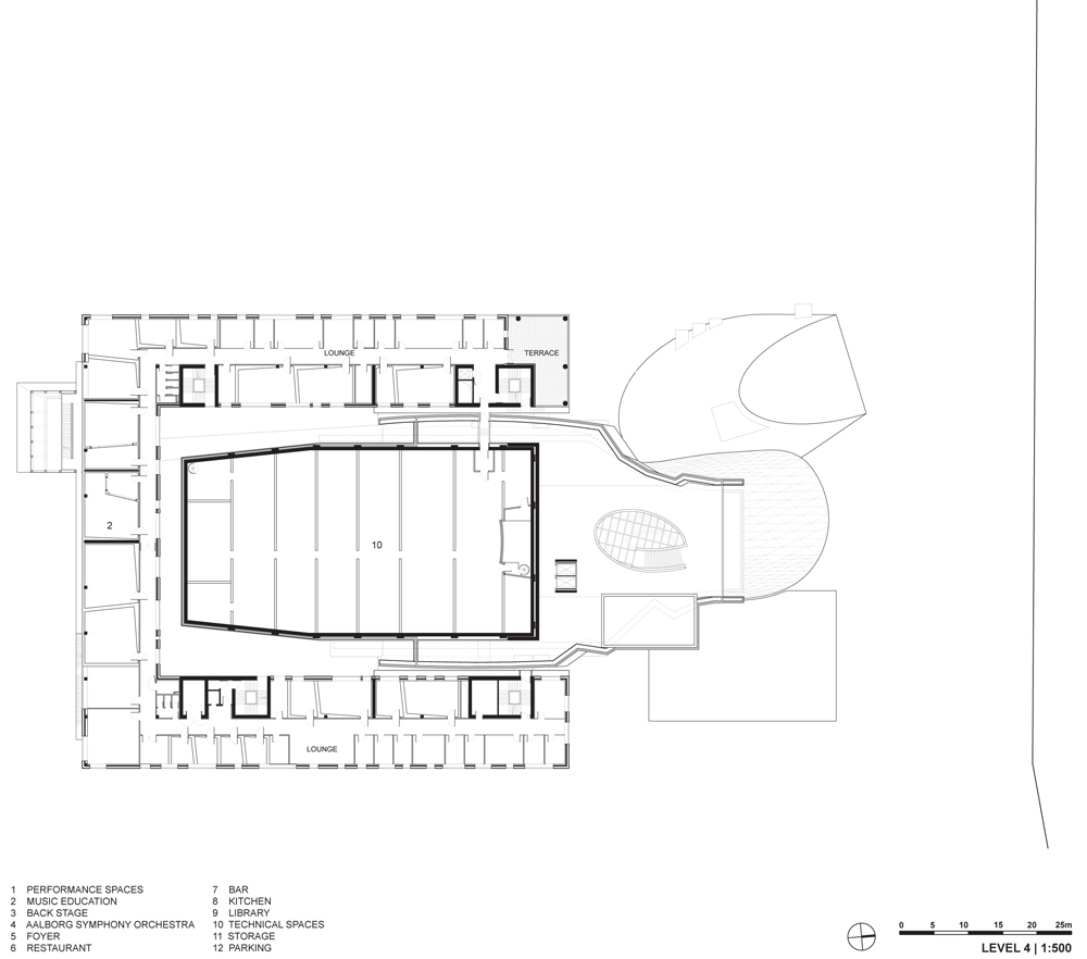
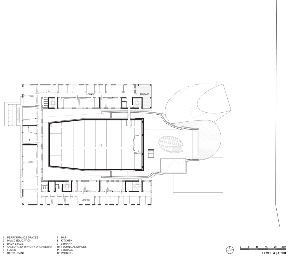
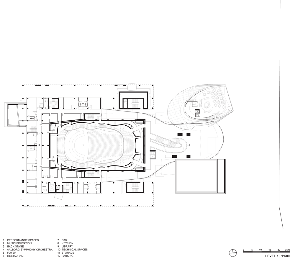
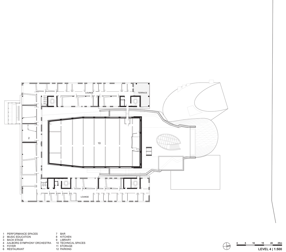
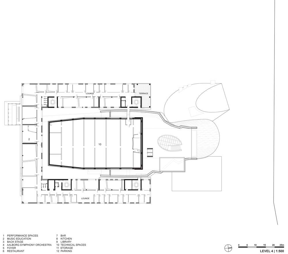
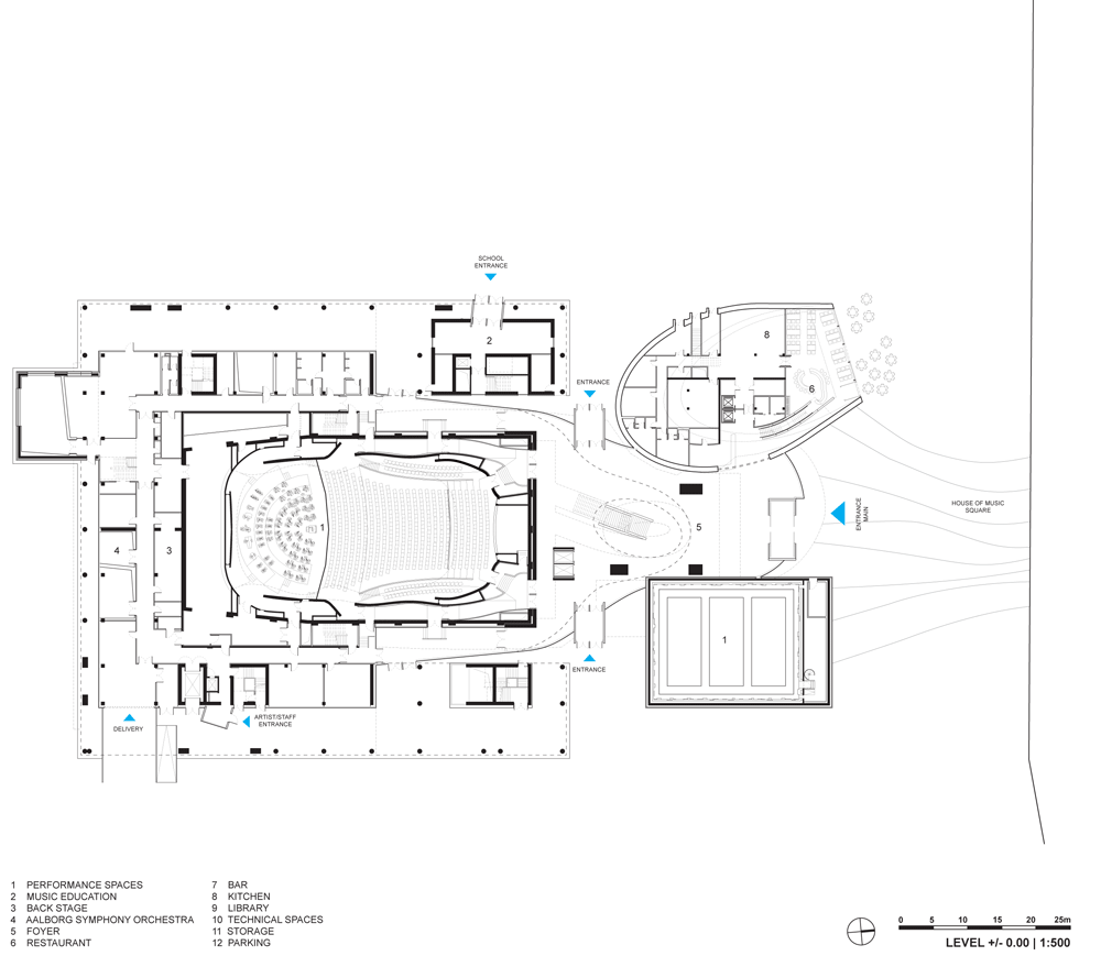
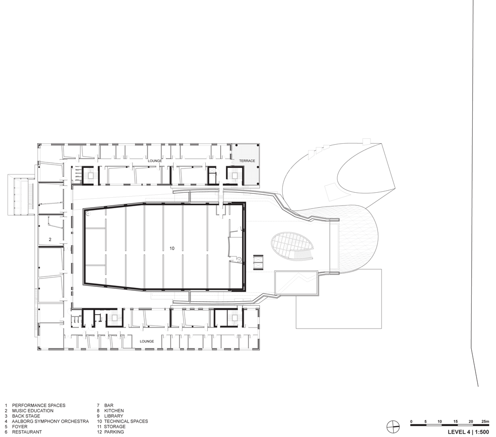
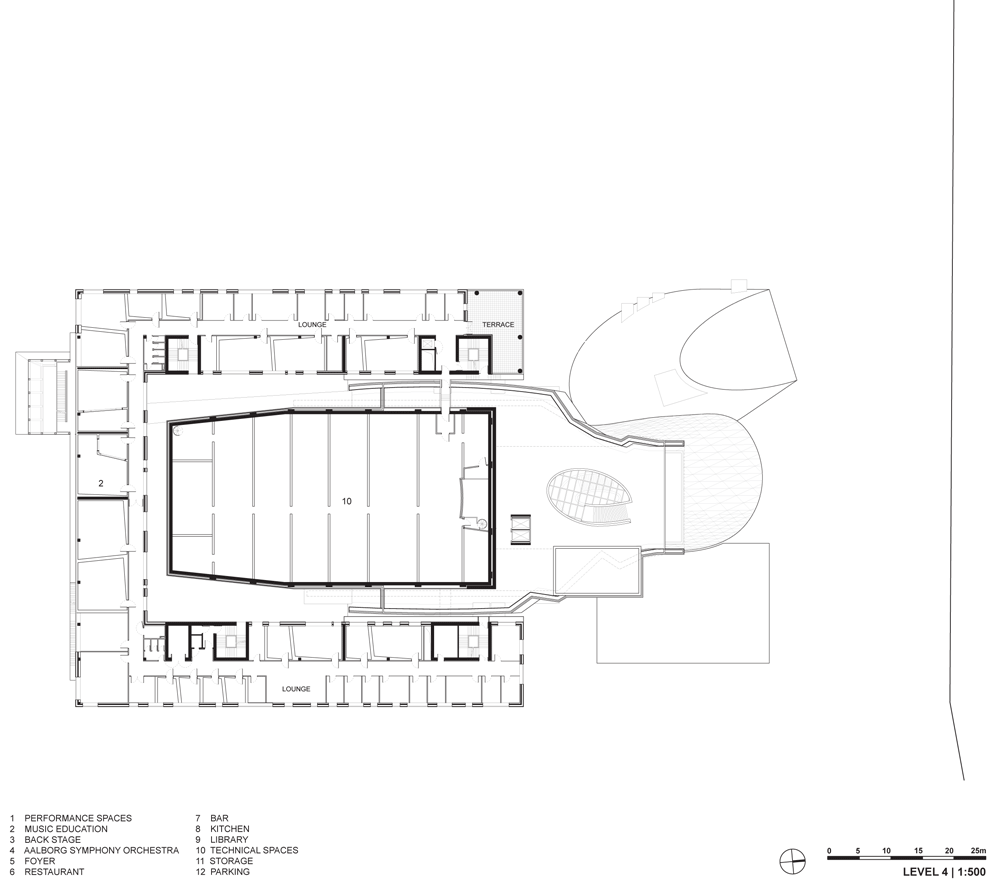
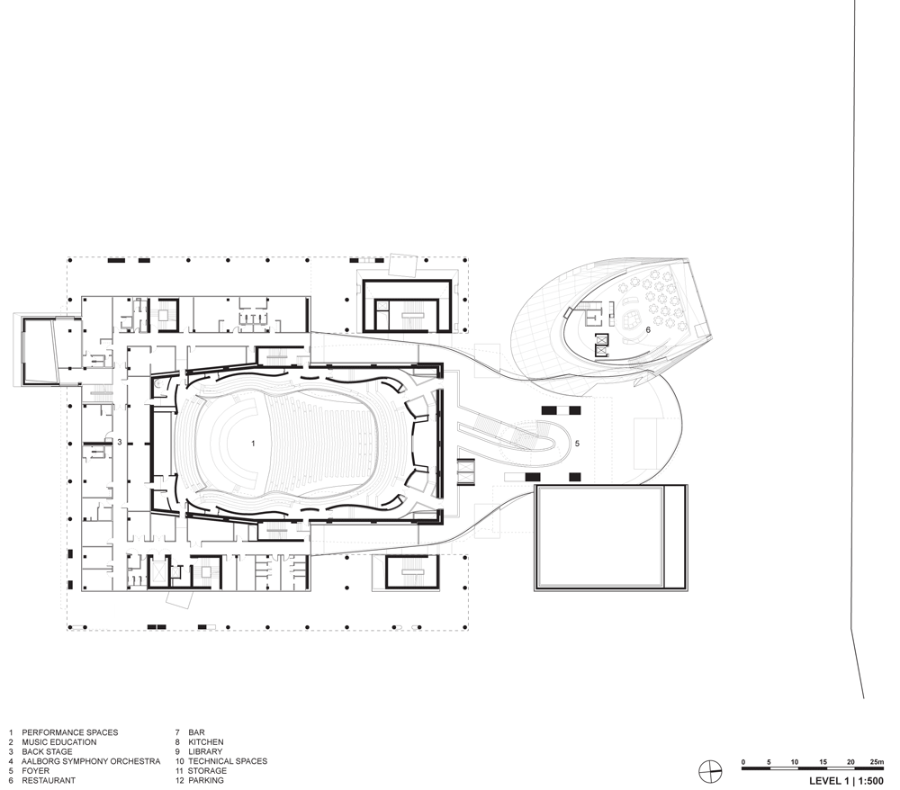
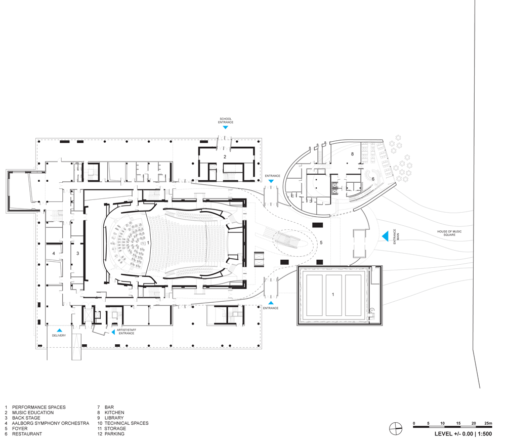
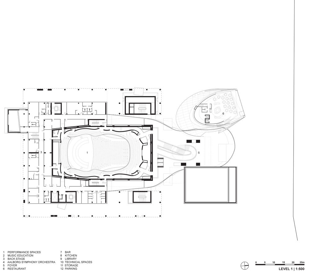
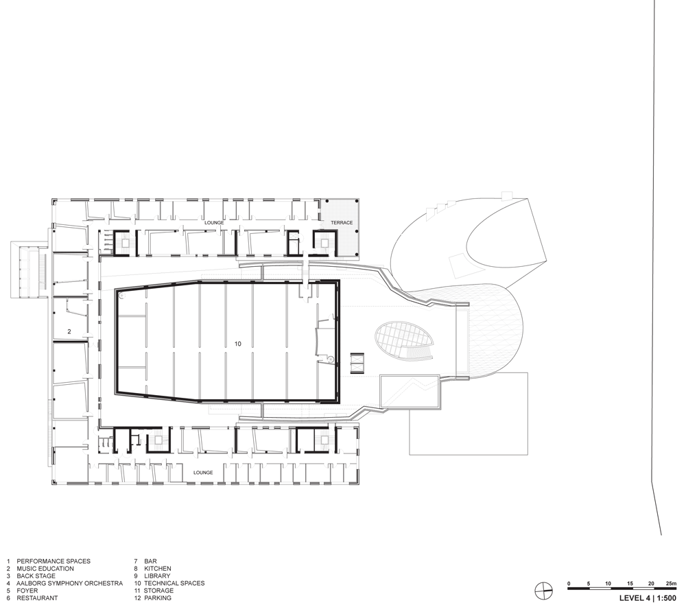
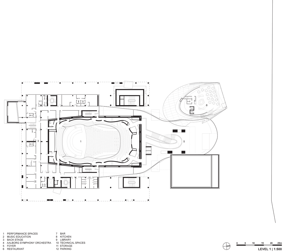
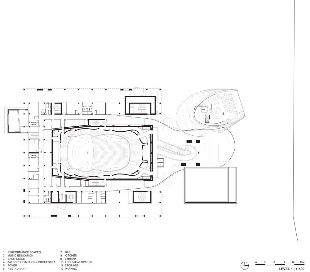
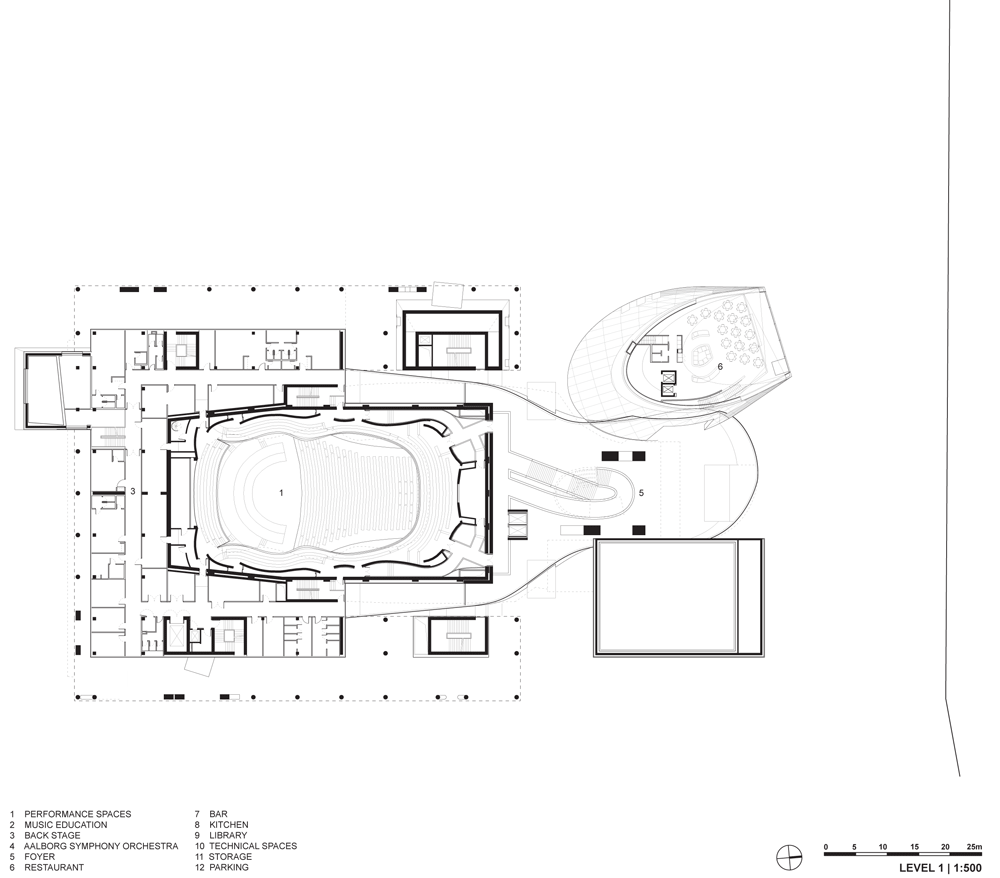
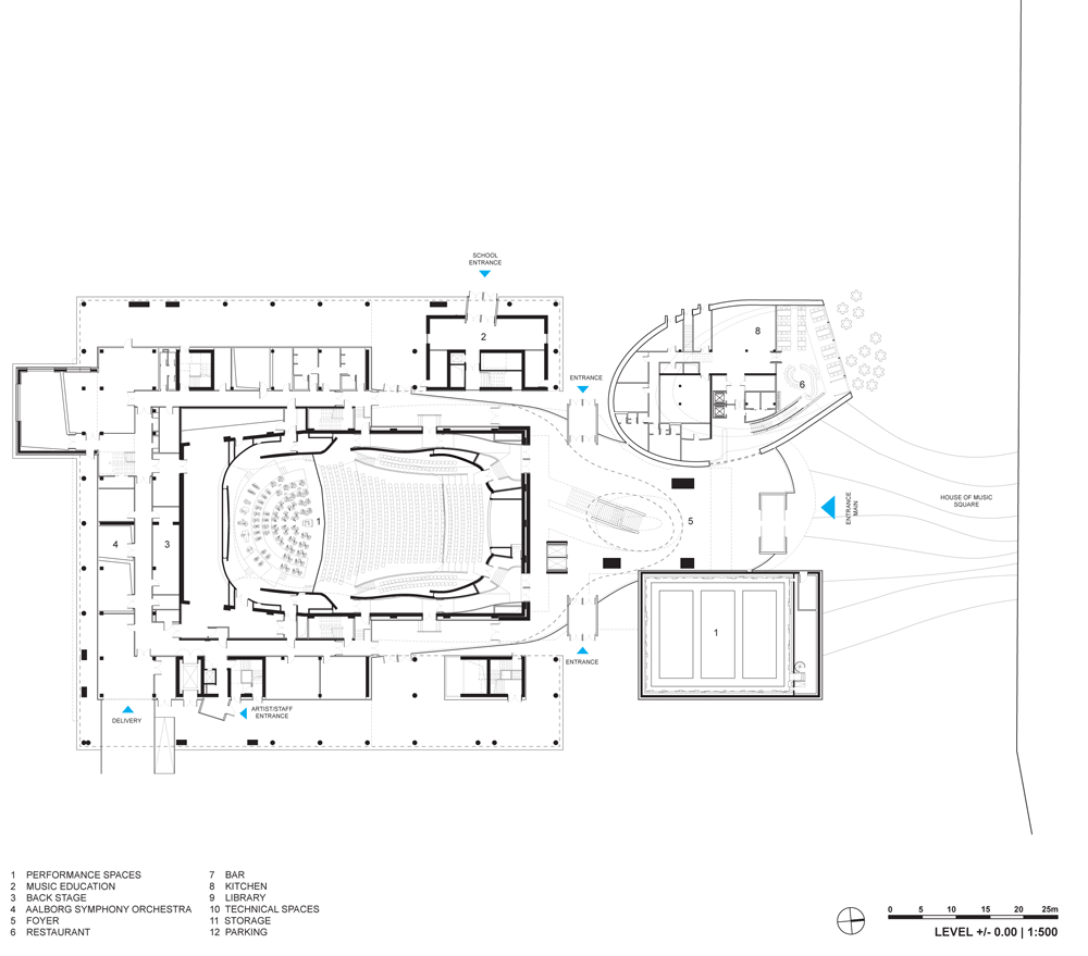
Основатель Coop Himmelb(l)au Вольф Д. Прикс считает, что устройство здания легко читается снаружи: «Школа обнимает концертный зал.» П-образный корпус репетиционных студий и учебных аудиторий огибает главную часть Дома музыки – концертный зал на 1300 мест.
Дом музыки в Ольборге © Coop Himmelb(l)au
Дом музыки в Ольборге © Coop Himmelb(l)au

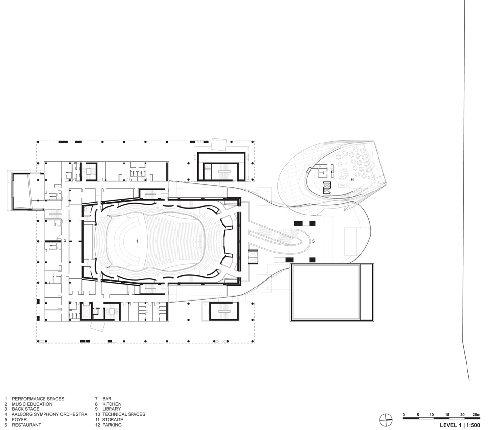
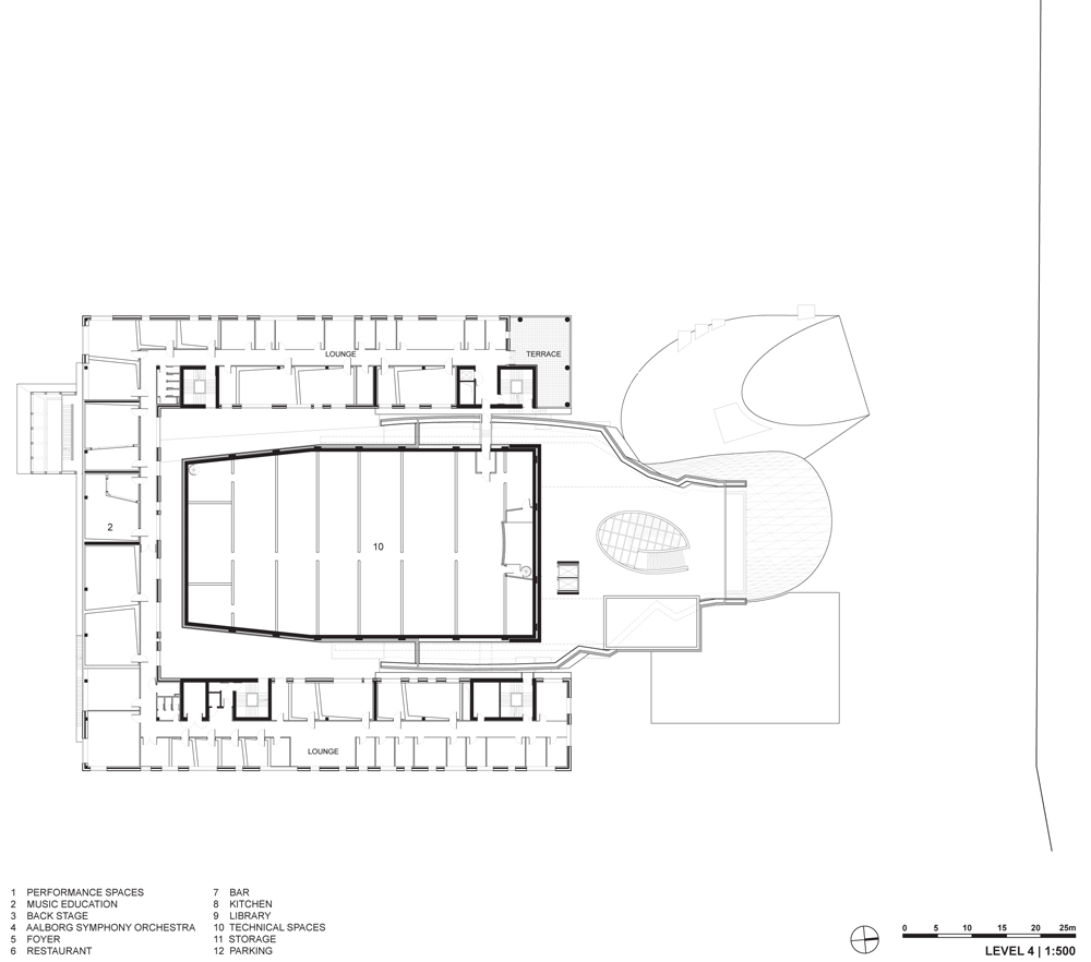
Обе части объединяет фойе в 5 этажей высотой – с балконами, лестницами и переходами. Через большие окна открывается вид на фьорд, а в концертный зал можно заглянуть через проемы в его стенах. Под фойе находятся три малых зала – «интимный», «ритмический» и «классический».
Дом музыки в Ольборге © Rene Jeppesen
Дом музыки в Ольборге © Rene Jeppesen

В главном зале достигнут один из лучших среди пространств для симфонической музыки в Европе показателей снижения шума – NR10 (GK10). Качество акустики там обеспечивают стуковые «рельефы» на стенах и укрепленные на потолке панели.
Дом музыки в Ольборге © Coop Himmelb(l)au
Дом музыки в Ольборге © Coop Himmelb(l)au

Среди экологических аспектов проекта – отказ от вентиляторов, поддержание внутри оптимальной температуры с помощью термальной массы бетона и системы активации бетонного ядра, использование воды из фьорда для охлаждения здания и т. д.
Дом музыки в Ольборге © Martin Schubert
Дом музыки в Ольборге © Martin Schubert
Дом музыки в Ольборге © Martin Schubert
Дом музыки в Ольборге © Martin Schubert
Дом музыки в Ольборге © Rene Jeppesen
Дом музыки в Ольборге © Rene Jeppesen
Дом музыки в Ольборге © Martin Schubert
Дом музыки в Ольборге © Martin Schubert
Дом музыки в Ольборге © Martin Schubert
Дом музыки в Ольборге © Martin Schubert
Дом музыки в Ольборге © Aleksandra Pawloff
Дом музыки в Ольборге © Aleksandra Pawloff
Дом музыки в Ольборге © Coop Himmelb(l)au
Дом музыки в Ольборге © Coop Himmelb(l)au
Дом музыки в Ольборге © Martin Schubert
Дом музыки в Ольборге © Martin Schubert
Дом музыки в Ольборге © Martin Schubert
Дом музыки в Ольборге © Martin Schubert
Дом музыки в Ольборге © Coop Himmelb(l)au
Дом музыки в Ольборге © Coop Himmelb(l)au
Дом музыки в Ольборге © Coop Himmelb(l)au
Дом музыки в Ольборге © Coop Himmelb(l)au
Дом музыки в Ольборге © Coop Himmelb(l)au
Дом музыки в Ольборге © Coop Himmelb(l)au
Дом музыки в Ольборге © Coop Himmelb(l)au
Дом музыки в Ольборге © Coop Himmelb(l)au
Дом музыки в Ольборге © Coop Himmelb(l)au
Дом музыки в Ольборге © Coop Himmelb(l)au
Дом музыки в Ольборге © Coop Himmelb(l)au
Дом музыки в Ольборге © Coop Himmelb(l)au
Дом музыки в Ольборге © Coop Himmelb(l)au
Дом музыки в Ольборге © Coop Himmelb(l)au
Дом музыки в Ольборге © Coop Himmelb(l)au
Дом музыки в Ольборге © Coop Himmelb(l)au
Дом музыки в Ольборге © Coop Himmelb(l)au
Дом музыки в Ольборге © Coop Himmelb(l)au
Дом музыки в Ольборге © Coop Himmelb(l)au
Дом музыки в Ольборге © Coop Himmelb(l)au
Дом музыки в Ольборге © Coop Himmelb(l)au
Дом музыки в Ольборге © Coop Himmelb(l)au
Дом музыки в Ольборге © Coop Himmelb(l)au
Дом музыки в Ольборге © Coop Himmelb(l)au
Дом музыки в Ольборге © Coop Himmelb(l)au
Дом музыки в Ольборге © Coop Himmelb(l)au
Дом музыки в Ольборге © Coop Himmelb(l)au
Дом музыки в Ольборге © Coop Himmelb(l)au