Размещено на портале Архи.ру (www.archi.ru)

11.04.2014

Сияние Нобеля

Анна Мартовицкая
Объект:
Нобелевский центр
Адрес:
Швеция, None, Стокгольм.

В Стокгольме подведены итоги конкурса на проект Нобелевского центра: победителем стал Дэвид Чипперфильд.

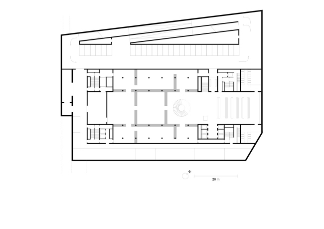
Нобелевский центр. Проект для полуострова Бласихольмен (2013–2014)
Нобелевский центр. Проект для полуострова Бласихольмен (2013–2014)
© David Chipperfield Architects
Закрытый архитектурный конкурс на лучший проект Нобелевского центра был объявлен в Стокгольме в июне прошлого года. Всего о своем желании принять участие в этом состязании заявили 175 архитектурных мастерских, из них были отобраны сначала 20, а затем 11 бюро, которые получили детально проработанное ТЗ будущего центра. А 15 ноября 2013 жюри назвало трех финалистов: два шведских бюро Wingårdh Arkitektkontor и Johan Celsing Arkitektkontor, а также David Chipperfield Architects, чье предложение считалось фаворитом конкурса.
Нобелевский центр. Проект для полуострова Бласихольмен (2013–2014)
Нобелевский центр. Проект для полуострова Бласихольмен (2013–2014)
© David Chipperfield Architects

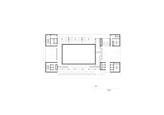
Нобелевский центр предполагается построить в самом центре Стокгольма, на полуострове Бласиехольмен, рядом с Национальным музеем. Дэвид Чипперфильд в своем проекте разместил новое здание предельно компактно, выделив большую часть отведенной под строительство территории под создание парка. «Нобелевский сад» задуман как продолжение существующего парка Национального музея, связующее звено между ним и набережной.
Нобелевский центр. Проект для полуострова Бласихольмен (2013–2014)
Нобелевский центр. Проект для полуострова Бласихольмен (2013–2014)
© David Chipperfield Architects
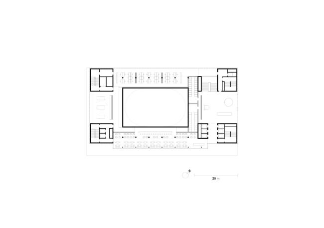
Нобелевский центр. Проект для полуострова Бласихольмен (2013–2014)
Нобелевский центр. Проект для полуострова Бласихольмен (2013–2014)
© David Chipperfield Architects

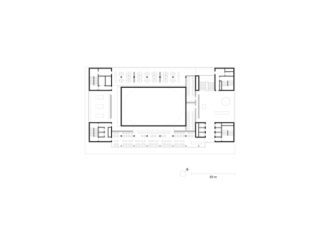
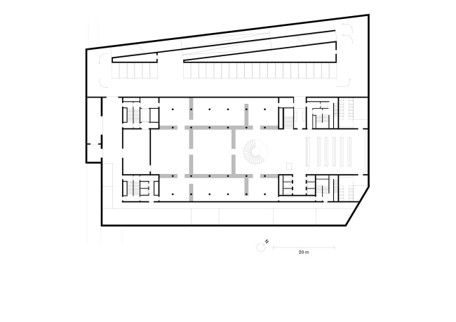
Первый этаж Нобелевского центра также целиком отводится под общественные функции. Это пространство со свободной планировкой и тремя входами вместит посетительское фойе, большую выставочную зону, ресторан и кафе. Выше расположены административные помещения, библиотека, конференц-залы, а два верхних этажа здания занимает Нобелевский зал, для которого архитекторы придумали чрезвычайно эффектную овальную люстру. По замыслу авторов, в полную силу люстра будет светиться лишь один день в году – 10 декабря, когда в Стокгольме проходит церемония вручения Нобелевских премий, и благодаря прозрачным стенам здания это сияние станет важной частью городских панорам.
Нобелевский центр. Проект для полуострова Бласихольмен (2013–2014)
Нобелевский центр. Проект для полуострова Бласихольмен (2013–2014)
© David Chipperfield Architects
Нобелевский центр. Проект для полуострова Бласихольмен (2013–2014)
Нобелевский центр. Проект для полуострова Бласихольмен (2013–2014)
© David Chipperfield Architects

В качестве фасадных материалов Дэвид Чипперфильд предлагает использовать прозрачное и матовое стекло, а также латунные панели, придающие объему благородный золотистый оттенок и подчеркивающие значимость проходящих в нем мероприятий. А сочетание прозрачных и непрозрачных витражей привносит в облик здания дополнительную интригу: в зависимости от освещения и времени суток оно выглядит то более проницаемым, то, наоборот, более закрытым.
Нобелевский центр. Проект для полуострова Бласихольмен (2013–2014)
Нобелевский центр. Проект для полуострова Бласихольмен (2013–2014)
© David Chipperfield Architects
Нобелевский центр. Проект для полуострова Бласихольмен (2013–2014)
Нобелевский центр. Проект для полуострова Бласихольмен (2013–2014)
© David Chipperfield Architects
Нобелевский центр. Проект для полуострова Бласихольмен (2013–2014)
Нобелевский центр. Проект для полуострова Бласихольмен (2013–2014)
© David Chipperfield Architects
Нобелевский центр. Проект для полуострова Бласихольмен (2013–2014)
Нобелевский центр. Проект для полуострова Бласихольмен (2013–2014)
© David Chipperfield Architects
Нобелевский центр. Проект для полуострова Бласихольмен (2013–2014)
Нобелевский центр. Проект для полуострова Бласихольмен (2013–2014)
© David Chipperfield Architects
Нобелевский центр. Проект для полуострова Бласихольмен (2013–2014)
Нобелевский центр. Проект для полуострова Бласихольмен (2013–2014)
© David Chipperfield Architects
Нобелевский центр. Проект для полуострова Бласихольмен (2013–2014)
Нобелевский центр. Проект для полуострова Бласихольмен (2013–2014)
© David Chipperfield Architects
Нобелевский центр. Проект для полуострова Бласихольмен (2013–2014)
Нобелевский центр. Проект для полуострова Бласихольмен (2013–2014)
© David Chipperfield Architects
Нобелевский центр. Проект для полуострова Бласихольмен (2013–2014)
Нобелевский центр. Проект для полуострова Бласихольмен (2013–2014)
© David Chipperfield Architects
Нобелевский центр. Проект для полуострова Бласихольмен (2013–2014)
Нобелевский центр. Проект для полуострова Бласихольмен (2013–2014)
© David Chipperfield Architects
Нобелевский центр. Проект для полуострова Бласихольмен (2013–2014)
Нобелевский центр. Проект для полуострова Бласихольмен (2013–2014)
© David Chipperfield Architects
Нобелевский центр. Проект для полуострова Бласихольмен (2013–2014)
Нобелевский центр. Проект для полуострова Бласихольмен (2013–2014)
© David Chipperfield Architects
Нобелевский центр. Проект для полуострова Бласихольмен (2013–2014)
Нобелевский центр. Проект для полуострова Бласихольмен (2013–2014)
© David Chipperfield Architects
Нобелевский центр. Проект для полуострова Бласихольмен (2013–2014)
Нобелевский центр. Проект для полуострова Бласихольмен (2013–2014)
© David Chipperfield Architects
Нобелевский центр. Проект для полуострова Бласихольмен (2013–2014)
Нобелевский центр. Проект для полуострова Бласихольмен (2013–2014)
© David Chipperfield Architects
Нобелевский центр. Проект для полуострова Бласихольмен (2013–2014)
Нобелевский центр. Проект для полуострова Бласихольмен (2013–2014)
© David Chipperfield Architects
Нобелевский центр. Проект для полуострова Бласихольмен (2013–2014)
Нобелевский центр. Проект для полуострова Бласихольмен (2013–2014)
© David Chipperfield Architects
Нобелевский центр. Проект для полуострова Бласихольмен (2013–2014)
Нобелевский центр. Проект для полуострова Бласихольмен (2013–2014)
© David Chipperfield Architects
Нобелевский центр. Проект для полуострова Бласихольмен (2013–2014)
Нобелевский центр. Проект для полуострова Бласихольмен (2013–2014)
© David Chipperfield Architects

Проект Дэвида Чипперфильда был признан лучшим практически единогласно: подавляющее большинство членов жюри отметило его за элегантность, «открытость и деликатность».
Проект Йохана Сельсинг. Второе место © Johan Celsing Arkitektkontor
Проект Йохана Сельсинг. Второе место © Johan Celsing Arkitektkontor

Второе место в конкурсе присудили Йохану Сельсингу, который трактовал Нобелевский центр как своего рода раму для происходящих в нем событий. Именно поэтому здание Сельсинга выглядит как лаконичный параллелепипед, украшенный прямоугольными проемами разной формы. Запроектированные не только на фасадах, но и в перекрытиях, эти проемы служат световыми колодцами, за счет которых во многом и формируется характер интерьеров внутренних пространств.
Nobel Snowflake. Проект Герта Вингорда. Третье место © Wingårdh Arkitektkontor
Nobel Snowflake. Проект Герта Вингорда. Третье место © Wingårdh Arkitektkontor

«Бронзу» получил Герт Вингорд, назвавший свой проект «Снежинка Нобеля». Круглое в плане здание действительно чем-то напоминает снежинку: его фасады собраны из отдельных стеклянных граней, которые к тому же меняются от этажа к этажу. Жюри отметило эффектную самодостаточную форму, однако указало на то, что подобная конфигурация априори означает наличие большого числа внутренних помещений, лишенных естественного света. Интересно, кстати, что Вингорд стал единственным из участников конкурса, кто решил кардинально переработать свой проект: место в финале ему обеспечила совсем другая концепция, в которой здание Нобелевского центра было составлено из нескольких горизонтальных блоков, а пешеходная площадь перед ним – украшена круглым искусственным озером.


Предполагается, что строительство Нобелевского центра начнется в конце 2015, и уже в 2018 он откроет свои двери для первых гостей.
Nobel Snowflake. Проект Герта Вингорда. Третье место © Wingårdh Arkitektkontor
Nobel Snowflake. Проект Герта Вингорда. Третье место © Wingårdh Arkitektkontor
Nobel Snowflake. Проект Герта Вингорда.Третье место © Wingårdh Arkitektkontor
Nobel Snowflake. Проект Герта Вингорда.Третье место © Wingårdh Arkitektkontor
Nobel Snowflake. Проект Герта Вингорда.Третье место © Wingårdh Arkitektkontor
Nobel Snowflake. Проект Герта Вингорда.Третье место © Wingårdh Arkitektkontor
Nobel Snowflake. Проект Герта Вингорда. Третье место © Wingårdh Arkitektkontor
Nobel Snowflake. Проект Герта Вингорда. Третье место © Wingårdh Arkitektkontor
Nobel Snowflake. Проект Герта Вингорда. Третье место © Wingårdh Arkitektkontor
Nobel Snowflake. Проект Герта Вингорда. Третье место © Wingårdh Arkitektkontor
Nobel Snowflake. Проект Герта Вингорда. Третье место © Wingårdh Arkitektkontor
Nobel Snowflake. Проект Герта Вингорда. Третье место © Wingårdh Arkitektkontor
Nobel Snowflake. Проект Герта Вингорда. Третье место © Wingårdh Arkitektkontor
Nobel Snowflake. Проект Герта Вингорда. Третье место © Wingårdh Arkitektkontor
Nobel Snowflake. Проект Герта Вингорда. Третье место © Wingårdh Arkitektkontor
Nobel Snowflake. Проект Герта Вингорда. Третье место © Wingårdh Arkitektkontor
Nobel Snowflake. Проект Герта Вингорда. Третье место © Wingårdh Arkitektkontor
Nobel Snowflake. Проект Герта Вингорда. Третье место © Wingårdh Arkitektkontor
Nobel Snowflake. Проект Герта Вингорда. Третье место © Wingårdh Arkitektkontor
Nobel Snowflake. Проект Герта Вингорда. Третье место © Wingårdh Arkitektkontor
Nobel Snowflake. Проект Герта Вингорда. Третье место © Wingårdh Arkitektkontor
Nobel Snowflake. Проект Герта Вингорда. Третье место © Wingårdh Arkitektkontor
Nobel Snowflake. Проект Герта Вингорда. Третье место © Wingårdh Arkitektkontor
Nobel Snowflake. Проект Герта Вингорда. Третье место © Wingårdh Arkitektkontor
Nobel Snowflake. Проект Герта Вингорда. Третье место © Wingårdh Arkitektkontor
Nobel Snowflake. Проект Герта Вингорда. Третье место © Wingårdh Arkitektkontor