Размещено на портале Архи.ру (www.archi.ru)

10.04.2014

Белые башни у водопада

Анна Мартовицкая
Объект:
Жилой компекс Vitrvm (Vitrum)
Адрес:
Колумбия, None, Богота.

Ричард Майер представил проект жилого комплекса Vitrvm в Боготе, который обещает стать его первой работой в Колумбии.

Жилой комплекс Vitrvm © Richard Meier & Partners
Жилой комплекс Vitrvm © Richard Meier & Partners
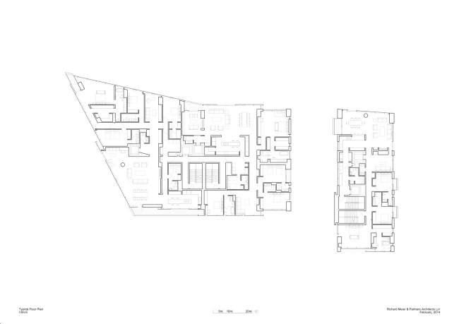
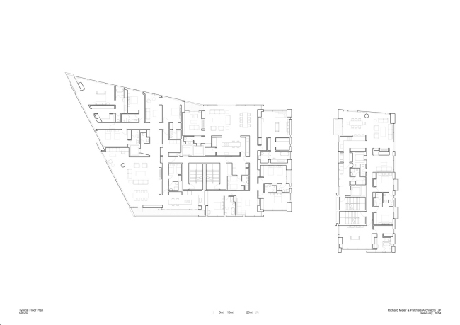
Комплекс площадью 14 000 м2 состоит из двух 13-этажных башен, объединенных стилобатом. Он будет построен вдоль одной из центральных улиц Боготы – авеню Септима. С севера участок застройки граничит с живописным парком Дель-Чико, а своеобразным буфером между природной и урбанизированной территорией служит небольшой каменистый водопад.
Жилой комплекс Vitrvm © Richard Meier & Partners
Жилой комплекс Vitrvm © Richard Meier & Partners

Именно близость последнего во многом и продиктовала архитектурно-планировочное решение жилого комплекса: один из корпусов представляет собой лаконичный параллелепипед, тогда как второй получил форму остроугольной призмы. Этот «нос» не только развивает заданную природным окружением тему обрыва, но и обеспечивает квартиры эффектными и разнообразными видами на город. Кстати, если в корпусе более сложной формы архитекторы размещают по две квартиры на этаже (апартаменты с четырьмя спальнями), то в параллелепипеде планируется сделать всего по одной квартире на этаж, которая сочетает в себе просторную студию и три изолированные комнаты.
Жилой комплекс Vitrvm © Richard Meier & Partners
Жилой комплекс Vitrvm © Richard Meier & Partners

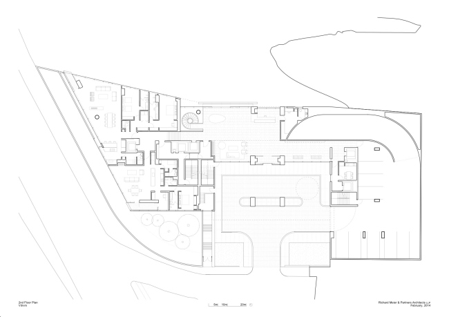
В общем для двух зданий стилобате помимо вестибюля расположены бассейн и спа-комплекс, спортивный зал и детский игровой центр, а также благоустроенные и озелененные зоны отдыха. Дополнительное общественное пространство будет создано и на кровле комплекса, где на отделанных деревом террасах можно будет принять солнечные ванны и насладиться видами Боготы.
Жилой комплекс Vitrvm © Richard Meier & Partners
Жилой комплекс Vitrvm © Richard Meier & Partners

Фасады комплекса отделаны любимыми материалами Ричарда Майера – светлым камнем и стеклом, призванными подчеркнуть камерность и тактичность постройки по отношению к ближайшему окружению. Натуральные материалы планируется применить и в отделке интерьеров – естественную красоту дерева и камня призваны подчеркнуть белоснежные поверхности и масштабные витражи, а также произведения современного искусства и подчеркнуто современная мебель.
Жилой комплекс Vitrvm © Richard Meier & Partners
Жилой комплекс Vitrvm © Richard Meier & Partners
Жилой комплекс Vitrvm © Richard Meier & Partners
Жилой комплекс Vitrvm © Richard Meier & Partners
Жилой комплекс Vitrvm © Richard Meier & Partners
Жилой комплекс Vitrvm © Richard Meier & Partners
Жилой комплекс Vitrvm © Richard Meier & Partners
Жилой комплекс Vitrvm © Richard Meier & Partners
Жилой комплекс Vitrvm © Richard Meier & Partners
Жилой комплекс Vitrvm © Richard Meier & Partners
Жилой комплекс Vitrvm © Richard Meier & Partners
Жилой комплекс Vitrvm © Richard Meier & Partners
Жилой комплекс Vitrvm © Richard Meier & Partners
Жилой комплекс Vitrvm © Richard Meier & Partners
Жилой комплекс Vitrvm © Richard Meier & Partners
Жилой комплекс Vitrvm © Richard Meier & Partners
Жилой комплекс Vitrvm © Richard Meier & Partners
Жилой комплекс Vitrvm © Richard Meier & Partners
Жилой комплекс Vitrvm © Richard Meier & Partners
Жилой комплекс Vitrvm © Richard Meier & Partners
Жилой комплекс Vitrvm © Richard Meier & Partners
Жилой комплекс Vitrvm © Richard Meier & Partners
Жилой комплекс Vitrvm © Richard Meier & Partners
Жилой комплекс Vitrvm © Richard Meier & Partners
Жилой комплекс Vitrvm © Richard Meier & Partners
Жилой комплекс Vitrvm © Richard Meier & Partners
Жилой комплекс Vitrvm © Richard Meier & Partners
Жилой комплекс Vitrvm © Richard Meier & Partners
Жилой комплекс Vitrvm © Richard Meier & Partners
Жилой комплекс Vitrvm © Richard Meier & Partners
Жилой комплекс Vitrvm © Richard Meier & Partners
Жилой комплекс Vitrvm © Richard Meier & Partners
Жилой комплекс Vitrvm © Richard Meier & Partners
Жилой комплекс Vitrvm © Richard Meier & Partners
Жилой комплекс Vitrvm © Richard Meier & Partners
Жилой комплекс Vitrvm © Richard Meier & Partners