Размещено на портале Архи.ру (www.archi.ru)

03.04.2014

Доступная мечта

Полина Киреева
Объект:
Дом Grenelle
Адрес:
Франция, None, Париж.
Мастерская:
Périphériques

Бюро Périphériques построило многоквартирный дом Grenelle в центре Парижа.

Дом Grenelle © Sergio Grazia
Дом Grenelle © Sergio Grazia

В самом центре Парижа, недалеко от Эйфелевой башни, в окружении многочисленных парков и садов, появились два новых жилых дома, объединенных зеленым внутренним двором. Участок, выделенный для проекта, находится в почти буржуазном районе: спокойном, сдержанном, с очень хорошо выстроенной инфраструктурой. Этому образу соответствуют фасады зданий, один из которых выходит на бульвар Гренель, другой – на улицу Фремикур. 
Дом Grenelle © Sergio Grazia
Дом Grenelle © Sergio Grazia

У бюро уже сформировались определенные принципы в проектировании жилых зданий: энергоэффективность, сочетание обычного и социального жилья, уютные зеленые дворы и просторные террасы – все это проявилось и в новом проекте.
Дом Grenelle © Sergio Grazia
Дом Grenelle © Sergio Grazia

Для достижения низкого потребления энергии в Париже прилагаются большие усилия, одно из них – создание стратегического «климатического плана». Grenelle вполне отвечает его требованиям, потребляя меньше 50 кВт/час/м2 в год.
Дом Grenelle © Sergio Grazia
Дом Grenelle © Sergio Grazia

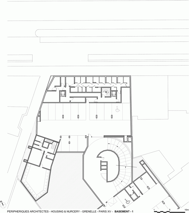
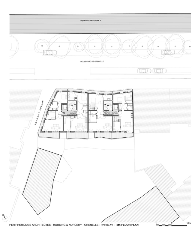
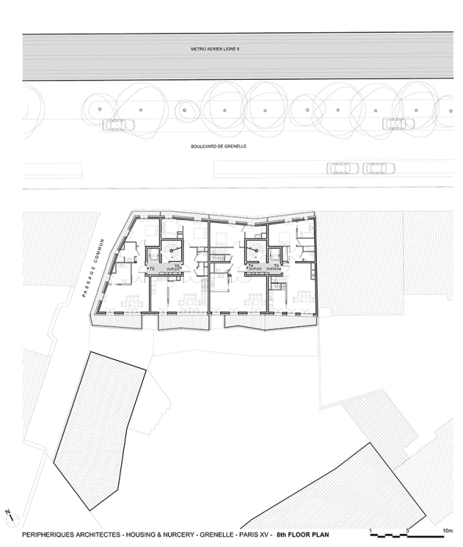
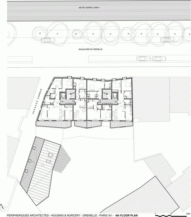
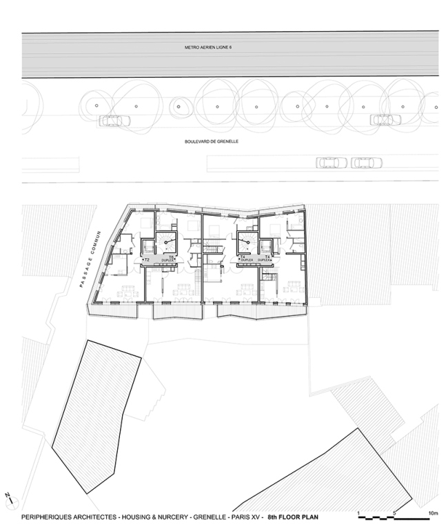
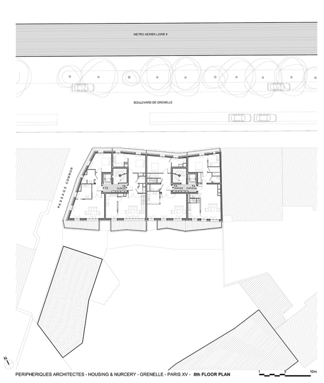
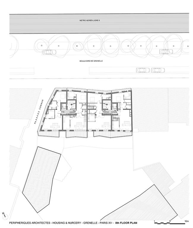
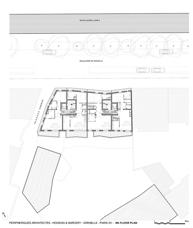
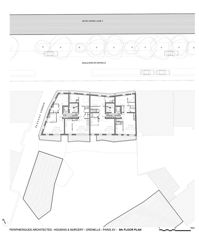
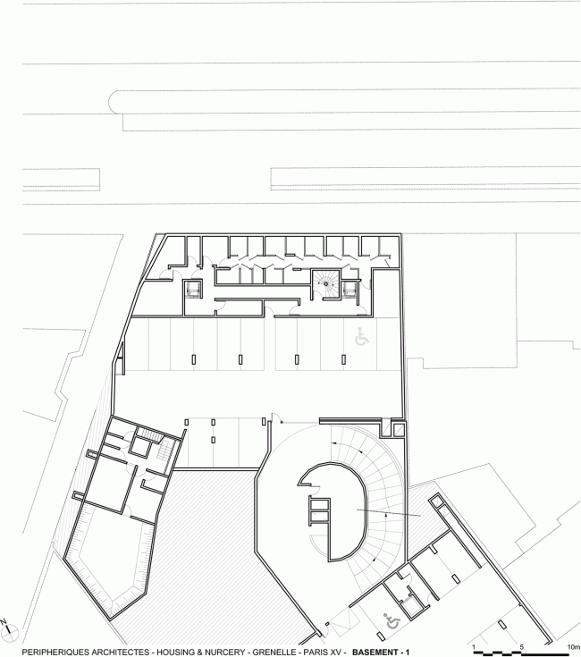
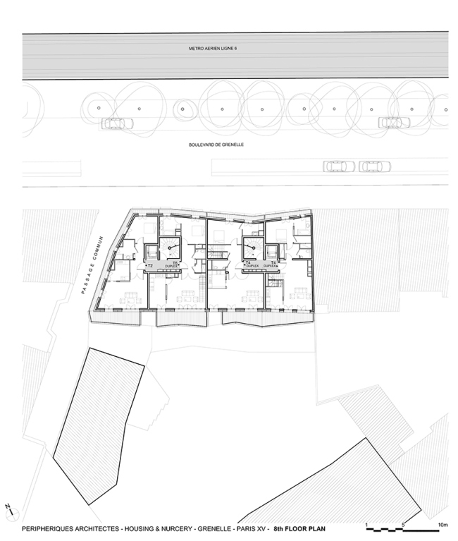
Жилой комплекс включает 35 квартир, спроектированных так, чтобы обеспечить там сквозное проветривание и естественное освещение в течение всего дня за счет двойной экспозиции. Каждая квартира имеет выходящую на юг лоджию: за счет игры форм эти балконы не загораживают друг другу солнце. Первые этажи отведены под коммерческие нужды, корпуса также оснащены подземной стоянкой и общей террасой на крыше.
Дом Grenelle © Sergio Grazia
Дом Grenelle © Sergio Grazia

Четыре фасада были решены в едином ключе, но каждый выполнен со своими особенностями. Они окутаны сетью горизонтальных пластин, что делает достаточно простые по пластике и объемам стены более «активными». Для отделки фасада, выходящего на улицу Фремикур, использовано стекло; для внутреннего двора – дерево и панели из анодированного алюминия. Со стороны бульвара здание отделано глазурованной плиткой.
Дом Grenelle © Sergio Grazia
Дом Grenelle © Sergio Grazia

Подобные примеры, как Grenelle, заставляют задуматься о том, что иногда идея и исполнение, безусловно, торжествуют над архитектурной выразительностью и авторским эго. Но подобная политика деликатной интеграции, несомненно, дает свой результат.
Дом Grenelle © Sergio Grazia
Дом Grenelle © Sergio Grazia
Дом Grenelle © Peripheriques Architectes
Дом Grenelle © Peripheriques Architectes
Дом Grenelle © Sergio Grazia
Дом Grenelle © Sergio Grazia
Дом Grenelle © Sergio Grazia
Дом Grenelle © Sergio Grazia
Дом Grenelle © Sergio Grazia
Дом Grenelle © Sergio Grazia
Дом Grenelle © Sergio Grazia
Дом Grenelle © Sergio Grazia
Дом Grenelle © Sergio Grazia
Дом Grenelle © Sergio Grazia
Дом Grenelle © Sergio Grazia
Дом Grenelle © Sergio Grazia
Дом Grenelle © Peripheriques Architectes
Дом Grenelle © Peripheriques Architectes
Дом Grenelle © Peripheriques Architectes
Дом Grenelle © Peripheriques Architectes
Дом Grenelle © Peripheriques Architectes
Дом Grenelle © Peripheriques Architectes
Дом Grenelle © Peripheriques Architectes
Дом Grenelle © Peripheriques Architectes
Дом Grenelle © Peripheriques Architectes
Дом Grenelle © Peripheriques Architectes
Дом Grenelle © Peripheriques Architectes
Дом Grenelle © Peripheriques Architectes
Дом Grenelle © Peripheriques Architectes
Дом Grenelle © Peripheriques Architectes
Дом Grenelle © Peripheriques Architectes
Дом Grenelle © Peripheriques Architectes
Дом Grenelle © Peripheriques Architectes
Дом Grenelle © Peripheriques Architectes
Дом Grenelle © Peripheriques Architectes
Дом Grenelle © Peripheriques Architectes
Дом Grenelle © Peripheriques Architectes
Дом Grenelle © Peripheriques Architectes
Дом Grenelle © Peripheriques Architectes
Дом Grenelle © Peripheriques Architectes
Дом Grenelle © Peripheriques Architectes
Дом Grenelle © Peripheriques Architectes
Дом Grenelle © Peripheriques Architectes
Дом Grenelle © Peripheriques Architectes
Дом Grenelle © Peripheriques Architectes
Дом Grenelle © Peripheriques Architectes
Дом Grenelle © Peripheriques Architectes
Дом Grenelle © Peripheriques Architectes