Размещено на портале Архи.ру (www.archi.ru)

03.04.2014

Имитация камня

Анна Мартовицкая
Объект:
Штаб-квартира компании Allianz
Адрес:
Швейцария, None, Цюрих.

Виль Аретс построил в Цюрихе штаб-квартиру международной страховой компании Allianz.

Штаб-квартира компании Allianz © Jan Bitter
Штаб-квартира компании Allianz © Jan Bitter
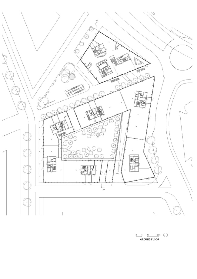
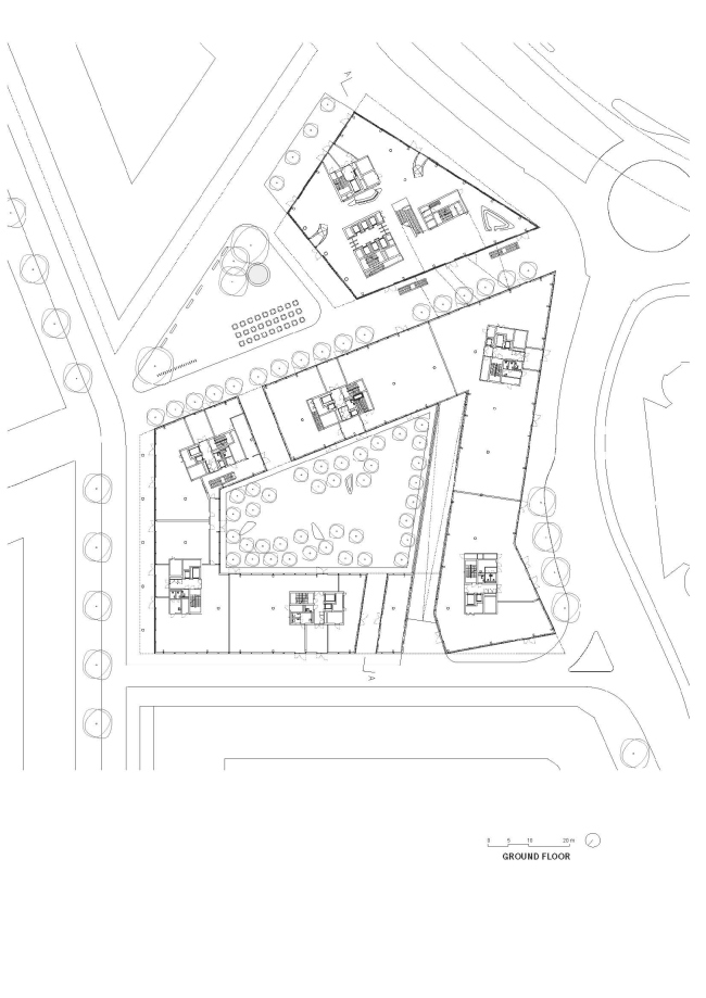
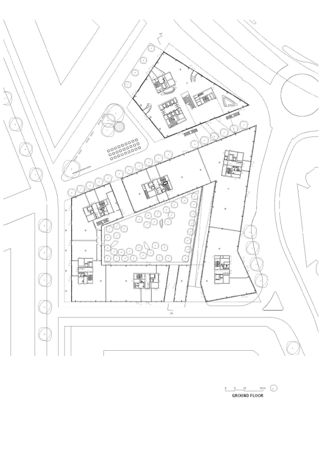
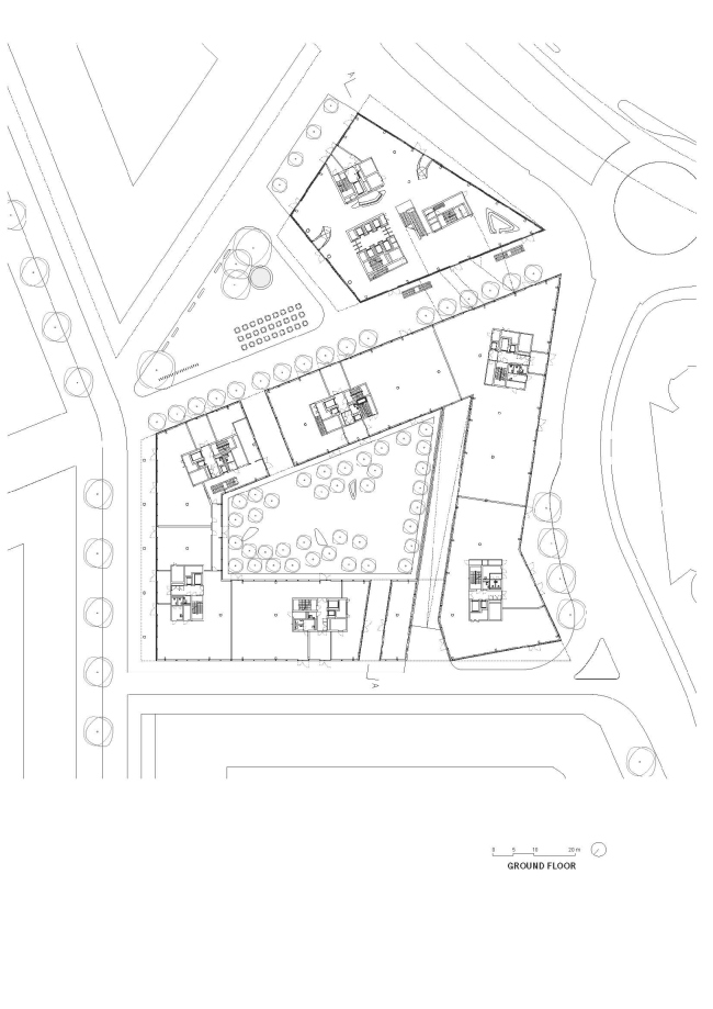
Швейцарское представительство одной из самых известных страховых компаний мира расположилось на Рихтиштрассе, в новом деловом районе Цюриха, граничащим с историческим центром. В плане участок имел форму многоугольника, и это во многом определило архитектурно-композиционное решение комплекса. Он состоит из 20-этажной башни и пятиэтажного корпуса, причем оба эти объема получили трапециевидную форму и изобилуют выразительными острыми углами. Между собой здания соединены системой из четырех переходов-мостов.
Штаб-квартира компании Allianz © Jan Bitter
Штаб-квартира компании Allianz © Jan Bitter

Генеральный план развития района предписывал, чтобы все строящиеся здесь здания получали фасады из натурального камня, однако Виль Аретс придумал более тонкий ход. Фасады штаб-квартиры Allianz выполнены из фриттованного стекла, на которое нанесен мраморный узор. Причем архитекторы использовали не абстрактный рисунок, а фото фрагментов стен из черного мрамора знаменитого павильона Людвига Мис ван дер Роэ в Барселоне. Нанесенный на стекло, он делает фасады условно «каменными»: ничем не уступая по солидности своим ближайшим соседям, новое здание вместе с тем выглядит интригующе и современно. Органичным дополнением подобного «одеяния» служат и расположенные между двумя слоями стекла алюминиевые гардины: управляемые автоматически, они помогают регулировать уровень освещения в интерьере.
Штаб-квартира компании Allianz © Jan Bitter
Штаб-квартира компании Allianz © Jan Bitter

Одним из украшений центрального вестибюля стала бело-черная лестница, соединяющая входную зону с башней. Заданную ею минималистскую цветовую гамму поддерживают белоснежные стены и такие же потолочные панели из перфорированной стали. За последними спрятаны системы отопления и кондиционирования, а многочисленные отверстия складываются в узор, призванный напомнить о традиционном декоре карнизных свесов швейцарских шале.
Штаб-квартира компании Allianz © Jan Bitter
Штаб-квартира компании Allianz © Jan Bitter

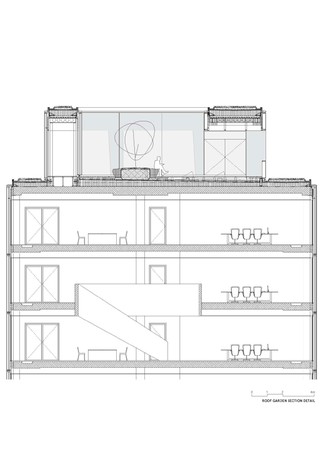
Центральный вестибюль, как и весь первый этаж штаб-квартиры, доступен для всех желающих. Фактически эти пространства трактованы архитекторами как продолжение пешеходной зоны вокруг зданий. Кроме того, пройдя через них, можно попасть в благоустроенные внутренние дворы. Интересно, что ресторан и кафе при этом размещены не здесь, на уровне земли, а лишь на пятом этаже – они служат своего рода «буферной зоной», отделяющей ту часть здания, в которую имеют доступ гости, и собственно офисные помещения, предназначенные лишь для сотрудников компании. В частности, четвертый этаж комплекса занят конференц-залами и переговорными, предоставляющими массу возможностей для взаимодействия с клиентами и деловыми партнерами. Отдохнуть от рабочего дня и провести неформальную встречу также можно на одной из террас, устроенных на кровле 5-этажного корпуса. 
Штаб-квартира компании Allianz © Jan Bitter
Штаб-квартира компании Allianz © Jan Bitter
Штаб-квартира компании Allianz © Jan Bitter
Штаб-квартира компании Allianz © Jan Bitter
Штаб-квартира компании Allianz © Jan Bitter
Штаб-квартира компании Allianz © Jan Bitter
Штаб-квартира компании Allianz © Jan Bitter
Штаб-квартира компании Allianz © Jan Bitter
Штаб-квартира компании Allianz © Jan Bitter
Штаб-квартира компании Allianz © Jan Bitter
Штаб-квартира компании Allianz © Jan Bitter
Штаб-квартира компании Allianz © Jan Bitter
Штаб-квартира компании Allianz © Jan Bitter
Штаб-квартира компании Allianz © Jan Bitter
Штаб-квартира компании Allianz © Jan Bitter
Штаб-квартира компании Allianz © Jan Bitter
Штаб-квартира компании Allianz © Jan Bitter
Штаб-квартира компании Allianz © Jan Bitter
Штаб-квартира компании Allianz © Jan Bitter
Штаб-квартира компании Allianz © Jan Bitter
Штаб-квартира компании Allianz © Jan Bitter
Штаб-квартира компании Allianz © Jan Bitter
Штаб-квартира компании Allianz © Jan Bitter
Штаб-квартира компании Allianz © Jan Bitter
Штаб-квартира компании Allianz © Jan Bitter
Штаб-квартира компании Allianz © Jan Bitter
Штаб-квартира компании Allianz © Jan Bitter
Штаб-квартира компании Allianz © Jan Bitter
Штаб-квартира компании Allianz © Jan Bitter
Штаб-квартира компании Allianz © Jan Bitter
Штаб-квартира компании Allianz © Jan Bitter
Штаб-квартира компании Allianz © Jan Bitter
Штаб-квартира компании Allianz © Jan Bitter
Штаб-квартира компании Allianz © Jan Bitter
Штаб-квартира компании Allianz © Jan Bitter
Штаб-квартира компании Allianz © Jan Bitter
Штаб-квартира компании Allianz © Jan Bitter
Штаб-квартира компании Allianz © Jan Bitter
Штаб-квартира компании Allianz © Jan Bitter
Штаб-квартира компании Allianz © Jan Bitter
Штаб-квартира компании Allianz © Jan Bitter
Штаб-квартира компании Allianz © Jan Bitter
Штаб-квартира компании Allianz © Jan Bitter
Штаб-квартира компании Allianz © Jan Bitter
Штаб-квартира компании Allianz © Jan Bitter
Штаб-квартира компании Allianz © Jan Bitter
Штаб-квартира компании Allianz © Jan Bitter
Штаб-квартира компании Allianz © Jan Bitter
Штаб-квартира компании Allianz © Jan Bitter
Штаб-квартира компании Allianz © Jan Bitter
Штаб-квартира компании Allianz © Jan Bitter
Штаб-квартира компании Allianz © Jan Bitter
Штаб-квартира компании Allianz © Jan Bitter
Штаб-квартира компании Allianz © Jan Bitter
Штаб-квартира компании Allianz © Jan Bitter
Штаб-квартира компании Allianz © Jan Bitter
Штаб-квартира компании Allianz © Jan Bitter
Штаб-квартира компании Allianz © Jan Bitter
Штаб-квартира компании Allianz © Jan Bitter
Штаб-квартира компании Allianz © Jan Bitter
Штаб-квартира компании Allianz © Jan Bitter
Штаб-квартира компании Allianz © Jan Bitter
Штаб-квартира компании Allianz © Jan Bitter
Штаб-квартира компании Allianz © Jan Bitter
Штаб-квартира компании Allianz © Jan Bitter
Штаб-квартира компании Allianz © Jan Bitter
Штаб-квартира компании Allianz © Jan Bitter
Штаб-квартира компании Allianz © Jan Bitter
Штаб-квартира компании Allianz © Jan Bitter
Штаб-квартира компании Allianz © Jan Bitter
Штаб-квартира компании Allianz © Wiel Arets Architects
Штаб-квартира компании Allianz © Wiel Arets Architects
Штаб-квартира компании Allianz © Wiel Arets Architects
Штаб-квартира компании Allianz © Wiel Arets Architects
Штаб-квартира компании Allianz © Wiel Arets Architects
Штаб-квартира компании Allianz © Wiel Arets Architects
Штаб-квартира компании Allianz © Wiel Arets Architects
Штаб-квартира компании Allianz © Wiel Arets Architects
Штаб-квартира компании Allianz © Wiel Arets Architects
Штаб-квартира компании Allianz © Wiel Arets Architects
Штаб-квартира компании Allianz © Wiel Arets Architects
Штаб-квартира компании Allianz © Wiel Arets Architects
Штаб-квартира компании Allianz © Wiel Arets Architects
Штаб-квартира компании Allianz © Wiel Arets Architects
Штаб-квартира компании Allianz © Wiel Arets Architects
Штаб-квартира компании Allianz © Wiel Arets Architects
Штаб-квартира компании Allianz © Wiel Arets Architects
Штаб-квартира компании Allianz © Wiel Arets Architects