Размещено на портале Архи.ру (www.archi.ru)

02.04.2014

В широком контексте

Анастасия Вайнберг
Объект:
Исторический архив Страны Басков
Адрес:
Испания, None, Бильбао. María de Haro, 3
Мастерская:
IDOM

В Бильбао построено новое здание исторического архива Страны Басков по проекту бюро ACXT.

Исторический архив Страны Басков © Aitor Ortiz
Исторический архив Страны Басков © Aitor Ortiz

Здание архива кажется точечным явлением интеграции современной архитектуры в традиционную застройку, но на самом деле за ним стоят гораздо более масштабные процессы. Благодаря новому музею Гуггенхайма Бильбао прославился и приобрел статус одного из туристических центров Испании. Но музей, построенный по проекту Фрэнка Гери, является лишь одним из 25 пунктов, реализованных в течение последних 25 лет в рамках проекта трансформации города. Наряду с восстановлением исторического центра, развитием аэропорта и городских транспортных систем там стоят пункты «Архитектура нового Бильбао» и «Трансформация района Энсанче», в котором и находится новое здание исторического архива Страны Басков.
Исторический архив Страны Басков © Aitor Ortiz
Исторический архив Страны Басков © Aitor Ortiz

Энсанче  (Ensanche) в переводе значит «расширение». Так называют части испанских городов, которые были застроены в конце XIX века, когда промышленная революция, демографический взрыв и, безусловно, влияние проекта реконструкции Парижа барона Османа запустили в нескольких городах одинаковый сценарий: снос старых городских стен и застройку новых территорий сеткой кварталов. Самый известный пример – это, конечно, Барселона Ильдефонса Серда. Аналогично развивались Мадрид и Бильбао.
Исторический архив Страны Басков © Aitor Ortiz
Исторический архив Страны Басков © Aitor Ortiz

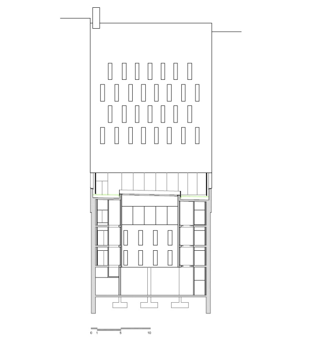
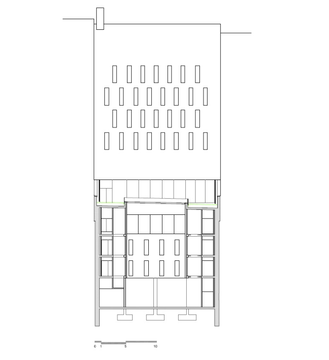
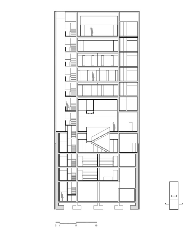
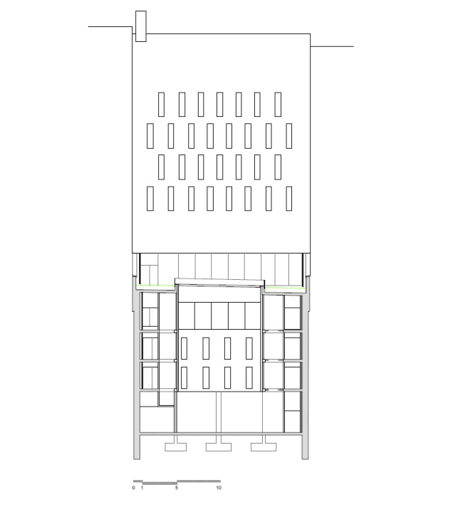
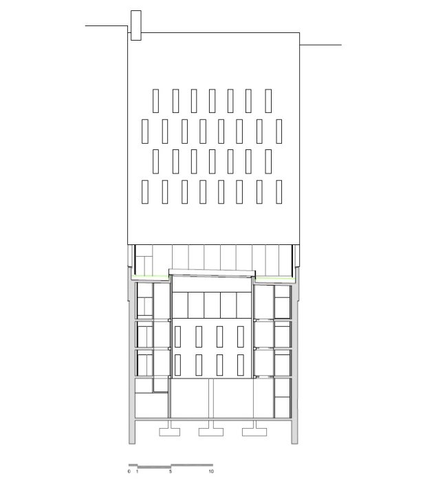
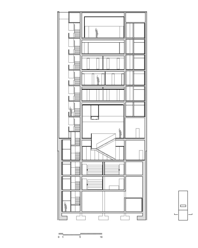
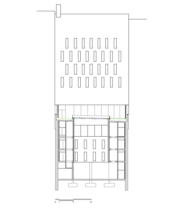
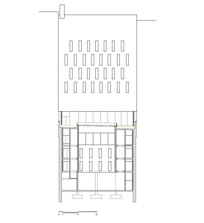
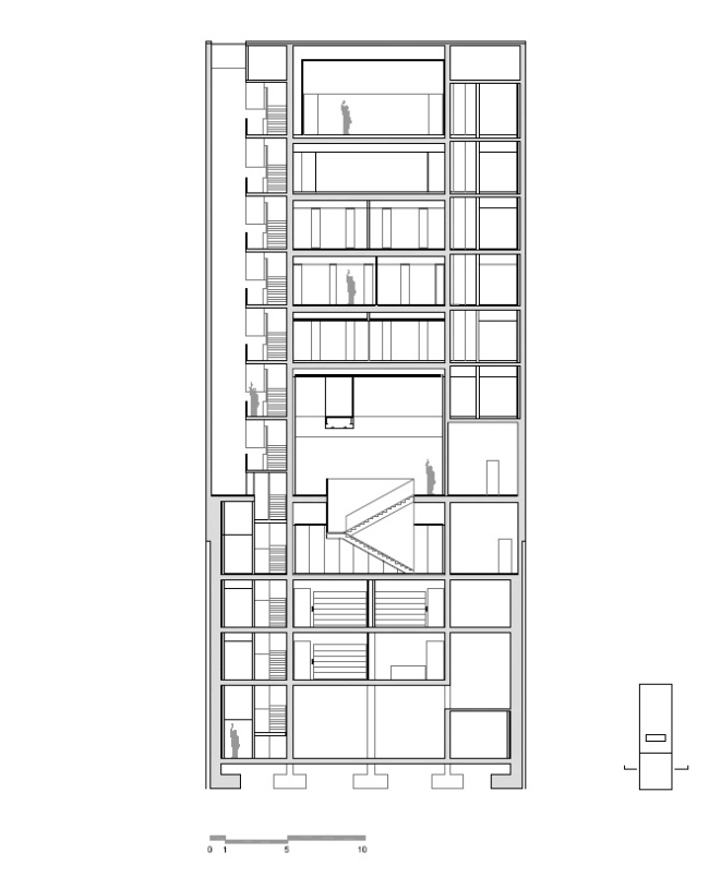
Новое здание архива обязано играть по тем правилам, которые задает подобная традиционная застройка. Оно занимает участок шириной 20 м, зажатый между двумя соседними домами, но уходящий в глубь квартала на 70 м.
Исторический архив Страны Басков © Aitor Ortiz
Исторический архив Страны Басков © Aitor Ortiz

На первом и втором этажах и части первого подземного уровня находятся несколько многофункциональных выставочных залов. Эта часть открыта для свободного доступа. Через 1-й этаж можно свободно пройти и в сад, что не совсем типично для европейской квартальной застройки, где двор обычно закрыт для публики. Выше 2-го этажа корпус толщиной 25 метров занимают административные помещения и лаборатории, доступ в которые ограничен.
Исторический архив Страны Басков © Aitor Ortiz
Исторический архив Страны Басков © Aitor Ortiz

Наземная часть здания поддерживает строчку улицы и высоту расположенных рядом домов, а под землей занимает всю площадь участка, уходя вглубь на 20 метров. Большая часть подземных пространств для публики закрыты. Собственно, сам архив и находится под землей – вместе с переговорными и парковкой, куда машины попадают с уровня улицы с помощью лифта. В подземной части, благодаря небольшому атриуму, максимально используются естественная вентиляция и освещение.
Исторический архив Страны Басков © Aitor Ortiz
Исторический архив Страны Басков © Aitor Ortiz

Надо отметить, что стены подземной части были сооружены с помощью техники hydrofraise, то есть они были закончены до того, как начали рыть котлован в скальном грунте. Это позволило сократить время работ, а также вибрации, которые могли бы потревожить окружающие здания, тем более что возраст некоторых из них – более ста лет.
Исторический архив Страны Басков © Aitor Ortiz
Исторический архив Страны Басков © Aitor Ortiz

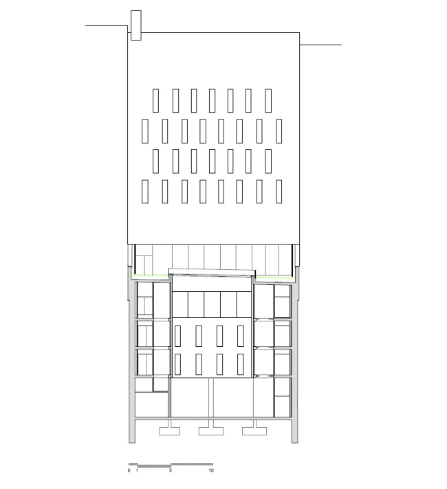
Здание архива как будто стремится быть одной из «витрин» происходящих с городом преобразований. Наряду с общественными функциями, которые интегрируют архив в городскую жизнь, этим можно объяснить и некоторую «буквальность» уличного фасада. Он представляет собой вибрирующую стеклянную поверхность, сквозь которую можно наблюдать жизнь здания и его конструктивное устройство. На стекла нанесен паттерн из текстов, хранящихся в архиве, что добавляет постройке очень ясного символизма. Впрочем, этот фасад, на мой взгляд, вызывает сомнение прежде всего тем, насколько уместно подобное решение при испанском солнце. Да и паттерн кажется весьма жеманным, и тем обиднее, что он влияет на впечатление от безупречной архитектуры интерьеров и внутреннего фасада, выходящего во двор и изящно соседствующего с несколько потертым окружением.
Исторический архив Страны Басков © Aitor Ortiz
Исторический архив Страны Басков © Aitor Ortiz
Исторический архив Страны Басков © Aitor Ortiz
Исторический архив Страны Басков © Aitor Ortiz
Исторический архив Страны Басков © Aitor Ortiz
Исторический архив Страны Басков © Aitor Ortiz
Исторический архив Страны Басков © Aitor Ortiz
Исторический архив Страны Басков © Aitor Ortiz
Исторический архив Страны Басков © Aitor Ortiz
Исторический архив Страны Басков © Aitor Ortiz
Исторический архив Страны Басков © Aitor Ortiz
Исторический архив Страны Басков © Aitor Ortiz
Исторический архив Страны Басков © Aitor Ortiz
Исторический архив Страны Басков © Aitor Ortiz
Исторический архив Страны Басков © Aitor Ortiz
Исторический архив Страны Басков © Aitor Ortiz
Исторический архив Страны Басков © Aitor Ortiz
Исторический архив Страны Басков © Aitor Ortiz
Исторический архив Страны Басков © Aitor Ortiz
Исторический архив Страны Басков © Aitor Ortiz
Исторический архив Страны Басков © Aitor Ortiz
Исторический архив Страны Басков © Aitor Ortiz
Исторический архив Страны Басков © Aitor Ortiz
Исторический архив Страны Басков © Aitor Ortiz
Исторический архив Страны Басков © Aitor Ortiz
Исторический архив Страны Басков © Aitor Ortiz
Исторический архив Страны Басков © Aitor Ortiz
Исторический архив Страны Басков © Aitor Ortiz
Исторический архив Страны Басков © Aitor Ortiz
Исторический архив Страны Басков © Aitor Ortiz
Исторический архив Страны Басков © Aitor Ortiz
Исторический архив Страны Басков © Aitor Ortiz
Исторический архив Страны Басков © Aitor Ortiz
Исторический архив Страны Басков © Aitor Ortiz
Исторический архив Страны Басков © Aitor Ortiz
Исторический архив Страны Басков © Aitor Ortiz
Исторический архив Страны Басков © Aitor Ortiz
Исторический архив Страны Басков © Aitor Ortiz
Исторический архив Страны Басков © Aitor Ortiz
Исторический архив Страны Басков © Aitor Ortiz
Исторический архив Страны Басков © Aitor Ortiz
Исторический архив Страны Басков © Aitor Ortiz
Исторический архив Страны Басков © Aitor Ortiz
Исторический архив Страны Басков © Aitor Ortiz
Исторический архив Страны Басков © Aitor Ortiz
Исторический архив Страны Басков © Aitor Ortiz
Исторический архив Страны Басков © Aitor Ortiz
Исторический архив Страны Басков © Aitor Ortiz
Исторический архив Страны Басков © Aitor Ortiz
Исторический архив Страны Басков © Aitor Ortiz
Исторический архив Страны Басков © Aitor Ortiz
Исторический архив Страны Басков © Aitor Ortiz
Исторический архив Страны Басков © Aitor Ortiz
Исторический архив Страны Басков © Aitor Ortiz
Исторический архив Страны Басков © Aitor Ortiz
Исторический архив Страны Басков © Aitor Ortiz
Исторический архив Страны Басков © Aitor Ortiz
Исторический архив Страны Басков © Aitor Ortiz
Исторический архив Страны Басков © Aitor Ortiz
Исторический архив Страны Басков © Aitor Ortiz
Исторический архив Страны Басков © ACXT
Исторический архив Страны Басков © ACXT
Исторический архив Страны Басков © ACXT
Исторический архив Страны Басков © ACXT
Исторический архив Страны Басков © ACXT
Исторический архив Страны Басков © ACXT
Исторический архив Страны Басков © ACXT
Исторический архив Страны Басков © ACXT
Исторический архив Страны Басков © ACXT
Исторический архив Страны Басков © ACXT
Исторический архив Страны Басков © ACXT
Исторический архив Страны Басков © ACXT
Исторический архив Страны Басков © ACXT
Исторический архив Страны Басков © ACXT
Исторический архив Страны Басков © ACXT
Исторический архив Страны Басков © ACXT
Исторический архив Страны Басков © ACXT
Исторический архив Страны Басков © ACXT
Исторический архив Страны Басков © ACXT
Исторический архив Страны Басков © ACXT
Исторический архив Страны Басков © ACXT
Исторический архив Страны Басков © ACXT
Исторический архив Страны Басков © ACXT
Исторический архив Страны Басков © ACXT
Исторический архив Страны Басков © ACXT
Исторический архив Страны Басков © ACXT
Исторический архив Страны Басков © ACXT
Исторический архив Страны Басков © ACXT
Исторический архив Страны Басков © ACXT
Исторический архив Страны Басков © ACXT
Исторический архив Страны Басков © ACXT
Исторический архив Страны Басков © ACXT
Исторический архив Страны Басков © ACXT
Исторический архив Страны Басков © ACXT
Исторический архив Страны Басков © ACXT
Исторический архив Страны Басков © ACXT
Исторический архив Страны Басков © ACXT
Исторический архив Страны Басков © ACXT