Размещено на портале Архи.ру (www.archi.ru)

21.03.2014

Континентальный уровень

Нина Фролова
Объект:
Гостиница Estrel Tower
Адрес:
Германия, None, Берлин.
Мастерская:
Kleihues + Kleihues
Sauerbruch Hutton
schneider+schumacher

Призеры конкурса на проект самой высокой башни Берлина – гостиницы Estrel Tower.

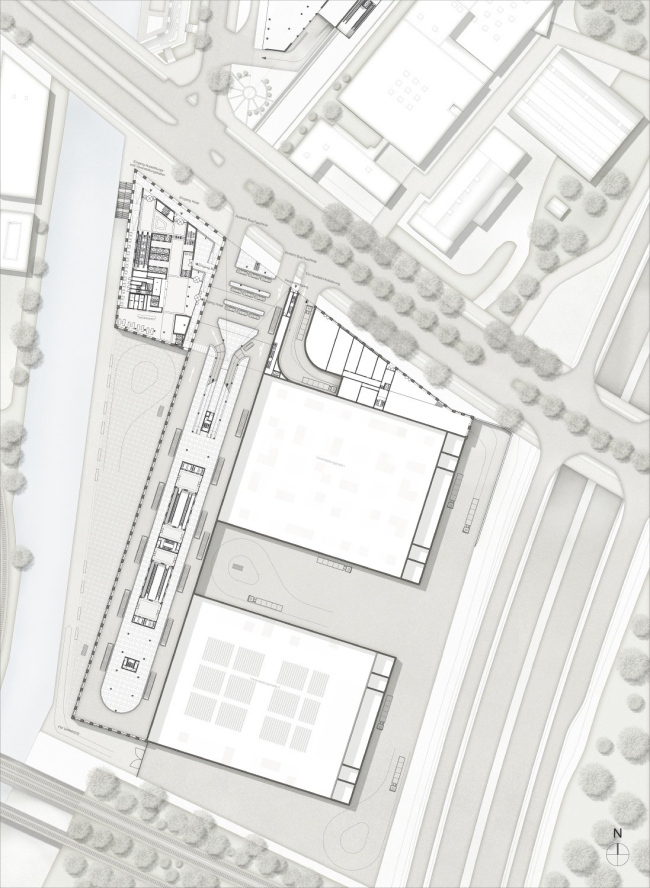
Победителем стала мастерская Barkow Leibinger, недавно уступившая Фрэнку Гери в конкурсе на проект 150-метровой башни на Александер-платц. Однако благодаря тому, что небоскреб Estrel Tower расположен далеко от исторического центра Берлина, на границе периферии и района Нойкёльн, он будет выше, чем постройка Гери: при высоте 175 м он станет самым высоким зданием столицы и самой высокой гостиницей Германии.

Гостиница Estrel Tower © Barkow Leibinger / bloomimages
Гостиница Estrel Tower © Barkow Leibinger / bloomimages
Гостиница Estrel Tower © Barkow Leibinger / bloomimages
Гостиница Estrel Tower © Barkow Leibinger / bloomimages

Estrel Tower вместит порядка 814 номеров, также в ее комплекс войдут центр выставок и конгрессов, офисное здание, паркинг, корпус с ресторанами и спа-центром – все это будут сблокированные вместе, но четко читающиеся объемы. Архитекторы Barkow Leibinger выбрали главным мотивом треугольник: он определяет планы новых зданий – в одиночку или удваиваясь и образуя ромб. Также у всех построек будет скошена крыша.
Гостиница Estrel Tower © Werner Hutmacher
Гостиница Estrel Tower © Werner Hutmacher
Гостиница Estrel Tower © Werner Hutmacher
Гостиница Estrel Tower © Werner Hutmacher
Гостиница Estrel Tower © Werner Hutmacher
Гостиница Estrel Tower © Werner Hutmacher
Гостиница Estrel Tower © Monath + Menzel
Гостиница Estrel Tower © Monath + Menzel
Гостиница Estrel Tower © Monath + Menzel
Гостиница Estrel Tower © Monath + Menzel
Гостиница Estrel Tower © Monath + Menzel
Гостиница Estrel Tower © Monath + Menzel

Комплекс поставят между улицей Зонненалле и каналом, на пути из международного аэропорта Шенефельд в центр города, поэтому он станет своего рода воротами Берлина. Рядом находится старый отель Estrel с более чем 1000 номеров и конгресс-центром. Несмотря на свой внушительный размер, сейчас он работает на пределе своих возможностей, поэтому новый корпус ему необходим.
Гостиница Estrel Tower © Barkow Leibinger
Гостиница Estrel Tower © Barkow Leibinger
Гостиница Estrel Tower © Barkow Leibinger
Гостиница Estrel Tower © Barkow Leibinger
Гостиница Estrel Tower © Barkow Leibinger
Гостиница Estrel Tower © Barkow Leibinger
Гостиница Estrel Tower © Barkow Leibinger
Гостиница Estrel Tower © Barkow Leibinger
Гостиница Estrel Tower © Barkow Leibinger
Гостиница Estrel Tower © Barkow Leibinger
Гостиница Estrel Tower © Barkow Leibinger
Гостиница Estrel Tower © Barkow Leibinger
Гостиница Estrel Tower © Barkow Leibinger
Гостиница Estrel Tower © Barkow Leibinger
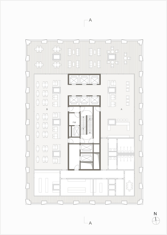
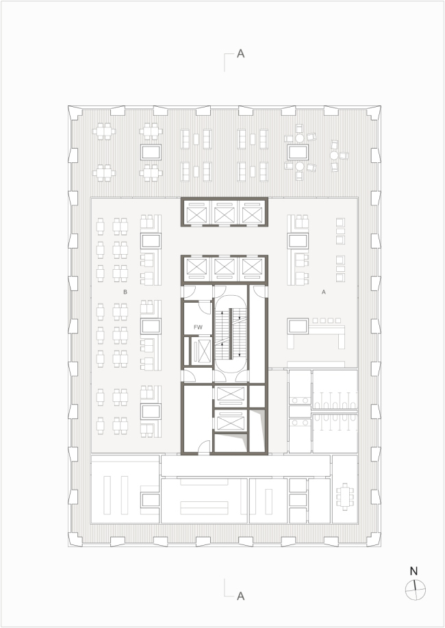
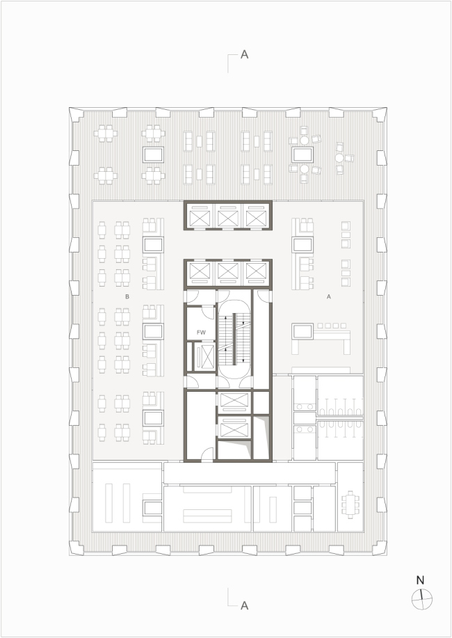
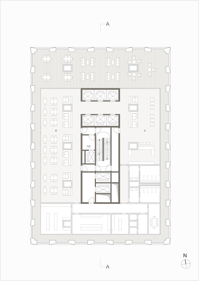
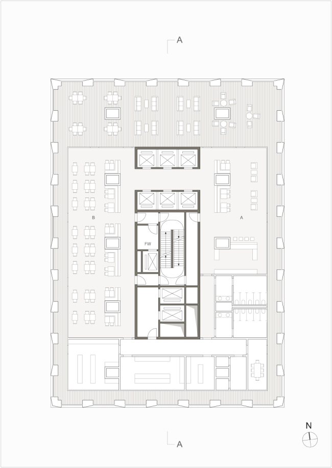
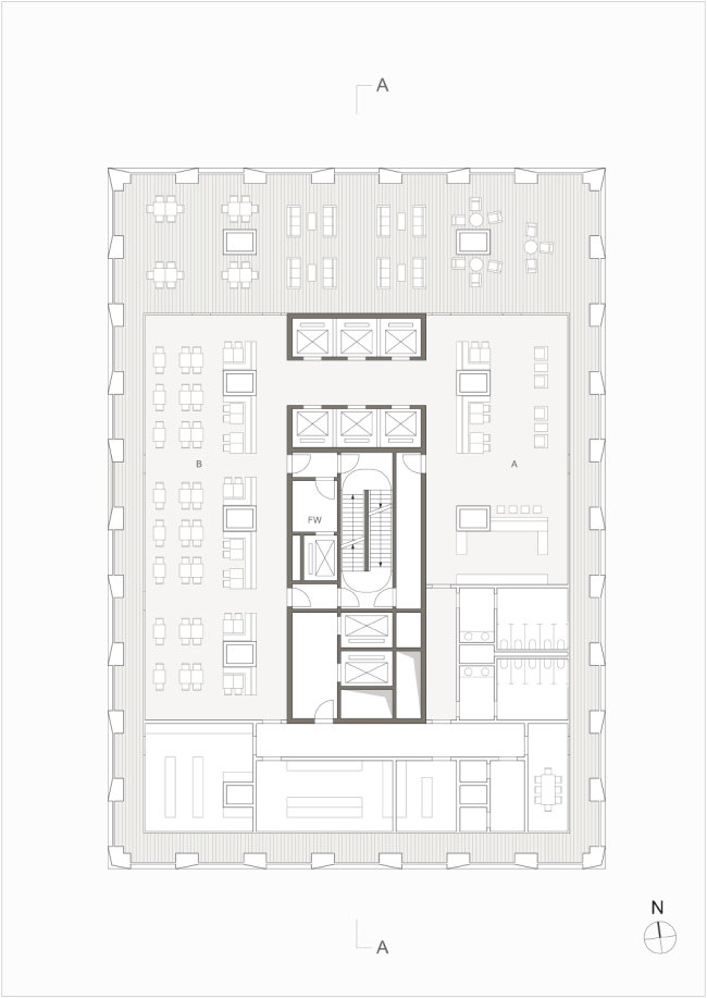
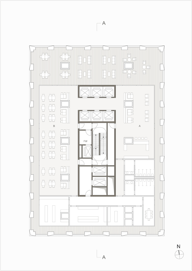
Гостиница Estrel Tower. Планы верхних этажей © Barkow Leibinger
Гостиница Estrel Tower. Планы верхних этажей © Barkow Leibinger
Гостиница Estrel Tower © Barkow Leibinger
Гостиница Estrel Tower © Barkow Leibinger

Однако владелец Estrel планирует конкурировать не с другими гостиницами немецкой столицы, а с крупнейшими отелями Европы: выйдя на континентальный уровень, он собирается проводить у себя самые большие международные конгрессы и выставки.

Второе место в конкурсе на проект Estrel Tower заняло бюро schneider + schumacher, третье – Meixner Schlüter Wendt. Поощрительных премий удостоились проекты Kleihues + Kleihues, sauerbruch hutton и Кристофа Ингенхофена.

2-е место. Проект schneider + schumacher
2-е место. Проект schneider + schumacher
2-е место. Проект schneider + schumacher
2-е место. Проект schneider + schumacher
2-е место. Проект schneider + schumacher
2-е место. Проект schneider + schumacher
2-е место. Проект schneider + schumacher
2-е место. Проект schneider + schumacher
2-е место. Проект schneider + schumacher


3-е место. Проект Meixner Schlüter Wendt
3-е место. Проект Meixner Schlüter Wendt
3-е место. Проект Meixner Schlüter Wendt
3-е место. Проект Meixner Schlüter Wendt
3-е место. Проект Meixner Schlüter Wendt
3-е место. Проект Meixner Schlüter Wendt
3-е место. Проект Meixner Schlüter Wendt
3-е место. Проект Meixner Schlüter Wendt
3-е место. Проект Meixner Schlüter Wendt


Поощрительная премия. Проект Kleihues + Kleihues
Проект Kleihues + Kleihues
Проект Kleihues + Kleihues
Проект Kleihues + Kleihues
Проект Kleihues + Kleihues
Проект Kleihues + Kleihues
Проект Kleihues + Kleihues
Проект Kleihues + Kleihues
Проект Kleihues + Kleihues
Проект Kleihues + Kleihues
Проект Kleihues + Kleihues
Проект Kleihues + Kleihues
Проект Kleihues + Kleihues
Проект Kleihues + Kleihues
Проект Kleihues + Kleihues
Проект Kleihues + Kleihues
Проект Kleihues + Kleihues


Поощрительная премия. Проект sauerbruch hutton
Проект sauerbruch hutton
Проект sauerbruch hutton
Проект sauerbruch hutton
Проект sauerbruch hutton
Проект sauerbruch hutton
Проект sauerbruch hutton
Проект sauerbruch hutton
Проект sauerbruch hutton
Проект sauerbruch hutton
Проект sauerbruch hutton


Поощрительная премия. Проект Кристофа Ингенхофена
Проект Кристофа Ингенховена
Проект Кристофа Ингенховена
Проект Кристофа Ингенховена
Проект Кристофа Ингенховена
Проект Кристофа Ингенховена
Проект Кристофа Ингенховена
Проект Кристофа Ингенховена
Проект Кристофа Ингенховена