Размещено на портале Архи.ру (www.archi.ru)

12.03.2014

Белое древо

Нина Фролова
Объект:
Башня L′Arbre Blanc
Адрес:
Франция, None, Монпелье.
Мастерская:
Nicolas Laisné Architectes

Со Фудзимото выиграл конкурс на проект жилого дома в Монпелье.

Башня Arbre Blanc © RSI-studio, Sou Fujimoto Architects, Nicolas Laisné Associés, Manal Rachdi Oxo Architectes
Башня Arbre Blanc © RSI-studio, Sou Fujimoto Architects, Nicolas Laisné Associés, Manal Rachdi Oxo Architectes

Жилой комплекс Arbre Blanc («белое дерево») расположится на берегу реки Лез, между центром города и новыми районами Порт-Марианн и Одиссеум. С его балконов откроется эффектный вид на комплекс «Антигона» Рикардо Бофилла.
Башня Arbre Blanc © RSI-studio, Sou Fujimoto Architects, Nicolas Laisné Associés, Manal Rachdi Oxo Architectes
Башня Arbre Blanc © RSI-studio, Sou Fujimoto Architects, Nicolas Laisné Associés, Manal Rachdi Oxo Architectes

Проектировщики – наряду с Sou Fujimoto Architects, это французские бюро Nicolas Laisné Associés и Manal Rachdi Oxo Architectes – подчеркивают, что их дом не «башня из слоновой кости». На первых этажах откроются ресторан, художественная галерея и офисы, а на крыше – доступный горожанам и туристам бар.
Башня Arbre Blanc © RSI-studio, Sou Fujimoto Architects, Nicolas Laisné Associés, Manal Rachdi Oxo Architectes
Башня Arbre Blanc © RSI-studio, Sou Fujimoto Architects, Nicolas Laisné Associés, Manal Rachdi Oxo Architectes

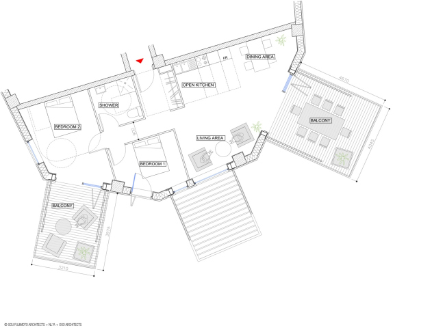
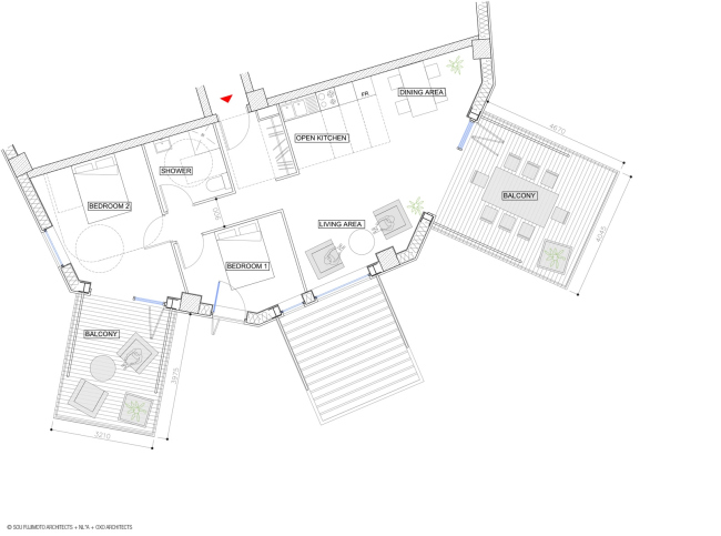
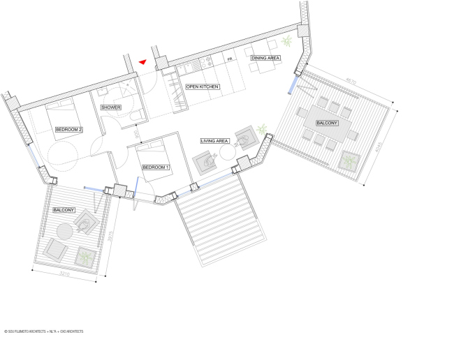
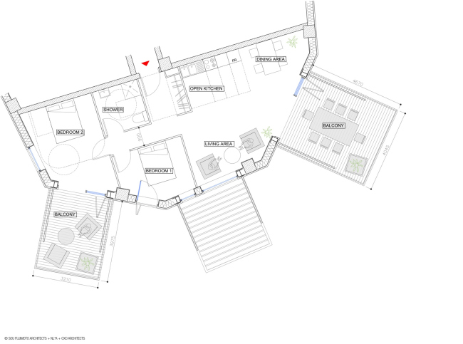
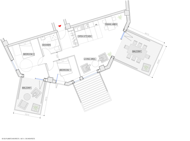
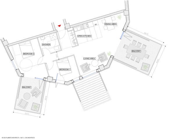
Но о жильцах тоже не забыли: к их услугам – сад и общая комната на крыше. Но главное, конечно, это квартиры с огромными, далеко выступающими балконами, где в традициях юга Франции граница между помещением и внешней средой размыта.
Башня Arbre Blanc © RSI-studio, Sou Fujimoto Architects, Nicolas Laisné Associés, Manal Rachdi Oxo Architectes
Башня Arbre Blanc © RSI-studio, Sou Fujimoto Architects, Nicolas Laisné Associés, Manal Rachdi Oxo Architectes

Проект использует солнечную энергию по «пассивной» схеме, в том числе «солнечные трубы» для вентиляции; также предусмотрены внешние регулируемые жалюзи и система сбора и использования дождевой воды.
Башня Arbre Blanc © RSI-studio, Sou Fujimoto Architects, Nicolas Laisné Associés, Manal Rachdi Oxo Architectes
Башня Arbre Blanc © RSI-studio, Sou Fujimoto Architects, Nicolas Laisné Associés, Manal Rachdi Oxo Architectes
Башня Arbre Blanc © RSI-studio, Sou Fujimoto Architects, Nicolas Laisné Associés, Manal Rachdi Oxo Architectes
Башня Arbre Blanc © RSI-studio, Sou Fujimoto Architects, Nicolas Laisné Associés, Manal Rachdi Oxo Architectes
Башня Arbre Blanc © RSI-studio, Sou Fujimoto Architects, Nicolas Laisné Associés, Manal Rachdi Oxo Architectes
Башня Arbre Blanc © RSI-studio, Sou Fujimoto Architects, Nicolas Laisné Associés, Manal Rachdi Oxo Architectes
Башня Arbre Blanc © RSI-studio, Sou Fujimoto Architects, Nicolas Laisné Associés, Manal Rachdi Oxo Architectes
Башня Arbre Blanc © RSI-studio, Sou Fujimoto Architects, Nicolas Laisné Associés, Manal Rachdi Oxo Architectes
Башня Arbre Blanc © RSI-studio, Sou Fujimoto Architects, Nicolas Laisné Associés, Manal Rachdi Oxo Architectes
Башня Arbre Blanc © RSI-studio, Sou Fujimoto Architects, Nicolas Laisné Associés, Manal Rachdi Oxo Architectes
Башня Arbre Blanc © RSI-studio, Sou Fujimoto Architects, Nicolas Laisné Associés, Manal Rachdi Oxo Architectes
Башня Arbre Blanc © RSI-studio, Sou Fujimoto Architects, Nicolas Laisné Associés, Manal Rachdi Oxo Architectes
Башня Arbre Blanc © RSI-studio, Sou Fujimoto Architects, Nicolas Laisné Associés, Manal Rachdi Oxo Architectes
Башня Arbre Blanc © RSI-studio, Sou Fujimoto Architects, Nicolas Laisné Associés, Manal Rachdi Oxo Architectes
Башня Arbre Blanc © RSI-studio, Sou Fujimoto Architects, Nicolas Laisné Associés, Manal Rachdi Oxo Architectes
Башня Arbre Blanc © RSI-studio, Sou Fujimoto Architects, Nicolas Laisné Associés, Manal Rachdi Oxo Architectes
Башня Arbre Blanc © RSI-studio, Sou Fujimoto Architects, Nicolas Laisné Associés, Manal Rachdi Oxo Architectes
Башня Arbre Blanc © RSI-studio, Sou Fujimoto Architects, Nicolas Laisné Associés, Manal Rachdi Oxo Architectes
Башня Arbre Blanc © Sou Fujimoto Architects, Nicolas Laisné Associés, Manal Rachdi Oxo Architectes
Башня Arbre Blanc © Sou Fujimoto Architects, Nicolas Laisné Associés, Manal Rachdi Oxo Architectes
Башня Arbre Blanc © Sou Fujimoto Architects, Nicolas Laisné Associés, Manal Rachdi Oxo Architectes
Башня Arbre Blanc © Sou Fujimoto Architects, Nicolas Laisné Associés, Manal Rachdi Oxo Architectes
Башня Arbre Blanc © Sou Fujimoto Architects, Nicolas Laisné Associés, Manal Rachdi Oxo Architectes
Башня Arbre Blanc © Sou Fujimoto Architects, Nicolas Laisné Associés, Manal Rachdi Oxo Architectes
Башня Arbre Blanc © Sou Fujimoto Architects, Nicolas Laisné Associés, Manal Rachdi Oxo Architectes
Башня Arbre Blanc © Sou Fujimoto Architects, Nicolas Laisné Associés, Manal Rachdi Oxo Architectes
Башня Arbre Blanc © Sou Fujimoto Architects, Nicolas Laisné Associés, Manal Rachdi Oxo Architectes
Башня Arbre Blanc © Sou Fujimoto Architects, Nicolas Laisné Associés, Manal Rachdi Oxo Architectes
Башня Arbre Blanc © Sou Fujimoto Architects, Nicolas Laisné Associés, Manal Rachdi Oxo Architectes
Башня Arbre Blanc © Sou Fujimoto Architects, Nicolas Laisné Associés, Manal Rachdi Oxo Architectes
Башня Arbre Blanc © Sou Fujimoto Architects, Nicolas Laisné Associés, Manal Rachdi Oxo Architectes
Башня Arbre Blanc © Sou Fujimoto Architects, Nicolas Laisné Associés, Manal Rachdi Oxo Architectes
Башня Arbre Blanc © Sou Fujimoto Architects, Nicolas Laisné Associés, Manal Rachdi Oxo Architectes
Башня Arbre Blanc © Sou Fujimoto Architects, Nicolas Laisné Associés, Manal Rachdi Oxo Architectes
Башня Arbre Blanc © Sou Fujimoto Architects, Nicolas Laisné Associés, Manal Rachdi Oxo Architectes
Башня Arbre Blanc © Sou Fujimoto Architects, Nicolas Laisné Associés, Manal Rachdi Oxo Architectes
Башня Arbre Blanc © Sou Fujimoto Architects, Nicolas Laisné Associés, Manal Rachdi Oxo Architectes
Башня Arbre Blanc © Sou Fujimoto Architects, Nicolas Laisné Associés, Manal Rachdi Oxo Architectes
Башня Arbre Blanc © Sou Fujimoto Architects, Nicolas Laisné Associés, Manal Rachdi Oxo Architectes
Башня Arbre Blanc © Sou Fujimoto Architects, Nicolas Laisné Associés, Manal Rachdi Oxo Architectes
Башня Arbre Blanc © Sou Fujimoto Architects, Nicolas Laisné Associés, Manal Rachdi Oxo Architectes
Башня Arbre Blanc © Sou Fujimoto Architects, Nicolas Laisné Associés, Manal Rachdi Oxo Architectes
Башня Arbre Blanc © Sou Fujimoto Architects, Nicolas Laisné Associés, Manal Rachdi Oxo Architectes
Башня Arbre Blanc © Sou Fujimoto Architects, Nicolas Laisné Associés, Manal Rachdi Oxo Architectes
Башня Arbre Blanc © Sou Fujimoto Architects, Nicolas Laisné Associés, Manal Rachdi Oxo Architectes
Башня Arbre Blanc © Sou Fujimoto Architects, Nicolas Laisné Associés, Manal Rachdi Oxo Architectes
Башня Arbre Blanc © Sou Fujimoto Architects, Nicolas Laisné Associés, Manal Rachdi Oxo Architectes
Башня Arbre Blanc © Sou Fujimoto Architects, Nicolas Laisné Associés, Manal Rachdi Oxo Architectes
Башня Arbre Blanc © RSI-studio, Sou Fujimoto Architects, Nicolas Laisné Associés, Manal Rachdi Oxo Architectes
Башня Arbre Blanc © RSI-studio, Sou Fujimoto Architects, Nicolas Laisné Associés, Manal Rachdi Oxo Architectes
Башня Arbre Blanc © RSI-studio, Sou Fujimoto Architects, Nicolas Laisné Associés, Manal Rachdi Oxo Architectes
Башня Arbre Blanc © RSI-studio, Sou Fujimoto Architects, Nicolas Laisné Associés, Manal Rachdi Oxo Architectes
Башня Arbre Blanc © Sou Fujimoto Architects, Nicolas Laisné Associés, Manal Rachdi Oxo Architectes
Башня Arbre Blanc © Sou Fujimoto Architects, Nicolas Laisné Associés, Manal Rachdi Oxo Architectes
Башня Arbre Blanc © Sou Fujimoto Architects, Nicolas Laisné Associés, Manal Rachdi Oxo Architectes
Башня Arbre Blanc © Sou Fujimoto Architects, Nicolas Laisné Associés, Manal Rachdi Oxo Architectes
Башня Arbre Blanc © Sou Fujimoto Architects, Nicolas Laisné Associés, Manal Rachdi Oxo Architectes
Башня Arbre Blanc © Sou Fujimoto Architects, Nicolas Laisné Associés, Manal Rachdi Oxo Architectes
Башня Arbre Blanc © Sou Fujimoto Architects, Nicolas Laisné Associés, Manal Rachdi Oxo Architectes
Башня Arbre Blanc © Sou Fujimoto Architects, Nicolas Laisné Associés, Manal Rachdi Oxo Architectes
Башня Arbre Blanc © Sou Fujimoto Architects, Nicolas Laisné Associés, Manal Rachdi Oxo Architectes
Башня Arbre Blanc © Sou Fujimoto Architects, Nicolas Laisné Associés, Manal Rachdi Oxo Architectes
Башня Arbre Blanc © Sou Fujimoto Architects, Nicolas Laisné Associés, Manal Rachdi Oxo Architectes
Башня Arbre Blanc © Sou Fujimoto Architects, Nicolas Laisné Associés, Manal Rachdi Oxo Architectes