|
На Олимпийском проспекте в Москве «Архитектурное бюро Асадова» совместно с М-19 «Моспроекта-2» построило бизнес-центр «Олимпик-холл».
Бизнес-центр «Олимпик-холл». Реализация, 2013 © Архитектурное бюро Асадова
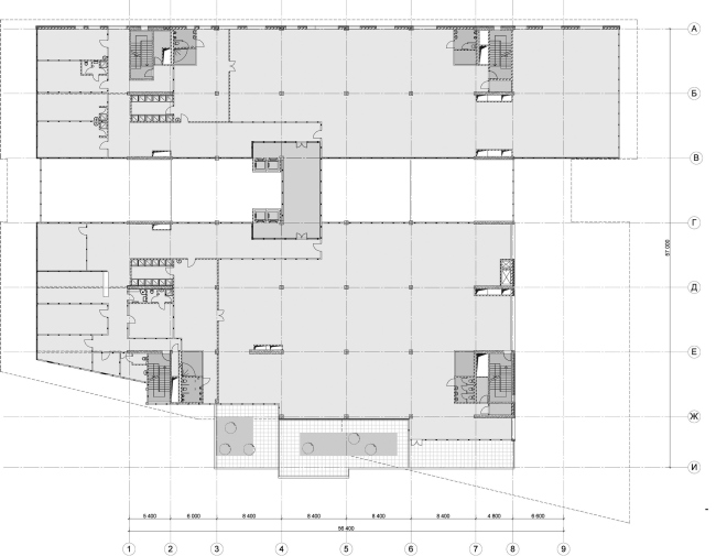
«Олимпик-холл» возведен на пересечении Олимпийского проспекта и Самарской улицы, на крошечном пятачке земли, который раньше был просто пустырем и стихийной парковкой перед знаменитым бассейном. Новый объем примостился вплотную к широкой лестнице спортивного комплекса, и в градостроительном отношении у подобного слияния был важный смысл – здание бизнес-центра должно было перекомпоновать «заднюю» площадь перед олимпийскими объектами, придав ей камерность и завершенность.
С контекстом, который приходилось тщательно учитывать, авторам этого проекта вообще очень повезло. Вокруг что ни объект, то икона своего времени. Это в равной степени относится и к обеим олимпийским постройкам – символам 80-х, и к подкове гостиницы «Ренессанс», образцу роскоши 90-х, и к многоуровневому гаражу «Лукойл» – знаковому произведению 2000-х. Примечательно и то, что каждое из этих зданий обладает хотя бы одним подчеркнуто криволинейным фасадом. В Москве, как и в любом другом мегаполисе, почти безраздельно властвует жесткая ортогональная сетка, но именно на перекрестке Олимпийского и Самарской она почему-то всецело уступает место мягким и пластичным формам. Возможно, причиной тому стали плавные очертания здешнего холмистого ландшафта, а может, гипнотическим эффектом обладает эллипс главной спортивной арены Олимпиады-80 – с лаконичной самодостаточностью этого объема действительно трудно спорить… Так или иначе, но все более молодые постройки вокруг гнутся и искажаются, и Асадовы, оказавшись практически в эпицентре загадочного «магнитного поля», не стали исключением. Наоборот, они охотно приняли на себя вызов контекста. Бизнес-центр «Олимпик-холл». Реализация, 2013 © Архитектурное бюро Асадова
Впрочем, даже столь нетривиальное окружение было принято во внимание лишь во вторую очередь. Первое, над чем пришлось ломать голову архитекторам, была функция проектируемого объема. Дело в том, что бизнес-центром этот объект стал далеко не сразу: задумывался он как спортивно-развлекательное сооружение, что, в общем-то, лучше соответствовало ближайшему окружению. Первоначально здесь предполагалось разместить боулинг – один из крупнейших в Москве. Втиснуть 50 дорожек на столь скромный по площади участок архитекторы смогли, лишь сделав 15-метровые консоли в обе стороны от границы застройки. А для того, чтобы здание в профиль не выглядело молотом Тора, Асадовы сначала придали выносам более скульптурную остроносую форму, а затем расщепили каждую консоль на две части. После этого кровлю немного согнули, а ее концы завели на консоли, скруглив места сгибов. Подобная форма сделала комплекс похожим на перевернутый катамаран: как вспоминают сами архитекторы, заказчик от подобного предложения был просто в восторге: яркий образ, запоминающийся силуэт, очевидное пластическое и тематическое родство с архитектурой ближайших соседей – олимпийских объектов. Бизнес-центр «Олимпик-холл». Реализация, 2013 © Архитектурное бюро Асадова
Бизнес-центр «Олимпик-холл». Реализация, 2013 © Архитектурное бюро Асадова
Расщепив каждый вынос полностью прозрачной вставкой, авторы не только придали зданию эффектную внешность и «подогнали» новый объем под масштаб окружающих строений, но и обеспечили внутренним помещениям избыток дневного света. Именно поэтому, когда спустя несколько лет боулинг съежился до размеров обычного клуба и переехал в цокольный этаж, заказчик решил полностью сохранить изначально предложенную структуру. Трудно спорить с тем, что для организации офисов она подошла идеально: выход площадей благодаря консолям максимальный, а многосветный атриум придает этим квадратным метрам комфорт и яркую индивидуальность. Бизнес-центр «Олимпик-холл». Реализация, 2013 © Архитектурное бюро Асадова
Строго говоря, катамараном здание выглядит лишь издалека: на главном фасаде, обращенном к Олимпийскому проспекту, перемычка лишь условно утоплена между двумя корпусами «судна», тогда как с обратной стороны «хвосты» и вовсе оказываются разными. То крыло, что выходит на Самарскую улицу, подсобралось и втянулось, а то, что нависает над лестницей, наоборот, стремится к развитию по горизонтали. И это стремление поддержано вторым и третьим этажами комплекса: фактически здание врезано в лестницу, распластавшись по ступеням несколькими стеклянными блоками, которые на полотне фасада и сами оформлены как ступени. Этот фасад, пожалуй, вообще самый сложный: больше соответствуя масштабу площади, чем соседних зданий, он состоит из нескольких камерных объемов, между которыми архитекторы делают надсечки, выемки, дополнительные мини-консоли. Соответствующим образом подобрана и облицовка: здесь преобладает стекло, зеленоватым металлом обернут лишь контур консолей, тогда как нижние этажи обшиты бежевым травертином, визуально делающим новый объем неотъемлемой частью светлой лестницы. Бизнес-центр «Олимпик-холл». Реализация, 2013 © Архитектурное бюро Асадова
Бизнес-центр «Олимпик-холл». Реализация, 2013 © Архитектурное бюро Асадова
Совсем иное дело – фасад, обращенный к Самарской. Здесь витражи консолей расчерчены горизонталями межэтажных перекрытий, а центральная часть решена как довольно массивное каменное полотно, по которому словно сбегают ручейки тонких вертикальных окон. Осязаемость облицовке придает выбранный архитекторами темно-серый крупноразмерный керамогранит с металлическим отливом. Асадовы признаются, что изначально хотели облицевать кровлю и торцы «Олимпик-холла» патинированной медью, но уступили заказчику и согласились на зеленый металл, сочтя, что для данного места, богатого на пластичные, но абсолютно монохромные фасады, важен, в первую очередь, цвет. Ощущение легкой дисгармонии привносят мощные диагонали металлических балок несущего каркаса консолей, которые зачем-то выкрашены в белый цвет и потому прекрасно видны сквозь витражи, но такова правда отечественного строительства – конструкции, желающие быть честными, не всегда умеют говорить вполголоса. Уместно в этом контексте будет упомянуть и горизонтальные ламели на торцевом фасаде, выходящем на Олимпийский проспект: на рендерах они есть, и по этим рендерам очевидно, что «главная» консоль приобретает с ними законченный вид (например, исчезают вертикальные ребра довольно грубой подконструкции), но, увы, на ламели у заказчика денег не хватило. Впрочем, пока он обещает добавить их позже.  Бизнес-центр «Олимпик-холл». Реализация, 2013 © Архитектурное бюро Асадова
Пространство центрального атриума, благодаря использованию деревянных панелей двух родственных оттенков, получилось одновременно и парадно-нарядным, и очень уютным. Эту атмосферу архитекторы постарались подчеркнуть также с помощью черного глянца напольных плит и живых деревьев в кадках. Преобразилось и пространство вокруг здания: на месте, где раньше был лишь стихийный паркинг, возникла камерная пешеходная площадь, благодаря консоли надежно защищенная от осадков и слишком яркого солнца, а лестница, которая прежде была лишь транзитной, превратилась в самодостаточную общественную зону. Бизнес-центр «Олимпик-холл». Реализация, 2013 © Архитектурное бюро Асадова
Бизнес-центр «Олимпик-холл». Реализация, 2013 © Архитектурное бюро Асадова
Бизнес-центр «Олимпик-холл». Реализация, 2013 © Архитектурное бюро Асадова
Бизнес-центр «Олимпик-холл». Реализация, 2013 © Архитектурное бюро Асадова
Бизнес-центр «Олимпик-холл». Реализация, 2013 © Архитектурное бюро Асадова
Бизнес-центр «Олимпик-холл». Реализация, 2013 © Архитектурное бюро Асадова
Бизнес-центр «Олимпик-холл». Реализация, 2013 © Архитектурное бюро Асадова
Бизнес-центр «Олимпик-холл». Реализация, 2013 © Архитектурное бюро Асадова
Бизнес-центр «Олимпик-холл». Реализация, 2013 © Архитектурное бюро Асадова
Бизнес-центр «Олимпик-холл». Реализация, 2013 © Архитектурное бюро Асадова
Бизнес-центр «Олимпик-холл». Реализация, 2013 © Архитектурное бюро Асадова
Бизнес-центр «Олимпик-холл». Реализация, 2013 © Архитектурное бюро Асадова
|