Размещено на портале Архи.ру (www.archi.ru)

05.03.2014

Облако-решетка

Анна Мартовицкая
Объект:
Магазин SunnyHills
Адрес:
Япония, None, Токио.

Кенго Кума возвел в Токио кондитерский магазин SunnyHills.

Магазин SunnyHills © Daici Ano
Магазин SunnyHills © Daici Ano
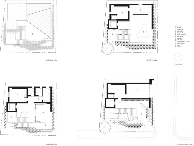
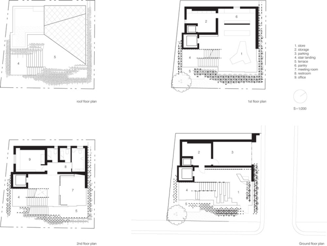
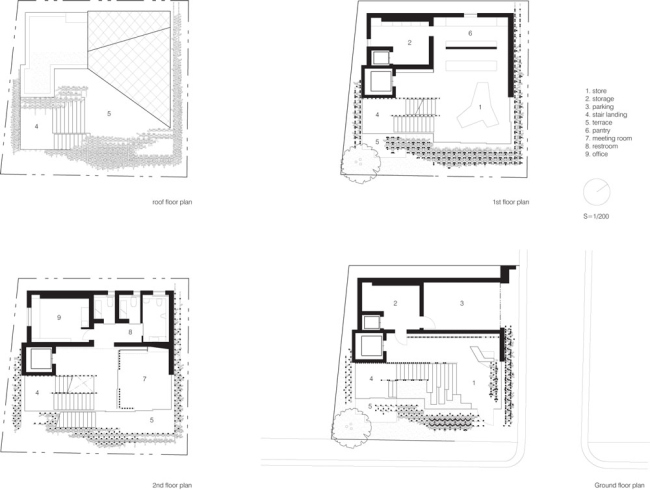
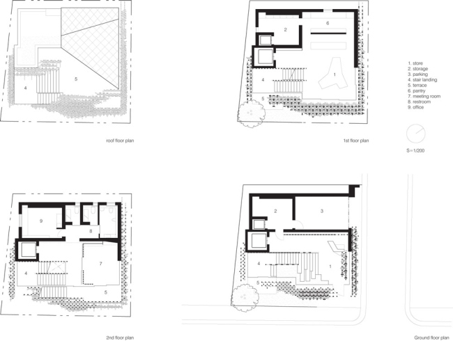
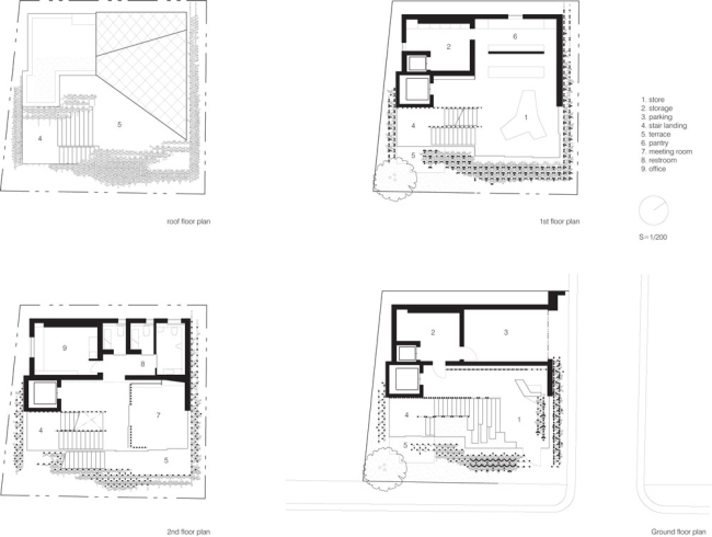
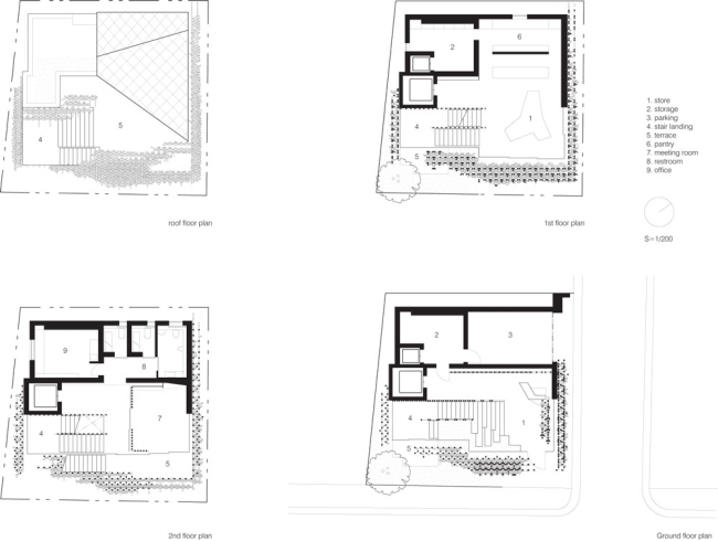
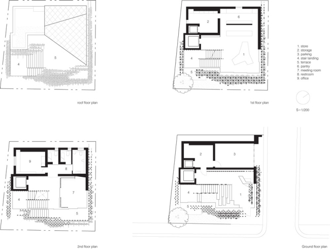
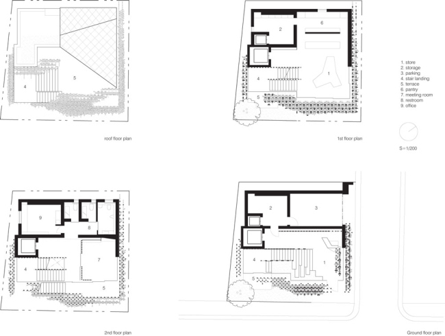
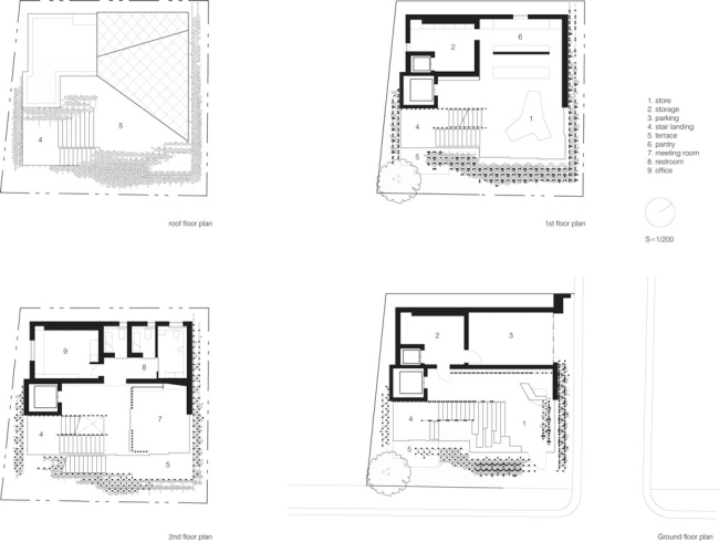
Тайваньская компания SunnyHills хорошо известна на рынке сладостей Восточной Азии – в частности, производимые ею ананасовые пироги считаются одними из лучших в своем «жанре». В 2014 бренд SunnyHills официально добрался до Японии: в Токио под этой вывеской открылся первый кондитерский магазин. Его небольшое здание (общая площадь составляет 293 м2) спроектировал Кенго Кума.
Магазин SunnyHills © Daici Ano
Магазин SunnyHills © Daici Ano

Фасады этого 3-этажного компактного в плане сооружения представляют собой ромбовидную решетку, собранную из тонких деревянных реек. За счет использования реек разной длины и их пересечения под углом либо 30 либо 60 градусов решетка получается трехмерной и оттого напоминающей облако. Сам архитектор сравнивает получившийся объем с плетеной бамбуковой корзиной, но при желании в нем можно увидеть и сходство с неочищенным ананасом, что даже лучше соответствует тематике магазина. Также, по замыслу Кенго Кума, подобная облицовка будет напоминать о лесных зарослях, служа антиподом «каменных джунглей» Токио.
Магазин SunnyHills © Daici Ano
Магазин SunnyHills © Daici Ano

Деревянные планки, суммарная длина которых превышает 5 000 метров, собраны в традиционной японской технике дзиигоку-гуми без использования клея и гвоздей. Внутренние перегородки в магазине – это тоже ромбовидные решетки, но уже двухмерные. Вход обозначен с помощью импровизированной арки: со стороны перекрестка, к которому обращена постройка, деревянный «полог» решетки приподнят. Еще один похожий проем сделан на верхнем уровне, где расположена открытая озелененная терраса. Зелень использована и в интерьере: в частности, она фланкирует широкие ступени деревянной лестницы, соединяющей между собой этажи здания.
Магазин SunnyHills © Daici Ano
Магазин SunnyHills © Daici Ano
Магазин SunnyHills © Daici Ano
Магазин SunnyHills © Daici Ano
Магазин SunnyHills © Daici Ano
Магазин SunnyHills © Daici Ano
Магазин SunnyHills © Daici Ano
Магазин SunnyHills © Daici Ano
Магазин SunnyHills © Daici Ano
Магазин SunnyHills © Daici Ano
Магазин SunnyHills © Daici Ano
Магазин SunnyHills © Daici Ano
Магазин SunnyHills © Daici Ano
Магазин SunnyHills © Daici Ano
Магазин SunnyHills © Daici Ano
Магазин SunnyHills © Daici Ano
Магазин SunnyHills © Daici Ano
Магазин SunnyHills © Daici Ano
Магазин SunnyHills © Daici Ano
Магазин SunnyHills © Daici Ano
Магазин SunnyHills © Daici Ano
Магазин SunnyHills © Daici Ano
Магазин SunnyHills © Daici Ano
Магазин SunnyHills © Daici Ano
Магазин SunnyHills © Daici Ano
Магазин SunnyHills © Daici Ano
Магазин SunnyHills © Daici Ano
Магазин SunnyHills © Daici Ano
Магазин SunnyHills © Daici Ano
Магазин SunnyHills © Daici Ano
Магазин SunnyHills © Kengo Kuma & Associates
Магазин SunnyHills © Kengo Kuma & Associates
Магазин SunnyHills © Kengo Kuma & Associates
Магазин SunnyHills © Kengo Kuma & Associates