Размещено на портале Архи.ру (www.archi.ru)

04.03.2014

Тропические мотивы

Нина Фролова
Объект:
Гостиница Renaissance Barcelona Fira Hotel
Адрес:
Испания, None, Барселона.

В Барселоне открылся отель сети Renaissance, спроектированный Жаном Нувелем и бюро Ribas & Ribas.

Гостиница Renaissance Barcelona Fira Hotel © Roland Halbe - rolandhalbe.eu
Гостиница Renaissance Barcelona Fira Hotel © Roland Halbe - rolandhalbe.eu

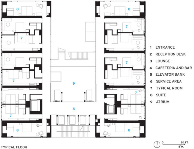
Гостиница Renaissance Barcelona Fira Hotel на 357 номеров расположена рядом с выставочным комплексом Fira de Barcelona. Это 27-этажная башня состоит из двух частей, соединенных зеленым атриумом во всю высоту здания. Кроме того, озеленены территория вокруг, терраса вокруг «сьютов» на 26 этаже и крыша с бассейном и рестораном. Значительную часть этой зелени составляют пальмы, и даже большинство окон выполнено в форме крон этого дерева. Такой же узор нанесен и на стеклянные части фасада.
Гостиница Renaissance Barcelona Fira Hotel © Roland Halbe - rolandhalbe.eu
Гостиница Renaissance Barcelona Fira Hotel © Roland Halbe - rolandhalbe.eu

Фасады из белого бетона призваны отражать солнечный свет и защищать интерьер от перегрева, и лишь северная сторона здания выполнена в темных тонах, так как ее редко посещает солнце, а зимой его тепло необходимо.
Гостиница Renaissance Barcelona Fira Hotel © Roland Halbe - rolandhalbe.eu
Гостиница Renaissance Barcelona Fira Hotel © Roland Halbe - rolandhalbe.eu

Интерьеры номеров выдержаны в белом или сером цвете. Вокруг здания и на открытых террасах высажена калифорнийская пальма рода вашингтония, в атриуме – устойчивая к недостатку света австралийская пальма ховея Форстера. В панорамном ресторане на 14-м этаже пальм из-за небольшой высоты потолков нет, и в озеленении преобладает юкка слоновая.
Гостиница Renaissance Barcelona Fira Hotel © Roland Halbe - rolandhalbe.eu
Гостиница Renaissance Barcelona Fira Hotel © Roland Halbe - rolandhalbe.eu
Гостиница Renaissance Barcelona Fira Hotel © Roland Halbe - rolandhalbe.eu
Гостиница Renaissance Barcelona Fira Hotel © Roland Halbe - rolandhalbe.eu
Гостиница Renaissance Barcelona Fira Hotel © Roland Halbe - rolandhalbe.eu
Гостиница Renaissance Barcelona Fira Hotel © Roland Halbe - rolandhalbe.eu
Гостиница Renaissance Barcelona Fira Hotel © Roland Halbe - rolandhalbe.eu
Гостиница Renaissance Barcelona Fira Hotel © Roland Halbe - rolandhalbe.eu
Гостиница Renaissance Barcelona Fira Hotel © Roland Halbe - rolandhalbe.eu
Гостиница Renaissance Barcelona Fira Hotel © Roland Halbe - rolandhalbe.eu
Гостиница Renaissance Barcelona Fira Hotel © Roland Halbe - rolandhalbe.eu
Гостиница Renaissance Barcelona Fira Hotel © Roland Halbe - rolandhalbe.eu
Гостиница Renaissance Barcelona Fira Hotel © AFP
Гостиница Renaissance Barcelona Fira Hotel © AFP
Гостиница Renaissance Barcelona Fira Hotel. Фото с сайта criticalismo.blogspot.ru
Гостиница Renaissance Barcelona Fira Hotel. Фото с сайта criticalismo.blogspot.ru
Гостиница Renaissance Barcelona Fira Hotel © Roland Halbe - rolandhalbe.eu
Гостиница Renaissance Barcelona Fira Hotel © Roland Halbe - rolandhalbe.eu
Гостиница Renaissance Barcelona Fira Hotel © Roland Halbe - rolandhalbe.eu
Гостиница Renaissance Barcelona Fira Hotel © Roland Halbe - rolandhalbe.eu
Гостиница Renaissance Barcelona Fira Hotel © Roland Halbe - rolandhalbe.eu
Гостиница Renaissance Barcelona Fira Hotel © Roland Halbe - rolandhalbe.eu
Гостиница Renaissance Barcelona Fira Hotel © Roland Halbe - rolandhalbe.eu
Гостиница Renaissance Barcelona Fira Hotel © Roland Halbe - rolandhalbe.eu
Гостиница Renaissance Barcelona Fira Hotel © Roland Halbe - rolandhalbe.eu
Гостиница Renaissance Barcelona Fira Hotel © Roland Halbe - rolandhalbe.eu
Гостиница Renaissance Barcelona Fira Hotel © Roland Halbe - rolandhalbe.eu
Гостиница Renaissance Barcelona Fira Hotel © Roland Halbe - rolandhalbe.eu
Гостиница Renaissance Barcelona Fira Hotel © Roland Halbe - rolandhalbe.eu
Гостиница Renaissance Barcelona Fira Hotel © Roland Halbe - rolandhalbe.eu
Гостиница Renaissance Barcelona Fira Hotel © Marriott International
Гостиница Renaissance Barcelona Fira Hotel © Marriott International
Гостиница Renaissance Barcelona Fira Hotel © Roland Halbe - rolandhalbe.eu
Гостиница Renaissance Barcelona Fira Hotel © Roland Halbe - rolandhalbe.eu
Гостиница Renaissance Barcelona Fira Hotel © Roland Halbe - rolandhalbe.eu
Гостиница Renaissance Barcelona Fira Hotel © Roland Halbe - rolandhalbe.eu
Гостиница Renaissance Barcelona Fira Hotel © Roland Halbe - rolandhalbe.eu
Гостиница Renaissance Barcelona Fira Hotel © Roland Halbe - rolandhalbe.eu
Гостиница Renaissance Barcelona Fira Hotel © Roland Halbe - rolandhalbe.eu
Гостиница Renaissance Barcelona Fira Hotel © Roland Halbe - rolandhalbe.eu
Гостиница Renaissance Barcelona Fira Hotel © Roland Halbe - rolandhalbe.eu
Гостиница Renaissance Barcelona Fira Hotel © Roland Halbe - rolandhalbe.eu
Гостиница Renaissance Barcelona Fira Hotel © Roland Halbe - rolandhalbe.eu
Гостиница Renaissance Barcelona Fira Hotel © Roland Halbe - rolandhalbe.eu
Гостиница Renaissance Barcelona Fira Hotel © Marriott International
Гостиница Renaissance Barcelona Fira Hotel © Marriott International
Гостиница Renaissance Barcelona Fira Hotel © Marriott International
Гостиница Renaissance Barcelona Fira Hotel © Marriott International
Гостиница Renaissance Barcelona Fira Hotel © Marriott International
Гостиница Renaissance Barcelona Fira Hotel © Marriott International
Гостиница Renaissance Barcelona Fira Hotel © Roland Halbe - rolandhalbe.eu
Гостиница Renaissance Barcelona Fira Hotel © Roland Halbe - rolandhalbe.eu
Гостиница Renaissance Barcelona Fira Hotel © Roland Halbe - rolandhalbe.eu
Гостиница Renaissance Barcelona Fira Hotel © Roland Halbe - rolandhalbe.eu
Гостиница Renaissance Barcelona Fira Hotel © Roland Halbe - rolandhalbe.eu
Гостиница Renaissance Barcelona Fira Hotel © Roland Halbe - rolandhalbe.eu
Гостиница Renaissance Barcelona Fira Hotel © Roland Halbe - rolandhalbe.eu
Гостиница Renaissance Barcelona Fira Hotel © Roland Halbe - rolandhalbe.eu
Гостиница Renaissance Barcelona Fira Hotel © Roland Halbe - rolandhalbe.eu
Гостиница Renaissance Barcelona Fira Hotel © Roland Halbe - rolandhalbe.eu
Гостиница Renaissance Barcelona Fira Hotel © Roland Halbe - rolandhalbe.eu
Гостиница Renaissance Barcelona Fira Hotel © Roland Halbe - rolandhalbe.eu
Гостиница Renaissance Barcelona Fira Hotel © Roland Halbe - rolandhalbe.eu
Гостиница Renaissance Barcelona Fira Hotel © Roland Halbe - rolandhalbe.eu
Гостиница Renaissance Barcelona Fira Hotel © Marriott International
Гостиница Renaissance Barcelona Fira Hotel © Marriott International
Гостиница Renaissance Barcelona Fira Hotel © Roland Halbe - rolandhalbe.eu
Гостиница Renaissance Barcelona Fira Hotel © Roland Halbe - rolandhalbe.eu
Гостиница Renaissance Barcelona Fira Hotel © Ateliers Jean Nouvel, Ribas & Ribas
Гостиница Renaissance Barcelona Fira Hotel © Ateliers Jean Nouvel, Ribas & Ribas
Гостиница Renaissance Barcelona Fira Hotel © Ateliers Jean Nouvel, Ribas & Ribas
Гостиница Renaissance Barcelona Fira Hotel © Ateliers Jean Nouvel, Ribas & Ribas
Гостиница Renaissance Barcelona Fira Hotel © Ateliers Jean Nouvel, Ribas & Ribas
Гостиница Renaissance Barcelona Fira Hotel © Ateliers Jean Nouvel, Ribas & Ribas
Гостиница Renaissance Barcelona Fira Hotel © Ateliers Jean Nouvel, Ribas & Ribas
Гостиница Renaissance Barcelona Fira Hotel © Ateliers Jean Nouvel, Ribas & Ribas
Гостиница Renaissance Barcelona Fira Hotel © Ateliers Jean Nouvel, Ribas & Ribas
Гостиница Renaissance Barcelona Fira Hotel © Ateliers Jean Nouvel, Ribas & Ribas