Размещено на портале Архи.ру (www.archi.ru)

07.02.2014

Во глубину веков

Анна Мартовицкая
Объект:
Музей Мосгор
Адрес:
Дания, None, Орхус.
Мастерская:
Henning Larsen Architects

В Орхусе по проекту Henning Larsen Architects закончено строительство нового здания музея Мосгор.

Музей Мосгор © Jens Lindhe
Музей Мосгор © Jens Lindhe
Музей археологии и этнографии Мосгор – один из главных «хранителей» древней истории Восточной Ютландии. Гордостью его коллекции являются рунические камни и «человек из Граубалле», тело которого от тлена на протяжении более 2000 лет спасало торфяное болото. Из-за реконструкции Мосгор был закрыт последние полтора года, и, когда строительство нового здания вошло в свою завершающую стадию, сотрудники музея начали работать над новой экспозицией и готовить артефакты к переезду. 
Музей Мосгор © Jens Lindhe
Музей Мосгор © Jens Lindhe

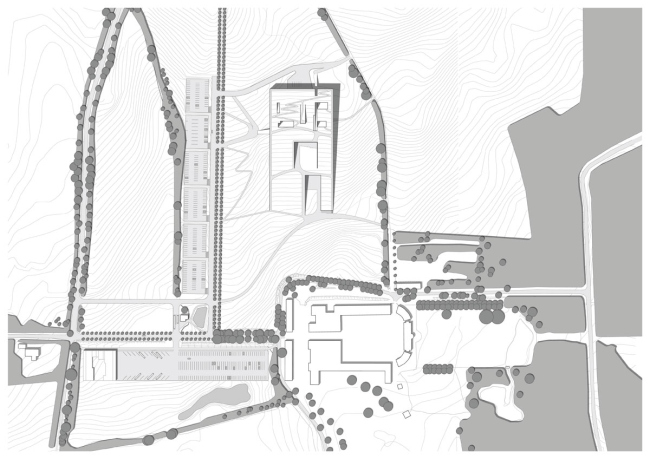
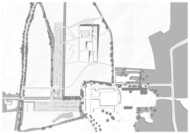
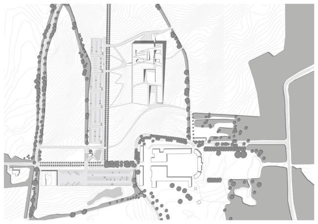
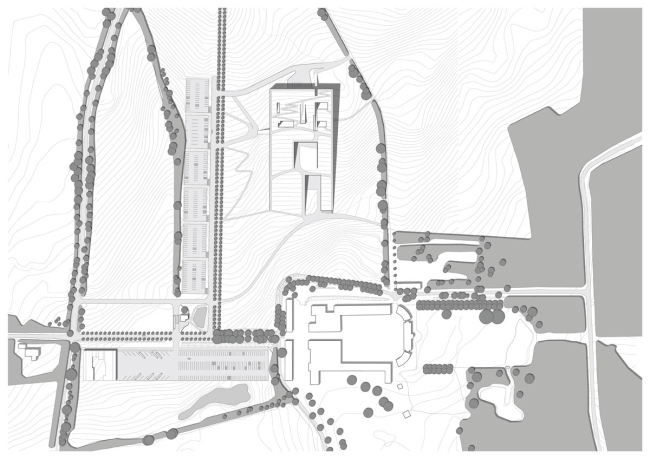
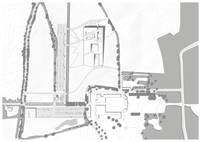
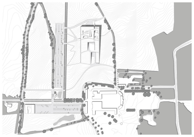
Новое здание для Мосгора строится в непосредственной близости от исторического (с 1970 музей располагается в одноименном имении 18 в.). И именно это соседство оказалось определяющим для архитекторов: они должны были предложить объем, который бы не искажал сложившиеся панорамы, а тактично их дополнял. Ключевую роль в формировании архитектурного образа сыграла и сама тематика музея – где, как не под землей, уместнее всего расположить собрание археологических находок?
Музей Мосгор © Jens Lindhe
Музей Мосгор © Jens Lindhe

Впрочем, на самом деле архитекторы не вкапывают здание в землю, а искусно обыгрывают существующий на участке довольно ощутимый перепад рельефа. Природному склону они вторят склоном искусственным: музейный комплекс накрыт пологой озелененной кровлей, благодаря которой кажется, что здание является неотъемлемой частью ландшафта. Летом ее пространство планируется использовать как место для пикников и праздников под открытым небом, зимой же она превратится в крупнейшую в округе снежную горку.
Музей Мосгор © Jens Lindhe
Музей Мосгор © Jens Lindhe

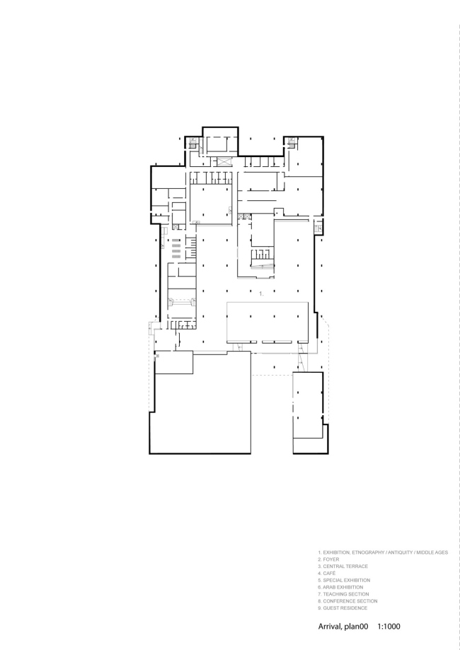
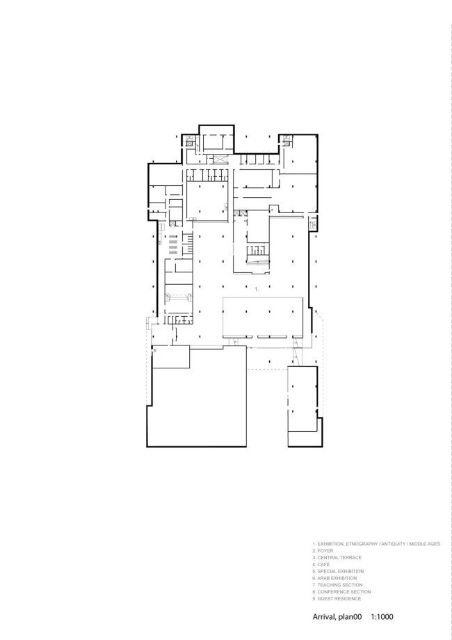
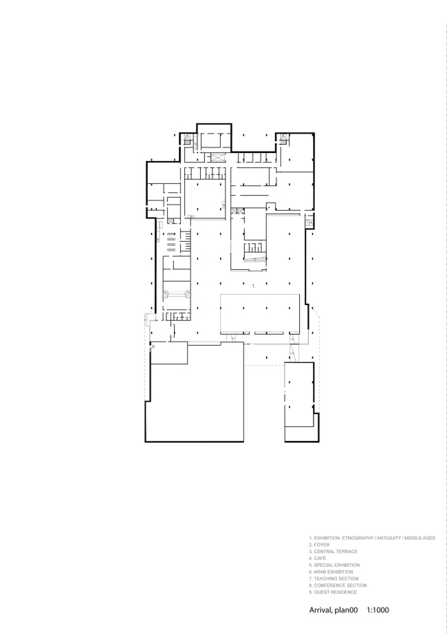
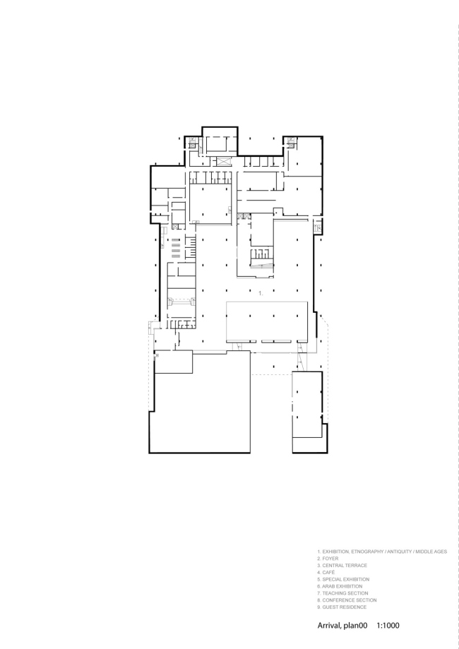
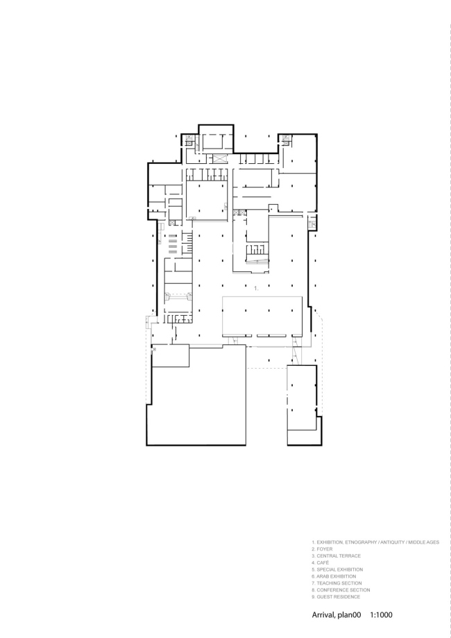
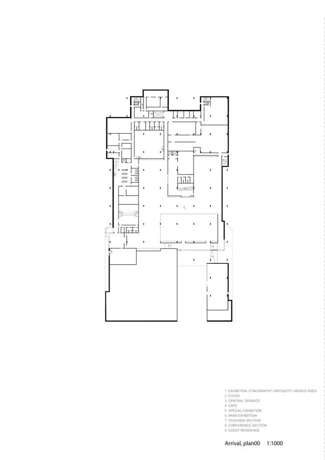
Экспозиционное пространство музея организовано как система террас, внутренних двориков и пещер, расположенных на разных уровнях. По замыслу архитекторов, это как нельзя лучше поможет посетителям погрузиться в атмосферу археологических раскопок и, перемещаясь из одного зала в другой, совершить собственное путешествие в глубину веков. 
Музей Мосгор © Jens Lindhe
Музей Мосгор © Jens Lindhe

Официальное открытие музея назначено на октябрь 2014 года. Однако уже сейчас, благодаря своей новаторской архитектуре, Мосгор стал безусловной достопримечательностью Орхуса, одинаково хорошо заметной как из самого города, так и с моря.
Музей Мосгор © Jens Lindhe
Музей Мосгор © Jens Lindhe
Музей Мосгор © Jens Lindhe
Музей Мосгор © Jens Lindhe
Музей Мосгор © Jens Lindhe
Музей Мосгор © Jens Lindhe
Музей Мосгор © Jens Lindhe
Музей Мосгор © Jens Lindhe
Музей Мосгор © Jens Lindhe
Музей Мосгор © Jens Lindhe
Музей Мосгор © Jens Lindhe
Музей Мосгор © Jens Lindhe
Музей Мосгор © Jens Lindhe
Музей Мосгор © Jens Lindhe
Музей Мосгор © Jens Lindhe
Музей Мосгор © Jens Lindhe
Музей Мосгор © Jens Lindhe
Музей Мосгор © Jens Lindhe
Музей Мосгор © Henning Larsen Architects
Музей Мосгор © Henning Larsen Architects
Музей Мосгор © Henning Larsen Architects
Музей Мосгор © Henning Larsen Architects
Музей Мосгор © Henning Larsen Architects
Музей Мосгор © Henning Larsen Architects
Музей Мосгор © Henning Larsen Architects
Музей Мосгор © Henning Larsen Architects
Музей Мосгор © Henning Larsen Architects
Музей Мосгор © Henning Larsen Architects
Музей Мосгор © Henning Larsen Architects
Музей Мосгор © Henning Larsen Architects
Музей Мосгор © Henning Larsen Architects
Музей Мосгор © Henning Larsen Architects
Музей Мосгор © Henning Larsen Architects
Музей Мосгор © Henning Larsen Architects
Музей Мосгор © Henning Larsen Architects
Музей Мосгор © Henning Larsen Architects
Музей Мосгор © Henning Larsen Architects
Музей Мосгор © Henning Larsen Architects
Музей Мосгор © Henning Larsen Architects
Музей Мосгор © Henning Larsen Architects
Музей Мосгор © Henning Larsen Architects
Музей Мосгор © Henning Larsen Architects
Музей Мосгор © Henning Larsen Architects
Музей Мосгор © Henning Larsen Architects
Музей Мосгор © Henning Larsen Architects
Музей Мосгор © Henning Larsen Architects