Размещено на портале Архи.ру (www.archi.ru)

06.02.2014

Археологический проект

Нина Фролова
Объект:
Музей Кастильо-де-ла-Лус – новое крыло
Адрес:
Испания, None, Лас-Пальмас.
Мастерская:
Nieto Sobejano Arquitectos

Бюро Nieto Sobejano Arquitectos возвело пристройку к музею Кастильо-де-ла-Лус на острове Гран-Канария.

Музей Кастильо-де-ла-Лус – новое крыло © Roland Halbe - www.rolandhalbe.eu
Музей Кастильо-де-ла-Лус – новое крыло © Roland Halbe - www.rolandhalbe.eu

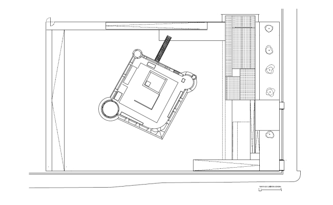
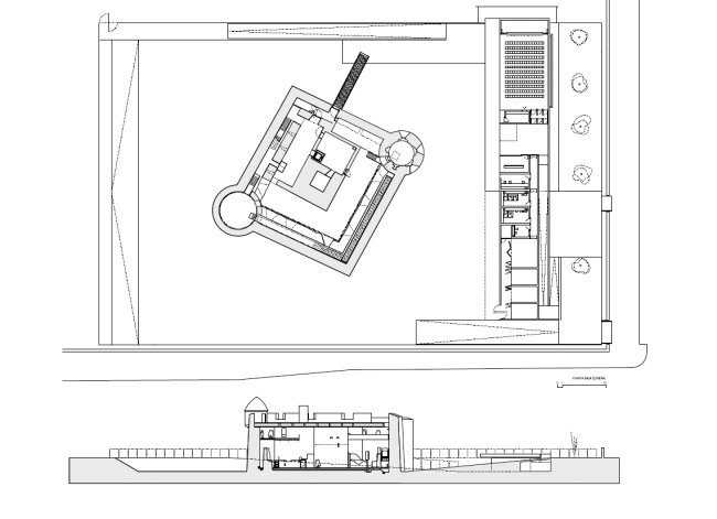
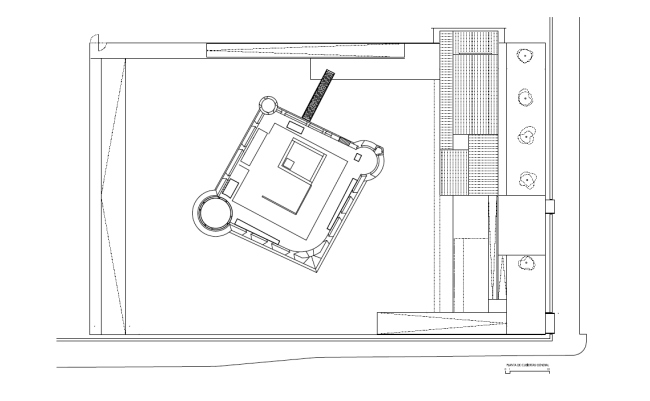
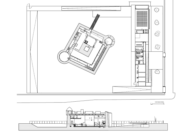
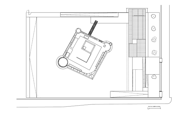
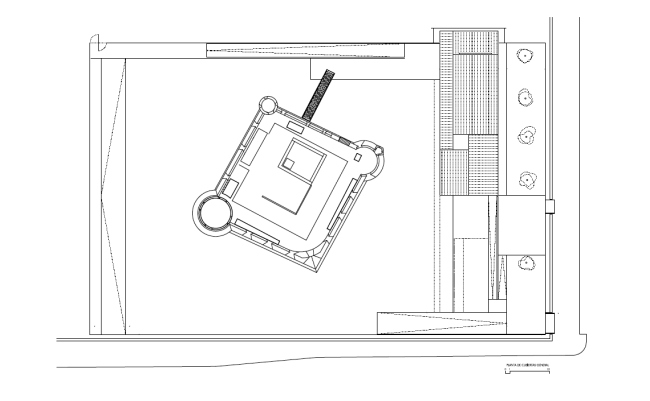
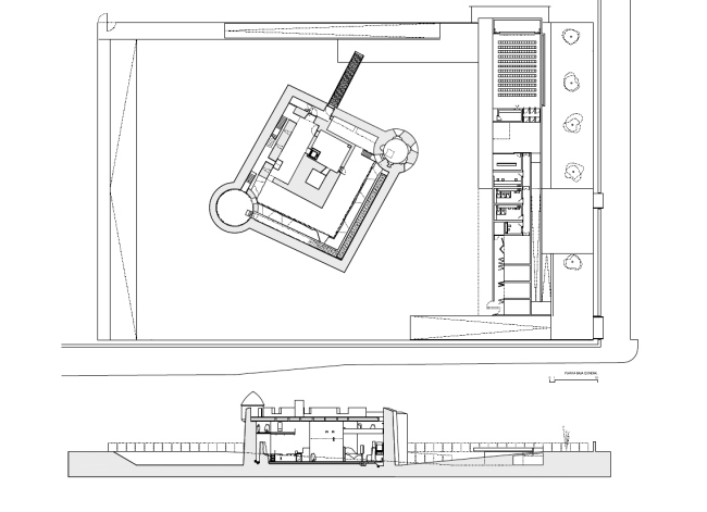
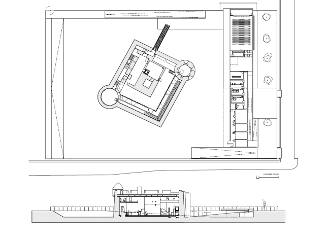
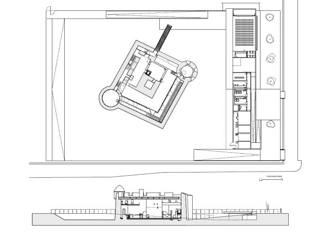
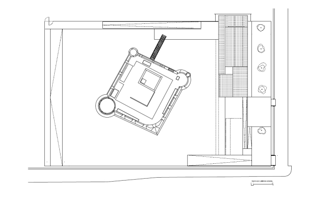
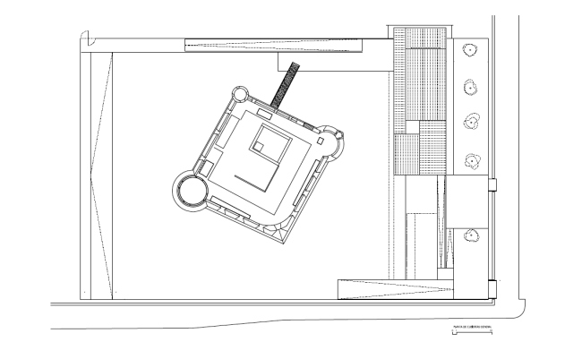
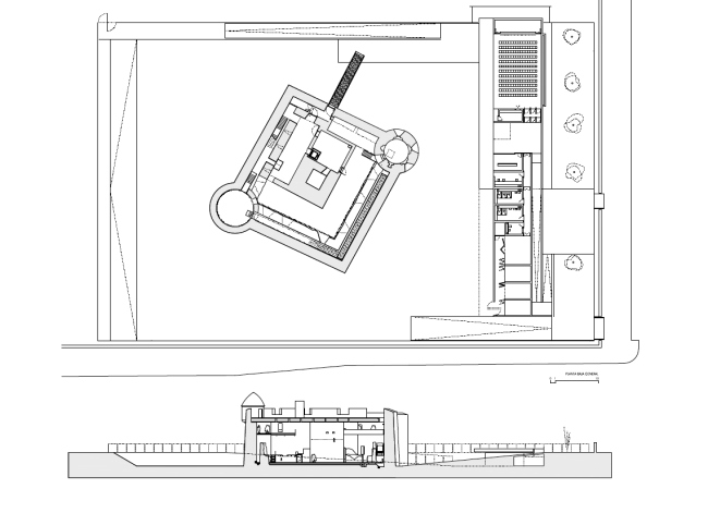
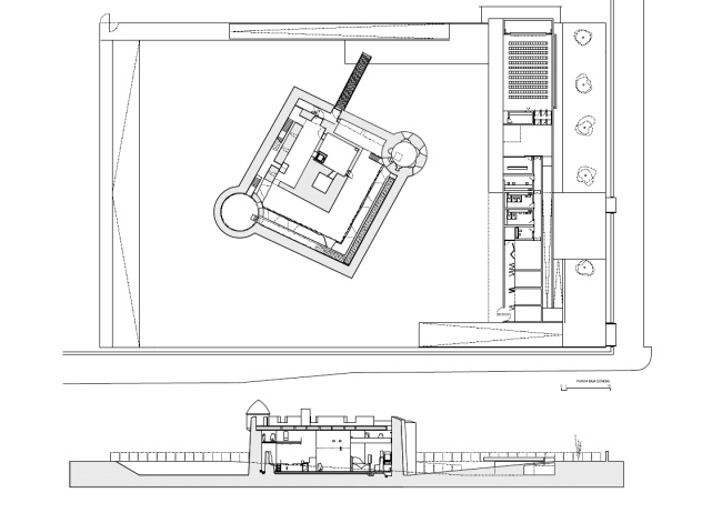
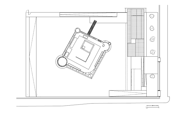
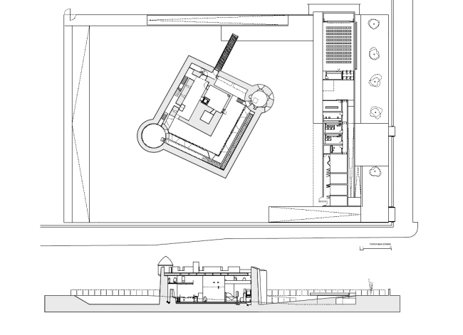
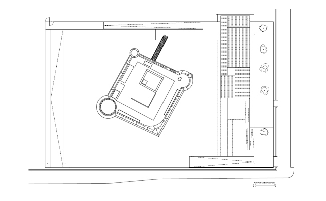
Речь идет о крепости 15 века в городе Лас-Пальмас, которую те же авторы – Фуэнсанта Ньето и Энрике Собехано – превратили в Морской музей в первой половине 2000-х. Теперь они дополнили обновленное историческое здание пристройкой с вестибюлем, магазином, туалетами, запасником и многофункциональным залом.
Музей Кастильо-де-ла-Лус – новое крыло © Roland Halbe - www.rolandhalbe.eu
Музей Кастильо-де-ла-Лус – новое крыло © Roland Halbe - www.rolandhalbe.eu

Учитывая значение памятника, в основе своей – одного из первых сооружений, построенных испанцами на Канарах, архитекторы не стали дальше обновлять его и его окружение, но обратились к его ранней истории. Еще в 15 веке внутреннее пространство окружавших замок стен засыпали землей, чтобы придать ему – стоявшему на узком перешейке донжону – больше устойчивости. А теперь, когда с течением веков Кастильо-де-ла-Лус оказался на суше, посреди приморской застройки, авторы проекта провели «раскопки» и извлекли весь насыпанный 500 лет назад грунт. По их словам, так они раскрыли прошлое замка.
Музей Кастильо-де-ла-Лус – новое крыло © Roland Halbe - www.rolandhalbe.eu
Музей Кастильо-де-ла-Лус – новое крыло © Roland Halbe - www.rolandhalbe.eu

У края образовавшегося углубления они возвели утопленный в землю павильон из белого бетона, подземные части которого освещены через узкие остекленные проемы в перекрытиях. Широко использована сталь кортен – как в самом павильоне, так и для ограждающих территорию Кастильо-де-ла-Лус стен. Внутри новой постройки можно увидеть остатки древних стен, ограждавших территорию замка и ставших вместилищем для «насыпи».
Музей Кастильо-де-ла-Лус – новое крыло © Roland Halbe - www.rolandhalbe.eu
Музей Кастильо-де-ла-Лус – новое крыло © Roland Halbe - www.rolandhalbe.eu
Музей Кастильо-де-ла-Лус – новое крыло © Roland Halbe - www.rolandhalbe.eu
Музей Кастильо-де-ла-Лус – новое крыло © Roland Halbe - www.rolandhalbe.eu
Музей Кастильо-де-ла-Лус – новое крыло © Roland Halbe - www.rolandhalbe.eu
Музей Кастильо-де-ла-Лус – новое крыло © Roland Halbe - www.rolandhalbe.eu
Музей Кастильо-де-ла-Лус – новое крыло © Roland Halbe - www.rolandhalbe.eu
Музей Кастильо-де-ла-Лус – новое крыло © Roland Halbe - www.rolandhalbe.eu
Музей Кастильо-де-ла-Лус – новое крыло © Roland Halbe - www.rolandhalbe.eu
Музей Кастильо-де-ла-Лус – новое крыло © Roland Halbe - www.rolandhalbe.eu
Музей Кастильо-де-ла-Лус – новое крыло © Roland Halbe - www.rolandhalbe.eu
Музей Кастильо-де-ла-Лус – новое крыло © Roland Halbe - www.rolandhalbe.eu
Музей Кастильо-де-ла-Лус – новое крыло © Roland Halbe - www.rolandhalbe.eu
Музей Кастильо-де-ла-Лус – новое крыло © Roland Halbe - www.rolandhalbe.eu
Музей Кастильо-де-ла-Лус – новое крыло © Roland Halbe - www.rolandhalbe.eu
Музей Кастильо-де-ла-Лус – новое крыло © Roland Halbe - www.rolandhalbe.eu
Музей Кастильо-де-ла-Лус – новое крыло © Roland Halbe - www.rolandhalbe.eu
Музей Кастильо-де-ла-Лус – новое крыло © Roland Halbe - www.rolandhalbe.eu
Музей Кастильо-де-ла-Лус – новое крыло © Roland Halbe - www.rolandhalbe.eu
Музей Кастильо-де-ла-Лус – новое крыло © Roland Halbe - www.rolandhalbe.eu
Музей Кастильо-де-ла-Лус – новое крыло © Roland Halbe - www.rolandhalbe.eu
Музей Кастильо-де-ла-Лус – новое крыло © Roland Halbe - www.rolandhalbe.eu
Музей Кастильо-де-ла-Лус – новое крыло © Roland Halbe - www.rolandhalbe.eu
Музей Кастильо-де-ла-Лус – новое крыло © Roland Halbe - www.rolandhalbe.eu
Музей Кастильо-де-ла-Лус – новое крыло © Nieto Sobejano Arquitectos
Музей Кастильо-де-ла-Лус – новое крыло © Nieto Sobejano Arquitectos
Музей Кастильо-де-ла-Лус – новое крыло © Nieto Sobejano Arquitectos
Музей Кастильо-де-ла-Лус – новое крыло © Nieto Sobejano Arquitectos
Музей Кастильо-де-ла-Лус – новое крыло © Nieto Sobejano Arquitectos
Музей Кастильо-де-ла-Лус – новое крыло © Nieto Sobejano Arquitectos