Размещено на портале Архи.ру (www.archi.ru)

04.02.2014

Вертикальный двор

Нина Фролова
Объект:
Комплекс Reforma Towers
Адрес:
Мексика, None, Мехико.

Ричард Майер представил проект двух башен для Мехико.

Комплекс Reforma Towers © Richard Meier & Partners
Комплекс Reforma Towers © Richard Meier & Partners

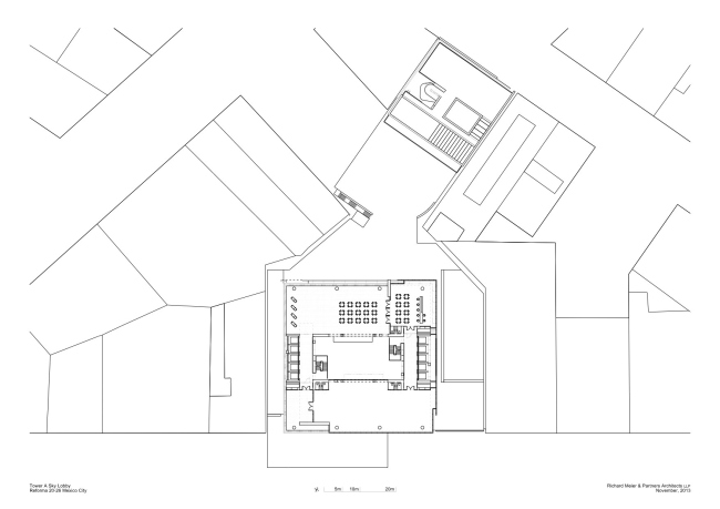
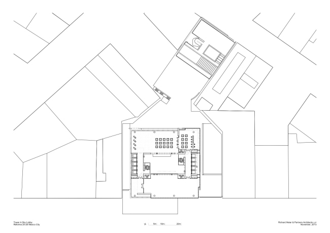
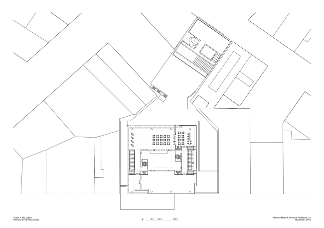
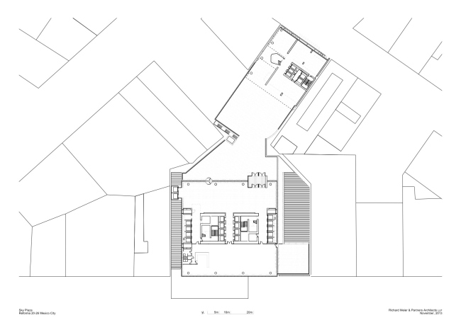
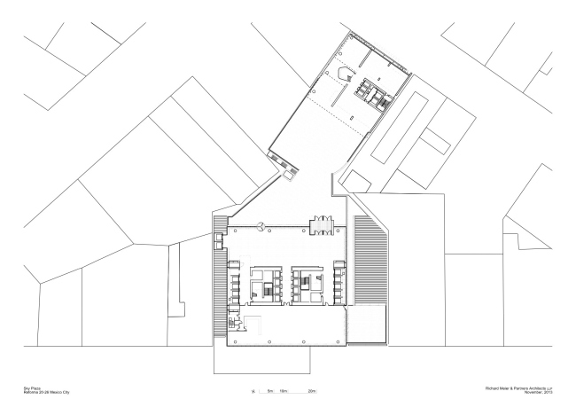
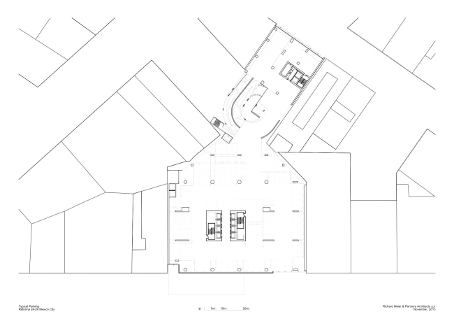
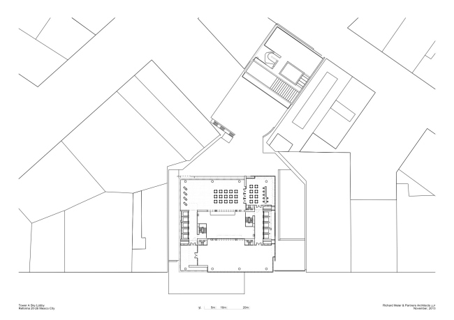
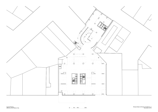
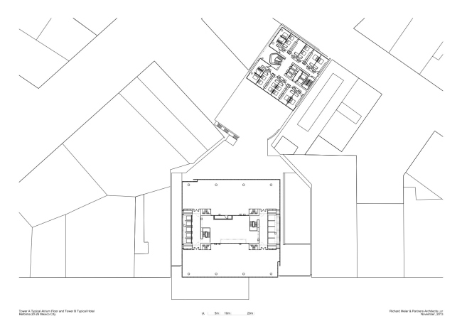
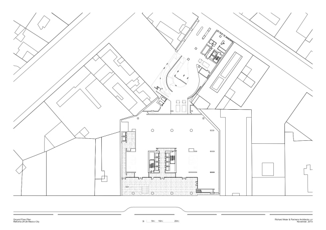
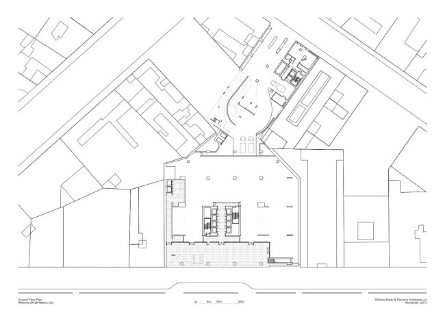
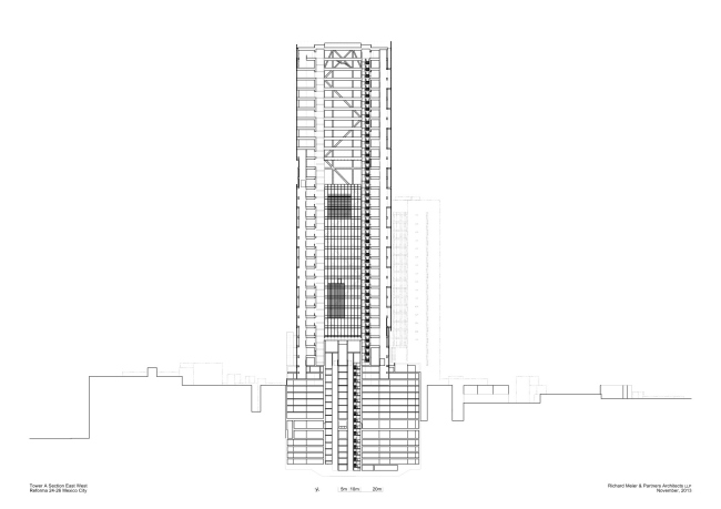
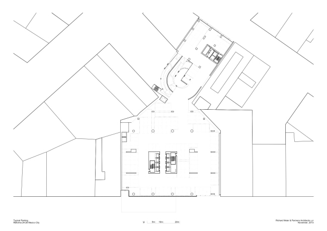
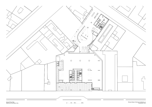
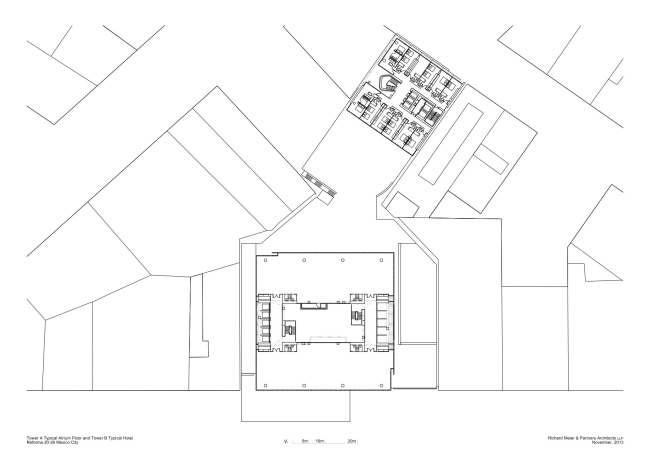
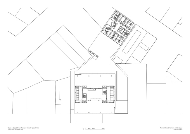
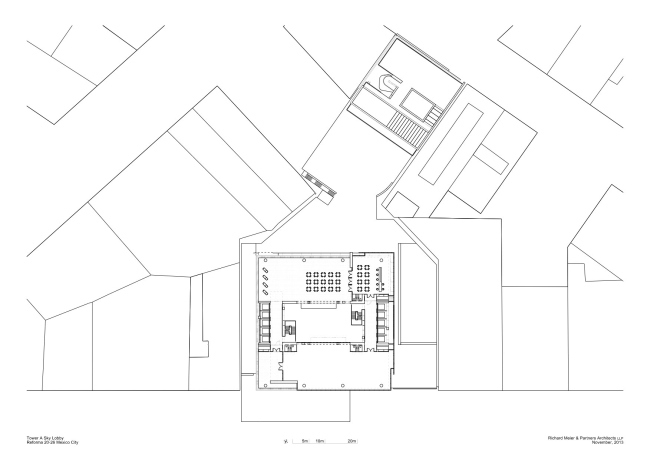
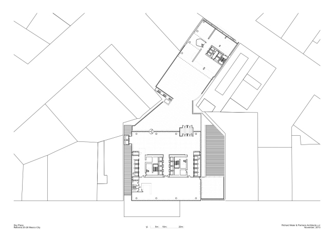
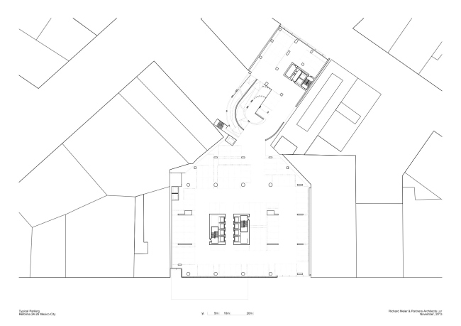
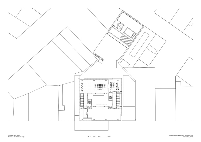
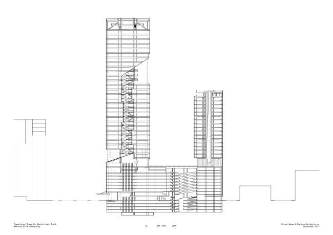
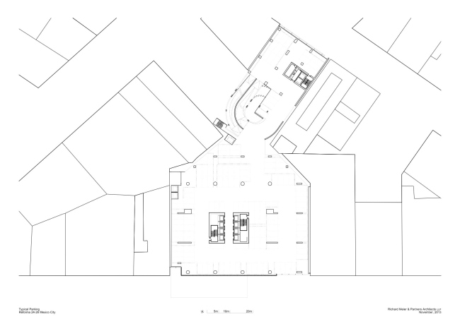
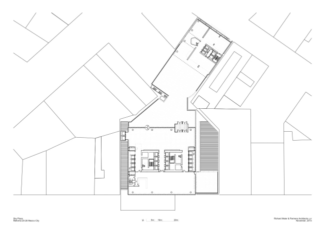
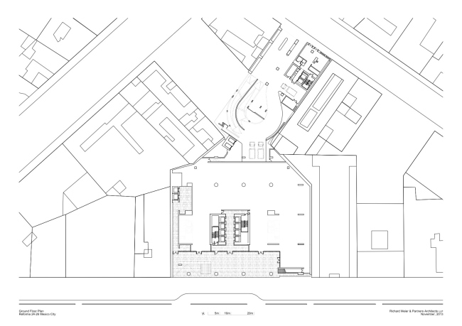
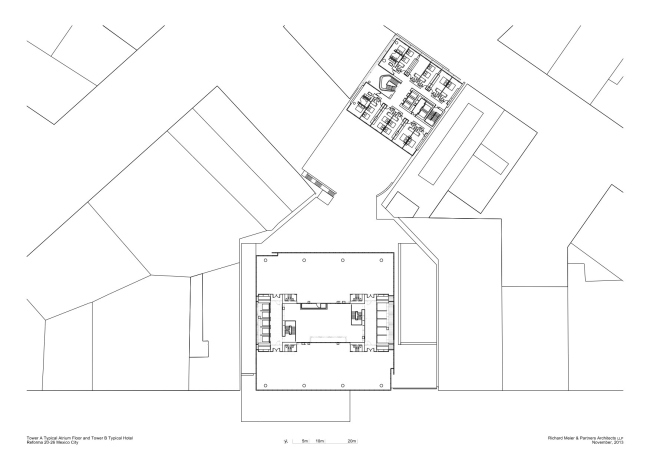
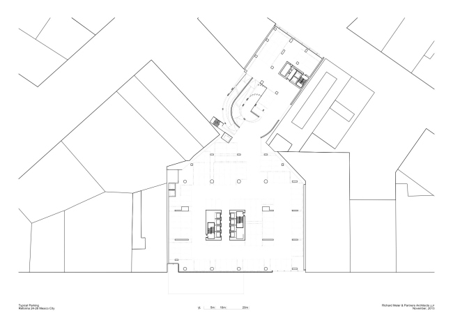
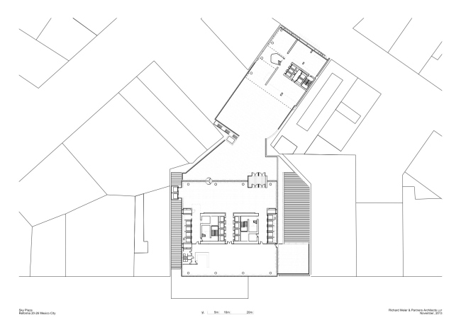
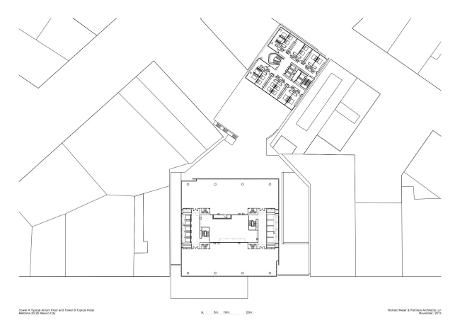
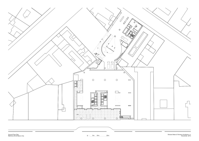
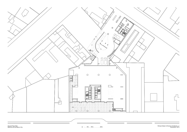
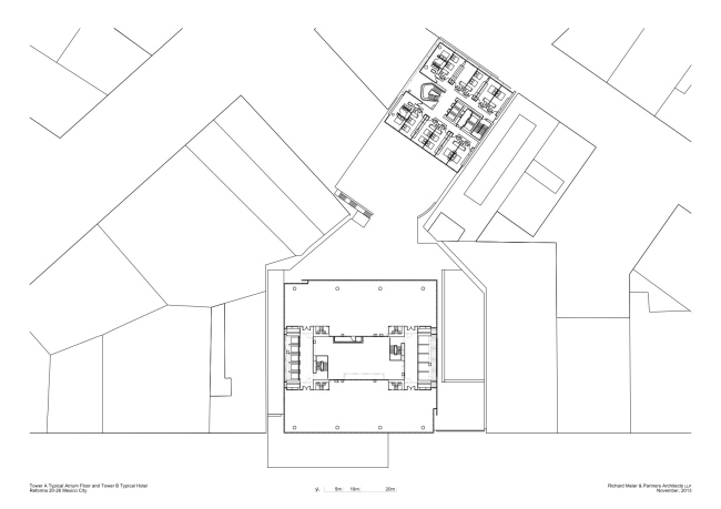
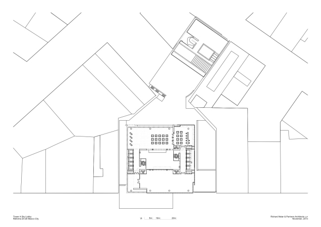
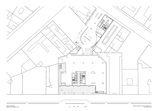
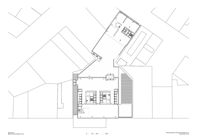
Здания высотой в 180 и 110 м (40 и 27 этажей, соответственно) возведут на Пасео де ла Реформа, ключевой магистрали мексиканской столицы. Здания объединит 9-этажный подиум с паркингом.
Комплекс Reforma Towers © Richard Meier & Partners
Комплекс Reforma Towers © Richard Meier & Partners

В 40-этажной башне разместятся офисы, фитнес-центр, рестораны и магазины. В центре здания запланирован «городской двор», который обеспечит в расположенных ближе к сердцевине постройки помещениях естественное освещение и вентиляцию. Такая планировка дополнена «прорезями» в оболочке здания, где устроены открытые террасы.
Комплекс Reforma Towers © Richard Meier & Partners
Комплекс Reforma Towers © Richard Meier & Partners

Меньшая башня вместит в себе отель. Общая площадь комплекса составит 120 000 м2; предполагается, что реализовать проект удастся к 2016 году.
Комплекс Reforma Towers © Richard Meier & Partners
Комплекс Reforma Towers © Richard Meier & Partners
Комплекс Reforma Towers © Richard Meier & Partners
Комплекс Reforma Towers © Richard Meier & Partners
Комплекс Reforma Towers © Richard Meier & Partners
Комплекс Reforma Towers © Richard Meier & Partners
Комплекс Reforma Towers © Richard Meier & Partners
Комплекс Reforma Towers © Richard Meier & Partners
Комплекс Reforma Towers © Richard Meier & Partners
Комплекс Reforma Towers © Richard Meier & Partners
Комплекс Reforma Towers © Richard Meier & Partners
Комплекс Reforma Towers © Richard Meier & Partners
Комплекс Reforma Towers © Richard Meier & Partners
Комплекс Reforma Towers © Richard Meier & Partners
Комплекс Reforma Towers © Richard Meier & Partners
Комплекс Reforma Towers © Richard Meier & Partners
Комплекс Reforma Towers © Richard Meier & Partners
Комплекс Reforma Towers © Richard Meier & Partners
Комплекс Reforma Towers © Richard Meier & Partners
Комплекс Reforma Towers © Richard Meier & Partners
Комплекс Reforma Towers © Richard Meier & Partners
Комплекс Reforma Towers © Richard Meier & Partners
Комплекс Reforma Towers © Richard Meier & Partners
Комплекс Reforma Towers © Richard Meier & Partners
Комплекс Reforma Towers © Richard Meier & Partners
Комплекс Reforma Towers © Richard Meier & Partners
Комплекс Reforma Towers © Richard Meier & Partners
Комплекс Reforma Towers © Richard Meier & Partners
Комплекс Reforma Towers © Richard Meier & Partners
Комплекс Reforma Towers © Richard Meier & Partners
Комплекс Reforma Towers © Richard Meier & Partners
Комплекс Reforma Towers © Richard Meier & Partners
Комплекс Reforma Towers © Richard Meier & Partners
Комплекс Reforma Towers © Richard Meier & Partners
Комплекс Reforma Towers © Richard Meier & Partners
Комплекс Reforma Towers © Richard Meier & Partners
Комплекс Reforma Towers © Richard Meier & Partners
Комплекс Reforma Towers © Richard Meier & Partners
Комплекс Reforma Towers © Richard Meier & Partners
Комплекс Reforma Towers © Richard Meier & Partners
Комплекс Reforma Towers © Richard Meier & Partners
Комплекс Reforma Towers © Richard Meier & Partners