Размещено на портале Архи.ру (www.archi.ru)

12.02.2014

Из-под солнца Тосканы

Анна Мартовицкая
Объект:
Ресторан «Florentini»
Адрес:
Россия, Москва. ул. Старая Басманная, дом 9 кор. 1
Архитектор:
Роман Леонидов
Мастерская:
АБ Романа Леонидова
Авторский коллектив:
Фасад: Роман Леонидов, Сергей Можейко (Архитектурное бюро Романа Леонидова). Интерьер: Елена Волгина, Вадим Сударев (Архитектурное бюро «Шаболовка»)

По проекту «Архитектурного бюро Романа Леонидова» в Новой Москве построен ресторан «Florentini».

Ресторан «Florentini» © Архитектурное бюро Романа Леонидова
Ресторан «Florentini» © Архитектурное бюро Романа Леонидова
«Florentini» построен в Дубровке – громадном поселке таунхаусов, расположенном на Калужском шоссе примерно в 6 км от МКАД. Растянувшийся вдоль трассы почти на километр, поселок изначально имел несколько заведений общепита, которые входили в состав так называемой «коммунальной зоны», разделяющей шоссе и собственно жилье. Но хотя поселку скоро уже десять лет, здешние рестораны особой популярностью никогда не пользовались (за исключением разве что «Макдональдса»), поэтому регулярно меняли свою концепцию и внешний вид. Одно из таких перевоплощений случилось совсем недавно – под руководством Романа Леонидова стандартный «кубик» кафе был полностью реконструирован, превратившись в интригующий своей пластикой объем, хорошо заметный с дороги.
Ресторан «Florentini» © Архитектурное бюро Романа Леонидова
Ресторан «Florentini» © Архитектурное бюро Романа Леонидова

Прежде всего, пару слов о направленности нового ресторана. В поисках беспроигрышной концепции его владельцы, во-первых, постарались учесть особенности расположения (так возникло определение «кантри кафе»), а во-вторых, сделали ставку на наиболее популярную в России кухню (и находившийся здесь раньше японский ресторан уступил место итальянскому). Кроме того, новое заведение решили сделать мультиформатным – здесь есть и зона кафе, и обеденные залы, и пространство для банкетов, и винная комната, и детская игровая. С учетом расположения ресторана это довольно мудрый ход: люди редко приезжают сюда на полчаса, и им необходимо предложить разнообразный досуг, но для того, чтобы вместить столь богатую функциональную программу, имевшихся площадей не хватало. Именно поэтому зданию не стали делать «косметику» по улучшению главного фасада, а кардинально его перестроили.
Ресторан «Florentini» © Архитектурное бюро Романа Леонидова
Ресторан «Florentini» © Архитектурное бюро Романа Леонидова

Архитекторы фактически удвоили его площадь, продлив здание в сторону жилой застройки. Подросло оно и ввысь: здание по-прежнему имеет плоскую кровлю, но под ней появился «воздух» – полностью остекленный антресольный этаж. Стекла здесь вообще очень много: если предшественник «Флорентини» представлял собой глухую белую «коробочку», то теперь объем кажется совершенно проницаемым. В том числе и за счет того, что другие фасадные материалы почти не взаимодействуют со стеклом напрямую: узкая полоса из кирпича превращается в развитый пилон, сильно вынесенный за пределы основного объема, а деревянная обшивка карниза обрамляет здание по внешнему краю кровли, ощутимо отступая от стен.
Ресторан «Florentini» © Архитектурное бюро Романа Леонидова
Ресторан «Florentini» © Архитектурное бюро Романа Леонидова

При первом же взгляде на здание обращает на себя внимание и подчеркнуто нейтральная цветовая гамма. Состаренный кирпич и тонированное в сероватый оттенок дерево – материалы, которые, по мнению архитекторов, помогают идеально увязать два главных «столпа» концепции заведения: кантри и Италию.

Дерево, словно выгоревшее на ярком солнце, правит бал и в интерьере ресторана. Архитекторы используют этот материал не только для обшивки потолка и стен, но также для создания системы ферм и основных предметов мебели. Таким образом им удается полностью спрятать несущий металлокаркас и создать удивительно цельное пространство цвета топленого молока.
Ресторан «Florentini» © Архитектурное бюро Романа Леонидова
Ресторан «Florentini» © Архитектурное бюро Романа Леонидова
Ресторан «Florentini» © Архитектурное бюро Романа Леонидова
Ресторан «Florentini» © Архитектурное бюро Романа Леонидова

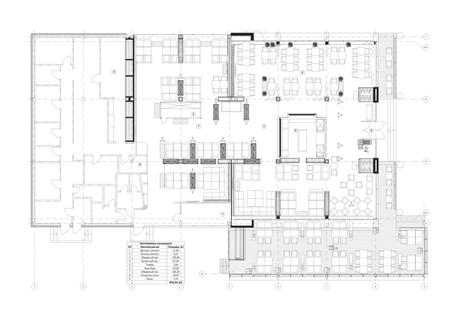
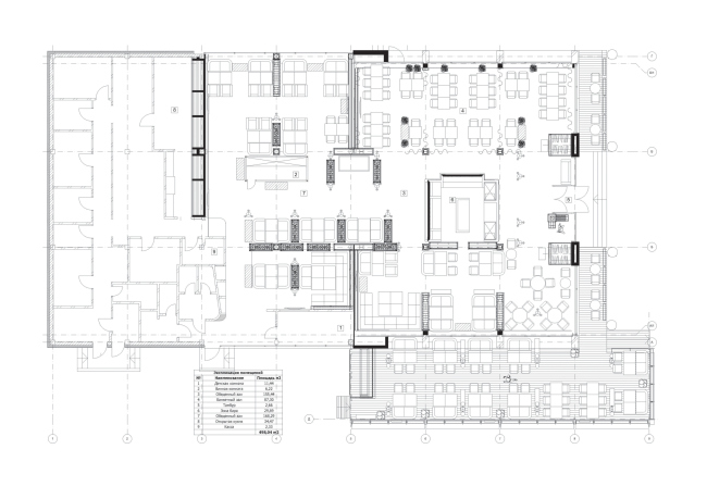
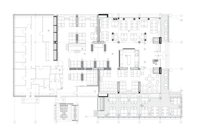
Очень большая высота потолков, «давшая жизнь» фермам, предопределила и решение внутренней планировки ресторана. В ее основу положен принцип единого пространства, в котором отдельные зоны обозначены весьма условно. Принцип открытости распространился даже на кухню – она сделана островной и представляет собой «кулинарный аттракцион», посетить который может любой гость ресторана, неравнодушный к искусству приготовления блюд итальянской кухни. Сердцем же всего помещения становится расположенный в центре огромный бар, «фасады» которого выложены из того же старого жженого кирпича, что и фасады самого здания.
Ресторан «Florentini» © Архитектурное бюро Романа Леонидова
Ресторан «Florentini» © Архитектурное бюро Романа Леонидова

Как поясняет дизайнер Елена Волгина, «нарезать» столь большое помещение на отдельные кабинеты и зальчики не было никакого смысла – поэтому вместо традиционных стен здесь применены выполненные все из того же дерева ширмы, верхний ярус которых используется для размещения зеленых растений. В ряде случаев в качестве условных перегородок также использованы портьеры из ткани – достаточно плотной по фактуре и точно соответствующей деревянной облицовке по цвету.  
Ресторан «Florentini» © Архитектурное бюро Романа Леонидова
Ресторан «Florentini» © Архитектурное бюро Романа Леонидова

Такое решение позволило наполнить абсолютно все помещения ресторана дневным светом, который, по мнению Елены Волгиной, и стал главным дизайнером этого интерьера. С этим утверждением трудно не согласиться: проникающий сквозь огромные витрины, опоясывающие весь периметр здания, свет придает выбранной монохромной палитре очаровательную нежность и аутентичность. В темное же время суток эту работу берут на себя… уличные фонари. Но размещены они, естественно, не снаружи, а здесь же, между столиками ресторана. А дело вновь в потолках – при их высоте почти любые светильники, размещенные над головами посетителей, выглядели бы не масштабно, поэтому архитекторы, привнеся в интерьер буйную зелень и материалы, задействованные на фасаде, решились дополнить еще более узнаваемыми элементами уличного убранства. И попали в точку: излучающие теплый желтый свет, фонари органично дополняют итальянскую тему, напоминая о теплых вечерах на бульварах и набережных.
Ресторан «Florentini» © Архитектурное бюро Романа Леонидова
Ресторан «Florentini» © Архитектурное бюро Романа Леонидова

Атмосферу солнечной Италии, которая положена в основу эстетики интерьера ресторана, дополняют тщательно подобранные аксессуары – удобная мебель с мягкой бархатной обивкой, уютная вуаль штор и разнообразный винтажный декор, помогающие ненадолго забыть об истинной географии этого места.
Ресторан «Florentini» © Архитектурное бюро Романа Леонидова
Ресторан «Florentini» © Архитектурное бюро Романа Леонидова
Ресторан «Florentini» © Архитектурное бюро Романа Леонидова
Ресторан «Florentini» © Архитектурное бюро Романа Леонидова
Ресторан «Florentini» © Архитектурное бюро Романа Леонидова
Ресторан «Florentini» © Архитектурное бюро Романа Леонидова
Ресторан «Florentini» © Архитектурное бюро Романа Леонидова
Ресторан «Florentini» © Архитектурное бюро Романа Леонидова
Ресторан «Florentini» © Архитектурное бюро Романа Леонидова
Ресторан «Florentini» © Архитектурное бюро Романа Леонидова
Ресторан «Florentini» © Архитектурное бюро Романа Леонидова
Ресторан «Florentini» © Архитектурное бюро Романа Леонидова
Ресторан «Florentini» © Архитектурное бюро Романа Леонидова
Ресторан «Florentini» © Архитектурное бюро Романа Леонидова
Ресторан «Florentini» © Архитектурное бюро Романа Леонидова
Ресторан «Florentini» © Архитектурное бюро Романа Леонидова
Ресторан «Florentini» © Архитектурное бюро Романа Леонидова
Ресторан «Florentini» © Архитектурное бюро Романа Леонидова
Ресторан «Florentini» © Архитектурное бюро Романа Леонидова
Ресторан «Florentini» © Архитектурное бюро Романа Леонидова
Ресторан «Florentini» © Архитектурное бюро Романа Леонидова
Ресторан «Florentini» © Архитектурное бюро Романа Леонидова
Ресторан «Florentini» © Архитектурное бюро Романа Леонидова
Ресторан «Florentini» © Архитектурное бюро Романа Леонидова
Ресторан «Florentini» © Архитектурное бюро Романа Леонидова
Ресторан «Florentini» © Архитектурное бюро Романа Леонидова
Ресторан «Florentini» © Архитектурное бюро Романа Леонидова
Ресторан «Florentini» © Архитектурное бюро Романа Леонидова
Ресторан «Florentini» © Архитектурное бюро Романа Леонидова
Ресторан «Florentini» © Архитектурное бюро Романа Леонидова
Ресторан «Florentini» © Архитектурное бюро Романа Леонидова
Ресторан «Florentini» © Архитектурное бюро Романа Леонидова
Ресторан «Florentini» © Архитектурное бюро Романа Леонидова
Ресторан «Florentini» © Архитектурное бюро Романа Леонидова
Ресторан «Florentini» © Архитектурное бюро Романа Леонидова
Ресторан «Florentini» © Архитектурное бюро Романа Леонидова
Ресторан «Florentini» © Архитектурное бюро Романа Леонидова
Ресторан «Florentini» © Архитектурное бюро Романа Леонидова
Ресторан «Florentini» © Архитектурное бюро Романа Леонидова
Ресторан «Florentini» © Архитектурное бюро Романа Леонидова
Ресторан «Florentini» © Архитектурное бюро Романа Леонидова
Ресторан «Florentini» © Архитектурное бюро Романа Леонидова