Размещено на портале Архи.ру (www.archi.ru)

04.02.2014

Прямая связь с небом

Анна Мартовицкая
Объект:
Вертикальный стеклянный дом
Адрес:
Китай, None, Шанхай.
Мастерская:
FCJZ

В Шанхае по проекту бюро FCJZ построен уникальный дом со стеклянными перекрытиями и прозрачной кровлей.

Вертикальный стеклянный дом © Atelier FCJZ
Вертикальный стеклянный дом © Atelier FCJZ
Вертикальный стеклянный дом, как этот объект называется официально, был придуман китайским архитектором Юн Хо Чаном еще в 1991 году: с этим проектом будущий основатель FCJZ принял участие в конкурсе Shinkenchiku Residential Design Competition, организованном журналом Japan Architect, и был удостоен специального упоминания жюри. Спустя двадцать с лишним лет проект был реализован в рамках Биеннале архитектуры и современного искусства West Bund в качестве одного из постоянных павильонов.
Вертикальный стеклянный дом © Atelier FCJZ
Вертикальный стеклянный дом © Atelier FCJZ

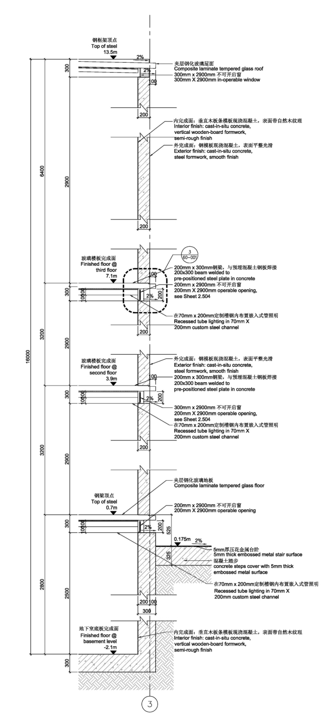
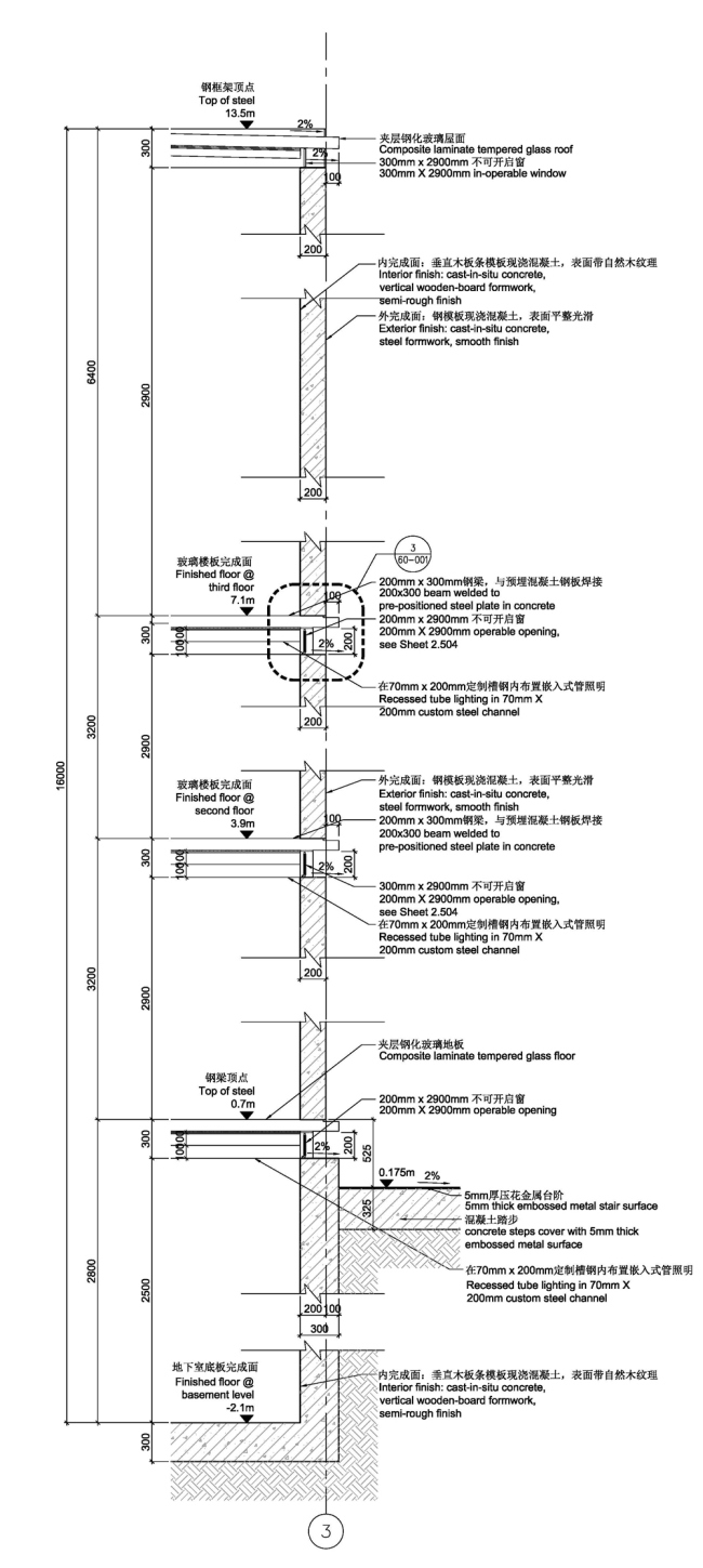
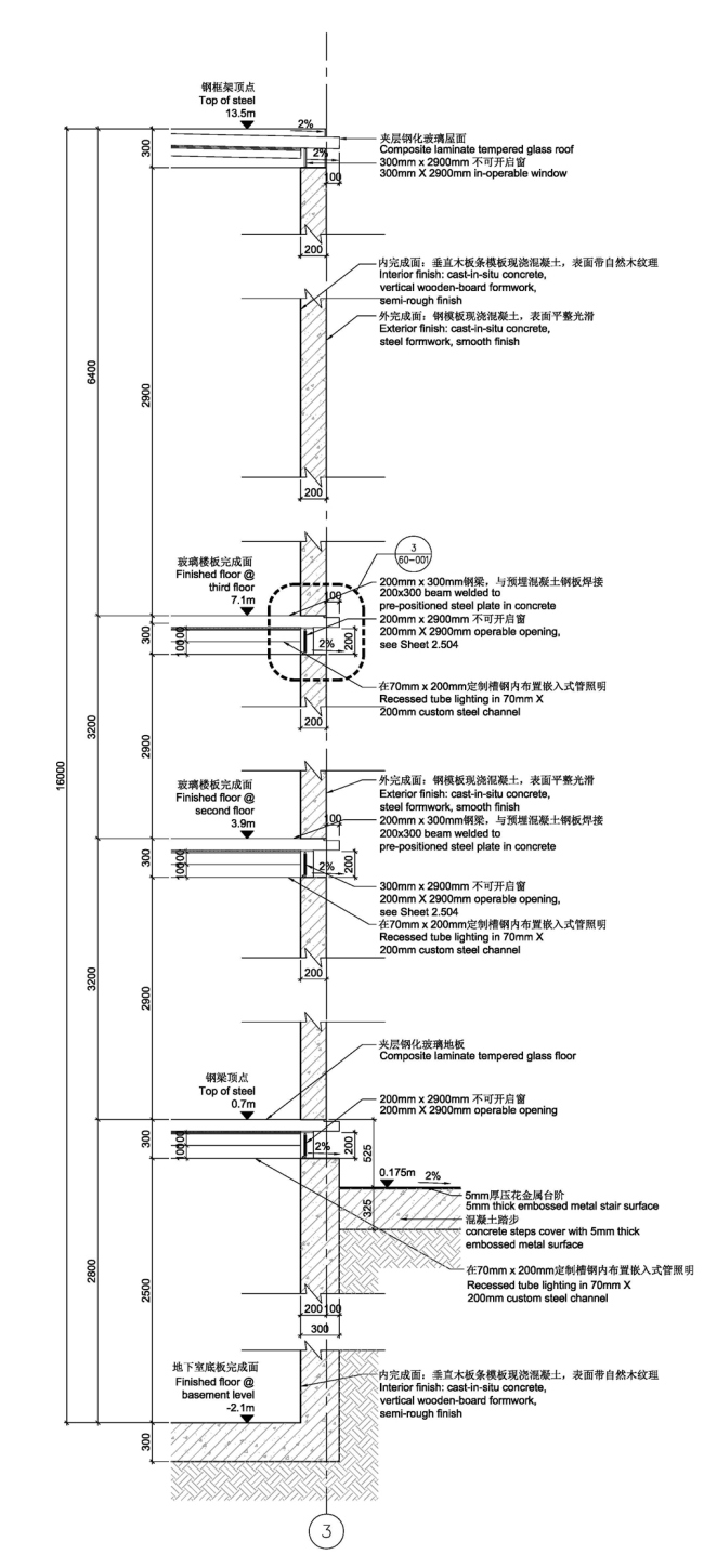
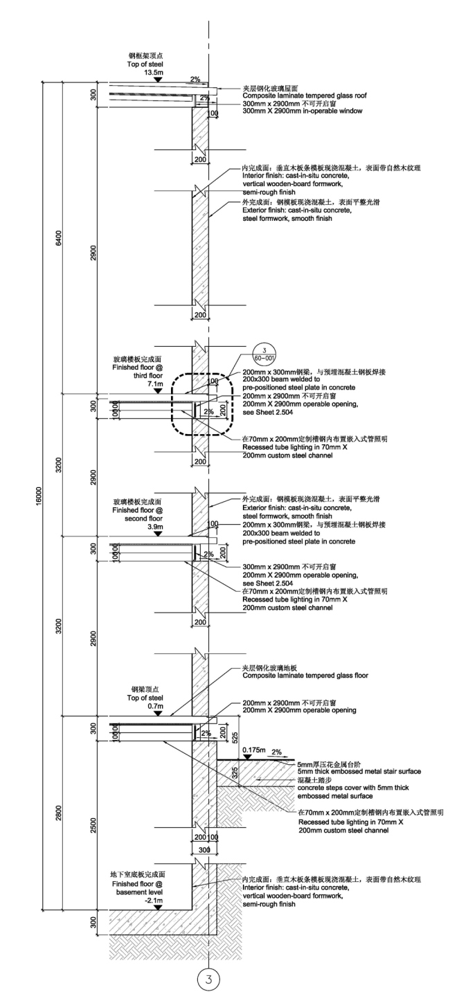
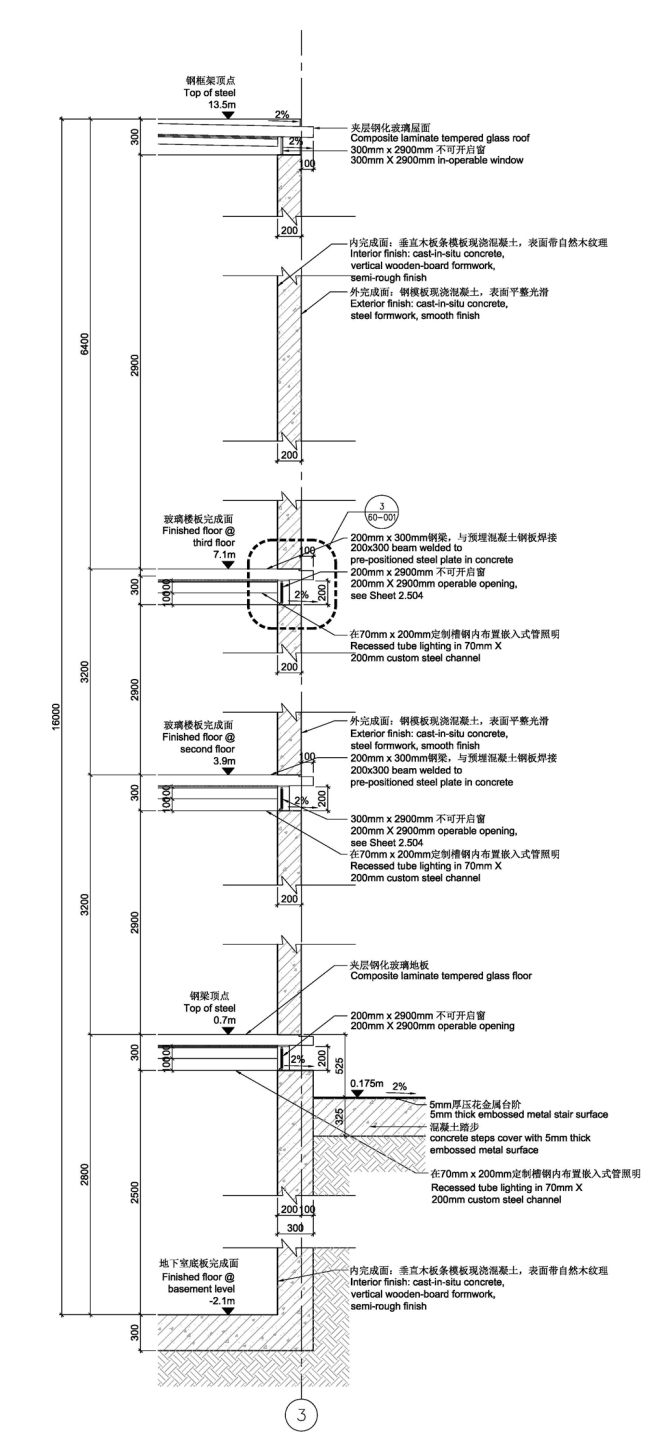
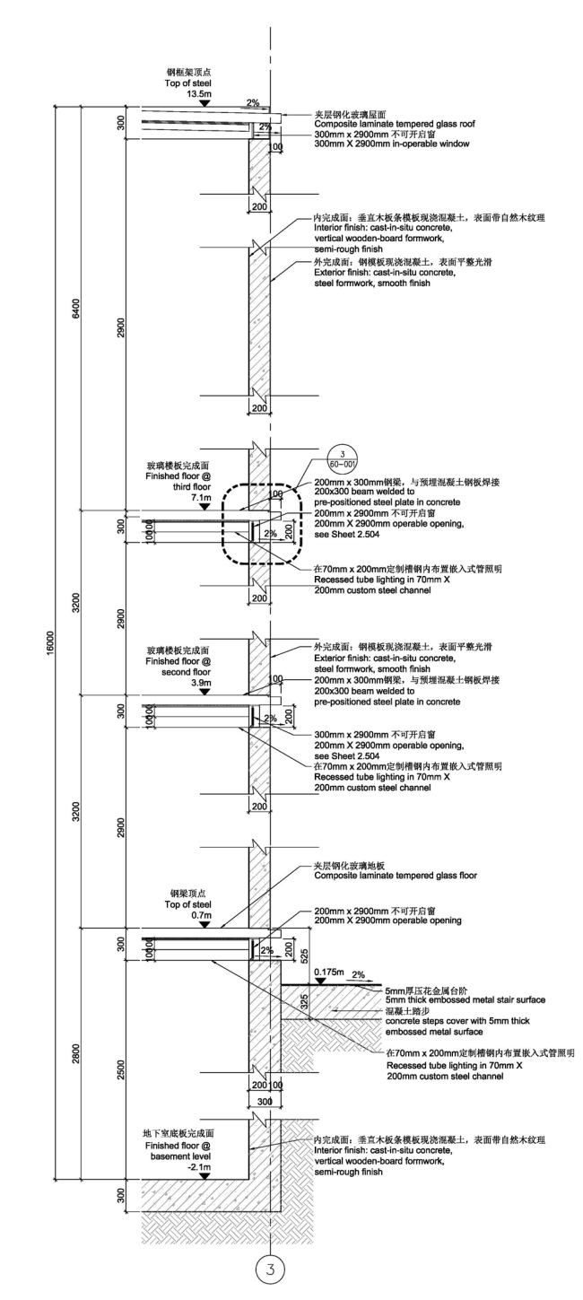
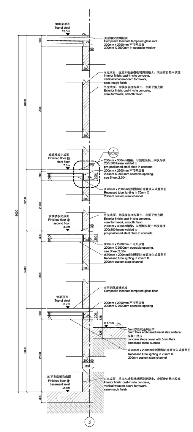
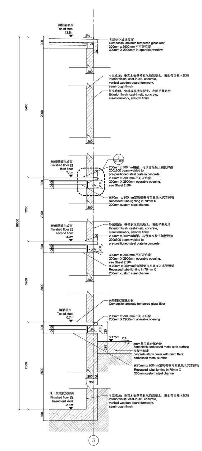
Этот дом является своего рода ответом моде на прозрачные стены и предельно условную границу между частным жильем и окружающим миром. Фактически столь традиционный сегодня дом с окнами «в пол» архитектор разворачивает на 90 градусов – так что единственный проем этого объема (не считая двери, конечно) оказывается обращен к небу. Причем увидеть облака можно даже с первого яруса этого 4-этажного дома, так как все его межэтажные перекрытия также выполнены из стекла. Сам архитектор считает, что создал идеальное место для медитаций: от созерцания неба обитателей дома не отвлекают ни события на улице, ни сцены в окнах соседних зданий.
Вертикальный стеклянный дом © Atelier FCJZ
Вертикальный стеклянный дом © Atelier FCJZ

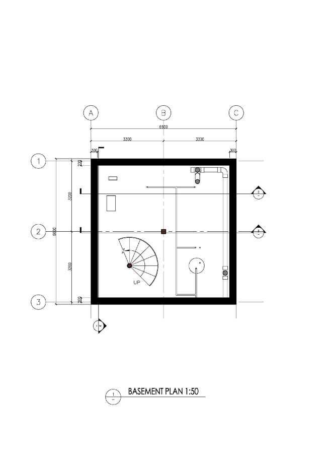
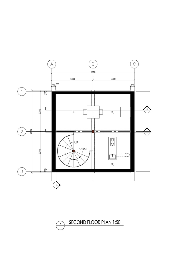
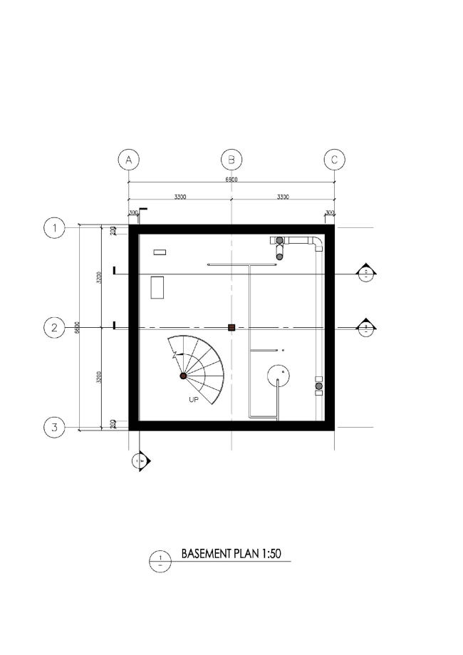
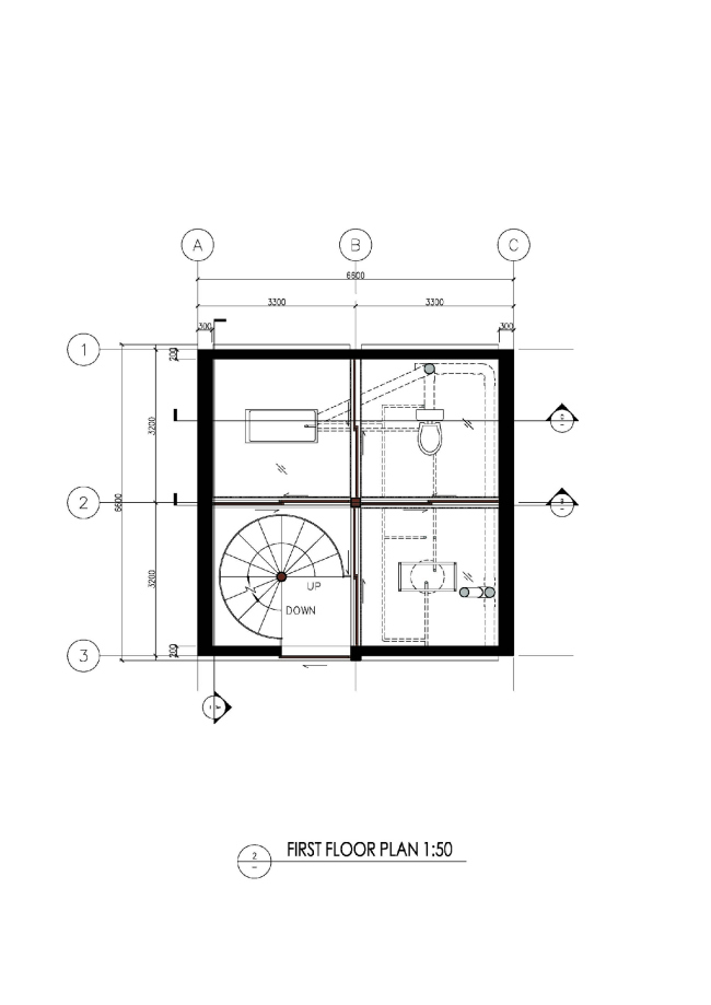
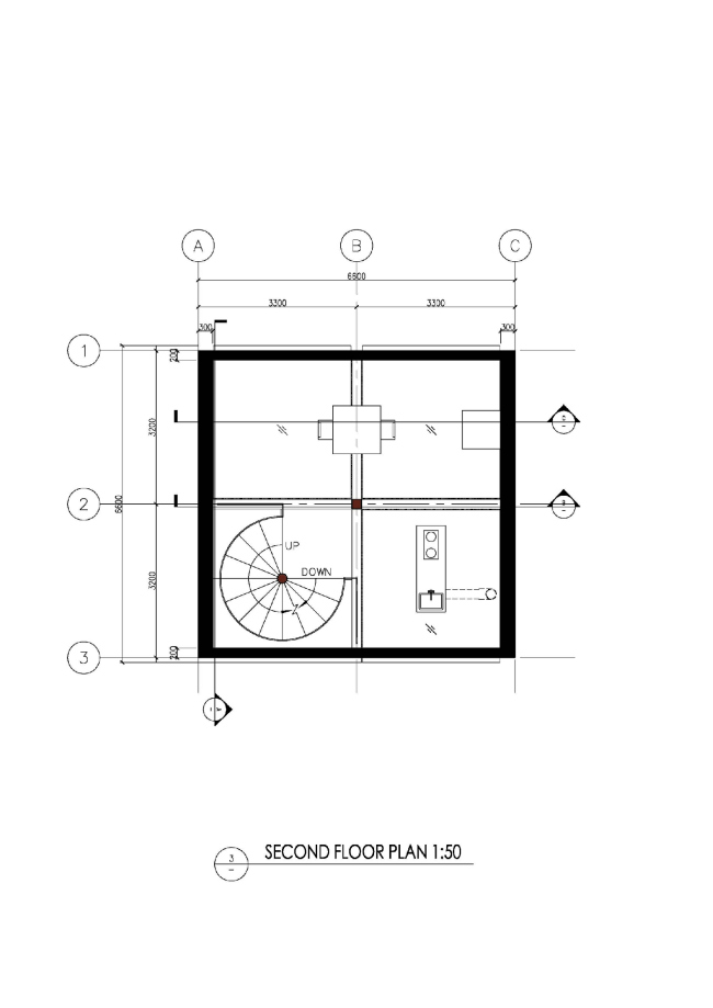
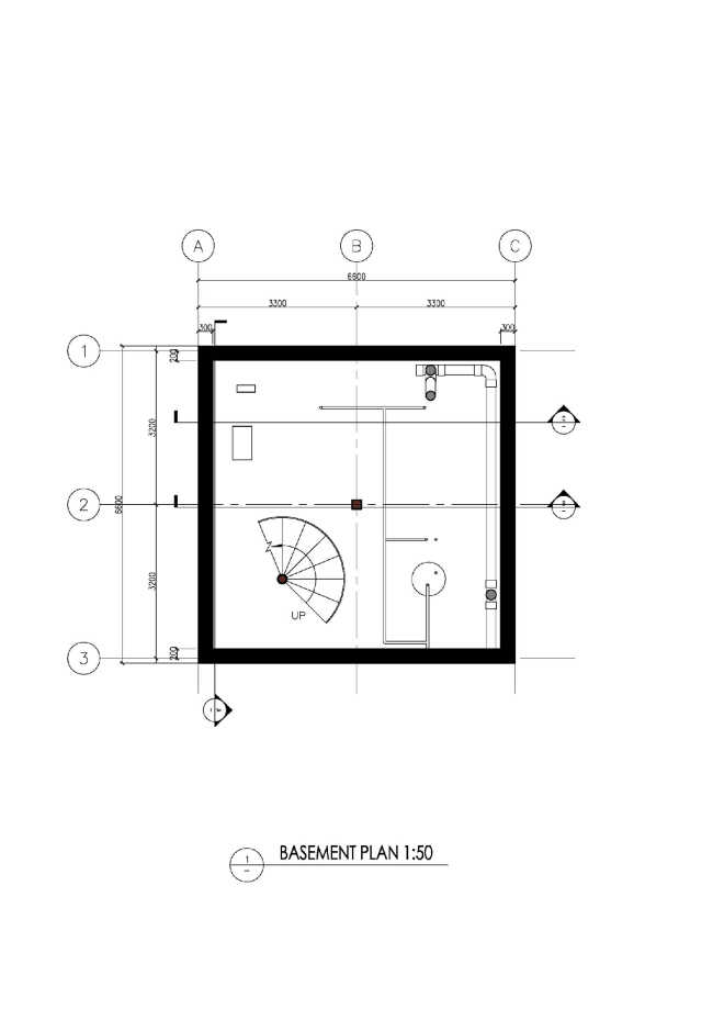
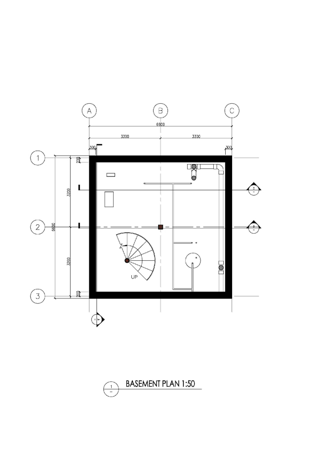
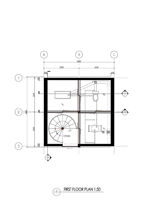
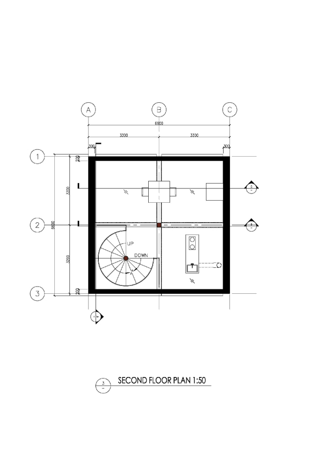
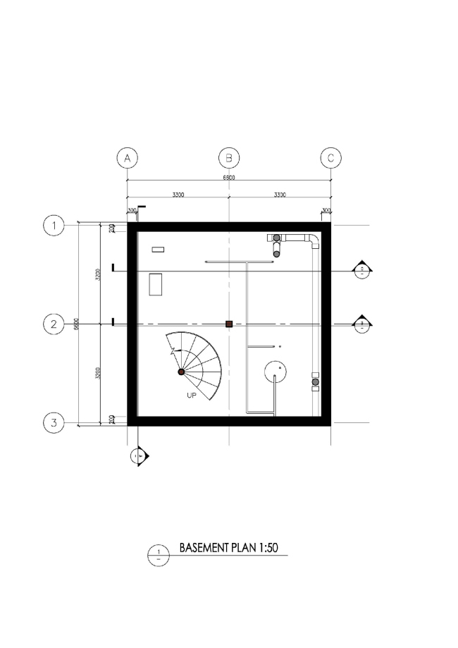
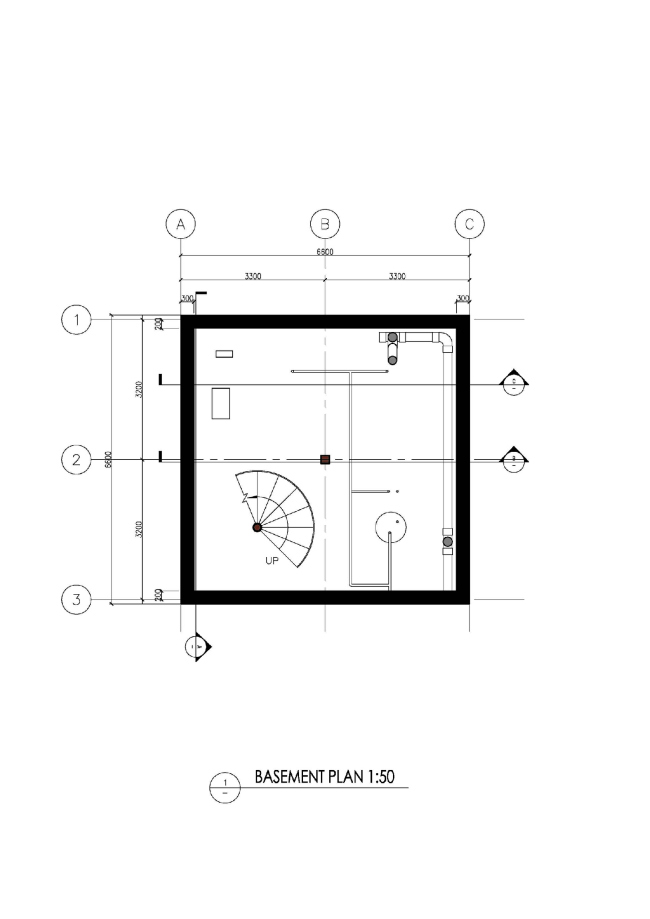
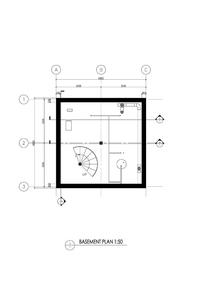
Стены дома, имеющего общую площадь 170 м2, выполнены из бетона. С помощью опалубки из грубо отесанных деревянных досок фасады получили выразительную шероховатую фактуру, тогда как с обратной стороны бетонная поверхность сделана идеально ровной и гладкой. Несущая конструкция – металлокаркас – стал благодаря стеклу выразительным элементом интерьера. Сами же прозрачные перекрытия представляют собой 7-сантиметровые композитные панели из закаленного стекла, которые «вылетают» за границы фасада сквозь специальные щели. Эти узкие прорези разрушают образ дома как абсолютно глухой бетонной коробки, а в темное время суток также подсвечивают дом изнутри.
Вертикальный стеклянный дом © Atelier FCJZ
Вертикальный стеклянный дом © Atelier FCJZ

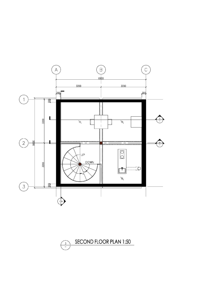
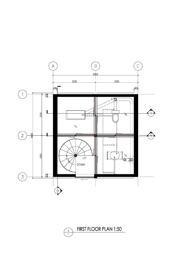
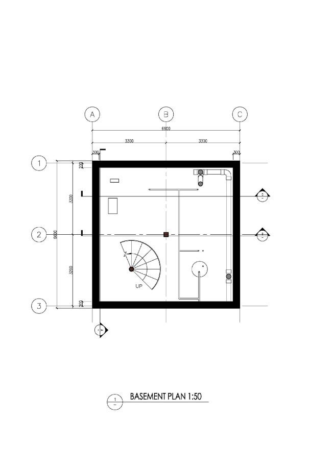
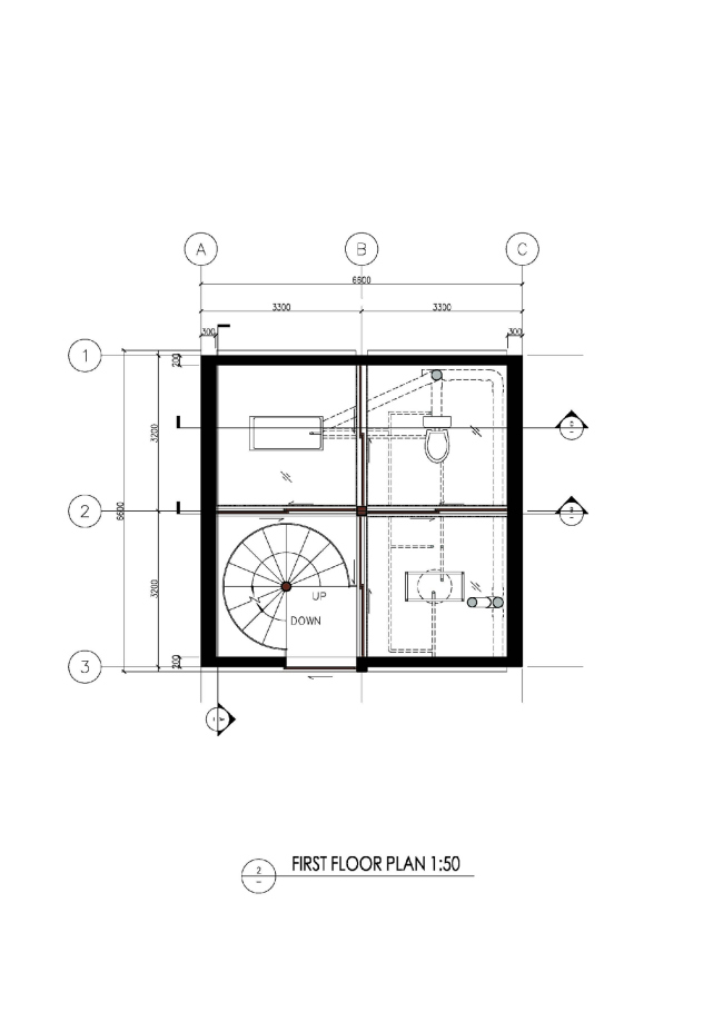
Поскольку пятно застройки составило всего 40 м2, лестница внутри дома ради экономии пространства сделана винтовой. Она связывает между собой разные функциональные зоны. Дом подключен к канализации и отоплению, а также имеет кондиционер. Его планируется использовать не только как архитектурный экспонат, но и как одноместный гостиничный номер для участников биеннале.
Вертикальный стеклянный дом © Atelier FCJZ
Вертикальный стеклянный дом © Atelier FCJZ
Вертикальный стеклянный дом © Atelier FCJZ
Вертикальный стеклянный дом © Atelier FCJZ
Вертикальный стеклянный дом © Atelier FCJZ
Вертикальный стеклянный дом © Atelier FCJZ
Вертикальный стеклянный дом © Atelier FCJZ
Вертикальный стеклянный дом © Atelier FCJZ
Вертикальный стеклянный дом © Atelier FCJZ
Вертикальный стеклянный дом © Atelier FCJZ
Вертикальный стеклянный дом © Atelier FCJZ
Вертикальный стеклянный дом © Atelier FCJZ
Вертикальный стеклянный дом © Atelier FCJZ
Вертикальный стеклянный дом © Atelier FCJZ
Вертикальный стеклянный дом © Atelier FCJZ
Вертикальный стеклянный дом © Atelier FCJZ
Вертикальный стеклянный дом © Atelier FCJZ
Вертикальный стеклянный дом © Atelier FCJZ
Вертикальный стеклянный дом © Atelier FCJZ
Вертикальный стеклянный дом © Atelier FCJZ
Вертикальный стеклянный дом © Atelier FCJZ
Вертикальный стеклянный дом © Atelier FCJZ
Вертикальный стеклянный дом © Atelier FCJZ
Вертикальный стеклянный дом © Atelier FCJZ
Вертикальный стеклянный дом © Atelier FCJZ
Вертикальный стеклянный дом © Atelier FCJZ
Вертикальный стеклянный дом © Atelier FCJZ
Вертикальный стеклянный дом © Atelier FCJZ
Вертикальный стеклянный дом © Atelier FCJZ
Вертикальный стеклянный дом © Atelier FCJZ
Вертикальный стеклянный дом © Atelier FCJZ
Вертикальный стеклянный дом © Atelier FCJZ
Вертикальный стеклянный дом © Atelier FCJZ
Вертикальный стеклянный дом © Atelier FCJZ