Размещено на портале Архи.ру (www.archi.ru)

28.01.2014

Дом-интроверт

Анна Мартовицкая
Объект:
Вилла S
Адрес:
Япония, None,

Шигеру Бан построил в префектуре Канагава дом, обращенный к внешнему миру глухими деревянными стенами.

Вилла S © Hiroyuki Hirai
Вилла S © Hiroyuki Hirai
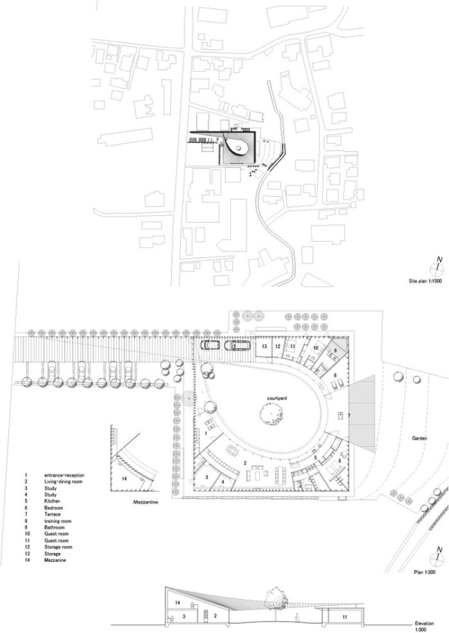
Официальное наименование этого объекта – «Вилла S». Свое название он получил по району Сэнгокубара поселка Хаконэ, в котором построен. Но не менее вероятным кажется, что S – производное от английского «secret»: со стороны улицы дом выглядит очень таинственным и скрытным.
Вилла S © Hiroyuki Hirai
Вилла S © Hiroyuki Hirai

Необычное композиционное решение архитектору подсказал сам участок. В плане он имеет квадратную форму, а по периметру окружен постройками других владельцев, которые близко подступают к его границам. Стремясь защитить частную жизнь своих заказчиков и при этом не обделить их пространством, Шигеру Бан предложил возвести квадратный объем, занимающий почти весь участок. А для того, чтобы новый дом не оказался со своими визави в щекотливой ситуации «окна в окна», от проемов решено было вовсе отказаться.
Вилла S © Hiroyuki Hirai
Вилла S © Hiroyuki Hirai

Вместо этого внутри виллы возник двор каплевидной формы, вокруг которого расположились все функциональные зоны. От двора, диаметр которого составляет 15 метров, жилые помещения отделены стеклянными панелями, которые, с одной стороны, обеспечивают их достаточным количеством дневного света, а с другой делают границу между интерьером и пространством под открытым небом более условной. А в гостиной эти панели (в общей сложности их восемь) еще и могут сдвигаться, позволяя обитателям в любое время выйти на свежий воздух.
Вилла S © Hiroyuki Hirai
Вилла S © Hiroyuki Hirai

Основным конструктивным элементом здесь становятся L-образные деревянные балки, которые расходятся от центра композиции словно лучи, удерживая эффектную односкатную кровлю. За счет разной высоты этих элементов меняется и высота кровли – с 2,4 метров она вырастает до 7,5 метров, позволяя спроектировать два полноценных этажа там, где это нужно.
Вилла S © Hiroyuki Hirai
Вилла S © Hiroyuki Hirai
Вилла S © Hiroyuki Hirai
Вилла S © Hiroyuki Hirai
Вилла S © Hiroyuki Hirai
Вилла S © Hiroyuki Hirai
Вилла S © Hiroyuki Hirai
Вилла S © Hiroyuki Hirai
Вилла S © Hiroyuki Hirai
Вилла S © Hiroyuki Hirai
Вилла S © Hiroyuki Hirai
Вилла S © Hiroyuki Hirai
Вилла S © Hiroyuki Hirai
Вилла S © Hiroyuki Hirai
Вилла S © Hiroyuki Hirai
Вилла S © Hiroyuki Hirai
Вилла S © Hiroyuki Hirai
Вилла S © Hiroyuki Hirai
Вилла S © Hiroyuki Hirai
Вилла S © Hiroyuki Hirai
Вилла S © Hiroyuki Hirai
Вилла S © Hiroyuki Hirai
Вилла S © Hiroyuki Hirai
Вилла S © Hiroyuki Hirai
Вилла S © Hiroyuki Hirai
Вилла S © Hiroyuki Hirai
Вилла S © Hiroyuki Hirai
Вилла S © Hiroyuki Hirai
Вилла S © Shigeru Ban architects
Вилла S © Shigeru Ban architects