Размещено на портале Архи.ру (www.archi.ru)

27.01.2014

Преодоление контекста

Анна Мартовицкая
Объект:
Концепция жилого комплекса на Рублевском шоссе (Сергей Скуратов ARCHITECTS)
Адрес:
Россия, Москва. Рублевское шоссе, вл. 101 и 105
Архитектор:
Сергей Скуратов
Мастерская:
Сергей Скуратов ARCHITECTS
Авторский коллектив:
С.Скуратов (руководитель авторского коллектива), А.Панев, В.Обвинцев, Е.Королев, А.Терентьев, при участии: С.Субботин, С.Безверхий, А.Алендеев, А.Чурадаев.

Подробный рассказ о проекте жилого комплекса на Рублевском шоссе, с которым мастерская «Сергей Скуратов ARCHITECTS» выиграла закрытый архитектурный конкурс.

Концепция жилого комплекса на Рублевском шоссе © «Сергей Скуратов ARCHITECTS»
Концепция жилого комплекса на Рублевском шоссе © «Сергей Скуратов ARCHITECTS»
Конкурс на лучший проект жилого комплекса, который планируется построить в Москве на пересечении Рублевского шоссе и Ярцевской улицы, был организован группой компаний «ПИК» и Москомархитектурой осенью прошлого года. Его итоги, подведенные перед самыми новогодними каникулами, Архи.ру уже освещал. Теперь же подробнее расскажем о самом проекте Сергея Скуратова, чье решение члены жюри единодушно признали лучшим
Концепция жилого комплекса на Рублевском шоссе © «Сергей Скуратов ARCHITECTS»
Концепция жилого комплекса на Рублевском шоссе © «Сергей Скуратов ARCHITECTS»

Как вспоминает автор, перед проектом стояло две сверхзадачи: подчеркнуть градостроительную значимость участка и создать новую архитектурную доминанту района. Дело в том, что пересечение Рублевского шоссе и Ярцевской улицы – точка очень высокая (это бровка Крылатского холма) и отлично просматривается даже из отдаленных районов столицы, но застройщики, уже успевшие здесь отметиться, меньше всего думали о собственной градостроительной ответственности. Несмотря на известную дороговизну новостроек на Рублевке, их внешний вид в самом лучшем случае вызывает равнодушие, хотя чаще эти дома откровенно пугают своей высотой и плотностью. Собственно, потому Москомархитектура и инициировал архитектурный конкурс: участок, выходящий непосредственно на перекресток, – практически последняя свободная здесь площадка, которая благодаря своему фронтальному расположению еще может «переиграть» стихийно формирующийся градостроительный ландшафт. 
Концепция жилого комплекса на Рублевском шоссе. Варианты композиционного решения © «Сергей Скуратов ARCHITECTS»
Концепция жилого комплекса на Рублевском шоссе. Варианты композиционного решения © «Сергей Скуратов ARCHITECTS»
Концепция жилого комплекса на Рублевском шоссе. Варианты композиционного решения © «Сергей Скуратов ARCHITECTS»
Концепция жилого комплекса на Рублевском шоссе. Варианты композиционного решения © «Сергей Скуратов ARCHITECTS»
Концепция жилого комплекса на Рублевском шоссе. Варианты композиционного решения © «Сергей Скуратов ARCHITECTS»
Концепция жилого комплекса на Рублевском шоссе. Варианты композиционного решения © «Сергей Скуратов ARCHITECTS»

Всего «Сергей Скуратов ARCHITECTS» проработали более 12 вариантов архитектурно-планировочного решения будущего комплекса, последовательно заполняя почти прямоугольный в плане участок то домами-пластинами, то единой мегаструктурой-ширмой, то разнообразными башнями. К тому, что здесь должны быть построены именно башни, архитекторы, строго говоря, пришли довольно быстро: исключительная обзорность участка диктовала прозрачную и силуэтную застройку, – но вот их количество и компоновку обсуждали долго. На многочисленных макетах видно, что высотки не раз меняли свою форму и перемещались по участку. У мастерской был даже вариант, когда башни соединялись стилобатом в виде буквы Y, своей галочкой обращенной к Рублевскому шоссе. Однако с дальних точек они накладывались друг на друга, поэтому в итоге победила композиция из четырех разновысоких объемов, которые разнесены по периметру условного прямоугольника и расположены ближе к середине каждой из его сторон.
Концепция жилого комплекса на Рублевском шоссе. Финальный вариант компоновки жилых объемов © «Сергей Скуратов ARCHITECTS»
Концепция жилого комплекса на Рублевском шоссе. Финальный вариант компоновки жилых объемов © «Сергей Скуратов ARCHITECTS»
Концепция жилого комплекса на Рублевском шоссе © «Сергей Скуратов ARCHITECTS»
Концепция жилого комплекса на Рублевском шоссе © «Сергей Скуратов ARCHITECTS»

Самой высокой (40 этажей) является башня, выходящая на Ярцевскую. По другую сторону улицы уже построен высотный дом в виде ступенчатой дугообразной гряды. Жилой комплекс Скуратова подхватывает заданную этим объектом «красную линию», но своими строгими тонкими вертикалями противостоит его избыточной массе, тем самым задавая в панораме района новую систему координат. Башня, граничащая с дублером Рублевского шоссе, и ее визави в пределах участка, имеют равную высоту (30 этажей) и, в свою очередь, подхватывают ритм более далеких высотных доминант, замыкающих перспективу Ярцевской по другую сторону шоссе. И, наконец, самая северная башня, максимально удаленная от тоннеля, имеет всего 24 этажа – она служит своего рода переходным элементом, фиксирующим начинающийся за участком перепад рельефа. Интересно, что отдав предпочтение разновысотной композиции, Скуратов фактически нарушил требование ТЗ конкурса о детальном распределении площадей по секциям комплекса. «Мы действительно решили этим пунктом пренебречь, сделав ставку на выразительность композиционного решения, которое «ловит» беспорядочные ритмы вертикалей и пустот старой и новой застройки, привнося в окружающий градостроительный хаос элемент спокойствия и равновесия», – поясняет сам архитектор. Как мы уже знаем, жюри с этим доводом согласилось. 
Концепция жилого комплекса на Рублевском шоссе © «Сергей Скуратов ARCHITECTS»
Концепция жилого комплекса на Рублевском шоссе © «Сергей Скуратов ARCHITECTS»

Архитектурное решение башен одновременно просто и выразительно. Каждый из объемов имеет два более материальных и два более проницаемых фасада. Первые представляют собой керамические поверхности с «перфокартой» окон, на вторых поверх сплошного остекления наложены легкие и четкие решетки ламелей, за которыми прячутся лоджии с персональными наружными блоками сплит-систем. Цветов в палитре комплекса тоже два – белый и терракотовый, и от фасада к фасаду они чередуются таким образом, что каждый дом отличается от своих соседей. Казалось бы, все очень просто: тут белая «перфокарта», тут рыжая, тут снова белая, но на этот раз торец, – но именно за счет чередования всего двух типов «графики» авторам удается максимально обогатить восприятие комплекса с разных сторон.
Концепция жилого комплекса на Рублевском шоссе © «Сергей Скуратов ARCHITECTS»
Концепция жилого комплекса на Рублевском шоссе © «Сергей Скуратов ARCHITECTS»
Концепция жилого комплекса на Рублевском шоссе © «Сергей Скуратов ARCHITECTS»
Концепция жилого комплекса на Рублевском шоссе © «Сергей Скуратов ARCHITECTS»

Выразительность силуэту придают и завершения башен – и без того стройные, высотки словно истончаются кверху, становятся более проницаемыми. Скуратов не подводит жилые этажи под самую кровлю, а, наоборот, создает здесь общественные террасы, обнесенные перголой. Важнейшим общественным пространством становится и трехуровневый стилобат, занимающий почти весь участок и вмещающий все нежилые и технические помещения комплекса. По всему его наружному периметру размещена зона магазинов, офисов, банков и сервисов, отмеченная характерной для жанра «гостиного двора» аркадой, а в точках пересечения этой горизонтали с вертикалями башен каменная ткань фасада эффектно отвернута, обозначая входные вестибюли жилых домов.
Концепция жилого комплекса на Рублевском шоссе © «Сергей Скуратов ARCHITECTS»
Концепция жилого комплекса на Рублевском шоссе © «Сергей Скуратов ARCHITECTS»
Концепция жилого комплекса на Рублевском шоссе © «Сергей Скуратов ARCHITECTS»
Концепция жилого комплекса на Рублевском шоссе © «Сергей Скуратов ARCHITECTS»

Отвороты и загибы вообще становятся важнейшим штрихом, завершающим архитектурный образ комплекса. А навеян этот прием, кажется, все тем же ближайшим контекстом – Ярцевская улица в этом месте ныряет в тоннель, и его вытянутая воронка обращена прямо к будущему комплексу. Аналогичная деформация происходит не только на нижнем уровне, но и на самом верхнем: кровли над общественными террасами башен очевидно продавлены внутрь. На схемах архитекторы в этих местах даже рисуют красноречивые гири, а сам Сергей Скуратов поэтично поясняет, что, мол, вертолет прилетел и своей чашей примял. Оттого и одна – самая развитая – опора перголы получилась наклонной – вроде в масштабе всего комплекса и не очень заметная деталь, но внимательного наблюдателя неизменно заинтригует.
Концепция жилого комплекса на Рублевском шоссе © «Сергей Скуратов ARCHITECTS»
Концепция жилого комплекса на Рублевском шоссе © «Сергей Скуратов ARCHITECTS»
Концепция жилого комплекса на Рублевском шоссе © «Сергей Скуратов ARCHITECTS»
Концепция жилого комплекса на Рублевском шоссе © «Сергей Скуратов ARCHITECTS»

Если сам стилобат доступен для всех горожан, то его кровля – лишь для жильцов комплекса. На ней Сергей Скуратов предложил разместить парк со сложным рельефом и целой системой пандусов, переходов и мостиков. По его периметру проложена беговая дорожка, от которой зеленые склоны амфитеатром спускаются к центральной зоне с детской и спортивной площадками. Интересно, что над площадками архитекторы предлагают сделать навес и с каждым домом соединить их крытыми переходами, что гарантирует жильцам возможность выйти на улицу в любую погоду. Конечно, ландшафтное озеленение с эффектом естественного рельефа – удовольствие не из дешевых, но и об удорожании бюджета проекта речь не идет: сэкономить архитекторы предлагают за счет предложенной структуры размещения автостоянок и технических помещений (всего один подземный и один надземный, искусно спрятанный в те самые склоны, вместо дорогостоящих котлованов).
Концепция жилого комплекса на Рублевском шоссе © «Сергей Скуратов ARCHITECTS»
Концепция жилого комплекса на Рублевском шоссе © «Сергей Скуратов ARCHITECTS»
Концепция жилого комплекса на Рублевском шоссе © «Сергей Скуратов ARCHITECTS»
Концепция жилого комплекса на Рублевском шоссе © «Сергей Скуратов ARCHITECTS»

К слову, столь же рационально авторы проекта подошли и к конструктивно-инженерным решениям собственно жилой части комплекса. Например, мокрые зоны всех квартир расположены по внутреннему периметру этажа, вплотную к коммуникационным ядрам, что даст жильцам возможность планировать жилые комнаты по собственному усмотрению. А использование универсальной фасадной системы «Zerringer» позволит монтировать фасады изнутри к торцам плит перекрытия, т.е. без возведения «лесов» и параллельно со строительством монолитного каркаса, что, в свою очередь, значительно сократит сроки и стоимость строительства. Экономичность проекта была отмечена членами жюри столь же высоко, как и архитектурно-планировочное решение комплекса. Остается надеяться, что и для будущих покупателей эти качества окажутся привлекательными в равной степени – относительная доступность жилья и его подчеркнутая стильная современность.
Концепция жилого комплекса на Рублевском шоссе © «Сергей Скуратов ARCHITECTS»
Концепция жилого комплекса на Рублевском шоссе © «Сергей Скуратов ARCHITECTS»
Концепция жилого комплекса на Рублевском шоссе © «Сергей Скуратов ARCHITECTS»
Концепция жилого комплекса на Рублевском шоссе © «Сергей Скуратов ARCHITECTS»
Концепция жилого комплекса на Рублевском шоссе © «Сергей Скуратов ARCHITECTS»
Концепция жилого комплекса на Рублевском шоссе © «Сергей Скуратов ARCHITECTS»
Концепция жилого комплекса на Рублевском шоссе. Развертка по Рублевскому шоссе © «Сергей Скуратов ARCHITECTS»
Концепция жилого комплекса на Рублевском шоссе. Развертка по Рублевскому шоссе © «Сергей Скуратов ARCHITECTS»
Концепция жилого комплекса на Рублевском шоссе. Фасад по Каштановой аллее © «Сергей Скуратов ARCHITECTS»
Концепция жилого комплекса на Рублевском шоссе. Фасад по Каштановой аллее © «Сергей Скуратов ARCHITECTS»
Концепция жилого комплекса на Рублевском шоссе. Фасад по Рублевскому шоссе © «Сергей Скуратов ARCHITECTS»
Концепция жилого комплекса на Рублевском шоссе. Фасад по Рублевскому шоссе © «Сергей Скуратов ARCHITECTS»
Концепция жилого комплекса на Рублевском шоссе. Фасад по Проектируемому проезду © «Сергей Скуратов ARCHITECTS»
Концепция жилого комплекса на Рублевском шоссе. Фасад по Проектируемому проезду © «Сергей Скуратов ARCHITECTS»
Концепция жилого комплекса на Рублевском шоссе. Фасад по Ярцевской улице © «Сергей Скуратов ARCHITECTS»
Концепция жилого комплекса на Рублевском шоссе. Фасад по Ярцевской улице © «Сергей Скуратов ARCHITECTS»
Концепция жилого комплекса на Рублевском шоссе © «Сергей Скуратов ARCHITECTS»
Концепция жилого комплекса на Рублевском шоссе © «Сергей Скуратов ARCHITECTS»
Концепция жилого комплекса на Рублевском шоссе © «Сергей Скуратов ARCHITECTS»
Концепция жилого комплекса на Рублевском шоссе © «Сергей Скуратов ARCHITECTS»
Концепция жилого комплекса на Рублевском шоссе © «Сергей Скуратов ARCHITECTS»
Концепция жилого комплекса на Рублевском шоссе © «Сергей Скуратов ARCHITECTS»
Концепция жилого комплекса на Рублевском шоссе © «Сергей Скуратов ARCHITECTS»
Концепция жилого комплекса на Рублевском шоссе © «Сергей Скуратов ARCHITECTS»
Концепция жилого комплекса на Рублевском шоссе © «Сергей Скуратов ARCHITECTS»
Концепция жилого комплекса на Рублевском шоссе © «Сергей Скуратов ARCHITECTS»
Концепция жилого комплекса на Рублевском шоссе © «Сергей Скуратов ARCHITECTS»
Концепция жилого комплекса на Рублевском шоссе © «Сергей Скуратов ARCHITECTS»
Концепция жилого комплекса на Рублевском шоссе © «Сергей Скуратов ARCHITECTS»
Концепция жилого комплекса на Рублевском шоссе © «Сергей Скуратов ARCHITECTS»
Концепция жилого комплекса на Рублевском шоссе © «Сергей Скуратов ARCHITECTS»
Концепция жилого комплекса на Рублевском шоссе © «Сергей Скуратов ARCHITECTS»
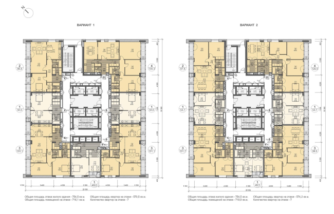
Концепция жилого комплекса на Рублевском шоссе. План 2 этажа © «Сергей Скуратов ARCHITECTS»
Концепция жилого комплекса на Рублевском шоссе. План 2 этажа © «Сергей Скуратов ARCHITECTS»
Концепция жилого комплекса на Рублевском шоссе © «Сергей Скуратов ARCHITECTS»
Концепция жилого комплекса на Рублевском шоссе © «Сергей Скуратов ARCHITECTS»
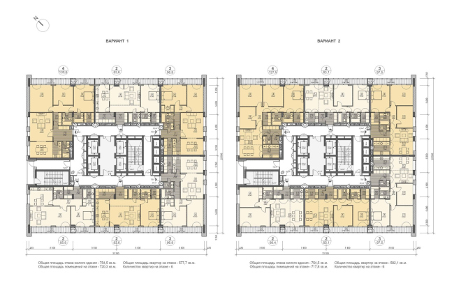
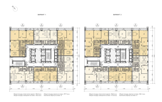
Концепция жилого комплекса на Рублевском шоссе. План 3 этажа © «Сергей Скуратов ARCHITECTS»
Концепция жилого комплекса на Рублевском шоссе. План 3 этажа © «Сергей Скуратов ARCHITECTS»
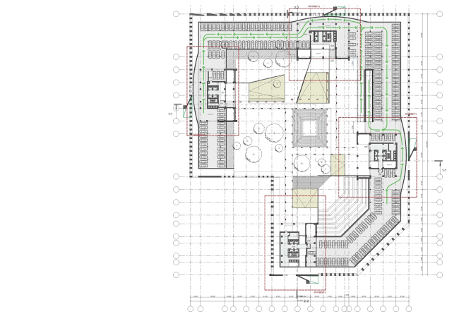
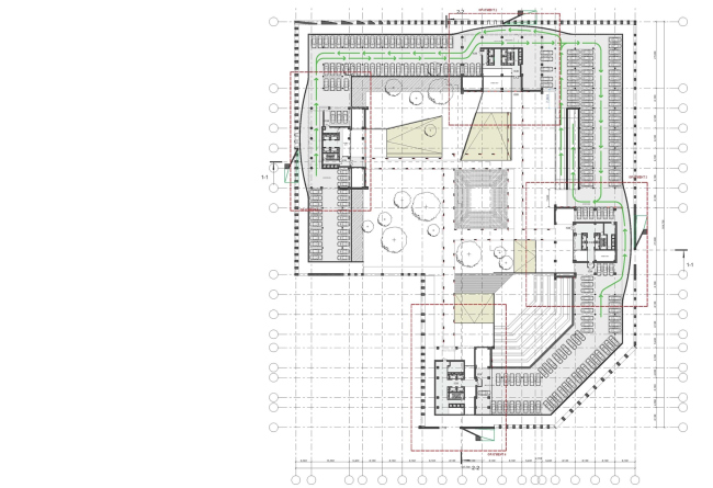
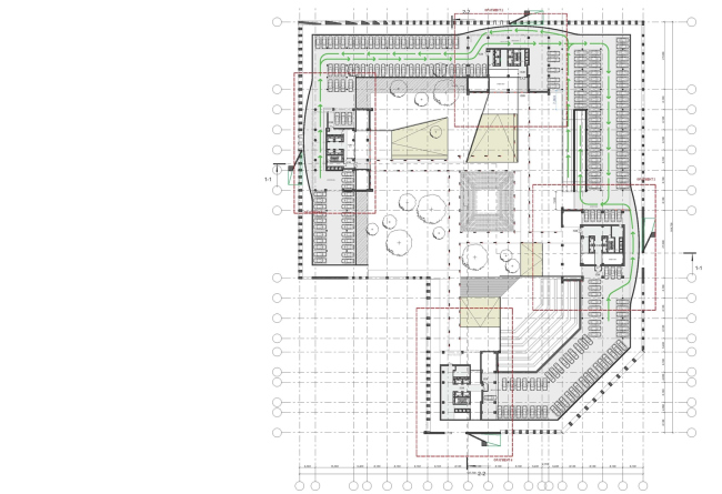
Концепция жилого комплекса на Рублевском шоссе. План 1 этажа © «Сергей Скуратов ARCHITECTS»
Концепция жилого комплекса на Рублевском шоссе. План 1 этажа © «Сергей Скуратов ARCHITECTS»
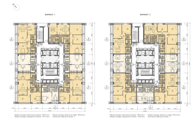
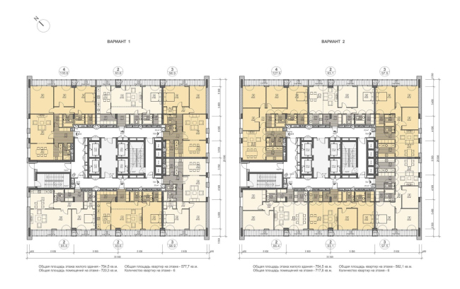
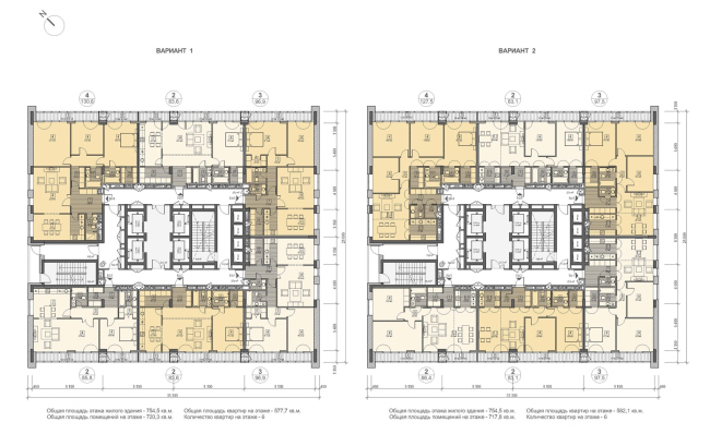
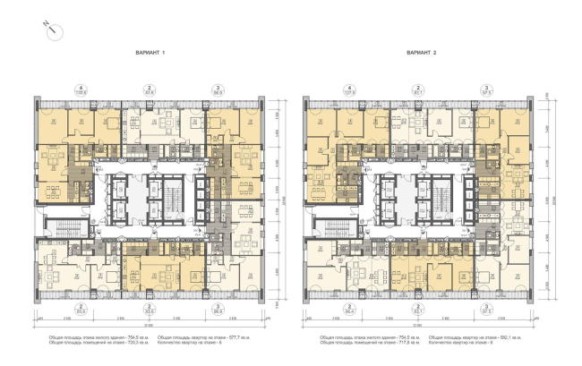
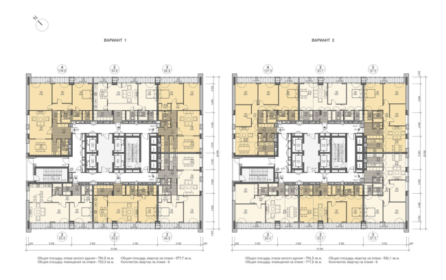
Концепция жилого комплекса на Рублевском шоссе. Корпус 3, план типового этажа © «Сергей Скуратов ARCHITECTS»
Концепция жилого комплекса на Рублевском шоссе. Корпус 3, план типового этажа © «Сергей Скуратов ARCHITECTS»
Концепция жилого комплекса на Рублевском шоссе © «Сергей Скуратов ARCHITECTS»
Концепция жилого комплекса на Рублевском шоссе © «Сергей Скуратов ARCHITECTS»
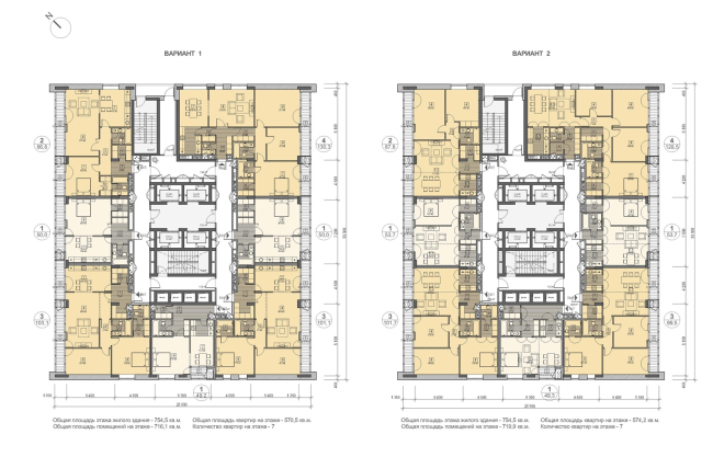
Концепция жилого комплекса на Рублевском шоссе. Корпус 1, план типового этажа © «Сергей Скуратов ARCHITECTS»
Концепция жилого комплекса на Рублевском шоссе. Корпус 1, план типового этажа © «Сергей Скуратов ARCHITECTS»
Концепция жилого комплекса на Рублевском шоссе. Корпус 2, план типового этажа  © «Сергей Скуратов ARCHITECTS»
Концепция жилого комплекса на Рублевском шоссе. Корпус 2, план типового этажа © «Сергей Скуратов ARCHITECTS»
Концепция жилого комплекса на Рублевском шоссе. Эскизы 
Сергея Скуратова © «Сергей Скуратов ARCHITECTS»
Концепция жилого комплекса на Рублевском шоссе. Эскизы Сергея Скуратова © «Сергей Скуратов ARCHITECTS»
Концепция жилого комплекса на Рублевском шоссе. Эскизы 
Сергея Скуратова © «Сергей Скуратов ARCHITECTS»
Концепция жилого комплекса на Рублевском шоссе. Эскизы Сергея Скуратова © «Сергей Скуратов ARCHITECTS»
Концепция жилого комплекса на Рублевском шоссе. Эскизы 
Сергея Скуратова © «Сергей Скуратов ARCHITECTS»
Концепция жилого комплекса на Рублевском шоссе. Эскизы Сергея Скуратова © «Сергей Скуратов ARCHITECTS»