Ðàçìåùåíî íà ïîðòàëå Àðõè.ðó (www.archi.ru)

21.01.2014

Îáðàçîâàíèå ïîëíîãî öèêëà

Íèíà Ôðîëîâà
Îáúåêò:
Øêîëà óïðàâëåíèÿ Éåëüñêîãî óíèâåðñèòåòà – êîðïóñ Ýäâàðäà Ï. Ýâàíñà
Àäðåñ:
ÑØÀ, None, Íüþ-Õåéâåí.
Ìàñòåðñêàÿ:
Foster + Partners

 Éåëüñêîì óíèâåðñèòåòå îòêðûëîñü íîâîå çäàíèå Øêîëû óïðàâëåíèÿ, ñïðîåêòèðîâàííîå áþðî Íîðìàíà Ôîñòåðà.

Øêîëà óïðàâëåíèÿ Éåëüñêîãî óíèâåðñèòåòà – êîðïóñ Ýäâàðäà Ï. Ýâàíñà © Foster + Partners
Øêîëà óïðàâëåíèÿ Éåëüñêîãî óíèâåðñèòåòà – êîðïóñ Ýäâàðäà Ï. Ýâàíñà © Foster + Partners

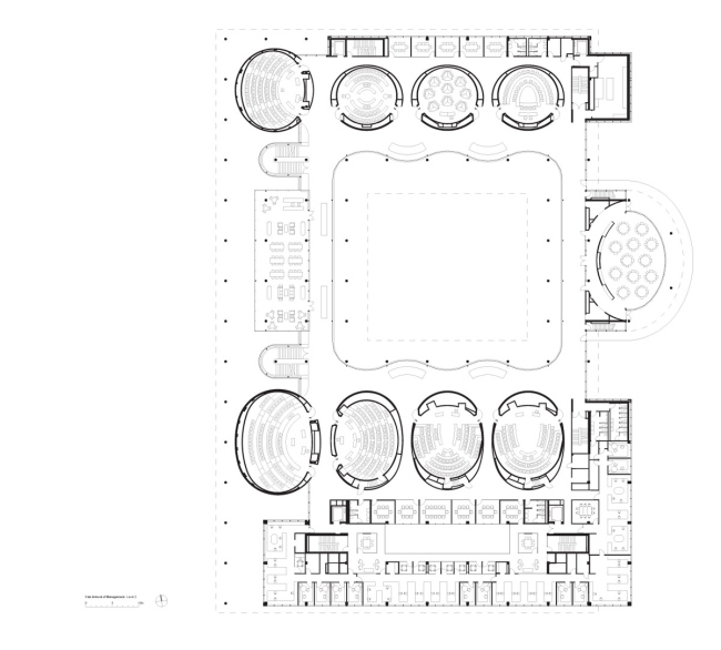
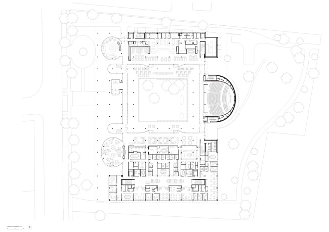
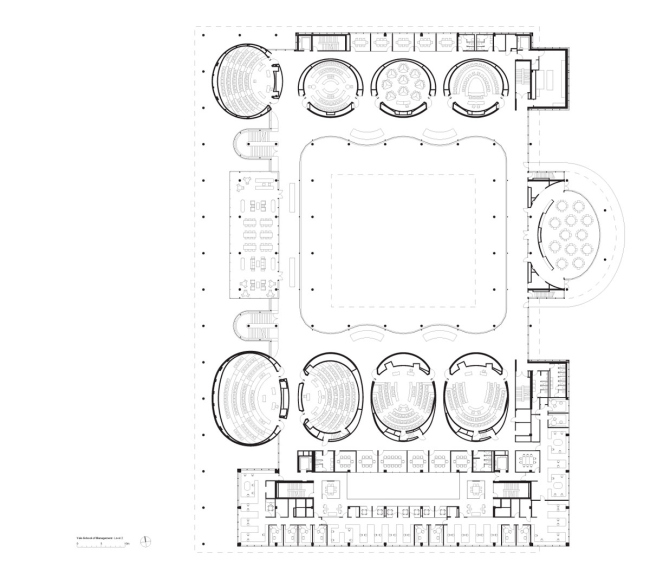
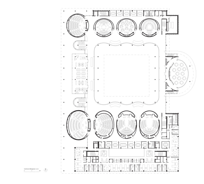
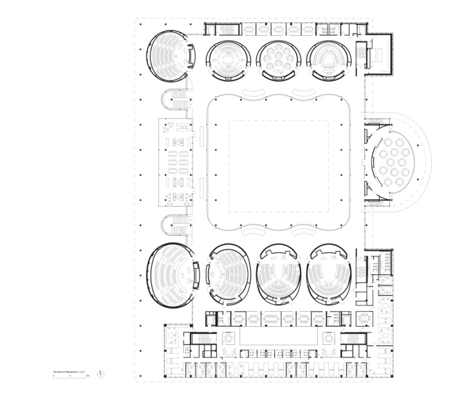
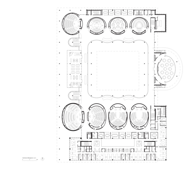
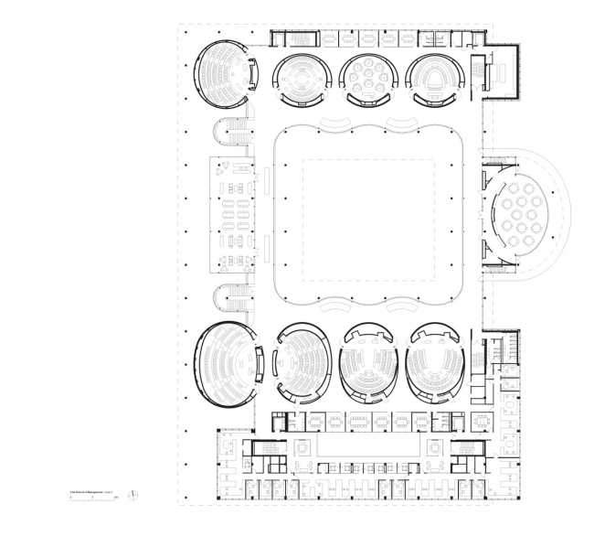
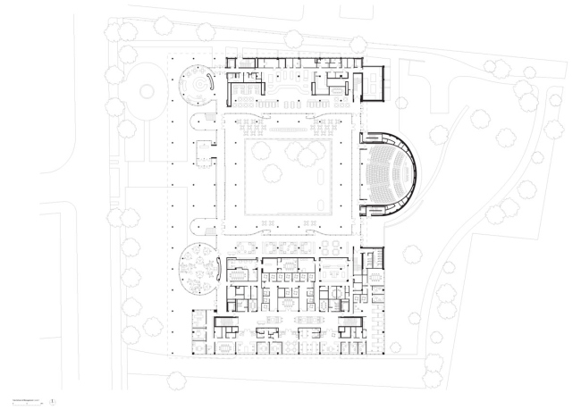
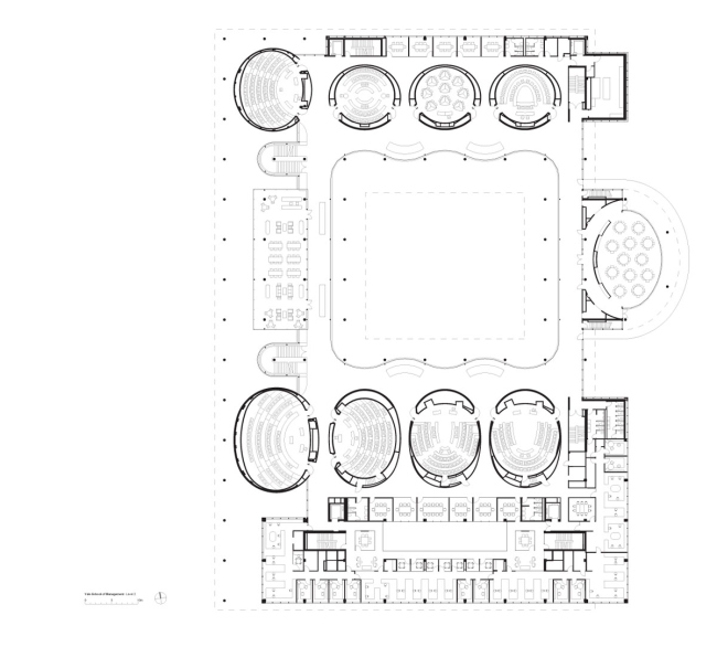
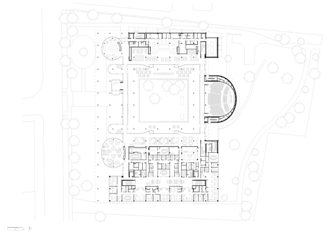
Êîðïóñ Ýäâàðäà Ï. Ýâàíñà âïåðâûå îáúåäèíèë âñå ïîìåùåíèÿ Øêîëû â îäíîì ìåñòå. Àðõèòåêòîðû ïîñòàðàëèñü îòðàçèòü â ïðîåêòå ïðàêòèêóåìûé òàì íîâàòîðñêèé ïîäõîä ê ïðåïîäàâàíèþ – ïî ïðîãðàììå «ïîëíîãî öèêëà», îõâàòûâàþùåé âñå âîçìîæíûå àñïåêòû áèçíåñ-îáðàçîâàíèÿ. Ôàñàäû è ìíîãèå âíóòðåííèå ïåðåãîðîäêè ñäåëàíû ïðîçðà÷íûìè, à ïðîñòðàíñòâà äëÿ ñåìèíàðîâ è ëåêöèé ñîñåäñòâóþò ñ çîíàìè äëÿ èíäèâèäóàëüíûõ çàíÿòèé è íåôîðìàëüíîãî îáùåíèÿ: âñå ýòî äîëæíî ïîáóäèòü ó÷àùèõñÿ ê ñîòðóäíè÷åñòâó è òâîð÷åñêîìó ðåøåíèþ ó÷åáíûõ çàäàíèé.
Øêîëà óïðàâëåíèÿ Éåëüñêîãî óíèâåðñèòåòà – êîðïóñ Ýäâàðäà Ï. Ýâàíñà © Foster + Partners
Øêîëà óïðàâëåíèÿ Éåëüñêîãî óíèâåðñèòåòà – êîðïóñ Ýäâàðäà Ï. Ýâàíñà © Foster + Partners

Îñíîâà êîìïîçèöèè çäàíèÿ – ðàñïîëîæåííûå ïî äâóì ñòîðîíàì çåëåíîãî âíóòðåííåãî äâîðà âîñåìü öèëèíäðîâ èç ñèíåãî ñòåêëà. Â íèõ íàõîäÿòñÿ 16 äâóõñâåòíûõ îâàëüíûõ àóäèòîðèé: òàêîé ïëàí ïîçâîëÿåò ñ óäîáñòâîì ïðîâîäèòü òàì ëåêöèè è çàíÿòèÿ ëþáîãî òèïà – ñ äâóìÿ ëåêòîðàìè, â ôîðìàòå êðóãëîãî ñòîëà è ò. ä.
Øêîëà óïðàâëåíèÿ Éåëüñêîãî óíèâåðñèòåòà – êîðïóñ Ýäâàðäà Ï. Ýâàíñà © Foster + Partners
Øêîëà óïðàâëåíèÿ Éåëüñêîãî óíèâåðñèòåòà – êîðïóñ Ýäâàðäà Ï. Ýâàíñà © Foster + Partners

Òàêæå â çäàíèè èìååòñÿ àóäèòîðèÿ íà 350 ìåñò ñ çàëîì äëÿ ïðèåìîâ íàä íåé, ìåäèàòåêà, êàôå, ïîäçåìíûé ãàðàæ. Èíòåðüåðû îôîðìëåíû ðàáîòàìè Ñîëà Ëå Âèòòà è øâåéöàðñêîãî õóäîæíèêà Àäðèàíà Øèññà.
Øêîëà óïðàâëåíèÿ Éåëüñêîãî óíèâåðñèòåòà – êîðïóñ Ýäâàðäà Ï. Ýâàíñà © Foster + Partners
Øêîëà óïðàâëåíèÿ Éåëüñêîãî óíèâåðñèòåòà – êîðïóñ Ýäâàðäà Ï. Ýâàíñà © Foster + Partners

Ôàñàäû çàùèùàåò îò ñîëíöà êðûøà ñ ãëóáîêèì âûíîñîì, îïèðàþùèìñÿ íà ñòðîéíûå êîëîííû. Òàêæå ïðè íåîáõîäèìîñòè èíòåðüåð ìîæíî çàòåíèòü ñ ïîìîùüþ ñïåöèàëüíûõ ïîëîòíèù.
Øêîëà óïðàâëåíèÿ Éåëüñêîãî óíèâåðñèòåòà – êîðïóñ Ýäâàðäà Ï. Ýâàíñà © Foster + Partners
Øêîëà óïðàâëåíèÿ Éåëüñêîãî óíèâåðñèòåòà – êîðïóñ Ýäâàðäà Ï. Ýâàíñà © Foster + Partners
Øêîëà óïðàâëåíèÿ Éåëüñêîãî óíèâåðñèòåòà – êîðïóñ Ýäâàðäà Ï. Ýâàíñà © Foster + Partners
Øêîëà óïðàâëåíèÿ Éåëüñêîãî óíèâåðñèòåòà – êîðïóñ Ýäâàðäà Ï. Ýâàíñà © Foster + Partners
Øêîëà óïðàâëåíèÿ Éåëüñêîãî óíèâåðñèòåòà – êîðïóñ Ýäâàðäà Ï. Ýâàíñà © Foster + Partners
Øêîëà óïðàâëåíèÿ Éåëüñêîãî óíèâåðñèòåòà – êîðïóñ Ýäâàðäà Ï. Ýâàíñà © Foster + Partners
Øêîëà óïðàâëåíèÿ Éåëüñêîãî óíèâåðñèòåòà – êîðïóñ Ýäâàðäà Ï. Ýâàíñà © Foster + Partners
Øêîëà óïðàâëåíèÿ Éåëüñêîãî óíèâåðñèòåòà – êîðïóñ Ýäâàðäà Ï. Ýâàíñà © Foster + Partners
Øêîëà óïðàâëåíèÿ Éåëüñêîãî óíèâåðñèòåòà – êîðïóñ Ýäâàðäà Ï. Ýâàíñà © Foster + Partners
Øêîëà óïðàâëåíèÿ Éåëüñêîãî óíèâåðñèòåòà – êîðïóñ Ýäâàðäà Ï. Ýâàíñà © Foster + Partners
Øêîëà óïðàâëåíèÿ Éåëüñêîãî óíèâåðñèòåòà – êîðïóñ Ýäâàðäà Ï. Ýâàíñà © Foster + Partners
Øêîëà óïðàâëåíèÿ Éåëüñêîãî óíèâåðñèòåòà – êîðïóñ Ýäâàðäà Ï. Ýâàíñà © Foster + Partners
Øêîëà óïðàâëåíèÿ Éåëüñêîãî óíèâåðñèòåòà – êîðïóñ Ýäâàðäà Ï. Ýâàíñà © Foster + Partners
Øêîëà óïðàâëåíèÿ Éåëüñêîãî óíèâåðñèòåòà – êîðïóñ Ýäâàðäà Ï. Ýâàíñà © Foster + Partners
Øêîëà óïðàâëåíèÿ Éåëüñêîãî óíèâåðñèòåòà – êîðïóñ Ýäâàðäà Ï. Ýâàíñà © Foster + Partners
Øêîëà óïðàâëåíèÿ Éåëüñêîãî óíèâåðñèòåòà – êîðïóñ Ýäâàðäà Ï. Ýâàíñà © Foster + Partners
Øêîëà óïðàâëåíèÿ Éåëüñêîãî óíèâåðñèòåòà – êîðïóñ Ýäâàðäà Ï. Ýâàíñà © Foster + Partners
Øêîëà óïðàâëåíèÿ Éåëüñêîãî óíèâåðñèòåòà – êîðïóñ Ýäâàðäà Ï. Ýâàíñà © Foster + Partners
Øêîëà óïðàâëåíèÿ Éåëüñêîãî óíèâåðñèòåòà – êîðïóñ Ýäâàðäà Ï. Ýâàíñà © Foster + Partners
Øêîëà óïðàâëåíèÿ Éåëüñêîãî óíèâåðñèòåòà – êîðïóñ Ýäâàðäà Ï. Ýâàíñà © Foster + Partners
Øêîëà óïðàâëåíèÿ Éåëüñêîãî óíèâåðñèòåòà – êîðïóñ Ýäâàðäà Ï. Ýâàíñà © Foster + Partners
Øêîëà óïðàâëåíèÿ Éåëüñêîãî óíèâåðñèòåòà – êîðïóñ Ýäâàðäà Ï. Ýâàíñà © Foster + Partners
Øêîëà óïðàâëåíèÿ Éåëüñêîãî óíèâåðñèòåòà – êîðïóñ Ýäâàðäà Ï. Ýâàíñà © Foster + Partners
Øêîëà óïðàâëåíèÿ Éåëüñêîãî óíèâåðñèòåòà – êîðïóñ Ýäâàðäà Ï. Ýâàíñà © Foster + Partners
Øêîëà óïðàâëåíèÿ Éåëüñêîãî óíèâåðñèòåòà – êîðïóñ Ýäâàðäà Ï. Ýâàíñà © Foster + Partners
Øêîëà óïðàâëåíèÿ Éåëüñêîãî óíèâåðñèòåòà – êîðïóñ Ýäâàðäà Ï. Ýâàíñà © Foster + Partners
Øêîëà óïðàâëåíèÿ Éåëüñêîãî óíèâåðñèòåòà – êîðïóñ Ýäâàðäà Ï. Ýâàíñà © Foster + Partners
Øêîëà óïðàâëåíèÿ Éåëüñêîãî óíèâåðñèòåòà – êîðïóñ Ýäâàðäà Ï. Ýâàíñà © Foster + Partners
Øêîëà óïðàâëåíèÿ Éåëüñêîãî óíèâåðñèòåòà – êîðïóñ Ýäâàðäà Ï. Ýâàíñà © Foster + Partners
Øêîëà óïðàâëåíèÿ Éåëüñêîãî óíèâåðñèòåòà – êîðïóñ Ýäâàðäà Ï. Ýâàíñà © Foster + Partners
Øêîëà óïðàâëåíèÿ Éåëüñêîãî óíèâåðñèòåòà – êîðïóñ Ýäâàðäà Ï. Ýâàíñà © Foster + Partners
Øêîëà óïðàâëåíèÿ Éåëüñêîãî óíèâåðñèòåòà – êîðïóñ Ýäâàðäà Ï. Ýâàíñà © Foster + Partners
Øêîëà óïðàâëåíèÿ Éåëüñêîãî óíèâåðñèòåòà – êîðïóñ Ýäâàðäà Ï. Ýâàíñà © Foster + Partners
Øêîëà óïðàâëåíèÿ Éåëüñêîãî óíèâåðñèòåòà – êîðïóñ Ýäâàðäà Ï. Ýâàíñà © Foster + Partners