|
Объявлены победители двух конкурсов идей, нацеленных на регенерацию латвийского города Кароста.
Кароста (в переводе «Военный порт») – это город в 10 км к северу от Лиепаи в Латвии. Он был заложен в 1890 по указу императора Александра III как военный порт, а в советское время оставался военным городком, закрытой территорией, недоступной даже для гражданского населения Лиепаи. После обретения Латвией независимости в 1990 советские военные покинули город, и, в результате, численность населения в Каросте сократилась с 25 000 человек до 6 000, а многие здания оказались заброшены и с тех пор пришли в негодность.
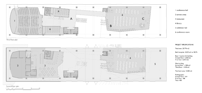
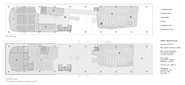
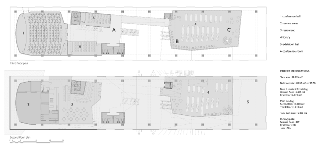
Латвийские власти пытаются развивать в Каросте и ее окрестностях туризм и вообще вернуть город к жизни. С этой целью был организован ряд конкурсов, два из которых завершились в конце 2013. В первом конкурсе («Город-призрак») участникам было поручено разработать проект многофункционального центра, объединяющего музей, библиотеку, конференц-центр, торговую зону и ресторан. Второй конкурс предлагал найти решение проблемы безликих и обветшавших фасадов «бруталистских» многоквартирных домов в Каросте.
Представляем проекты победителей обоих конкурсов идей.
Конкурс №1. Город-призрак
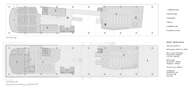
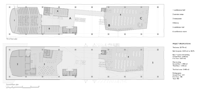
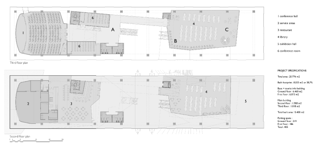
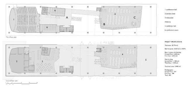
1-е место Grousset + Hélène Besson + Julien Colom + Guillaume Friolet (Франция)
 1-е место конкурса «Город-призрак». Авторы проекта: Fabien Grousset + Hélène Besson + Julien Colom + Guillaume Friolet (Франция). Иллюстрация предоставлена организаторами конкурса.
Победители конкурса переосмыслили проекты советских бетонных бункеров с их тяжеловесными закрытыми формами, создав здание с необычным световым оформлением. Они эффективно использовали площадь участка, разместив там открытые площадки и зоны для активного отдыха. Внутри Центра каждый посетитель сможет найти себе занятие по душе, а большой зал посередине здания может служить крытой городской площадью.
1-е место конкурса «Город-призрак». Авторы проекта: Fabien Grousset + Hélène Besson + Julien Colom + Guillaume Friolet (Франция). Иллюстрация предоставлена организаторами конкурса.
1-е место конкурса «Город-призрак». Авторы проекта: Fabien Grousset + Hélène Besson + Julien Colom + Guillaume Friolet (Франция). Иллюстрация предоставлена организаторами конкурса.
1-е место конкурса «Город-призрак». Авторы проекта: Fabien Grousset + Hélène Besson + Julien Colom + Guillaume Friolet (Франция). Иллюстрация предоставлена организаторами конкурса.
1-е место конкурса «Город-призрак». Авторы проекта: Fabien Grousset + Hélène Besson + Julien Colom + Guillaume Friolet (Франция). Иллюстрация предоставлена организаторами конкурса.
1-е место конкурса «Город-призрак». Авторы проекта: Fabien Grousset + Hélène Besson + Julien Colom + Guillaume Friolet (Франция). Иллюстрация предоставлена организаторами конкурса.
1-е место конкурса «Город-призрак». Авторы проекта: Fabien Grousset + Hélène Besson + Julien Colom + Guillaume Friolet (Франция). Иллюстрация предоставлена организаторами конкурса.
1-е место конкурса «Город-призрак». Авторы проекта: Fabien Grousset + Hélène Besson + Julien Colom + Guillaume Friolet (Франция). Иллюстрация предоставлена организаторами конкурса.
1-е место конкурса «Город-призрак». Авторы проекта: Fabien Grousset + Hélène Besson + Julien Colom + Guillaume Friolet (Франция). Иллюстрация предоставлена организаторами конкурса.
1-е место конкурса «Город-призрак». Авторы проекта: Fabien Grousset + Hélène Besson + Julien Colom + Guillaume Friolet (Франция). Иллюстрация предоставлена организаторами конкурса.
1-е место конкурса «Город-призрак». Авторы проекта: Fabien Grousset + Hélène Besson + Julien Colom + Guillaume Friolet (Франция). Иллюстрация предоставлена организаторами конкурса.
2-е место Gilles Retsin + Isaie Bloch (Великобритания)
2-е место конкурса «Город-призрак». Авторы проекта: Gilles Retsin + Isaie Bloch (Великобритания). Иллюстрация предоставлена организаторами конкурса.
Функция этого проекта контрастирует с его формой: это радикальный символ-памятник, отсылающий зрителя к прибрежному бетонному бункеру в Каросте, включает в себя столовую, детский сад и мастерскую. Заданные условиями конкурса музей и конференц-центр как более крупные элементы программы «выселены» в находящееся по соседству здание старой фабрики, нуждающееся сейчас в ремонте. Сочетание бетона с легкими позолоченными элементами напоминают об архитектурной истории Каросты: материалы словно заимствованы из жилых кварталов советских времен и православных храмов времен Российской империи.
2-е место конкурса «Город-призрак». Авторы проекта: Gilles Retsin + Isaie Bloch (Великобритания). Иллюстрация предоставлена организаторами конкурса.
2-е место конкурса «Город-призрак». Авторы проекта: Gilles Retsin + Isaie Bloch (Великобритания). Иллюстрация предоставлена организаторами конкурса.
2-е место конкурса «Город-призрак». Авторы проекта: Gilles Retsin + Isaie Bloch (Великобритания). Иллюстрация предоставлена организаторами конкурса.
2-е место конкурса «Город-призрак». Авторы проекта: Gilles Retsin + Isaie Bloch (Великобритания). Иллюстрация предоставлена организаторами конкурса.
2-е место конкурса «Город-призрак». Авторы проекта: Gilles Retsin + Isaie Bloch (Великобритания). Иллюстрация предоставлена организаторами конкурса.
2-е место конкурса «Город-призрак». Авторы проекта: Gilles Retsin + Isaie Bloch (Великобритания). Иллюстрация предоставлена организаторами конкурса.
2-е место конкурса «Город-призрак». Авторы проекта: Gilles Retsin + Isaie Bloch (Великобритания). Иллюстрация предоставлена организаторами конкурса.
2-е место конкурса «Город-призрак». Авторы проекта: Gilles Retsin + Isaie Bloch (Великобритания). Иллюстрация предоставлена организаторами конкурса.
3-е место Johann Bertelli + Gustavo DeleuNogueira + Julie Deglesne (Франция)
3-е место конкурса «Город-призрак». Авторы проекта: Johann Bertelli + Gustavo DeleuNogueira + Julie Deglesne (Франция). Иллюстрация предоставлена организаторами конкурса.
Проект «Световое ядро» представляет собой простой и ясный архитектурный объем. Пространство, залитое светом, противопоставлено типичной для Каросты мрачной бетонной архитектуре.
Неортогональное расположение здание на участке связано сразу с несколькими факторами: во-первых, его ориентация по сторонам света позволяет солнцу на протяжении всего дня «гостить» в Центре; во-вторых, здание обращено строго на Морской собор, расположенный южнее участка для строительства. Таким образом, авторы отдают дань уважения визуальной и духовной доминанте Каросты. Любоваться эффектным видом на собор можно как находясь внутри здания, так и отдыхая на расположенных рядом террасированных открытых площадках.
3-е место конкурса «Город-призрак». Авторы проекта: Johann Bertelli + Gustavo DeleuNogueira + Julie Deglesne (Франция). Иллюстрация предоставлена организаторами конкурса.
3-е место конкурса «Город-призрак». Авторы проекта: Johann Bertelli + Gustavo DeleuNogueira + Julie Deglesne (Франция). Иллюстрация предоставлена организаторами конкурса.
3-е место конкурса «Город-призрак». Авторы проекта: Johann Bertelli + Gustavo DeleuNogueira + Julie Deglesne (Франция). Иллюстрация предоставлена организаторами конкурса.
3-е место конкурса «Город-призрак». Авторы проекта: Johann Bertelli + Gustavo DeleuNogueira + Julie Deglesne (Франция). Иллюстрация предоставлена организаторами конкурса.
3-е место конкурса «Город-призрак». Авторы проекта: Johann Bertelli + Gustavo DeleuNogueira + Julie Deglesne (Франция). Иллюстрация предоставлена организаторами конкурса.
3-е место конкурса «Город-призрак». Авторы проекта: Johann Bertelli + Gustavo DeleuNogueira + Julie Deglesne (Франция). Иллюстрация предоставлена организаторами конкурса.
3-е место конкурса «Город-призрак». Авторы проекта: Johann Bertelli + Gustavo DeleuNogueira + Julie Deglesne (Франция). Иллюстрация предоставлена организаторами конкурса.
3-е место конкурса «Город-призрак». Авторы проекта: Johann Bertelli + Gustavo DeleuNogueira + Julie Deglesne (Франция). Иллюстрация предоставлена организаторами конкурса.
3-е место конкурса «Город-призрак». Авторы проекта: Johann Bertelli + Gustavo DeleuNogueira + Julie Deglesne (Франция). Иллюстрация предоставлена организаторами конкурса.
3-е место конкурса «Город-призрак». Авторы проекта: Johann Bertelli + Gustavo DeleuNogueira + Julie Deglesne (Франция). Иллюстрация предоставлена организаторами конкурса.
3-е место конкурса «Город-призрак». Авторы проекта: Johann Bertelli + Gustavo DeleuNogueira + Julie Deglesne (Франция). Иллюстрация предоставлена организаторами конкурса.
3-е место конкурса «Город-призрак». Авторы проекта: Johann Bertelli + Gustavo DeleuNogueira + Julie Deglesne (Франция). Иллюстрация предоставлена организаторами конкурса.
Конкурс №2. Перелицовка брутализма
1-е место Ilana Simhon (США)
1-е место конкурса «Перелицовка брутализма». Авторы проекта: IlanaSimhon (США). Иллюстрация предоставлена организаторами конкурса.
Проект победителя конкурса прямо отвечает на вопрос «Как можно сделать унылые бруталистские дома более живыми?». Автор предлагает навесить на фасад балконы с опорами для вертикального сада. Стойки расположены под разными углами таким образом, чтобы каждый участок зеленых насаждений, даже расположенный на верхних этажах, был виден прохожим на улице. Такая система конструкций дает жильцам возможность «персонализировать» свой балкон, создав там неповторимый мини-сад.
2-е место Joanna Burton (Испания)
1-е место конкурса «Перелицовка брутализма». Авторы проекта: Joanna Burton (Испания). Иллюстрация предоставлена организаторами конкурса.
В этом проекте жилой 5-этажный дом служит билбордом или экраном: на здание проецируют изображение и затем наносят на него монохромный рисунок. При этом изображения имеют выраженный 3D-эффект – под определенным углом узор фасада считывается как трехмерное произведение искусства. Прелесть этого решения в том, что при небольших затратах можно часто менять экспозицию «голограмм» на стенах домов.
3-е место Emily Kutil + Jordan Hicks (США)
1-е место конкурса «Перелицовка брутализма». Авторы проекта: Emily Kutil + Jordan Hicks (США). Иллюстрация предоставлена организаторами конкурса.
Работа, занявшая третье место, балансирует на грани китча. Ее основу составляют рамки в форме кокошников, создающие на фасаде эффект коллажа. Эти рамки могут быть различных цветов, материалов и текстур: пена, сусальное золото, мох, янтарь, резина… Так проект раскрывает специфику местных архитектурных традиций: сочетание локальных декоративных, замысловатых, несколько наивных элементов с элементами брутальными, минималистичными, скупыми на цвет и фактуру.
Организаторы конкурсов: Homemade Dessert и муниципалитет Лиепаи.
|