Размещено на портале Архи.ру (www.archi.ru)

21.01.2014

Склоны творчества

Анна Мартовицкая
Объект:
Детский дом культуры Амар
Адрес:
Дания, None, Копенгаген.

В Копенгагене по проекту Дорте Мандруп построен Детский дом культуры Амар.

Детский дом культуры Амар © Jens Lindhe
Детский дом культуры Амар © Jens Lindhe
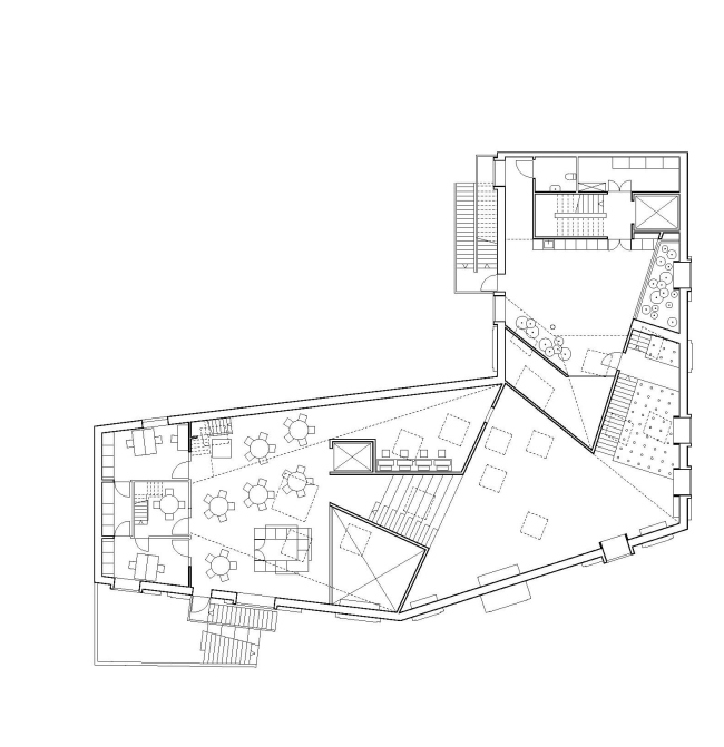
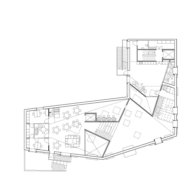
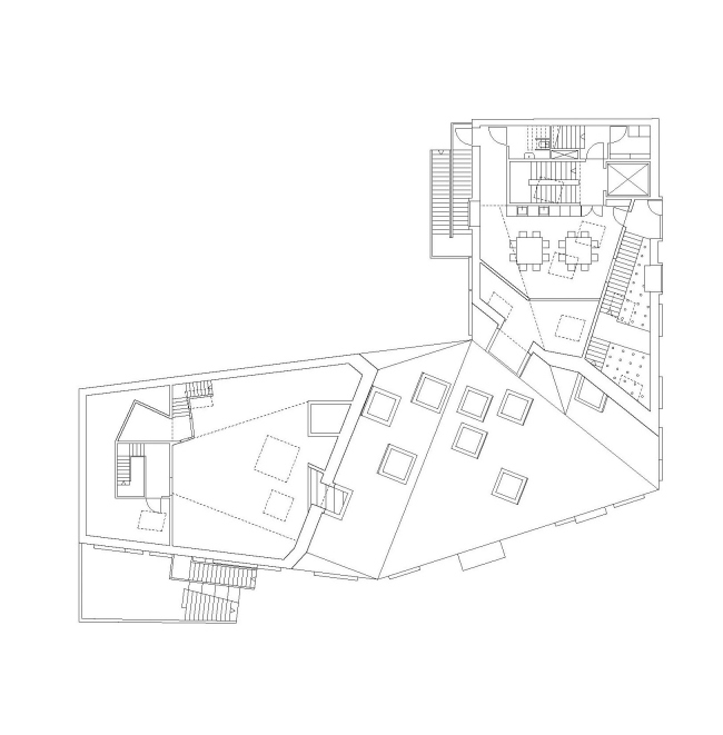
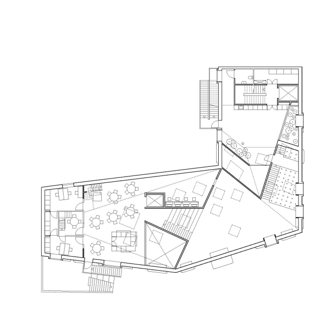
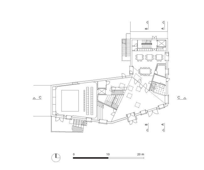
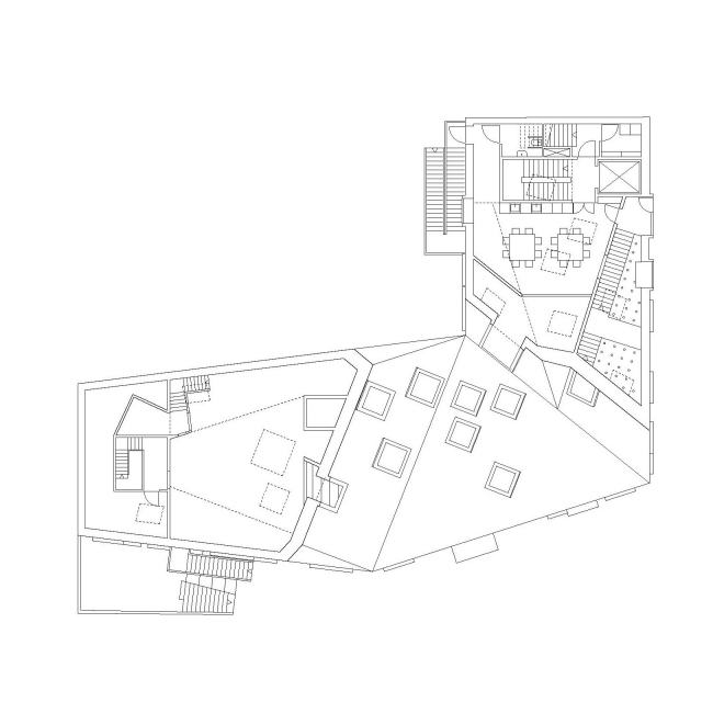
Детский культурный центр, построенный в районе Амагер, рассчитан на посетителей в возрасте от 0 до 18 лет. Это не детский сад и не школа, а именно досуговый центр, в котором и дети, и подростки смогут найти для себя занятие по душе.
Детский дом культуры Амар © Torben Eskerod
Детский дом культуры Амар © Torben Eskerod

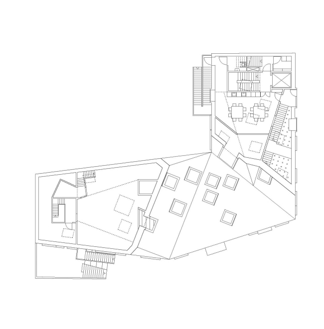
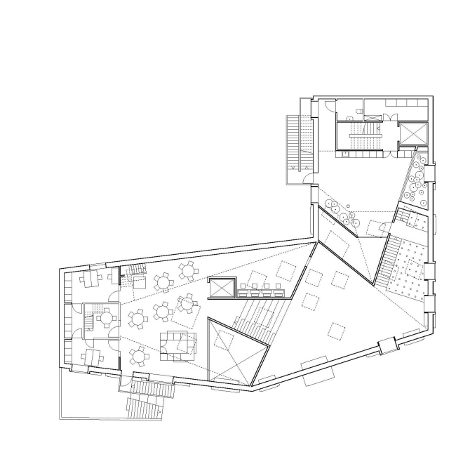
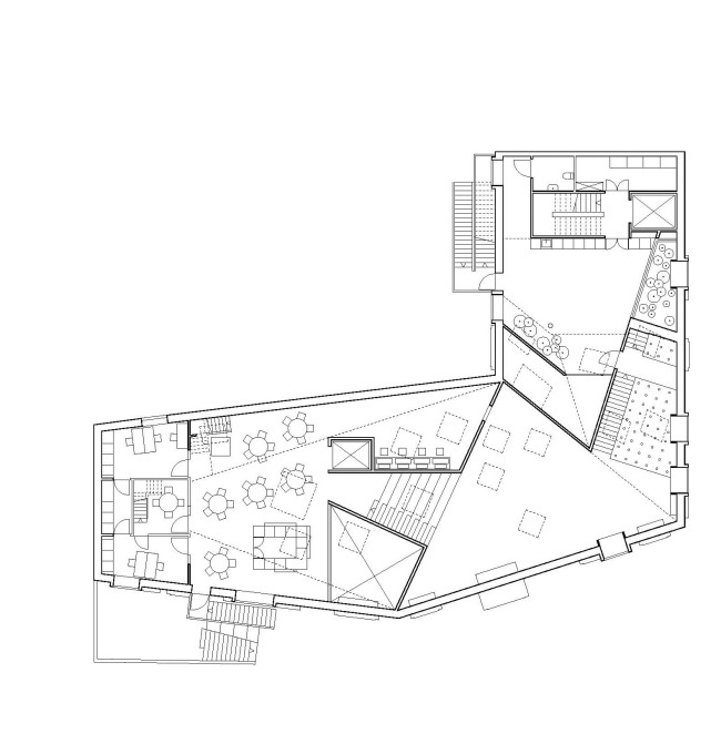
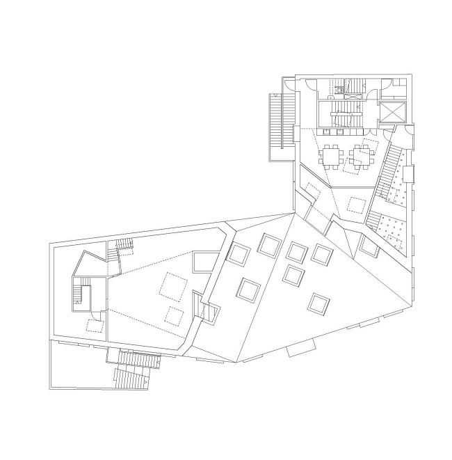
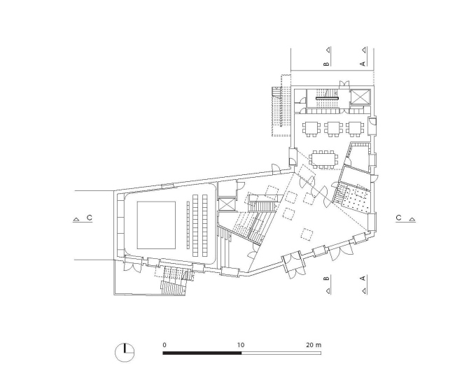
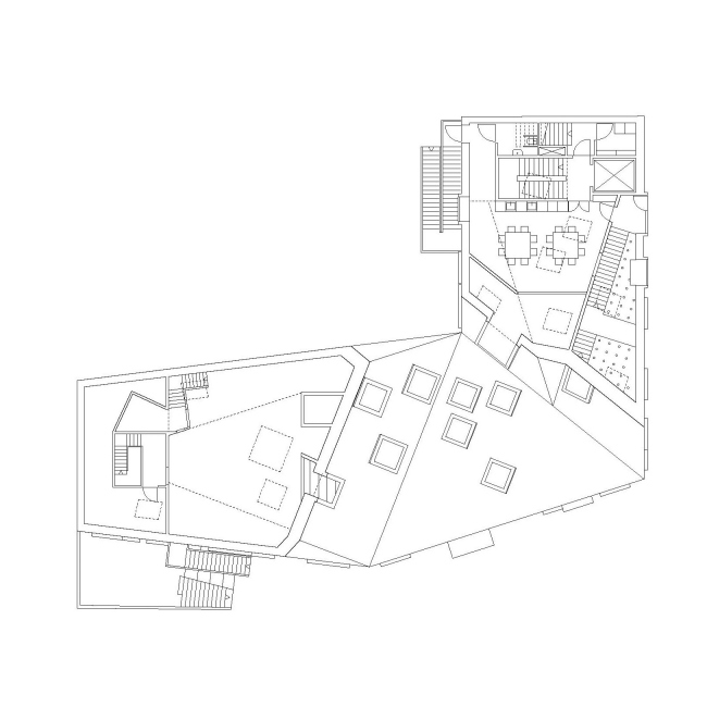
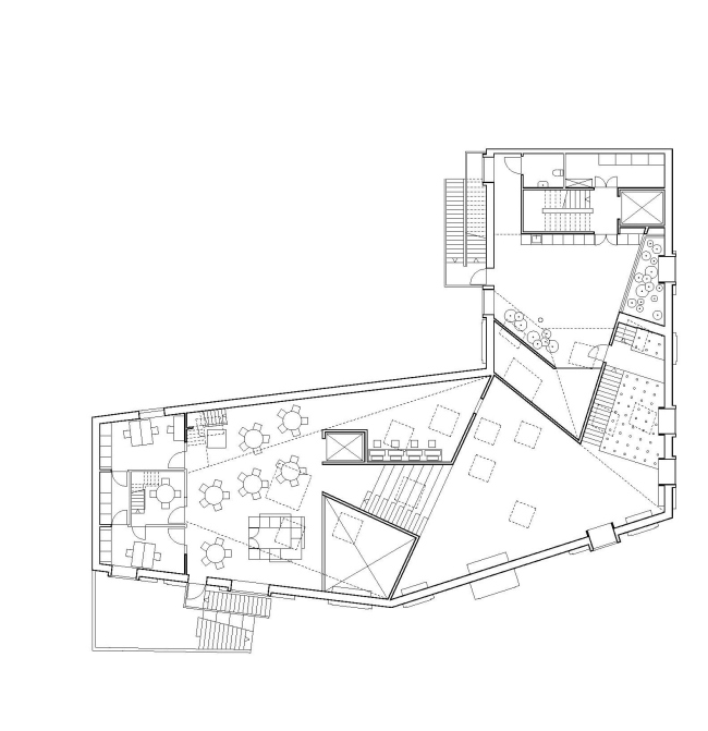
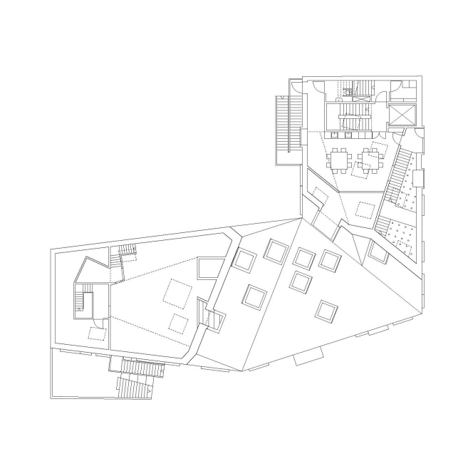
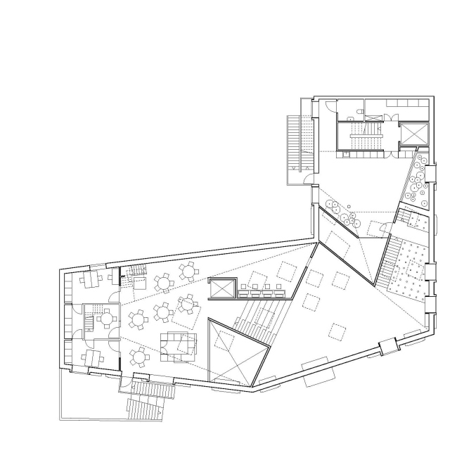
Для строительства центра был выделен очень небольшой участок, выходящий на перекресток. Фактически, новое здание замкнуло внешний периметр двора двух жилых домов, принципиально иначе организовав угол квартала.
Детский дом культуры Амар © Jens Lindhe
Детский дом культуры Амар © Jens Lindhe

Понятно, что при таком расположении одной из важнейших задач проектировщиков стало сохранение уровня инсоляции соседних жилых домов. Именно этим во многом объясняется сложная конфигурация объема детского центра: два его крыла продолжают форму зданий, к которым они примыкают, но за счет наклонных кровель «теряют» высоту по мере приближения к перекрестку. Этот прием позволяет существенно занизить угловую часть нового объема и, тем самым, пропустить во двор и выходящие в него окна квартир максимум солнечных лучей.
Детский дом культуры Амар © Torben Eskerod
Детский дом культуры Амар © Torben Eskerod

Фасады и кровля детского дома культуры облицованы одинаковыми стальными панелями, за счет чего создается иллюзия отсутствия у здания «начала» и «конца»: кажется, что это фрагмент ленты Мебиуса, случайно попавший в традиционную застройку квартала. Единообразие поверхностей подчеркнуто и с помощью одинаково оформленных окон: квадратные проемы в широких деревянных рамах обращены как к обеим улицам, так и к небу. Все они расположены на разной высоте, выдавая оригинальность внутреннего устройства здания.
Детский дом культуры Амар © Torben Eskerod
Детский дом культуры Амар © Torben Eskerod

Интерьер детского центра действительно не похож на традиционные учреждения подобного типа: здесь нет ни привычных кабинетов, ни изолированных игровых комнат. Все помещения так или иначе связаны между собой, предлагая посетителям большое разнообразие пространств. Есть здесь и всевозможные мастерские, и театральная студия, и танцевальный зал, и кафе, и укромные уголки для отдыха, и даже внушительный скалодром. Появление последнего, по мнению архитекторов, более чем закономерно: в соответствии со своей формой, два крыла центра трактованы как горные склоны, покорить которые под силу даже самым маленьким посетителям.
Детский дом культуры Амар © Torben Eskerod
Детский дом культуры Амар © Torben Eskerod
Детский дом культуры Амар © Torben Eskerod
Детский дом культуры Амар © Torben Eskerod
Детский дом культуры Амар © Torben Eskerod
Детский дом культуры Амар © Torben Eskerod
Детский дом культуры Амар © Torben Eskerod
Детский дом культуры Амар © Torben Eskerod
Детский дом культуры Амар © Torben Eskerod
Детский дом культуры Амар © Torben Eskerod
Детский дом культуры Амар © Jens Lindhe
Детский дом культуры Амар © Jens Lindhe
Детский дом культуры Амар © Torben Eskerod
Детский дом культуры Амар © Torben Eskerod
Детский дом культуры Амар © Torben Eskerod
Детский дом культуры Амар © Torben Eskerod
Детский дом культуры Амар © Jens Lindhe
Детский дом культуры Амар © Jens Lindhe
Детский дом культуры Амар © Dorte Mandrup
Детский дом культуры Амар © Dorte Mandrup
Детский дом культуры Амар © Torben Eskerod
Детский дом культуры Амар © Torben Eskerod
Детский дом культуры Амар © Torben Eskerod
Детский дом культуры Амар © Torben Eskerod
Детский дом культуры Амар © Torben Eskerod
Детский дом культуры Амар © Torben Eskerod
Детский дом культуры Амар © Torben Eskerod
Детский дом культуры Амар © Torben Eskerod
Детский дом культуры Амар © Torben Eskerod
Детский дом культуры Амар © Torben Eskerod
Детский дом культуры Амар © Torben Eskerod
Детский дом культуры Амар © Torben Eskerod
Детский дом культуры Амар © Torben Eskerod
Детский дом культуры Амар © Torben Eskerod
Детский дом культуры Амар © Torben Eskerod
Детский дом культуры Амар © Torben Eskerod
Детский дом культуры Амар © Dorte Mandrup
Детский дом культуры Амар © Dorte Mandrup
Детский дом культуры Амар © Dorte Mandrup
Детский дом культуры Амар © Dorte Mandrup
Детский дом культуры Амар © Dorte Mandrup
Детский дом культуры Амар © Dorte Mandrup
Детский дом культуры Амар © Dorte Mandrup
Детский дом культуры Амар © Dorte Mandrup
Детский дом культуры Амар © Dorte Mandrup
Детский дом культуры Амар © Dorte Mandrup
Детский дом культуры Амар © Dorte Mandrup
Детский дом культуры Амар © Dorte Mandrup
Детский дом культуры Амар © Dorte Mandrup
Детский дом культуры Амар © Dorte Mandrup
Детский дом культуры Амар © Dorte Mandrup
Детский дом культуры Амар © Dorte Mandrup
Детский дом культуры Амар © Dorte Mandrup
Детский дом культуры Амар © Dorte Mandrup
Детский дом культуры Амар © Dorte Mandrup
Детский дом культуры Амар © Dorte Mandrup